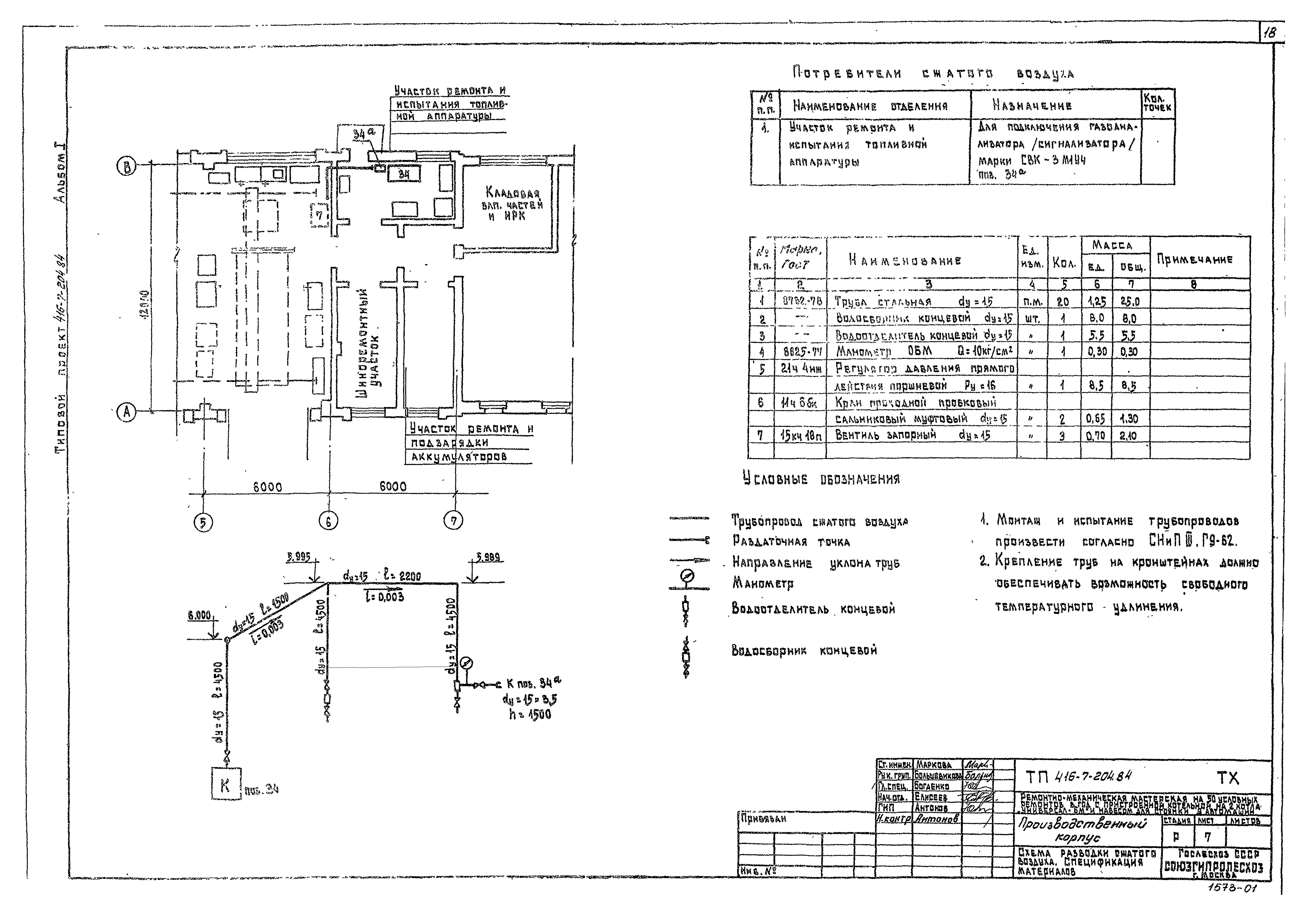
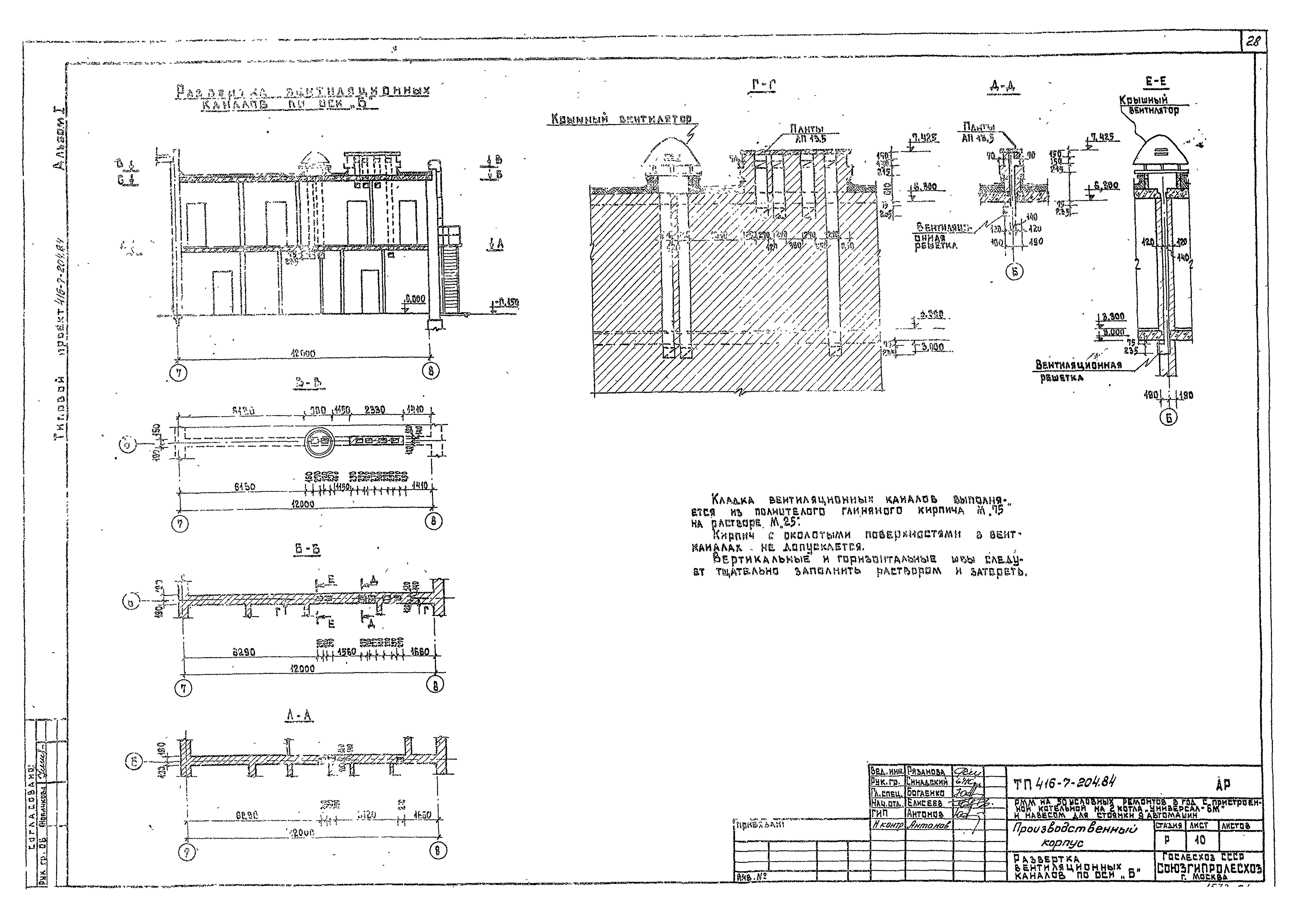
Скачать Типовой проект 416-7-204.84 Альбом I. Общая пояснительная записка. Технологические решения. Архитектурно-строительные решения. Конструкции железобетонные, конструкции металлическиеДата актуализации: 01.01.2021 Типовой проект 416-7-204.84
Альбом I. Общая пояснительная записка. Технологические решения. Архитектурно-строительные решения. Конструкции железобетонные, конструкции металлические| Обозначение: | Типовой проект 416-7-204.84 | | Обозначение англ: | 416-7-204.84 | | Статус: | не определен законодательством | | Название рус.: | Альбом I. Общая пояснительная записка. Технологические решения. Архитектурно-строительные решения. Конструкции железобетонные, конструкции металлические | | Дата добавления в базу: | 01.09.2013 | | Дата актуализации: | 01.01.2021 | | Дата введения: | 24.07.1984 | | Дата окончания срока действия: | 30.06.2003 | | Разработан: | Союзгипролесхоз
| | Утверждён: | 08.10.1980 Гослесхоз СССР (USSR Gosleskhoz 84)
|
                                                 
|