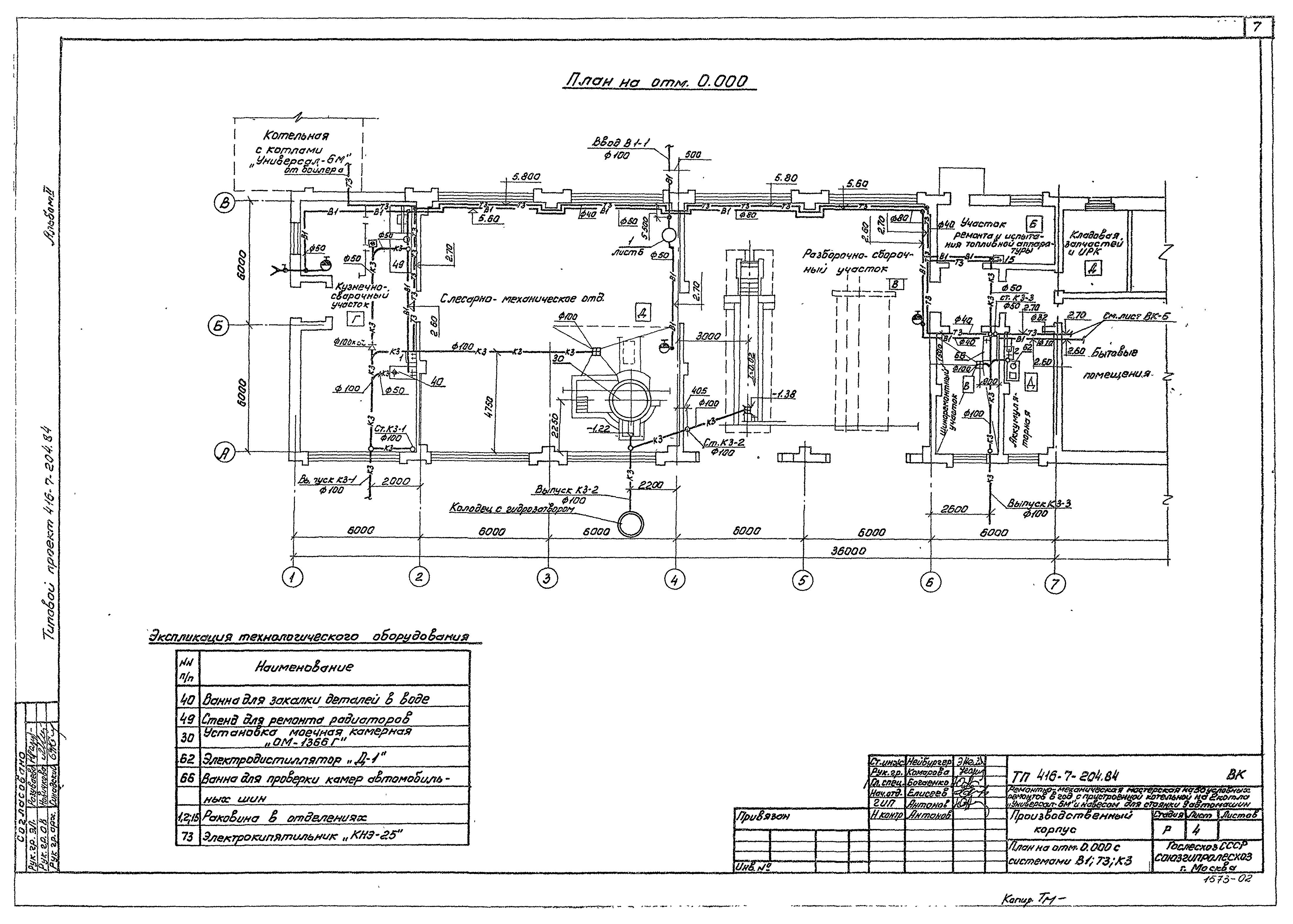
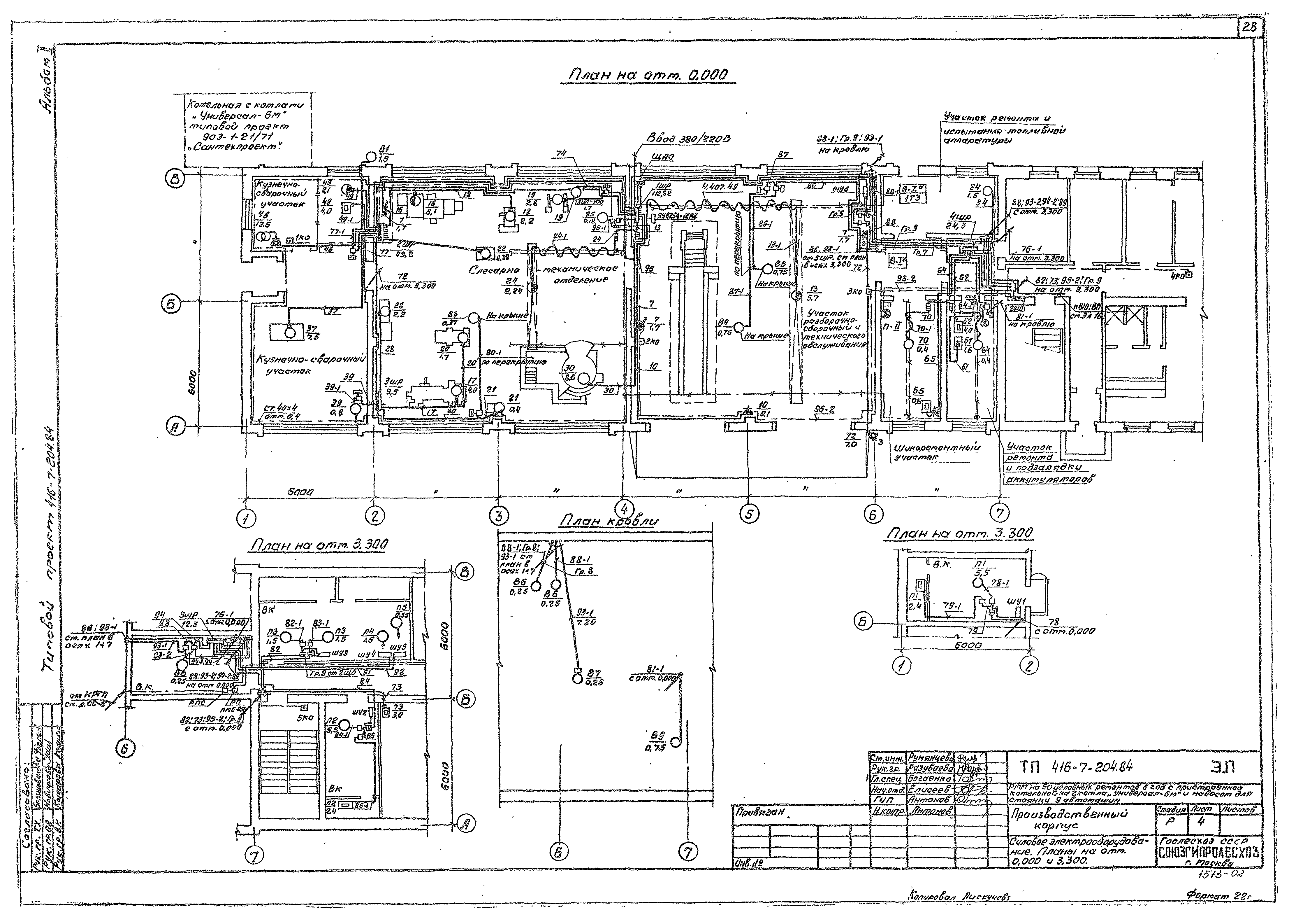
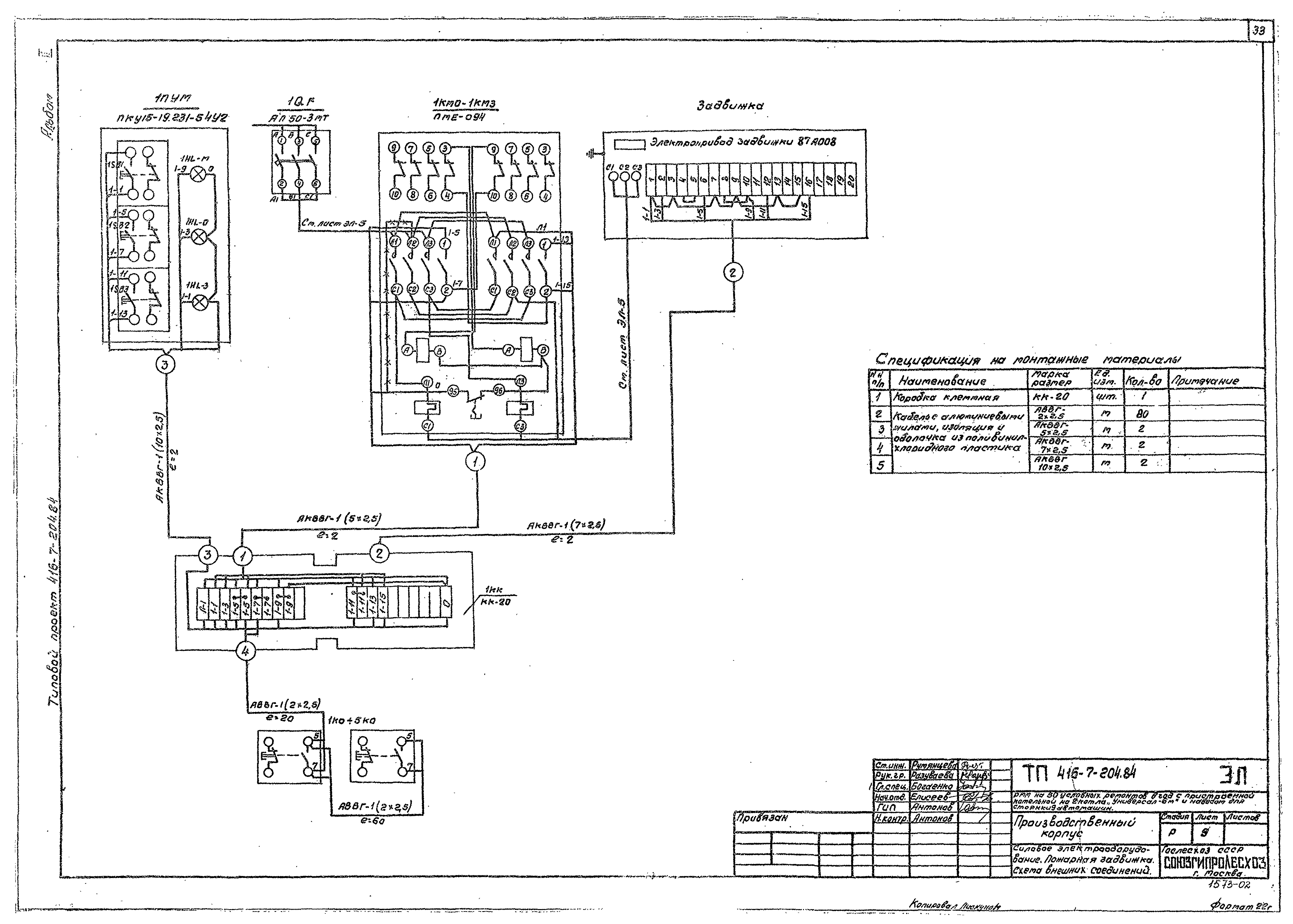
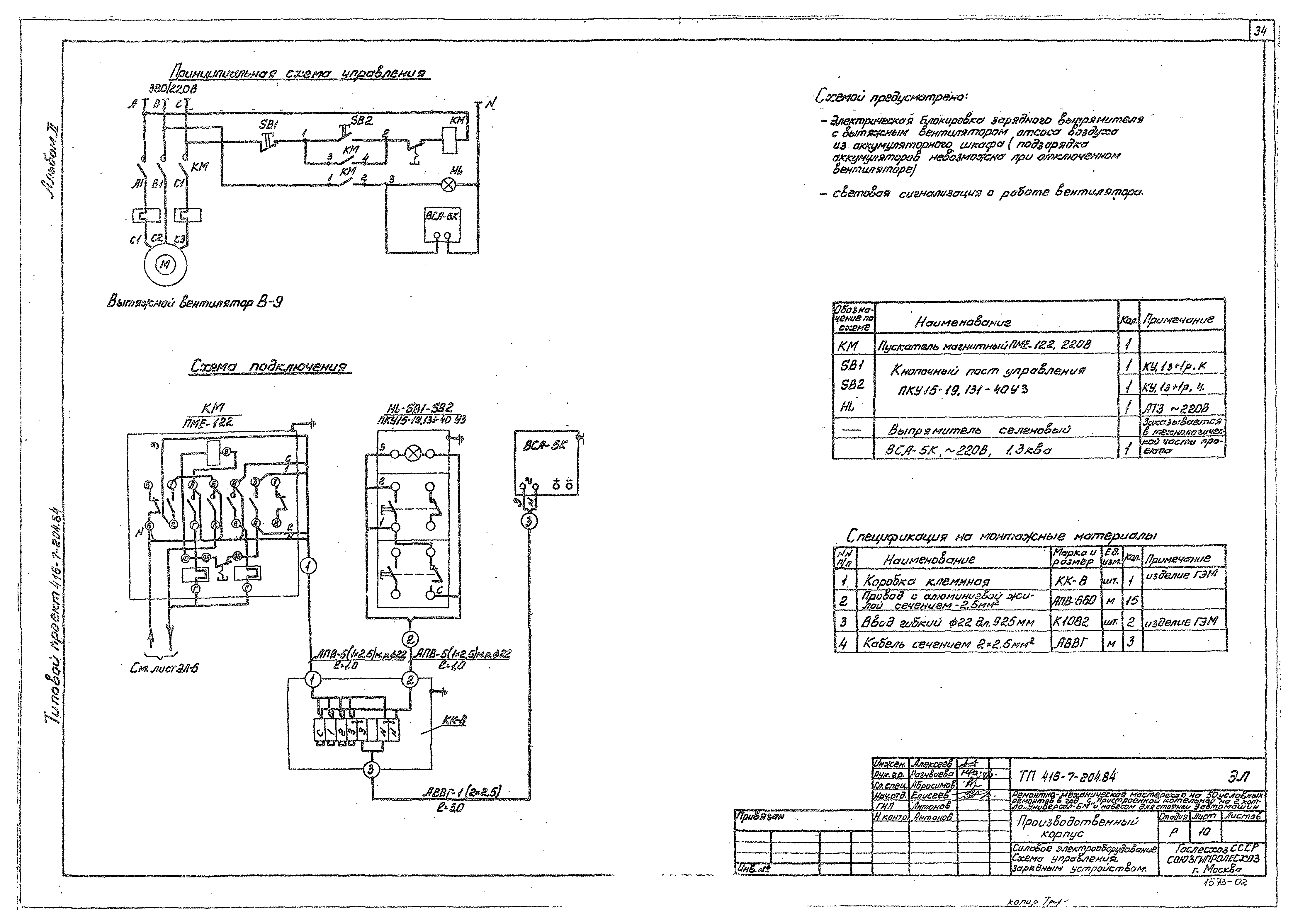
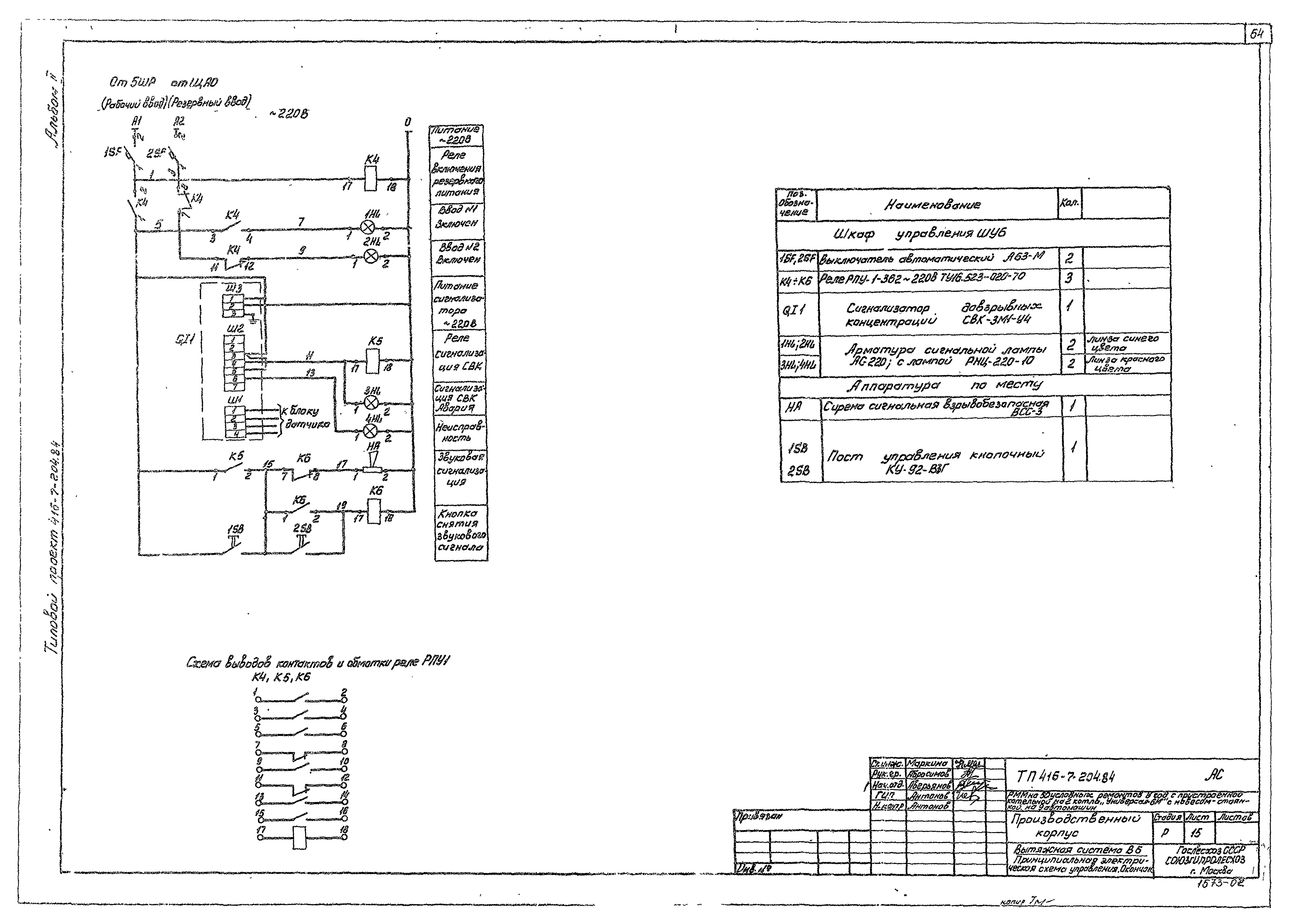
Скачать Типовой проект 416-7-204.84 Альбом II. Внутренний водопровод и канализация. Отопление и вентиляция. Электрооборудование. Автоматизация санитарно-технических системДата актуализации: 01.01.2021
|
| Обозначение: | Типовой проект 416-7-204.84 |
| Обозначение англ: | 416-7-204.84 |
| Статус: | не определен законодательством |
| Название рус.: | Альбом II. Внутренний водопровод и канализация. Отопление и вентиляция. Электрооборудование. Автоматизация санитарно-технических систем |
| Дата добавления в базу: | 01.09.2013 |
| Дата актуализации: | 01.01.2021 |
| Дата введения: | 24.07.1984 |
| Дата окончания срока действия: | 30.06.2003 |
| Разработан: | Союзгипролесхоз |
| Утверждён: | 08.10.1980 Гослесхоз СССР (USSR Gosleskhoz 84) |

































































