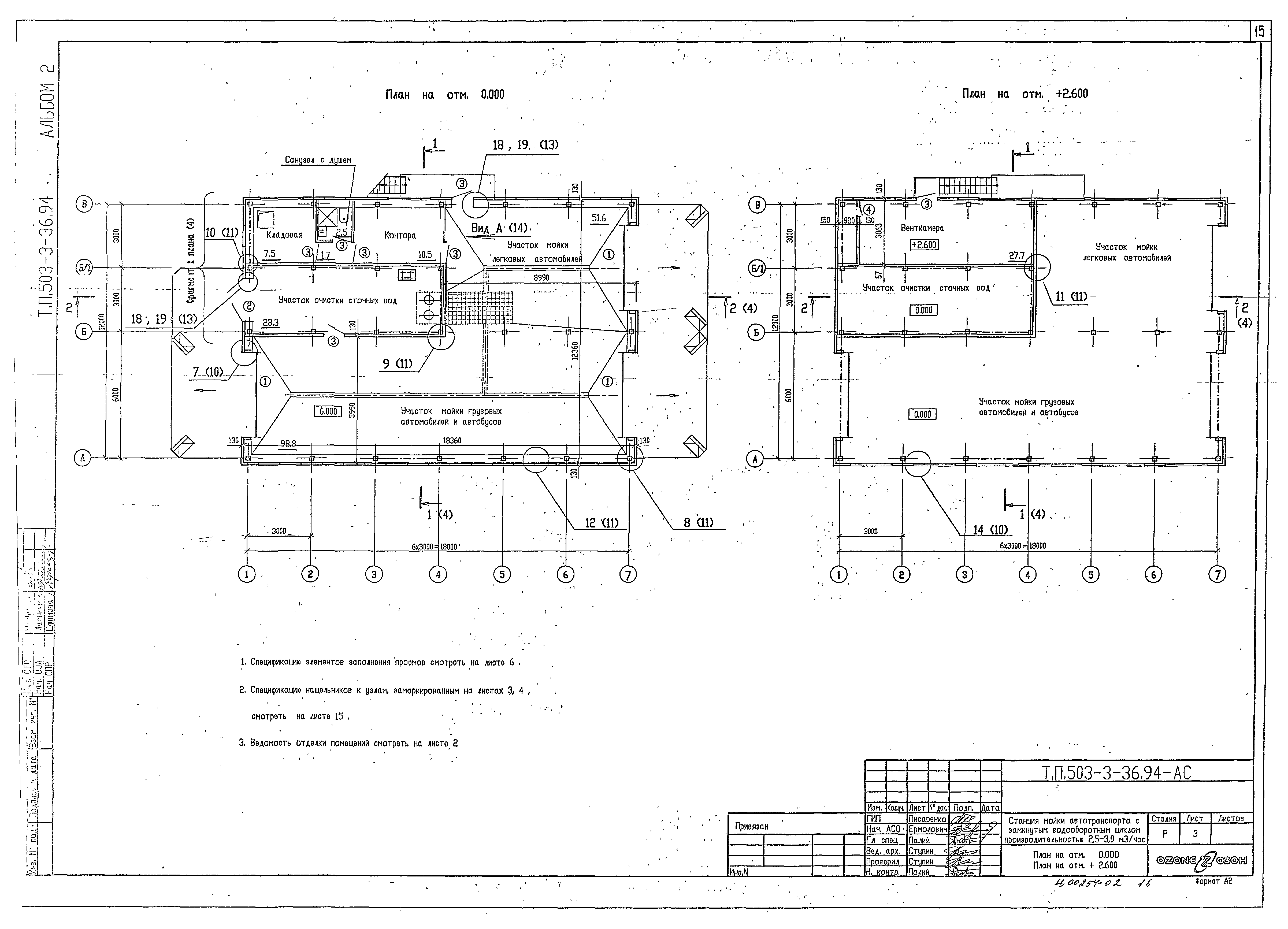
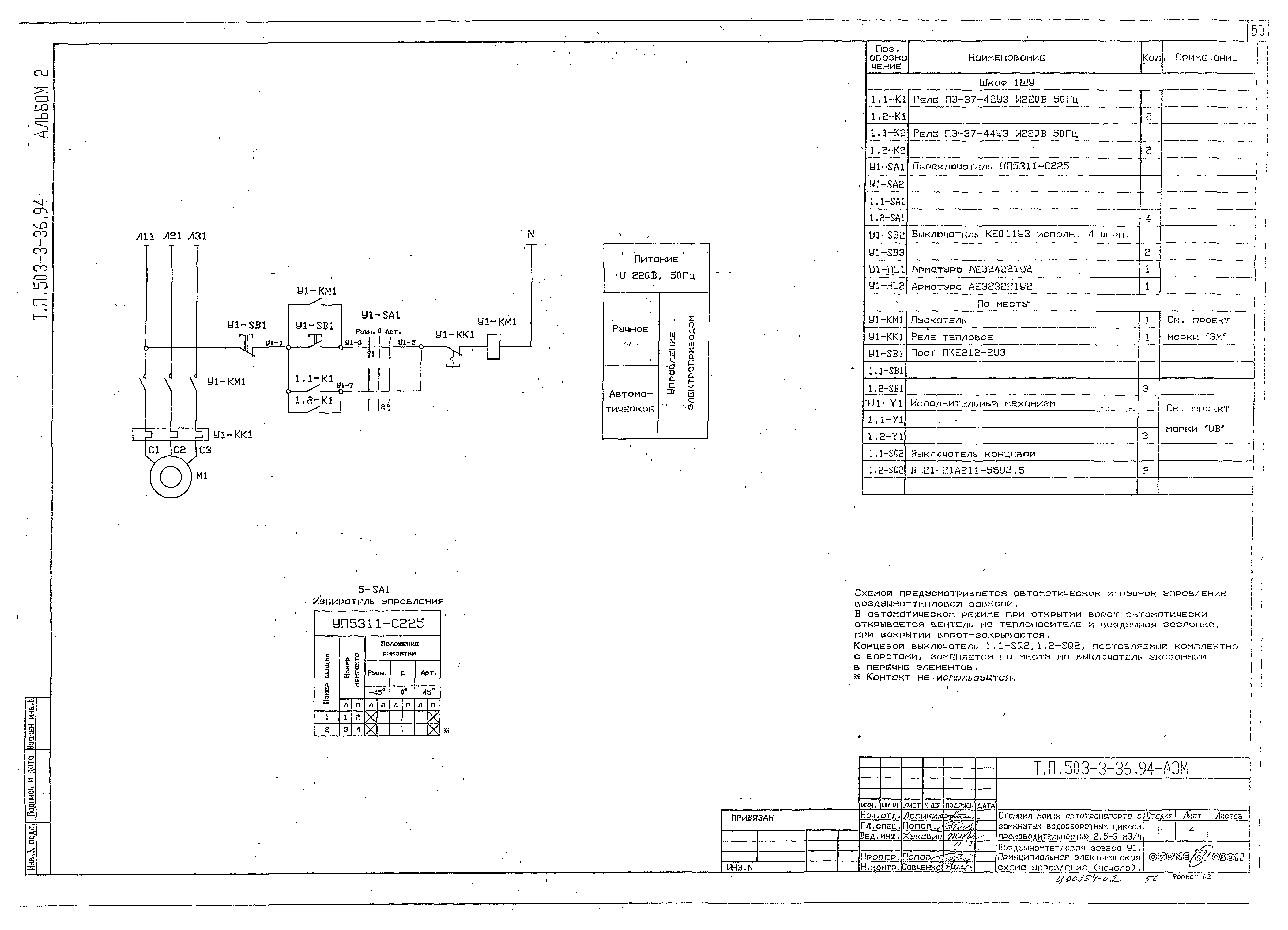
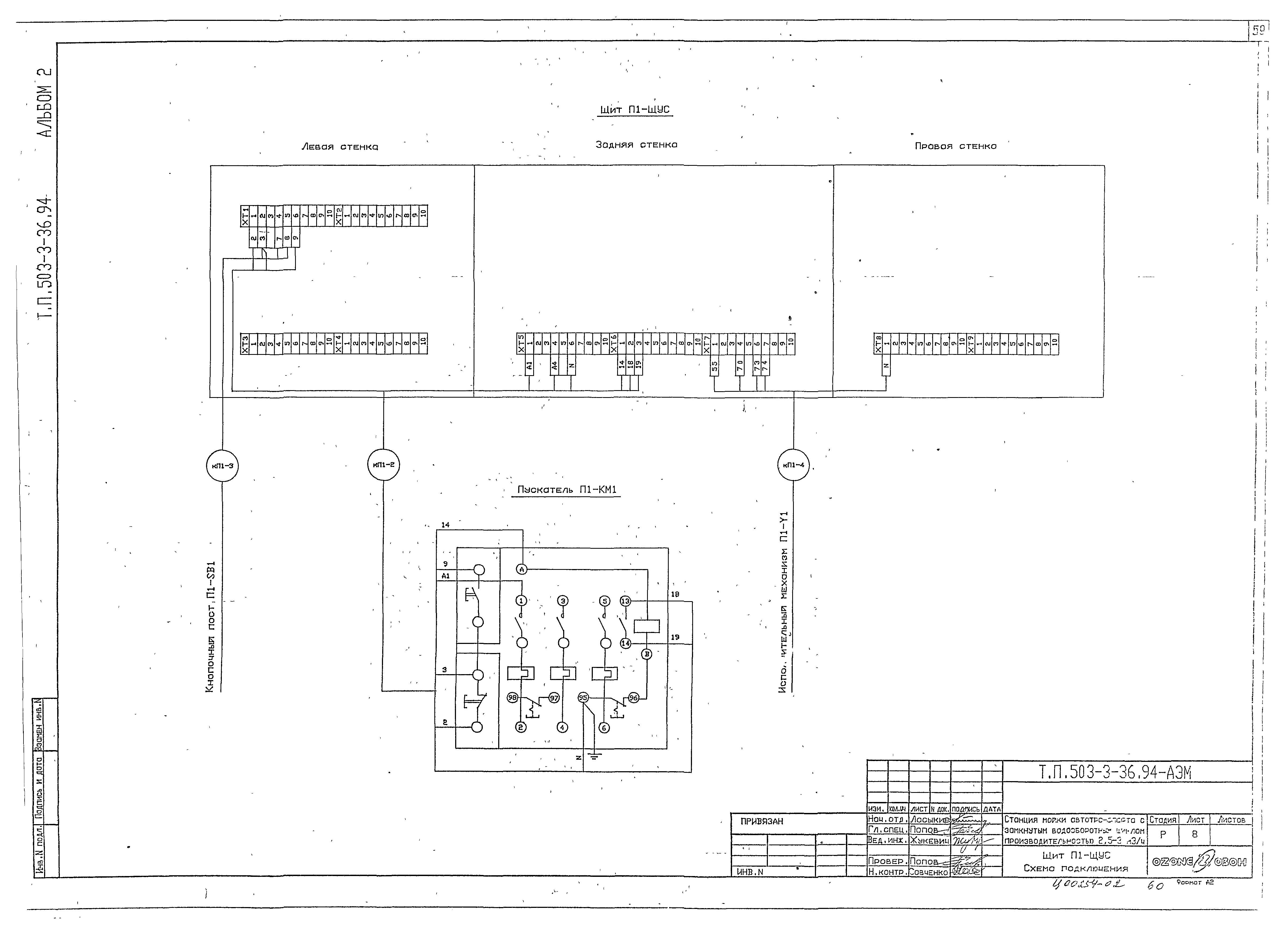
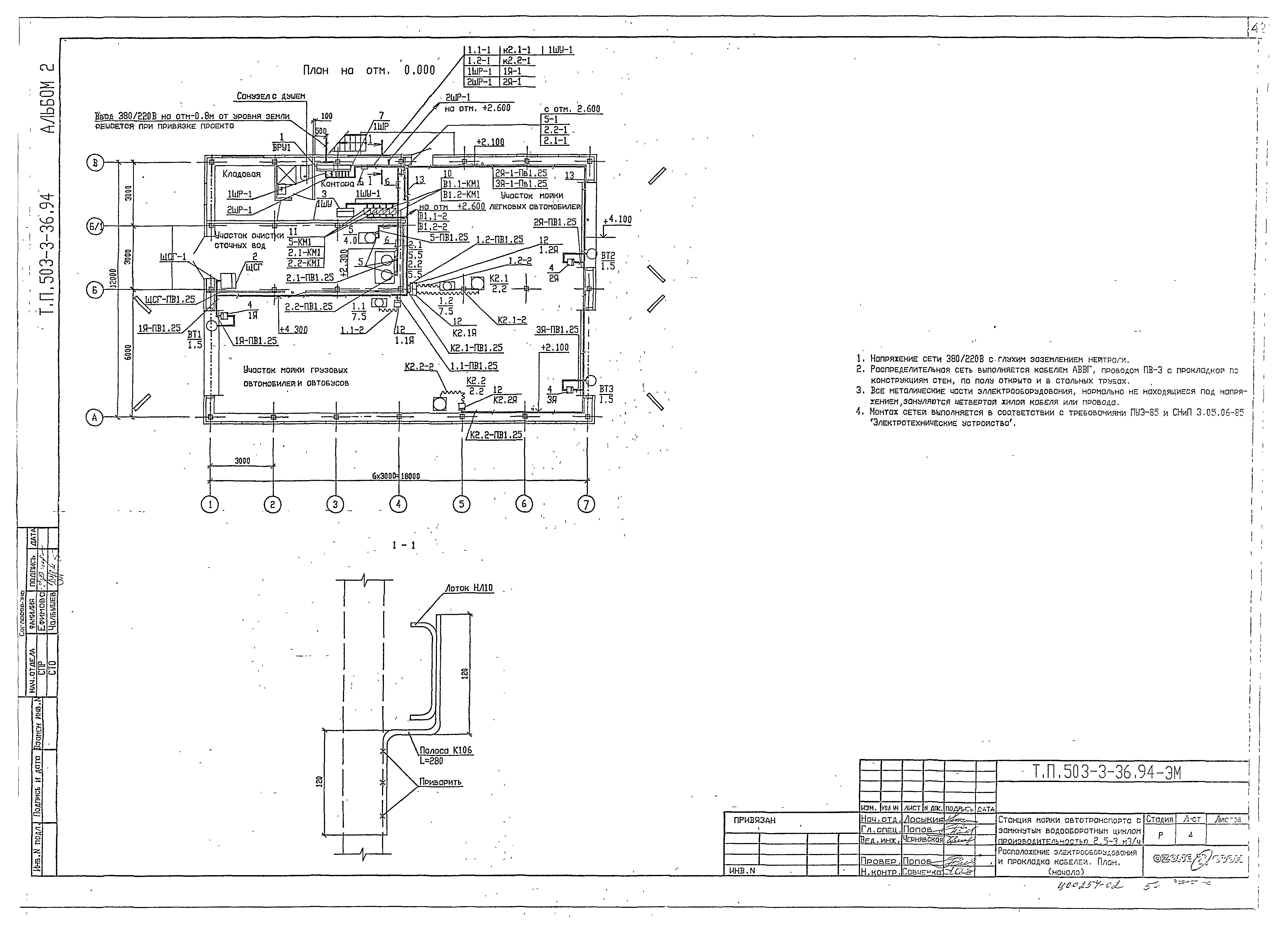
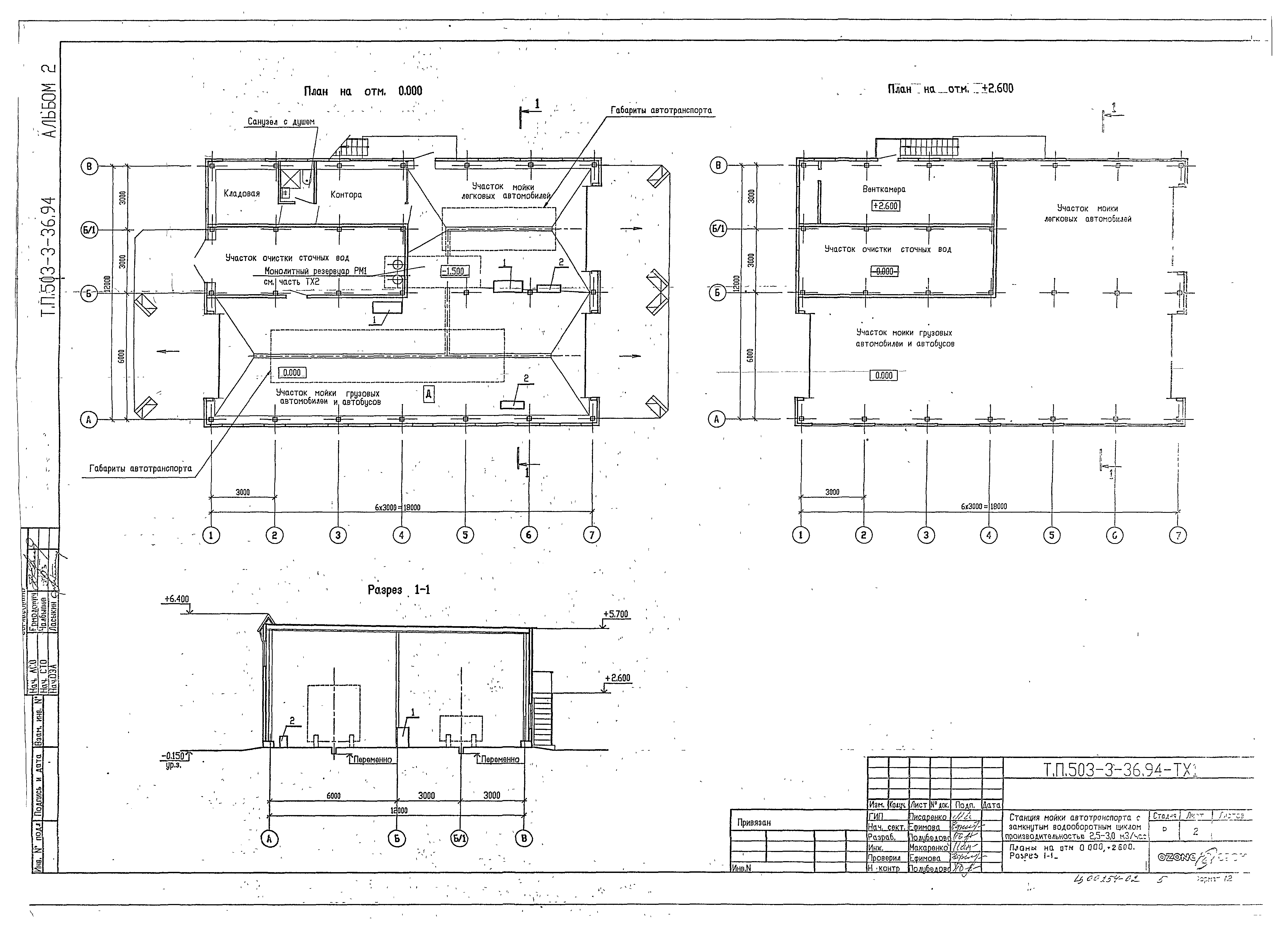
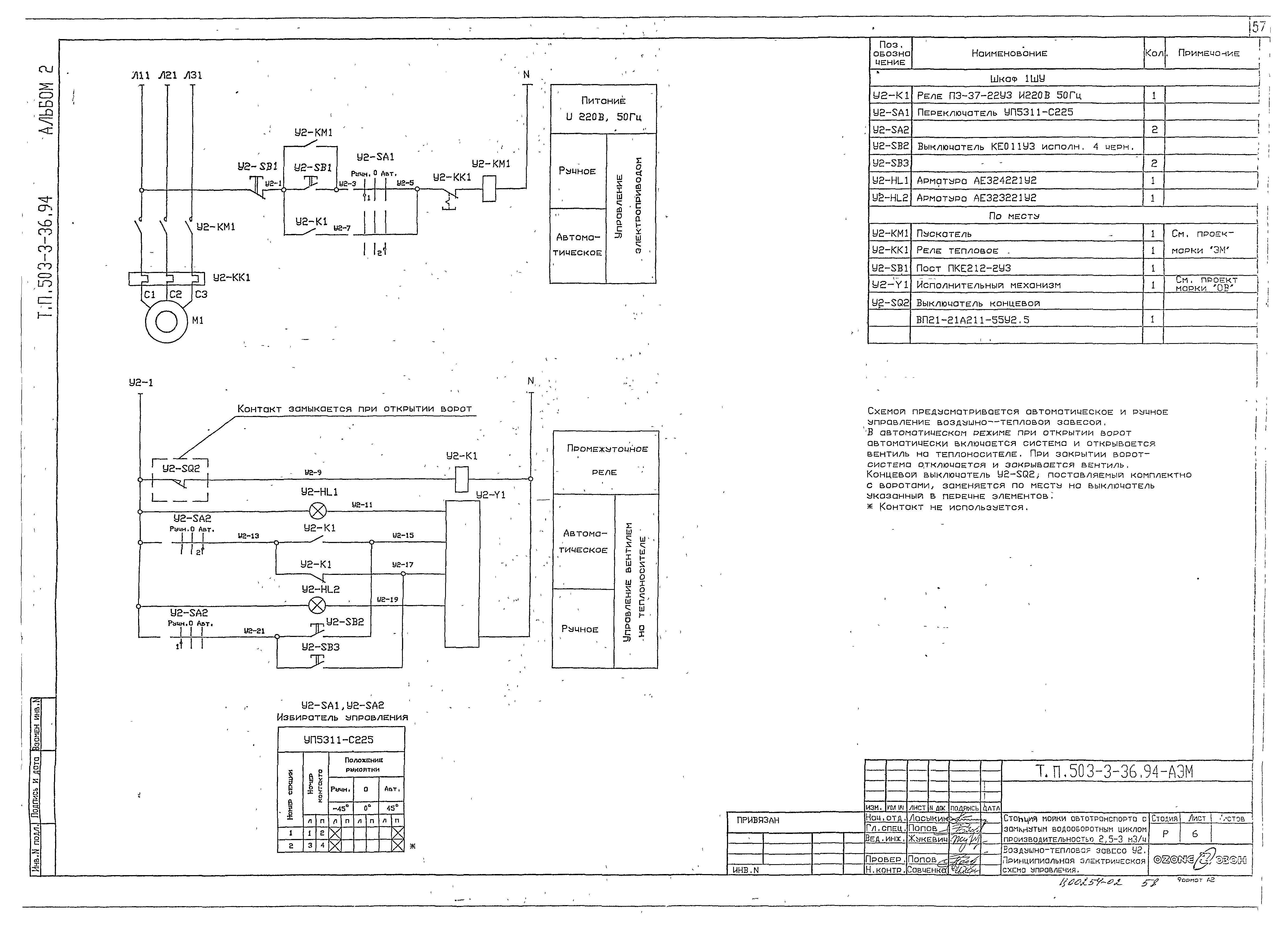
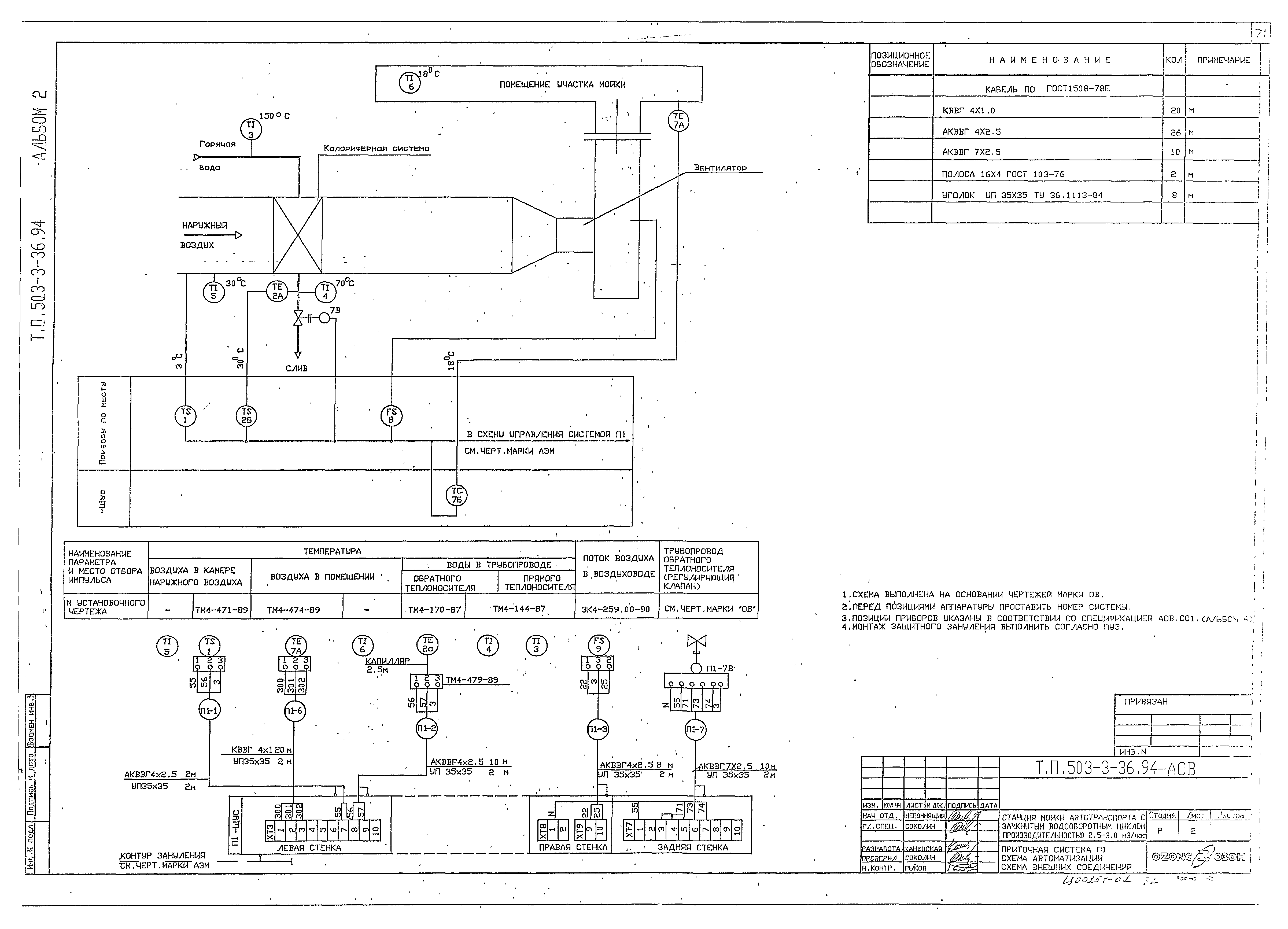
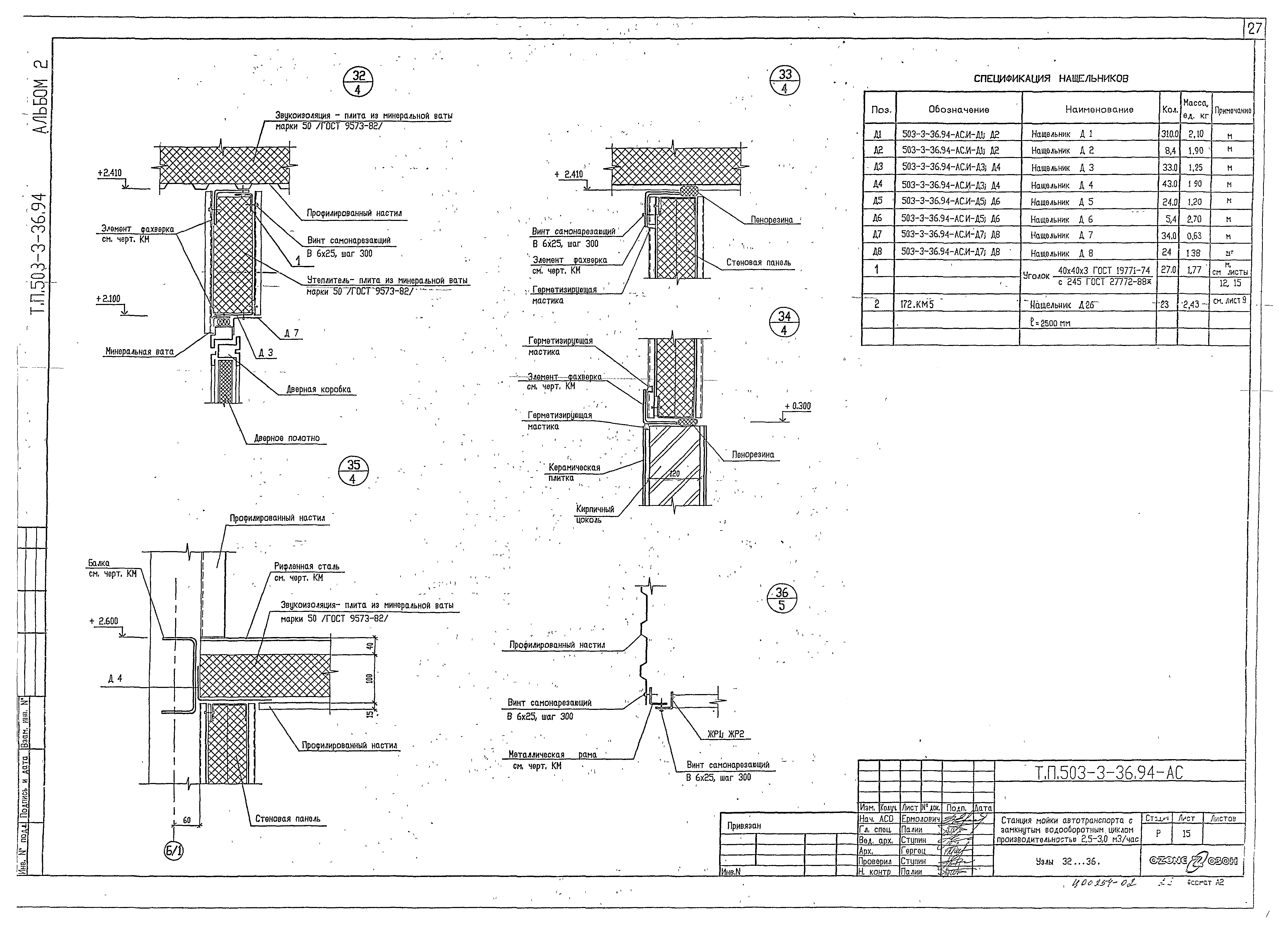
Скачать Типовой проект 503-3-36.94 Альбом 2. Технология производства (мойка машин). Технология производства (очистные сооружения). Архитектурно-строительные решения. Отопление и вентиляция. Внутренние водопровод и канализация. Внутреннее электрическое освещение. Силовое электрооборудование. Автоматизация силового электрооборудования. Автоматизация технологии производства. Автоматизация отопления и вентиляции. Системы связи

Дата актуализации: 01.01.2021

Типовой проект 503-3-36.94

Альбом 2. Технология производства (мойка машин). Технология производства (очистные сооружения). Архитектурно-строительные решения. Отопление и вентиляция. Внутренние водопровод и канализация. Внутреннее электрическое освещение. Силовое электрооборудование. Автоматизация силового электрооборудования. Автоматизация технологии производства. Автоматизация отопления и вентиляции. Системы связи

Обозначение: Типовой проект 503-3-36.94
Обозначение англ: 503-3-36.94
Статус:не определен законодательством
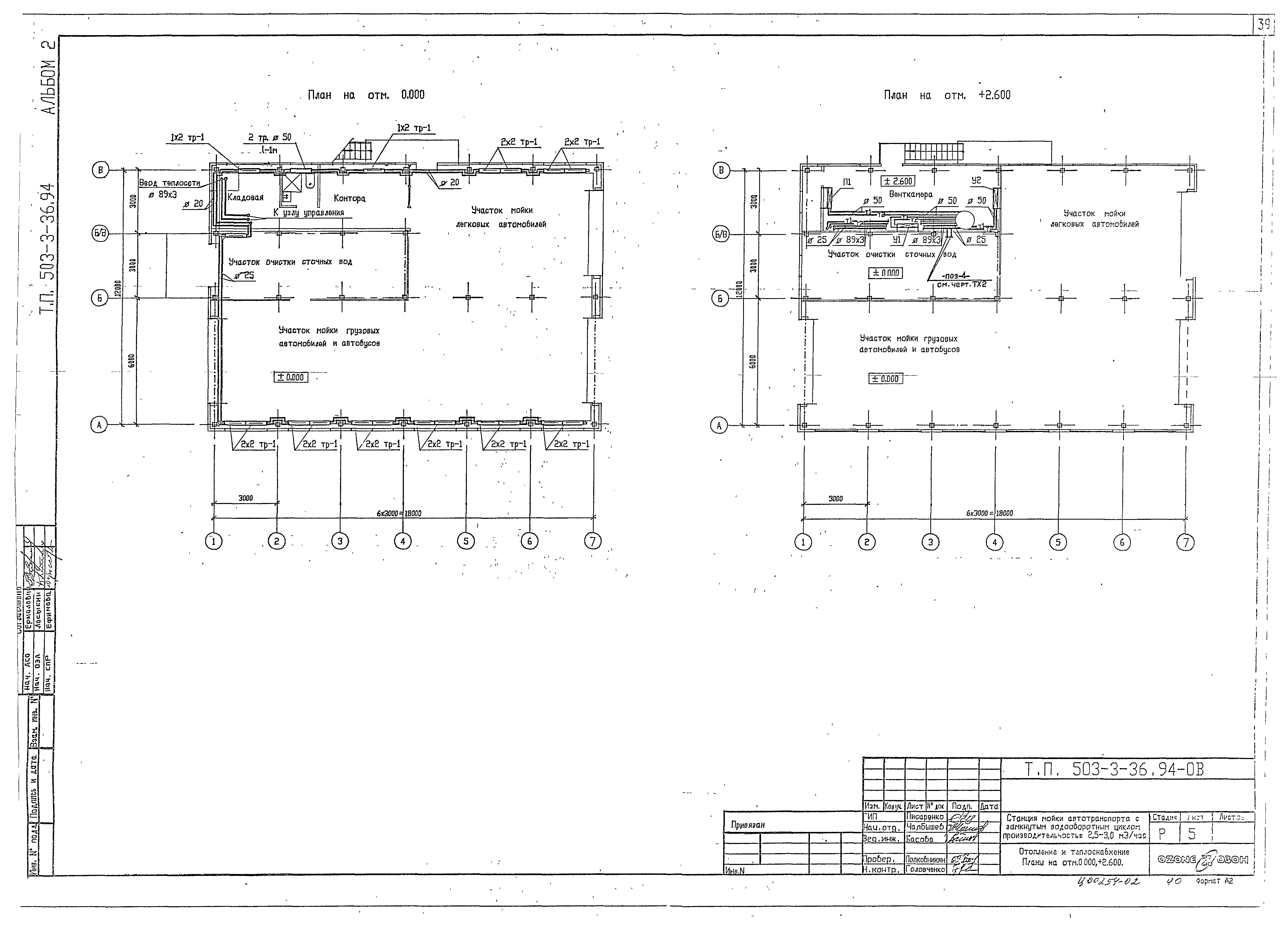
Название рус.:Альбом 2. Технология производства (мойка машин). Технология производства (очистные сооружения). Архитектурно-строительные решения. Отопление и вентиляция. Внутренние водопровод и канализация. Внутреннее электрическое освещение. Силовое электрооборудование. Автоматизация силового электрооборудования. Автоматизация технологии производства. Автоматизация отопления и вентиляции. Системы связи
Дата добавления в базу:01.09.2013
Дата актуализации:01.01.2021
Дата введения:28.10.1994
Дата окончания срока действия:30.06.2003
Разработан: АО ОЗОН
Утверждён:10.10.1994 Комитет РФ по химической и нефтехимической промышленности (09/1-11-101)
Типовой проект 503-3-36.94Типовой проект 503-3-36.94Типовой проект 503-3-36.94Типовой проект 503-3-36.94Типовой проект 503-3-36.94Типовой проект 503-3-36.94Типовой проект 503-3-36.94Типовой проект 503-3-36.94Типовой проект 503-3-36.94Типовой проект 503-3-36.94Типовой проект 503-3-36.94Типовой проект 503-3-36.94Типовой проект 503-3-36.94Типовой проект 503-3-36.94Типовой проект 503-3-36.94Типовой проект 503-3-36.94Типовой проект 503-3-36.94Типовой проект 503-3-36.94Типовой проект 503-3-36.94Типовой проект 503-3-36.94Типовой проект 503-3-36.94Типовой проект 503-3-36.94Типовой проект 503-3-36.94Типовой проект 503-3-36.94Типовой проект 503-3-36.94Типовой проект 503-3-36.94Типовой проект 503-3-36.94Типовой проект 503-3-36.94Типовой проект 503-3-36.94Типовой проект 503-3-36.94Типовой проект 503-3-36.94Типовой проект 503-3-36.94Типовой проект 503-3-36.94Типовой проект 503-3-36.94Типовой проект 503-3-36.94Типовой проект 503-3-36.94Типовой проект 503-3-36.94Типовой проект 503-3-36.94Типовой проект 503-3-36.94Типовой проект 503-3-36.94Типовой проект 503-3-36.94Типовой проект 503-3-36.94Типовой проект 503-3-36.94Типовой проект 503-3-36.94Типовой проект 503-3-36.94Типовой проект 503-3-36.94Типовой проект 503-3-36.94Типовой проект 503-3-36.94Типовой проект 503-3-36.94Типовой проект 503-3-36.94Типовой проект 503-3-36.94Типовой проект 503-3-36.94Типовой проект 503-3-36.94Типовой проект 503-3-36.94Типовой проект 503-3-36.94Типовой проект 503-3-36.94Типовой проект 503-3-36.94Типовой проект 503-3-36.94Типовой проект 503-3-36.94Типовой проект 503-3-36.94Типовой проект 503-3-36.94Типовой проект 503-3-36.94Типовой проект 503-3-36.94Типовой проект 503-3-36.94Типовой проект 503-3-36.94Типовой проект 503-3-36.94Типовой проект 503-3-36.94Типовой проект 503-3-36.94Типовой проект 503-3-36.94Типовой проект 503-3-36.94Типовой проект 503-3-36.94Типовой проект 503-3-36.94Типовой проект 503-3-36.94Типовой проект 503-3-36.94Типовой проект 503-3-36.94