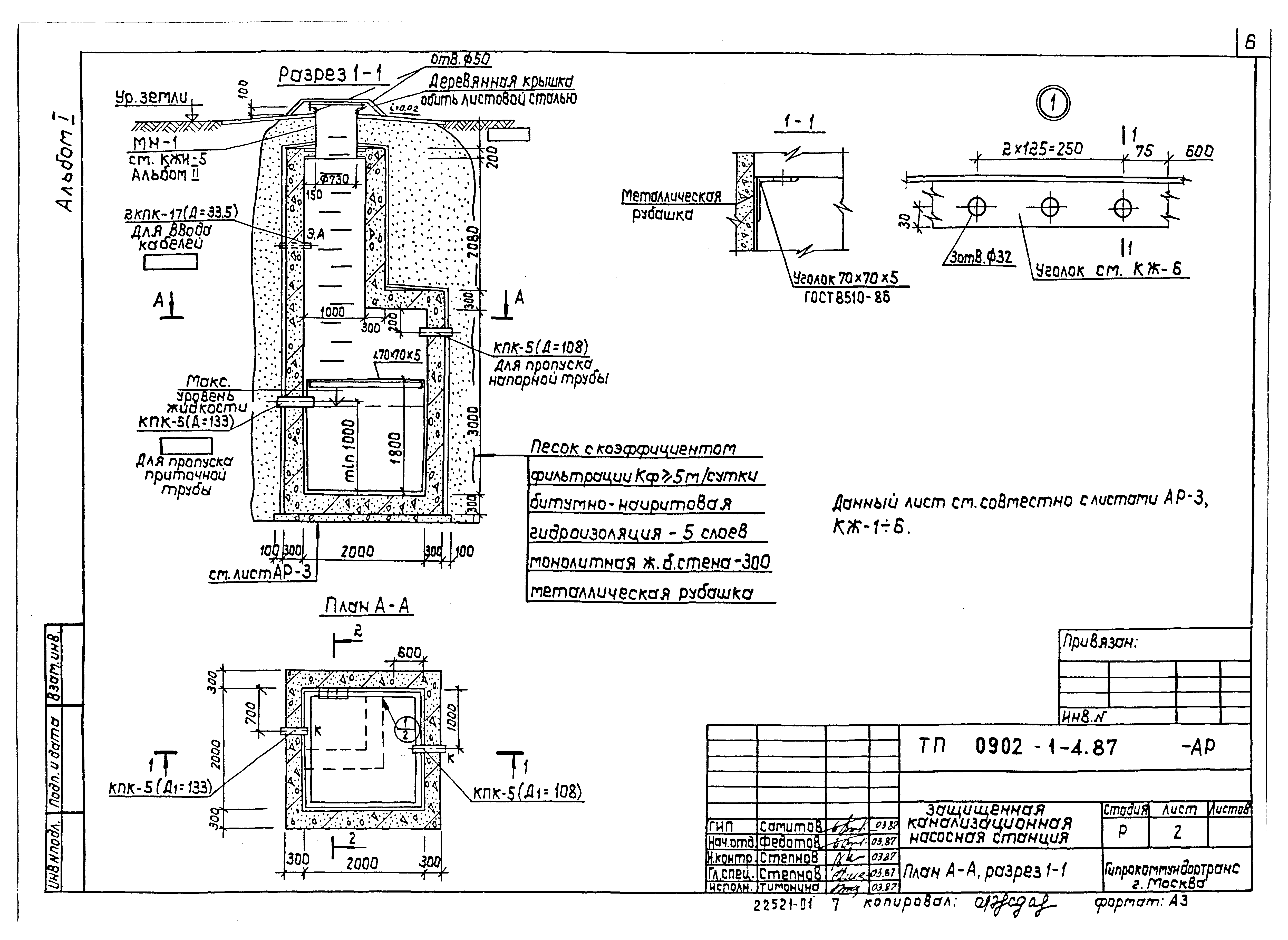
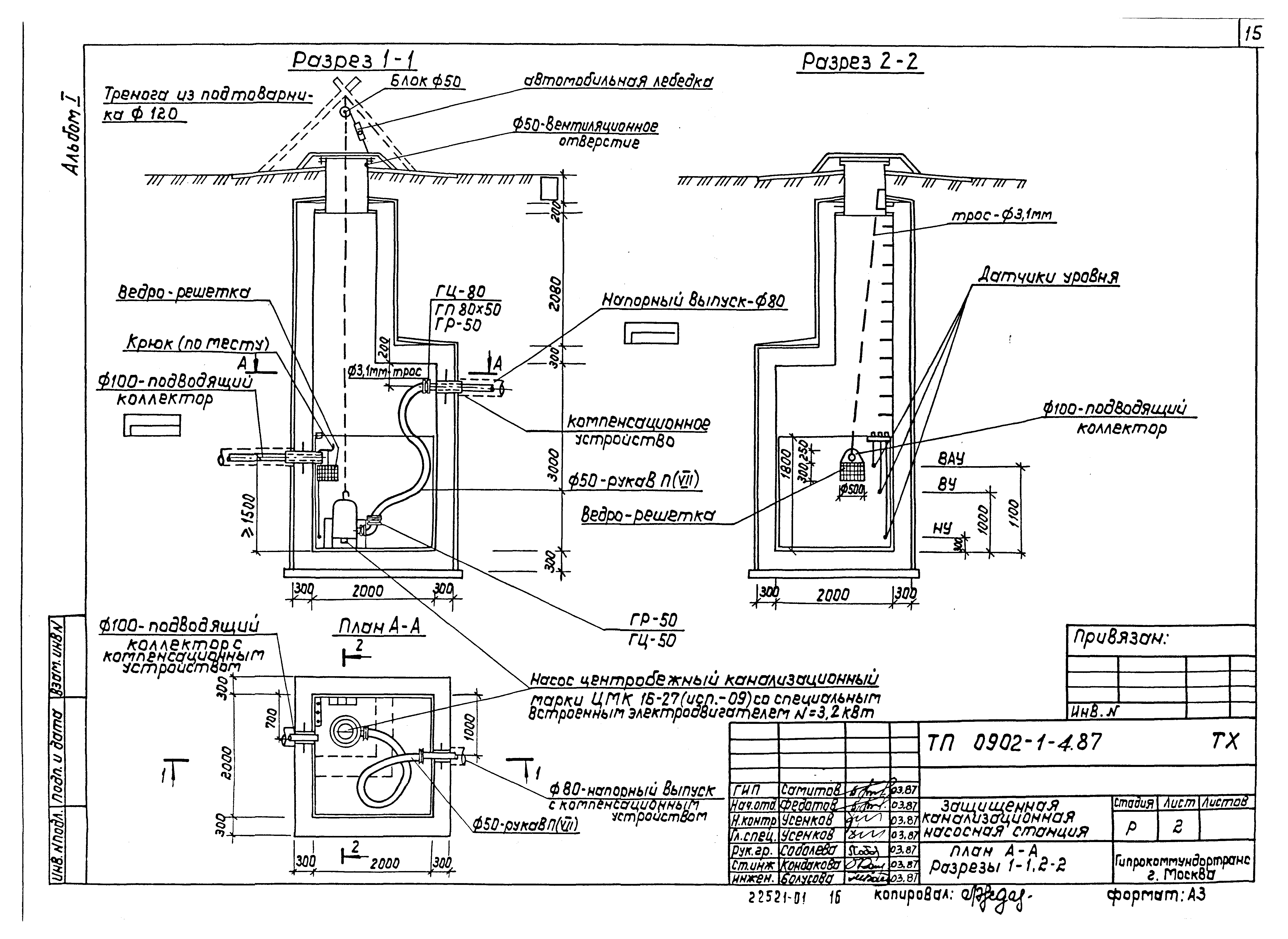
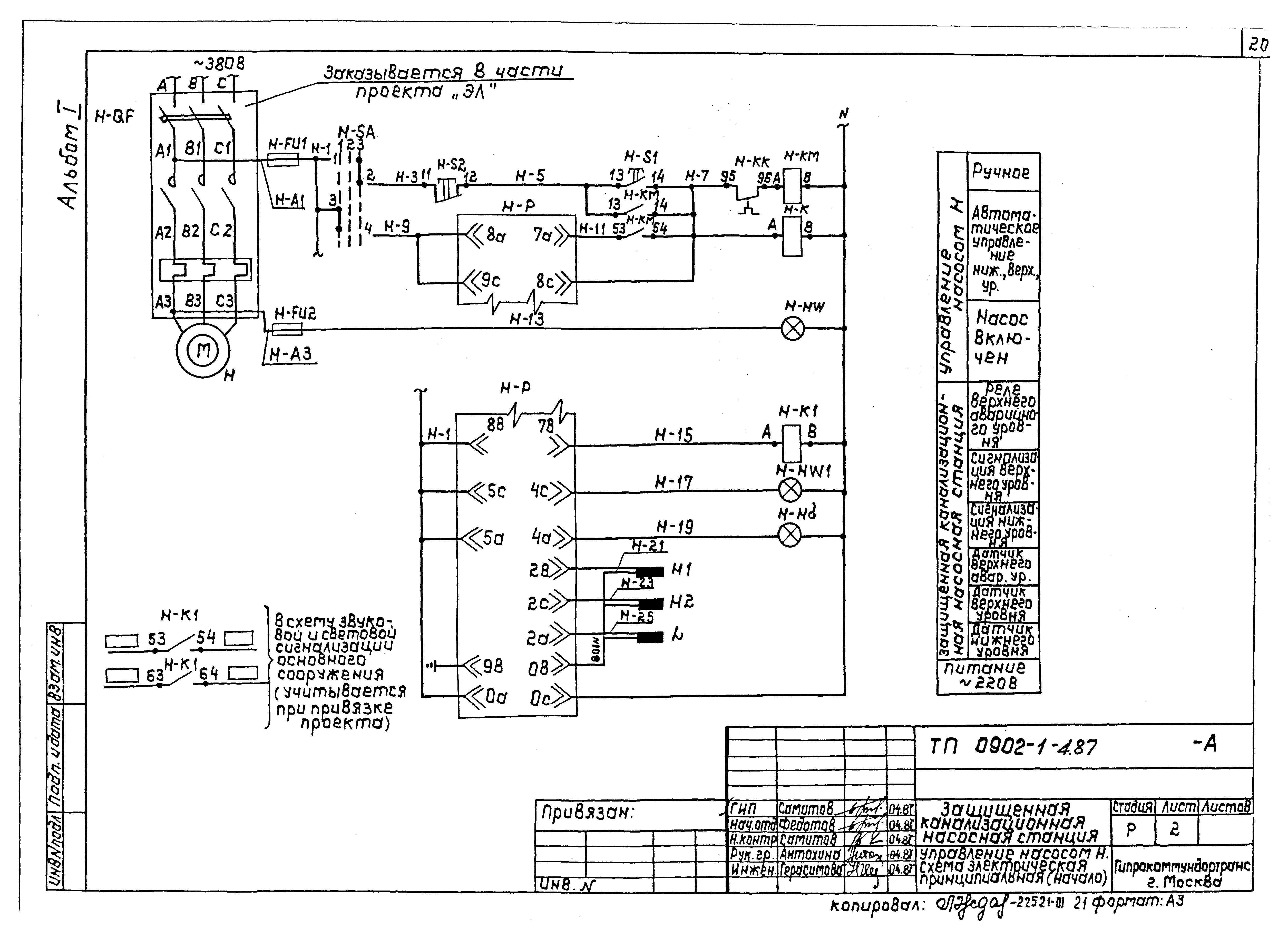
Скачать Типовой проект 0902-1-4.87 Альбом I. Пояснительная записка, архитектурно-строительные решения, конструкции железобетонные. Технологическая и электротехническая части, автоматизация, задание заводу-изготовителюДата актуализации: 01.01.2021 Типовой проект 0902-1-4.87
Альбом I. Пояснительная записка, архитектурно-строительные решения, конструкции железобетонные. Технологическая и электротехническая части, автоматизация, задание заводу-изготовителю| Обозначение: | Типовой проект 0902-1-4.87 | | Обозначение англ: | 0902-1-4.87 | | Статус: | не определен законодательством | | Название рус.: | Альбом I. Пояснительная записка, архитектурно-строительные решения, конструкции железобетонные. Технологическая и электротехническая части, автоматизация, задание заводу-изготовителю | | Дата добавления в базу: | 01.09.2013 | | Дата актуализации: | 01.01.2021 | | Дата введения: | 18.08.1987 | | Дата окончания срока действия: | 30.06.2003 | | Разработан: | Гипрокоммундортранс
| | Утверждён: | 24.07.1987 Штаб гражданской обороны СССР (USSR Civil Defense Headquarters 26)
|
                               
|