Скачать Типовой проект 902-1-138.88 Альбом 4. Подземная часть. Конструкции железобетонные. Конструкции металлические

Дата актуализации: 01.01.2021

Типовой проект 902-1-138.88

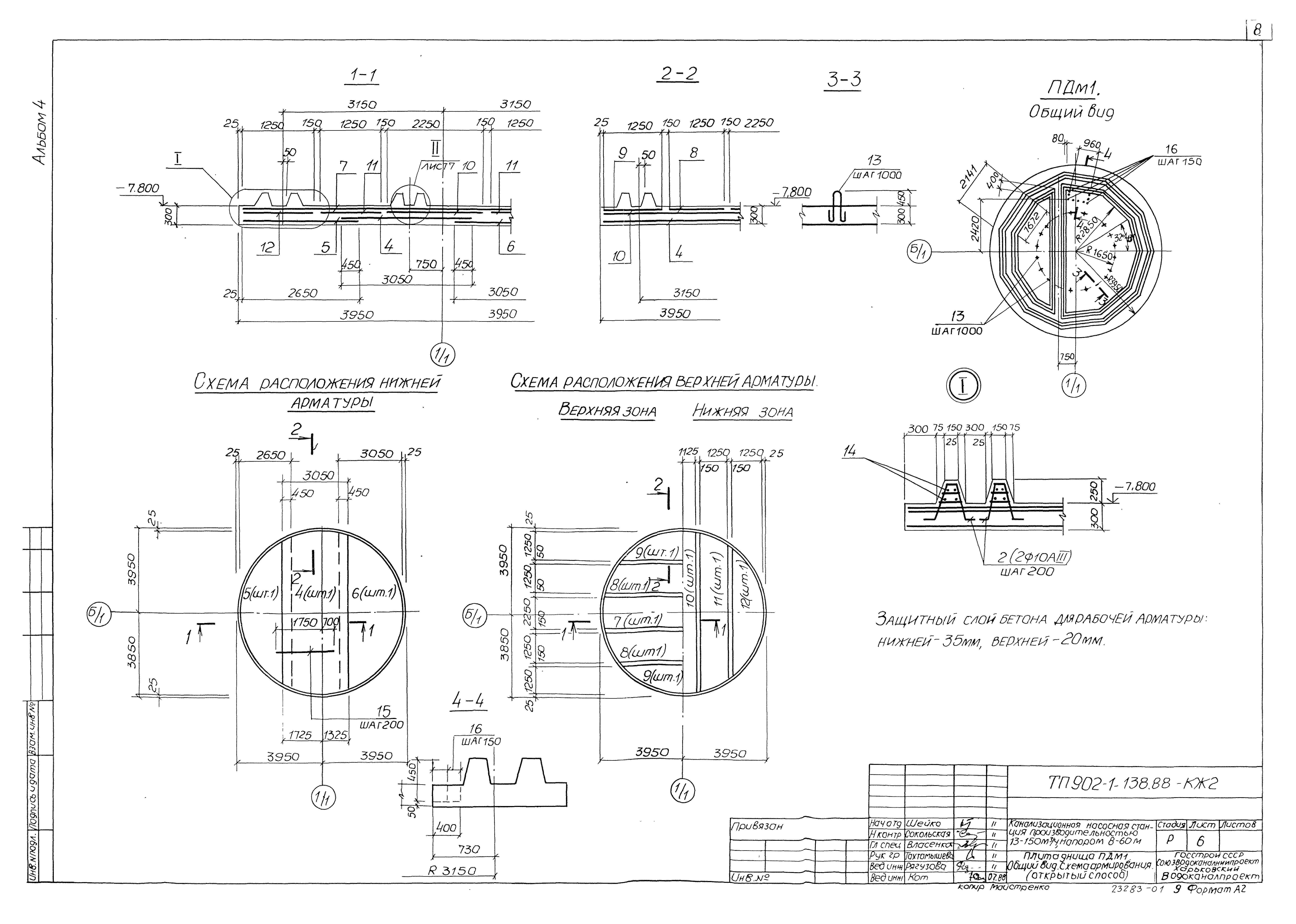
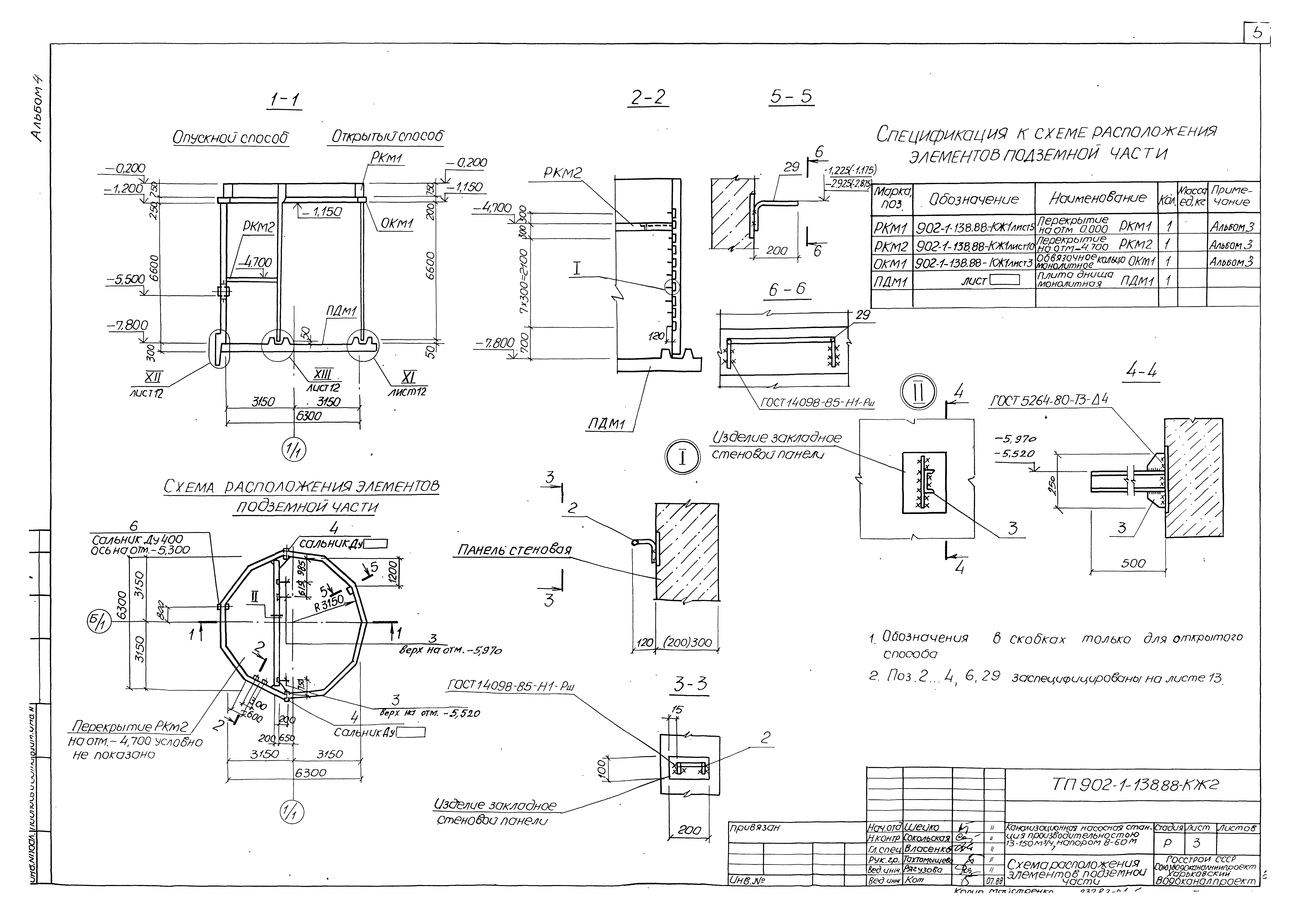
Альбом 4. Подземная часть. Конструкции железобетонные. Конструкции металлические

Обозначение: Типовой проект 902-1-138.88
Обозначение англ: 902-1-138.88
Статус:не определен законодательством
Название рус.:Альбом 4. Подземная часть. Конструкции железобетонные. Конструкции металлические
Дата добавления в базу:01.09.2013
Дата актуализации:01.01.2021
Дата введения:19.07.1988
Дата окончания срока действия:30.06.2003
Разработан: Харьковский Водоканалпроект
Утверждён:19.07.1988 Госстрой СССР (Государственный комитет Совета Министров СССР по делам строительства) (USSR Gosstroy 46)
Заменяет собой:
Типовой проект 902-1-138.88Типовой проект 902-1-138.88Типовой проект 902-1-138.88Типовой проект 902-1-138.88Типовой проект 902-1-138.88Типовой проект 902-1-138.88Типовой проект 902-1-138.88Типовой проект 902-1-138.88Типовой проект 902-1-138.88Типовой проект 902-1-138.88Типовой проект 902-1-138.88Типовой проект 902-1-138.88Типовой проект 902-1-138.88Типовой проект 902-1-138.88Типовой проект 902-1-138.88Типовой проект 902-1-138.88Типовой проект 902-1-138.88Типовой проект 902-1-138.88Типовой проект 902-1-138.88