Скачать Типовой проект 407-3-586.90 Альбом 5. Конструкции металлическиеДата актуализации: 01.01.2021
|
| Обозначение: | Типовой проект 407-3-586.90 |
| Обозначение англ: | 407-3-586.90 |
| Статус: | не определен законодательством |
| Название рус.: | Альбом 5. Конструкции металлические |
| Дата добавления в базу: | 01.09.2013 |
| Дата актуализации: | 01.01.2021 |
| Дата введения: | 08.08.1991 |
| Дата окончания срока действия: | 30.06.2003 |
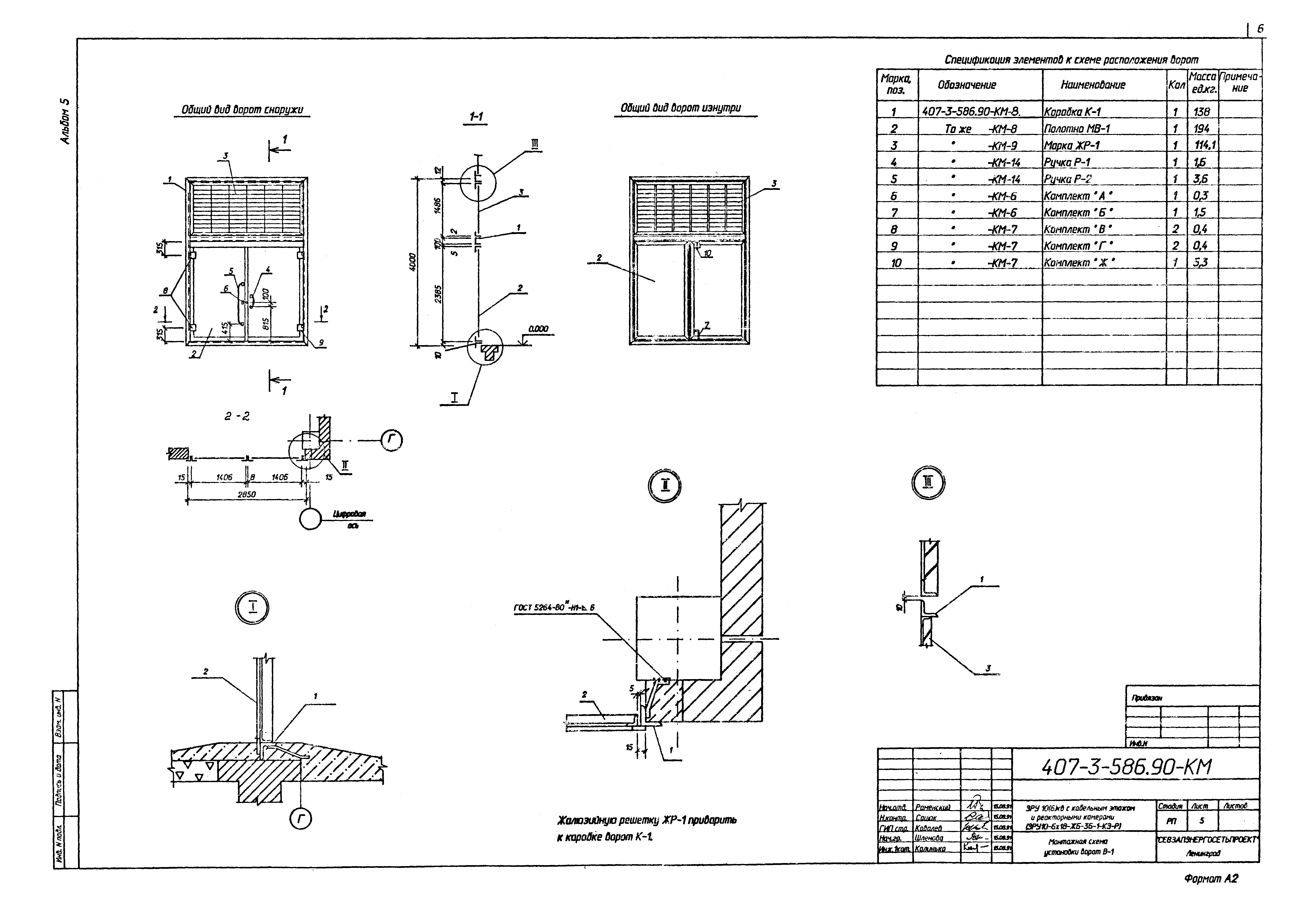
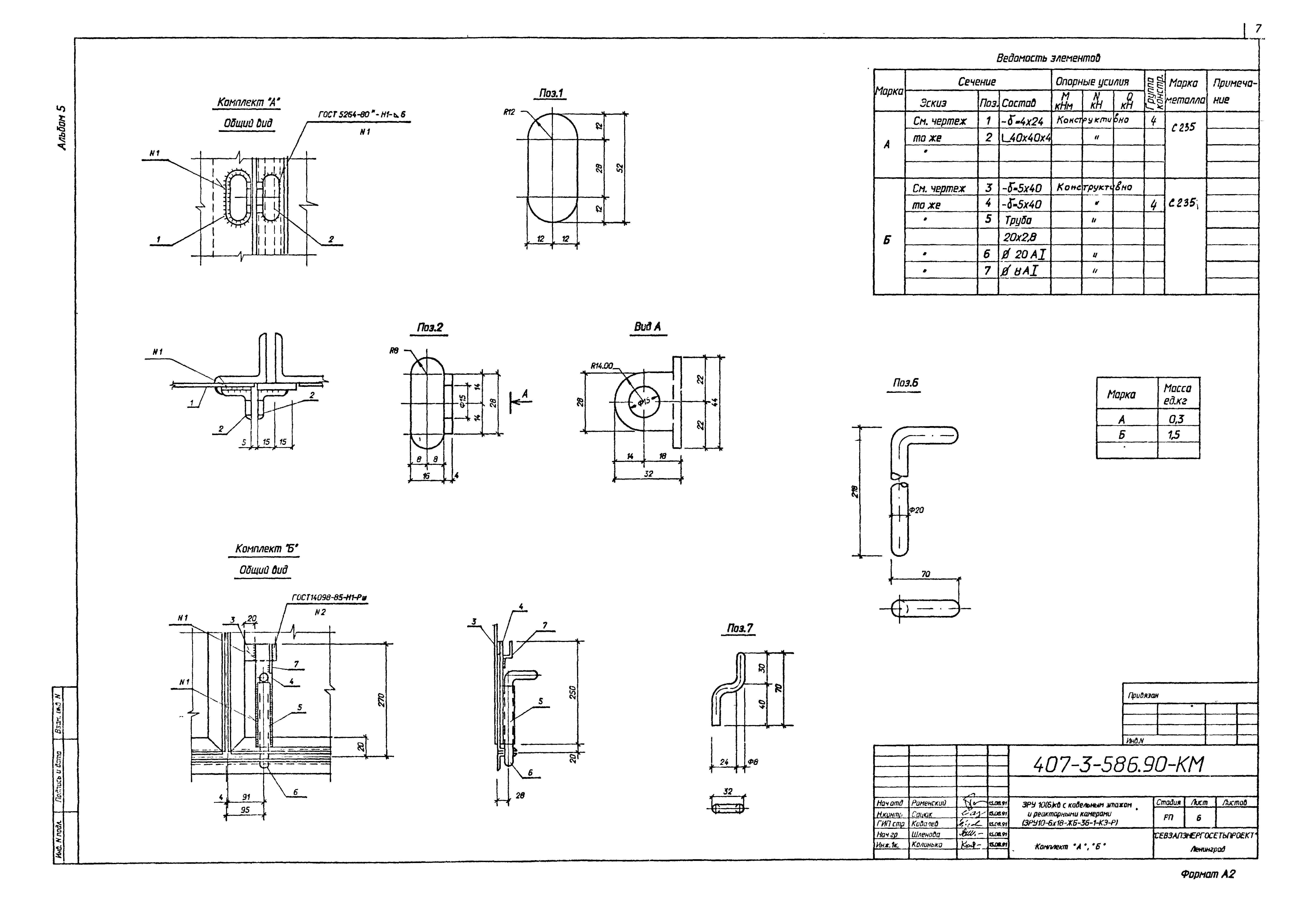
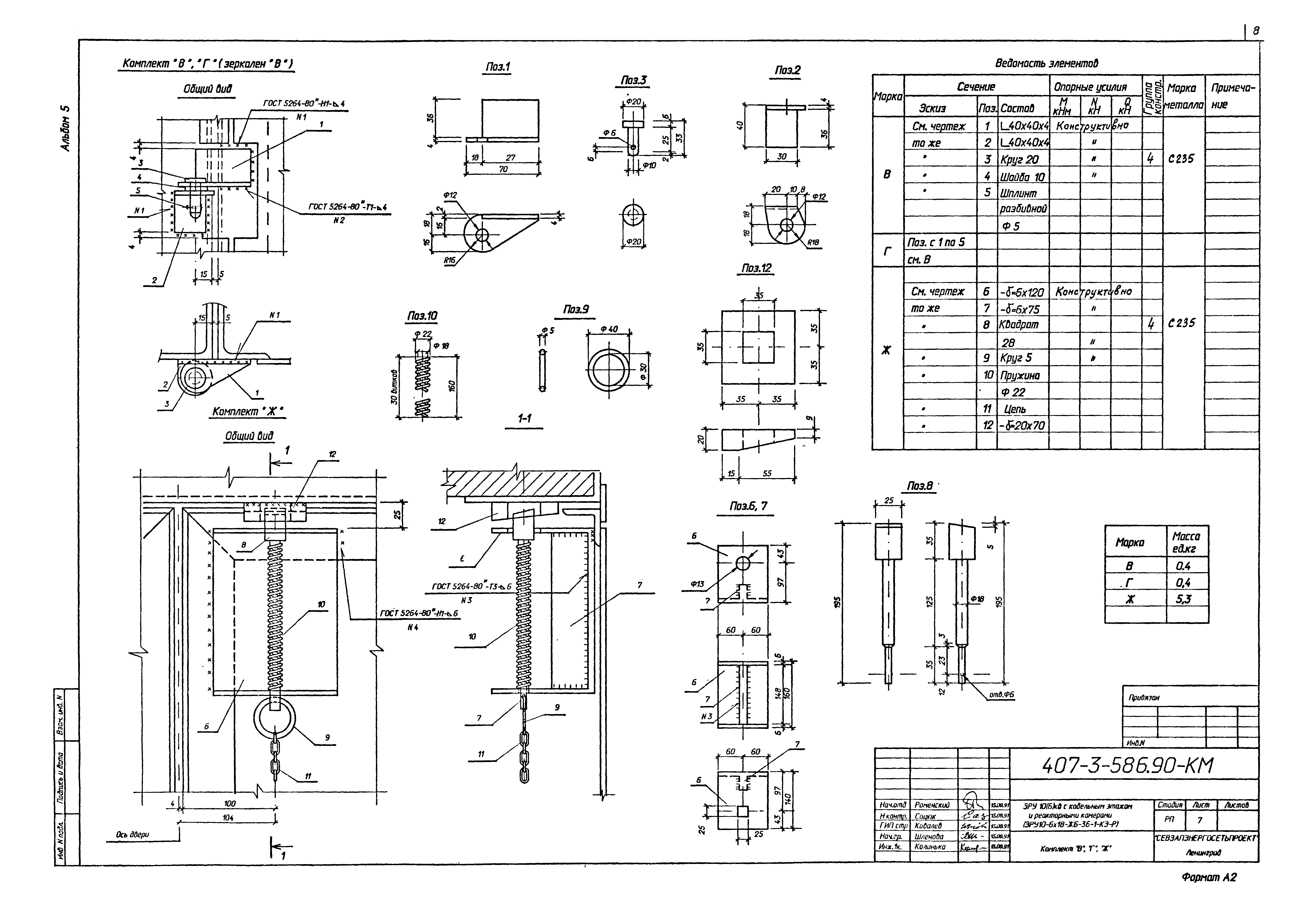
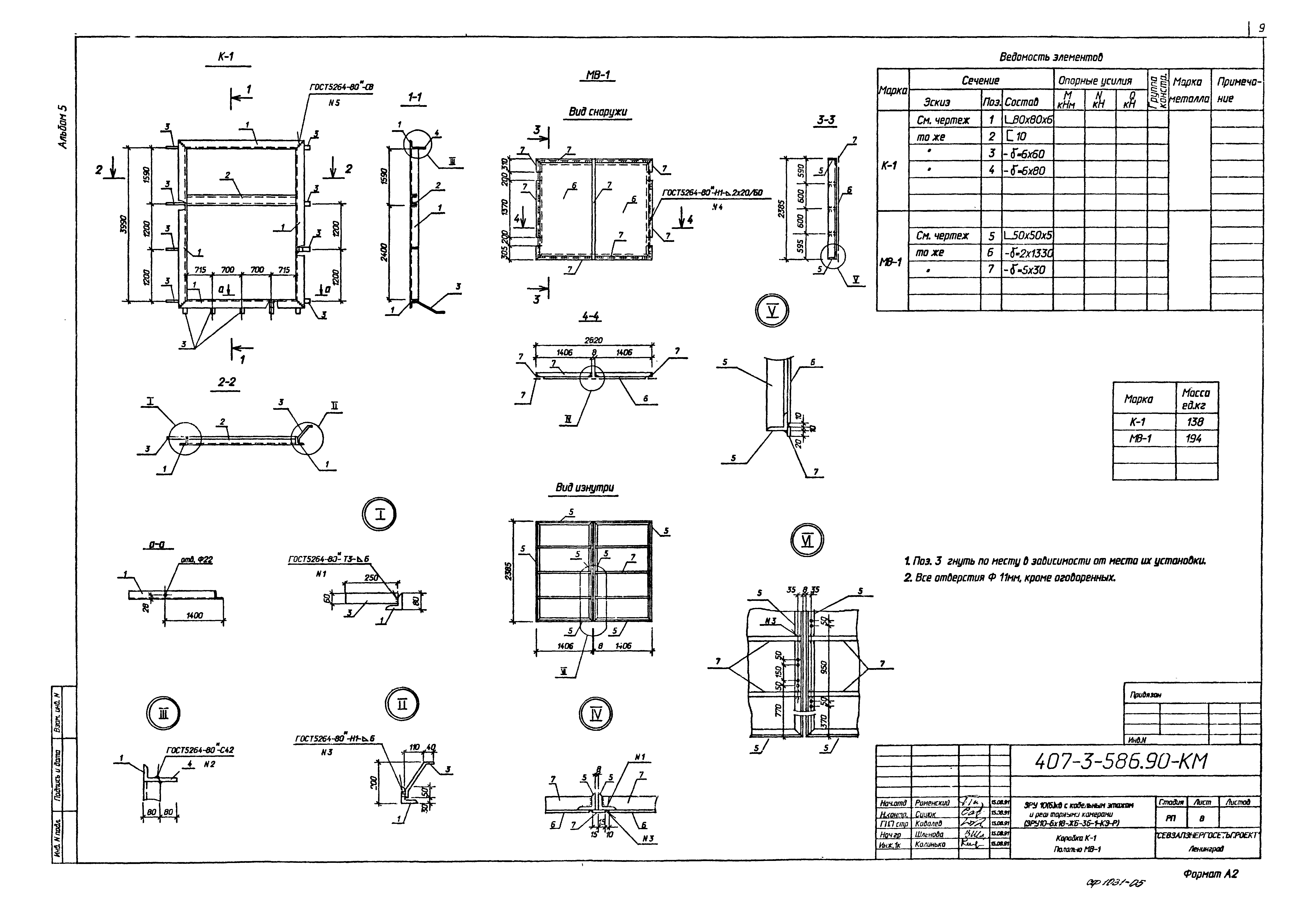
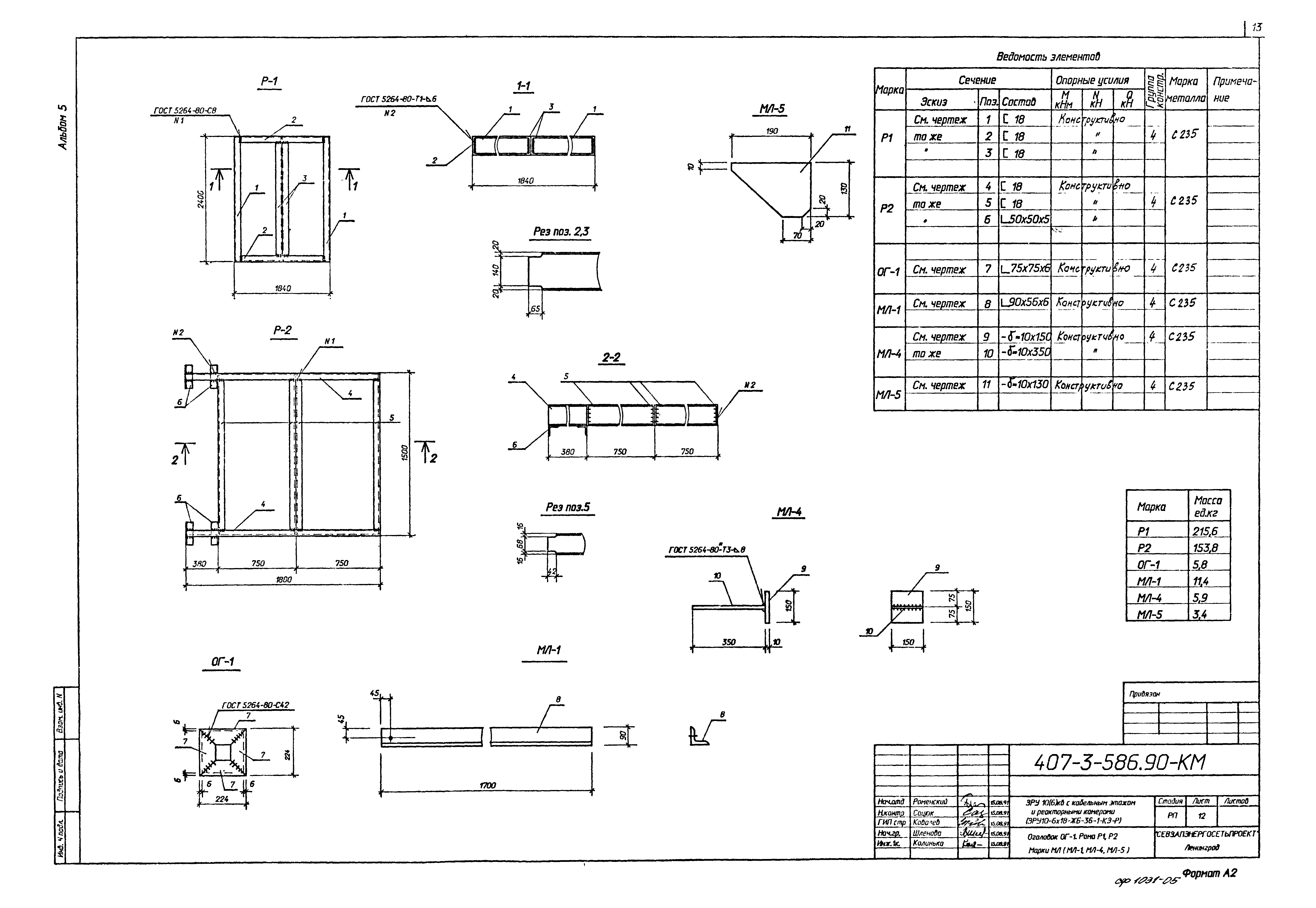
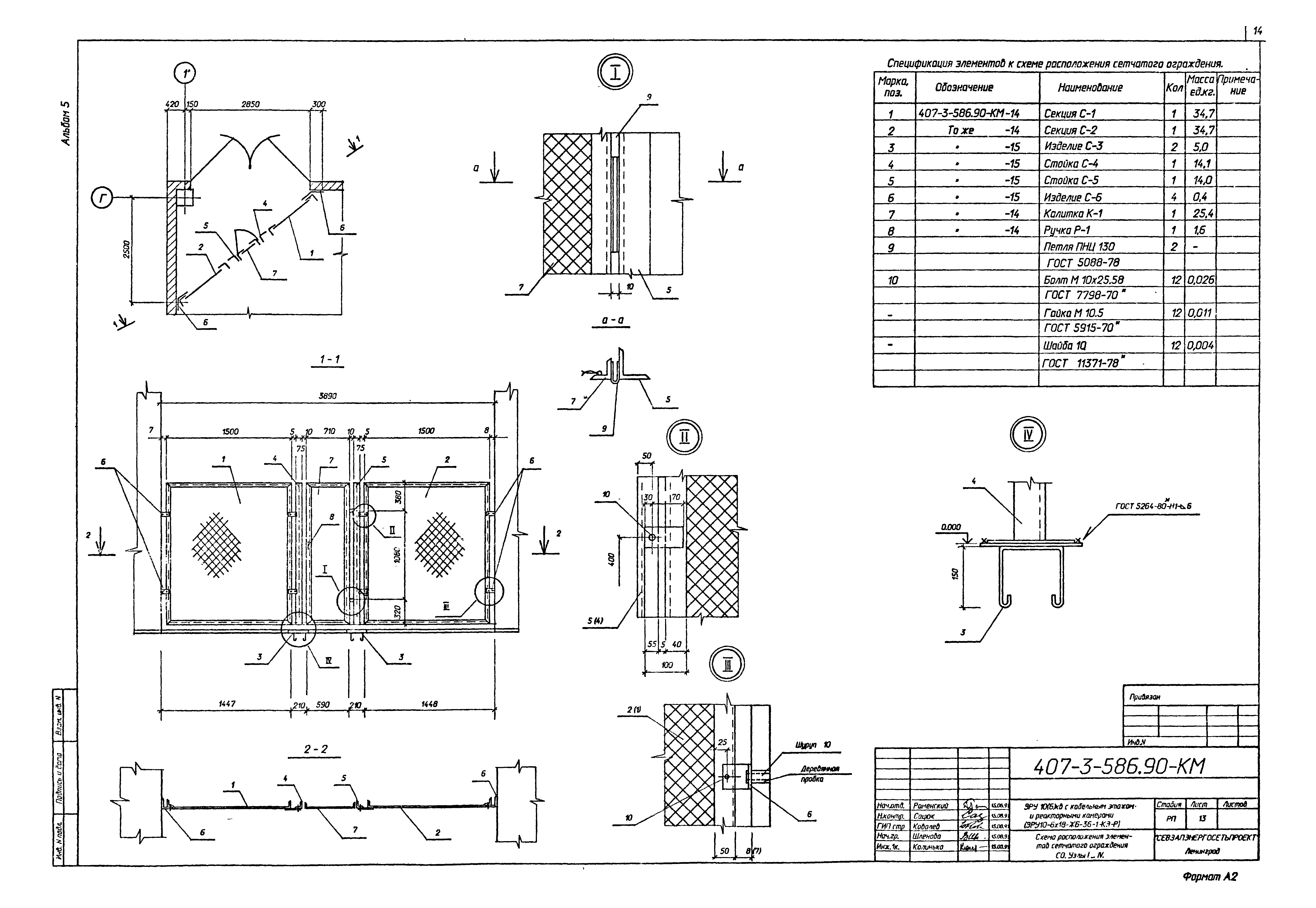
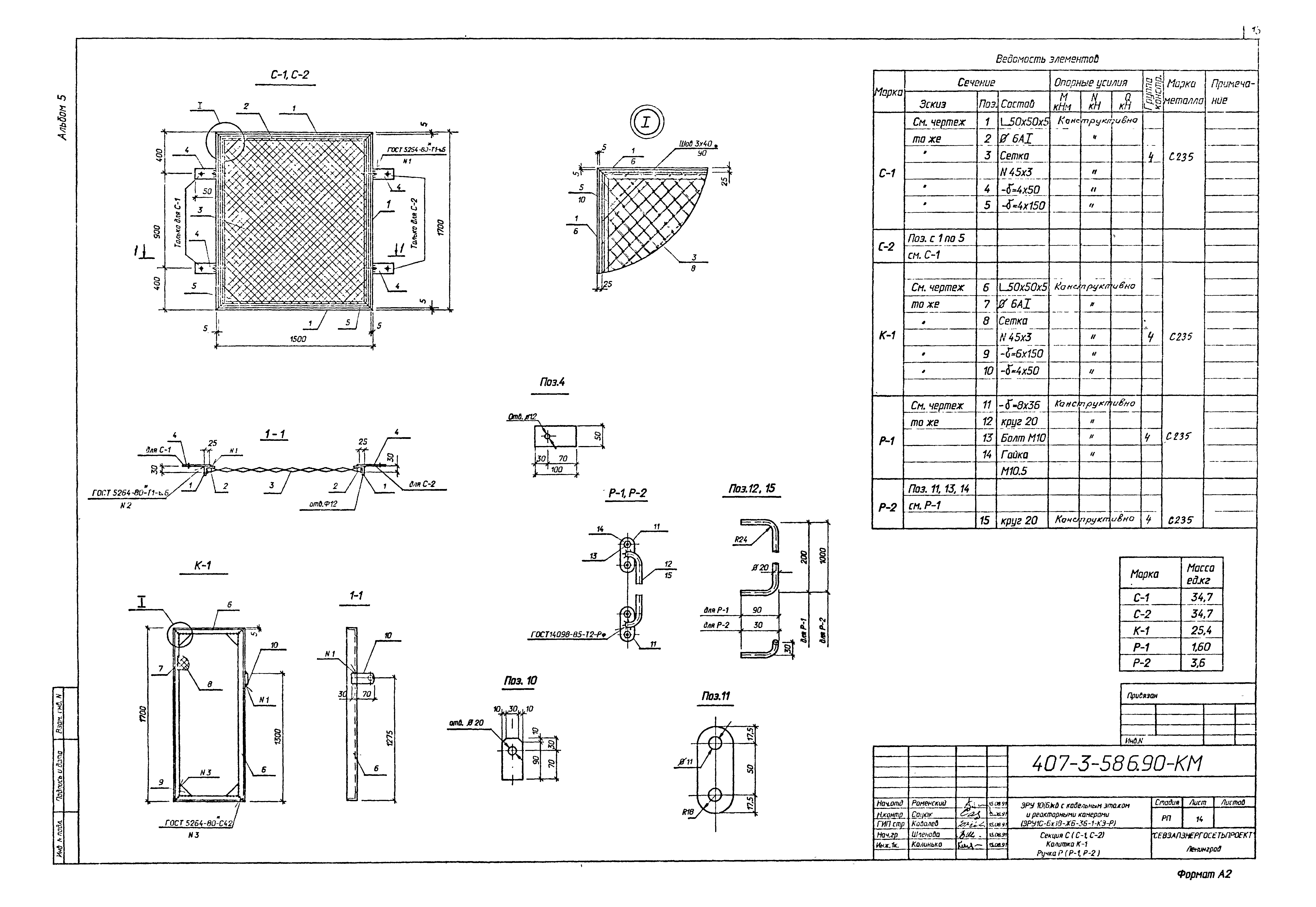
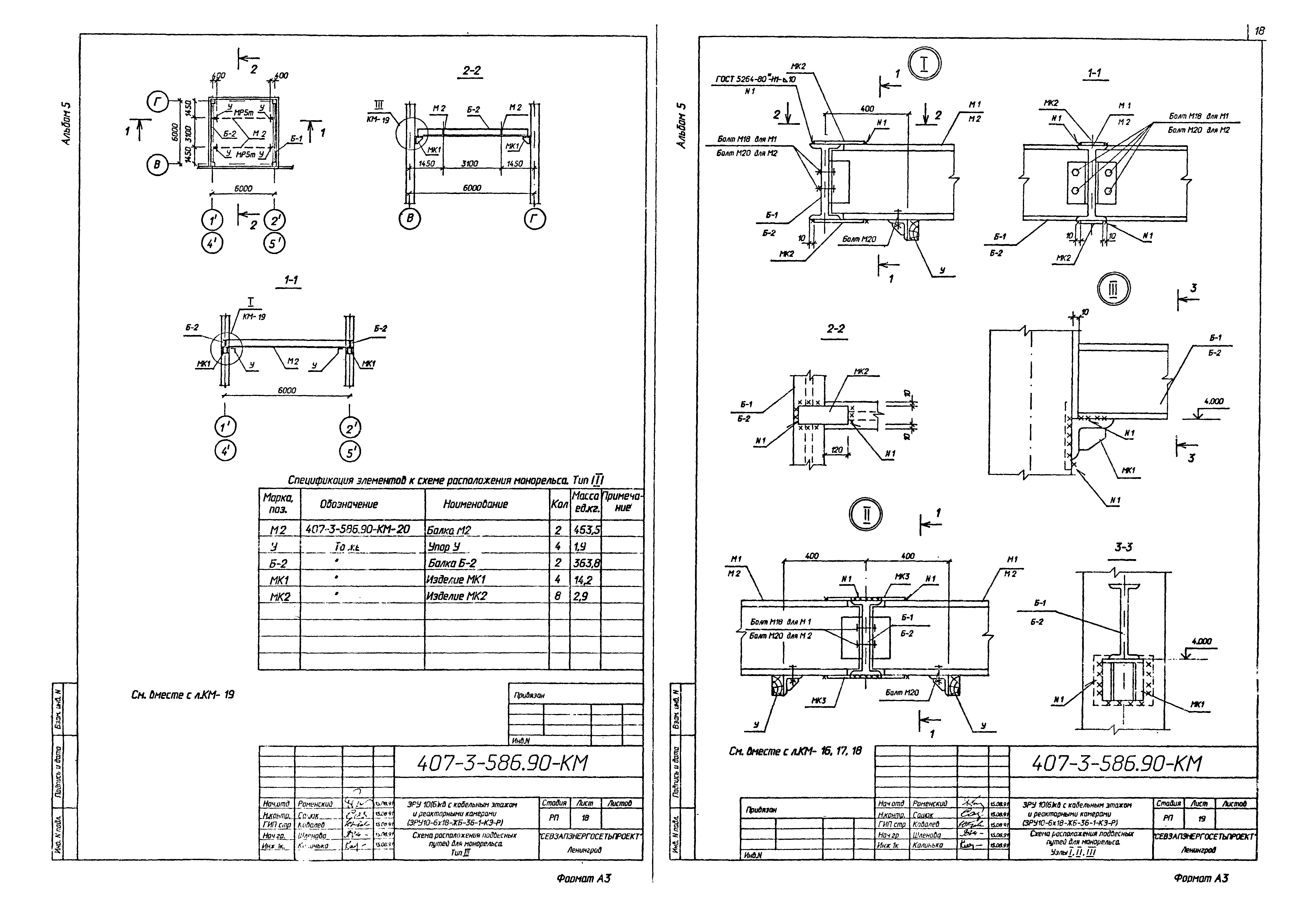
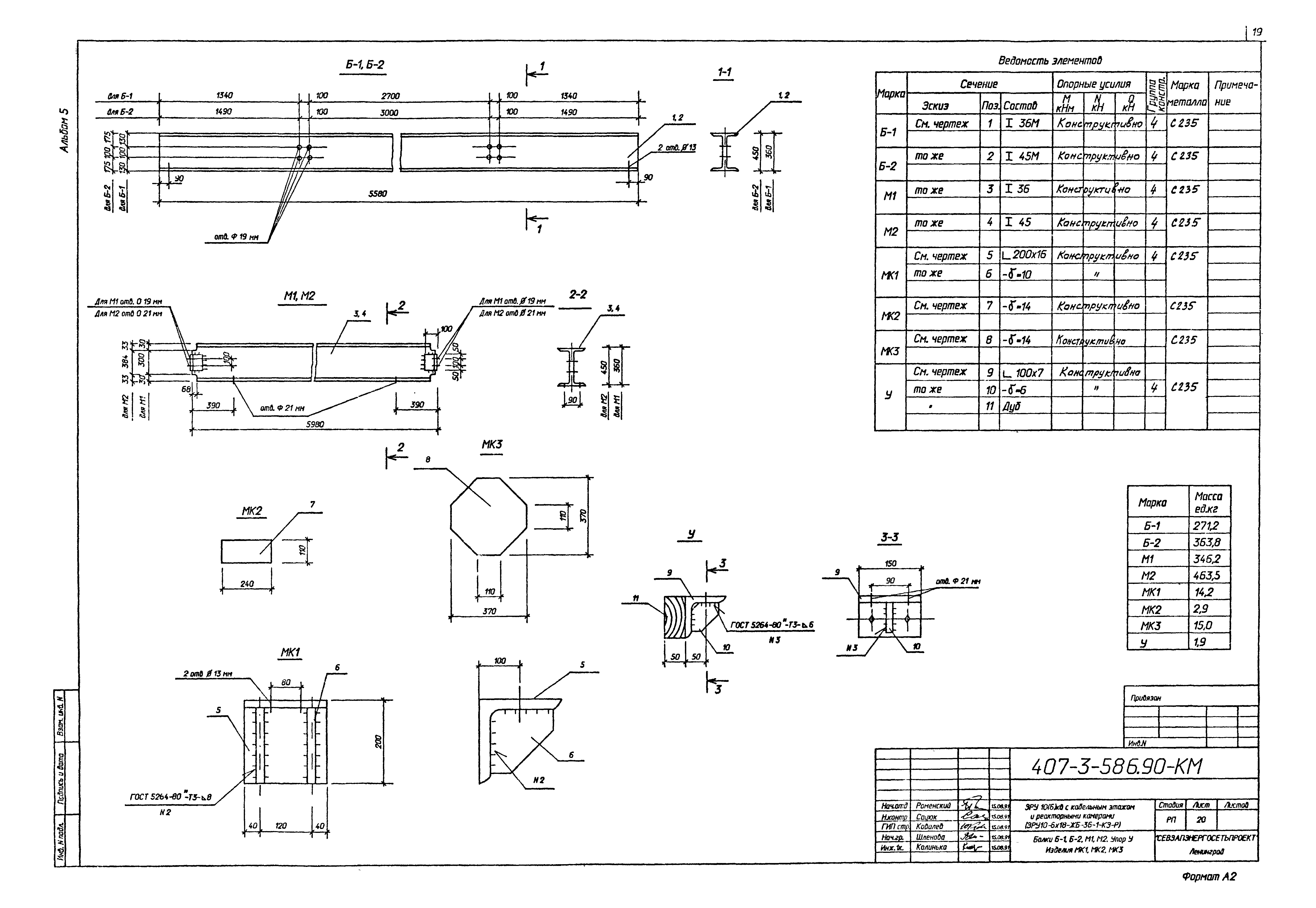
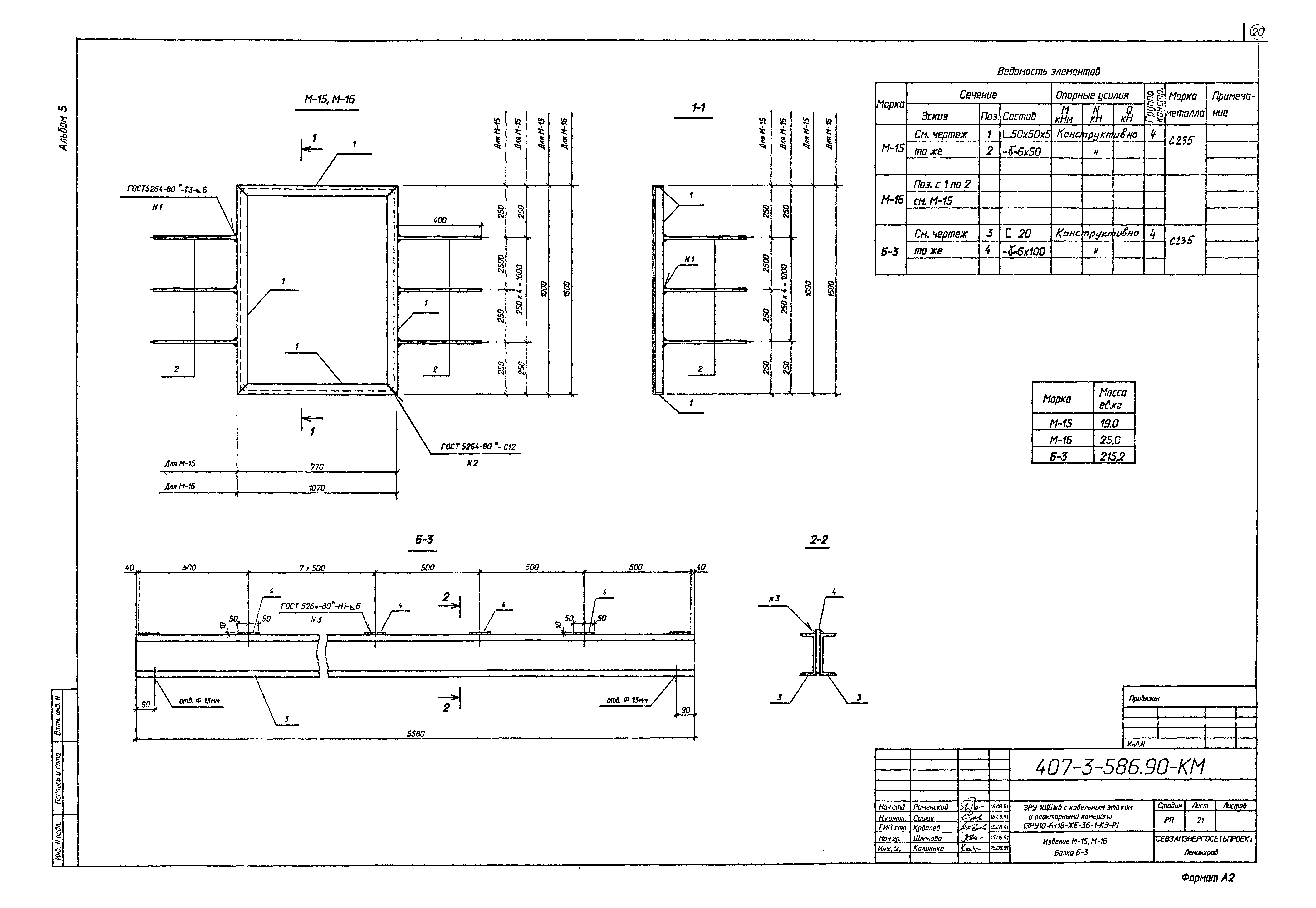
| Оглавление: | Чертежи основного комплекта марки КМ Общие данные Монтажная схема установки ворот В-1 Комплект "А", "Б" Комплект "В", "Г", "Ж" Коробка К-1. Полотно МВ-1 Решетка жалюзийная ЖР-1, ЖР-2 Лестница Л-1. Узел А. Спецификация Лестница Л-2. Узел А, Б. Спецификация Оголовок ОГ-1. Рама Р1, Р2. Марки МЛ (МЛ-1, МЛ-4, МЛ-5) Схема расположения элементов сетчатого ограждения СО. Узлы I - IV Секция С (С-1, С-2). Калитка К-1. Ручка Р (Р-1, Р-2) Стойка С-4, С-5. Изделие С-3, С-6, М-1, М-2, М-3, М-4, М-5 Схема расположения подвесных путей для монорельса. Тип I Схема расположения подвесных путей для монорельса. Тип II Схема расположения подвесных путей для монорельса. Тип III Схема расположения подвесных путей для монорельса. Узлы I, II, III Балки Б-1, Б-2, М1, М2. Упор У. Изделия МК1, МК2, МК3 Изделие М-15, М-16. Балка Б-3 |
| Разработан: | Севзапэнергосетьпроект |
| Утверждён: | 08.08.1991 Минэнерго СССР (USSR Minenergo 35) |




















