Скачать Типовой проект 902-2-267 Альбом II. Схемы генпланов. Профили движения воды и ила. Сооружение по очистке сточных вод. Производственное здание. Электротехническая частьДата актуализации: 01.01.2021
|
| Обозначение: | Типовой проект 902-2-267 |
| Обозначение англ: | 902-2-267 |
| Статус: | не определен законодательством |
| Название рус.: | Альбом II. Схемы генпланов. Профили движения воды и ила. Сооружение по очистке сточных вод. Производственное здание. Электротехническая часть |
| Дата добавления в базу: | 01.09.2013 |
| Дата актуализации: | 01.01.2021 |
| Дата введения: | 24.12.1975 |
| Дата окончания срока действия: | 30.06.2003 |
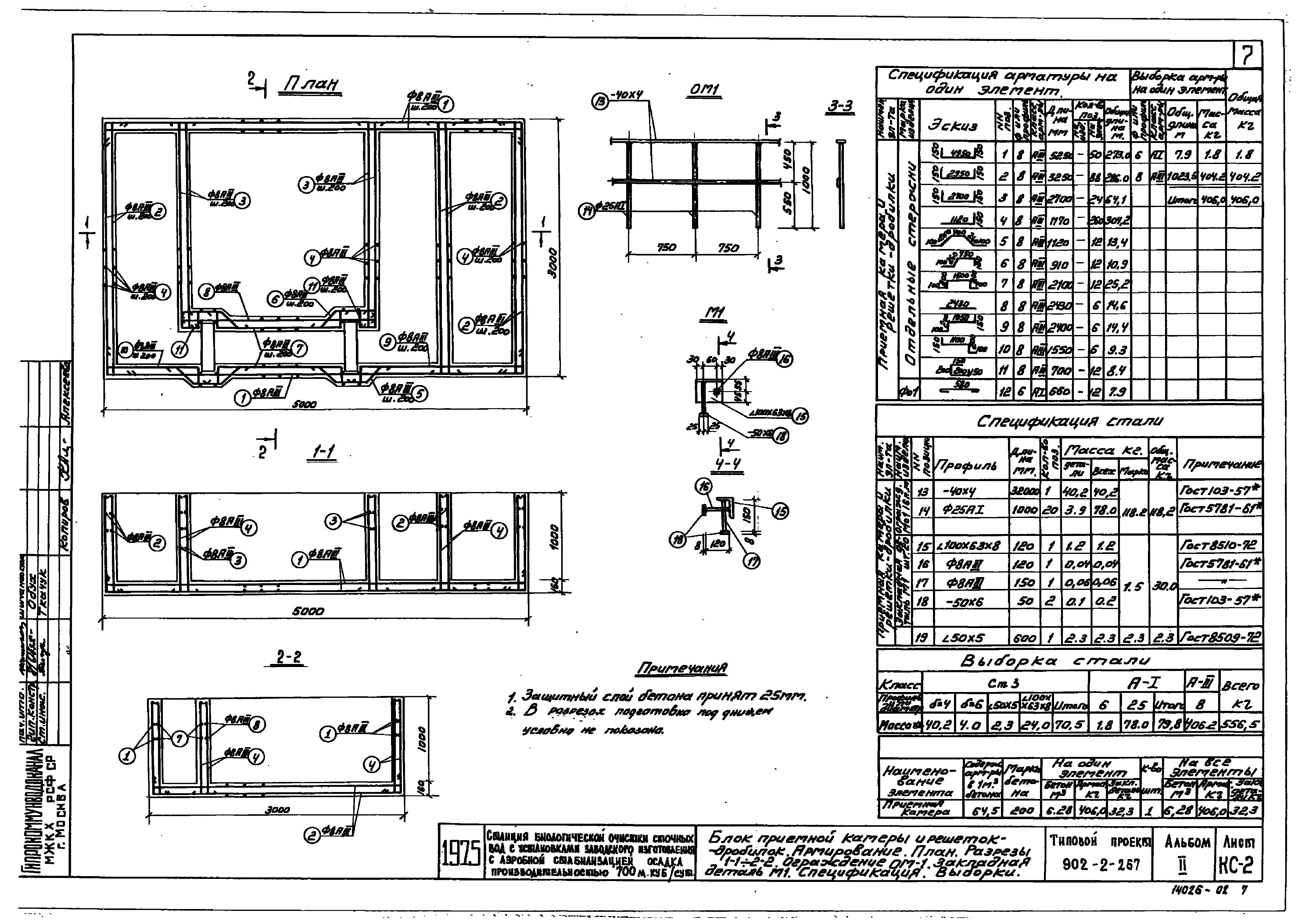
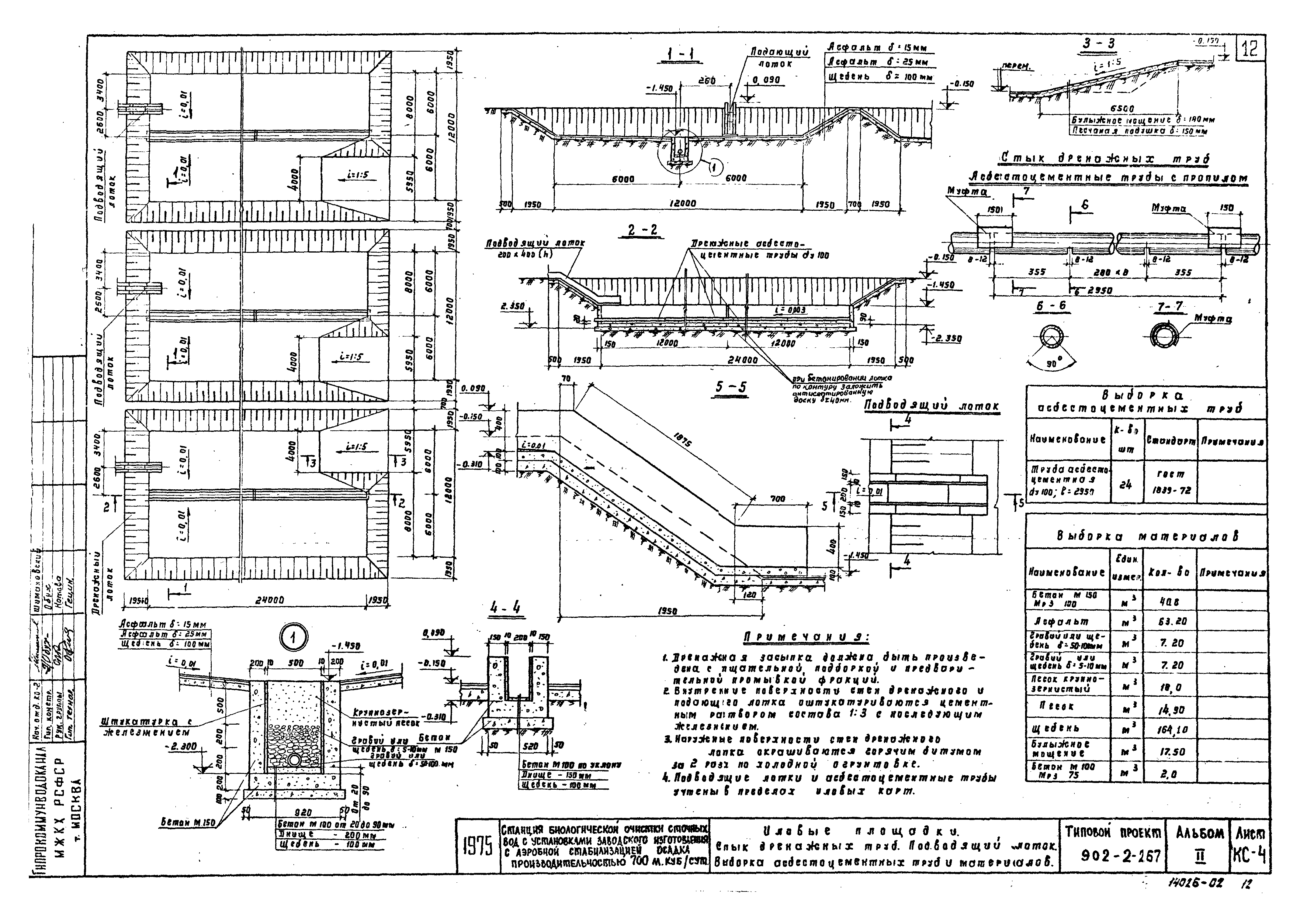
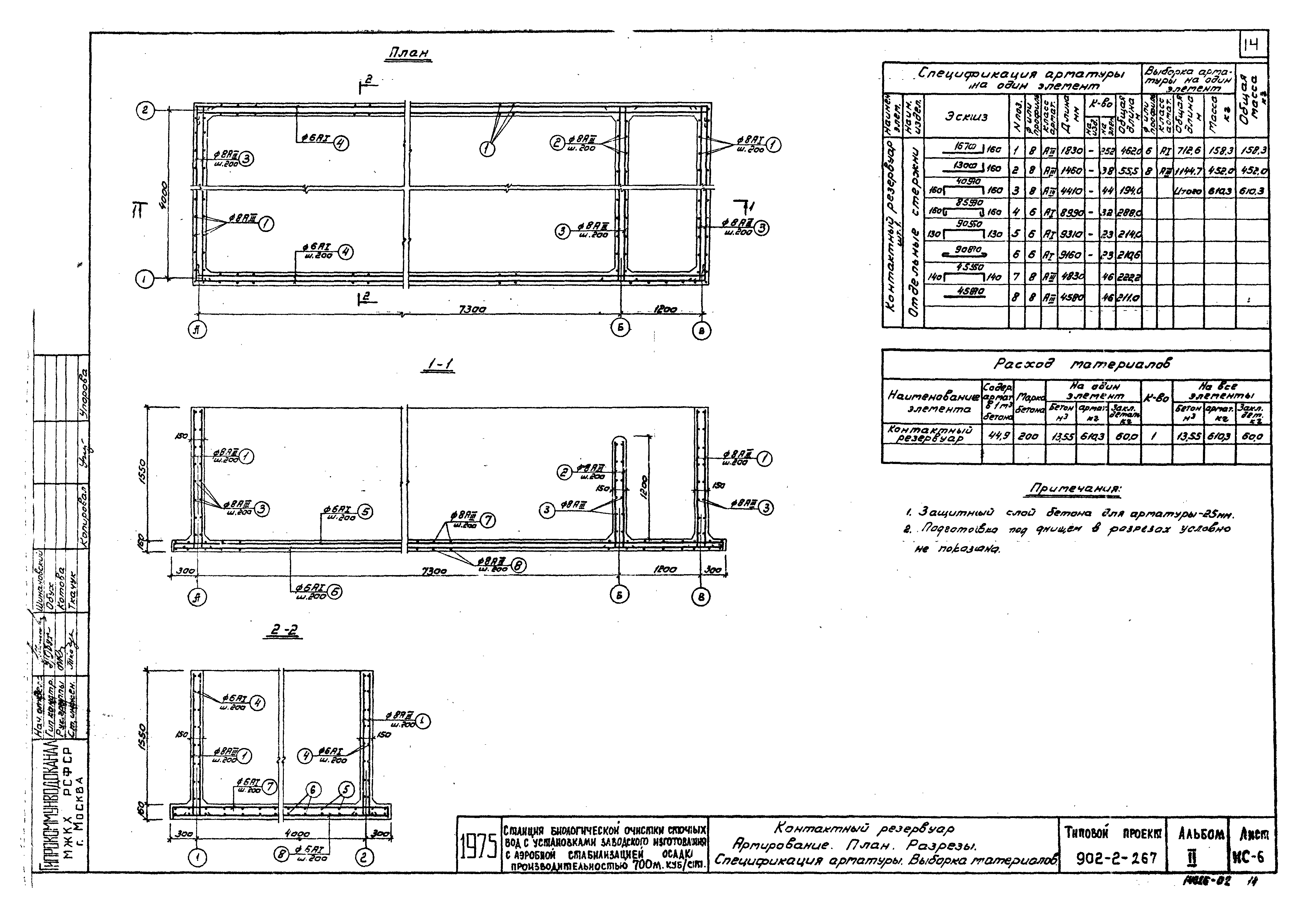
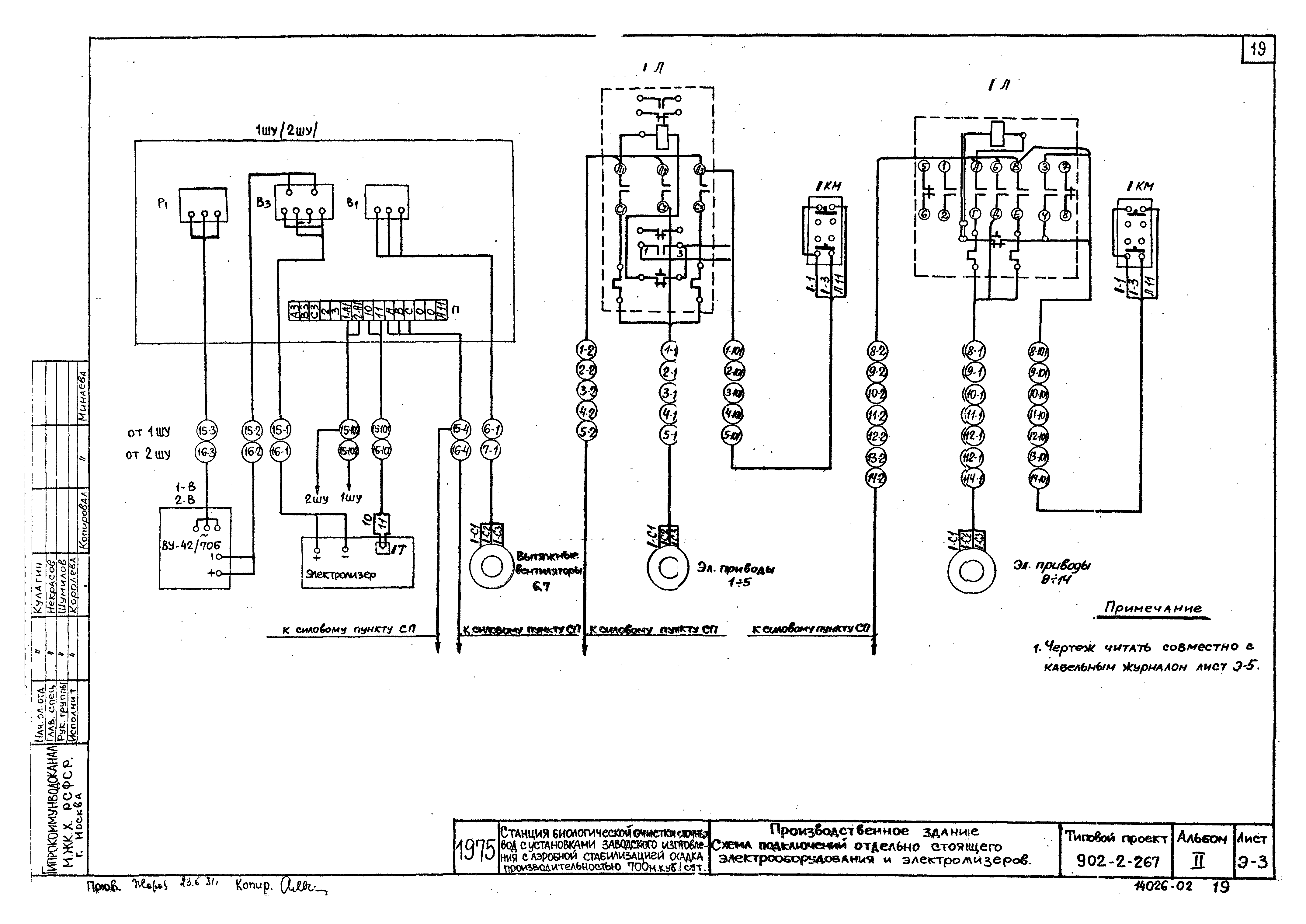
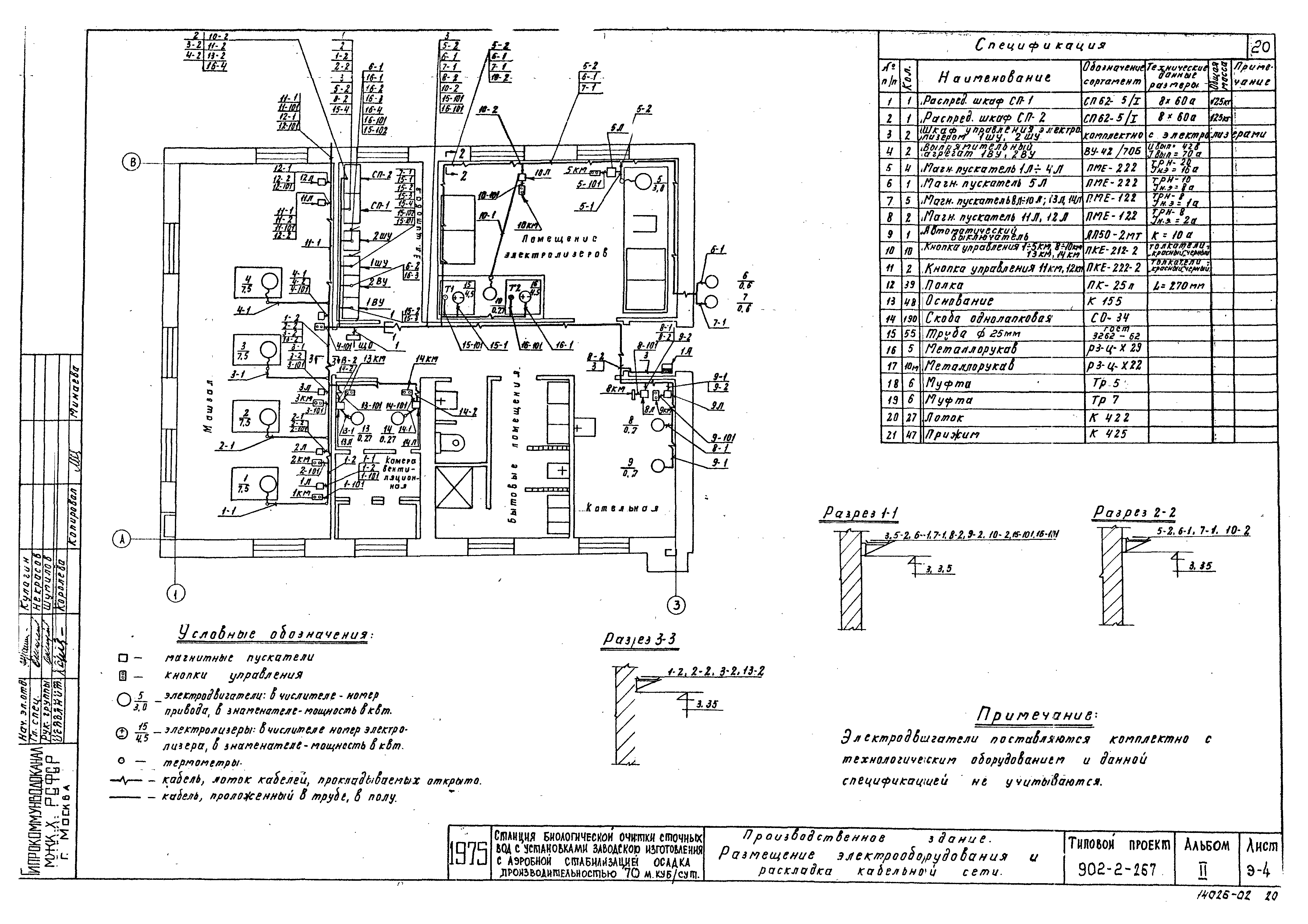
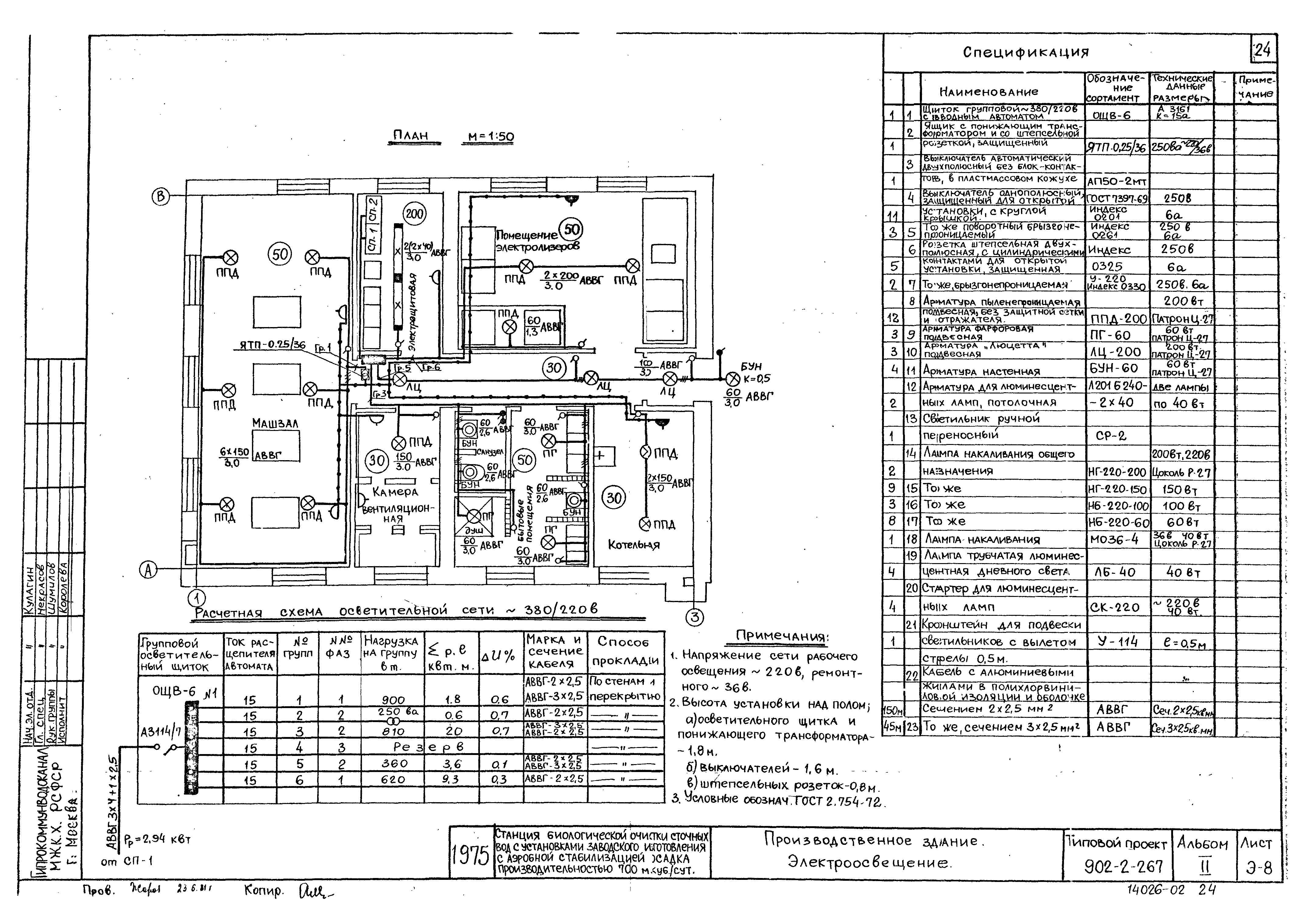
| Оглавление: | Содержание альбома Схема генплана Схема генплана. Наружные электросети Профили движения воды и ила Блок приемной камеры и решеток-дробилок Опалубка. План. Разрезы 1-1 - 6-6. ФО1. Узел 1. выборка Армирование. План. Разрезы 1-1 - 2-2. Ограждение ОМ1. Закладная деталь М1. Спецификация. Выборки Монтажный чертеж Шибер в сборе. Болт анкерный. Пластина Опора. Решетка Компактная установка Плита под емкостной блок. Опалубочный чертеж. Армирование. Планы, разрезы. Спецификация Иловые площадки Стык дренажных труб. Подводящий лоток. Выборка асбестоцементных труб и материалов Контактный резервуар Опалубочный чертеж. План. Разрезы. Закладная деталь М1. Спецификация и выборка стали Армирование. План. Разрезы. Спецификация арматуры. Выборка материалов План. Разрезы. Спецификация Контактный колодец. План. Разрез 1-1. Узлы 1 - 2. Выборки. Спецификация Производственное здание Принципиальная однолинейная схема питания 380/220 В Принципиальная схема управления электролизной установкой и электроприводами Схема подключения отдельно стоящего электрооборудования и электролизеров Размещение электрооборудования и раскладка кабельной сети Кабельный журнал Контур заземления Изменение в монтаже шкафа 1ШУ (2ШУ). Управление электролизной установкой Электроосвещение Электрослаботочные устройства |
| Разработан: | Гипрокоммунводоканал Минжилкомхоза РСФСР |
| Утверждён: | 23.12.1975 МЖКХ РСФСР (21ТД) |
























