Скачать Типовой проект 902-2-267 Альбом III. Производственное здание. Архитектурно-строительная, технологическая и санитарно-техническая частиДата актуализации: 01.01.2021
|
| Обозначение: | Типовой проект 902-2-267 |
| Обозначение англ: | 902-2-267 |
| Статус: | не определен законодательством |
| Название рус.: | Альбом III. Производственное здание. Архитектурно-строительная, технологическая и санитарно-техническая части |
| Дата добавления в базу: | 01.09.2013 |
| Дата актуализации: | 01.01.2021 |
| Дата введения: | 24.12.1975 |
| Дата окончания срока действия: | 30.06.2003 |
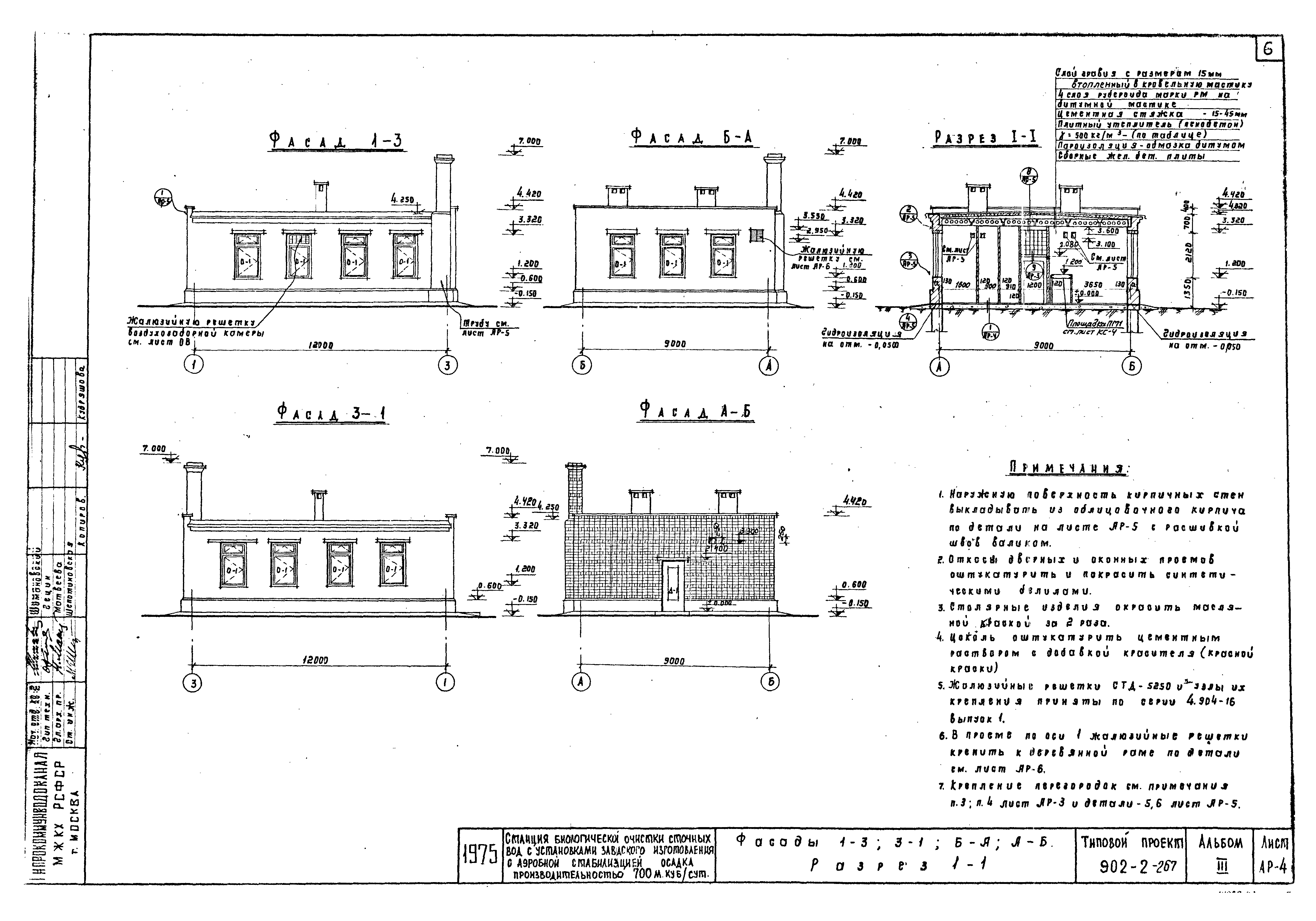
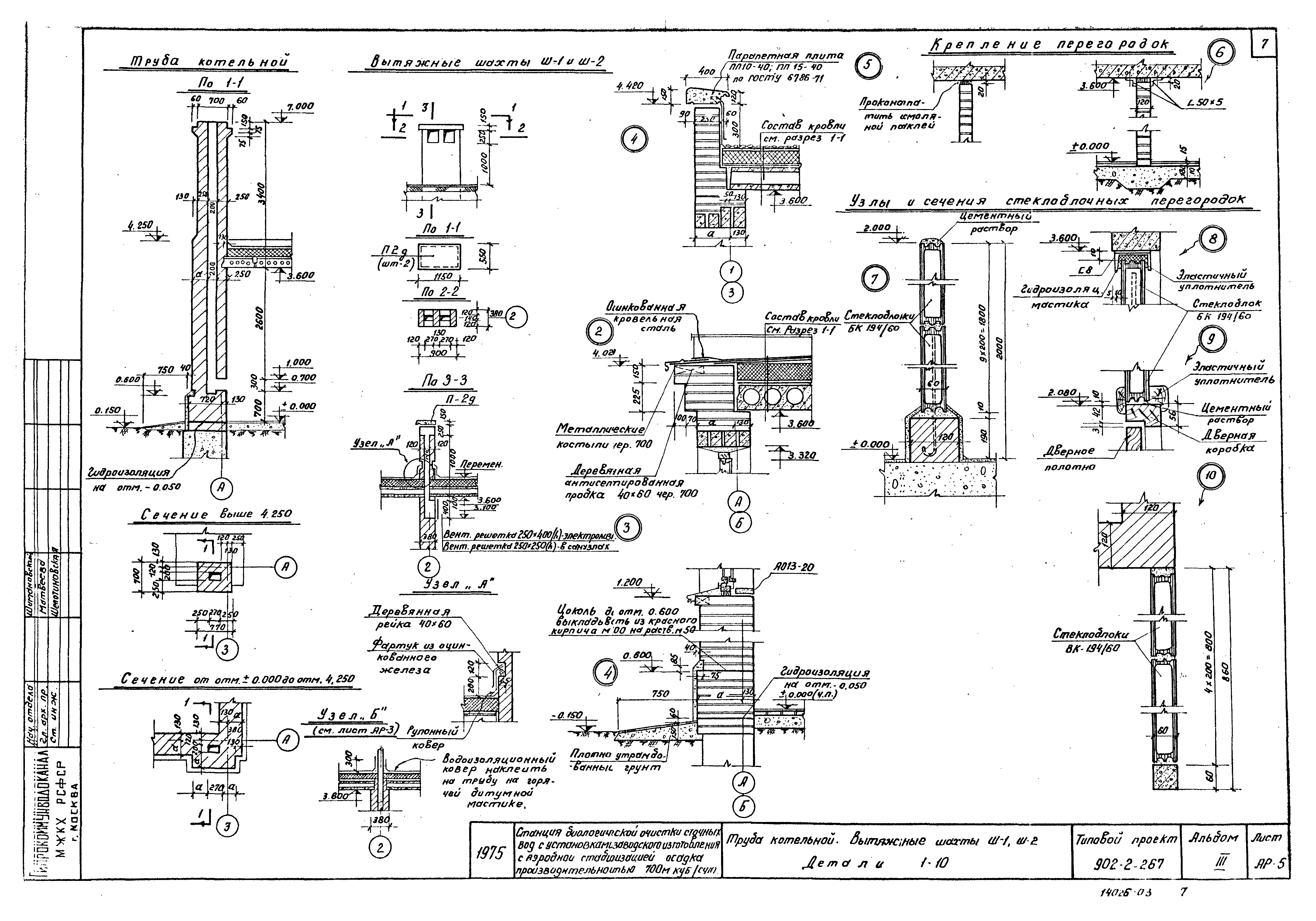
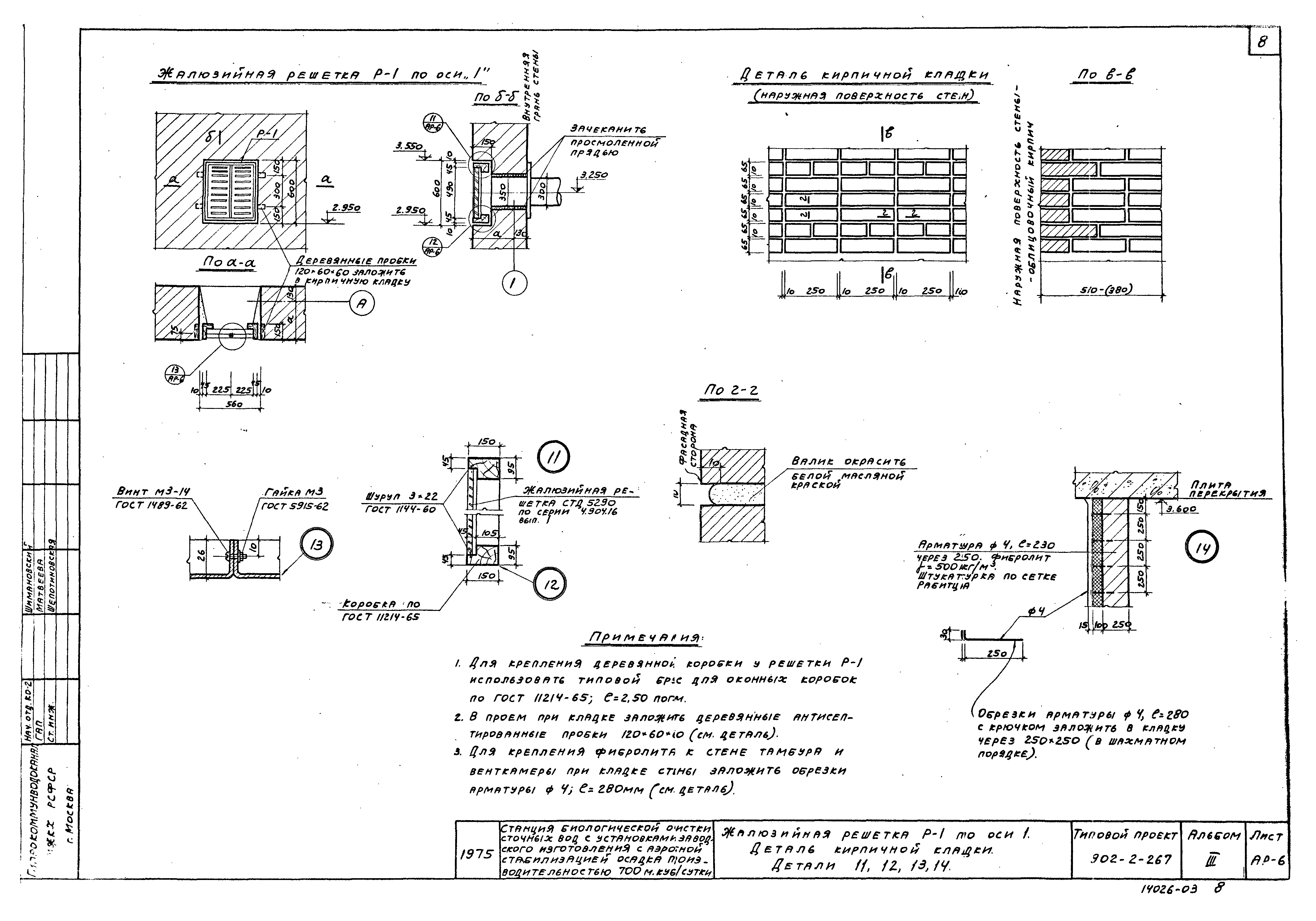
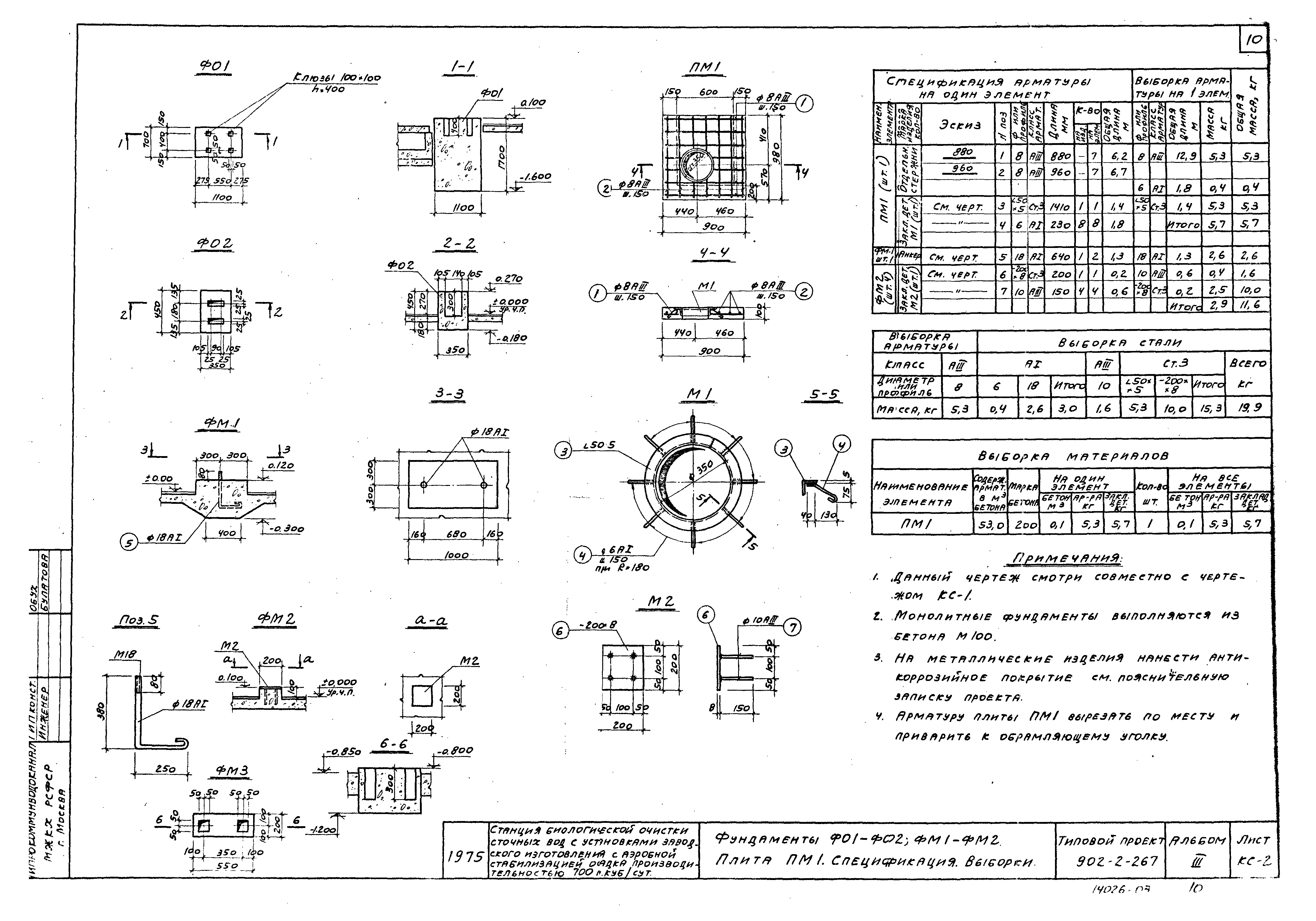
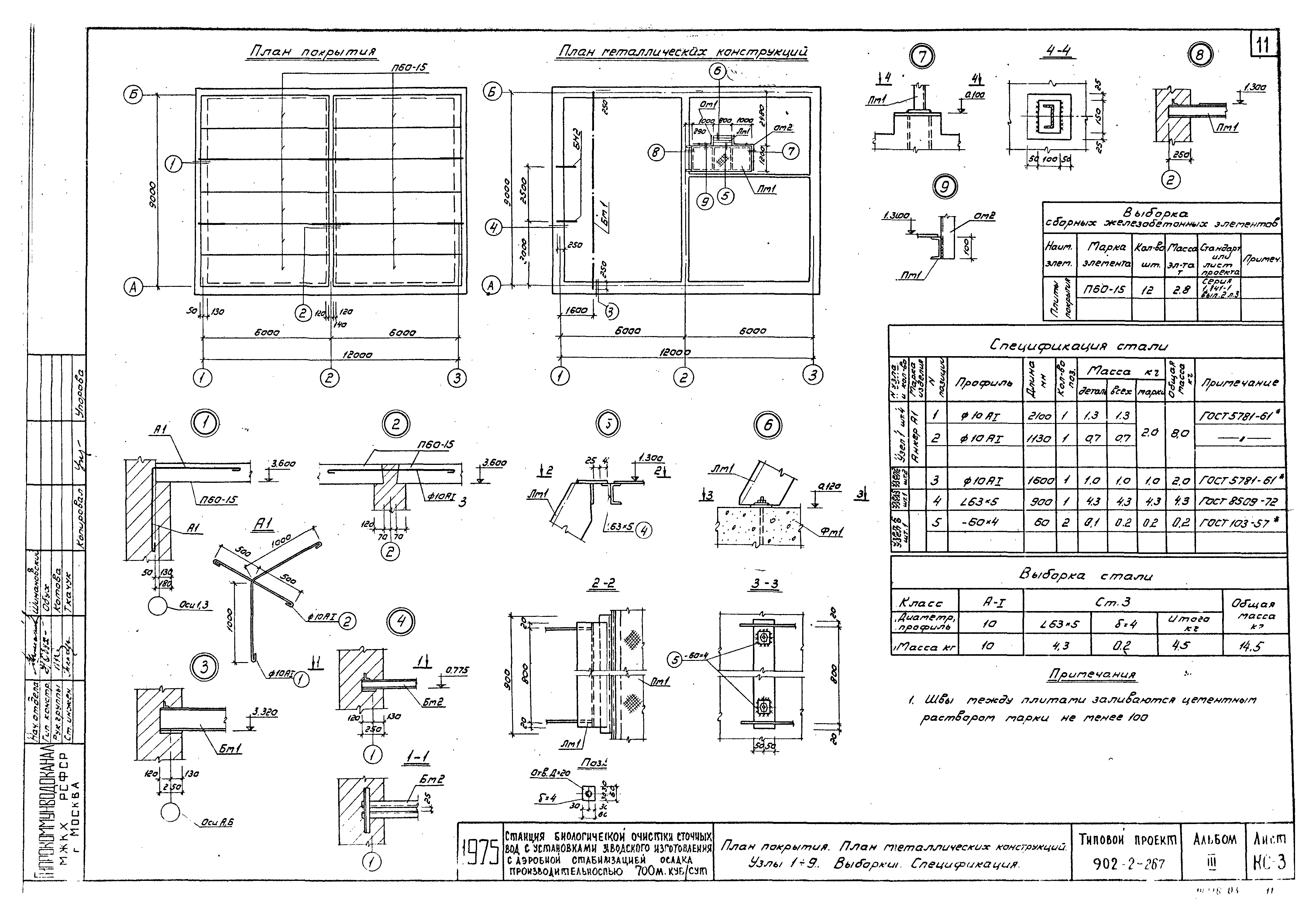
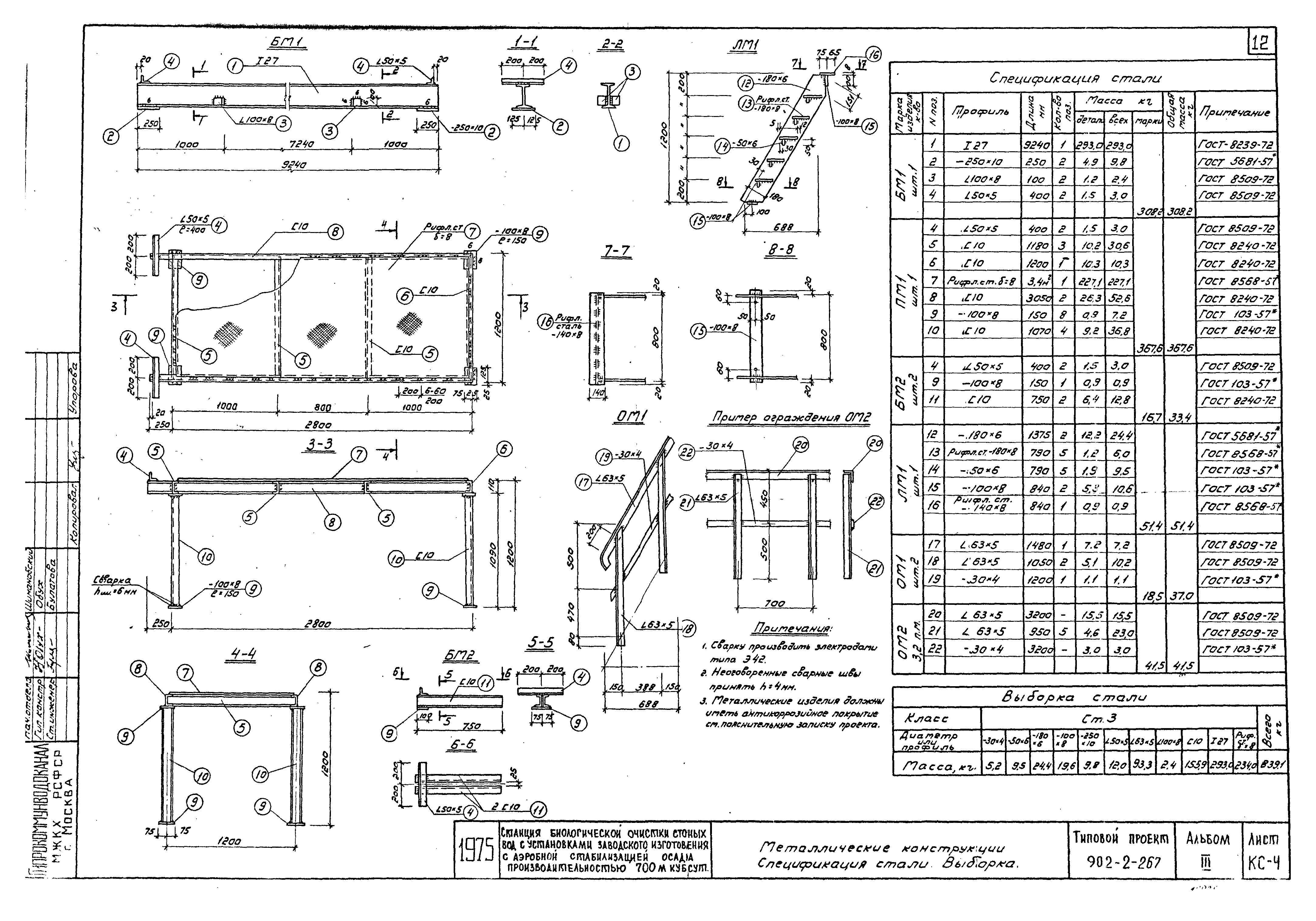
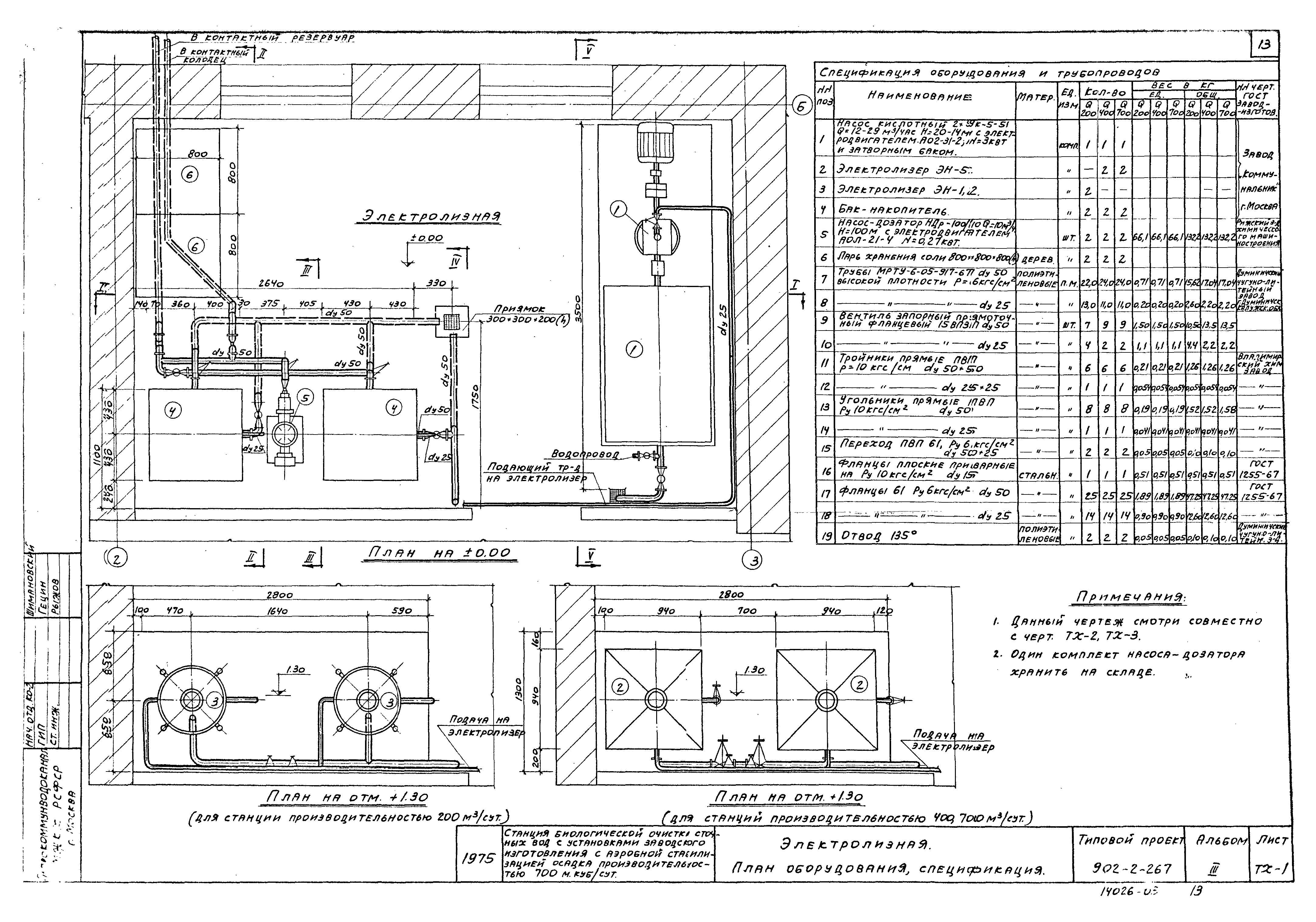
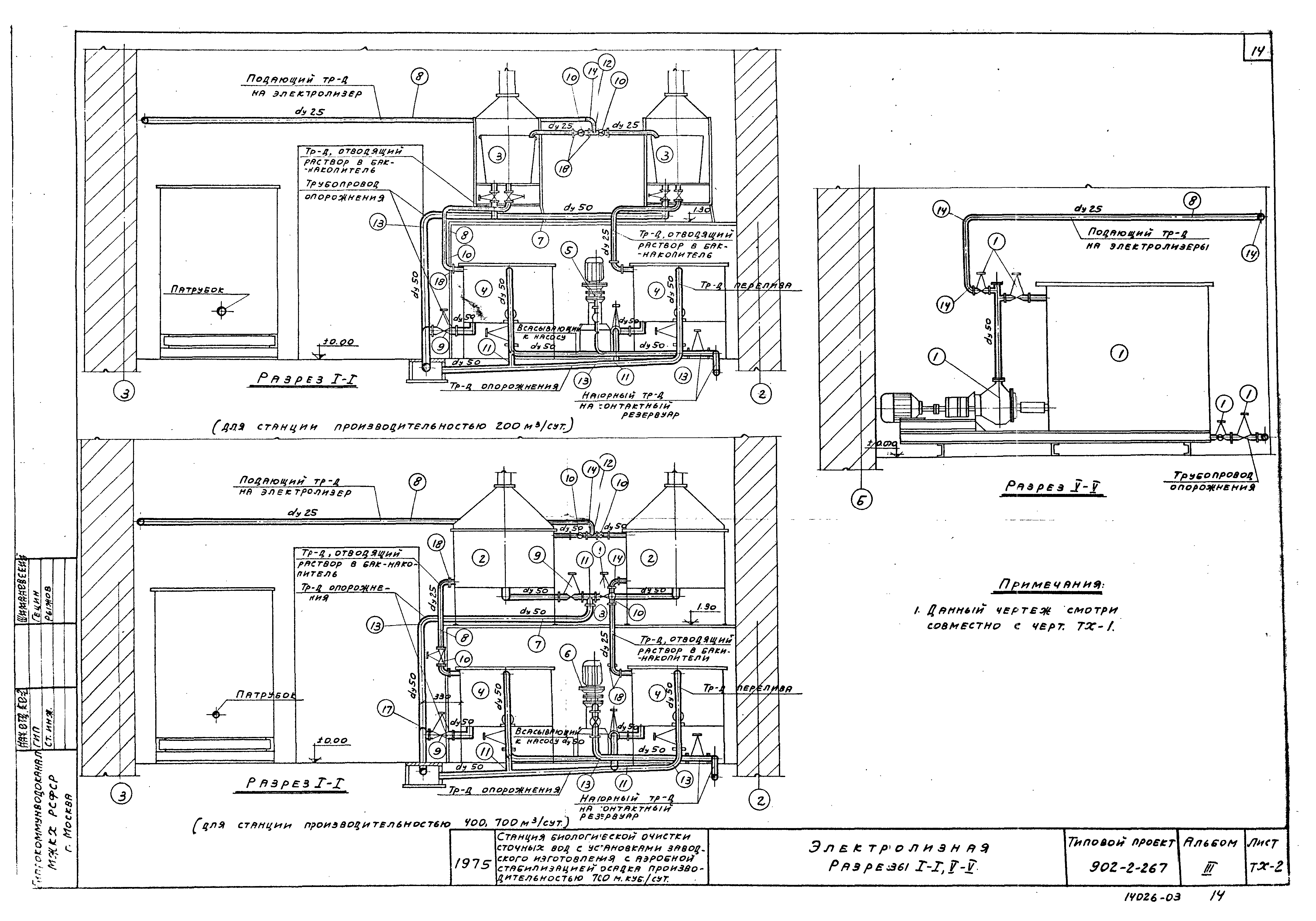
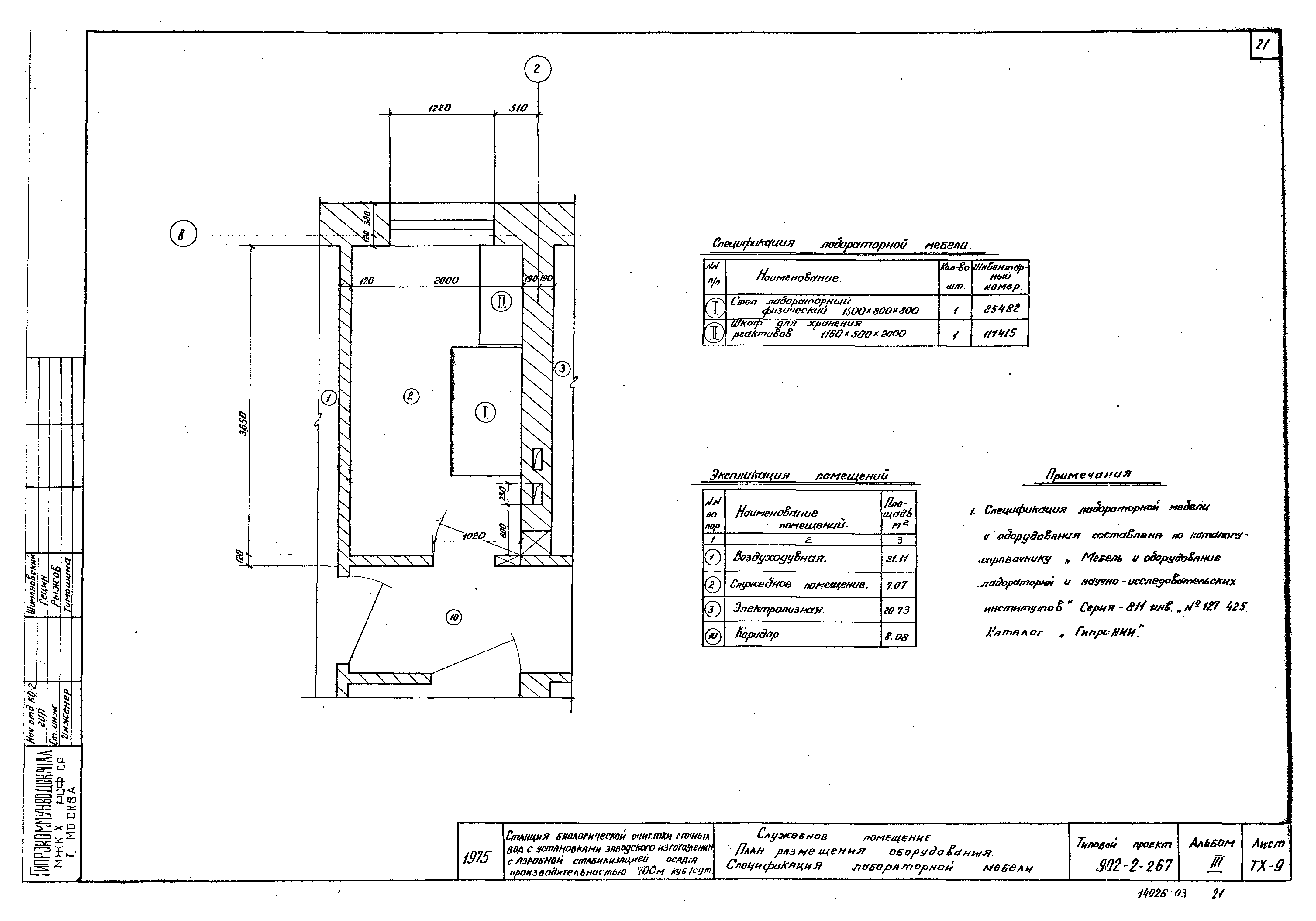
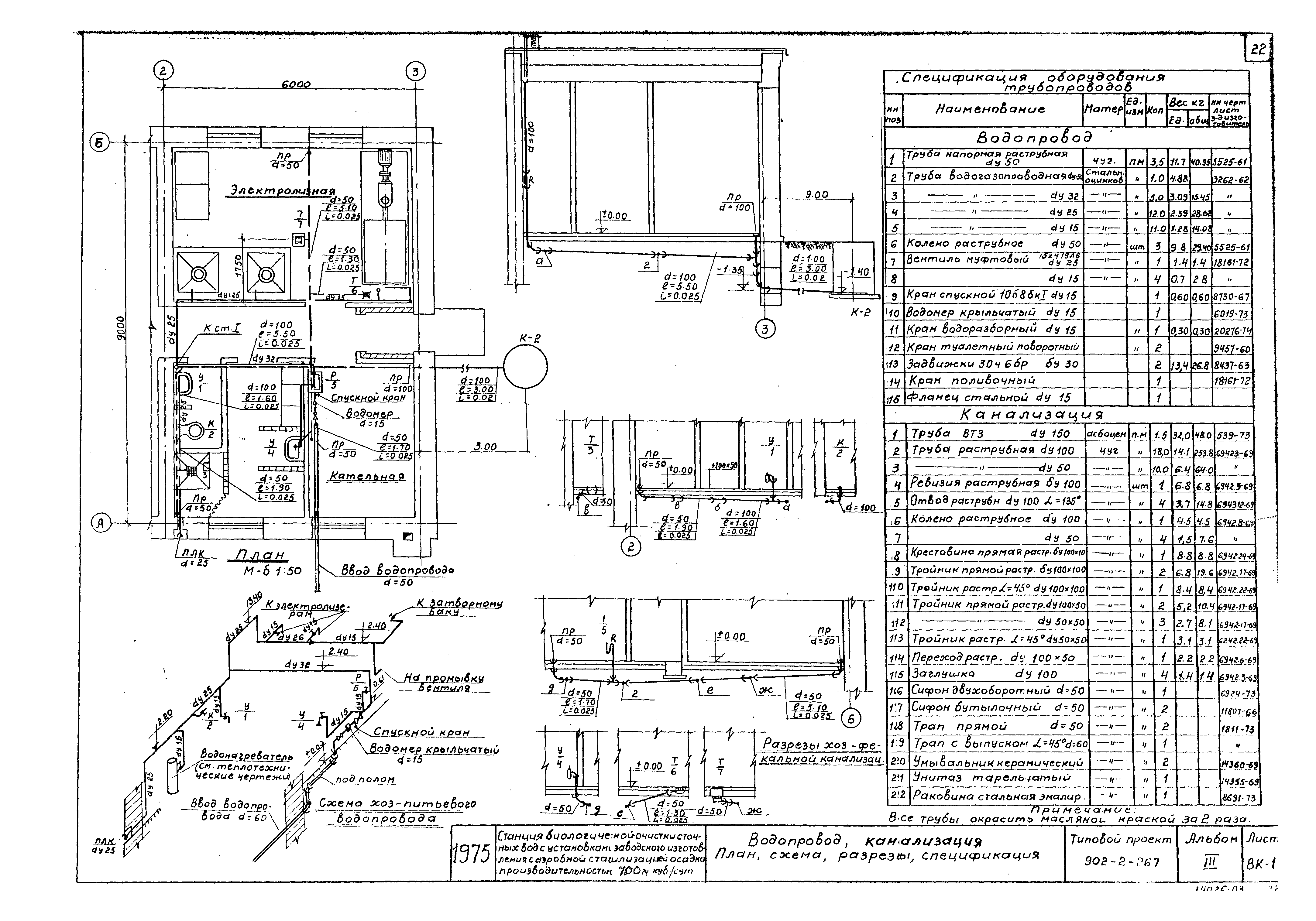
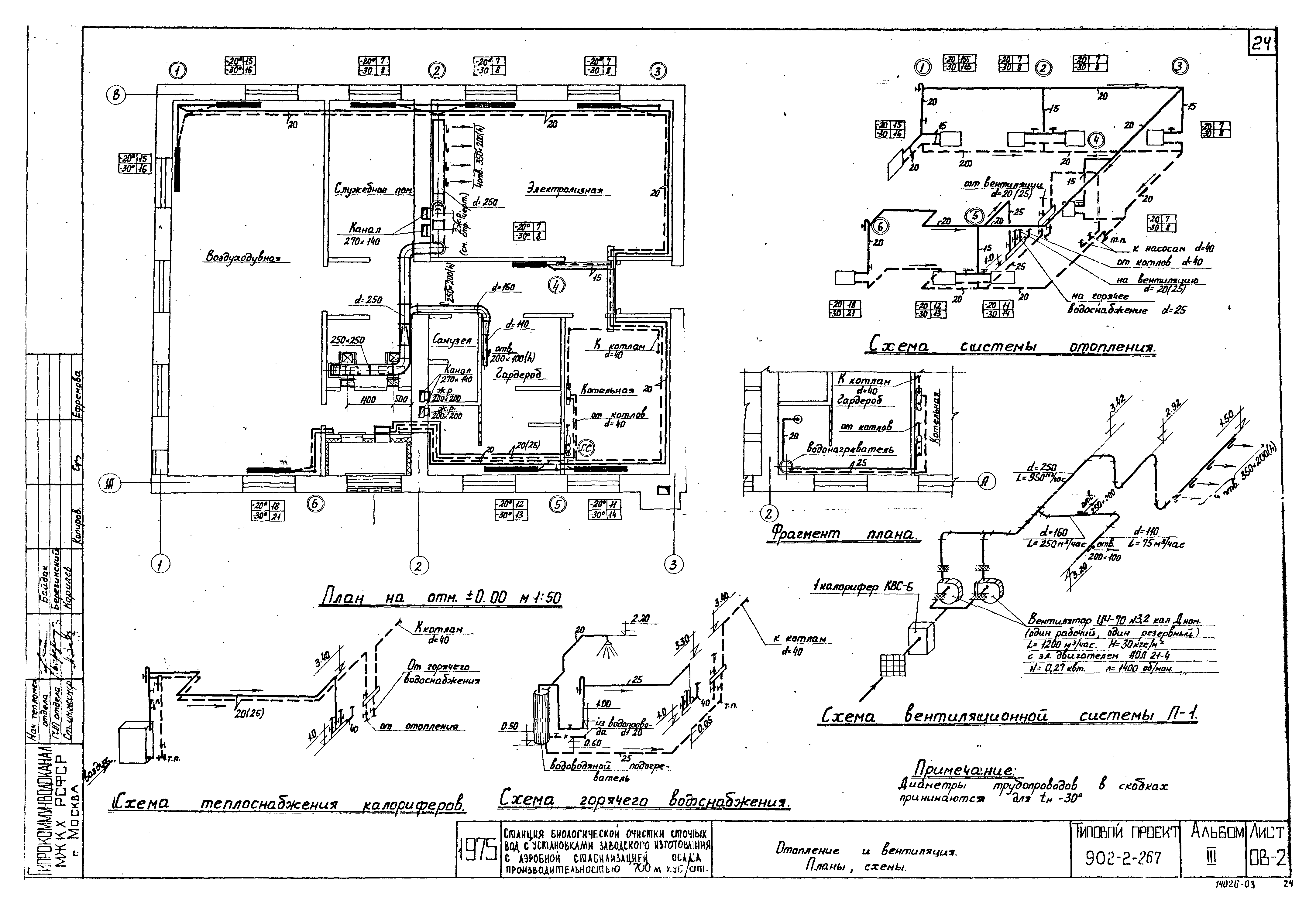
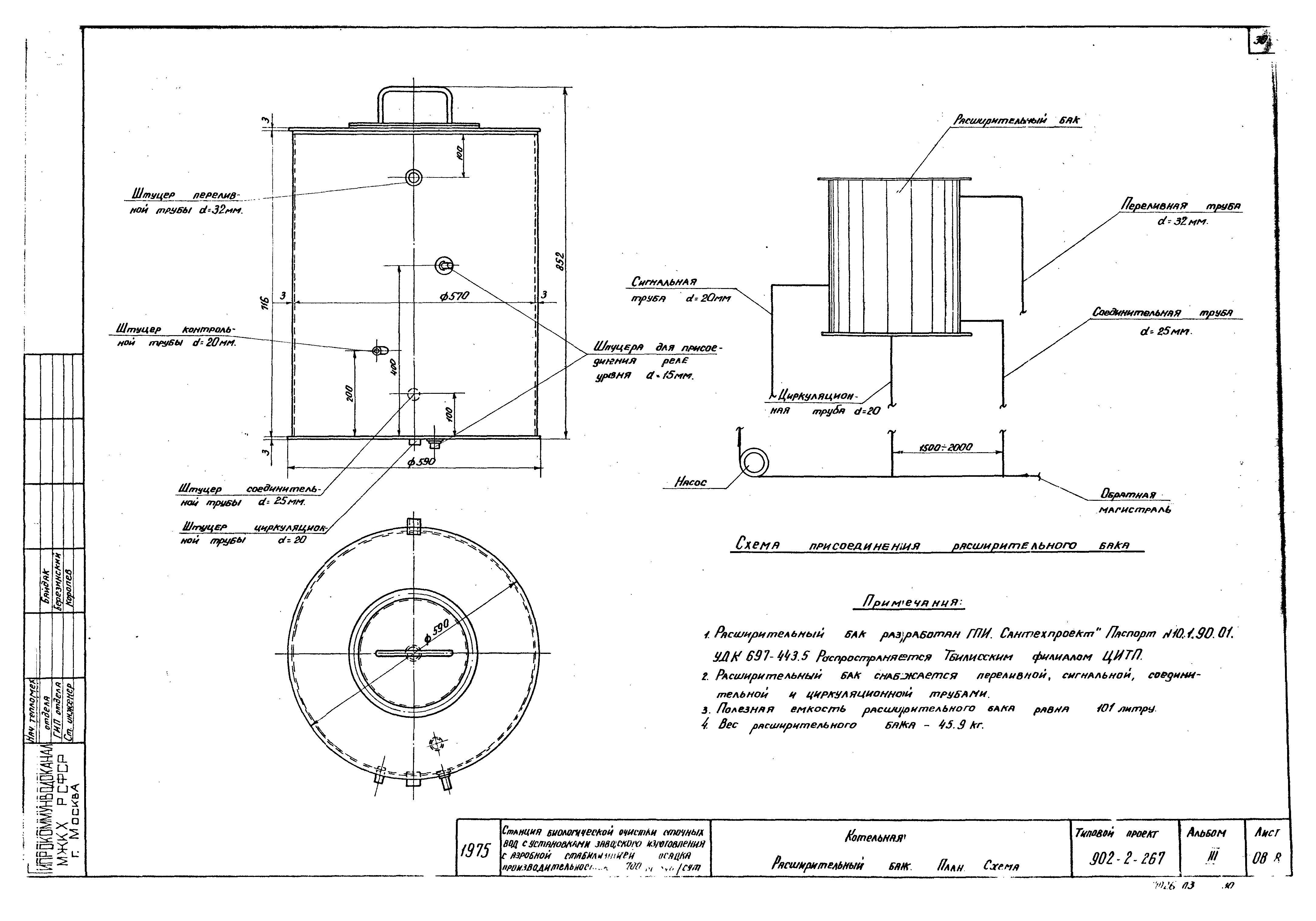
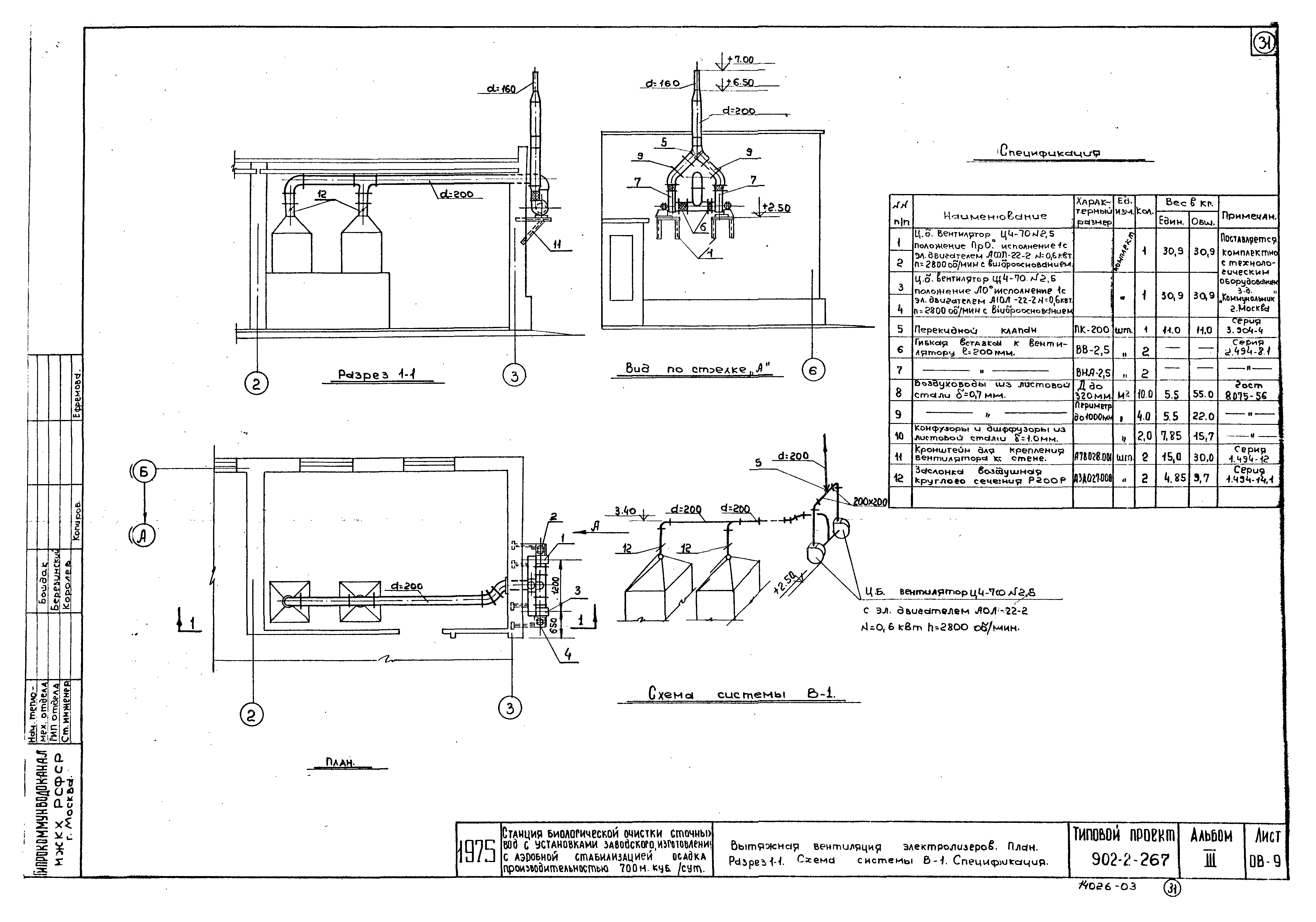
| Оглавление: | Содержание альбома Архитектурные решения Производственное здание. Заглавный лист Производственное здание. План кровли. План полов на отм. 0.000. Схема сборных железобетонных перемычек. Спецификация перемычек. Детали полов. Ведомость внутренних отделочных работ Производственное здание. План на отм. 0.000 Производственное здание. Фасады 1 - 3; 3 - 1; Б - А; А - Б. Разрез 1-1 Производственное здание. Труба котельной. Вытяжные шахты Ш-1, Ш-2. Детали 1 - 10 Производственное здание. Жалюзийная решетка Р-1 по оси 1. Детали кирпичной кладки. Детали 11, 12, 13, 14 Строительная часть Фундаменты. План. Сечения. Выборки Фундаменты ФО1 - ФО2; ФМ1 - ФМ2. Плита ПМ1. Спецификация. Выборки План покрытия. План металлических конструкций. Узлы 1 - 9. Выборки. Спецификация Металлические конструкции. Спецификация стали. Выборки Технологическая часть Электролизная. План оборудования, спецификация Электролизная. Разрезы I-I, V-V Электролизная. Разрезы II-II - IV-IV Монтажный чертеж воздуходувной Монтажный чертеж воздуходувной. Опора виброизолирующая для трубы dy300. Подушка. Ребро Монтажный чертеж воздуходувной. Опора виброизолирующая для трубы dy250. Плита. Ребро Монтажный чертеж воздуходувной. Опоры виброизолирующие для труб dy250 и dy300. Плита. Пружина. Болт анкерный. Подушка Монтажный чертеж воздуходувной. Перфорированная труба dy300. Опора скользящая для трубы dy200 Служебные помещения. План размещения оборудования. Спецификация лабораторной мебели Водоснабжение и канализация Водопровод, канализация. План, схема, разрезы. Спецификация Отопление и вентиляция Отопление и вентиляция. Заглавный лист Отопление и вентиляция. Планы. Схемы Вентиляция. Венткамера. План. Разрез 1-1. Монтажная спецификация Котельная. План. Разрез 1-1. Схема обвязки котельной. Экспликация основного оборудования Отопление. Вентиляция. Котельная. Спецификация оборудования и материалов Горячее водоснабжение. Индивидуальный водяной подогреватель. Общий вид и детали Горячее водоснабжение. Индивидуальный водяной подогреватель. Детали Котельная. Расширительный бак. План. Схема Вытяжная вентиляция электролизной. План. Разрез 1-1. Схема системы В-1. Спецификация |
| Разработан: | Гипрокоммунводоканал Минжилкомхоза РСФСР |
| Утверждён: | 23.12.1975 МЖКХ РСФСР (21ТД) |






























