Скачать 11.0463 Одноцепные железобетонные опоры ВЛ 6 - 10 и 20 кВ на базе стоек СВ110-1(2,3)-а. Рабочие чертежи опорДата актуализации: 01.01.2021 11.0463
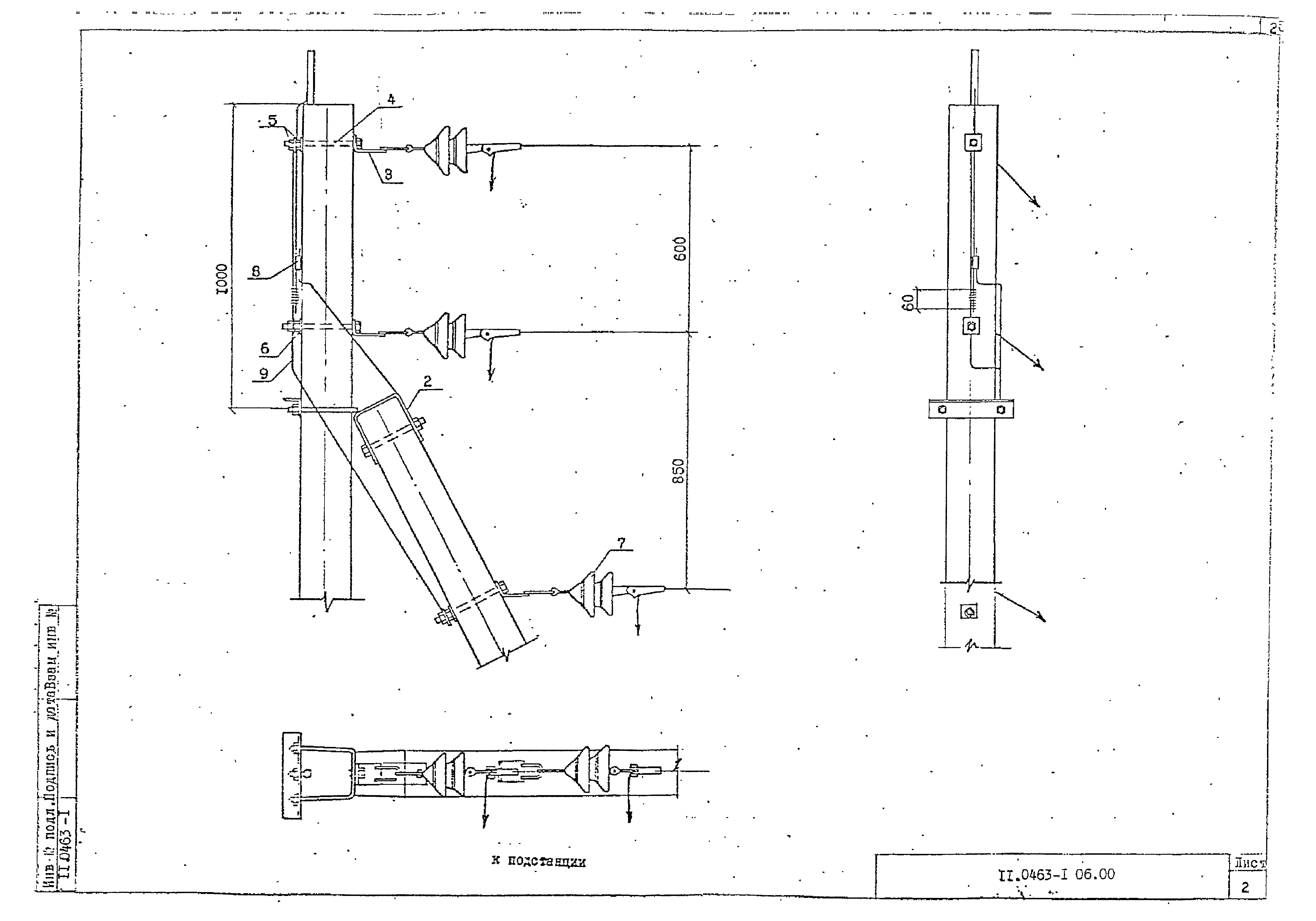
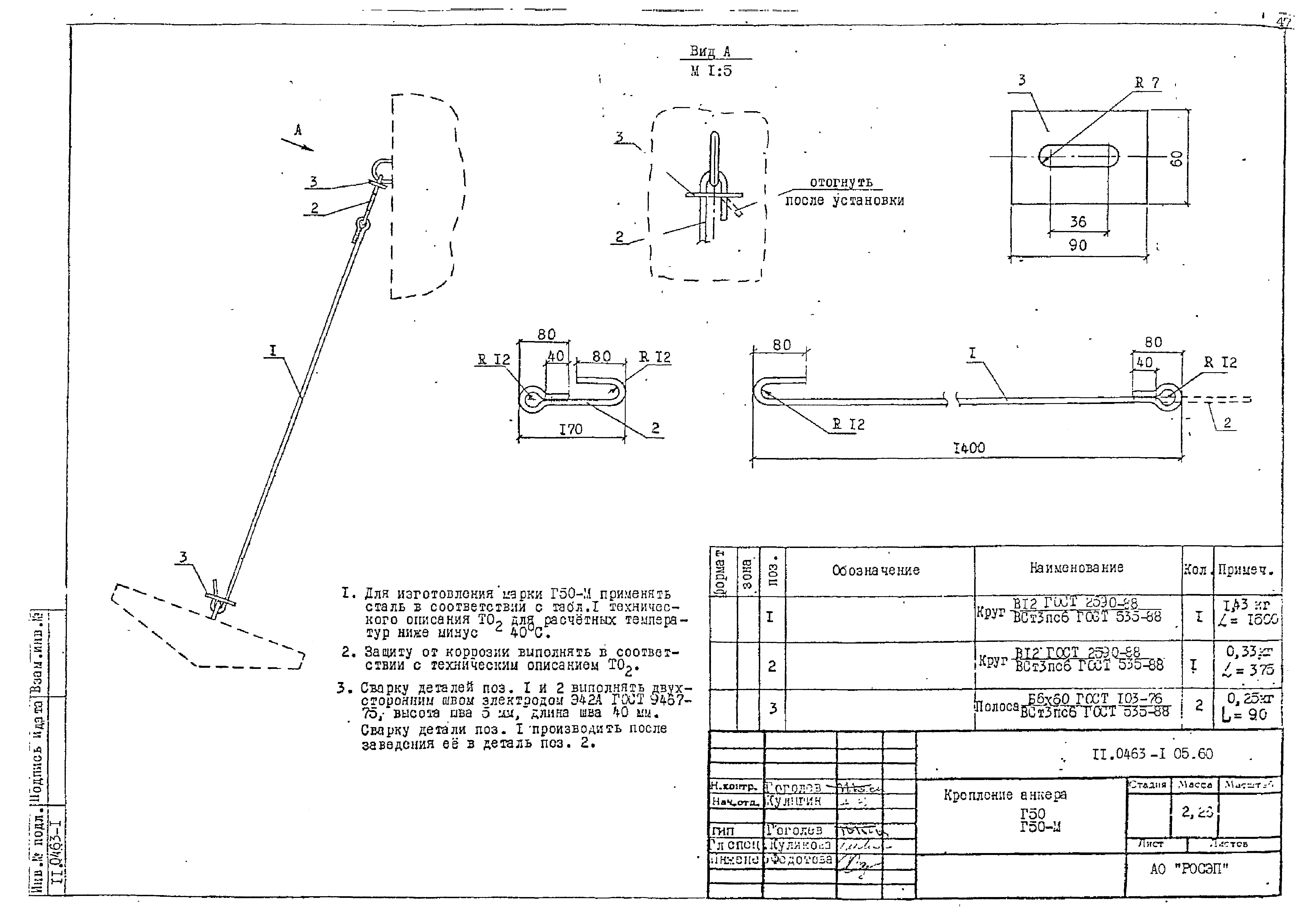
Одноцепные железобетонные опоры ВЛ 6 - 10 и 20 кВ на базе стоек СВ110-1(2,3)-а. Рабочие чертежи опор| Обозначение: | 11.0463 | | Обозначение англ: | 11.0463 | | Статус: | действует | | Название рус.: | Одноцепные железобетонные опоры ВЛ 6 - 10 и 20 кВ на базе стоек СВ110-1(2,3)-а. Рабочие чертежи опор | | Дата добавления в базу: | 01.09.2013 | | Дата актуализации: | 01.01.2021 | | Дата введения: | 23.09.1991 | | Область применения: | Проект содержит рабочие чертежи одноцепных промежуточных и анкерного типа железобетонных опор линий электропередачи напряжением 6 - 10 и 20 кВ на базе стоек марок СВ110-1(2.3)-а и СВ110-1(2)-ав(аг) | | Разработан: | АО РОСЭП
| | Утверждён: | 23.09.1991 Минэнерго СССР (USSR Minenergo ВМ-3455пр)
|
                                               
|