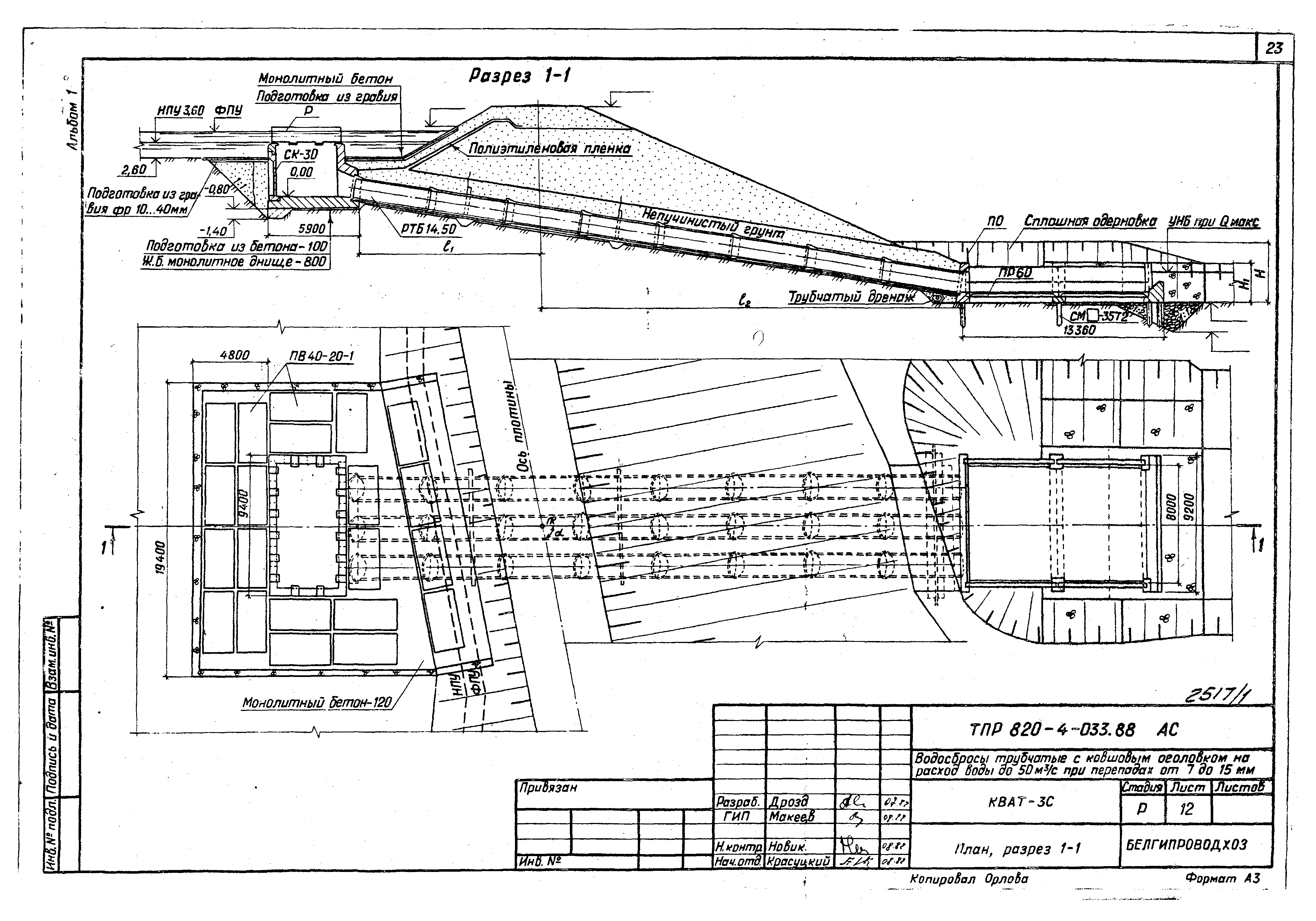
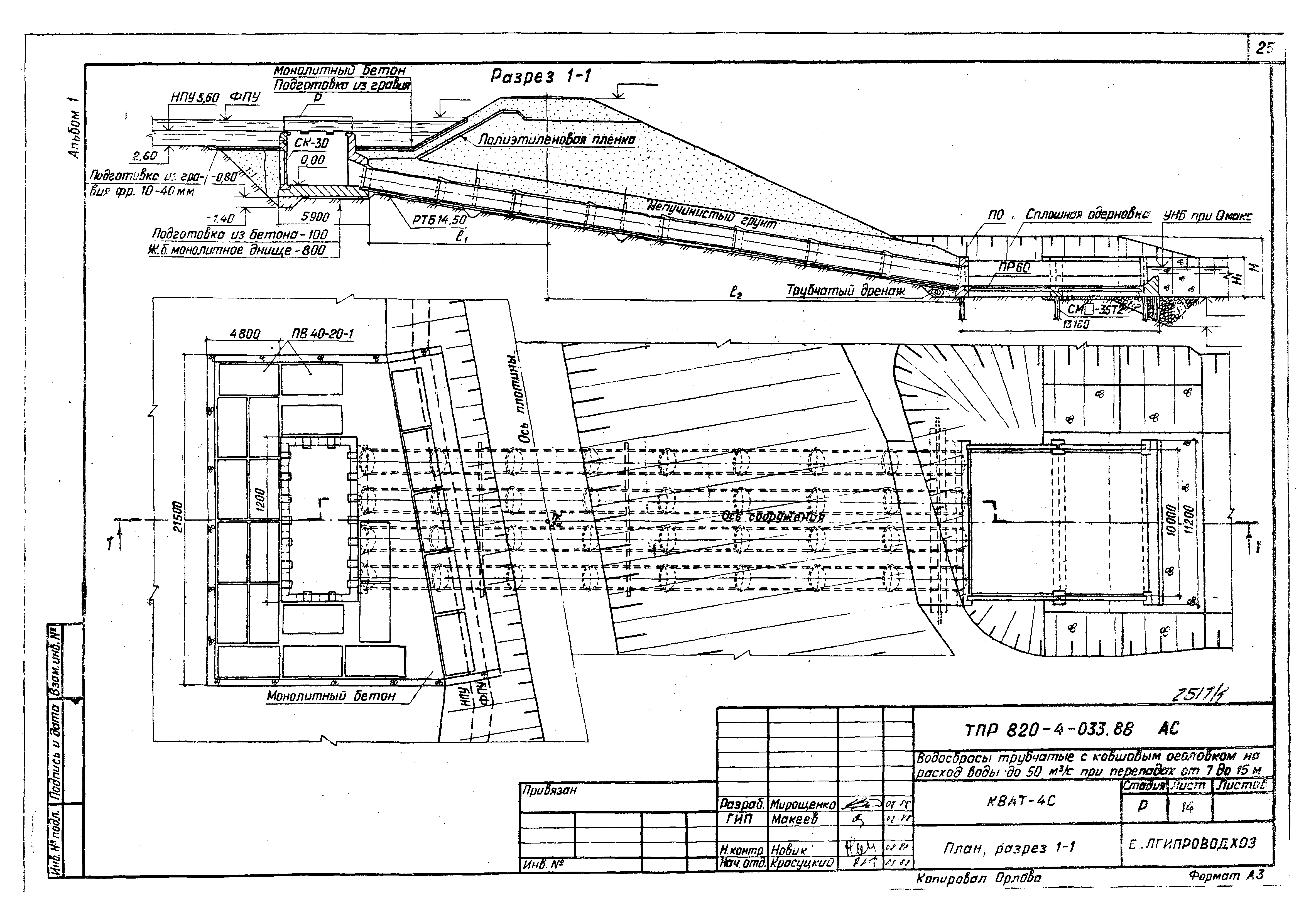
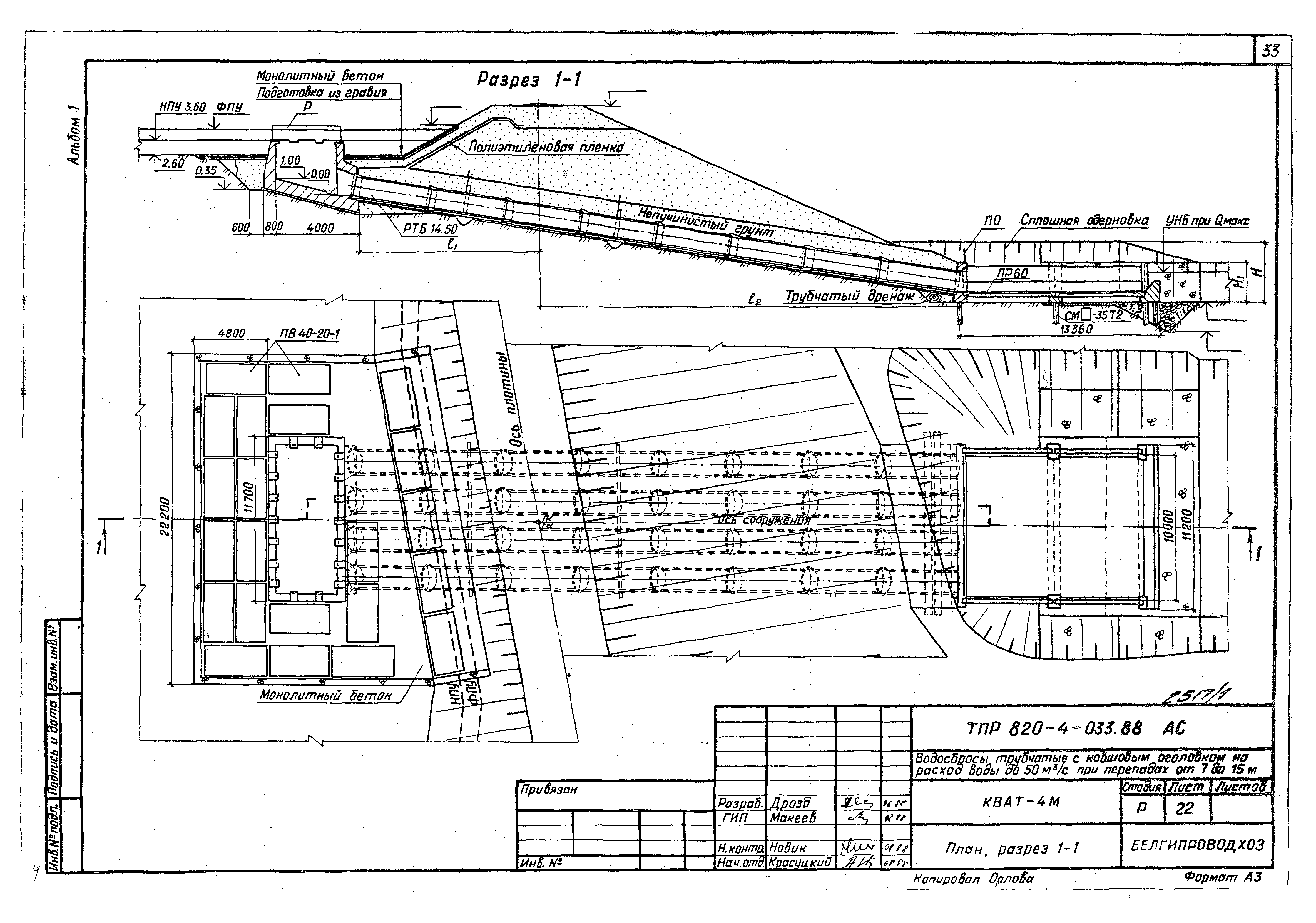
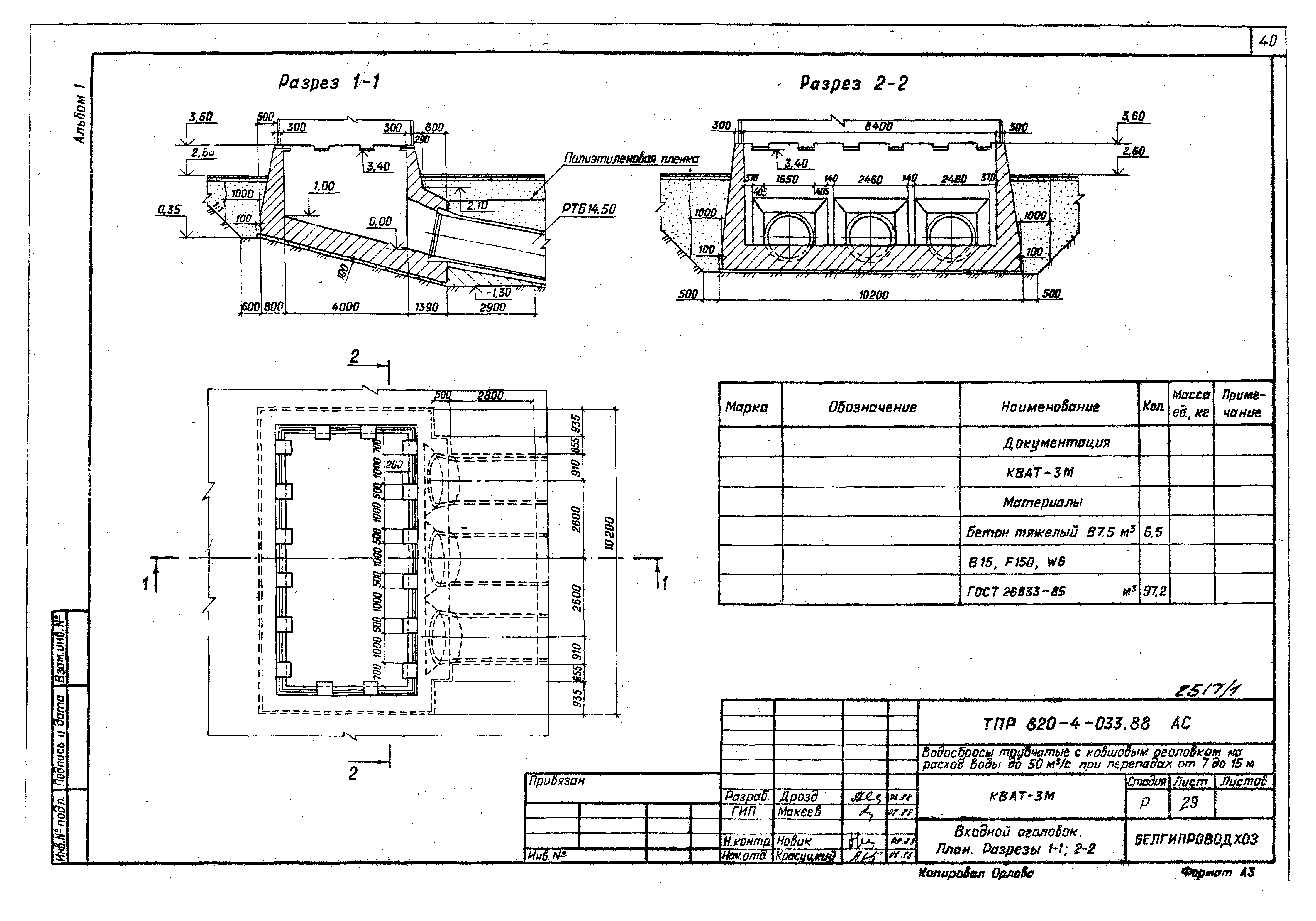
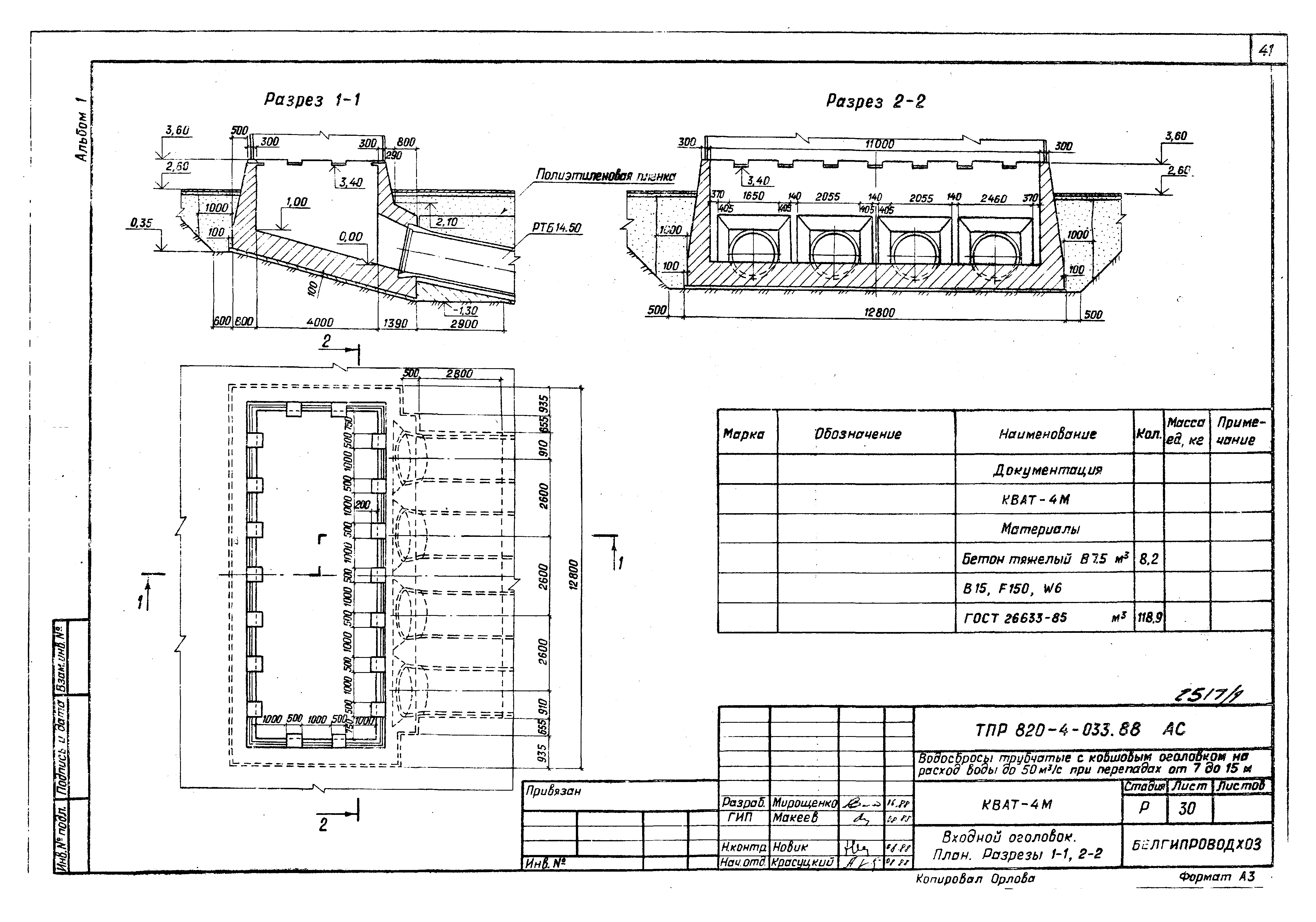
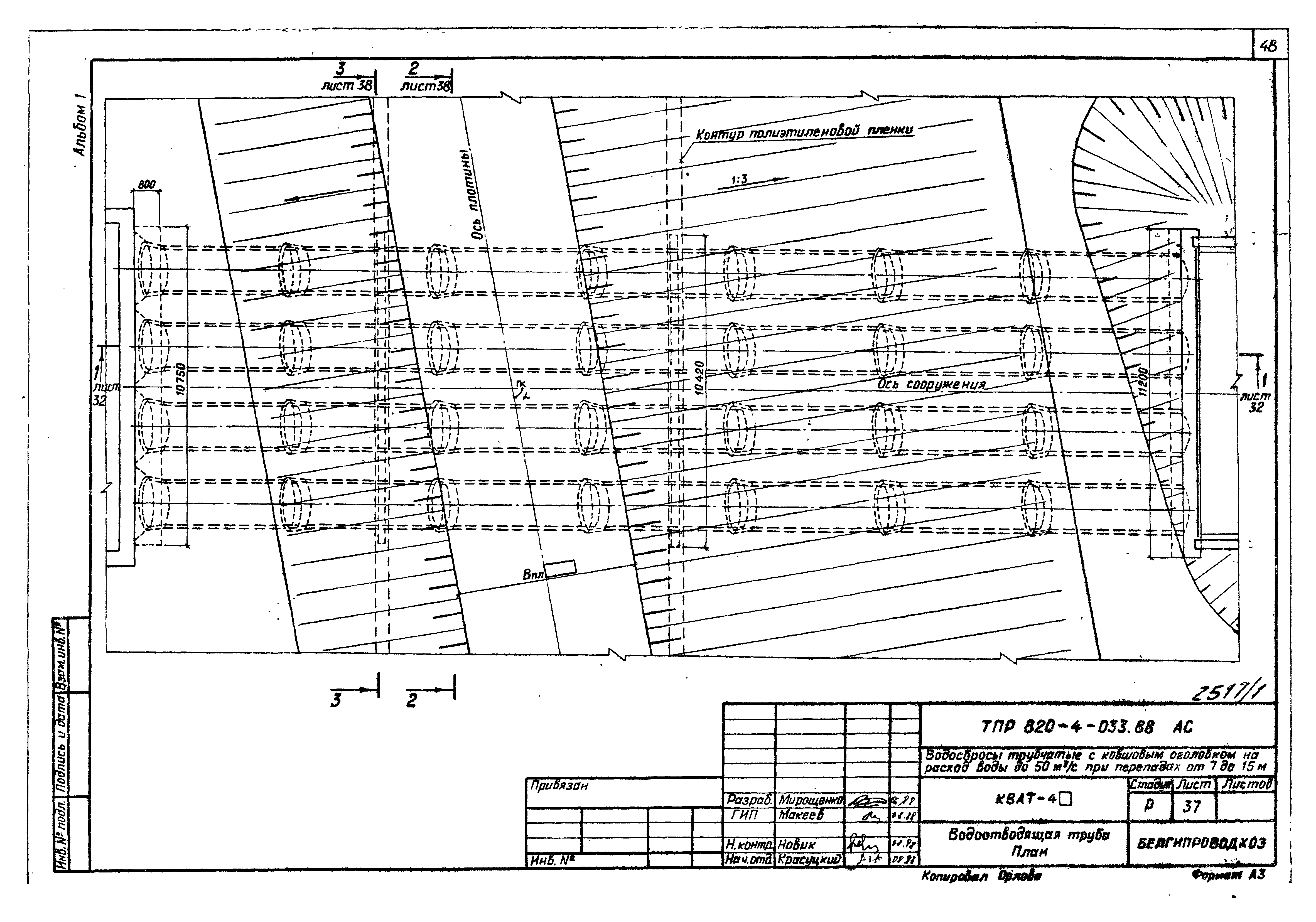
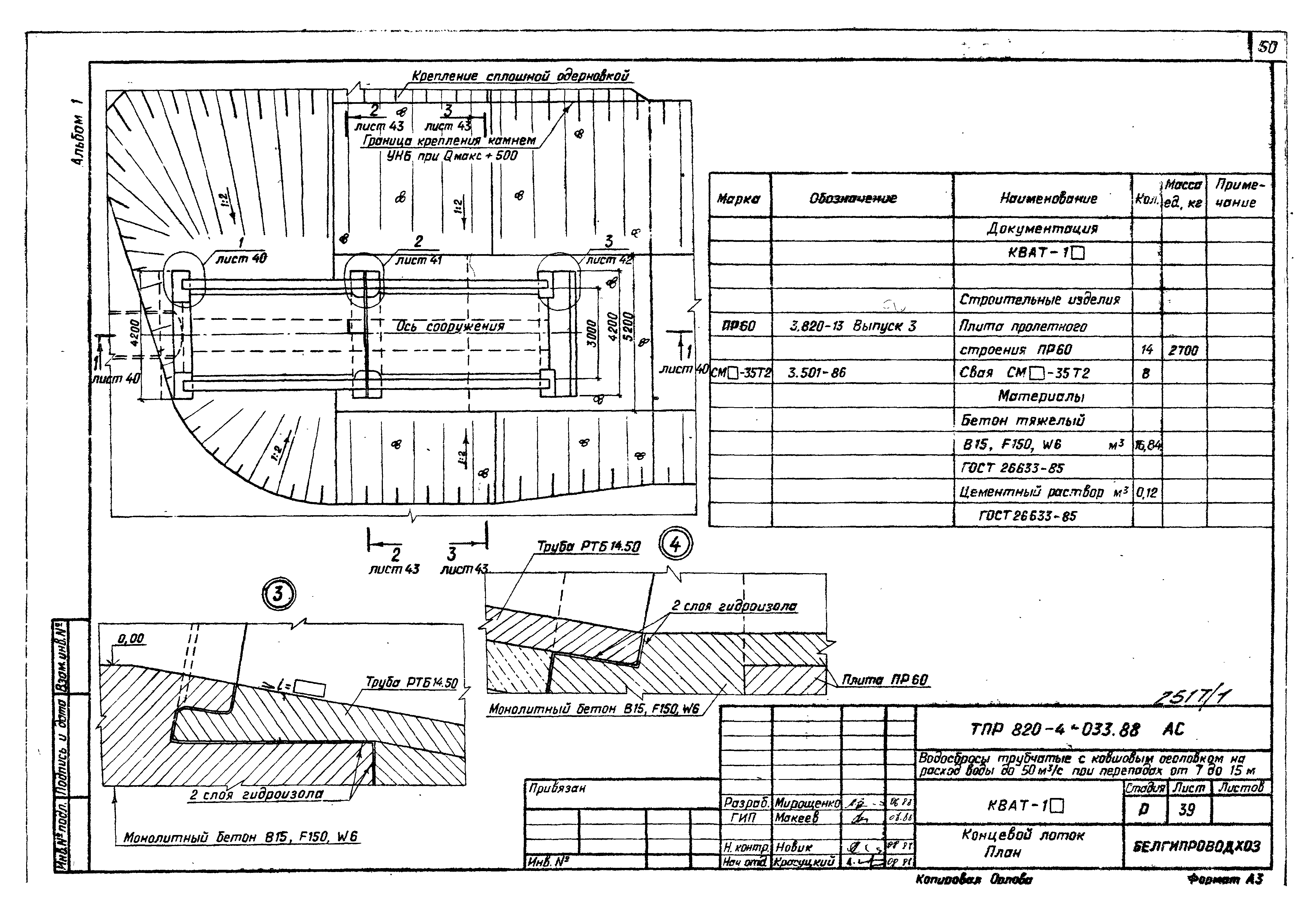
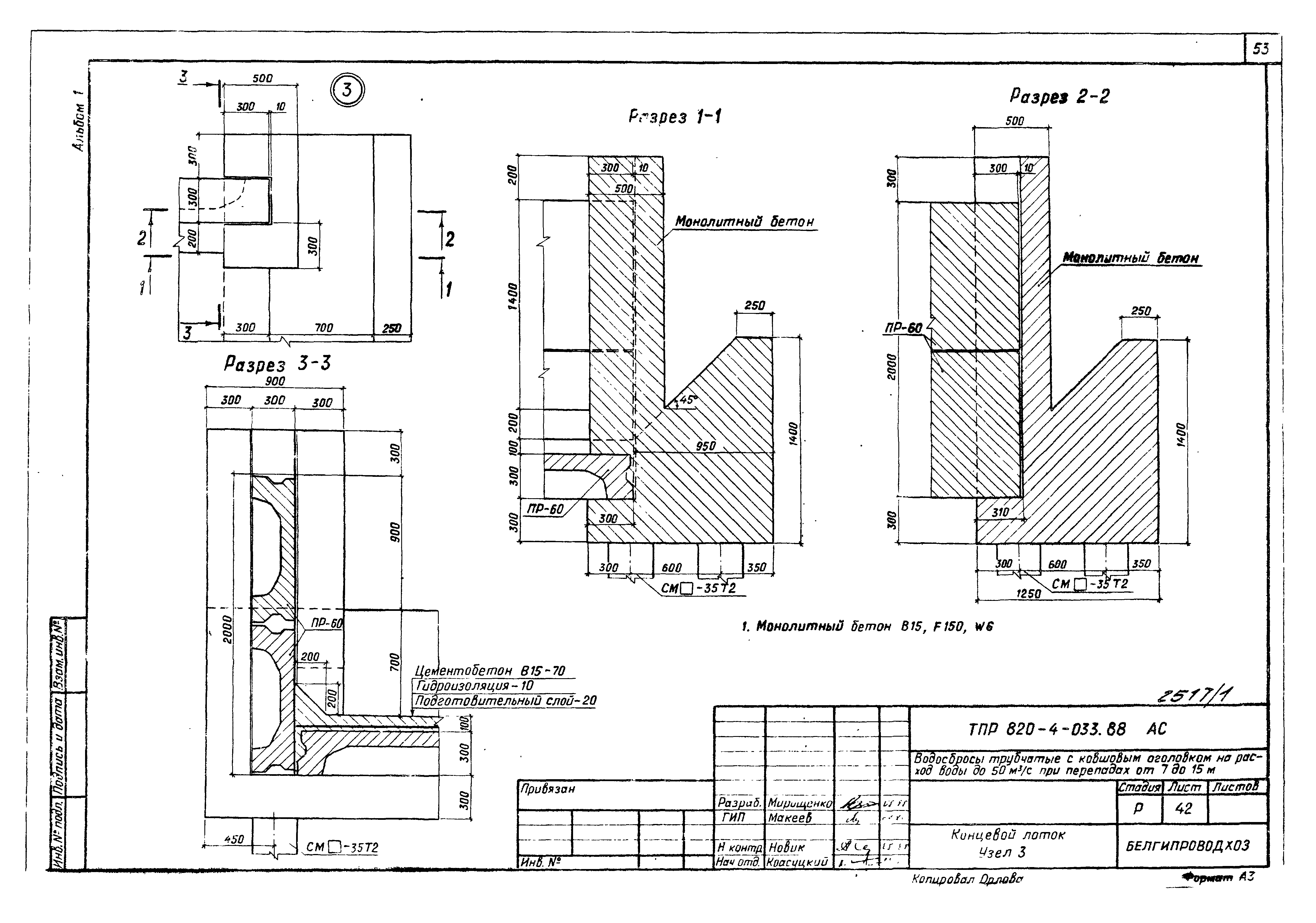
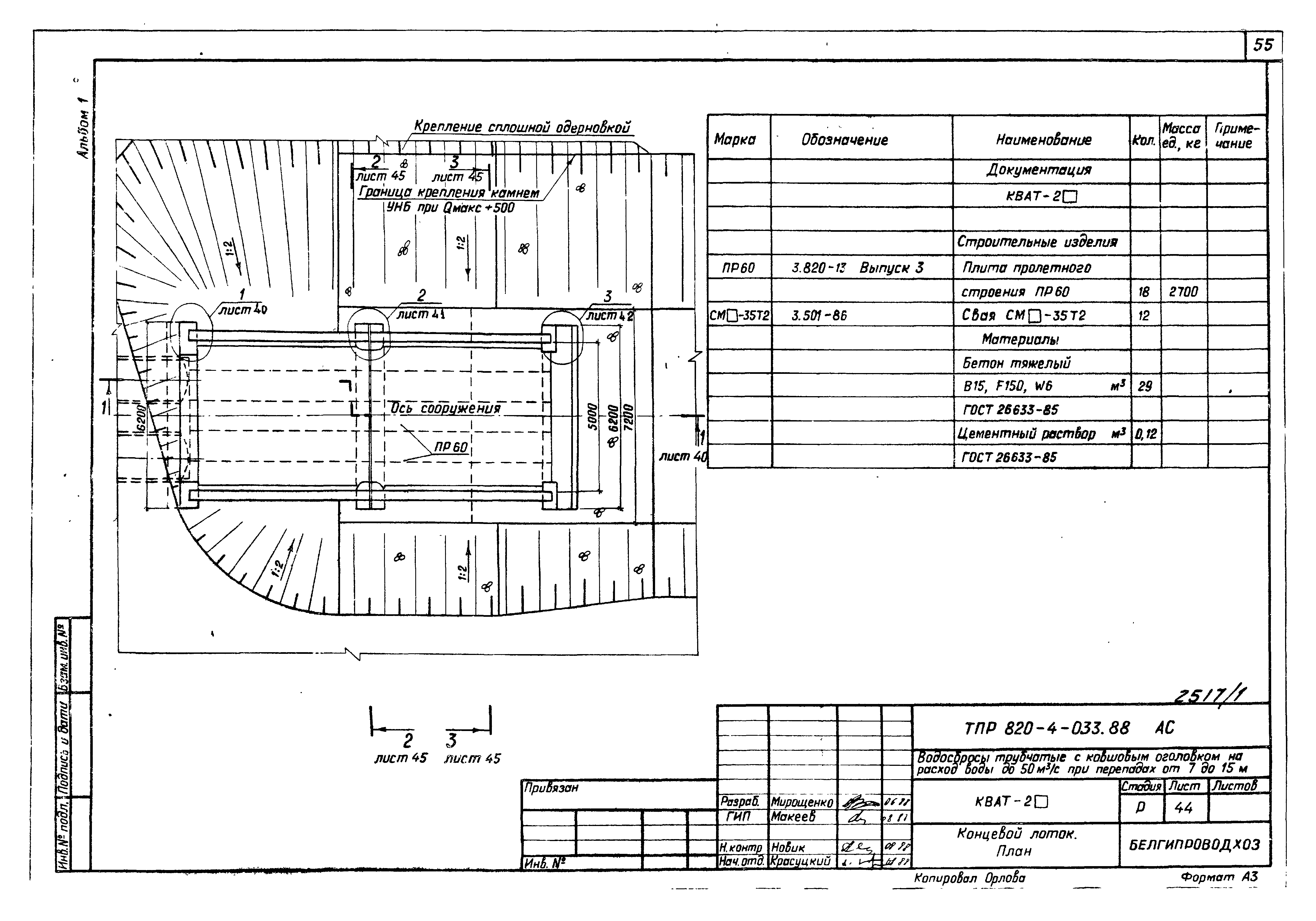
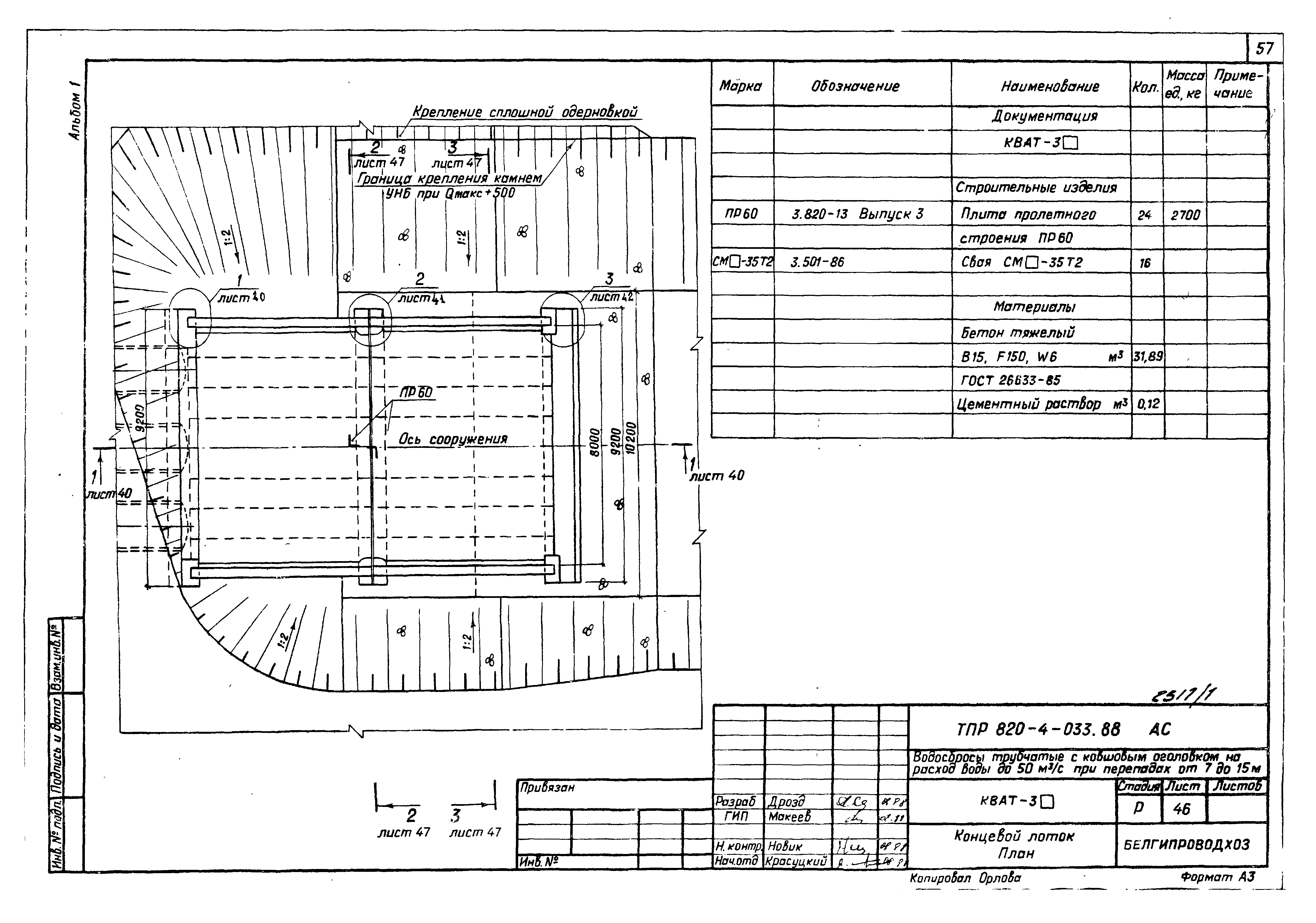
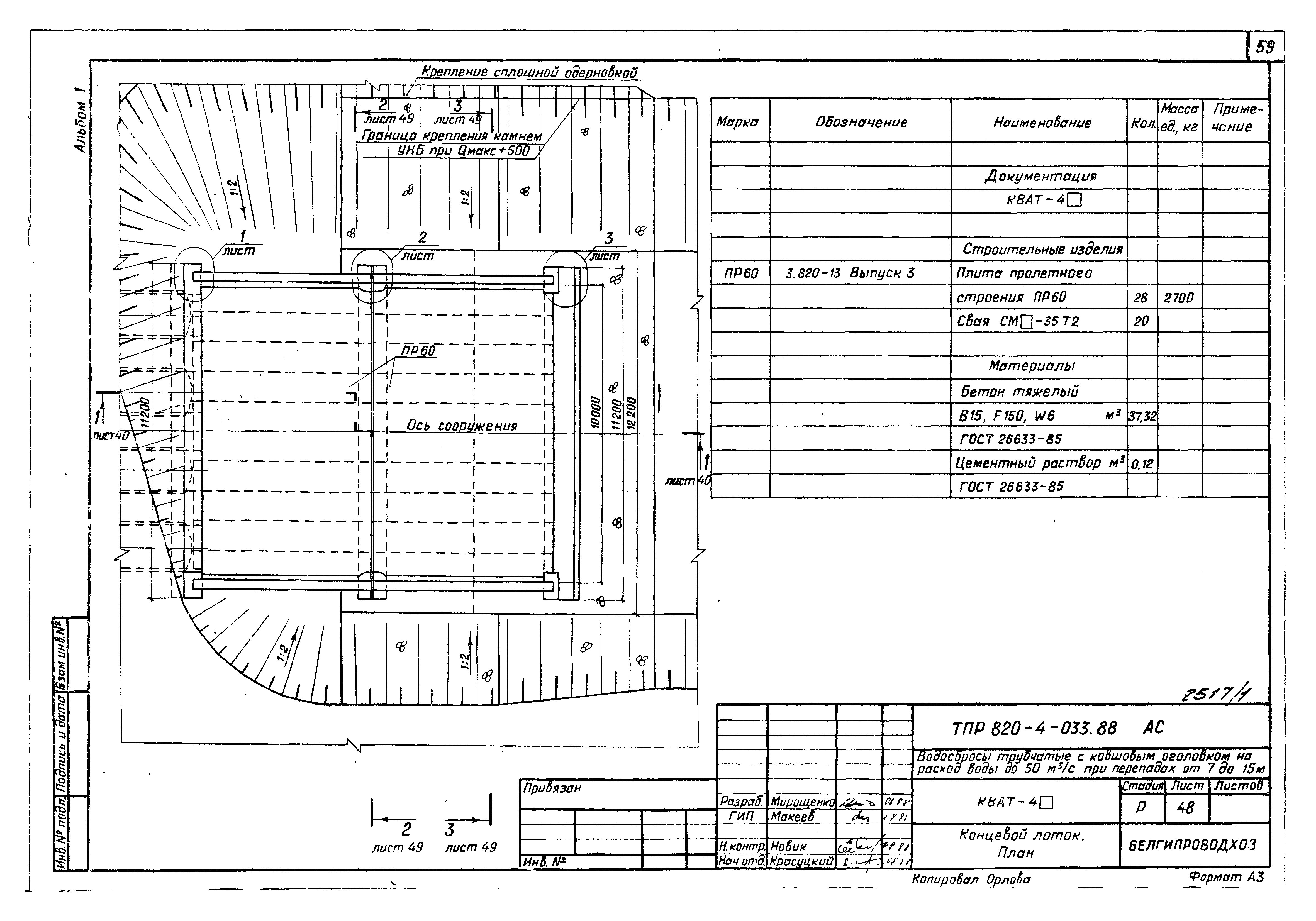
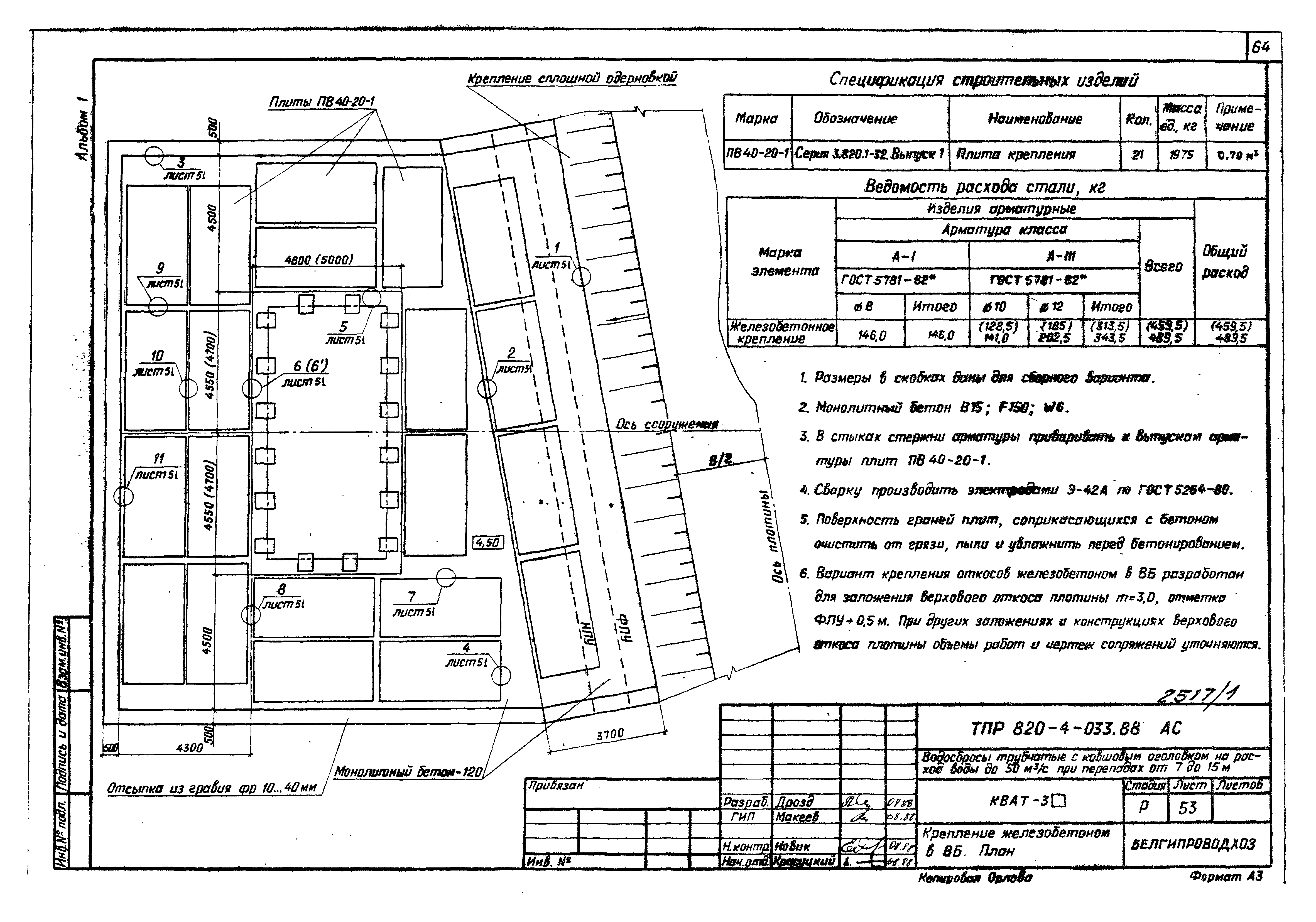
Скачать Типовые проектные решения 820-4-033.88 Альбом 1. Пояснительная записка, архитектурно-строительные решенияДата актуализации: 01.01.2021 Типовые проектные решения 820-4-033.88
Альбом 1. Пояснительная записка, архитектурно-строительные решения| Обозначение: | Типовые проектные решения 820-4-033.88 | | Обозначение англ: | 820-4-033.88 | | Статус: | справочные материалы, мп, тпр | | Название рус.: | Альбом 1. Пояснительная записка, архитектурно-строительные решения | | Дата добавления в базу: | 01.09.2013 | | Дата актуализации: | 01.01.2021 | | Дата введения: | 14.07.1988 | | Разработан: | Белгипроводхоз Минводхоза СССР
| | Утверждён: | 14.07.1988 Минводхоз СССР (USSR Minvodkhoz 778)
| | Принят: | Союзводпроект
| | Издан: | ЦИТП Госстроя СССР (CITP, Gosstroy (USSR) 1989 г. )
| | Заменяет собой: | |
                                                                          
|