Скачать Альбом СК 6101-2010 Дорожные конструкции для г. Москвы. Типовые конструкцииДата актуализации: 01.01.2021
|
| Обозначение: | Альбом СК 6101-2010 |
| Обозначение англ: | СК 6101-2010 |
| Статус: | не определен законодательством |
| Название рус.: | Дорожные конструкции для г. Москвы. Типовые конструкции |
| Дата добавления в базу: | 01.09.2013 |
| Дата актуализации: | 01.01.2021 |
| Дата введения: | 17.08.2010 |
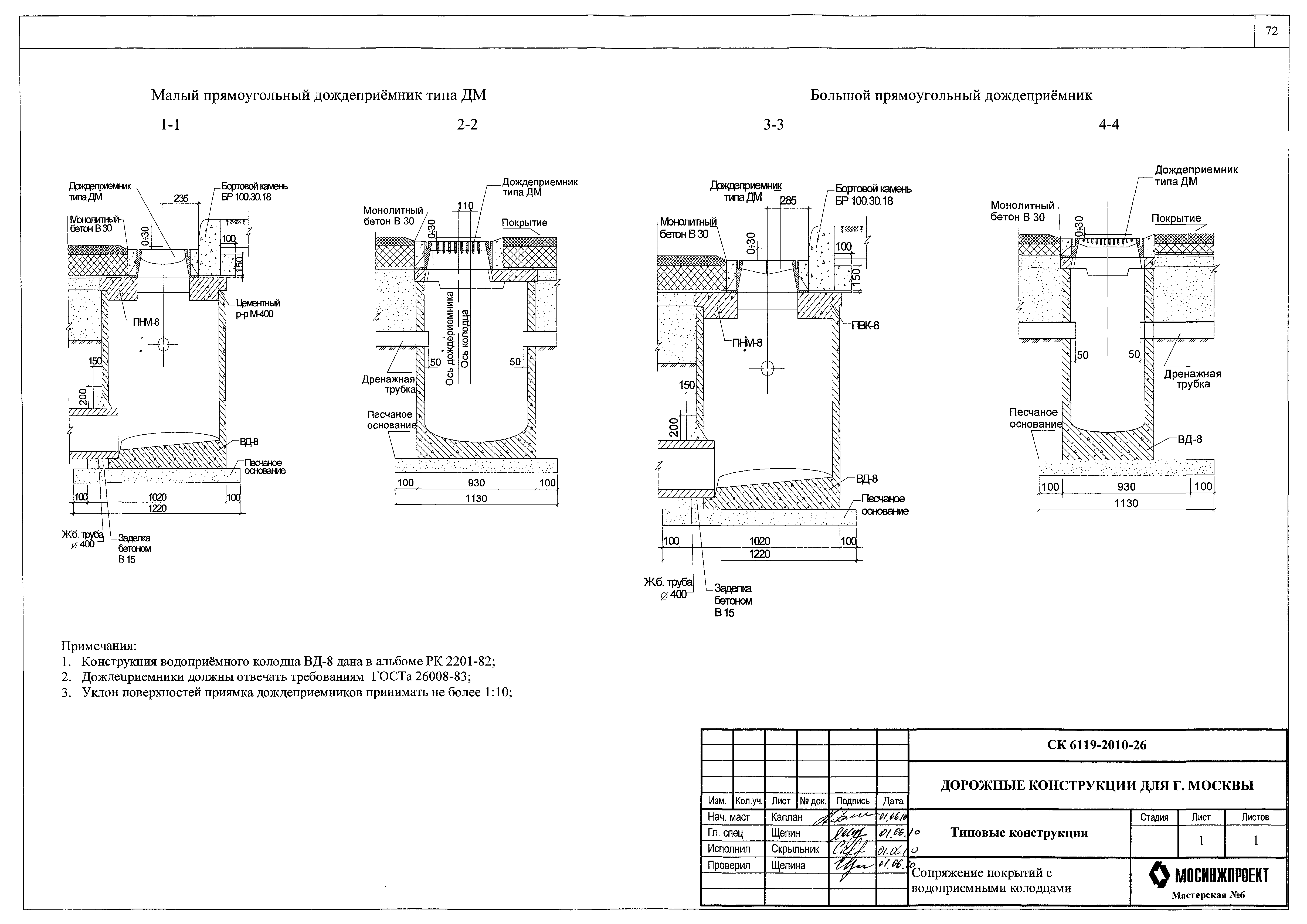
| Область применения: | В составе альбома СК 6101-2010 приведены типовые дорожные конструкции для улиц и дорог г. Москвы с рассмотрением вопросов земляного полотна и дорожных одежд |
| Разработан: | ГУП НИИМосстрой ГУП Мосинжпроект |
| Утверждён: | 06.10.2010 Правительство Москвы (Government of the City of Moscow ) 17.08.2010 Москомархитектура (Moskomarkhitektura ) |
| Принят: | 05.08.2010 УИТИ Москомархитектуры |














































































