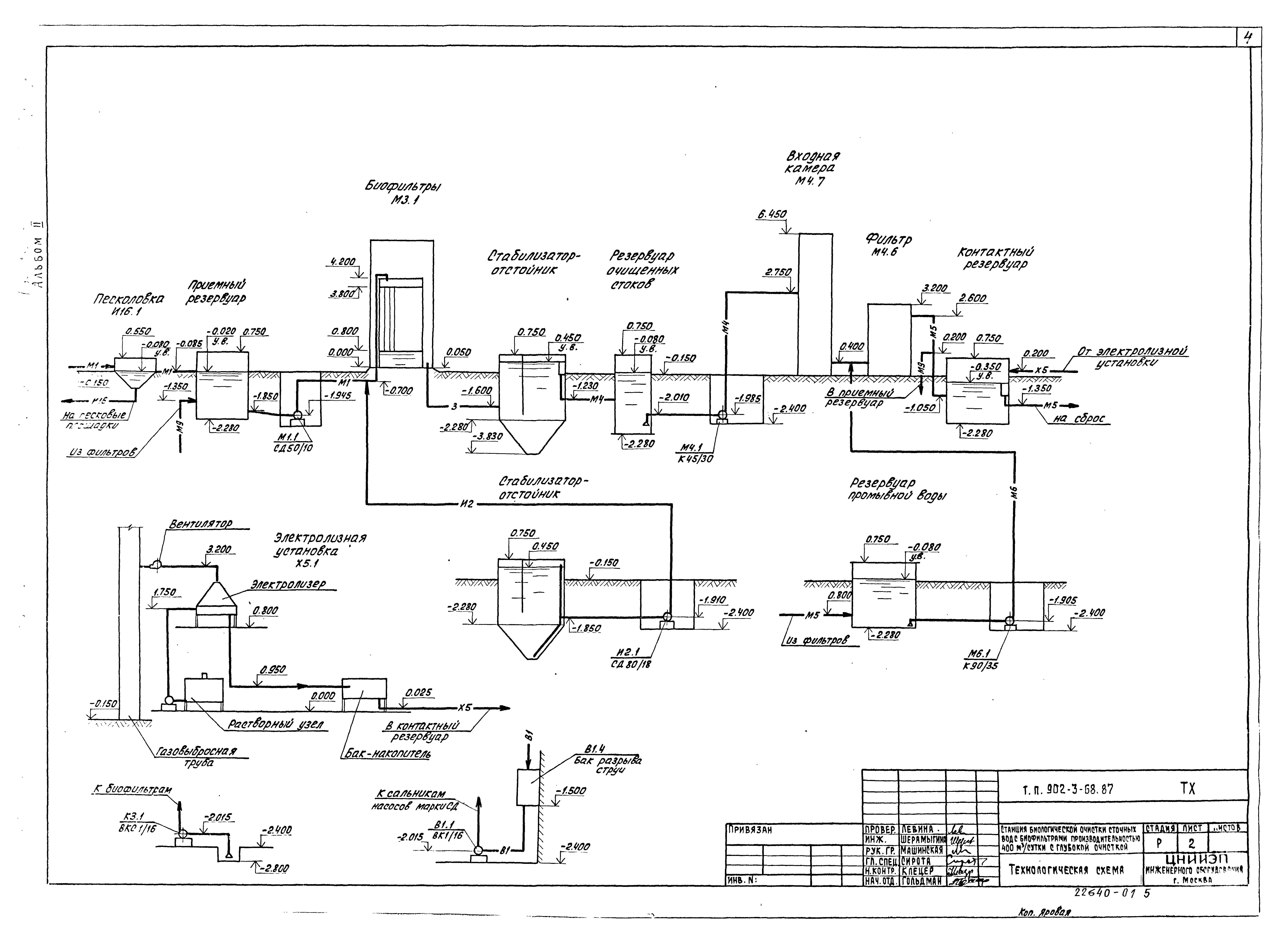
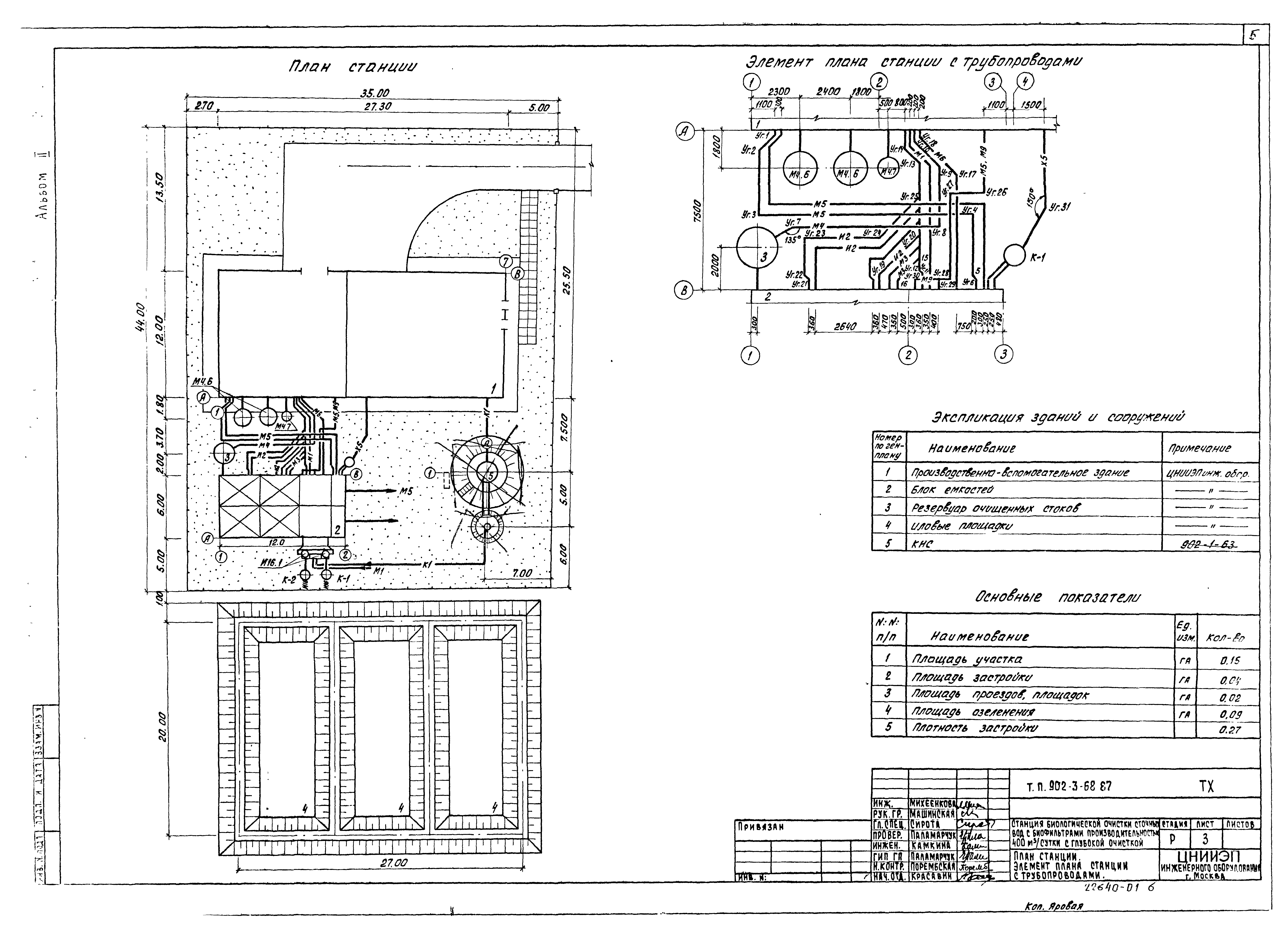
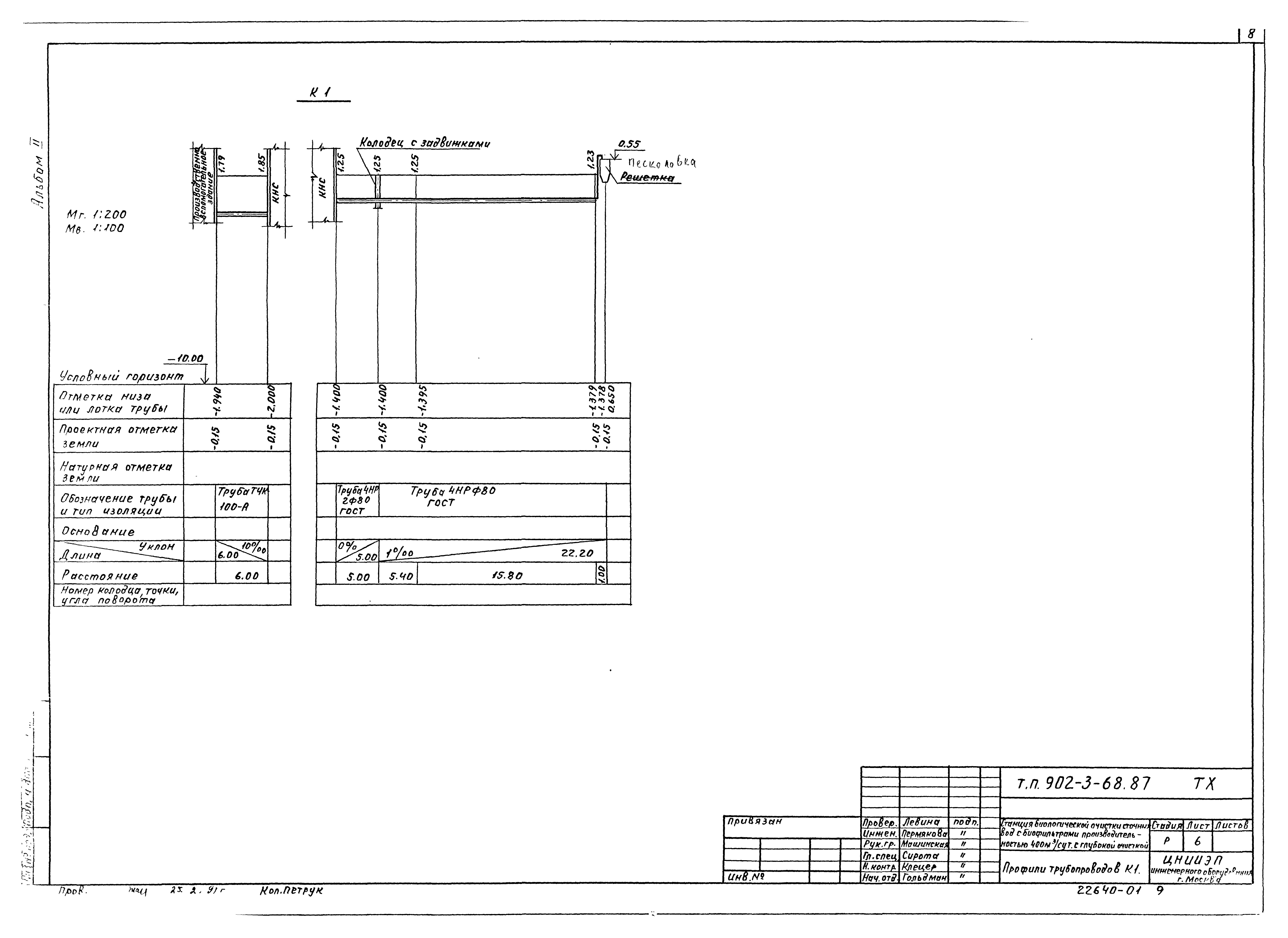
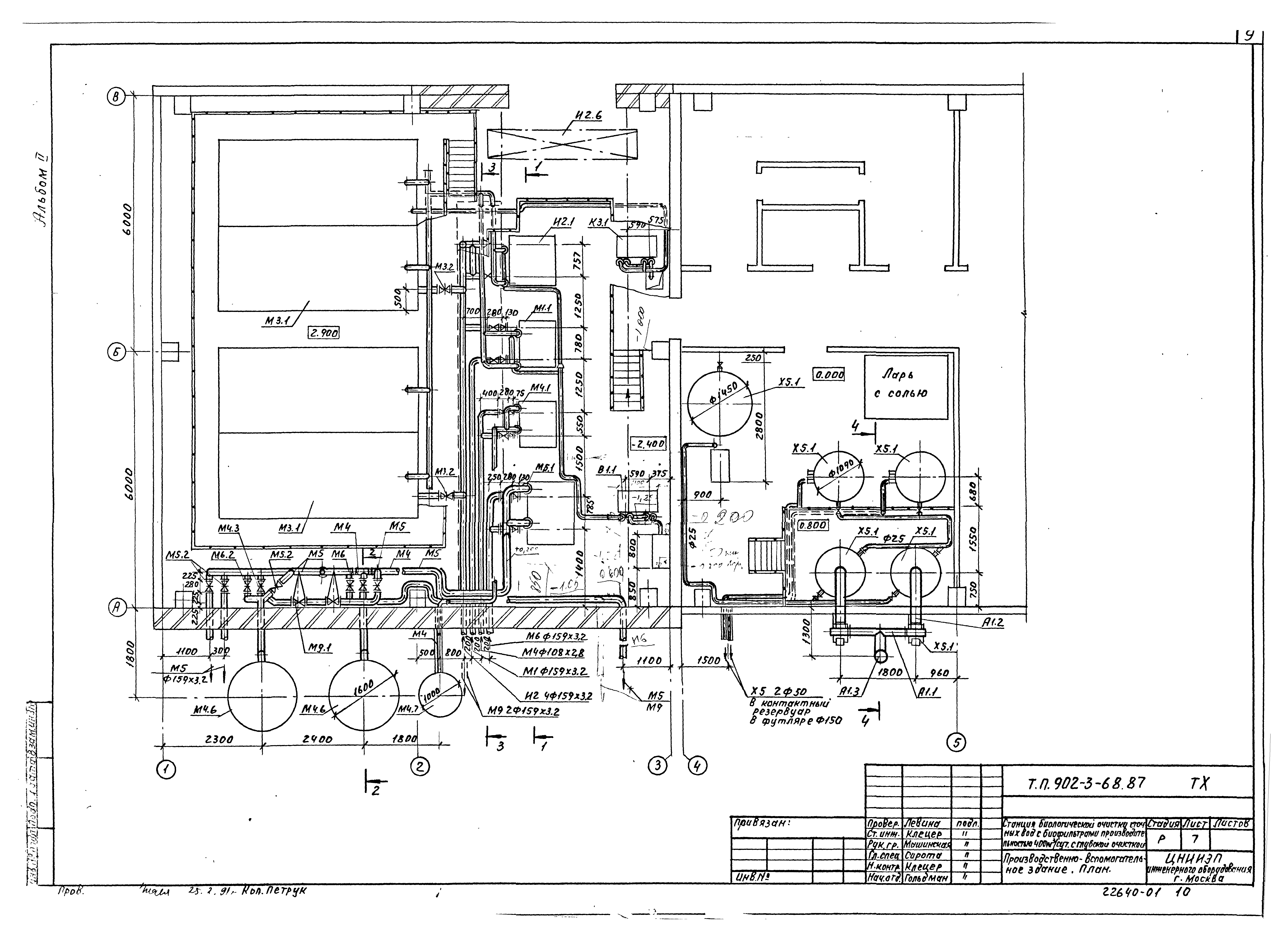
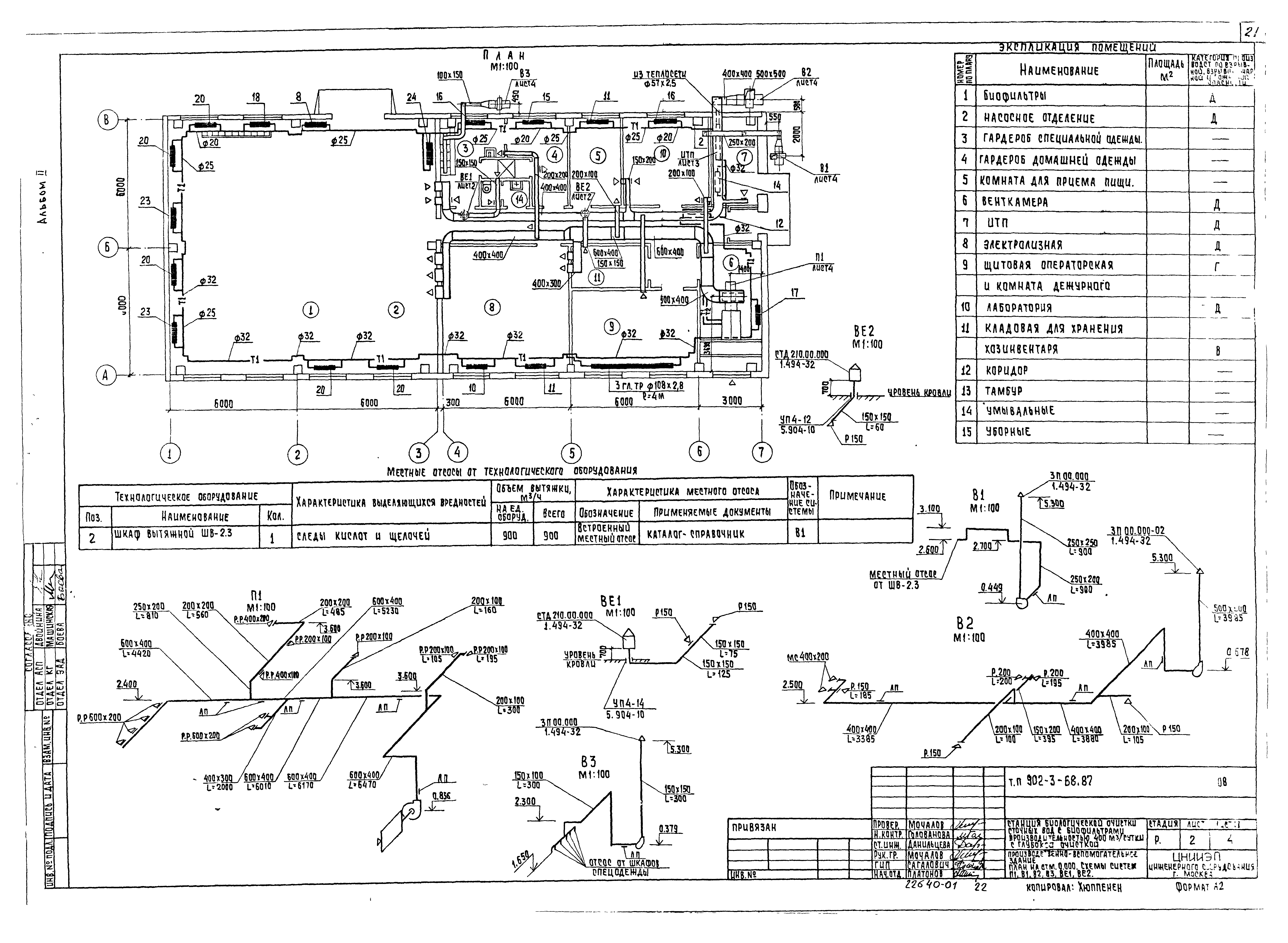
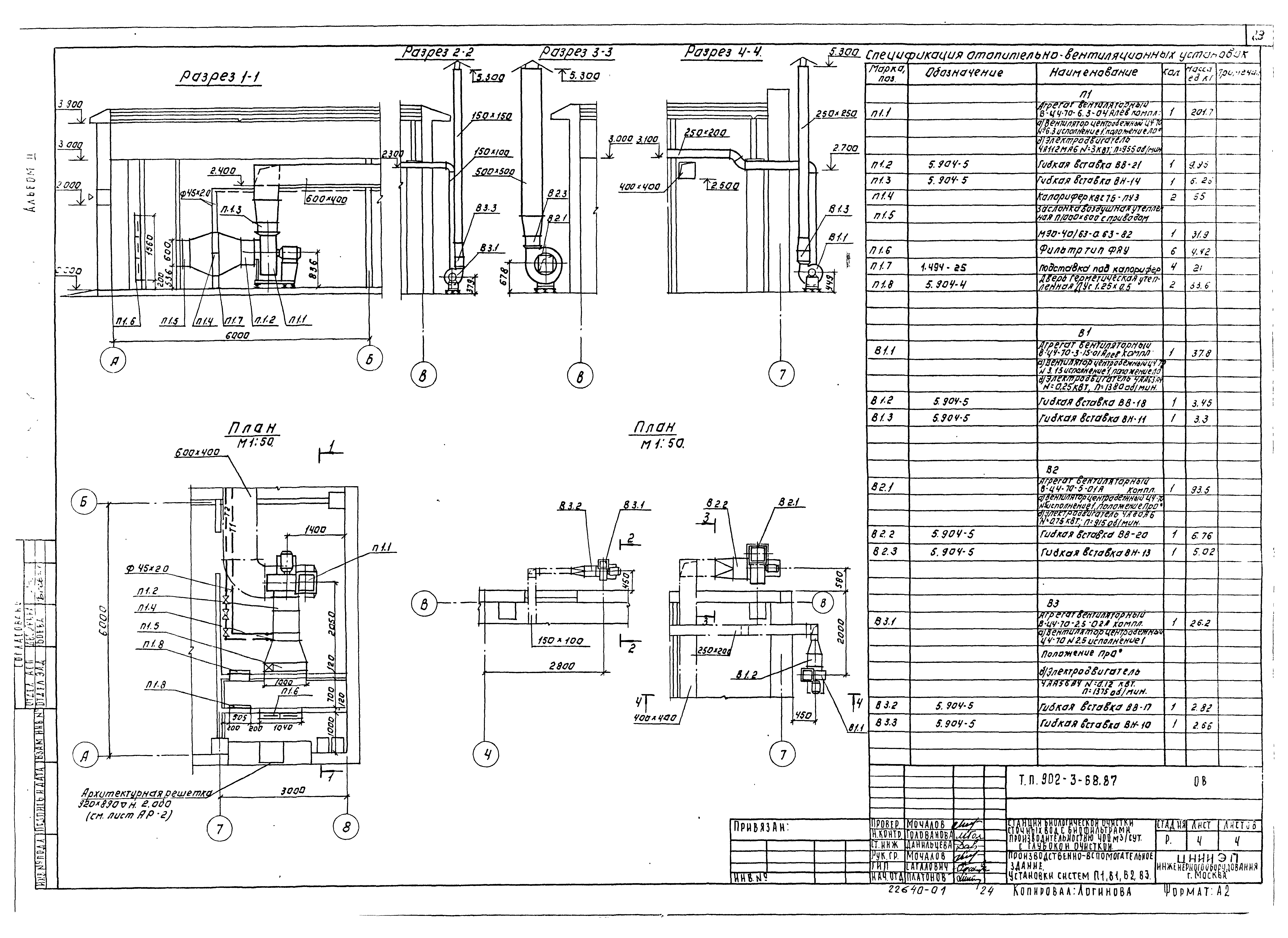
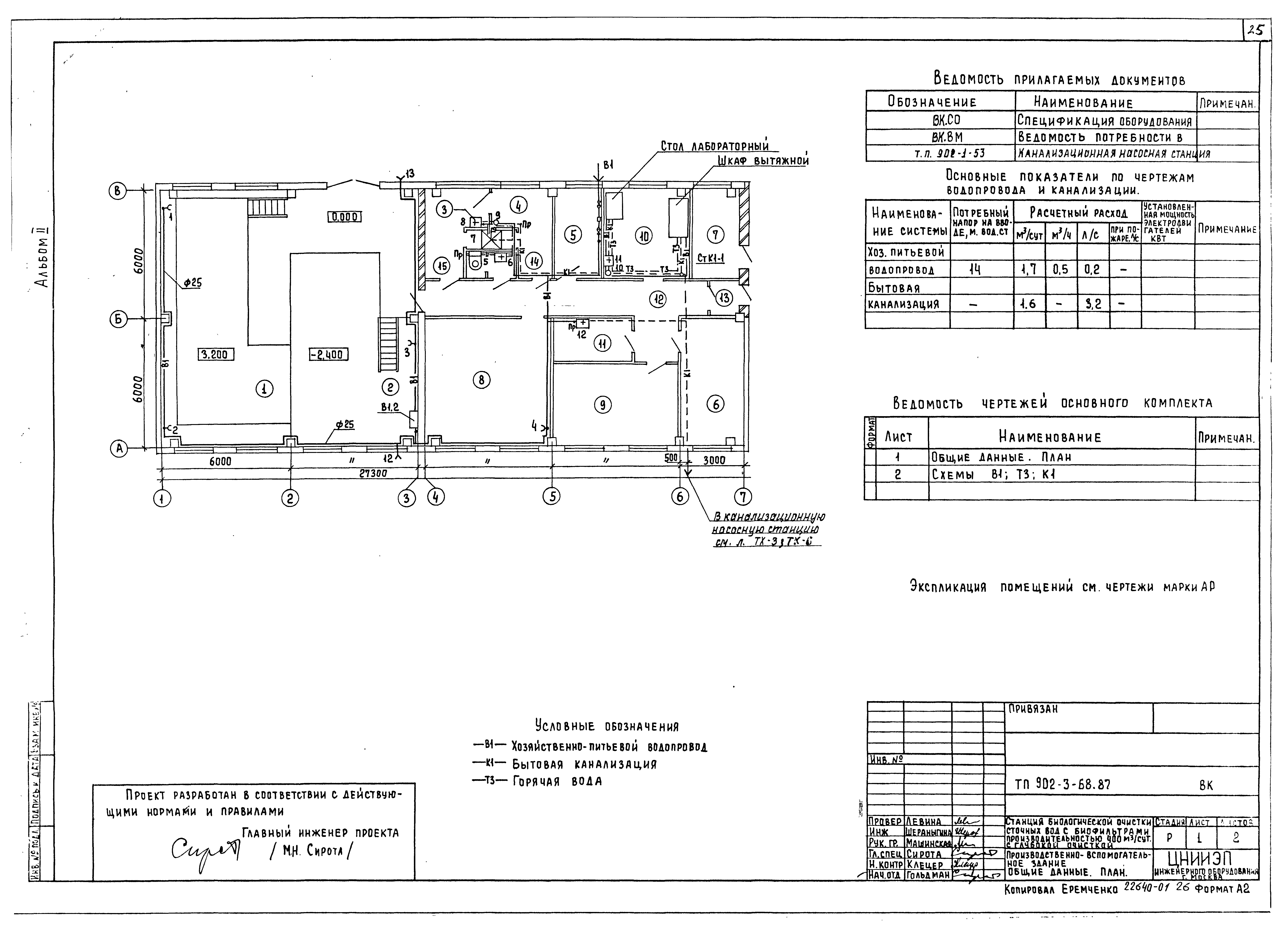
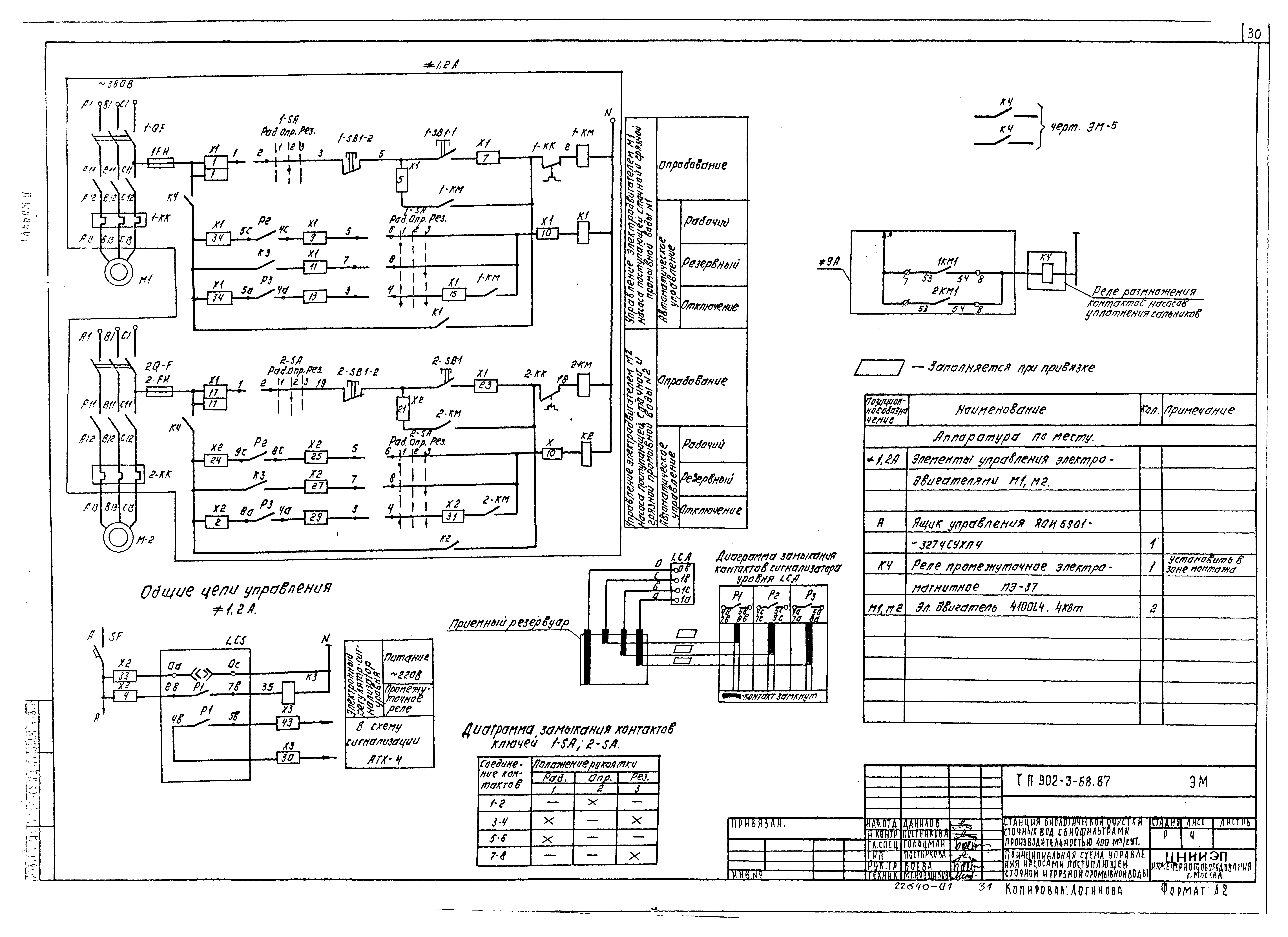
Скачать Типовой проект 902-3-68.87 Альбом II. Технологические, санитарно-технические и электротехнические решенияДата актуализации: 01.01.2021 Типовой проект 902-3-68.87
Альбом II. Технологические, санитарно-технические и электротехнические решения| Обозначение: | Типовой проект 902-3-68.87 | | Обозначение англ: | 902-3-68.87 | | Статус: | не определен законодательством | | Название рус.: | Альбом II. Технологические, санитарно-технические и электротехнические решения | | Дата добавления в базу: | 01.09.2013 | | Дата актуализации: | 01.01.2021 | | Дата введения: | 23.04.1986 | | Дата окончания срока действия: | 30.06.2003 | | Разработан: | ЦНИИЭП
| | Утверждён: | 23.04.1986 Госгражданстрой (Gosgrazhdanstroy 145)
| | Издан: | ГУП ЦПП (CPP GUP 1999 г. )
|
                                                  
|