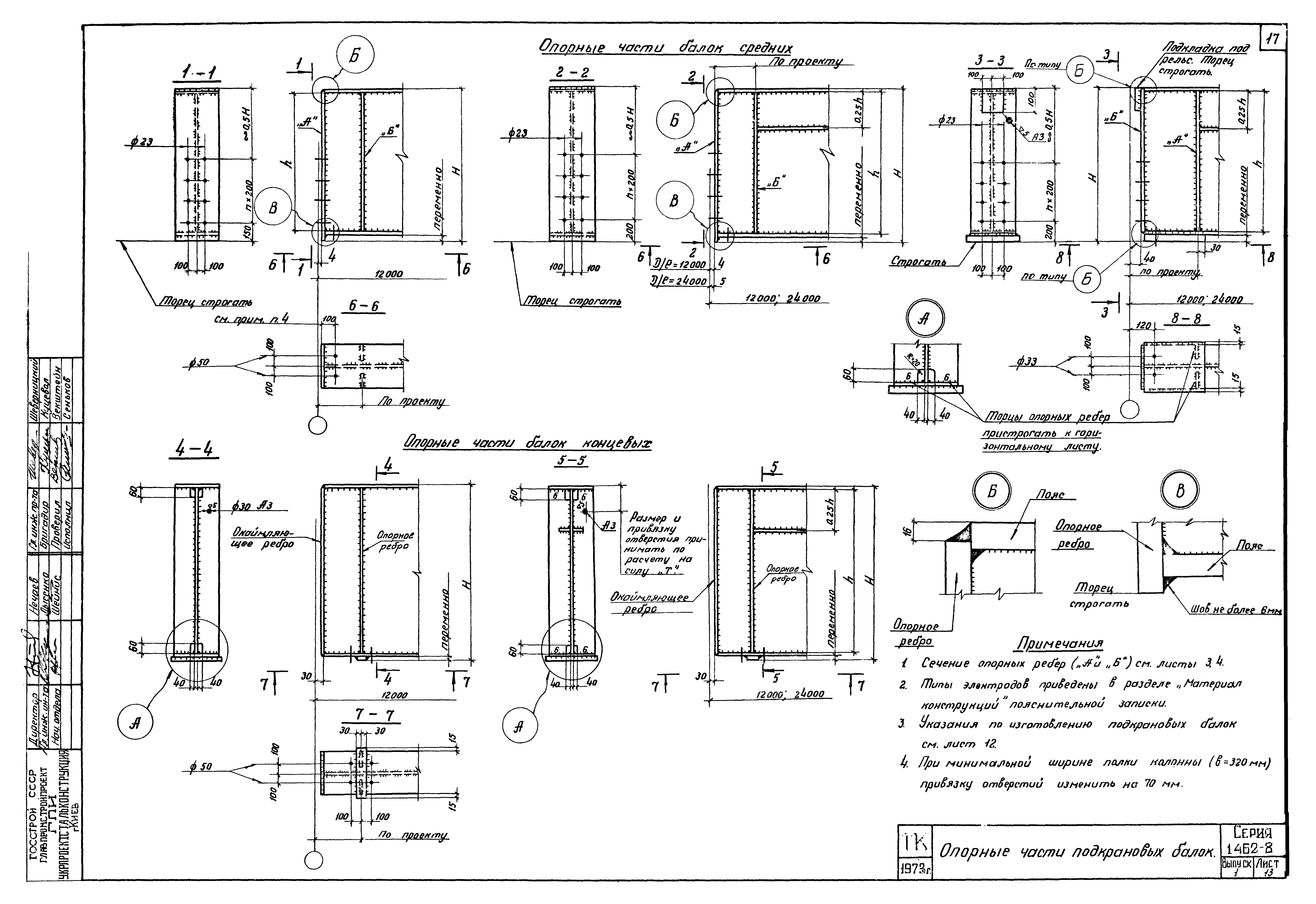
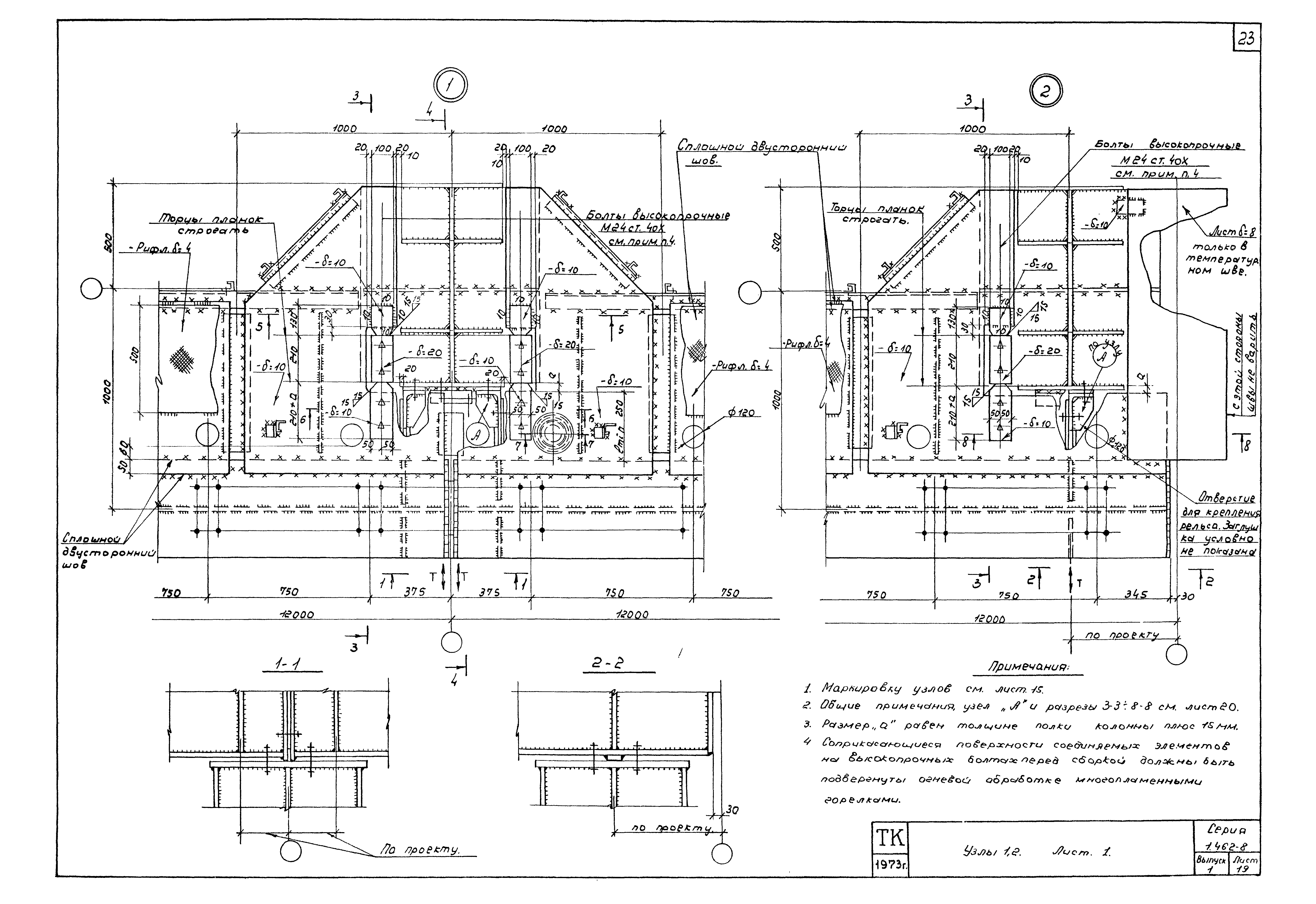
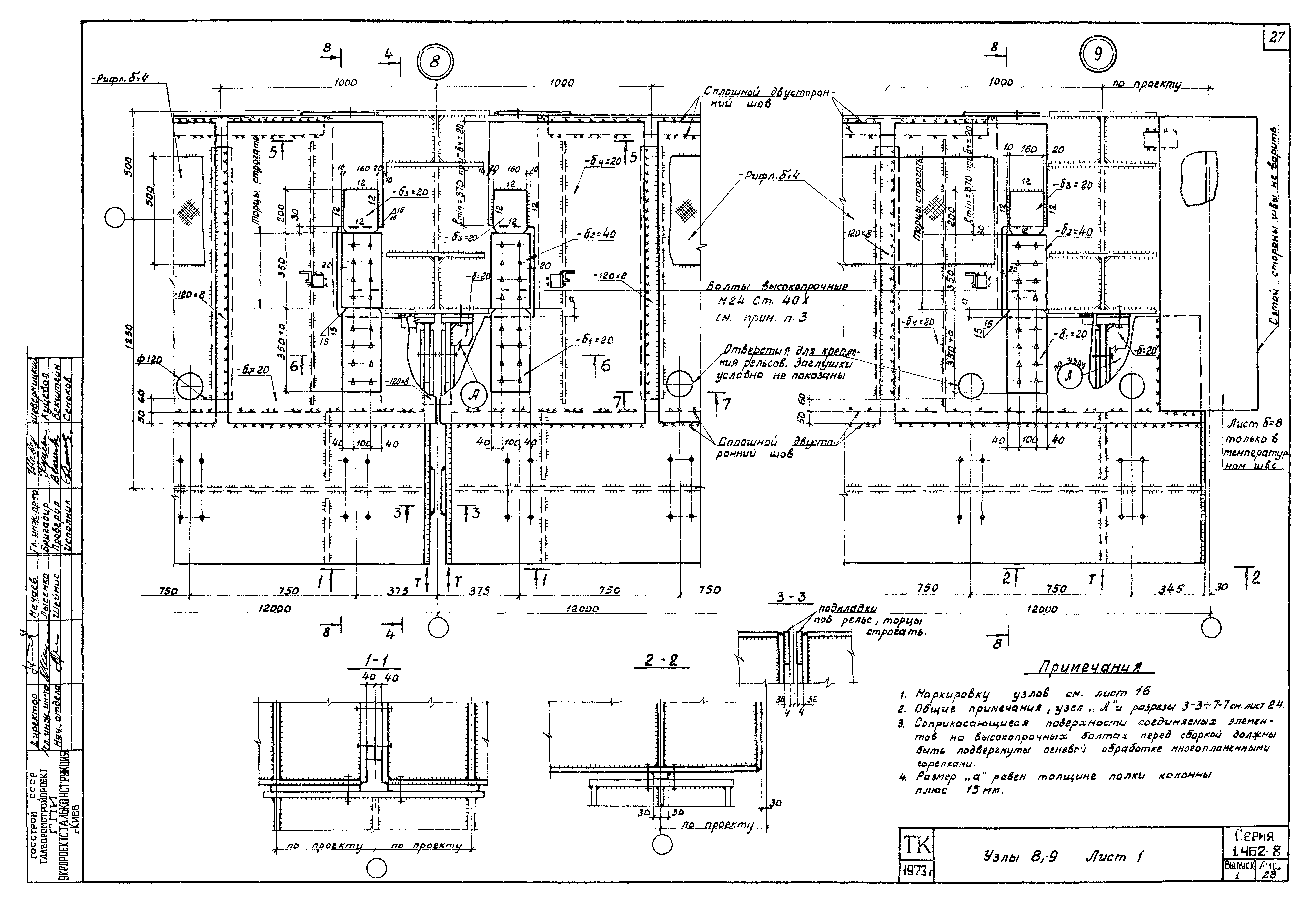
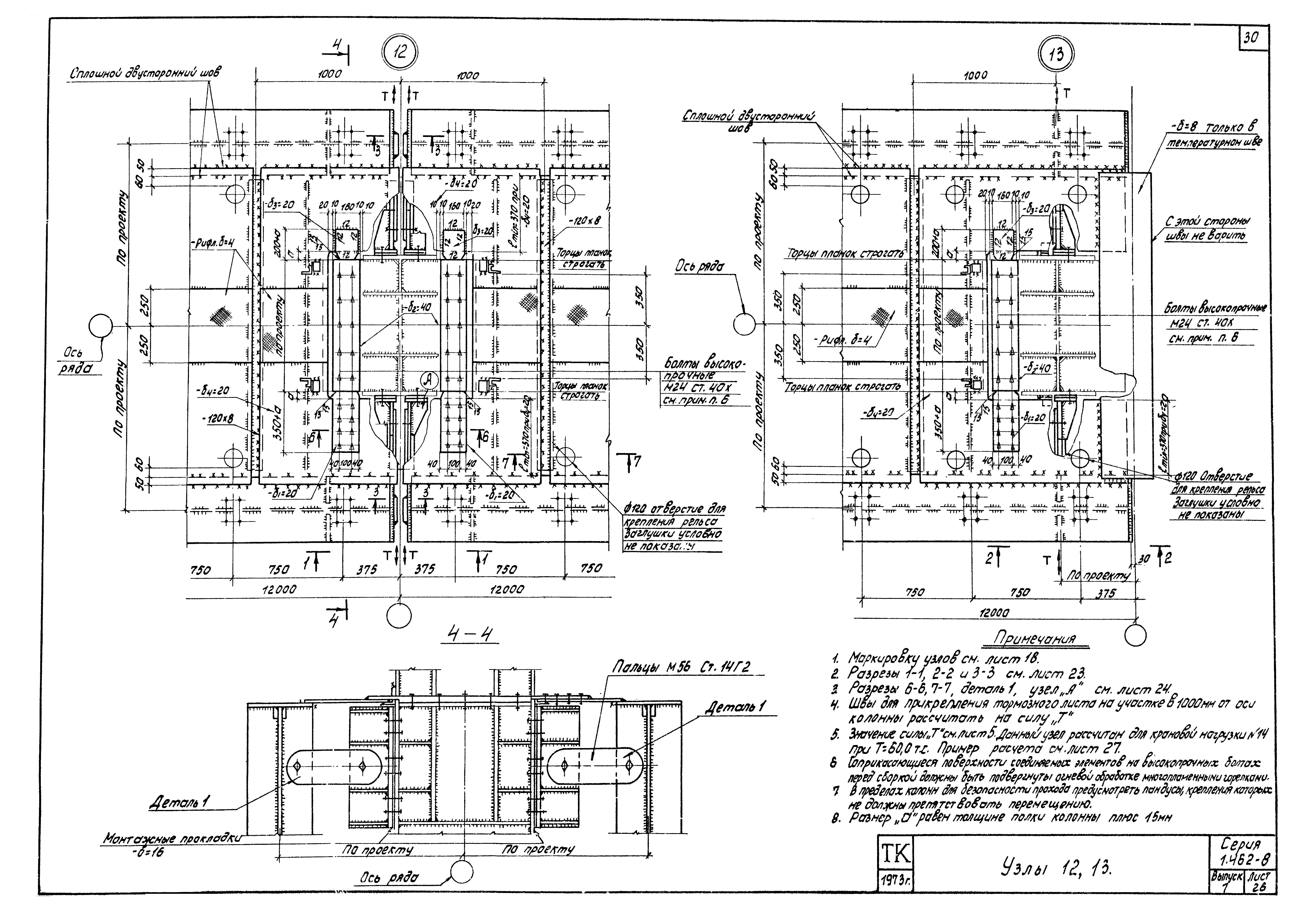
Скачать Серия 1.462-8 Выпуск 1. Разрезные подкрановые балки пролетами 12 и 24 мДата актуализации: 01.01.2021
|
| Обозначение: | Серия 1.462-8 |
| Обозначение англ: | Series 1.462-8 |
| Статус: | не действует |
| Название рус.: | Выпуск 1. Разрезные подкрановые балки пролетами 12 и 24 м |
| Дата добавления в базу: | 01.09.2013 |
| Дата актуализации: | 01.01.2021 |
| Дата окончания срока действия: | 01.02.1990 |
| Разработан: | Гипромез Минметаллургии СССР Укрпроектстальконструкция |
| Утверждён: | 10.05.1973 Госстрой СССР (Государственный комитет Совета Министров СССР по делам строительства) (USSR Gosstroy ) |
| Чем заменён: |



















































