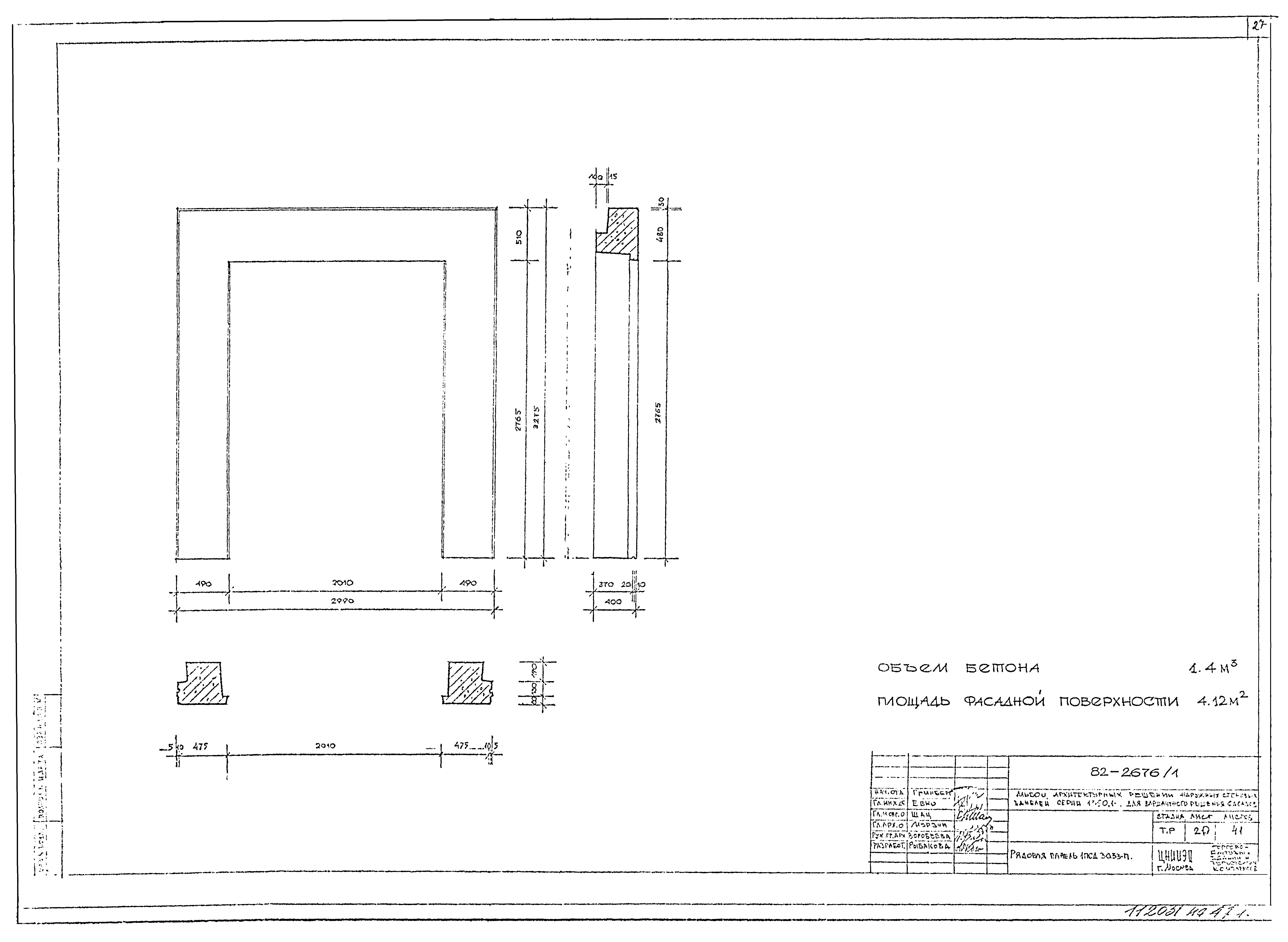
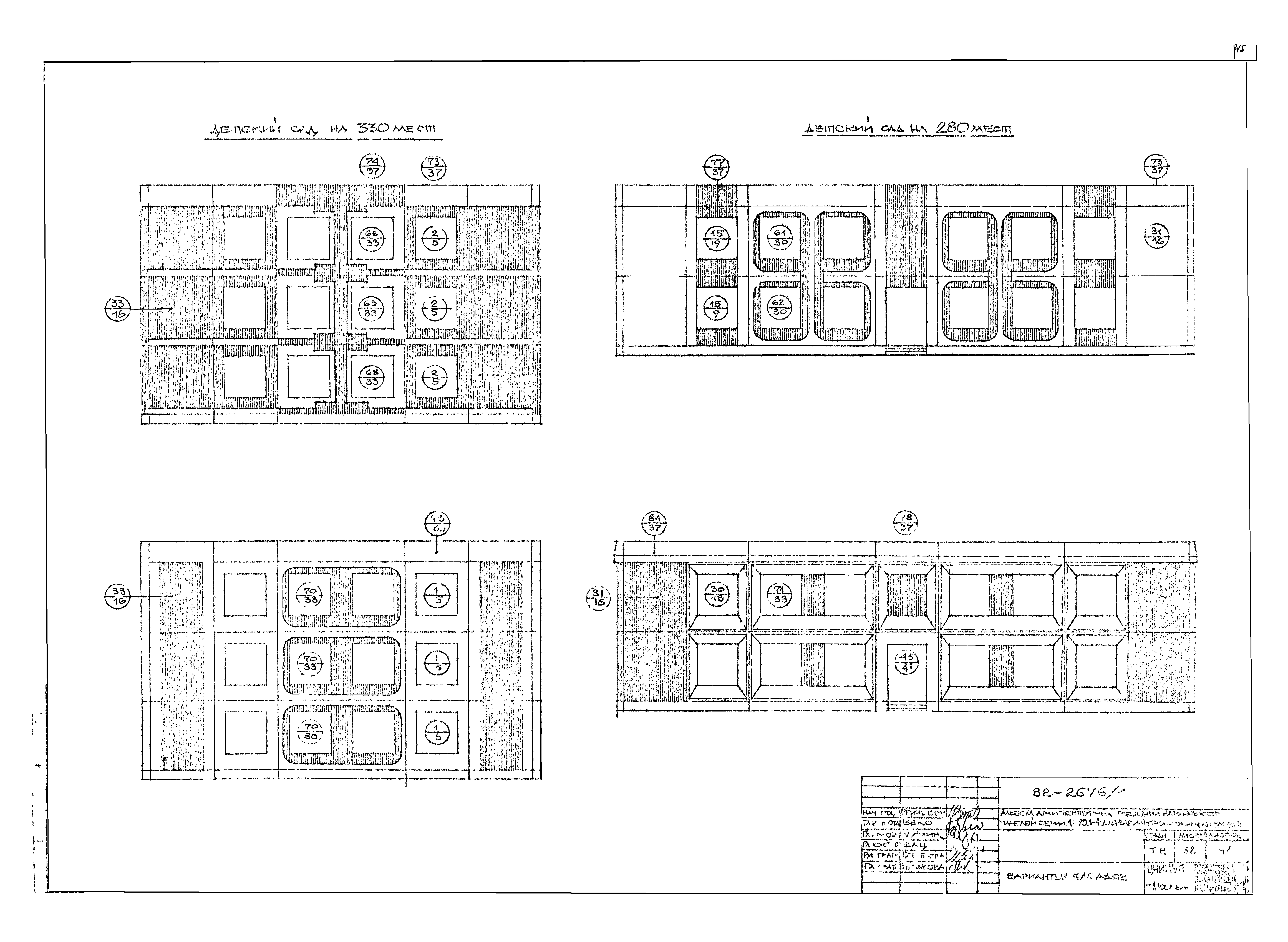
Скачать 82-2676 Альбом 1. Архитектурные решения наружных стеновых панелей серии 1.090.1-1 для вариантного решения фасадовДата актуализации: 01.01.2021 82-2676
Альбом 1. Архитектурные решения наружных стеновых панелей серии 1.090.1-1 для вариантного решения фасадов| Обозначение: | 82-2676 | | Обозначение англ: | 82-2676 | | Статус: | не действует | | Название рус.: | Альбом 1. Архитектурные решения наружных стеновых панелей серии 1.090.1-1 для вариантного решения фасадов | | Дата добавления в базу: | 01.09.2013 | | Дата актуализации: | 01.01.2021 | | Разработан: | ЦНИИЭП торгово-бытовых зданий и туристских комплексов
| | Утверждён: | 01.01.1982 Госстрой СССР (Государственный комитет Совета Министров СССР по делам строительства) (USSR Gosstroy )
|
                                              
|