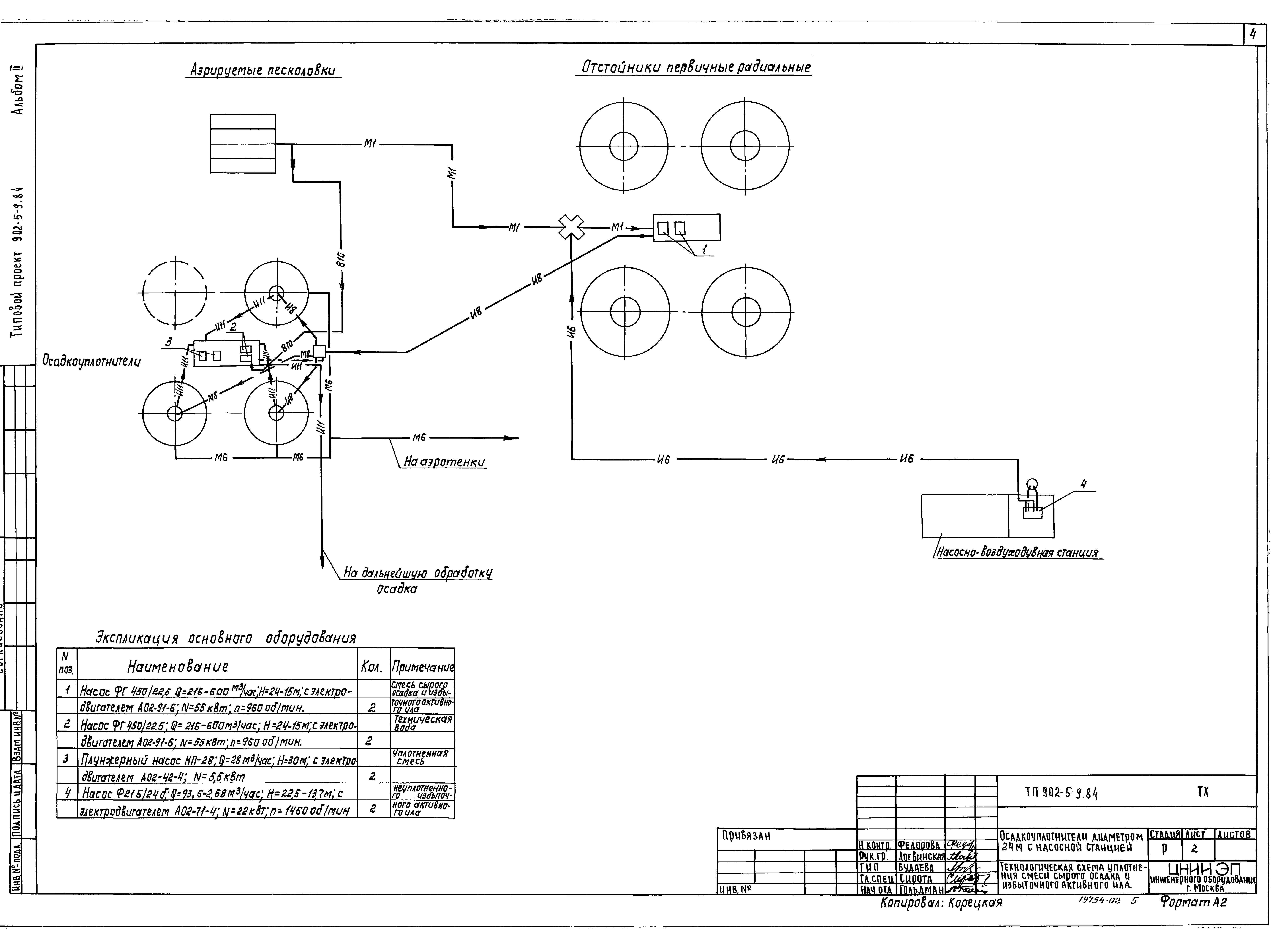
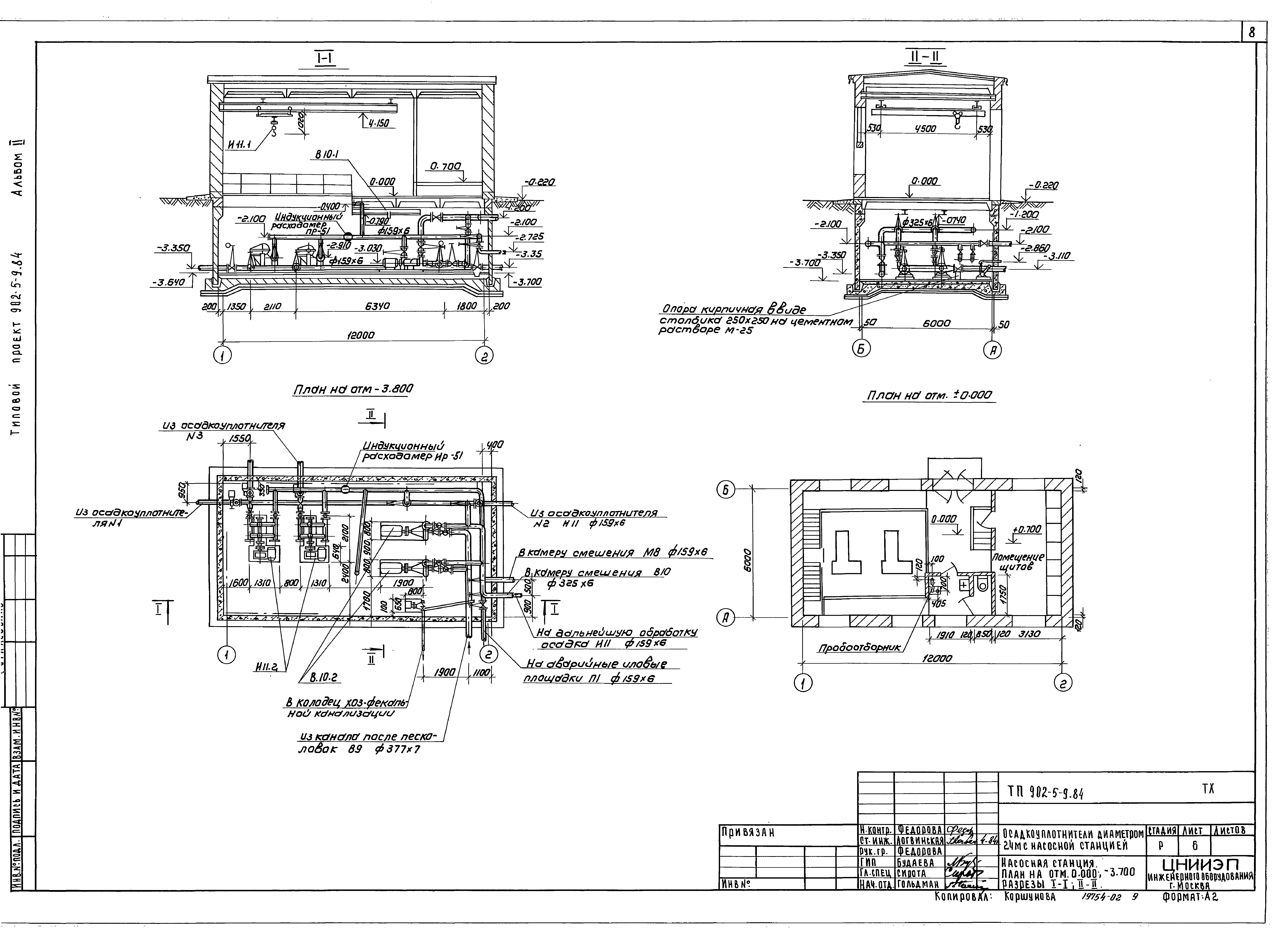
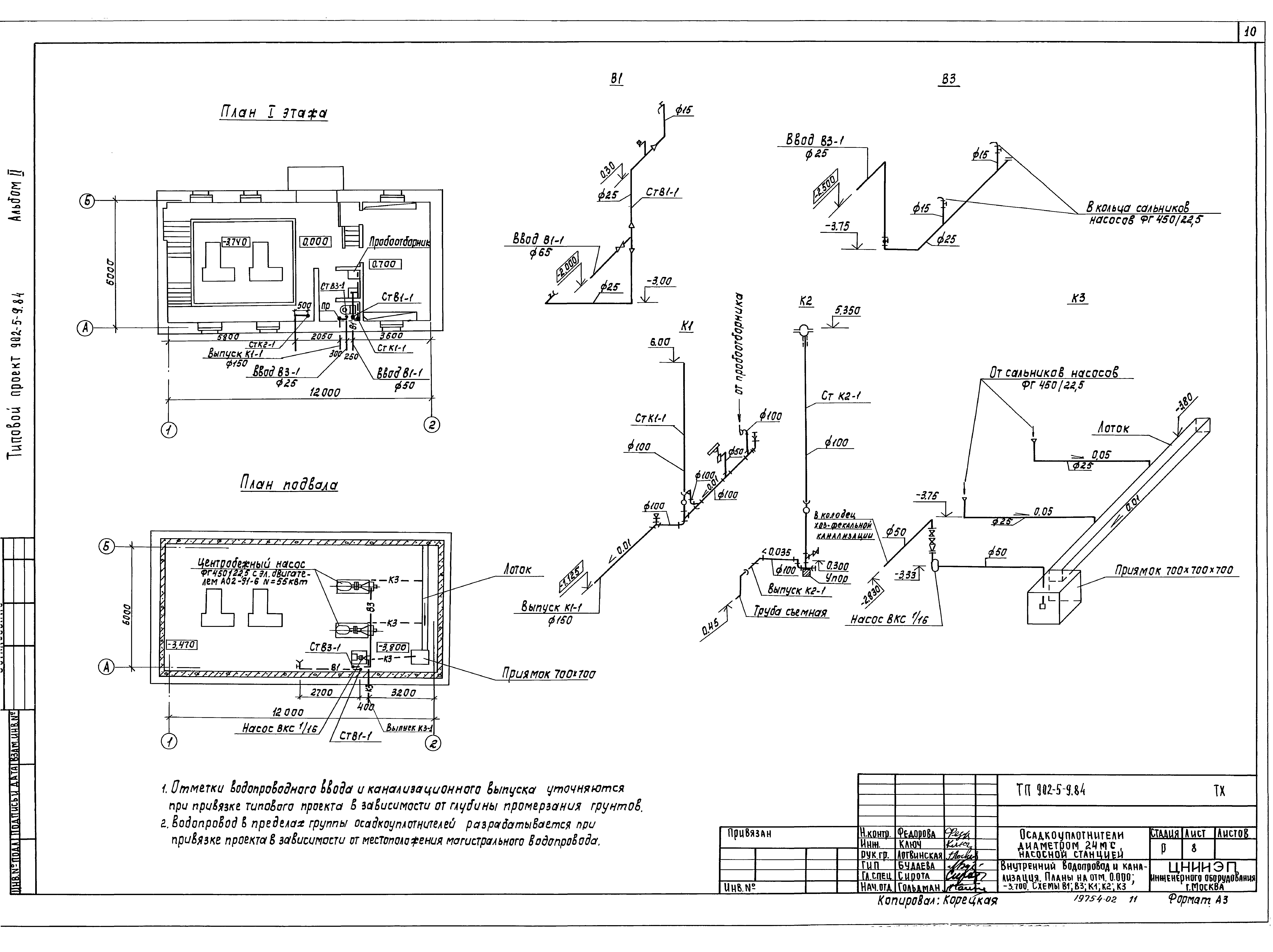
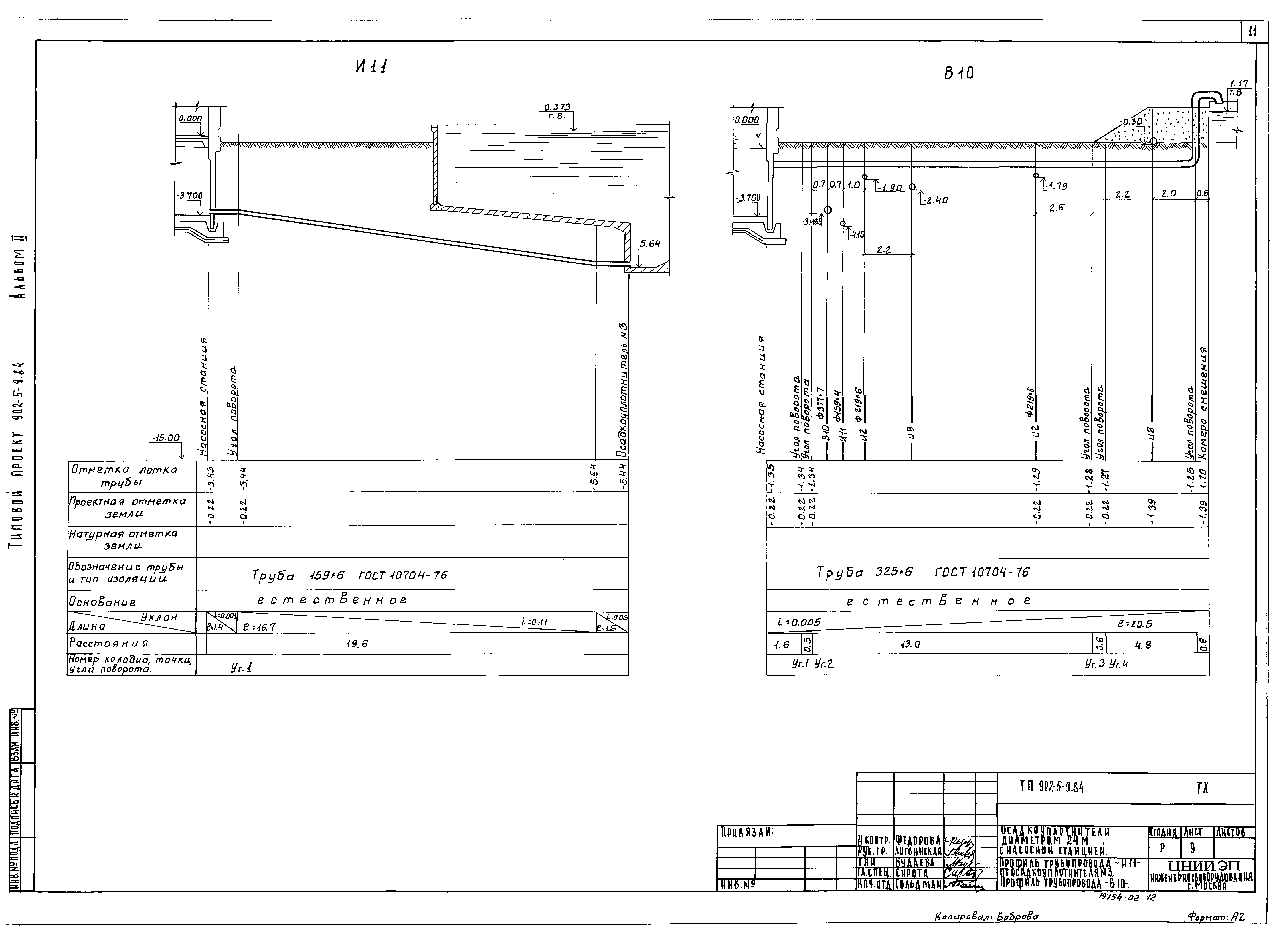
Скачать Типовой проект 902-5-9.84 Альбом II. Технологическая, санитарно-техническая и электротехническая частиДата актуализации: 01.01.2021 Типовой проект 902-5-9.84
Альбом II. Технологическая, санитарно-техническая и электротехническая части| Обозначение: | Типовой проект 902-5-9.84 | | Обозначение англ: | 902-5-9.84 | | Статус: | не определен законодательством | | Название рус.: | Альбом II. Технологическая, санитарно-техническая и электротехническая части | | Дата добавления в базу: | 01.09.2013 | | Дата актуализации: | 01.01.2021 | | Дата введения: | 25.04.1984 | | Дата окончания срока действия: | 30.06.2003 | | Разработан: | ЦНИИЭП инженерного оборудования
| | Утверждён: | 14.02.1984 Госгражданстрой (Gosgrazhdanstroy 47)
|
                                     
|