Скачать ПКО-2010.3 Руководство по внедрению ГОСТ Р 21.1101-2009 в части правил внесения изменений в рабочую и проектную документацию, переданную заказчикуДата актуализации: 01.01.2021
|
| Обозначение: | ПКО-2010.3 |
| Обозначение англ: | ПКО-2010.3 |
| Статус: | действует |
| Название рус.: | Руководство по внедрению ГОСТ Р 21.1101-2009 в части правил внесения изменений в рабочую и проектную документацию, переданную заказчику |
| Дата добавления в базу: | 01.09.2013 |
| Дата актуализации: | 01.01.2021 |
| Область применения: | Руководство определяет порядок применения ГОСТ Р 21.1101-2009 в части правил внесения изменений для электротехнической части рабочей и проектной документации. |
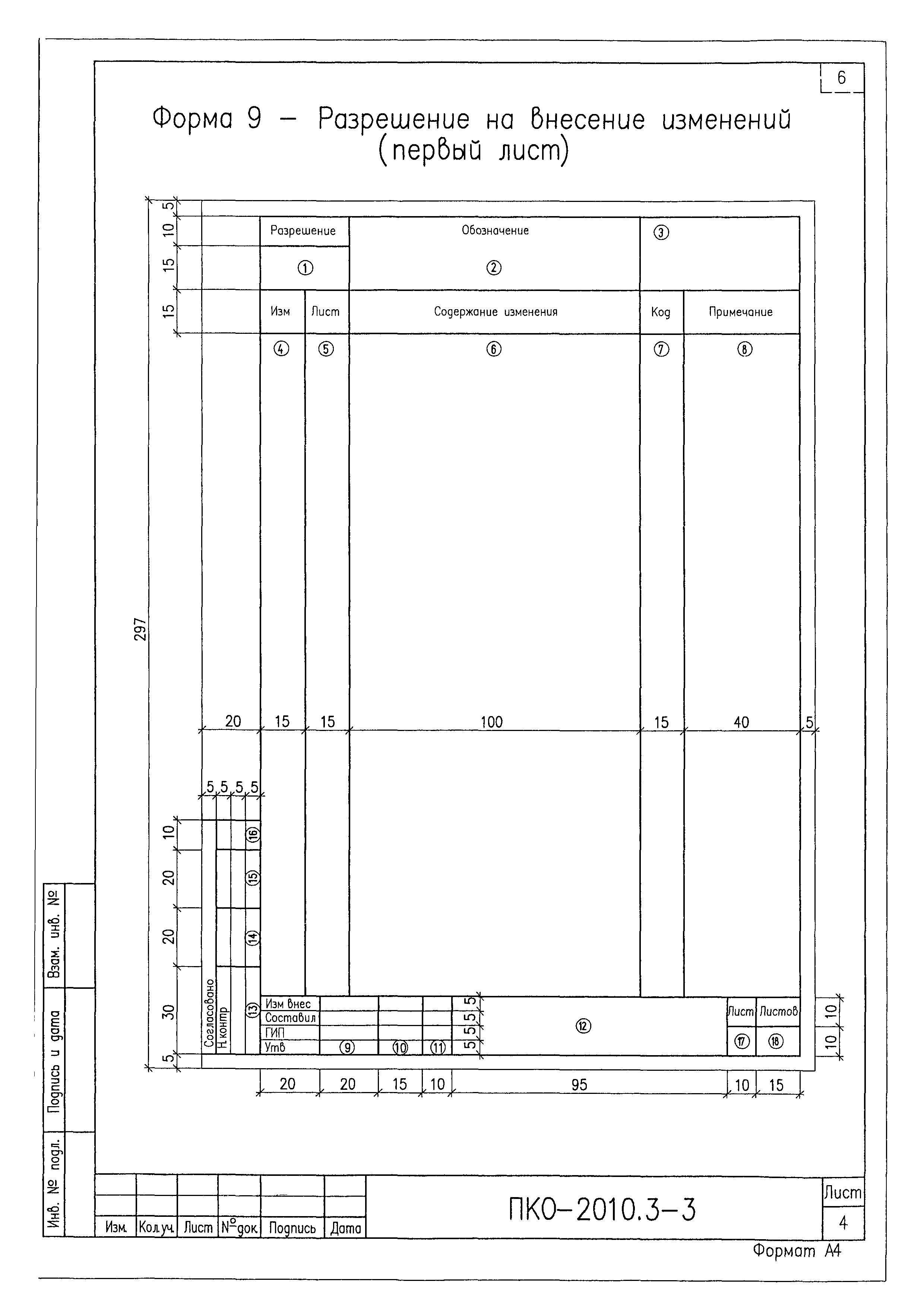
| Оглавление: | Содержание Общие положения. Разрешение на внесение изменений Внесение изменений в рабочую документацию Внесение изменений в проектную документацию Приложение А |
| Разработан: | ОАО НИПИ Тяжпромэлектропроект |
| Утверждён: | ОАО НИПИ Тяжпромэлектропроект |
| Нормативные ссылки: |





























