Скачать Серия 3.900-2 Выпуск 2. Панели стеновые высотой 1200 - 6000 мм (градация через 600 мм) и панели перегородчатые высотой 3600, 4200 и 4800 мм для прямоугольных сооружений. Рабочие чертежиДата актуализации: 01.01.2021
|
| Обозначение: | Серия 3.900-2 |
| Обозначение англ: | Series 3.900-2 |
| Статус: | заменен |
| Название рус.: | Выпуск 2. Панели стеновые высотой 1200 - 6000 мм (градация через 600 мм) и панели перегородчатые высотой 3600, 4200 и 4800 мм для прямоугольных сооружений. Рабочие чертежи |
| Дата добавления в базу: | 01.09.2013 |
| Дата актуализации: | 01.01.2021 |
| Дата введения: | 01.10.1968 |
| Дата окончания срока действия: | 01.10.1978 |
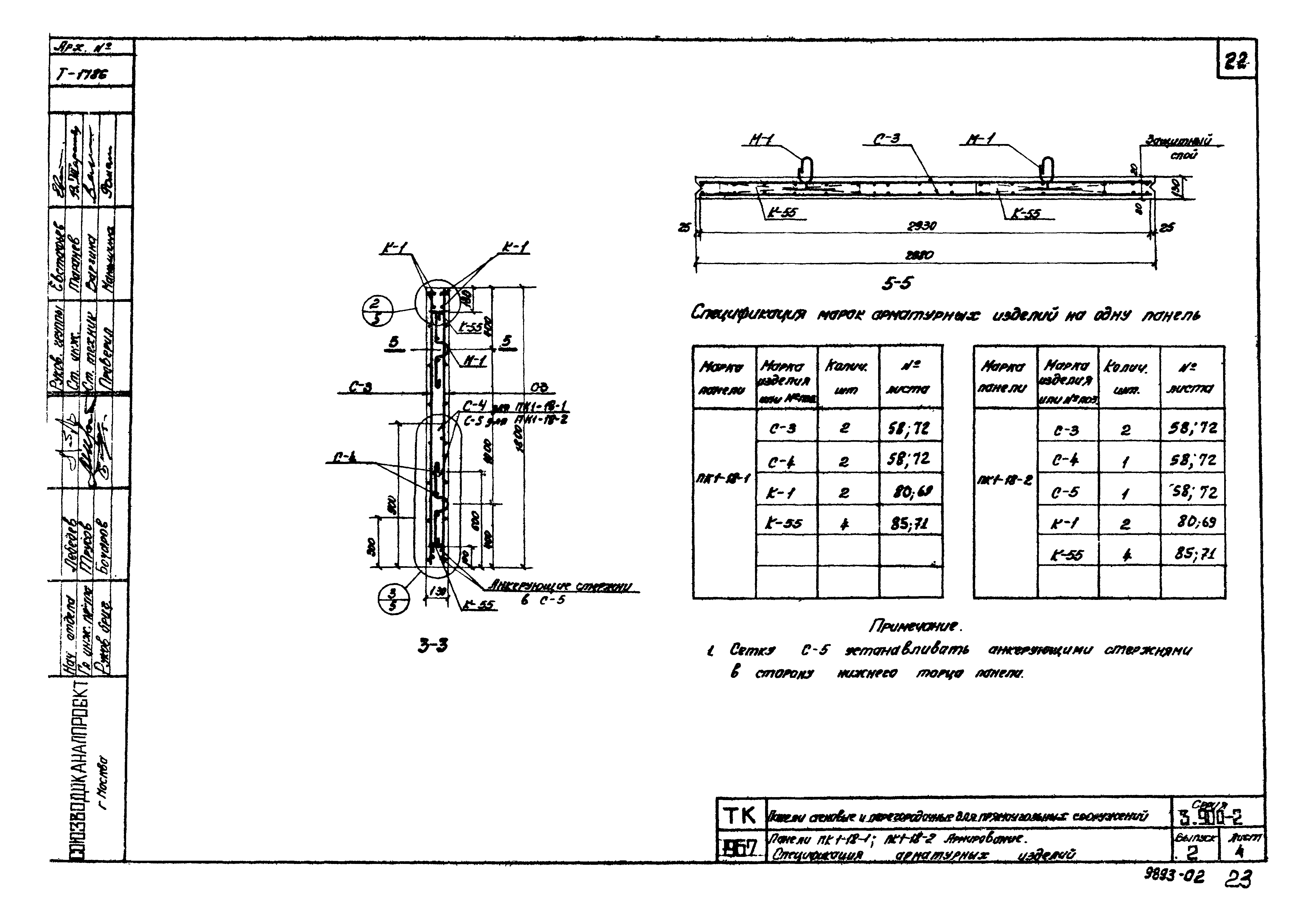
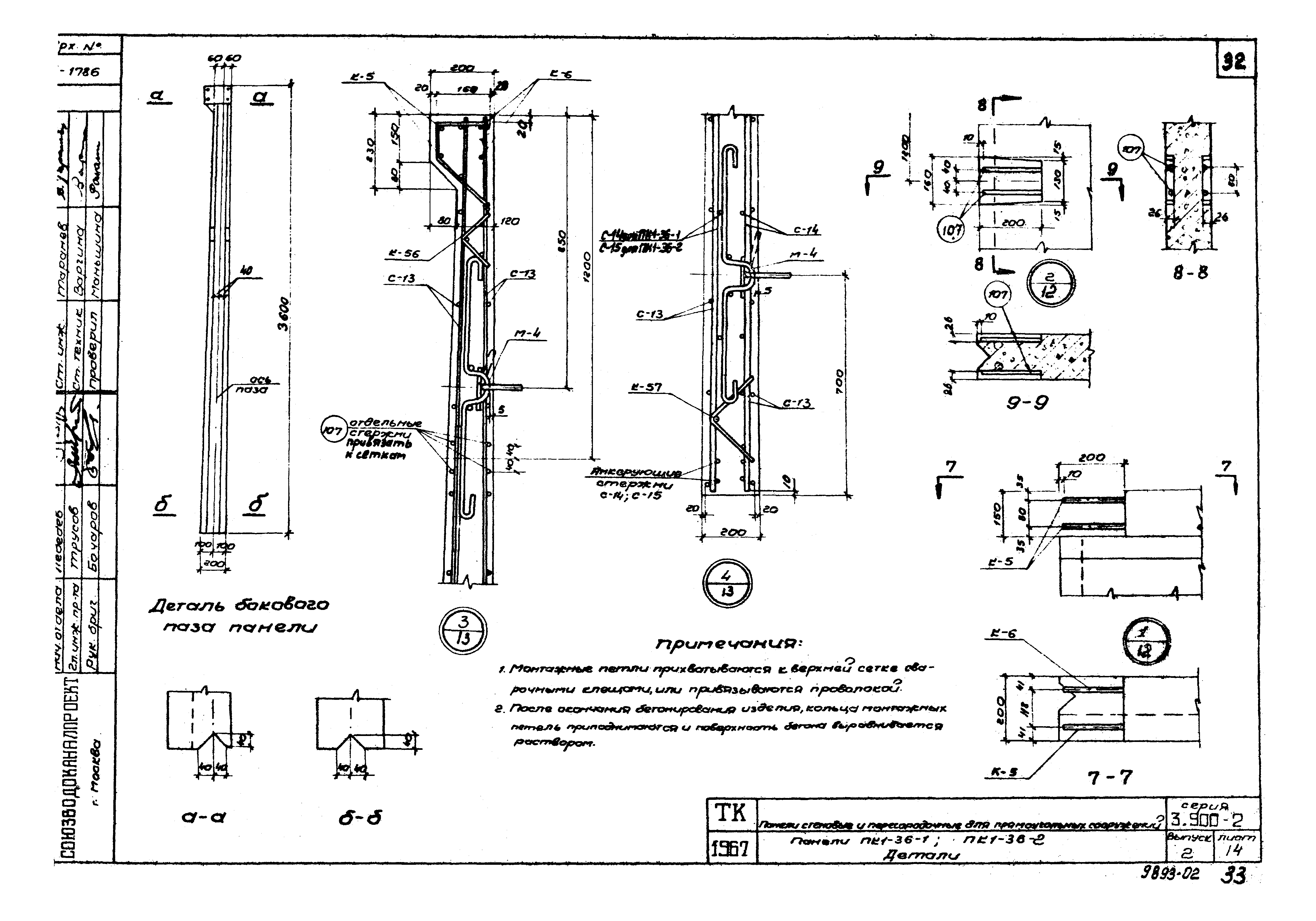
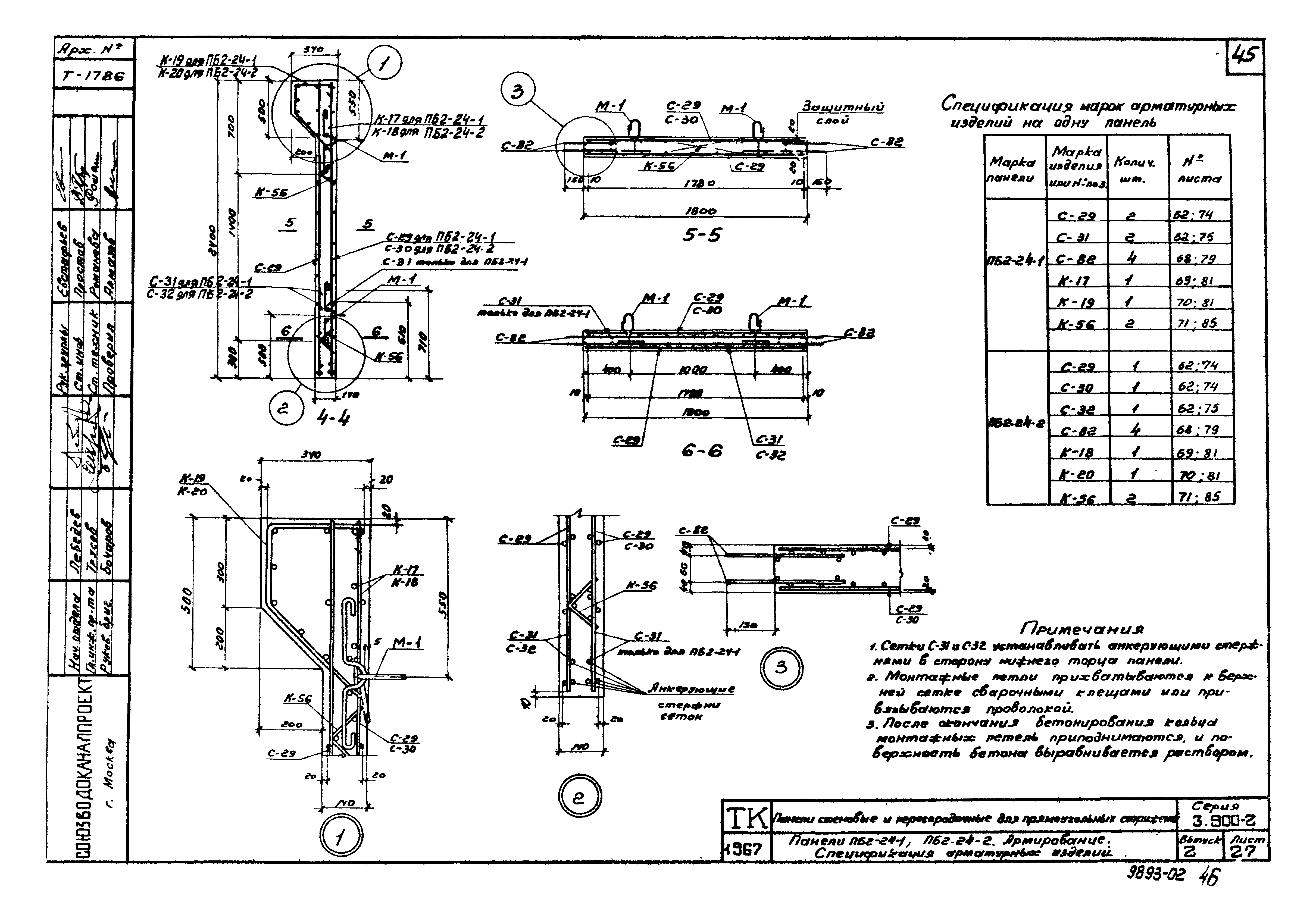
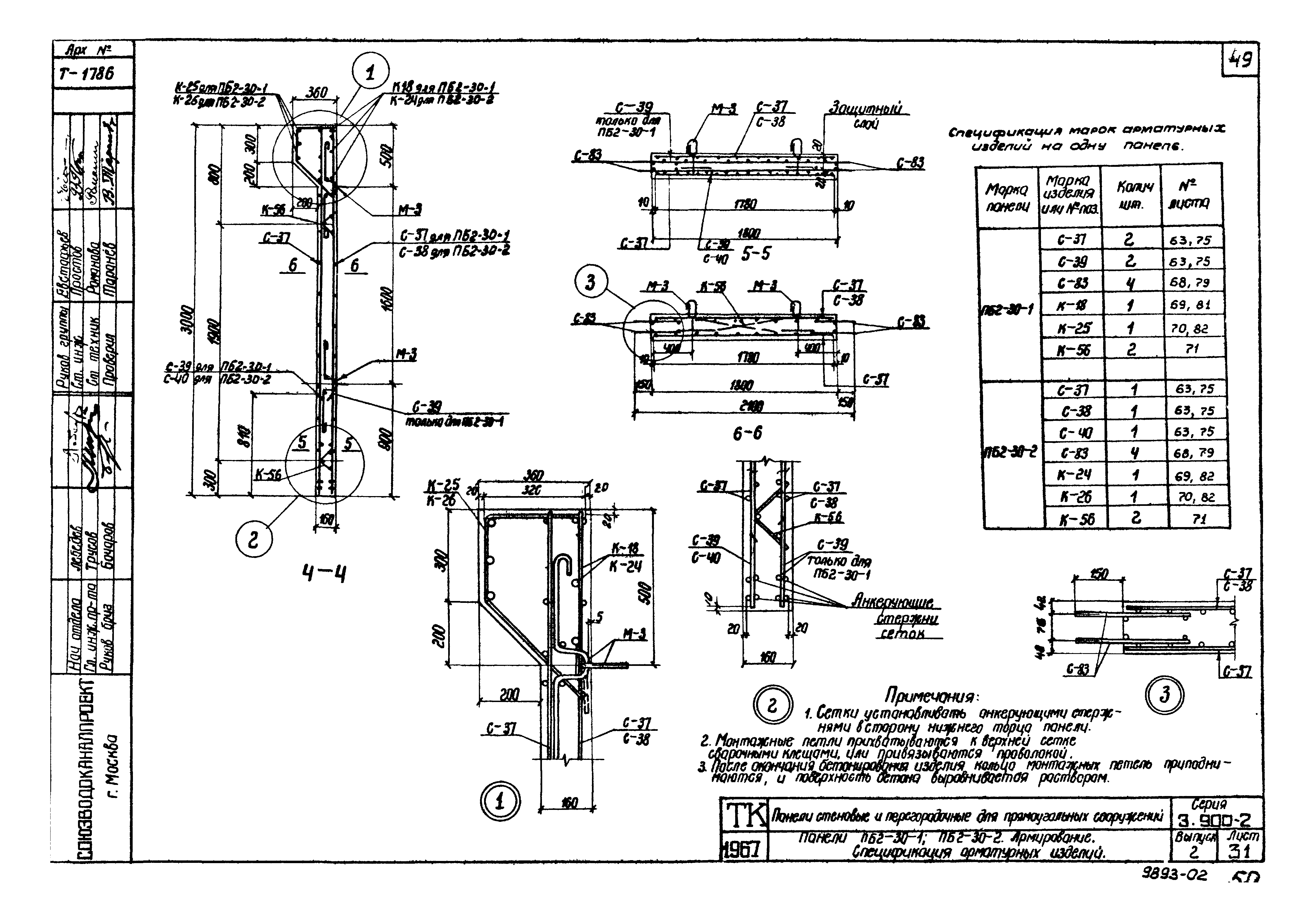
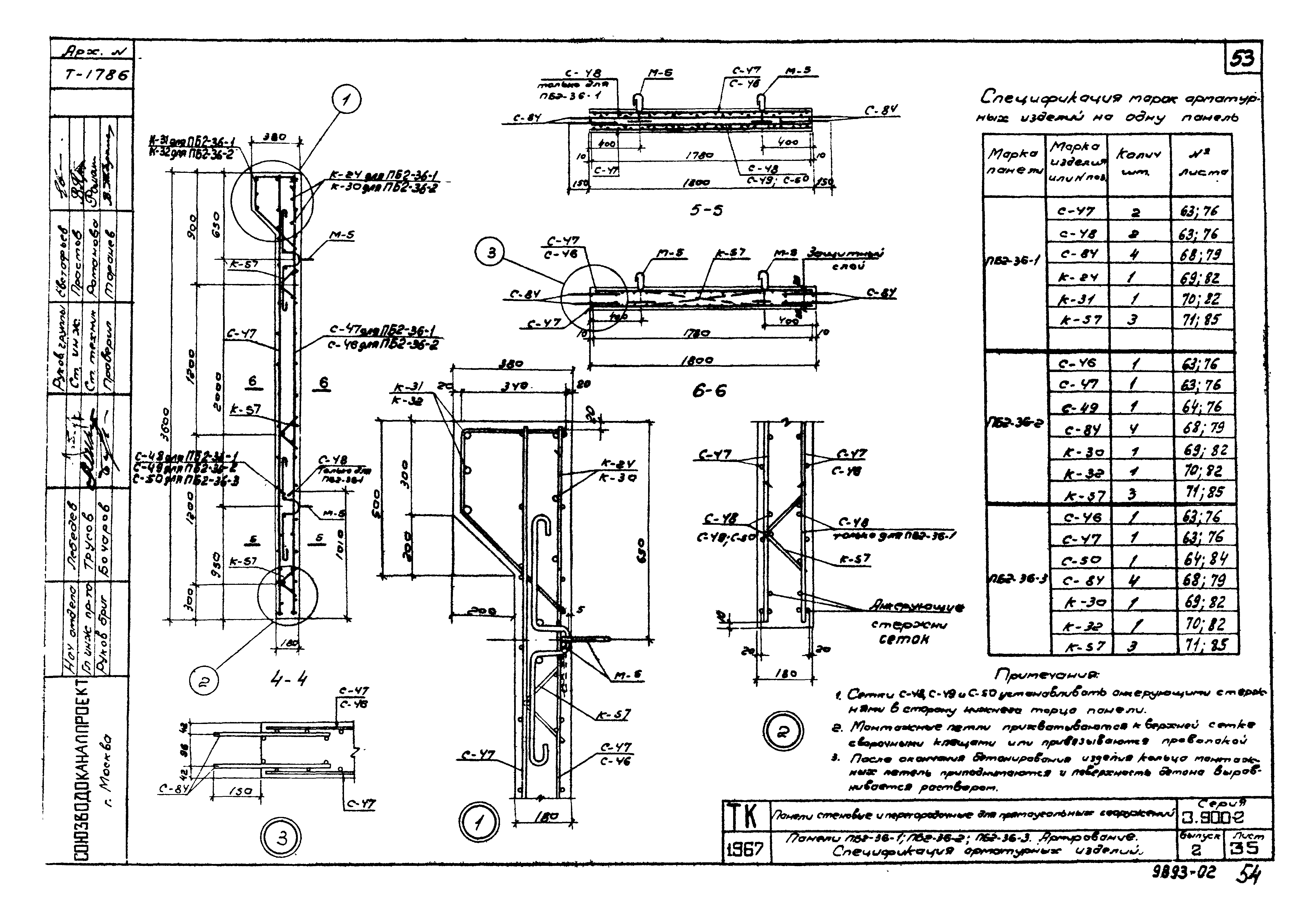
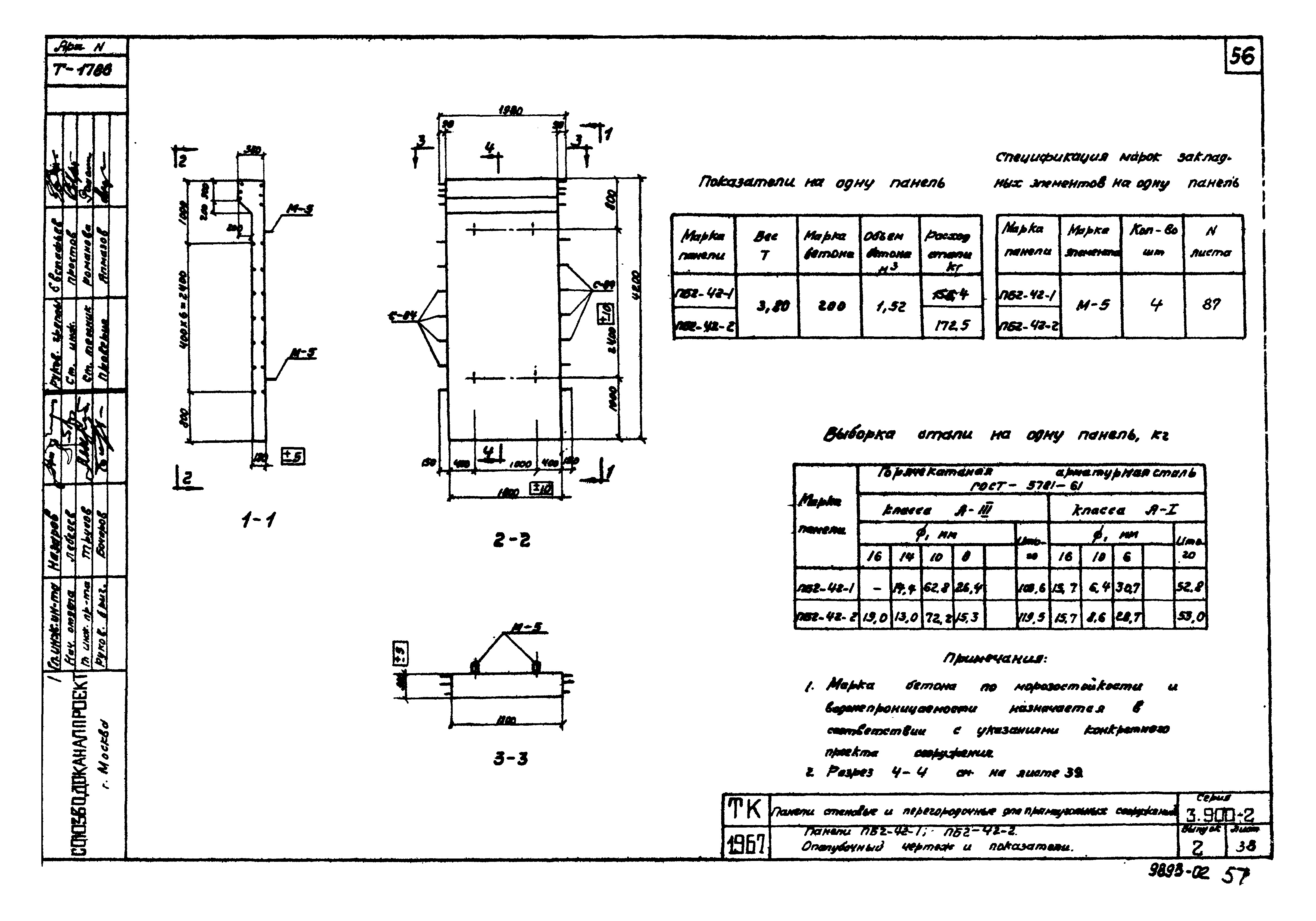
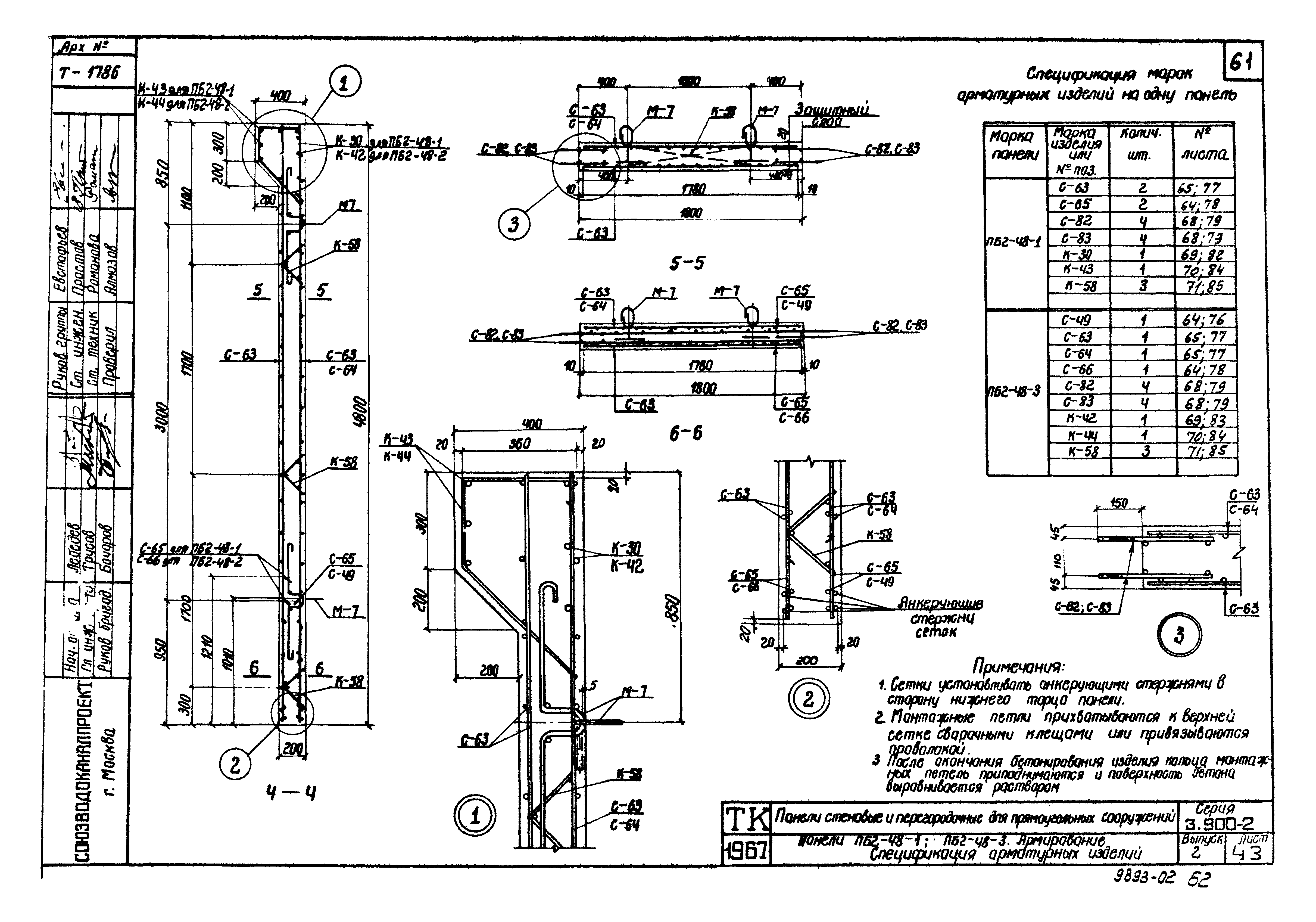
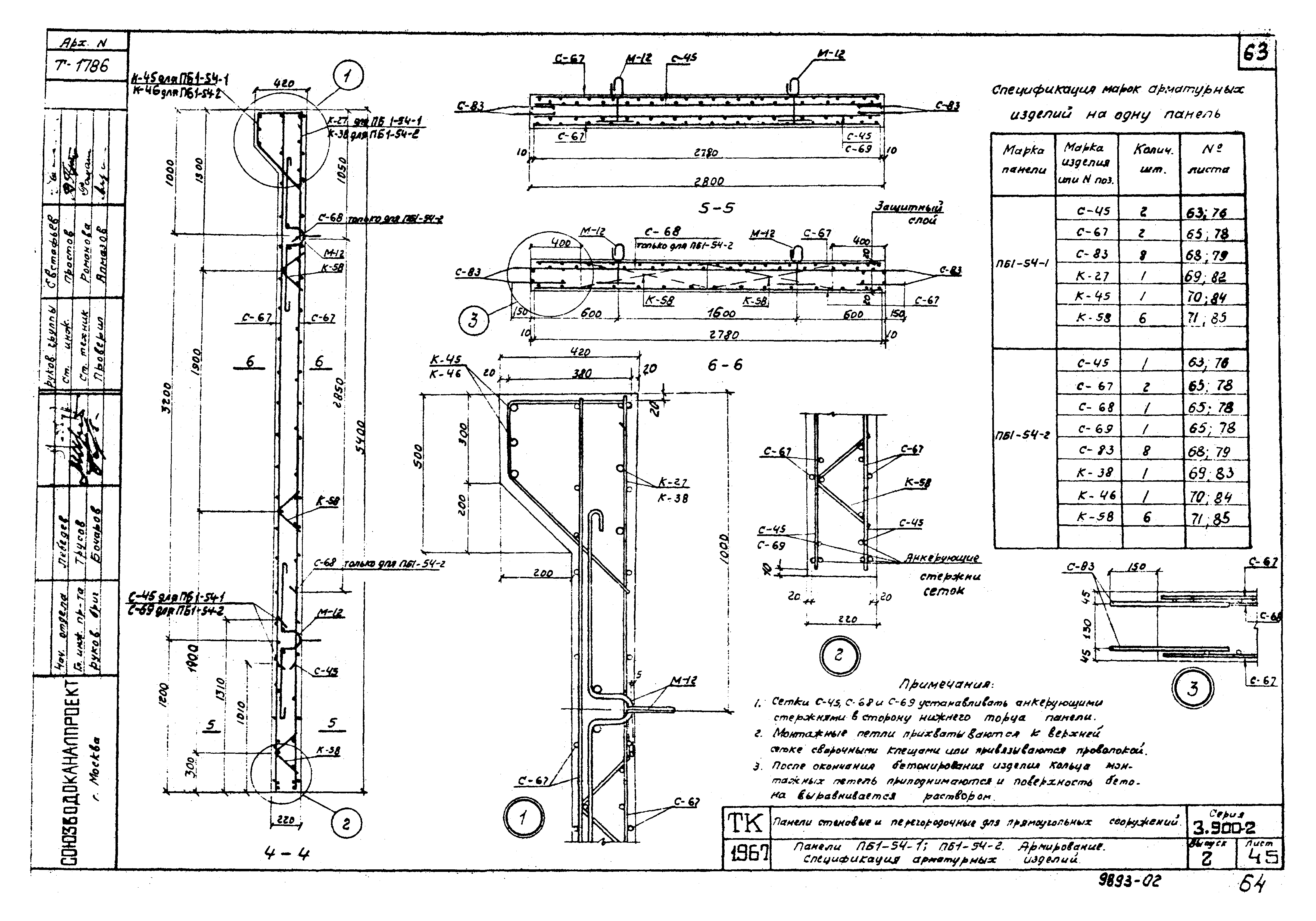
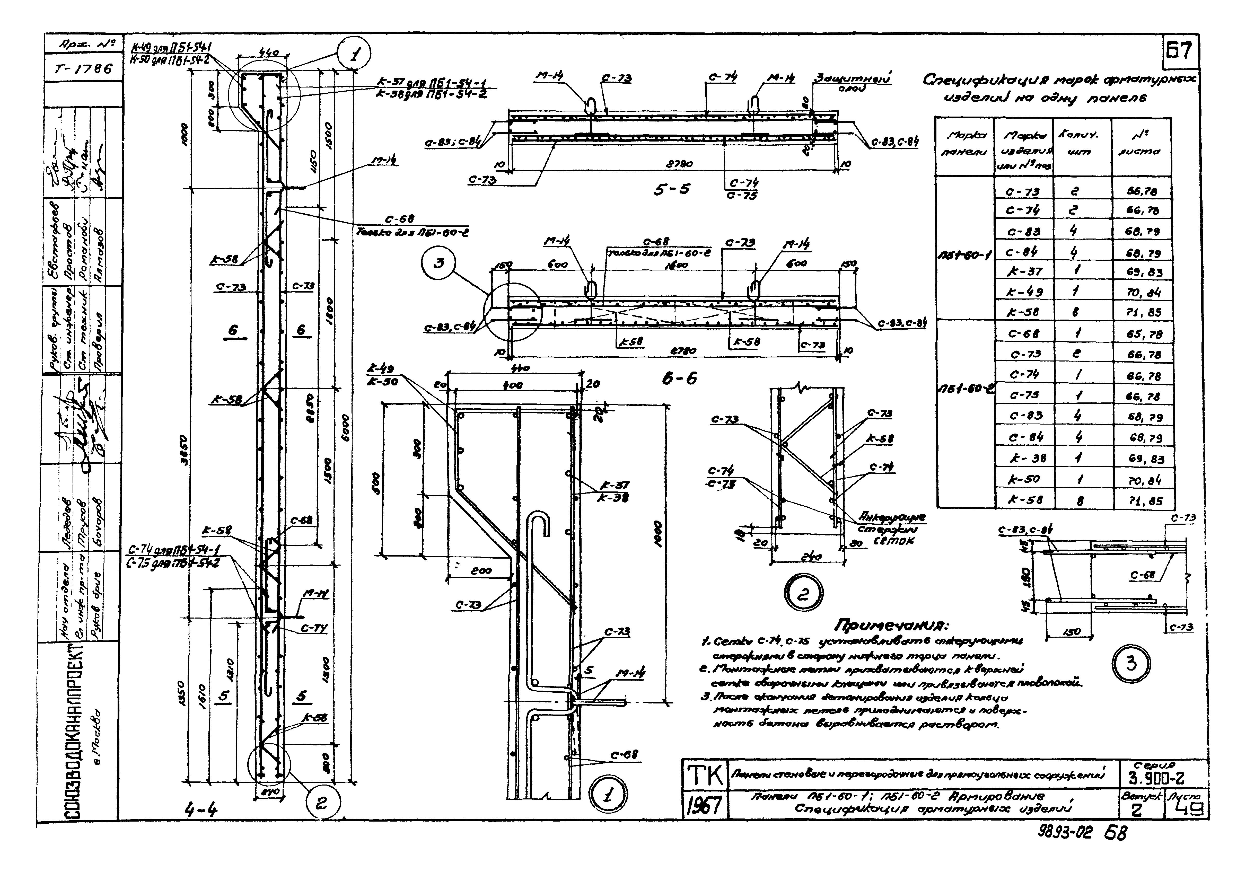
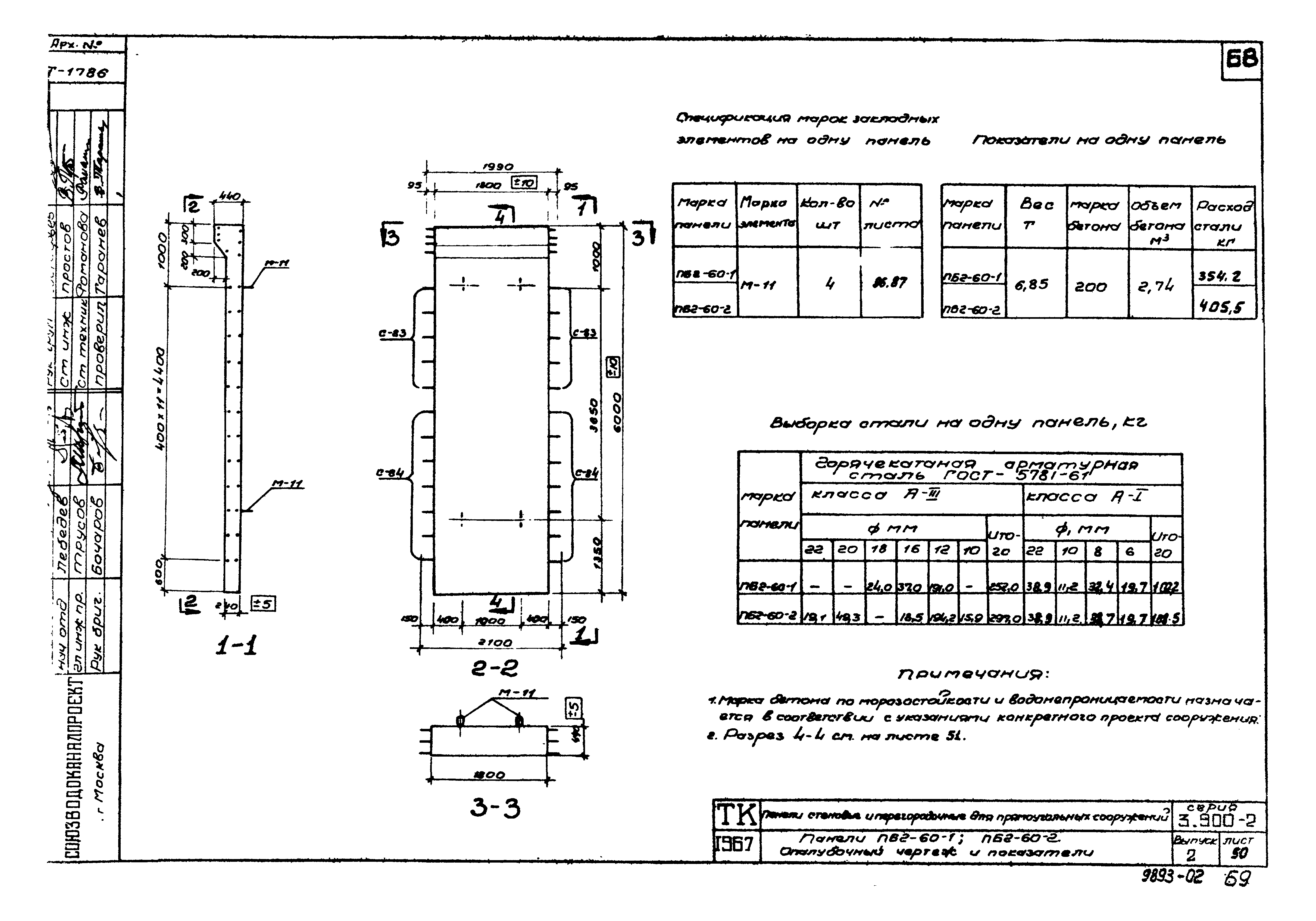
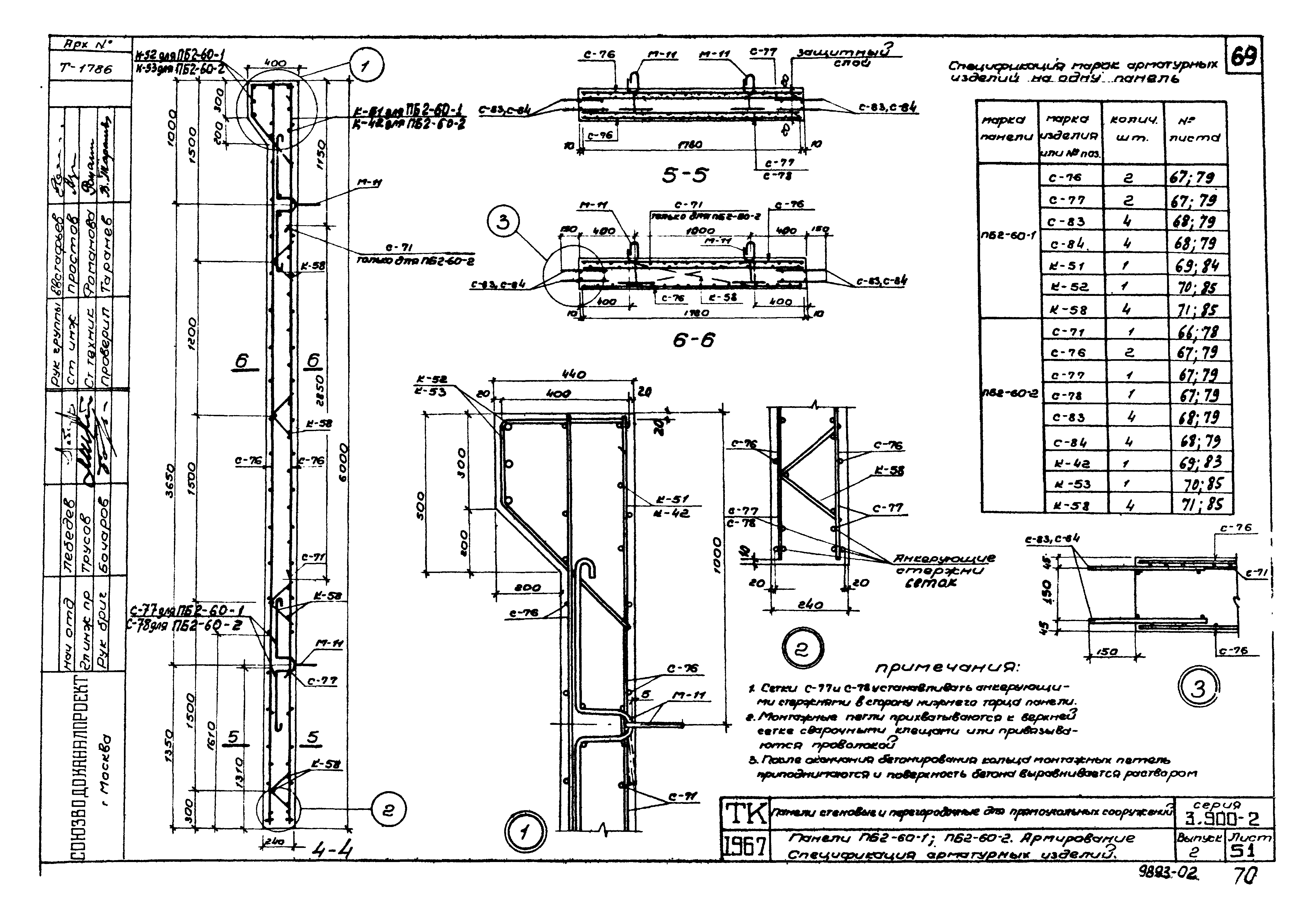
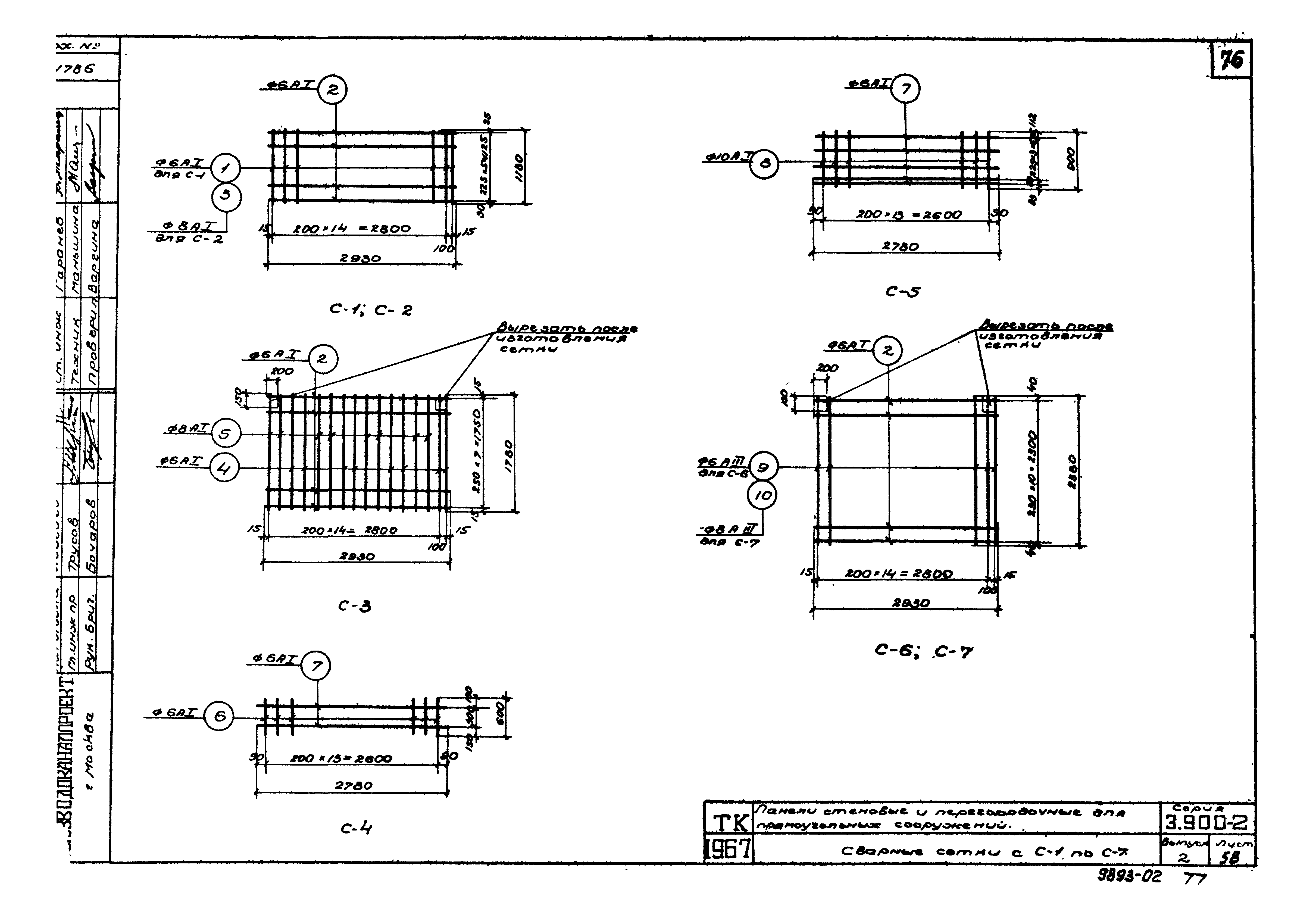
| Оглавление: | Содержание Пояснительная записка Контрольные нагрузки и схемы испытания консольных панелей Контрольные нагрузки и схемы испытания блочных панелей Номенклатура изделий Панели ПК1-12-1, ПК1-12-2. Опалубочный чертеж и показатели Панели ПК1-12-1, ПК1-12-2. Армирование. Спецификация арматурных изделий Панели ПК1-18-1, ПК1-18-2. Опалубочный чертеж и показатели Панели ПК1-18-1, ПК1-18-2. Армирование. Спецификация арматурных изделий. Детали Панели ПК1-18-1, ПК1-18-2. Детали Панели ПК1-24-1, ПК1-24-2. Опалубочный чертеж и показатели Панели ПК1-24-1, ПК1-24-2. Армирование. Спецификация арматурных изделий. Детали Панели ПК1-24-1, ПК1-24-2. Детали Панели ПК1-30-1, ПК1-30-2. Опалубочный чертеж и показатели Панели ПК1-30-1, ПК1-30-2. Армирование. Спецификация арматурных изделий. Детали Панели ПК1-30-1, ПК1-30-2. Детали Панели ПК1-36-1, ПК1-36-2. Опалубочный чертеж и показатели Панели ПК1-36-1, ПК1-36-2. Армирование. Спецификация арматурных изделий. Детали Панели ПК1-36-1, ПК1-36-2. Детали Панели ПК1-42-1, ПК1-42-2. Опалубочный чертеж и показатели Панели ПК1-42-1, ПК1-42-2. Армирование. Спецификация арматурных изделий. Детали Панели ПК1-42-1, ПК1-42-2. Детали Панели ПК1-48-1, ПК1-48-2. Опалубочный чертеж и показатели Панели ПК1-48-1, ПК1-48-2. Армирование. Спецификация арматурных изделий. Детали Панели ПК1-48-1, ПК1-48-2. Детали Панели ПК1-54-1, ПК1-54-2. Опалубочный чертеж и показатели Панели ПК1-54-1, ПК1-54-2. Армирование. Спецификация арматурных изделий. Детали Панели ПК1-54-1, ПК1-54-2. Детали Панели ПБ1-24-1, ПБ1-24-2. Опалубочный чертеж и показатели Панели ПБ1-24-1, ПБ1-24-2. Армирование. Спецификация арматурных изделий Панели ПБ2-24-1, ПБ2-24-2. Опалубочный чертеж и показатели Панели ПБ2-24-1, ПБ2-24-2. Армирование. Спецификация арматурных изделий Панели ПБ1-30-1, ПБ1-30-2. Опалубочный чертеж и показатели Панели ПБ1-30-1, ПБ1-30-2. Армирование. Спецификация арматурных изделий Панели ПБ2-30-1, ПБ2-30-2. Опалубочный чертеж и показатели Панели ПБ2-30-1, ПБ2-30-2. Армирование. Спецификация арматурных изделий Панели ПБ1-36-1, ПБ1-36-2, ПБ1-36-3. Опалубочный чертеж и показатели Панели ПБ1-36-1, ПБ1-36-2, ПБ1-36-3. Армирование. Спецификация арматурных изделий Панели ПБ2-36-1, ПБ2-36-2, ПБ2-36-3. Опалубочный чертеж и показатели Панели ПБ2-36-1, ПБ2-36-2, ПБ2-36-3. Армирование. Спецификация арматурных изделий Панели ПБ1-42-1, ПБ1-42-2. Опалубочный чертеж и показатели Панели ПБ1-42-1, ПБ1-42-2. Армирование. Спецификация арматурных изделий Панели ПБ2-42-1, ПБ2-42-2. Опалубочный чертеж и показатели Панели ПБ2-42-1, ПБ2-42-2. Армирование. Спецификация арматурных изделий Панели ПБ1-48-1, ПБ1-48-2, ПБ1-48-3. Опалубочный чертеж и показатели Панели ПБ1-48-1, ПБ1-48-2, ПБ1-48-3. Армирование. Спецификация арматурных изделий Панели ПБ2-48-1, ПБ2-48-3. Опалубочный чертеж и показатели Панели ПБ2-48-1, ПБ2-48-3. Армирование. Спецификация арматурных изделий Панели ПБ1-54-1, ПБ1-54-2. Опалубочный чертеж и показатели Панели ПБ1-54-1, ПБ1-54-2. Армирование. Спецификация арматурных изделий Панели ПБ2-54-1, ПБ2-54-2. Опалубочный чертеж и показатели Панели ПБ2-54-1, ПБ2-54-2. Армирование. Спецификация арматурных изделий Панели ПБ1-60-1, ПБ1-60-2. Опалубочный чертеж и показатели Панели ПБ1-60-1, ПБ1-60-2. Армирование. Спецификация арматурных изделий Панели ПБ2-60-1, ПБ2-60-2. Опалубочный чертеж и показатели Панели ПБ2-60-1, ПБ2-60-2. Армирование. Спецификация арматурных изделий Панель ПП1-36-1. Опалубочный чертеж и показатели Панель ПП1-36-1. Армирование. Спецификация арматурных изделий Панель ПП1-42-1. Опалубочный чертеж и показатели Панель ПП1-42-1. Армирование. Спецификация арматурных изделий Панель ПП1-48-1. Опалубочный чертеж и показатели Панель ПП1-48-1. Армирование. Спецификация арматурных изделий Сварные сетки с С-1 по С-7 Сварные сетки с С-8 по С-12 Сварные сетки с С-13 по С-18 Сварные сетки с С-19 по С-24 Сварные сетки с С-25 по С-34, 54, 58 Сварные сетки с С-35 по С-47, 61 Сварные сетки с С-48 по С-53, с С-55 по С-57, 59, 60, 62, 65, 66 Сварные сетки С-63, 64, с 67 по 70 Сварные сетки с С-71 по С-75 Сварные сетки с С-76 по С-79 Сварные сетки с С-80 по С-84 Сварные каркасы с К-1 по К-14, 17, 18, 21, 24, 27, 30, 33, 35, 37, 38, 42, 51 Сварные каркасы К-15, 16, 19, 20, 22, 23, 25, 26, 28, 29, 31, 32, 36, 39, 40, 41, с 43 по 50, 52, 53, 34 Сварные каркасы с К-54 по К-58 Спецификация и выборка стали на одно арматурное изделие. Сетки с С-1 по С-11 Спецификация и выборка стали на одно арматурное изделие. Сетки с С-12 по С-20 Спецификация и выборка стали на одно арматурное изделие. Сетки с С-21 по С-30 Спецификация и выборка стали на одно арматурное изделие. Сетки с С-31 по С-41 Спецификация и выборка стали на одно арматурное изделие. Сетки с С-42 по С-53 Спецификация и выборка стали на одно арматурное изделие. Сетки с С-54 по С-64 Спецификация и выборка стали на одно арматурное изделие. Сетки с С-65 по С-75 Спецификация и выборка стали на одно арматурное изделие. Сетки с С-76 по С-84 Спецификация и выборка стали на одно арматурное изделие. Каркасы с К-1 по К-11 Спецификация и выборка стали на одно арматурное изделие. Каркасы с К-12 по К-22 Спецификация и выборка стали на одно арматурное изделие. Каркасы с К-23 по К-32 Спецификация и выборка стали на одно арматурное изделие. Каркасы с К-33 по К-42 Спецификация и выборка стали на одно арматурное изделие. Каркасы с К-43 по К-51 Спецификация и выборка стали на одно арматурное изделие. Каркасы с К-52 по К-58 и отдельные стержни Закладные детали с М-1 по М-14 Спецификация и выборка стали на одну закладную деталь. Марки с М-1 по М-14 Вариант закладных деталей с М-1 по М-14 |
| Разработан: | Союзводоканалпроект ЦНИИпромзданий НИИЖБ |
| Утверждён: | 09.07.1968 Госстрой СССР (Государственный комитет Совета Министров СССР по делам строительства) (USSR Gosstroy 61) |
| Чем заменён: |










































































































