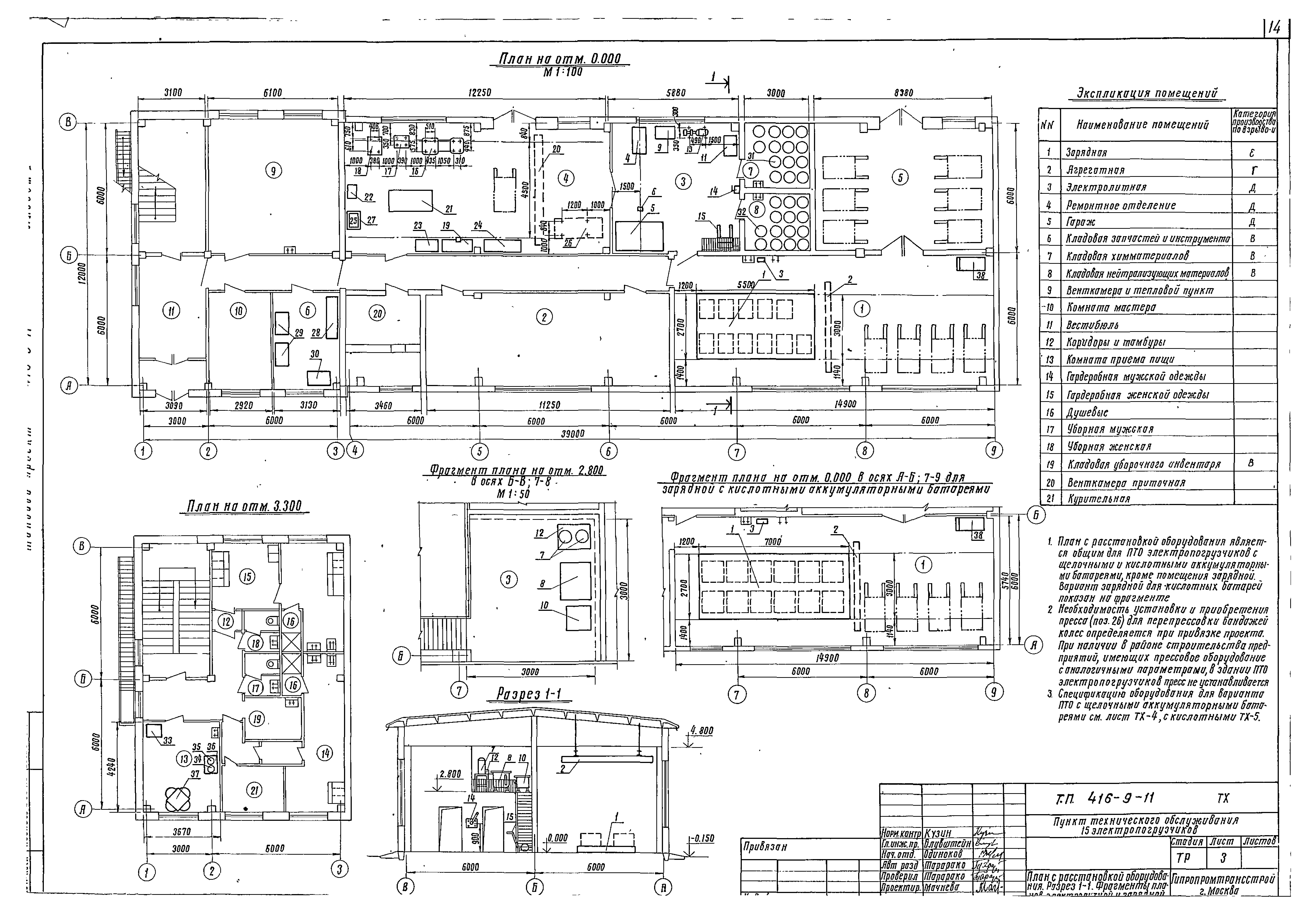
Скачать Типовой проект 416-9-11 Альбом I. Общая пояснительная записка. Технологические решенияДата актуализации: 01.01.2021 Типовой проект 416-9-11
Альбом I. Общая пояснительная записка. Технологические решения| Обозначение: | Типовой проект 416-9-11 | | Обозначение англ: | 416-9-11 | | Статус: | действует | | Название рус.: | Альбом I. Общая пояснительная записка. Технологические решения | | Дата добавления в базу: | 01.09.2013 | | Дата актуализации: | 01.01.2021 | | Дата введения: | 20.07.1981 | | Разработан: | Гипропромтрансстрой
| | Утверждён: | 20.07.1981 МПС (Ministry of Railroads П22936)
|
                   
|