Скачать 4363 Альбом 2. ДеталиДата актуализации: 01.01.2021
|
| Обозначение: | 4363 |
| Обозначение англ: | 4363 |
| Статус: | справочные материалы, мп, тпр |
| Название рус.: | Альбом 2. Детали |
| Дата добавления в базу: | 01.09.2013 |
| Дата актуализации: | 01.01.2021 |
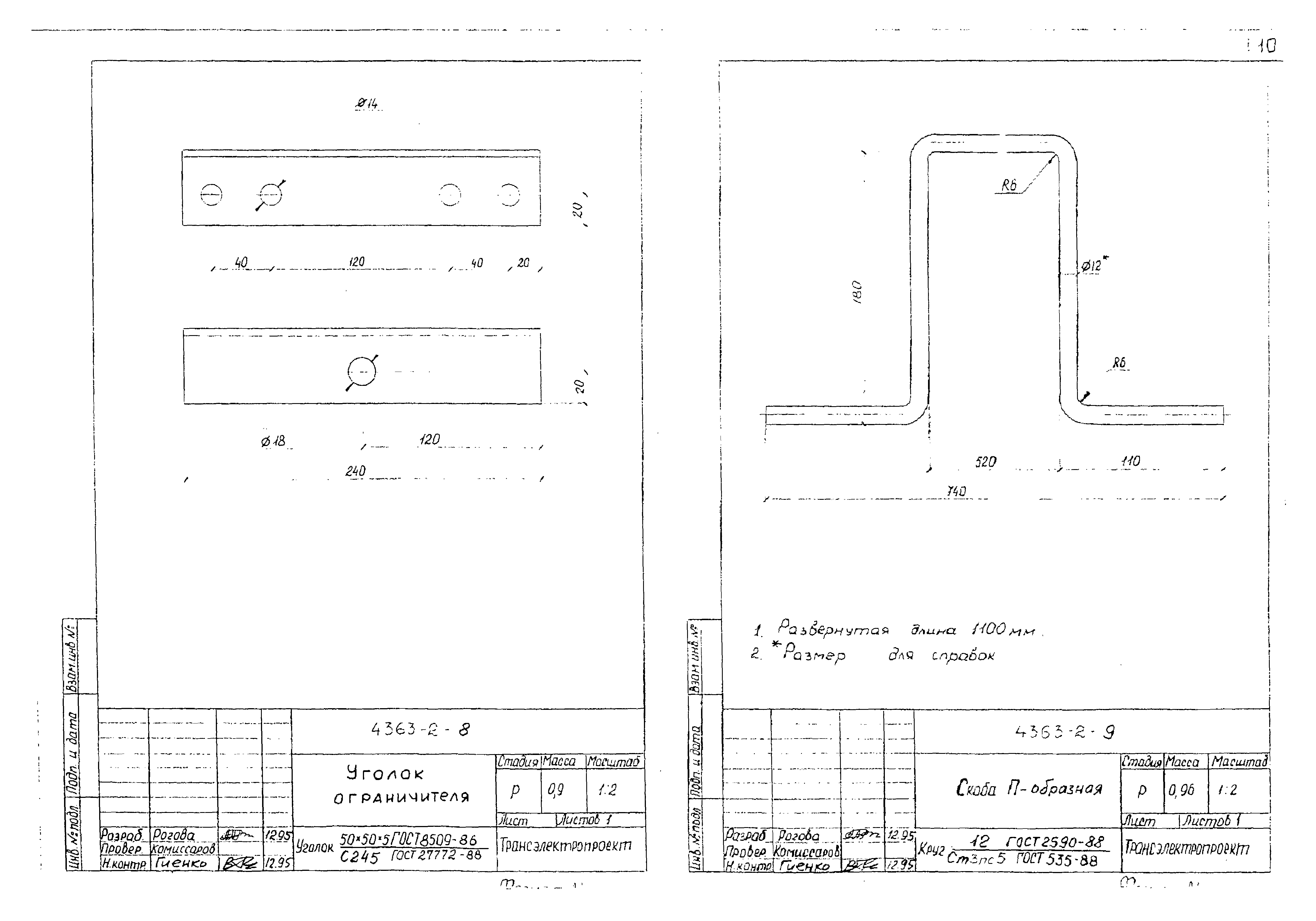
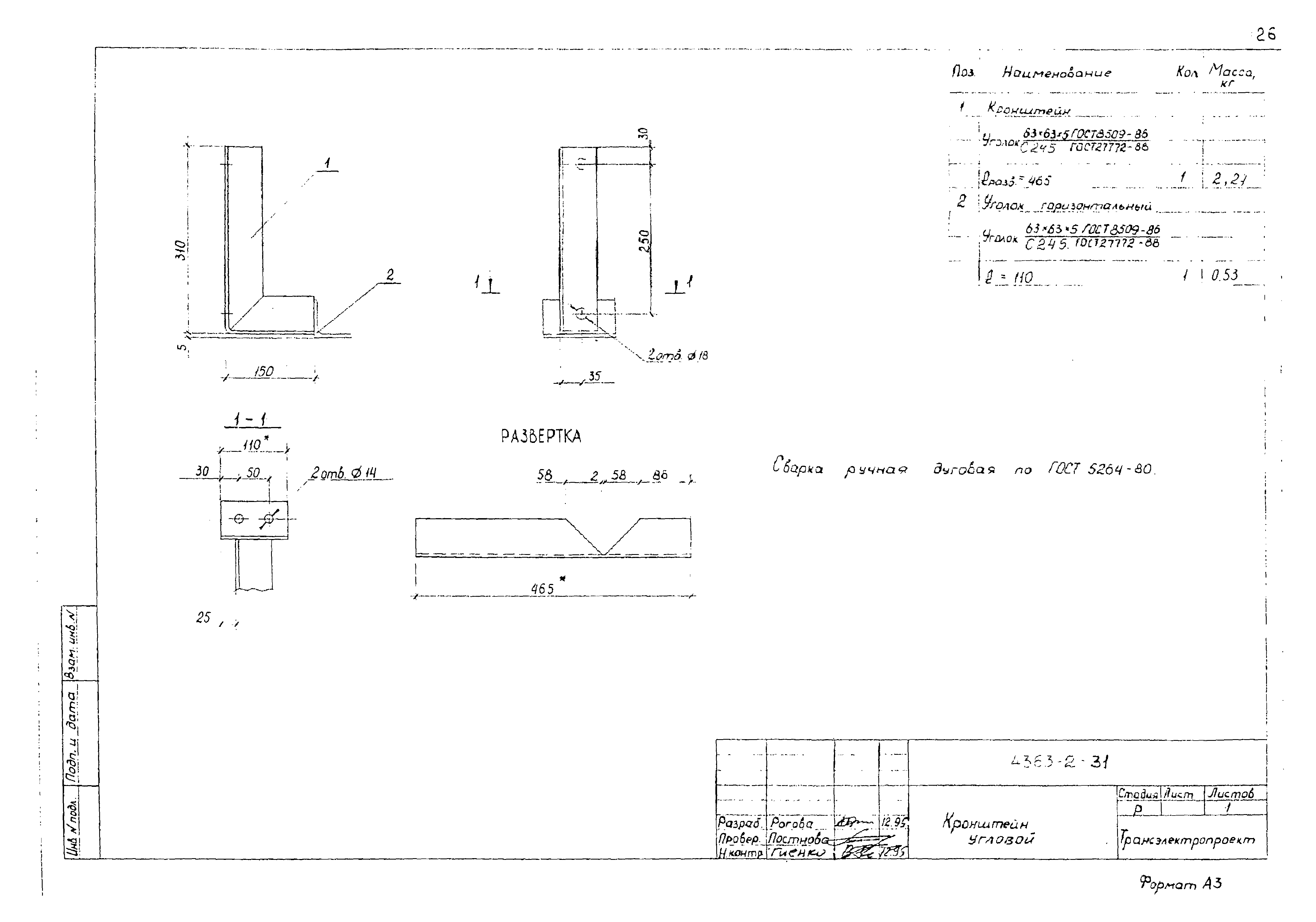
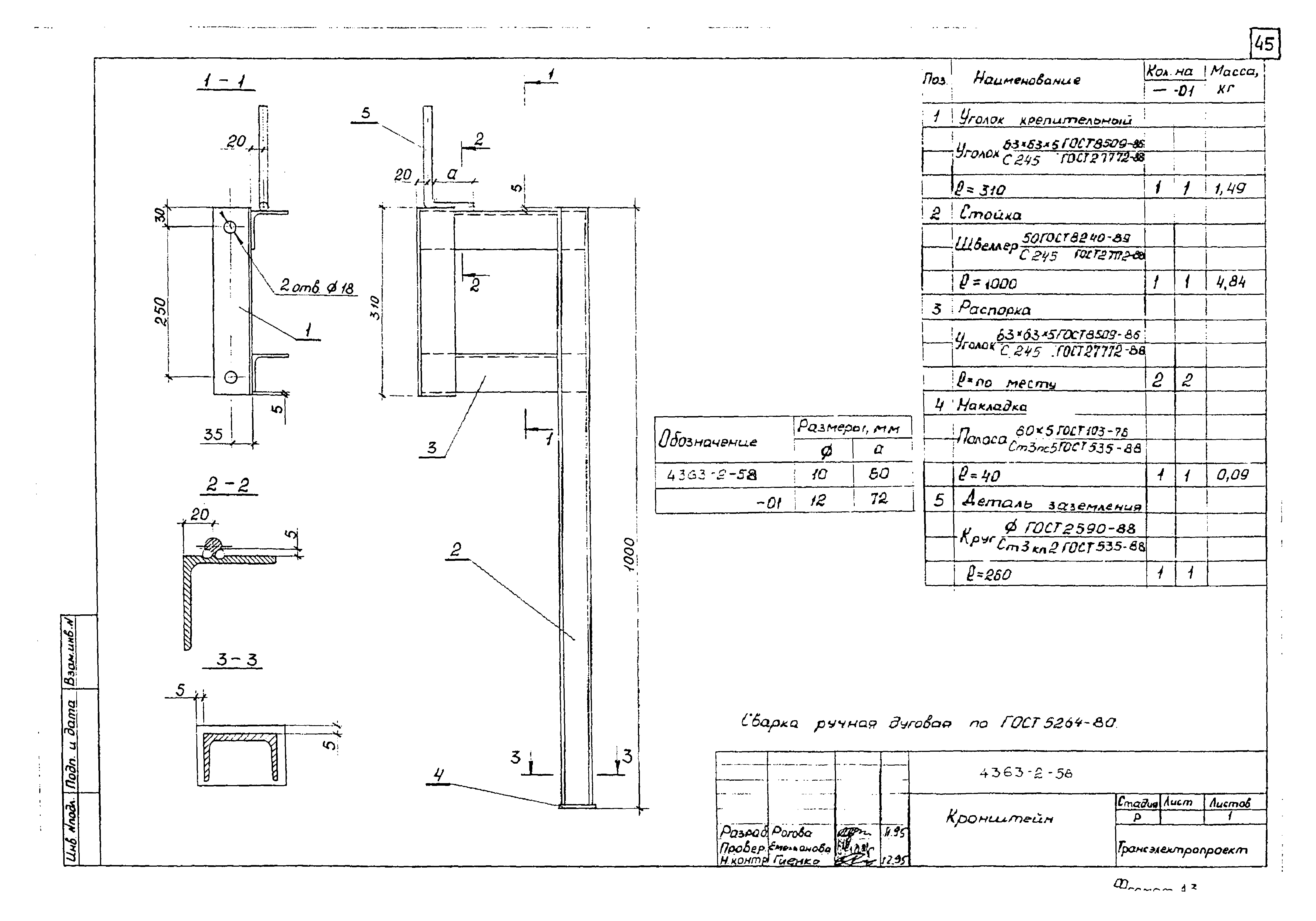
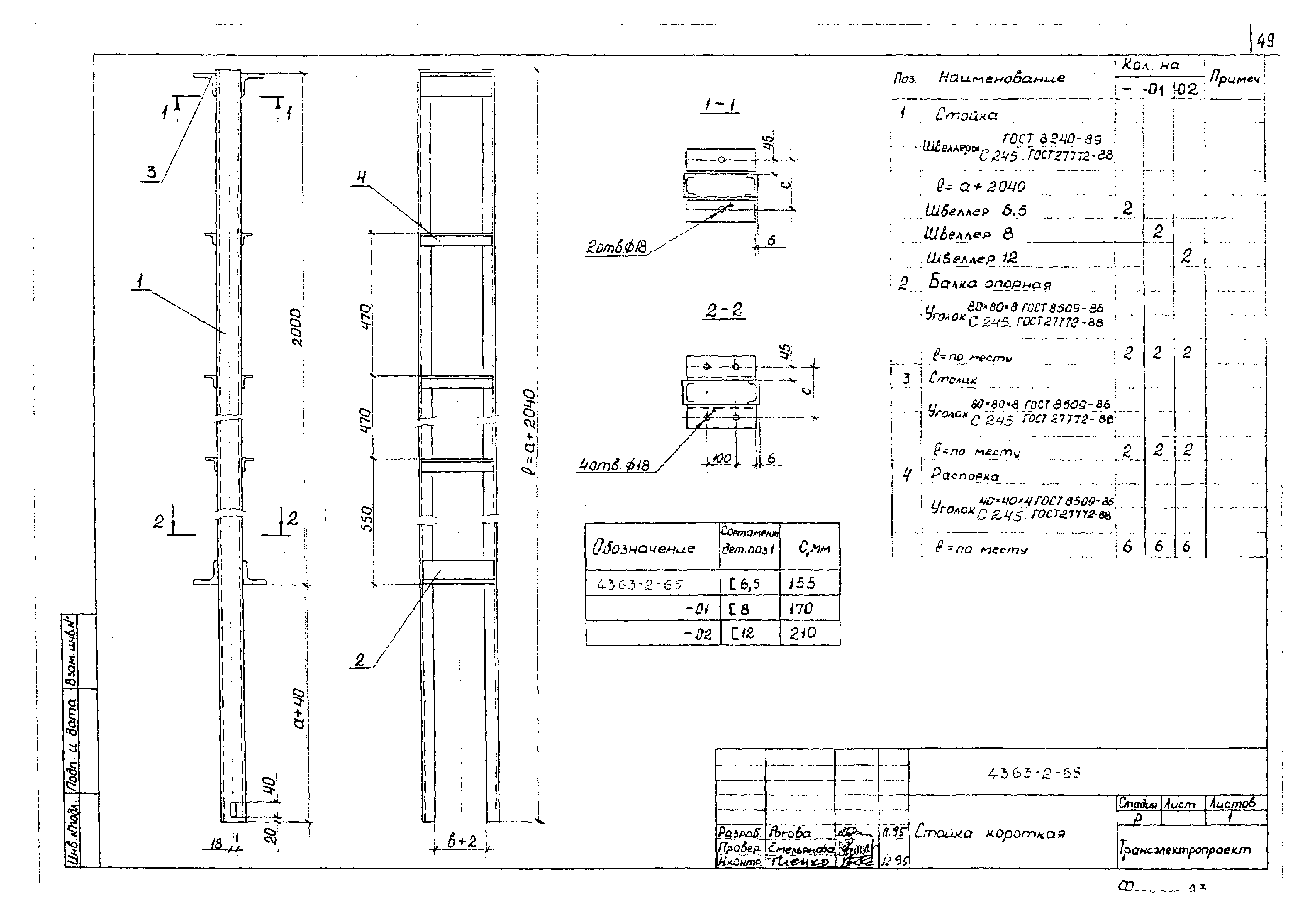
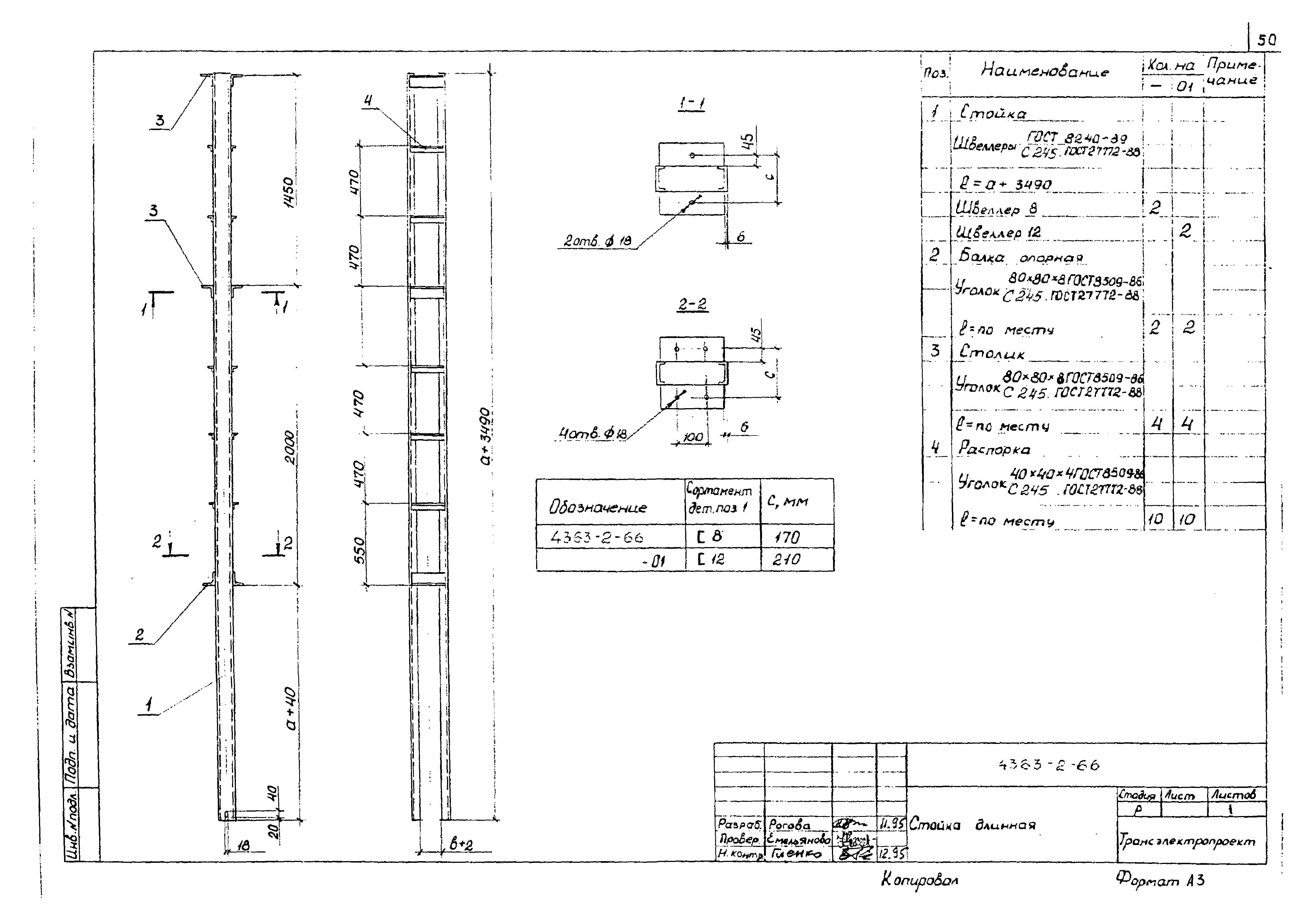
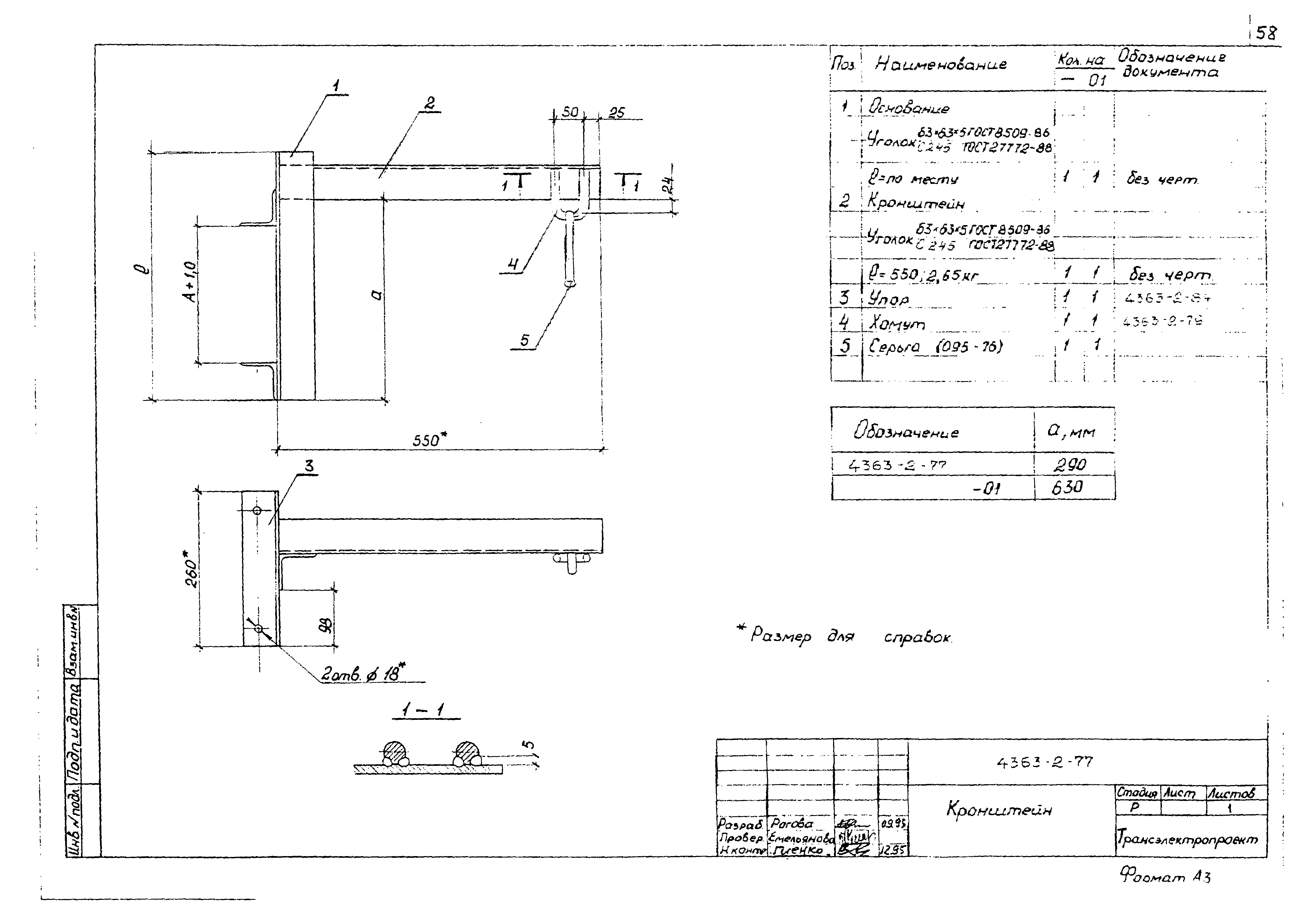
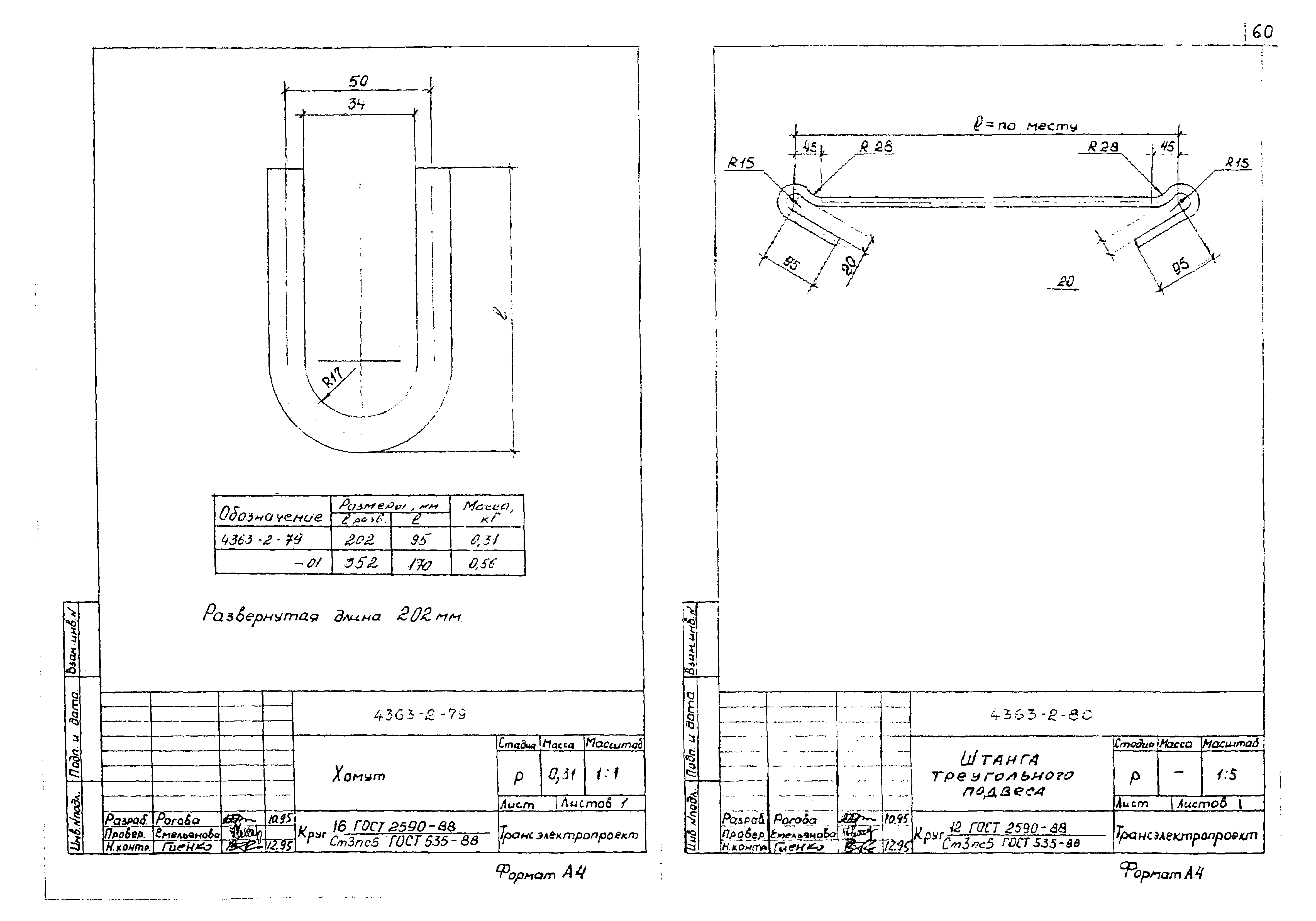
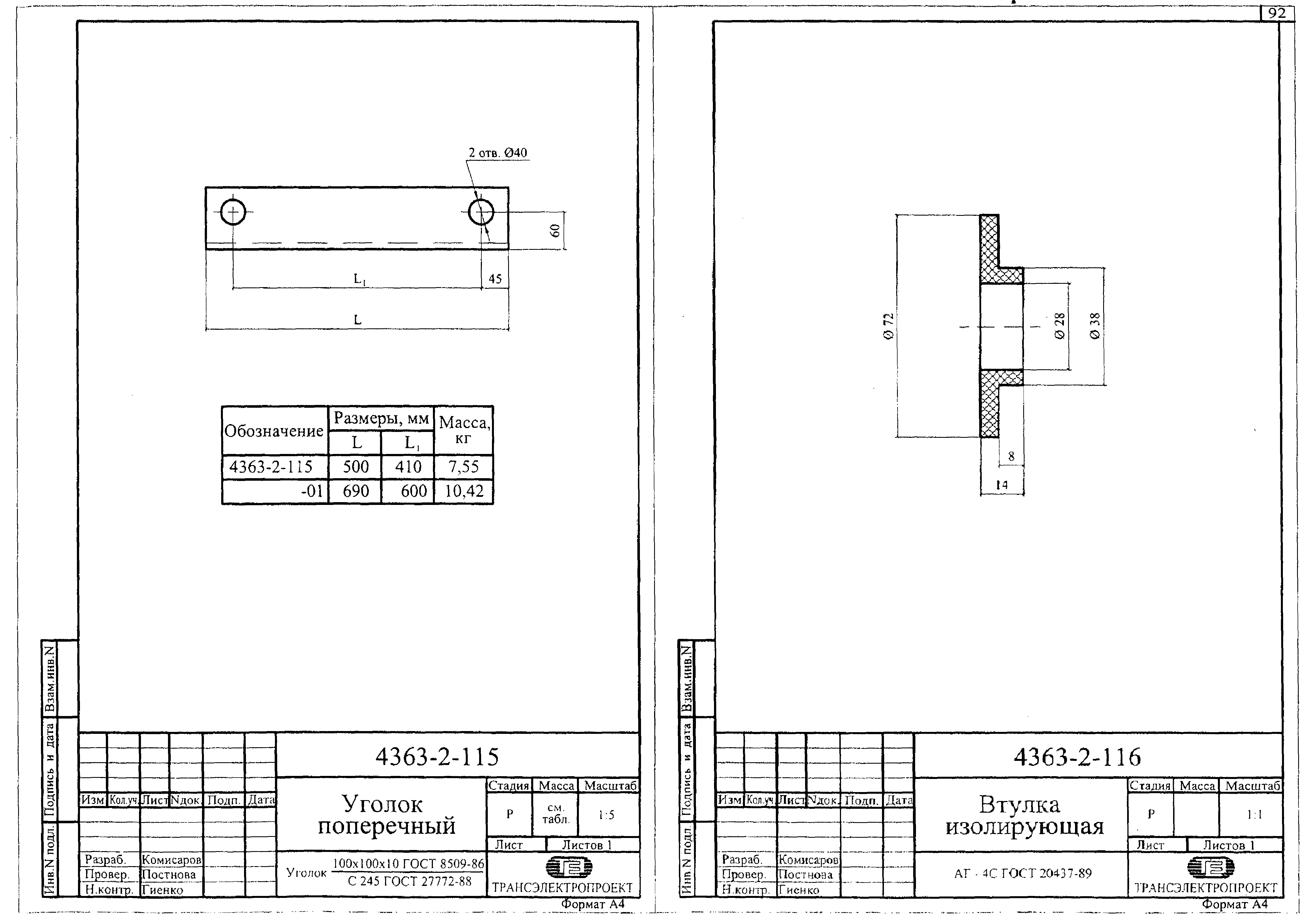
| Оглавление: | 4363-2-1 Щит ограждения вертикальный 4363-2-2 Уголок левый 4363-2-3 Уголок правый 4363-2-4 Уголок 4363-2-5 Стойка 4363-2-6 Щит ограждения 4363-2-7 Ограничитель подъемо-контактного провода 4363-2-8 Уголок ограничителя 4363-2-9 Скоба П-образная 4363-2-10 Штанга сочлененная пестик-нарезка (L = 3100) 4363-2-11 Штанга нарезка-нарезка 4363-2-12 Штанга нарезка-пестик 4363-2-13 Штанга сочлененная нарезка-двойное ушко (L = 3100) 4363-2-14 Кронштейн прямой 4363-2-15 Хомут с резьбой 4363-2-16 Кронштейн отбойника 4363-2-17 Кронштейн отбойника 4363-2-18 Кронштейн отбойника 4363-2-19 Кронштейн траверсы 4363-2-20 Кронштейн траверсы 4363-2-21 Кронштейн обвода 4363-2-22 Кронштейн обвода 4363-2-23 Кронштейн горизонтальный 4363-2-24 Шпилька 4363-2-25 Отбойник несущего троса 4363-2-26 Отбойник контактного провода 4363-2-27 Шайба 4363-2-28 Траверса 4363-2-29 Болт крюковой прямоугольный 4363-2-30 Болт крюковой треугольный 4363-2-31 Кронштейн угловой 4363-2-32 Муфта 4363-2-33 Подкос 4363-2-34 Штанга лестик-двойное ушко (L = 3100) 4363-2-35 Хомут с резьбой V-образный 4363-2-36 Болт крюковой 4363-2-37 Кронштейн отбойника 4363-2-38 Кронштейн отбойника 4363-2-39 Кронштейн траверсы 4363-2-40 Кронштейн траверсы 4363-2-41 Кронштейн обвода 4363-2-42 Кронштейн обвода 4363-2-43 Кронштейн ВЛ 4363-2-44 Кронштейн 4363-2-45 Кронштейн ВЛ 4363-2-46 Траверса деревянная 4363-2-47 Кронштейн деревянный 4363-2-48 Серьга заземления 4363-2-49 Планка заземления 4363-2-50 Уголок фиксирующий 4363-2-51 Болт-скоба треугольный 4363-2-52 Фиксатор 4363-2-53 Коромысло 4363-2-54 Кронштейн поддерживающий несущего троса 4363-2-55 Болт специальный с "ласточкиным хвостом" 4363-2-56 Шайба 4363-2-57 Пята поворотная 4363-2-58 Кронштейн 4363-2-59 Скоба 4363-2-60 Вкладыш 4363-2-61 Брусок изолирующий 4363-2-62 Деталь крепления заземления 4363-2-63 Планка переходная 4363-2-64 Скобка 4363-2-65 Стойка короткая 4363-2-66 Стойка длинная 4363-2-67 Перекладина 4363-2-68 Кронштейн односторонний 4363-2-69 Скоба 4363-2-70 Накладка 4363-2-71 Кронштейн двухсторонний 4363-2-72 Кронштейн отбойника 4363-2-73 Кронштейн фиксаторный 4363-2-74 Кронштейн фиксаторный 4363-2-75 Кронштейн 4363-2-76 Пята кронштейна 4363-2-77 Кронштейн 4363-2-78 Подвес треугольный 4363-2-79 Хомут 4363-2-80 Штанга треугольного подвеса 4363-2-81 Кронштейн треугольного подвеса 4363-2-82 Болт М16 4363-2-83 Кронштейн 4363-2-84 Упор 4363-2-85 Кронштейн 4363-2-86 Кронштейн фиксатора 4363-2-87 Кронштейн заземления 4363-2-88 Кронштейн отбойника 4363-2-89 Кронштейн 4363-2-90 Кронштейн фиксаторный 4363-2-91 Планка 4363-2-92 Хомут с резьбой П-образный 4363-2-93 Опора портальная, L = 10,5 м 4363-2-94 Плита 4363-2-95 Уголок крепительный 4363-2-96 Ушко 4363-2-97 Ребро 4363-2-98 Ригель портальный 4363-2-99 Плита 4363-2-100 Скоба 4363-2-101 Опора консольная 4363-2-102 Подставка под опору 4363-2-103 Несущий кронштейн под портальную опору 4363-2-104 Несущий кронштейн под консольную опору (L = 1100) 4363-2-105 Несущий кронштейн под консольную опору (L = 1400) 4363-2-106 Несущий кронштейн под консольную опору (L = 1900) 4363-2-107 Стойка 4363-2-108 Упор 4363-2-109 Подкос 4363-2-110 Подкос 4363-2-111 Раскос 4363-2-112 Раскос 4363-2-113 Плита 4363-2-114 Косынка 4363-2-115 Уголок поперечный 4363-2-116 Втулка изолирующая 4363-2-117 Плита 4363-2-118 Накладка 4363-2-119 Косынка 4363-2-120 Косынка 4363-2-121 Косынка 4363-2-122 Косынка 4363-2-123 Косынка 4363-2-124 Раскос 4363-2-125 Ребро 4363-2-126 Ребро 4363-2-127 Кронштейн анкеровки троса в тоннеле 4363-2-128 Скоба крепления заземления 4363-2-129 Петля 4363-2-130 Стойка 4363-2-131 Ребро 4363-2-132 Кронштейн крепления волновода в тоннеле 4363-2-133 Отбойник 4363-2-134 Отбойник 4363-2-135 Кронштейн анкеровки троса 4363-2-136 Полухомут 4363-2-137 Подвес 4363-2-138 Скоба отбойника 4363-2-139 Стяжка 4363-2-140 Полухомут с зажимом 4363-2-141 Кронштейн троса заземления 4363-2-142 Хомут с зажимом 4363-2-143 Стойка тоннельная трубчатая 4363-2-144 Уголок 4363-2-145 Кронштейн троса 4363-2-146 Кронштейн троса 4363-2-147 Кронштейн троса 4363-2-148 Стойка тоннельная швеллерная 4363-2-149 Основание 4363-2-150 Отбойник из прутка 4363-2-151 Кронштейн 4363-2-152 Траверса деревянная 4363-2-153 Хомут прямоугольный |
| Разработан: | Трансэлектропроект МПС |
| Утверждён: | Министерство путей сообщения РФ (Russian Federation Ministry of Railroads ) |


















































































































