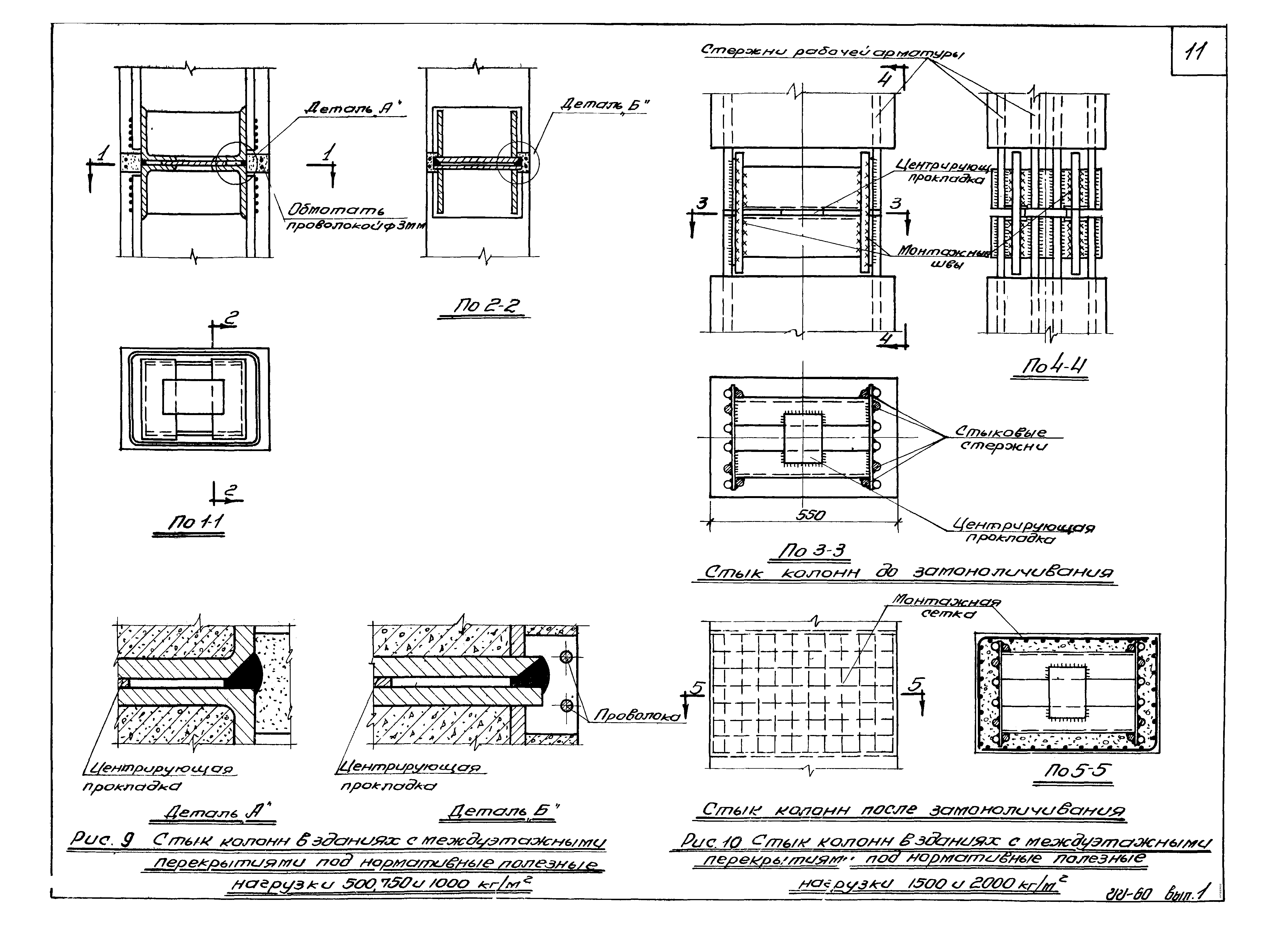
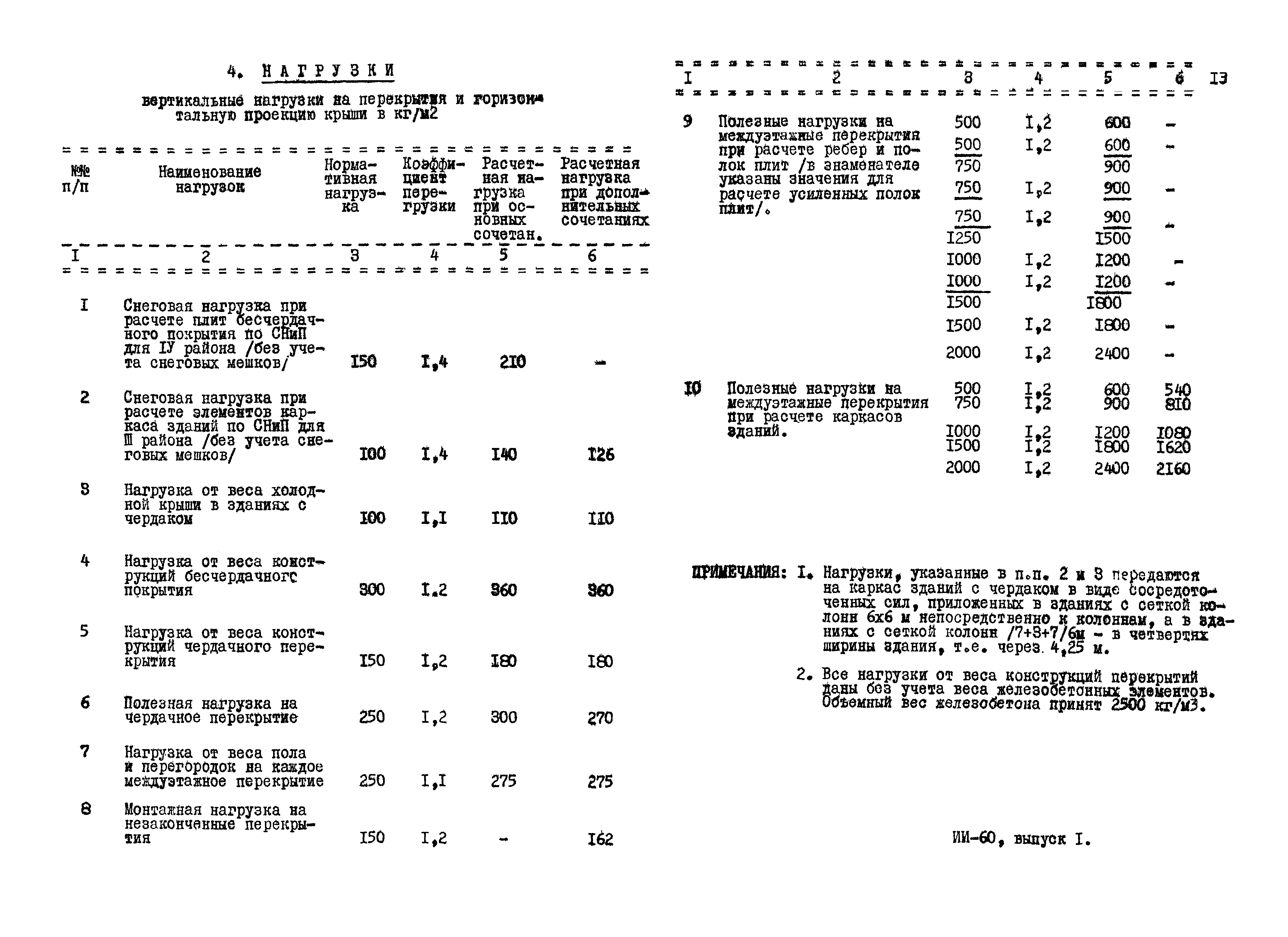
Скачать Серия ИИ-60 Выпуск 1. Общие положения и указания по применению рабочих чертежейДата актуализации: 01.01.2021
|
| Обозначение: | Серия ИИ-60 |
| Обозначение англ: | Series ИИ-60 |
| Статус: | не действует |
| Название рус.: | Выпуск 1. Общие положения и указания по применению рабочих чертежей |
| Дата добавления в базу: | 01.09.2013 |
| Дата актуализации: | 01.01.2021 |
| Разработан: | Гипротис НИИЖБ АСиА СССР ГСПИ-6 ГСПИ-5 Проектный институт Гипромолоко Проектный институт №10 |
| Утверждён: | 27.10.1960 Госстрой СССР (Государственный комитет Совета Министров СССР по делам строительства) (USSR Gosstroy 40) |






































