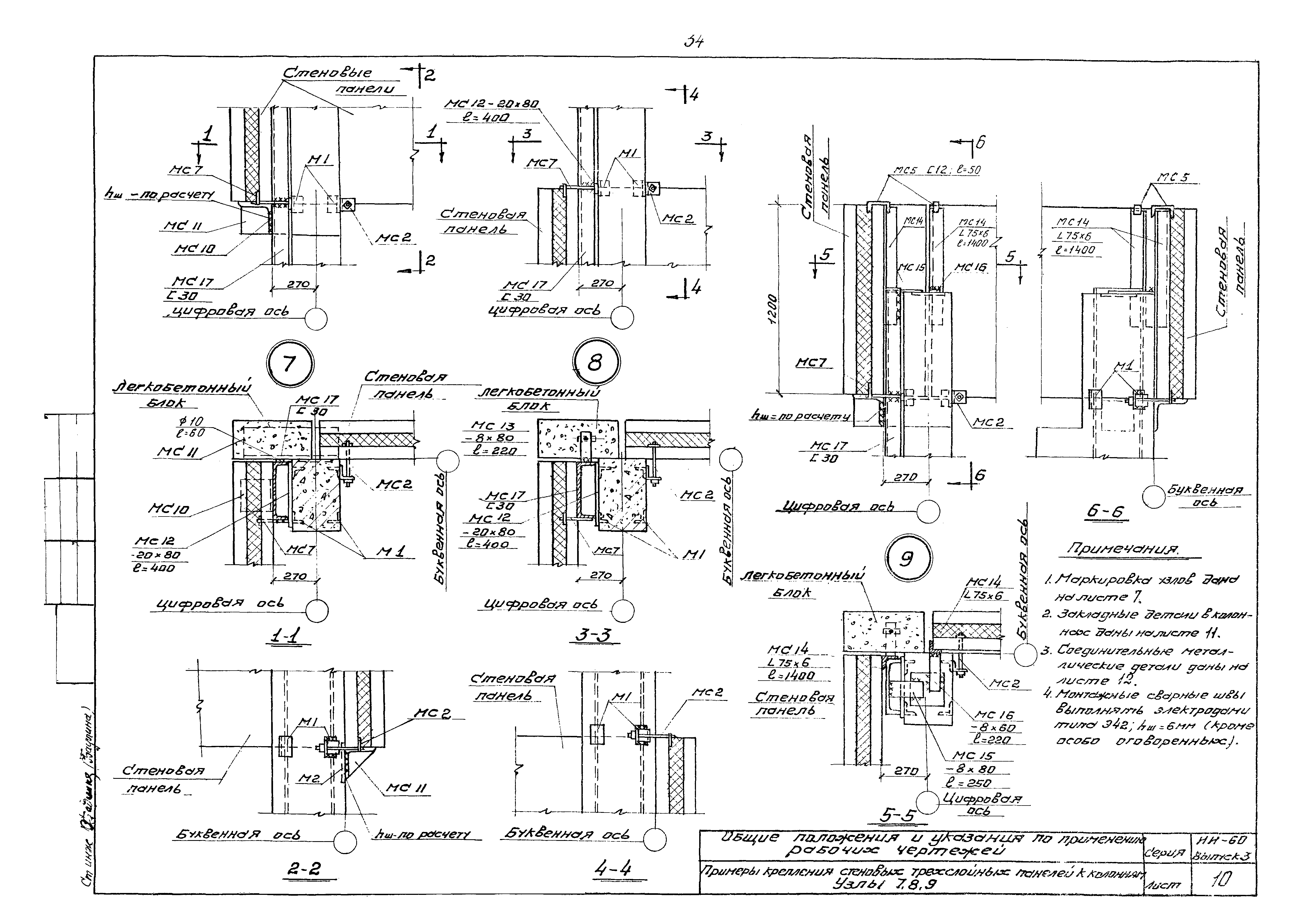
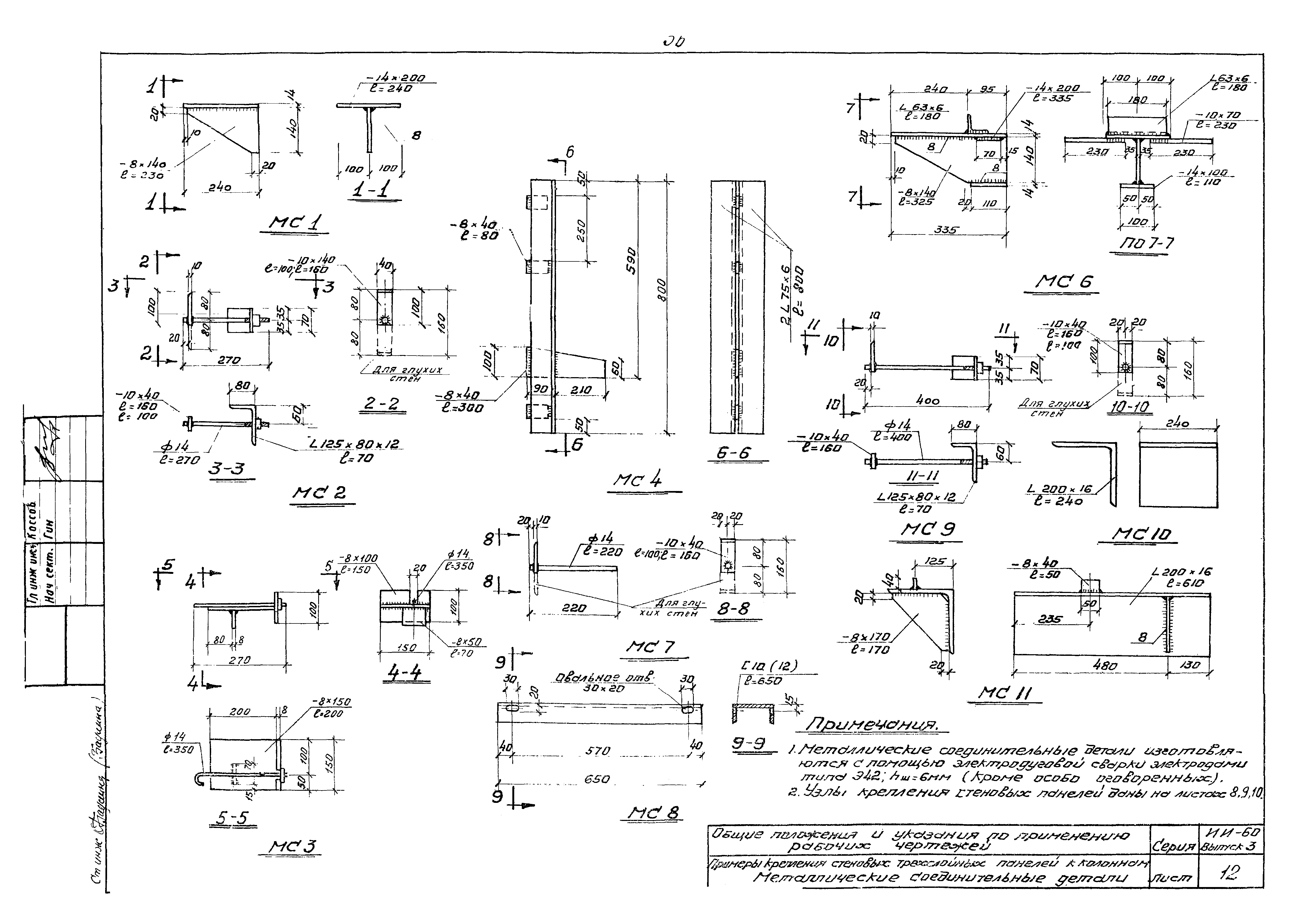
Скачать Серия ИИ-60 Выпуск 3. Общие положения и указания по применению рабочих чертежейДата актуализации: 01.01.2021
|
| Обозначение: | Серия ИИ-60 |
| Обозначение англ: | Series ИИ-60 |
| Статус: | не действует |
| Название рус.: | Выпуск 3. Общие положения и указания по применению рабочих чертежей |
| Дата добавления в базу: | 01.09.2013 |
| Дата актуализации: | 01.01.2021 |
| Разработан: | ГСПИ-10 Гипротис Гипромолпром Минмясомолпрома СССР НИИЖБ АСиА СССР |
| Утверждён: | 14.12.1962 Госстрой СССР (Государственный комитет Совета Министров СССР по делам строительства) (USSR Gosstroy 466) |





































