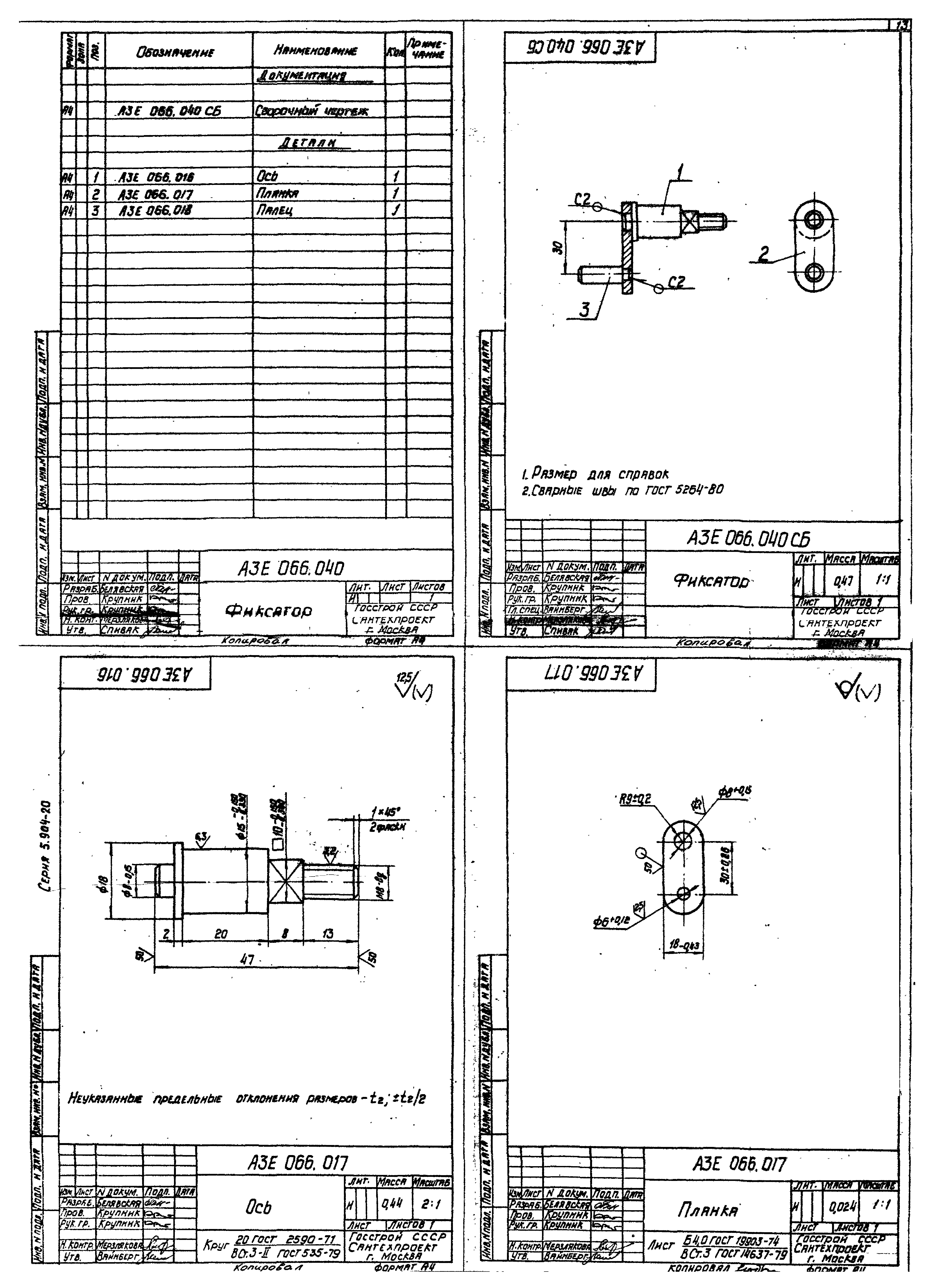
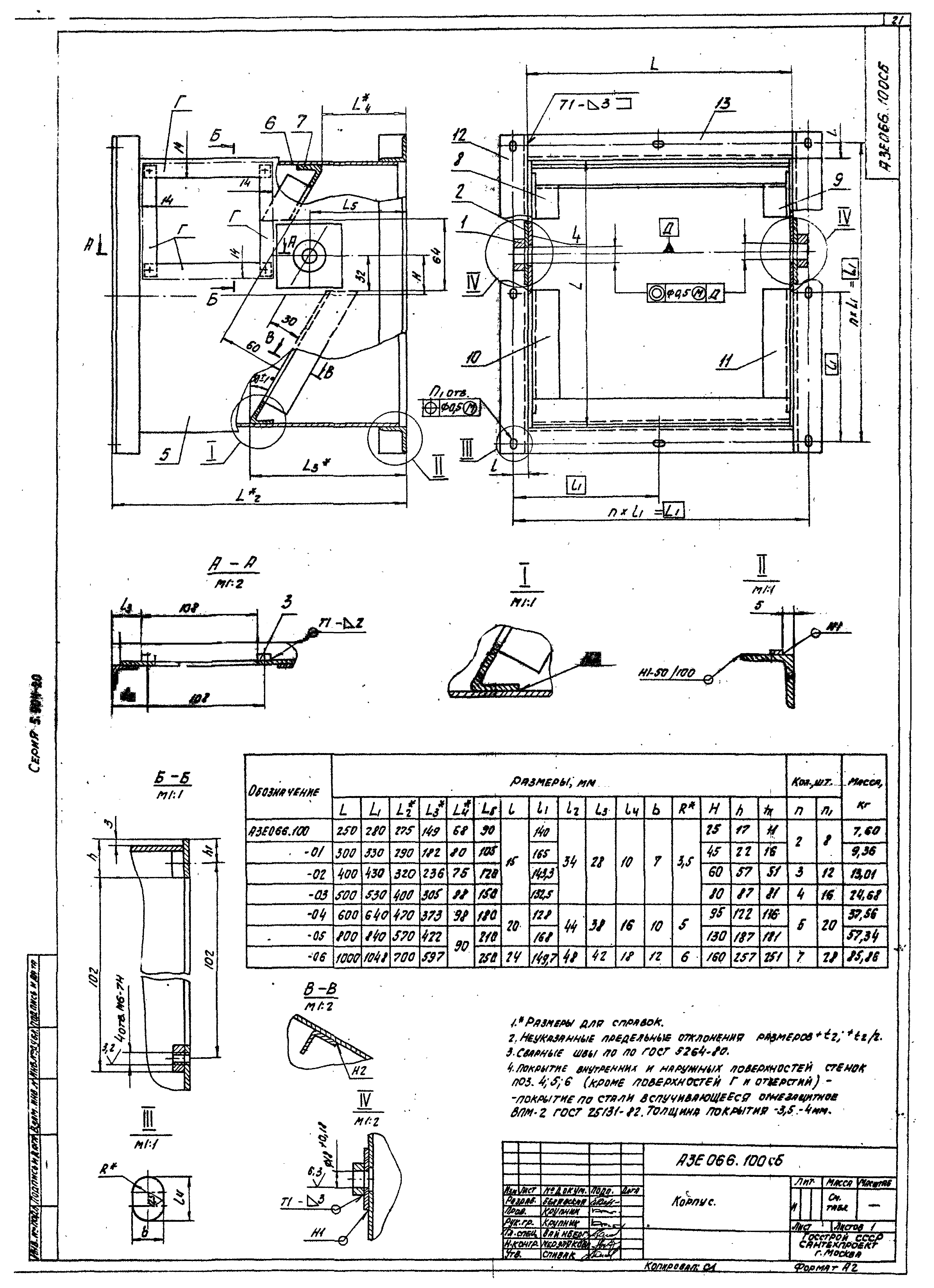
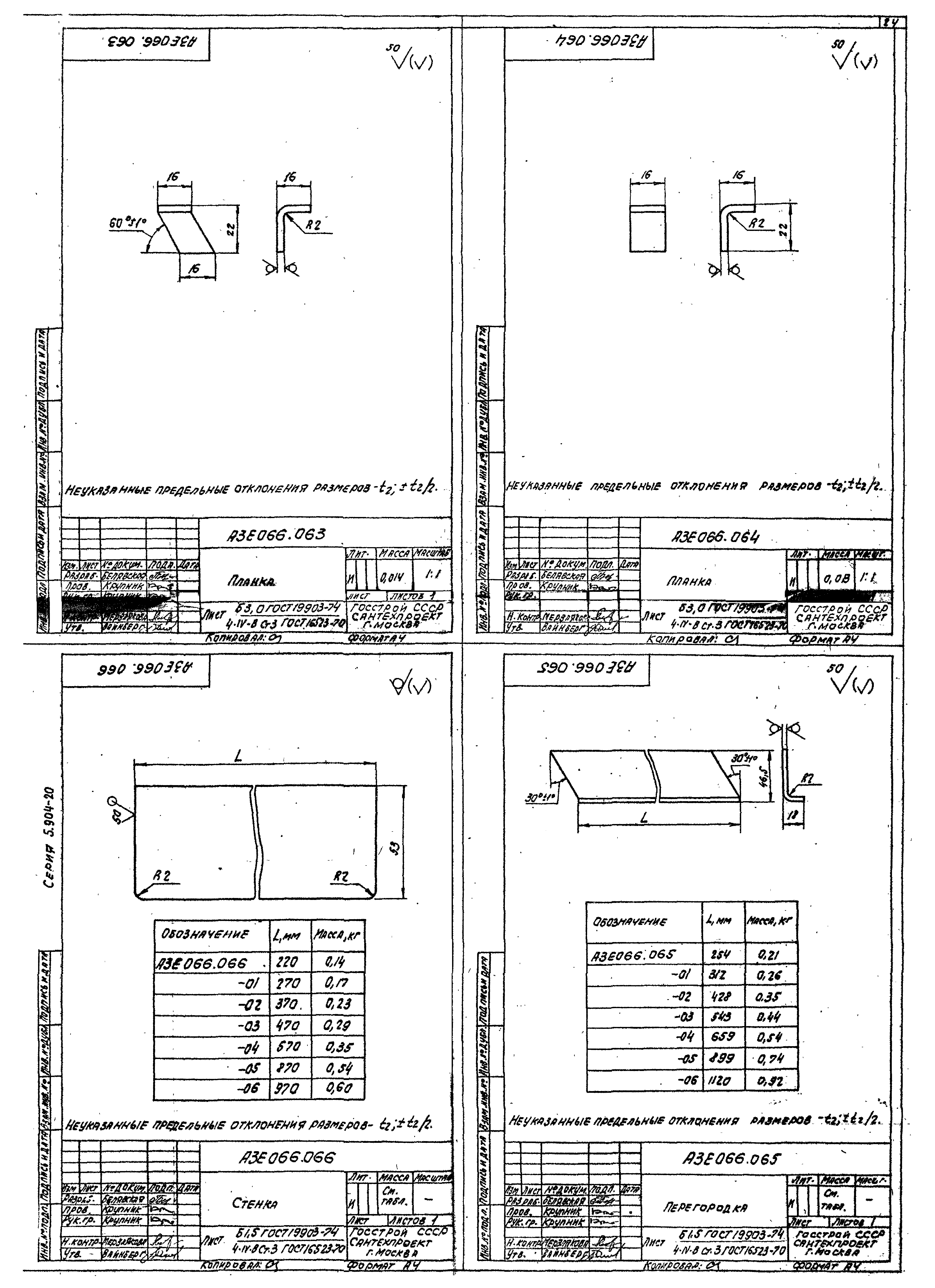
Скачать Серия 5.904-20 Клапаны огнезадерживающие. Рабочие чертежиДата актуализации: 01.01.2021
|
| Обозначение: | Серия 5.904-20 |
| Обозначение англ: | Series 5.904-20 |
| Статус: | заменен |
| Название рус.: | Клапаны огнезадерживающие. Рабочие чертежи |
| Дата добавления в базу: | 01.09.2013 |
| Дата актуализации: | 01.01.2021 |
| Дата введения: | 15.09.1983 |
| Дата окончания срока действия: | 01.09.1993 |
| Разработан: | Сантехпроект Госстроя СССР |
| Утверждён: | 12.09.1983 Главпромстройпроект Госстроя СССР (38) |
| Заменяет собой: |

























