Скачать Серия 1.138.1-12 Выпуск 1. Блоки толщиной 40, 50 и 60 см

Дата актуализации: 01.01.2021

Серия 1.138.1-12

Выпуск 1. Блоки толщиной 40, 50 и 60 см

Обозначение: Серия 1.138.1-12
Обозначение англ: Series 1.138.1-12
Статус:заменен
Название рус.:Выпуск 1. Блоки толщиной 40, 50 и 60 см
Дата добавления в базу:01.09.2013
Дата актуализации:01.01.2021
Дата введения:01.07.1981
Дата окончания срока действия:01.10.1989
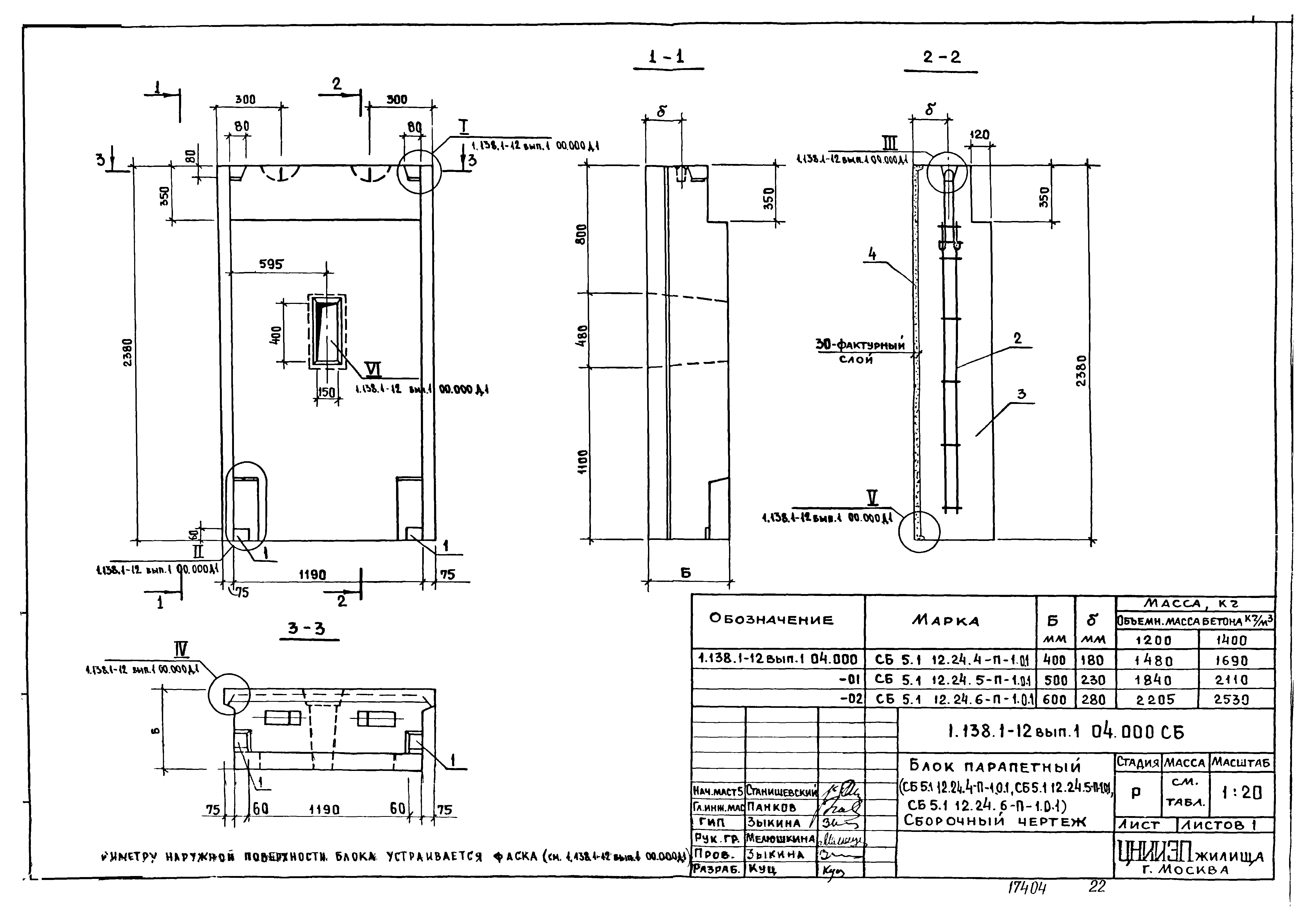
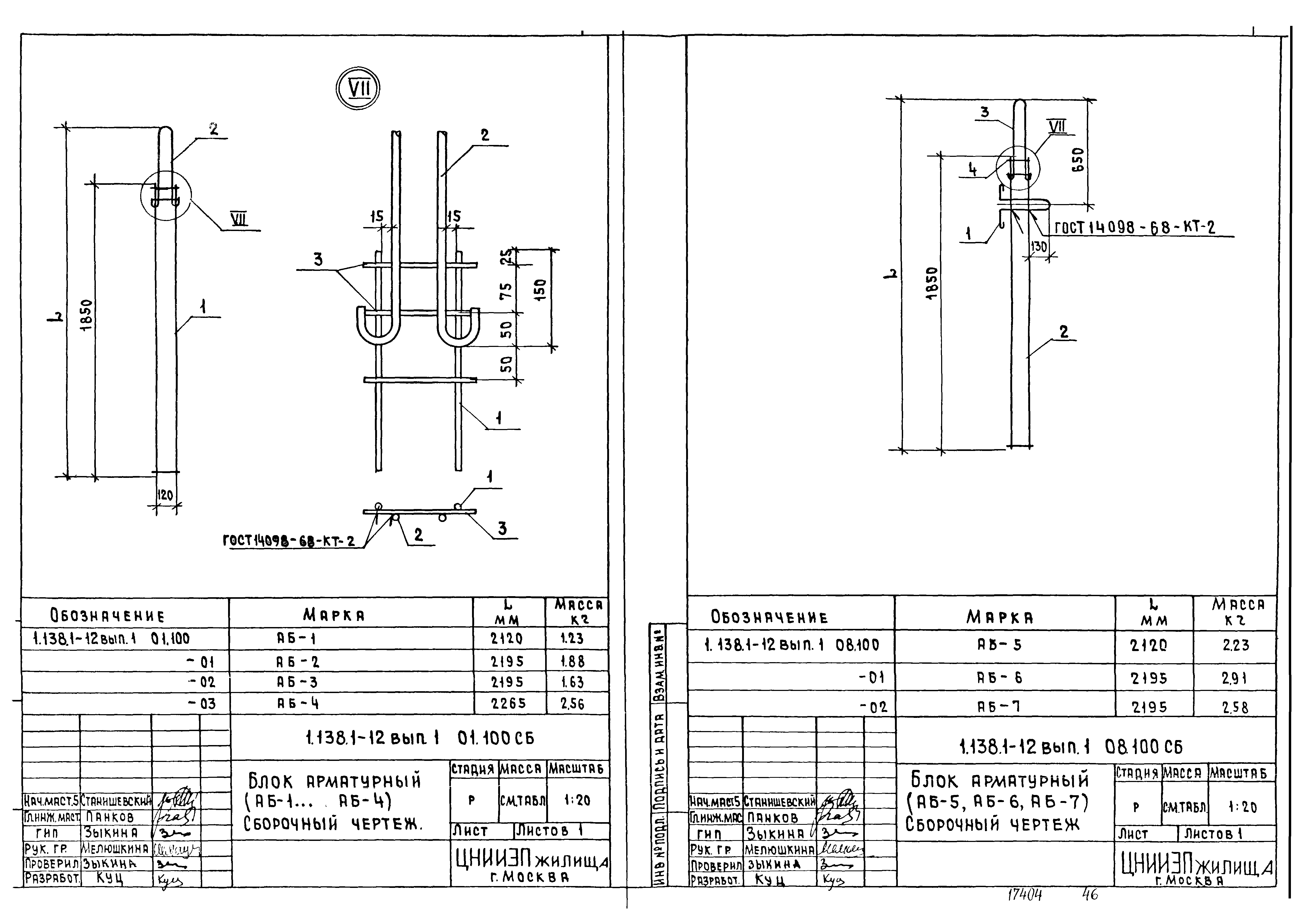
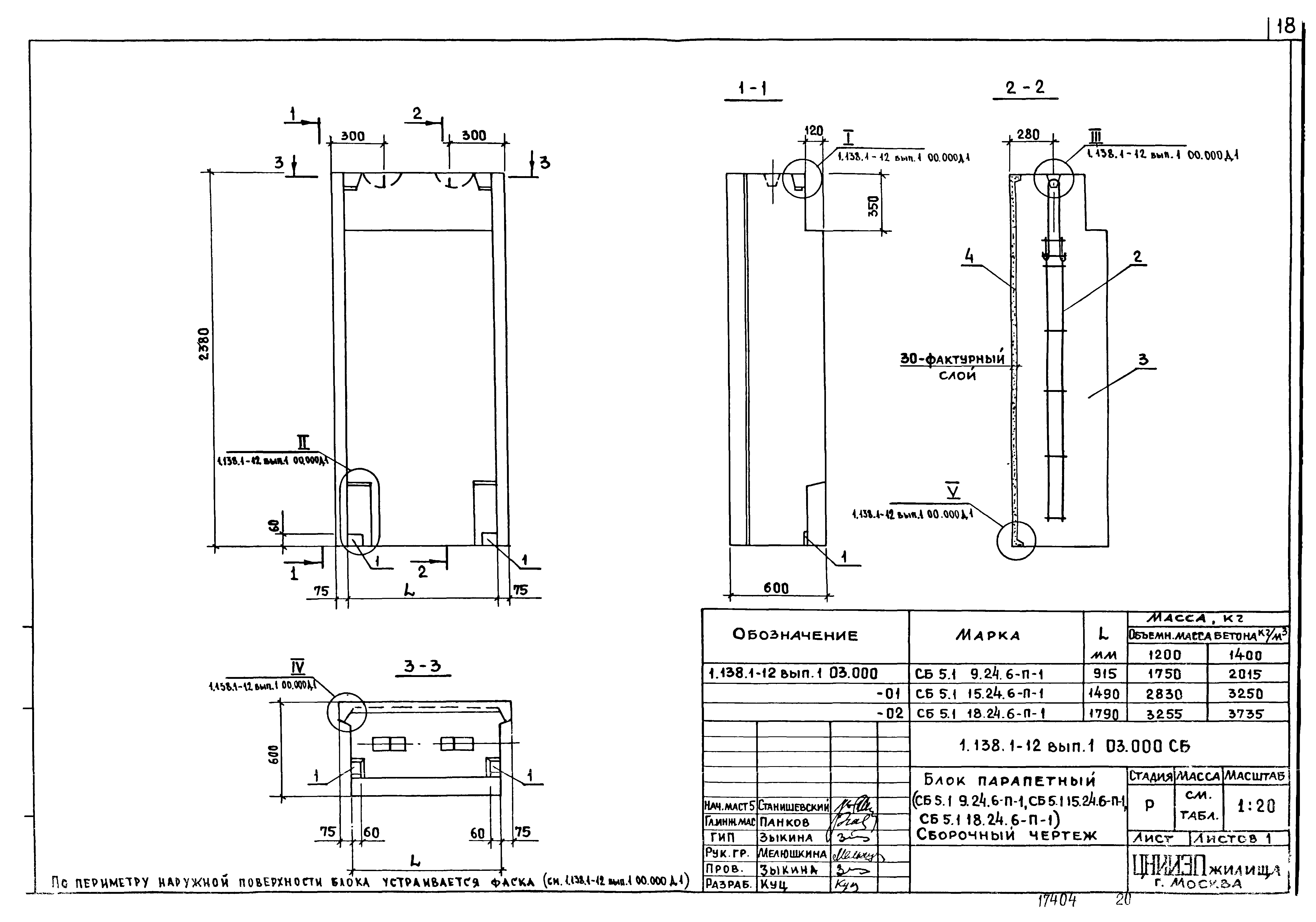
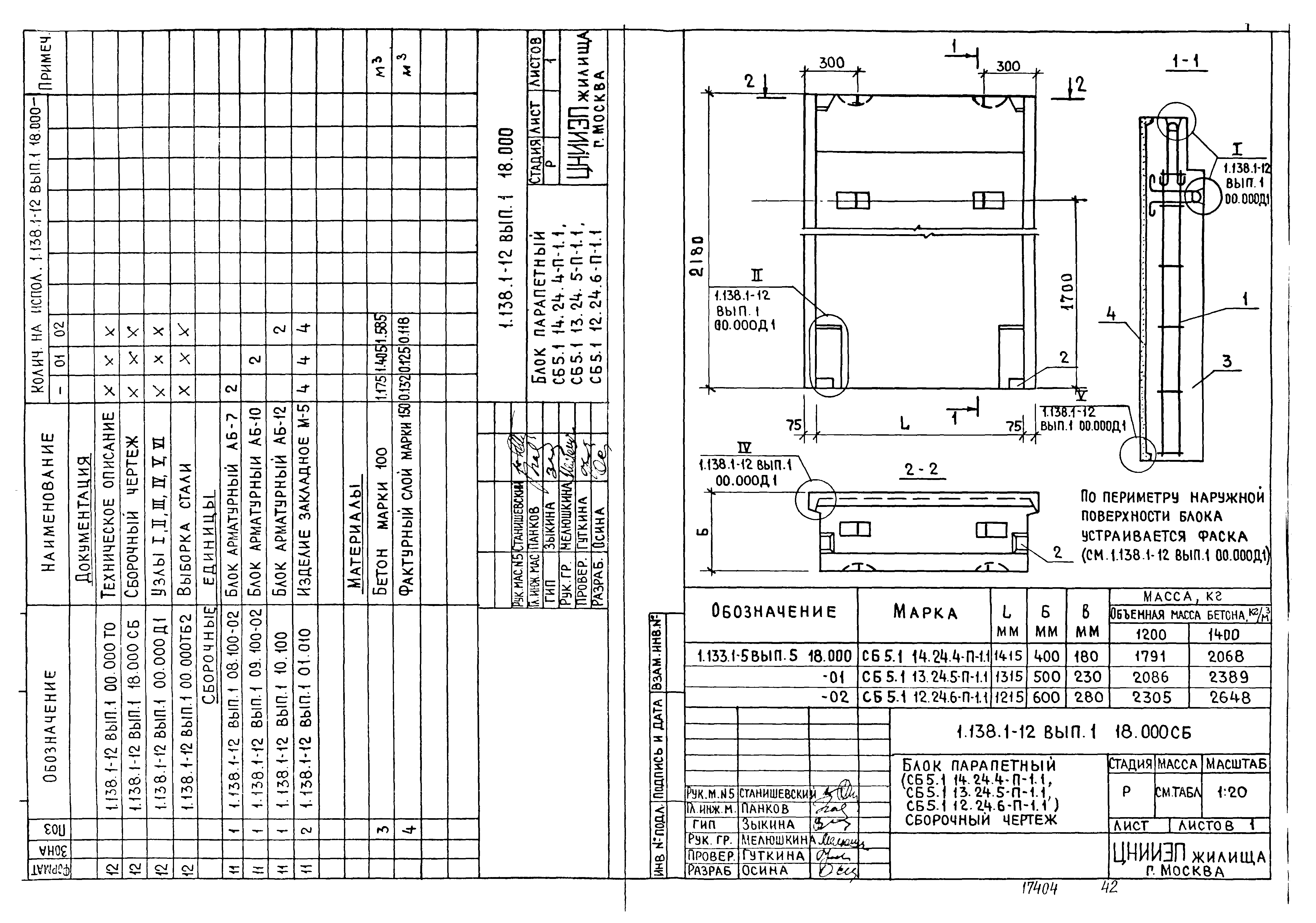
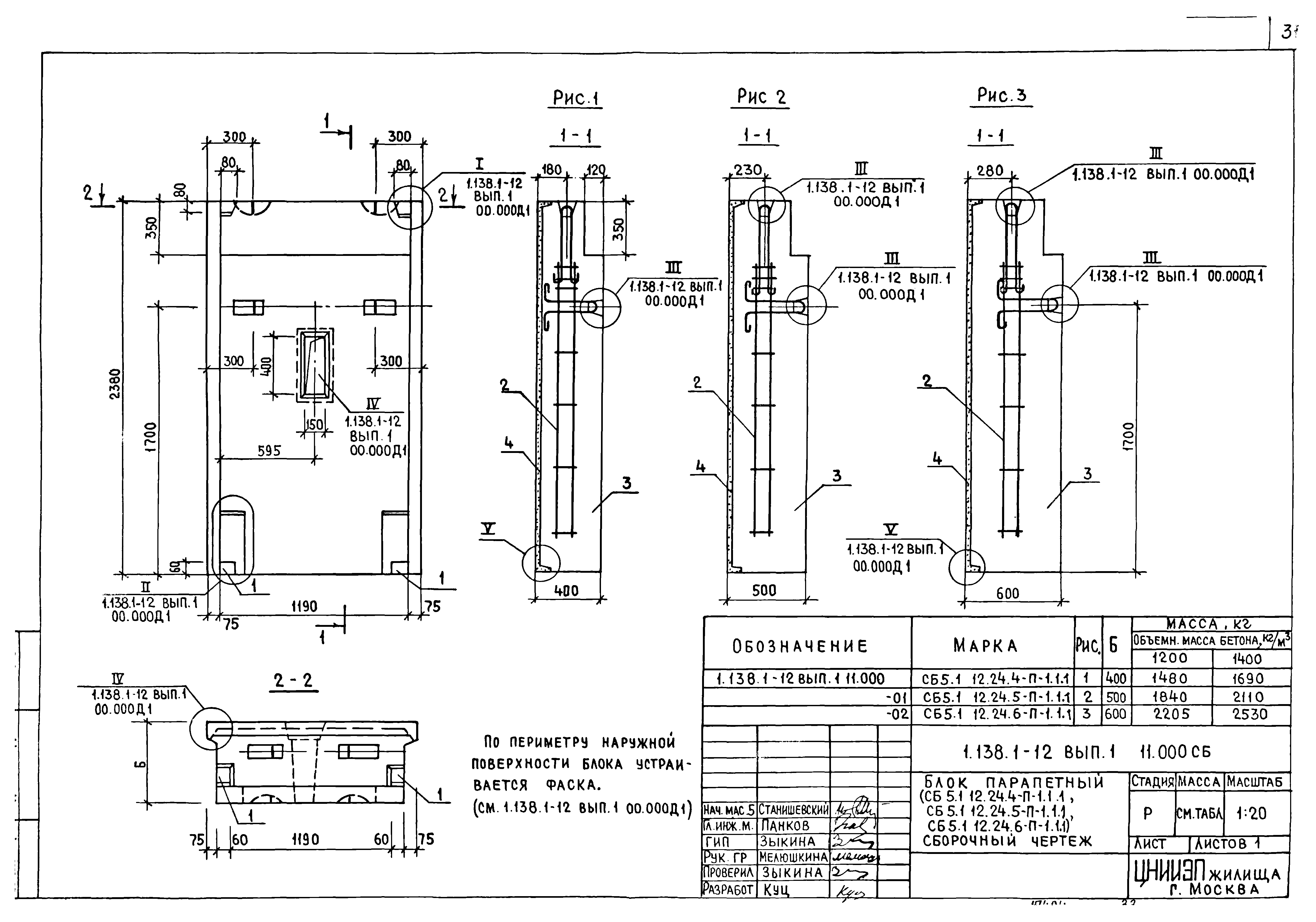
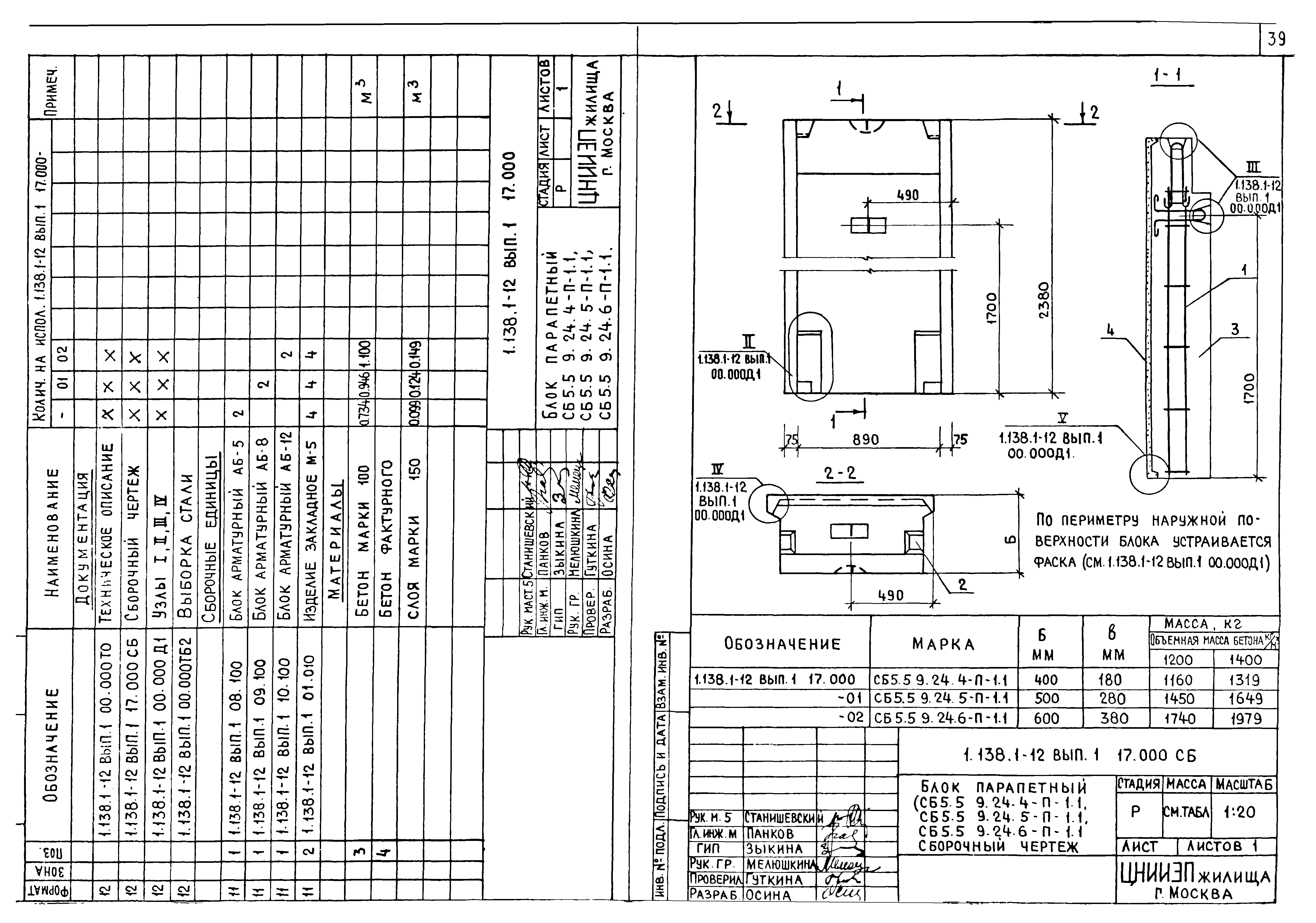
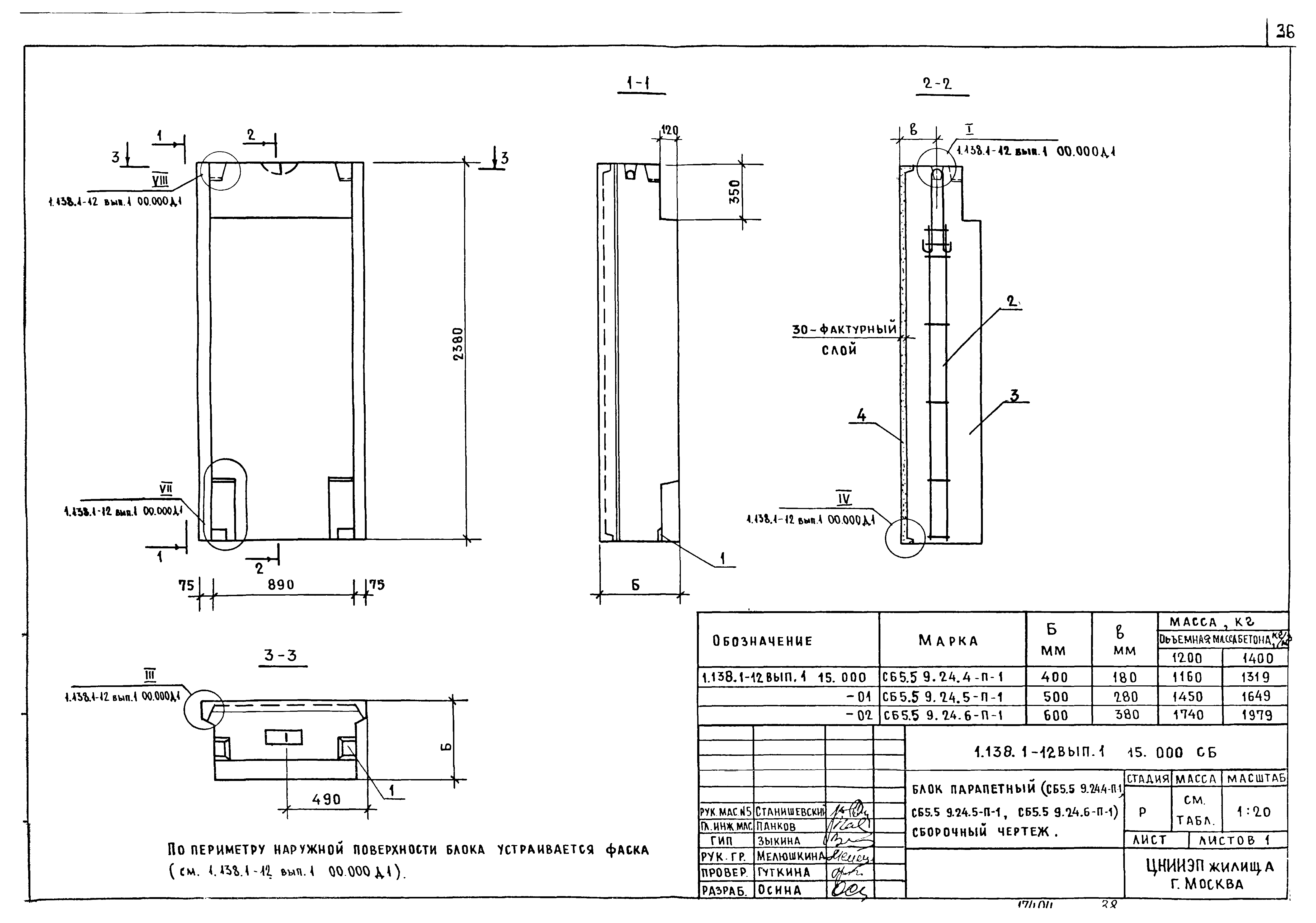
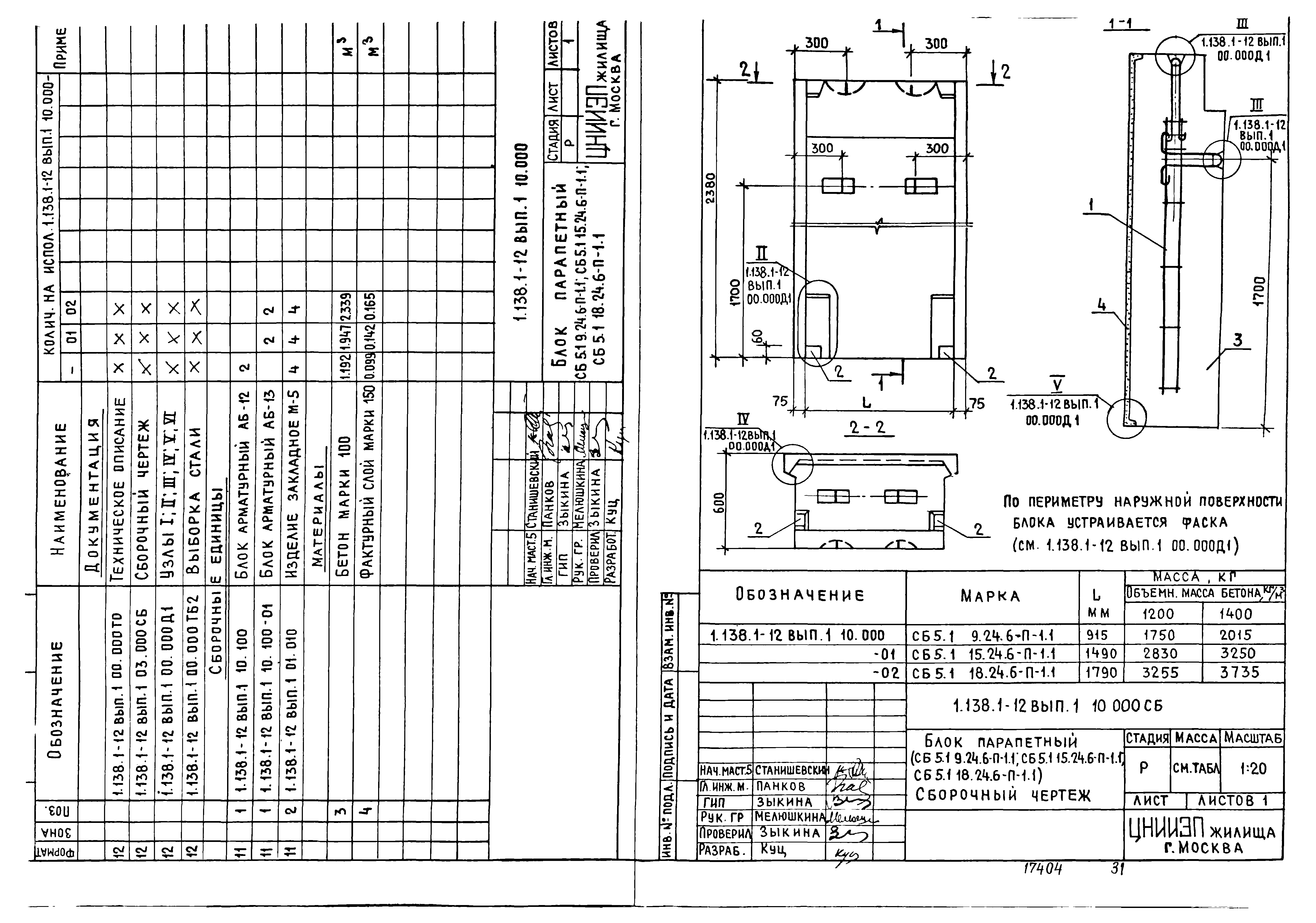
Область применения:Рабочие чертежи блоков парапета, разработанные в настоящем выпуске, предназначены для изготовления блоков предприятиями строительной промышленности и применения в наружных стенах жилых домов с крупноблочными стенами высотой 5 - 9 этажей
Разработан: ЦНИИЭП жилища
Утверждён:04.06.1981 Государственный комитет по гражданскому строительству и архитектуре при Госстрое СССР (177)
Чем заменён:
Нормативные ссылки:
Серия 1.138.1-12Серия 1.138.1-12Серия 1.138.1-12Серия 1.138.1-12Серия 1.138.1-12Серия 1.138.1-12Серия 1.138.1-12Серия 1.138.1-12Серия 1.138.1-12Серия 1.138.1-12Серия 1.138.1-12Серия 1.138.1-12Серия 1.138.1-12Серия 1.138.1-12Серия 1.138.1-12Серия 1.138.1-12Серия 1.138.1-12Серия 1.138.1-12Серия 1.138.1-12Серия 1.138.1-12Серия 1.138.1-12Серия 1.138.1-12Серия 1.138.1-12Серия 1.138.1-12Серия 1.138.1-12Серия 1.138.1-12Серия 1.138.1-12Серия 1.138.1-12Серия 1.138.1-12Серия 1.138.1-12Серия 1.138.1-12Серия 1.138.1-12Серия 1.138.1-12Серия 1.138.1-12Серия 1.138.1-12Серия 1.138.1-12Серия 1.138.1-12Серия 1.138.1-12Серия 1.138.1-12Серия 1.138.1-12Серия 1.138.1-12Серия 1.138.1-12Серия 1.138.1-12Серия 1.138.1-12Серия 1.138.1-12Серия 1.138.1-12Серия 1.138.1-12Серия 1.138.1-12Серия 1.138.1-12Серия 1.138.1-12Серия 1.138.1-12Серия 1.138.1-12