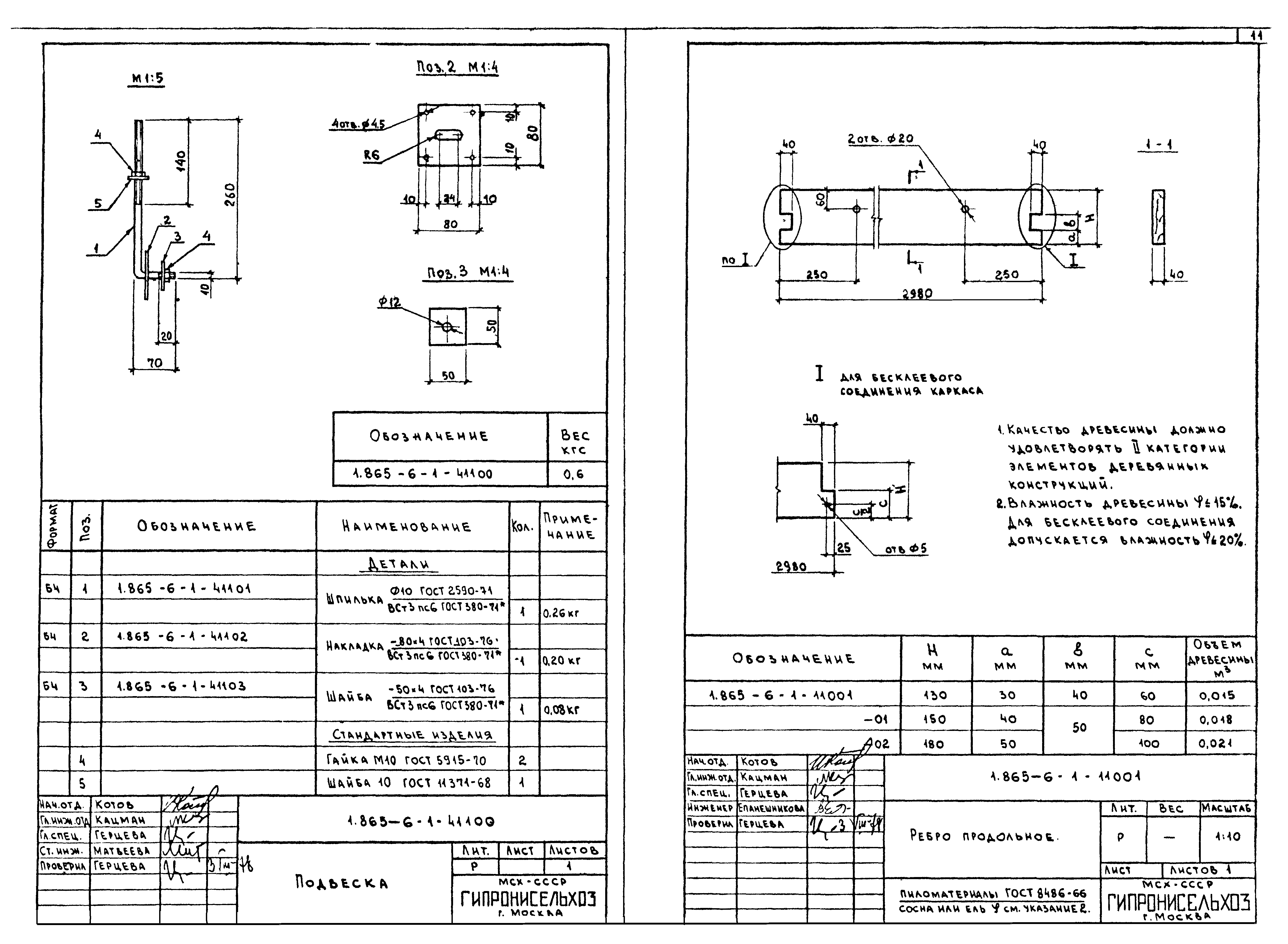
Скачать Серия 1.865-6 Выпуск 1. Плиты длиной до 3-х м с асбестоцементной нижней обшивкой для покрытий с кровлей из асбестоцементных волнистых листов и для подвесных потолков. Рабочие чертежиДата актуализации: 01.01.2021
|
| Обозначение: | Серия 1.865-6 |
| Обозначение англ: | Series 1.865-6 |
| Статус: | не действует |
| Название рус.: | Выпуск 1. Плиты длиной до 3-х м с асбестоцементной нижней обшивкой для покрытий с кровлей из асбестоцементных волнистых листов и для подвесных потолков. Рабочие чертежи |
| Дата добавления в базу: | 01.09.2013 |
| Дата актуализации: | 01.01.2021 |
| Дата введения: | 01.10.1978 |
| Дата окончания срока действия: | 01.02.1989 |
| Разработан: | ЦНИИСК им. В.А. Кучеренко ЦНИИЭПсельстрой ГипроНИсельхоз (Институт Гипронисельхоз ) |
| Утверждён: | 27.04.1978 Госстрой СССР (Государственный комитет Совета Министров СССР по делам строительства) (USSR Gosstroy 2/3-185) |
| Чем заменён: |


































