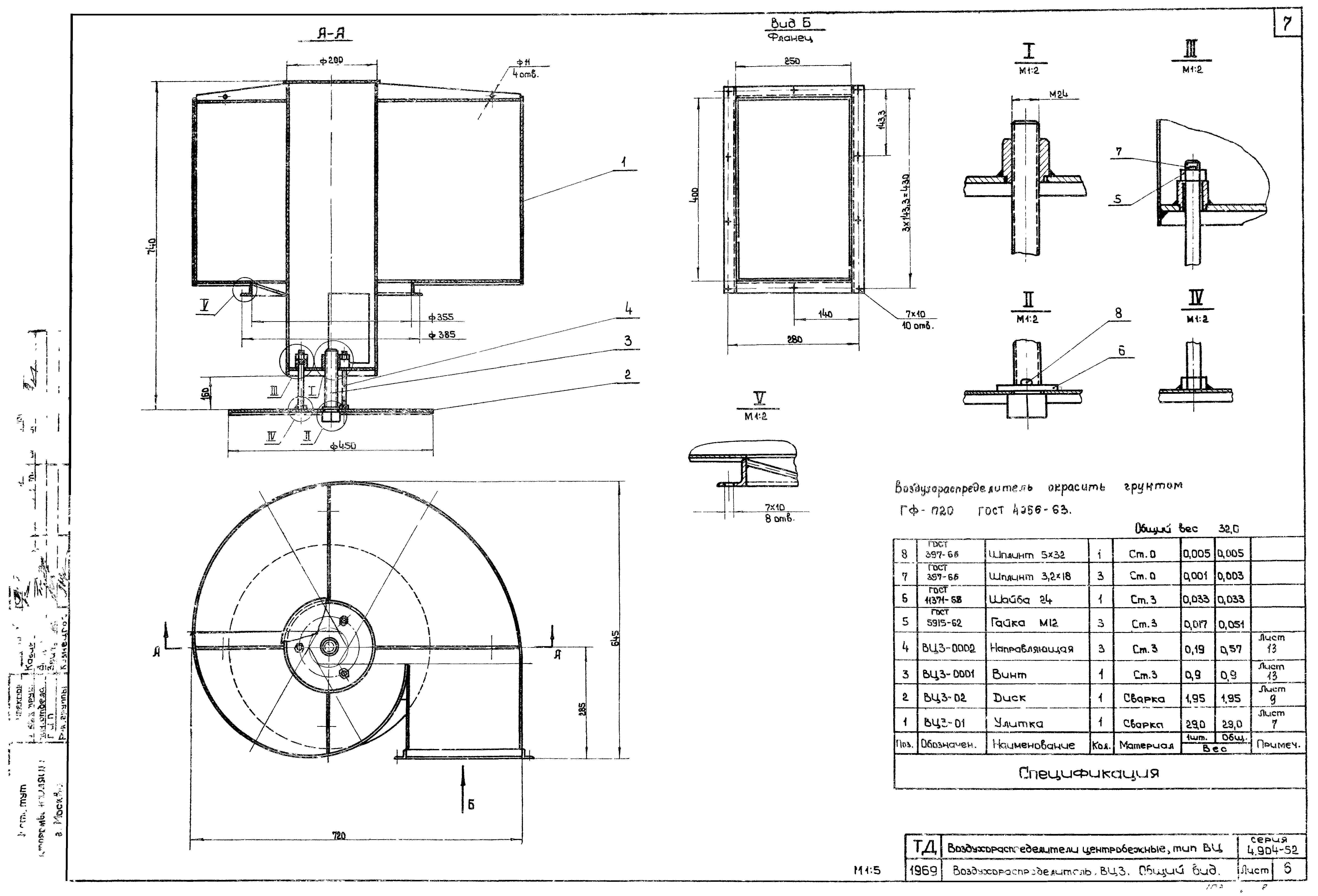
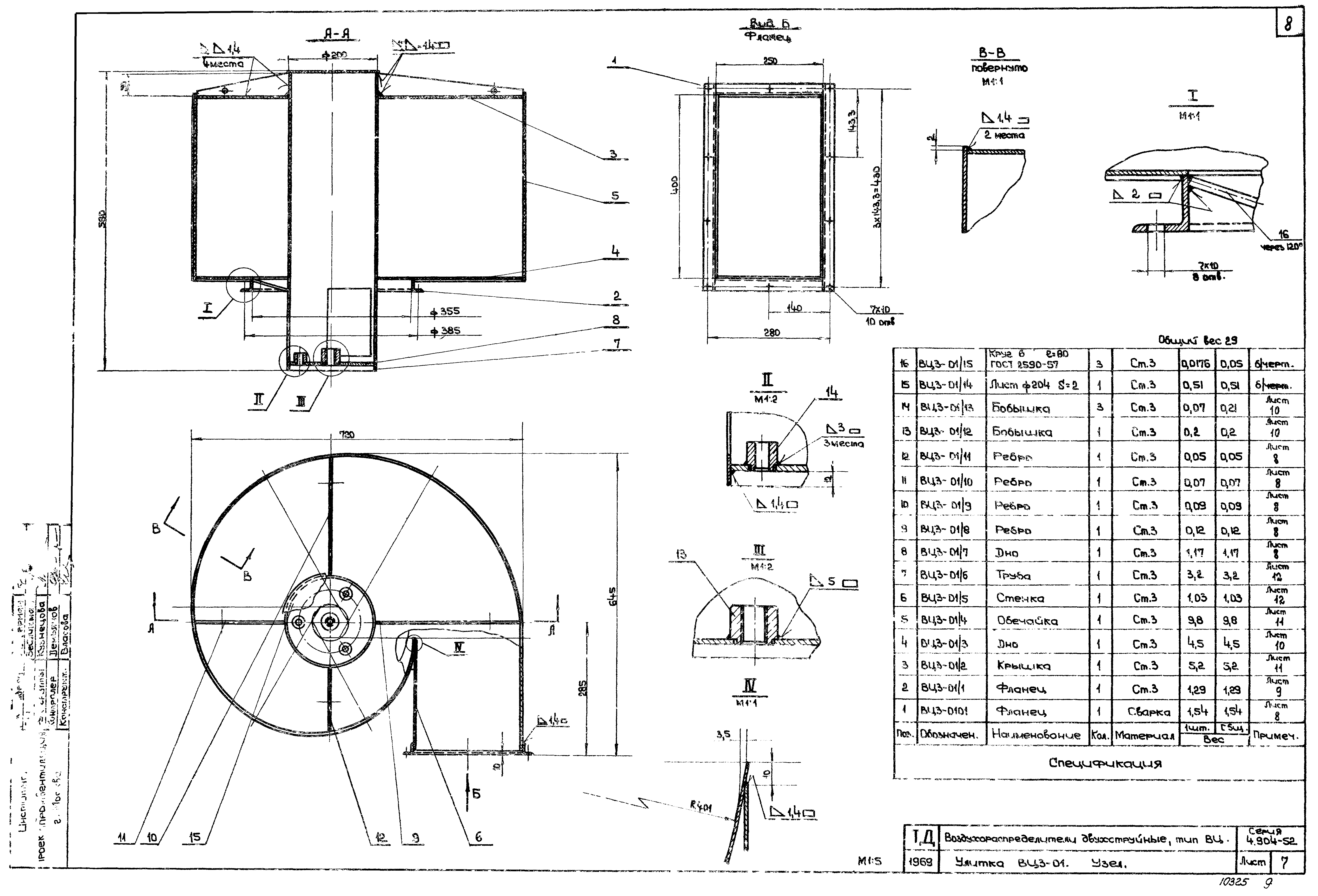
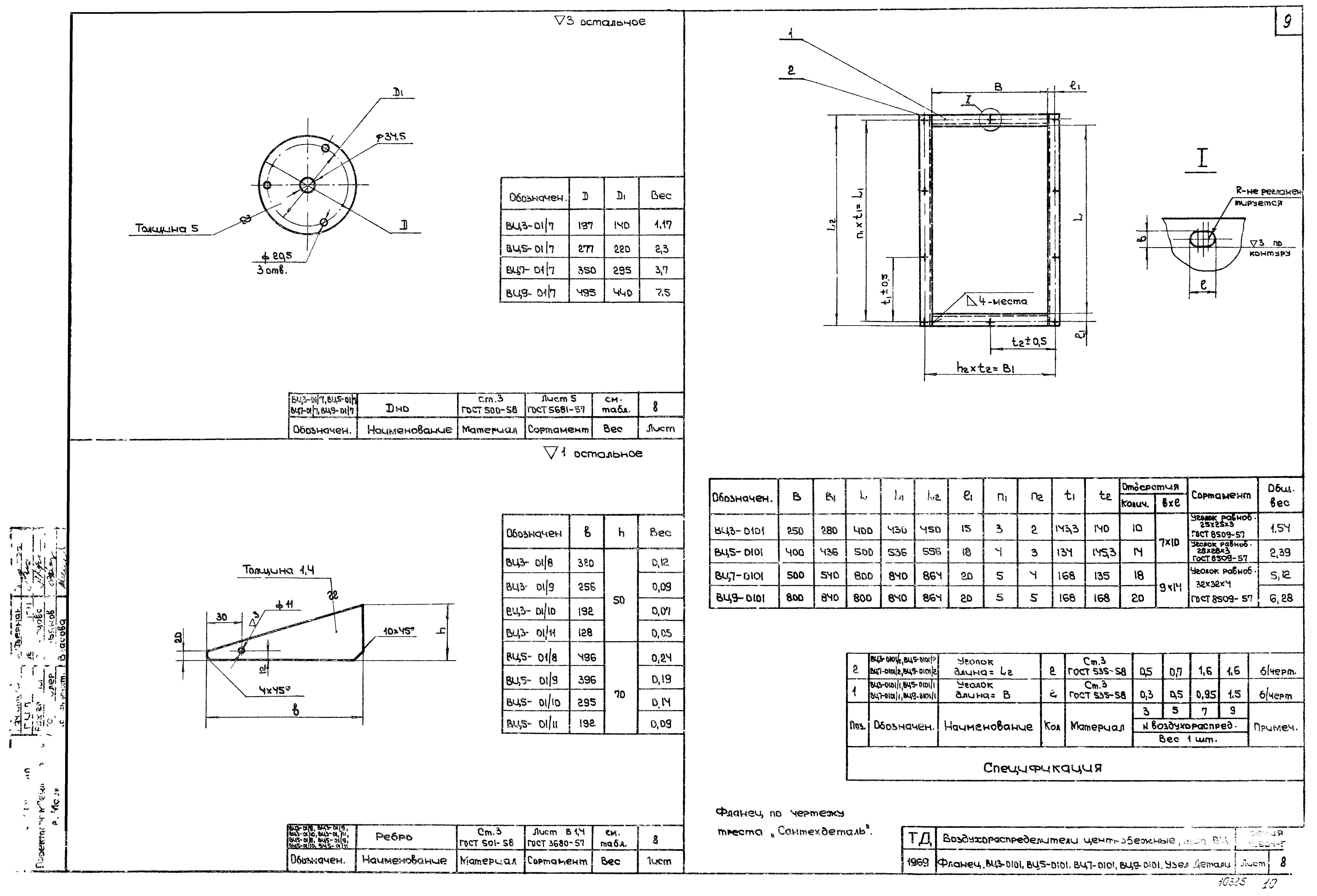
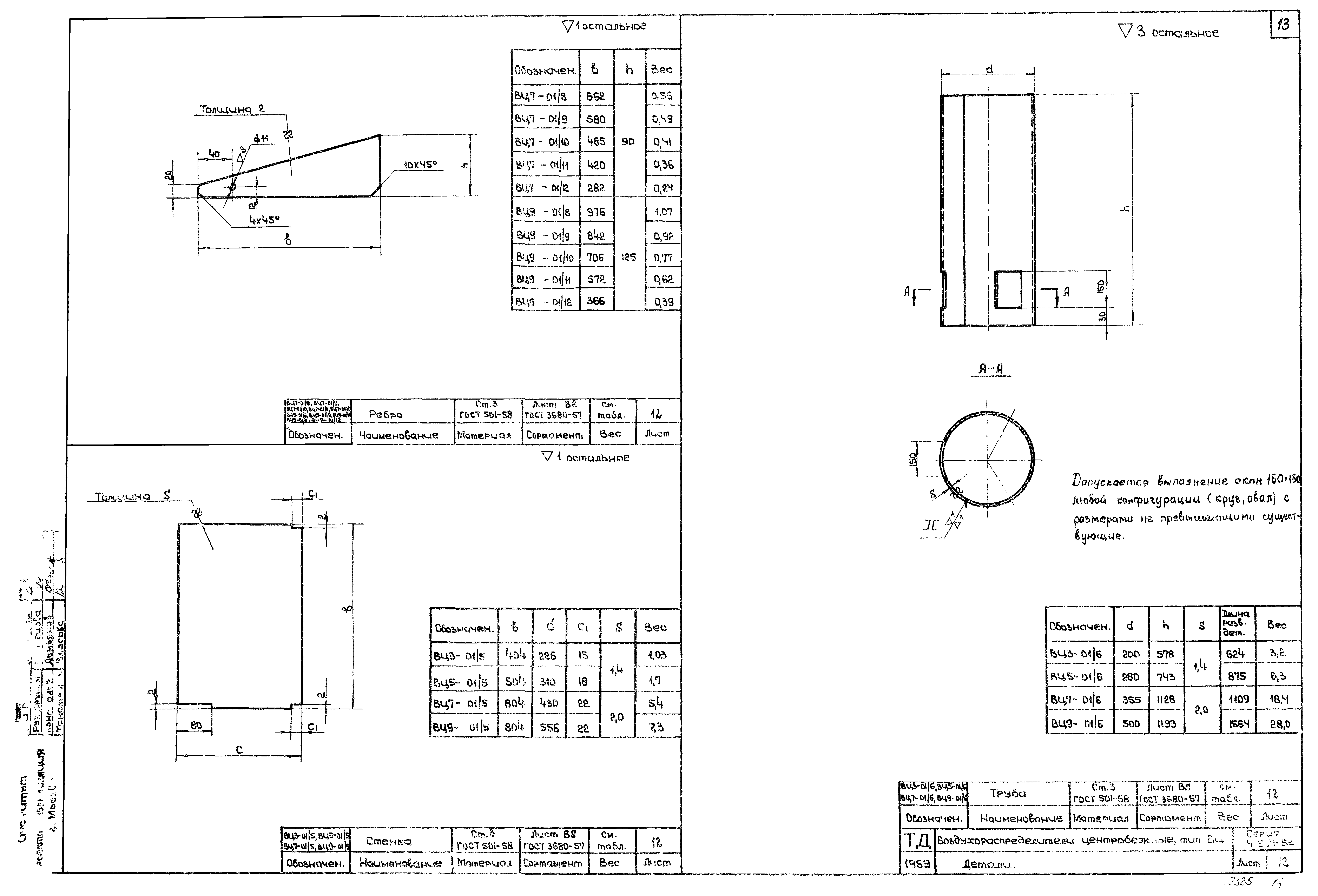
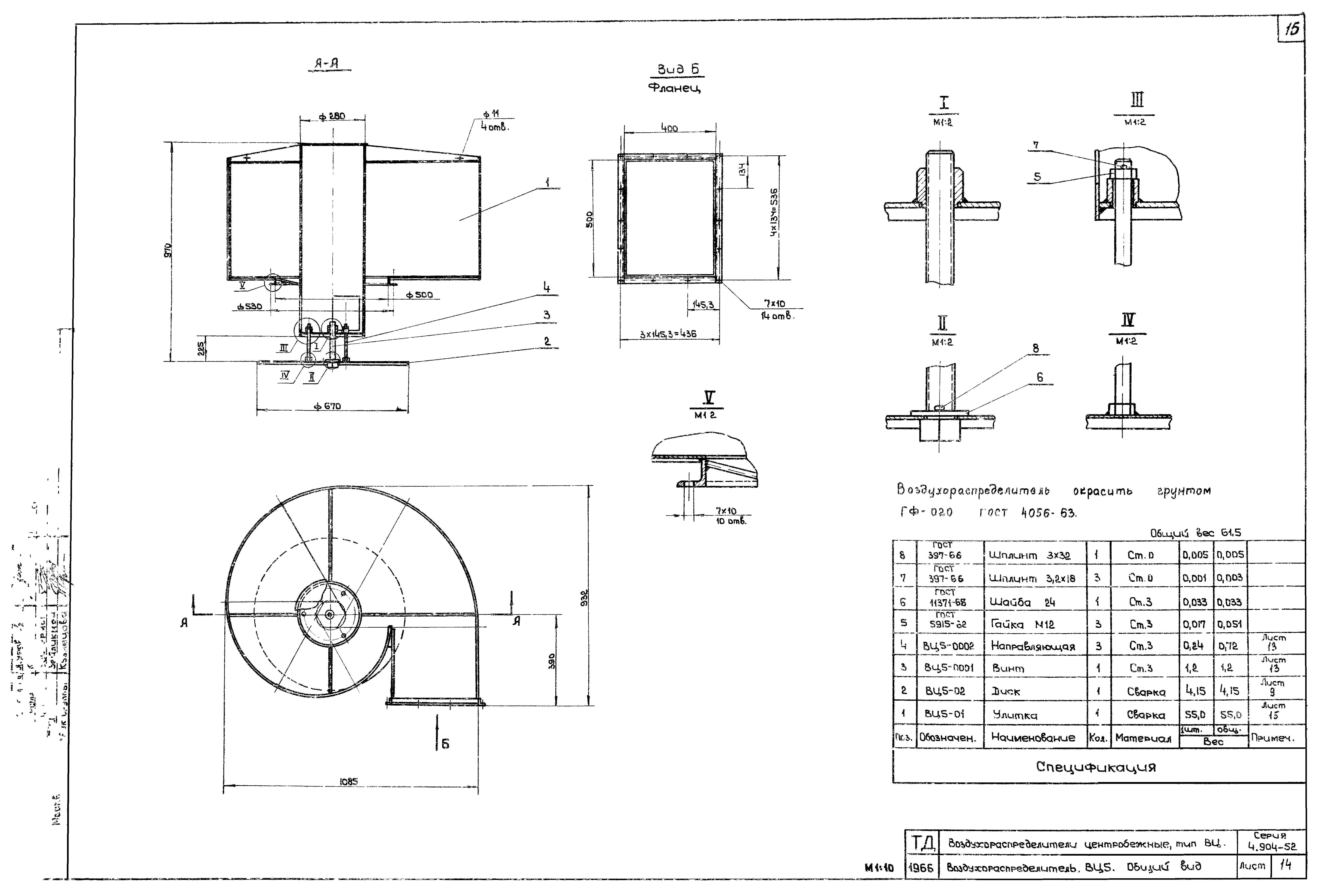
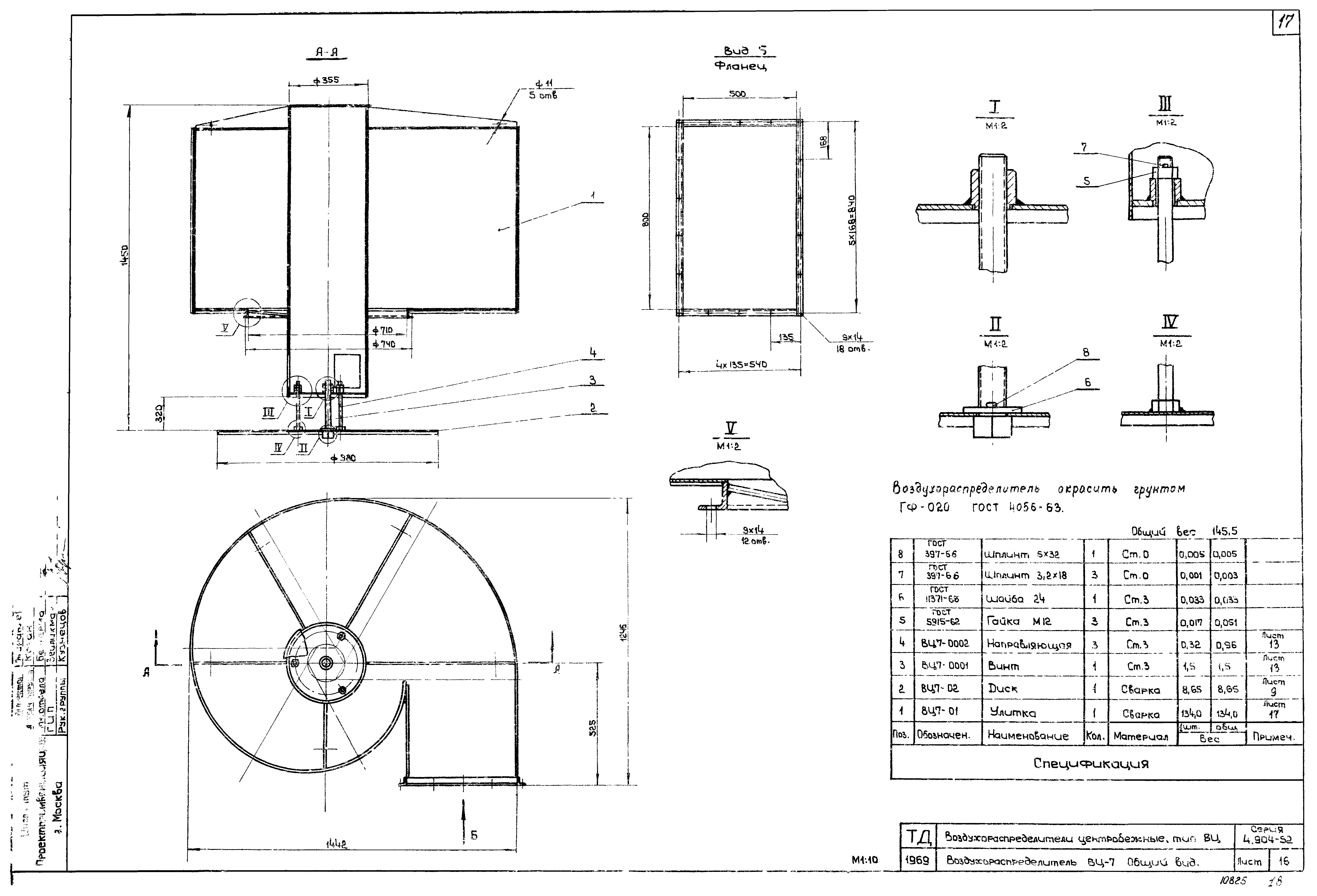
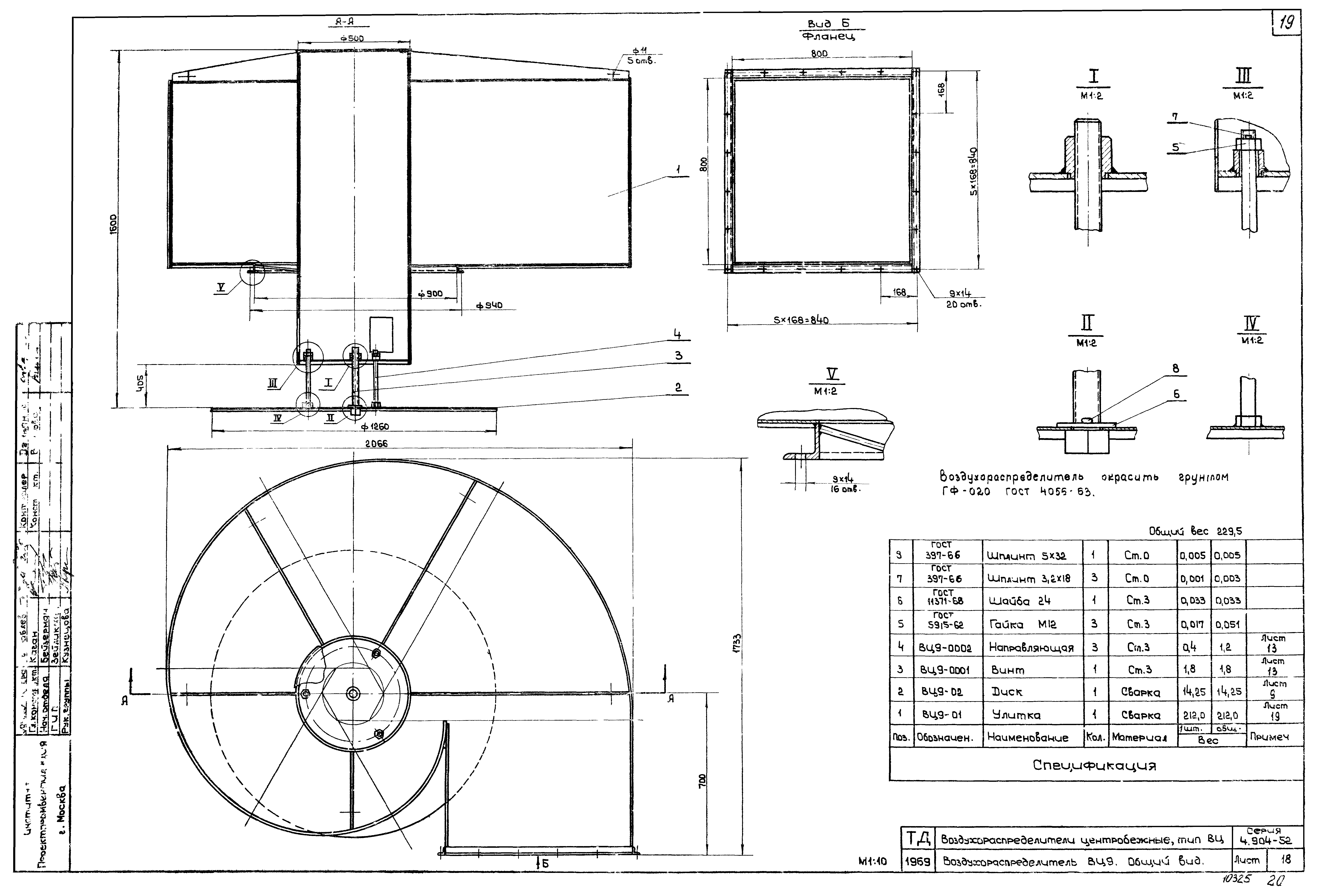
Скачать Серия 4.904-52 Воздухораспределители центробежные тип ВЦ. Рабочие чертежиДата актуализации: 01.01.2021 Серия 4.904-52
Воздухораспределители центробежные тип ВЦ. Рабочие чертежи| Обозначение: | Серия 4.904-52 | | Обозначение англ: | Series 4.904-52 | | Статус: | не действует | | Название рус.: | Воздухораспределители центробежные тип ВЦ. Рабочие чертежи | | Дата добавления в базу: | 01.09.2013 | | Дата актуализации: | 01.01.2021 | | Дата введения: | 01.01.1970 | | Дата окончания срока действия: | 01.05.1984 | | Разработан: | Проектпромвентиляция ВНИИГС
| | Утверждён: | 26.11.1969 Главпромстройпроект Госстроя СССР (47)
|
                    
|