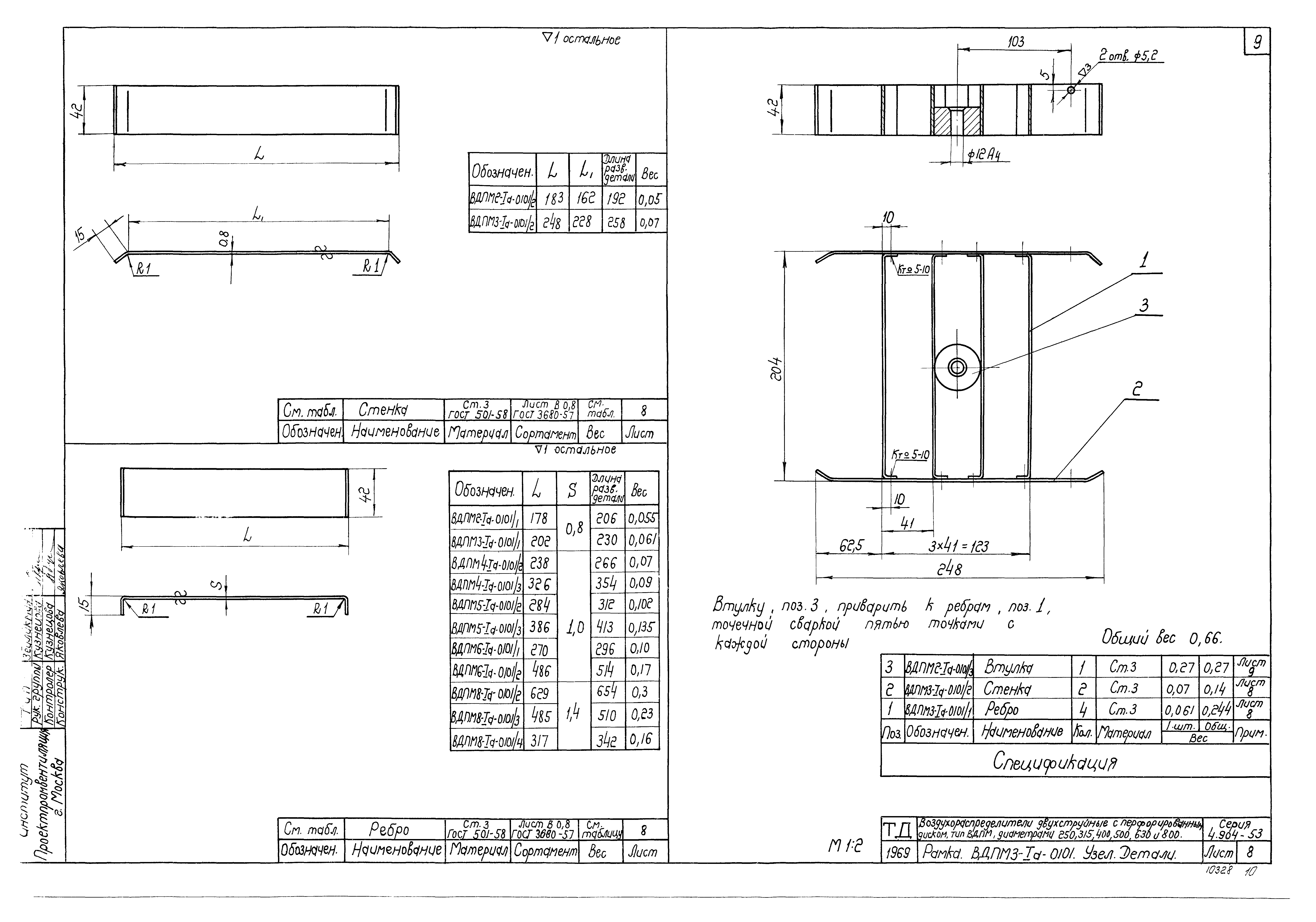
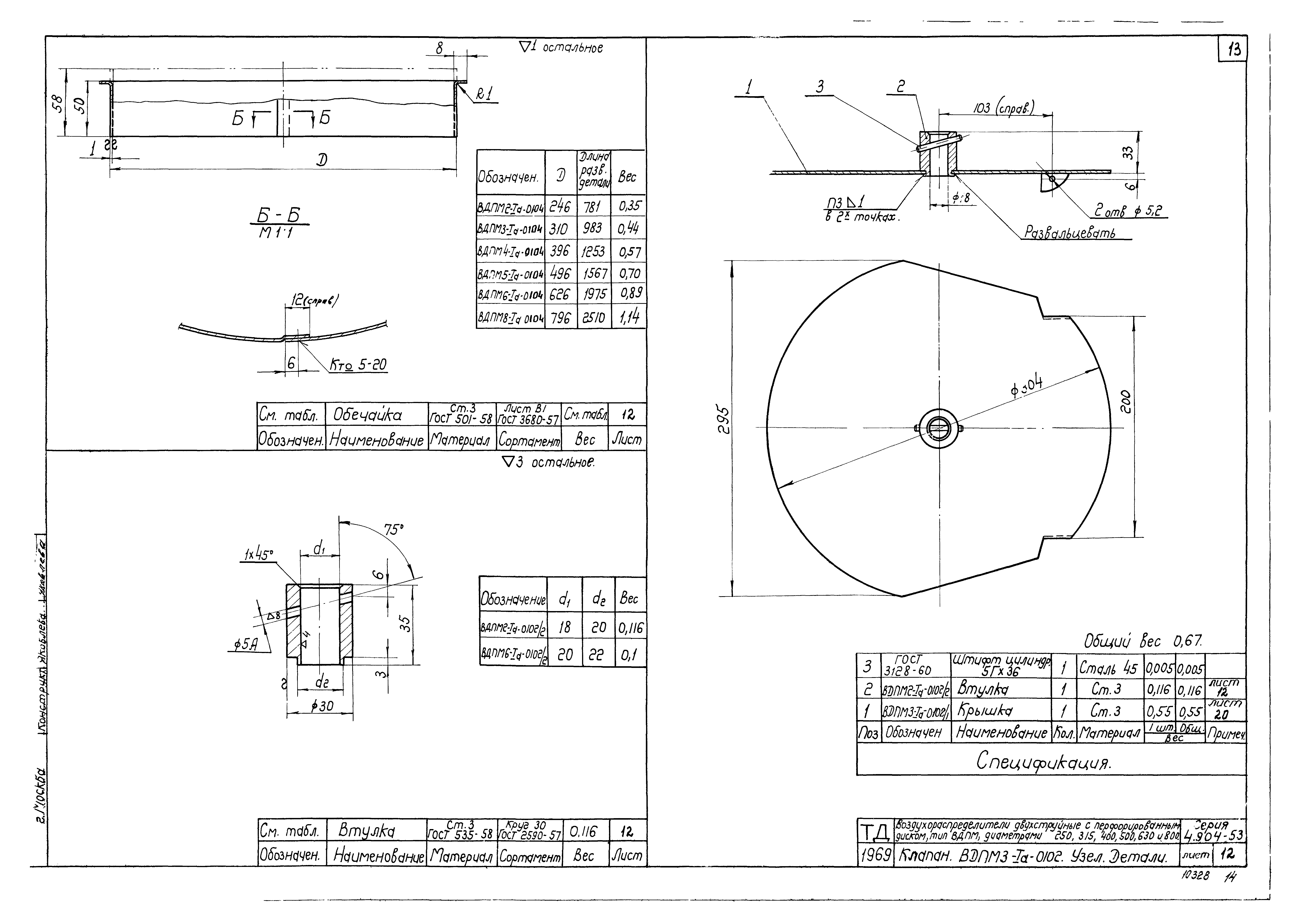
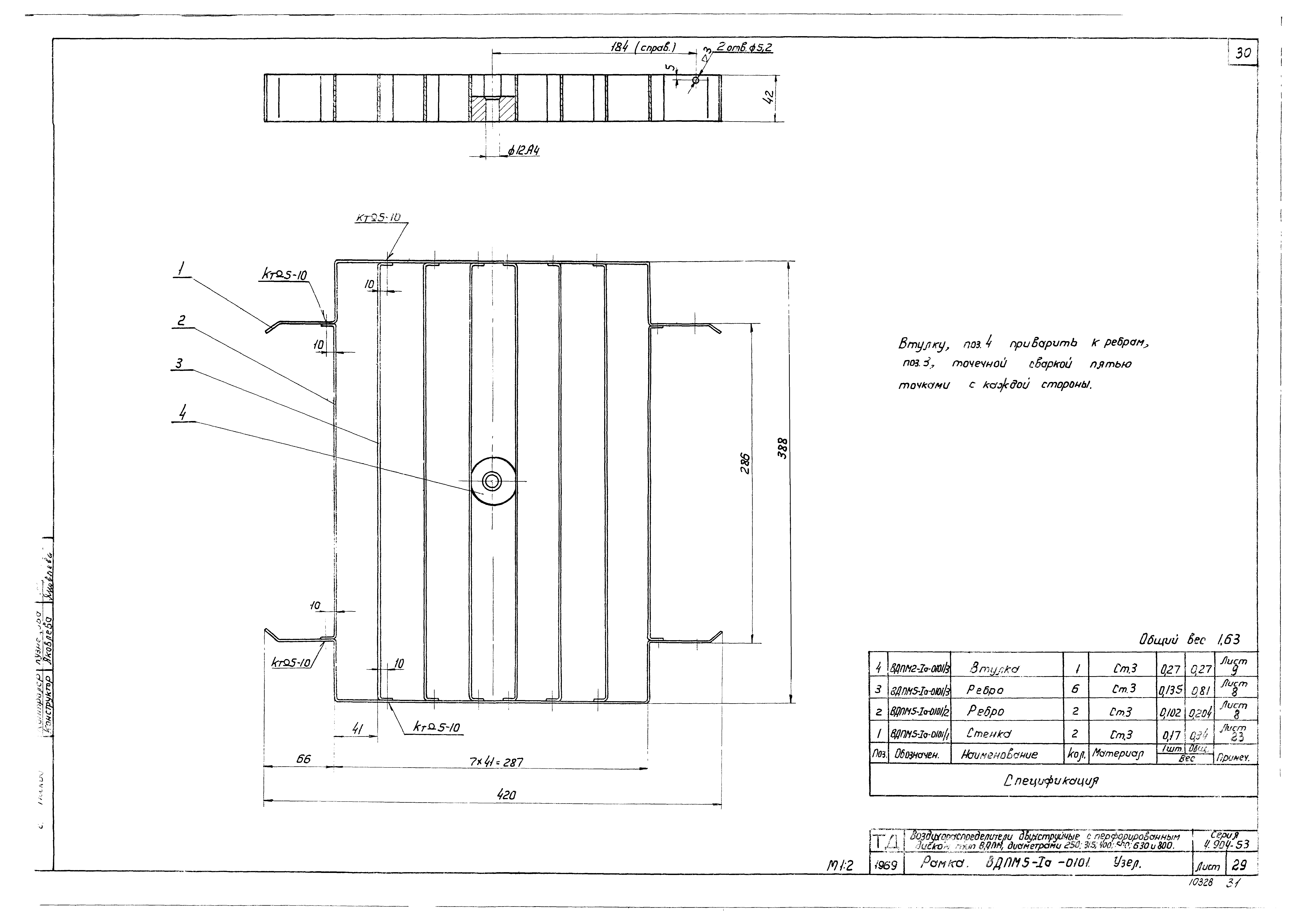
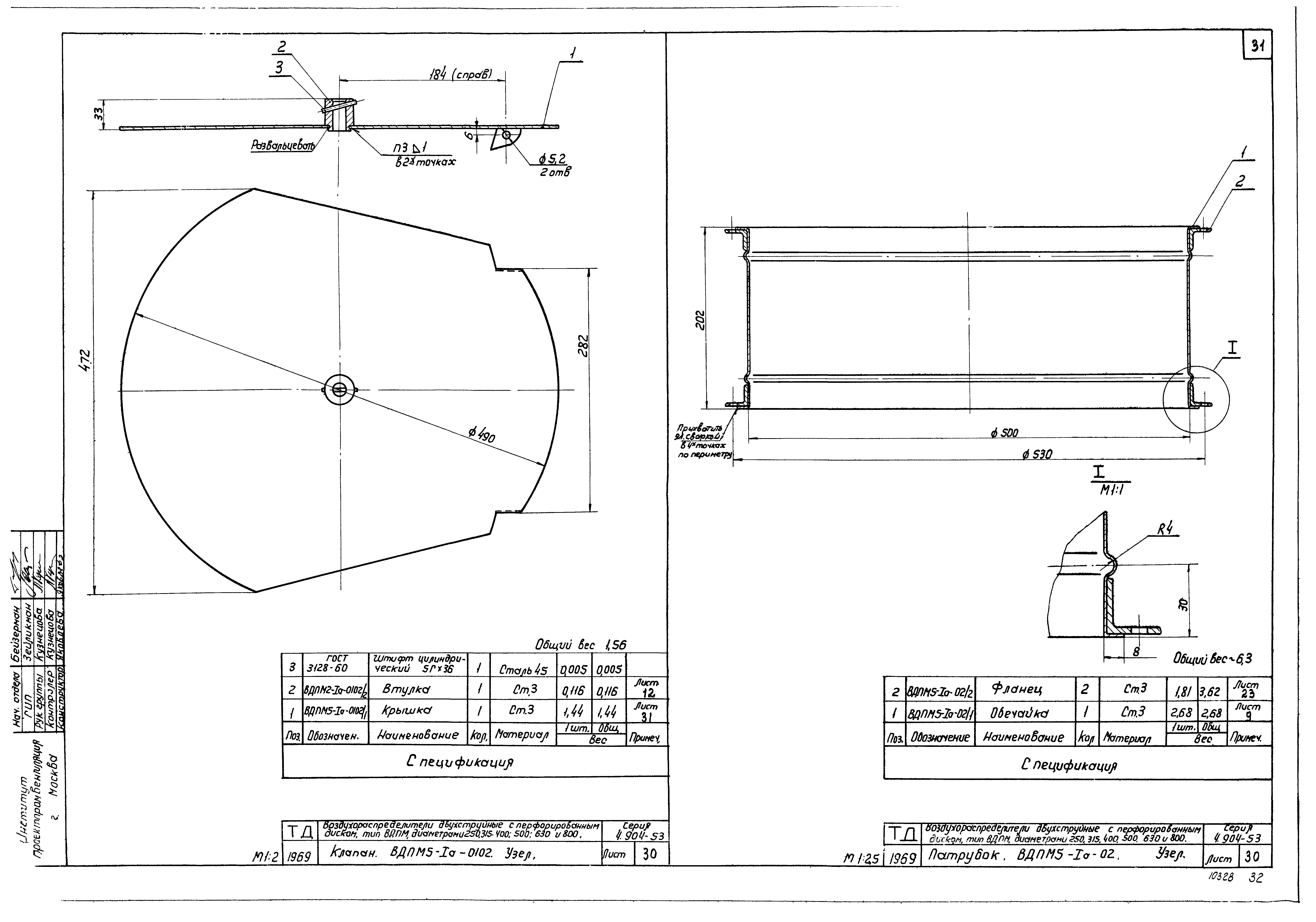
Скачать Серия 4.904-53 Воздухораспределители двухструйные с перфорированным диском тип ВДПМ диаметрами 250; 315; 400; 500; 630 и 800. Рабочие чертежиДата актуализации: 01.01.2021 Серия 4.904-53
Воздухораспределители двухструйные с перфорированным диском тип ВДПМ диаметрами 250; 315; 400; 500; 630 и 800. Рабочие чертежи| Обозначение: | Серия 4.904-53 | | Обозначение англ: | Series 4.904-53 | | Статус: | не действует | | Название рус.: | Воздухораспределители двухструйные с перфорированным диском тип ВДПМ диаметрами 250; 315; 400; 500; 630 и 800. Рабочие чертежи | | Дата добавления в базу: | 01.09.2013 | | Дата актуализации: | 01.01.2021 | | Дата введения: | 01.01.1970 | | Дата окончания срока действия: | 01.01.1983 | | Разработан: | Проектпромвентиляция
| | Утверждён: | 26.11.1969 Главпромстройпроект Госстроя СССР (47)
|
                                                                       
|