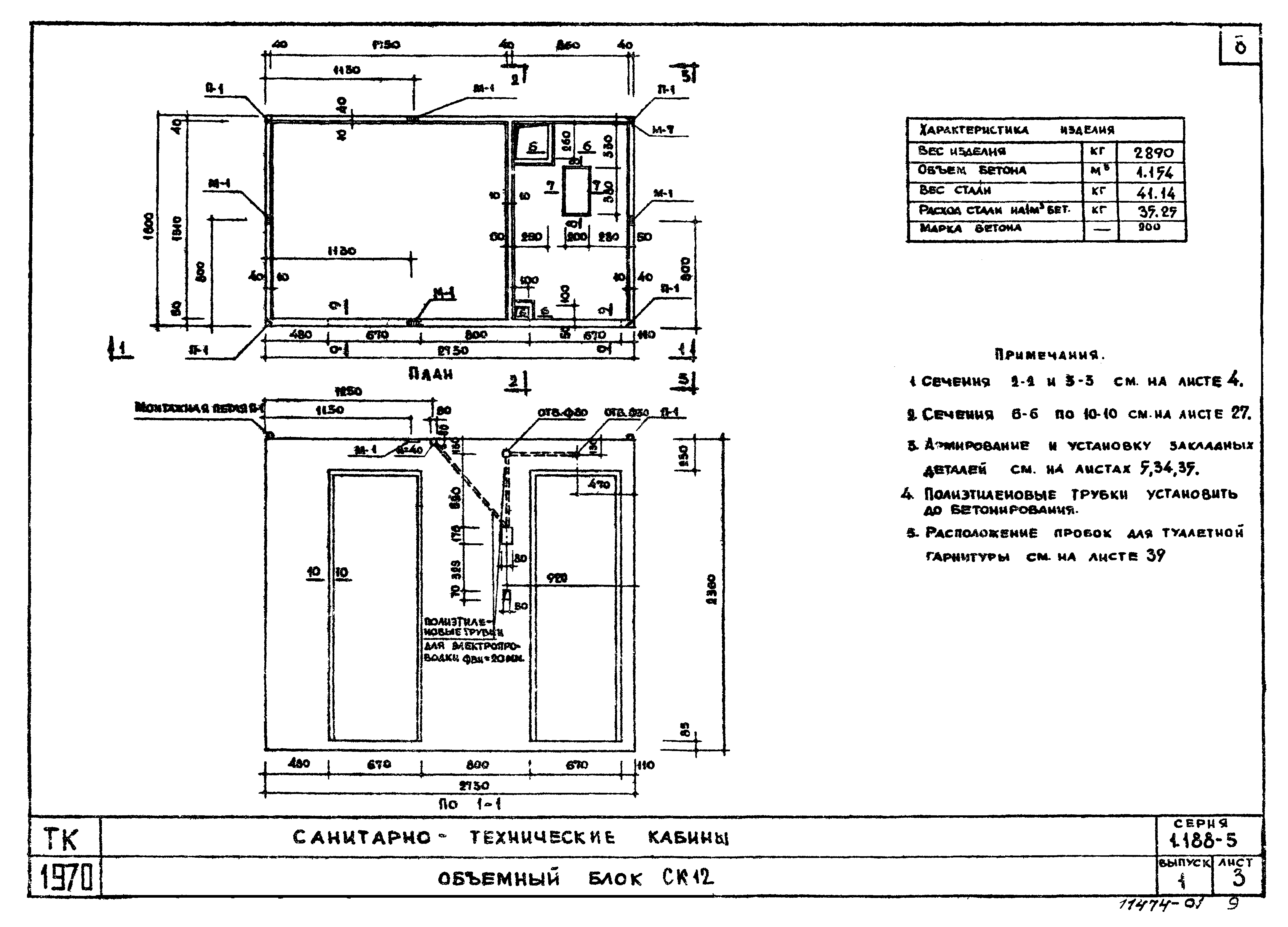
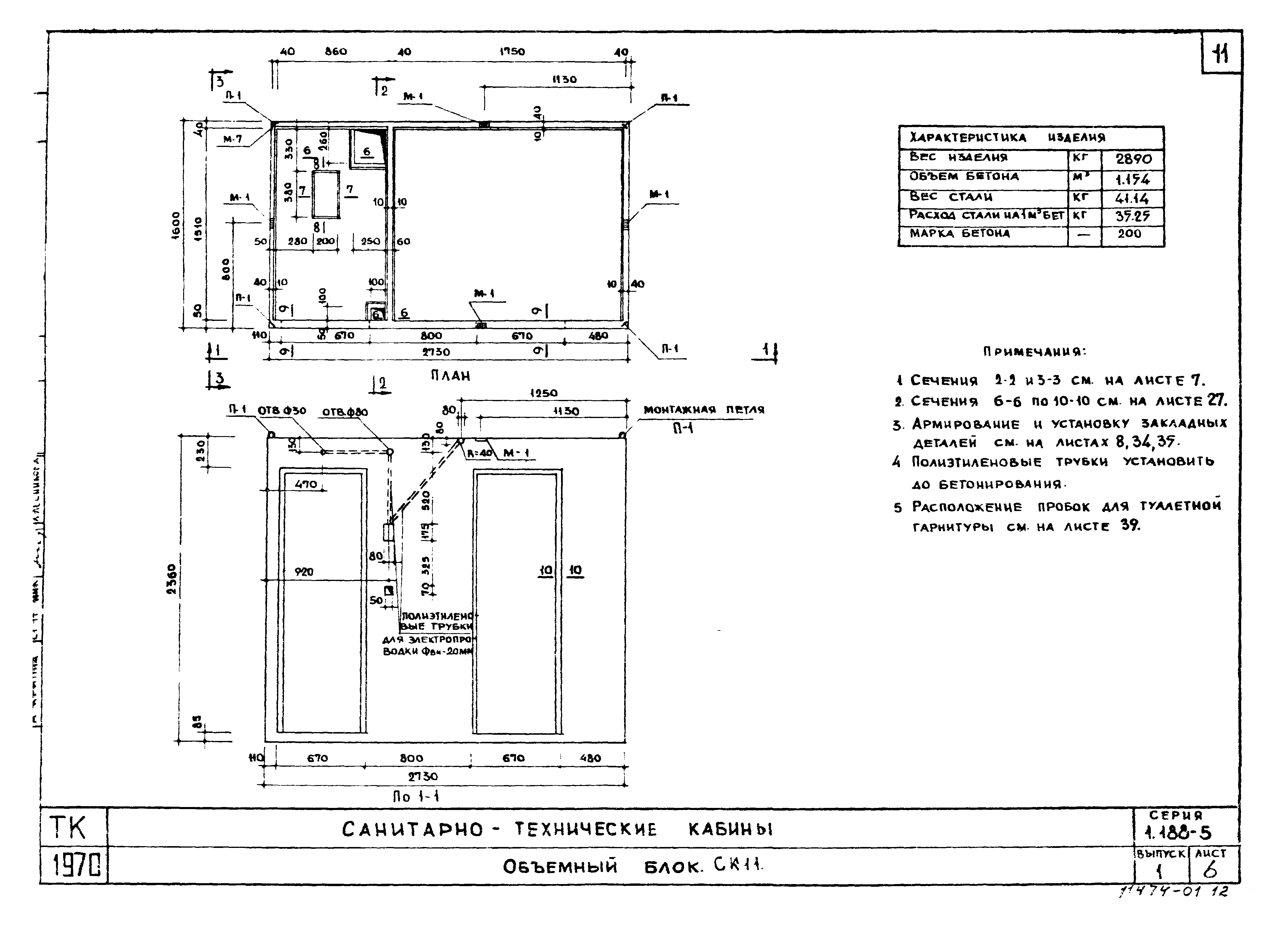
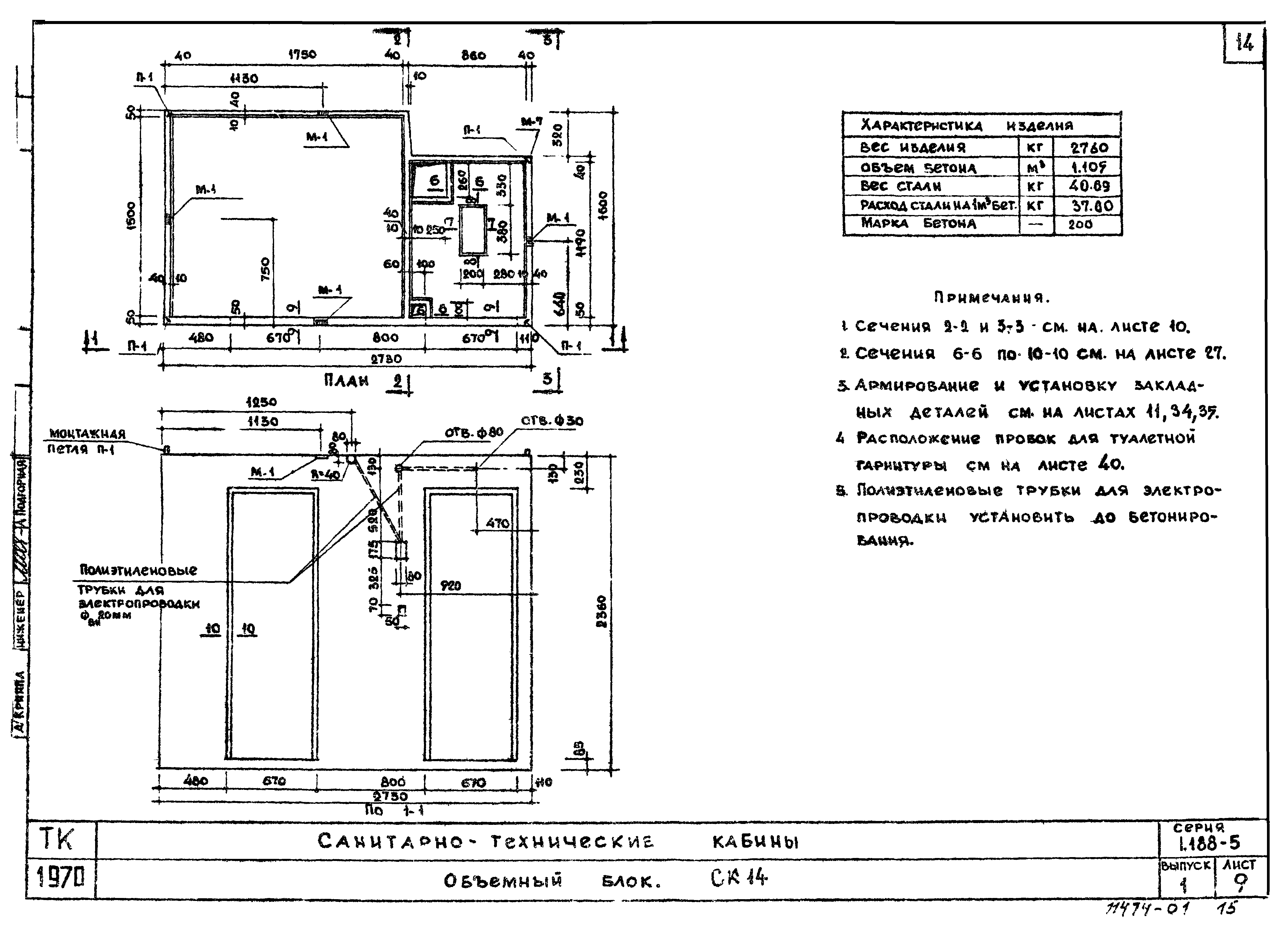
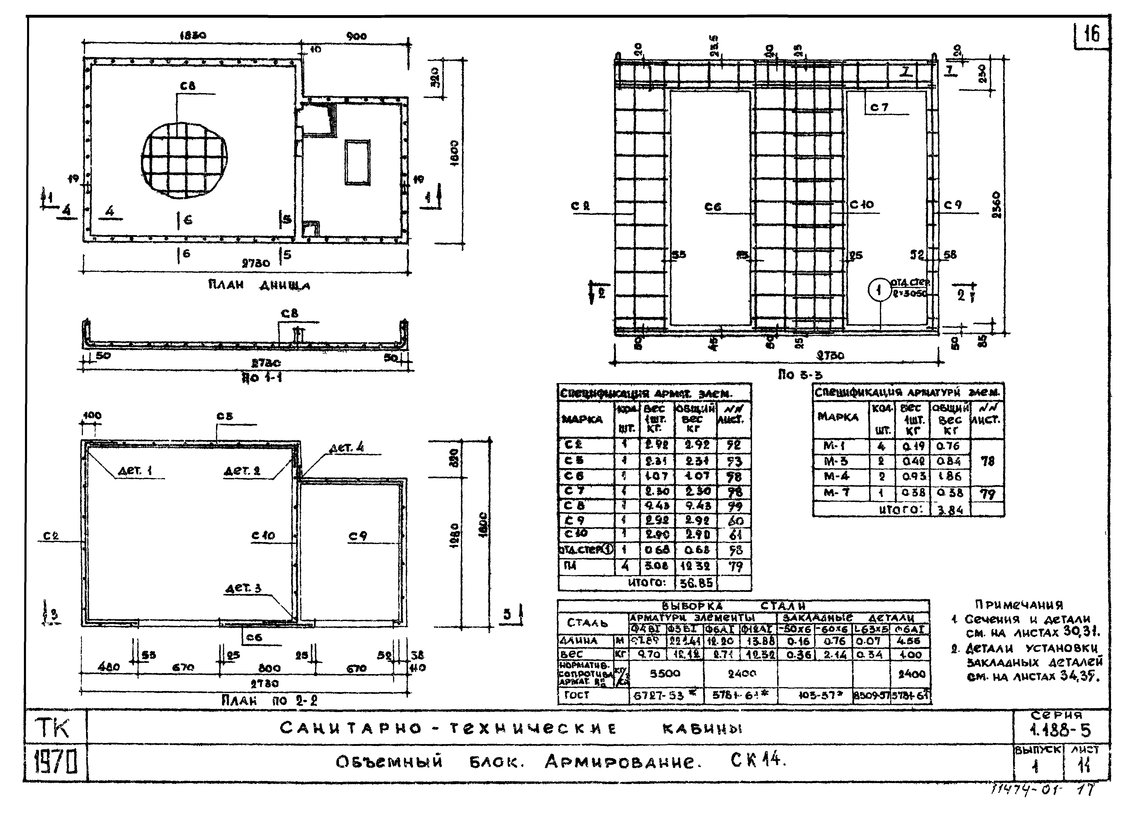
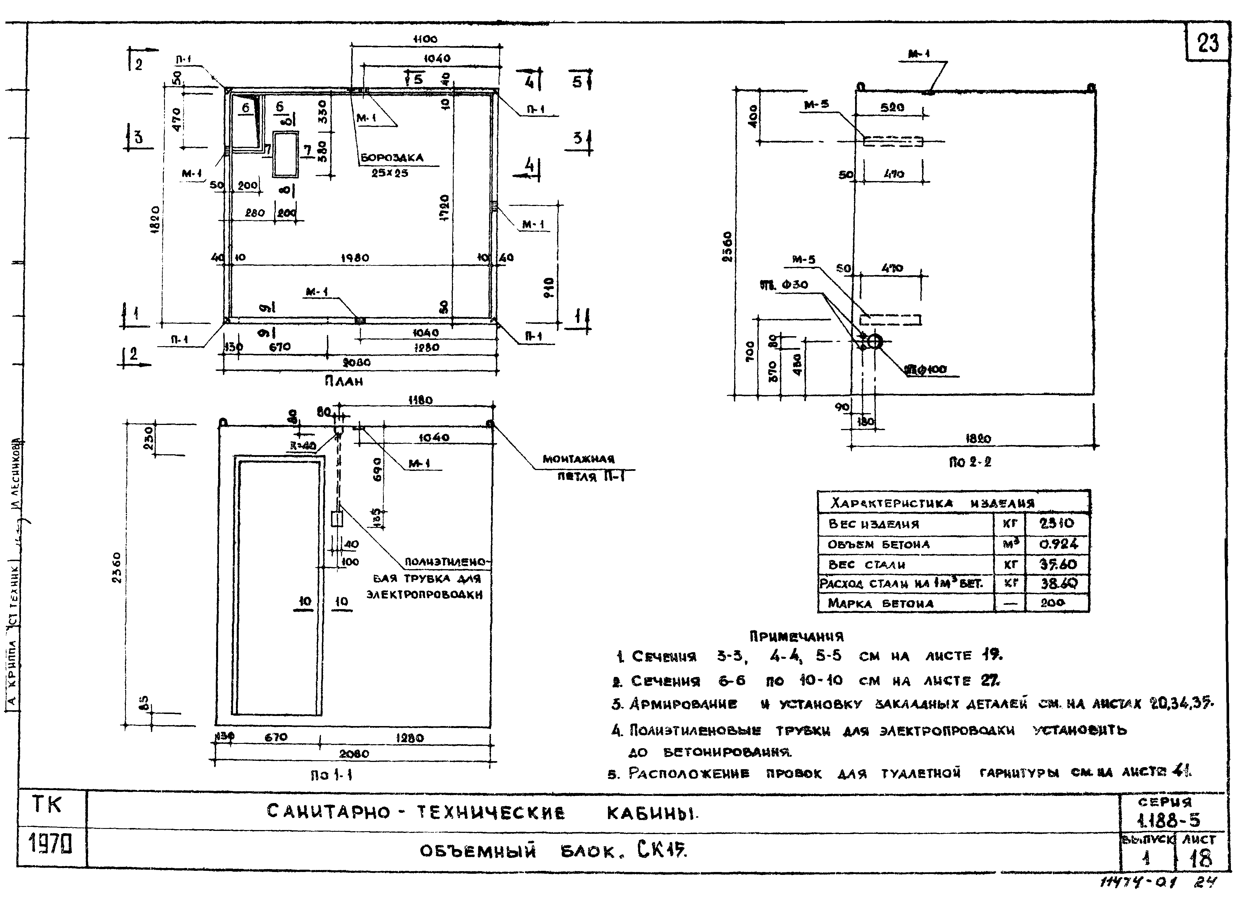
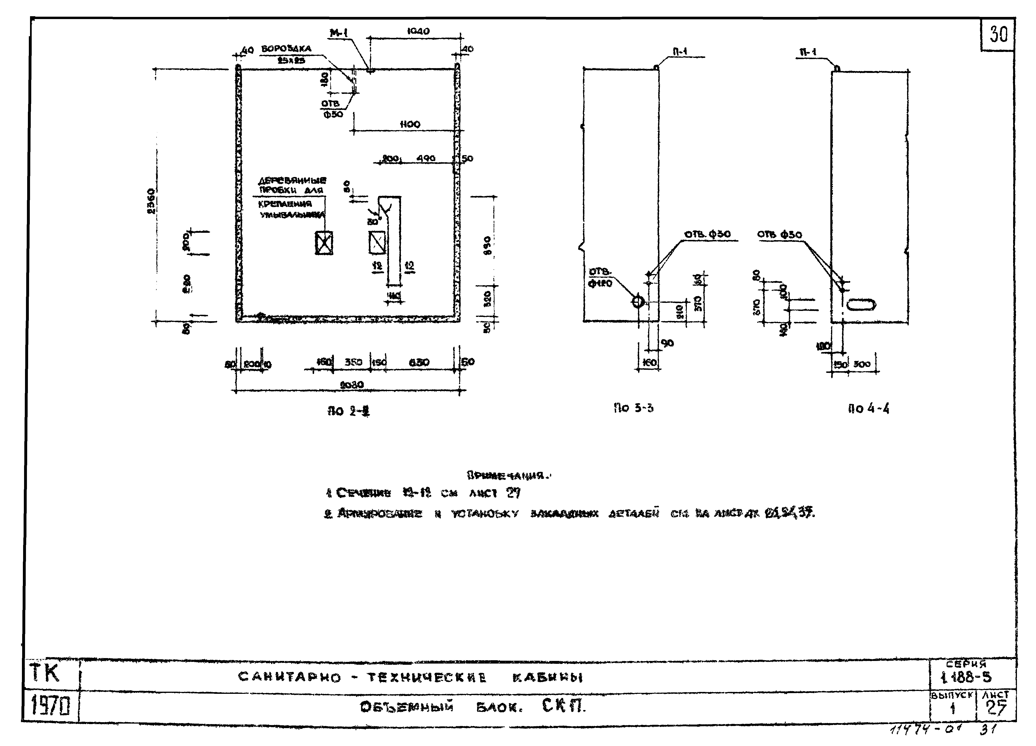
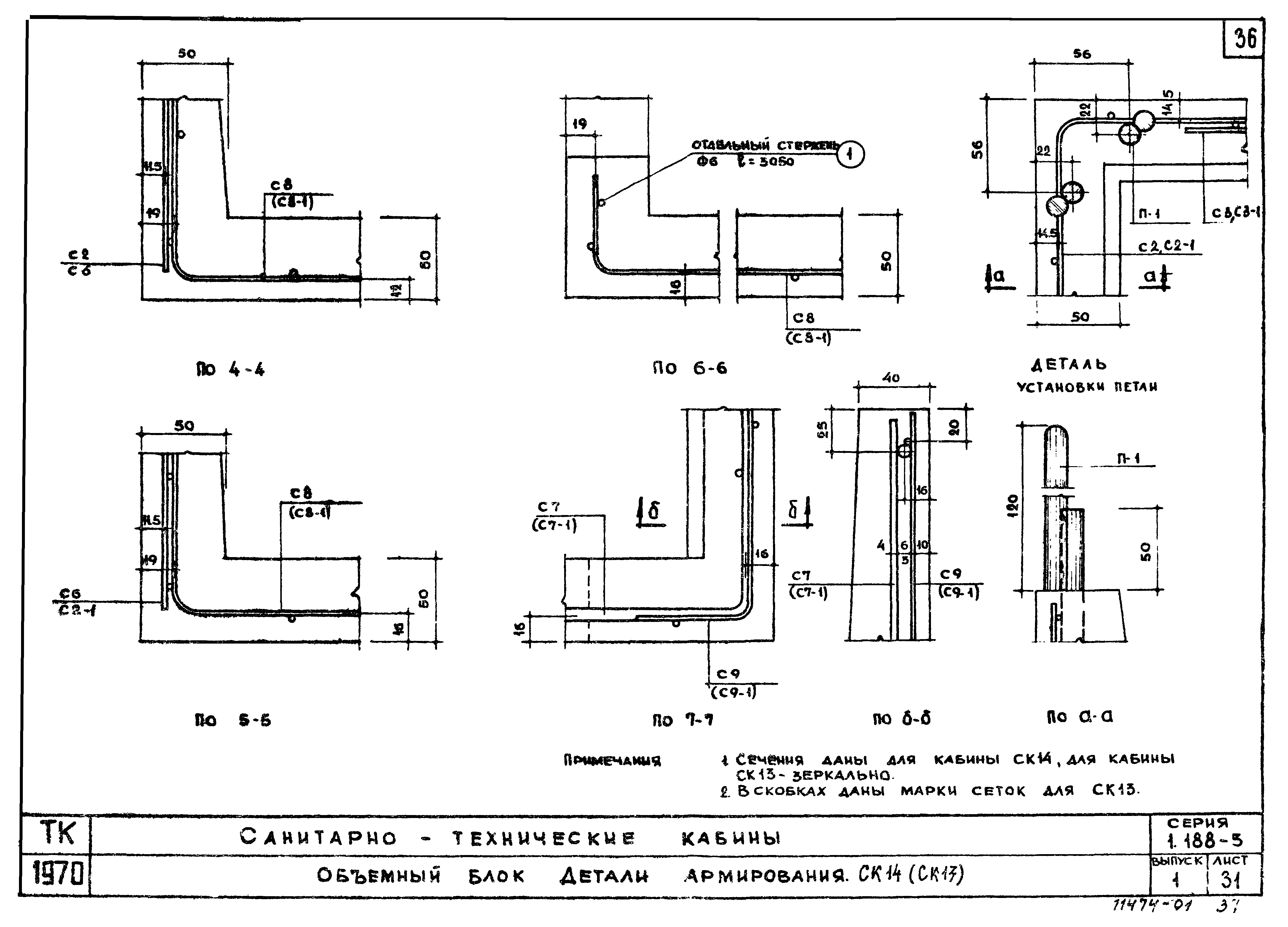
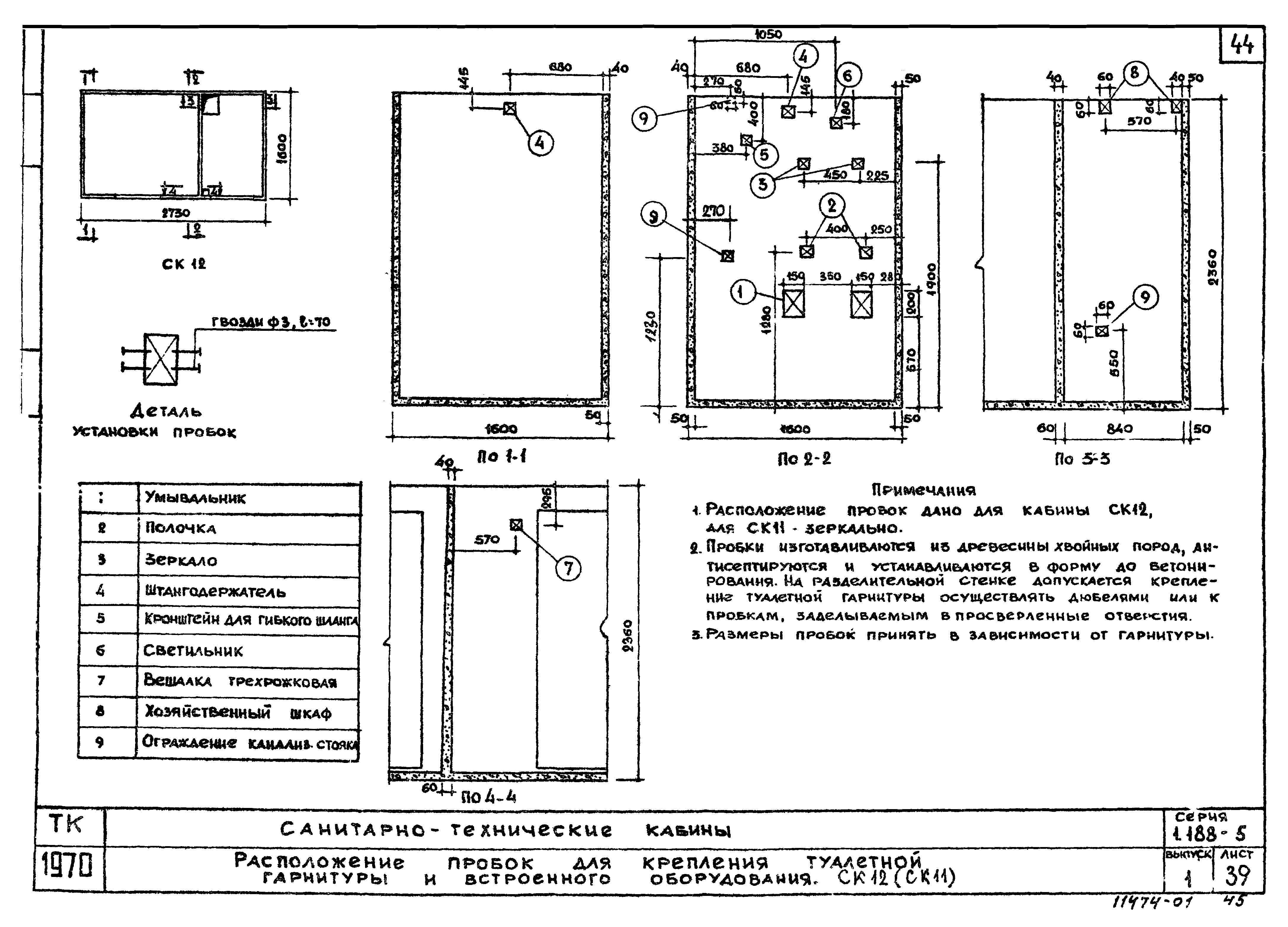
Скачать Серия 1.188-5 Выпуск 1. Строительные чертежи разобщенных и совмещенных кабин типа СтаканДата актуализации: 01.01.2021 Серия 1.188-5
Выпуск 1. Строительные чертежи разобщенных и совмещенных кабин типа "Стакан"| Обозначение: | Серия 1.188-5 | | Обозначение англ: | Series 1.188-5 | | Статус: | не действует | | Название рус.: | Выпуск 1. Строительные чертежи разобщенных и совмещенных кабин типа "Стакан" | | Дата добавления в базу: | 01.09.2013 | | Дата актуализации: | 01.01.2021 | | Дата введения: | 01.08.1971 | | Дата окончания срока действия: | 01.04.1984 | | Разработан: | ЦНИИЭП жилища
| | Утверждён: | 19.05.1971 Государственный комитет по гражданскому строительству и архитектуре при Госстрое СССР (89)
|
                                                                                                  
|