Скачать Серия 1.220.1-2 Выпуск 5. Панели внутренних стен нулевого цикла. Рабочие чертежиДата актуализации: 01.01.2021
|
| Обозначение: | Серия 1.220.1-2 |
| Обозначение англ: | Series 1.220.1-2 |
| Статус: | не действует |
| Название рус.: | Выпуск 5. Панели внутренних стен нулевого цикла. Рабочие чертежи |
| Дата добавления в базу: | 01.09.2013 |
| Дата актуализации: | 01.01.2021 |
| Дата введения: | 01.01.1981 |
| Дата окончания срока действия: | 01.04.1984 |
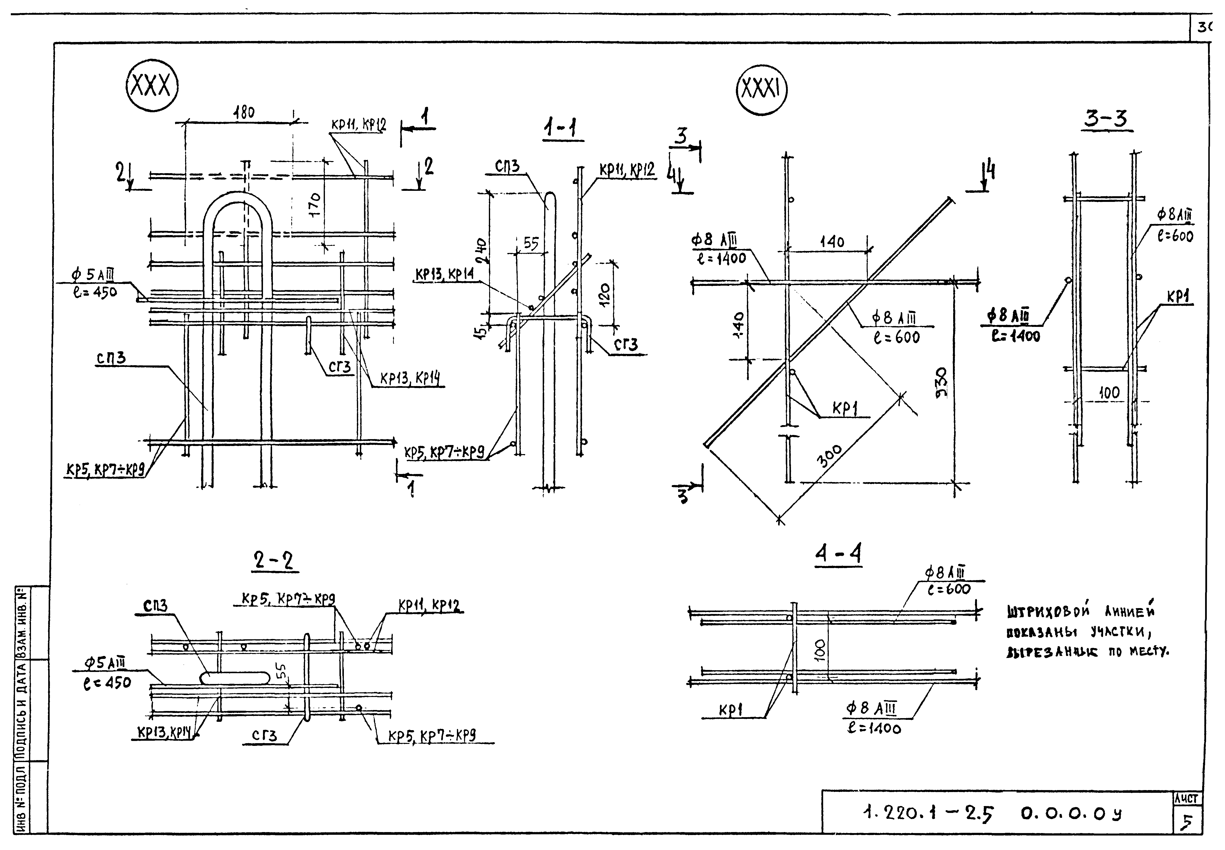
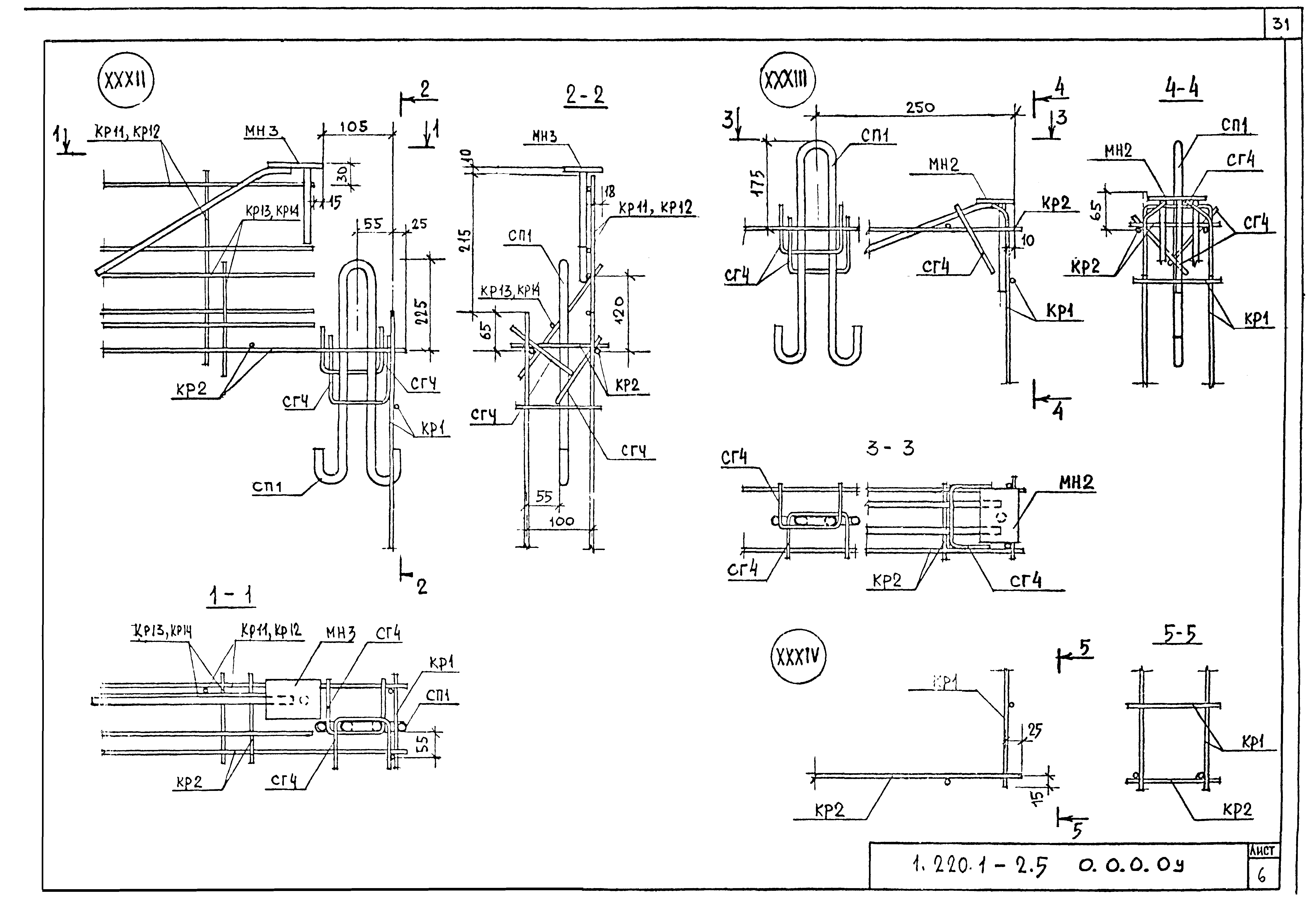
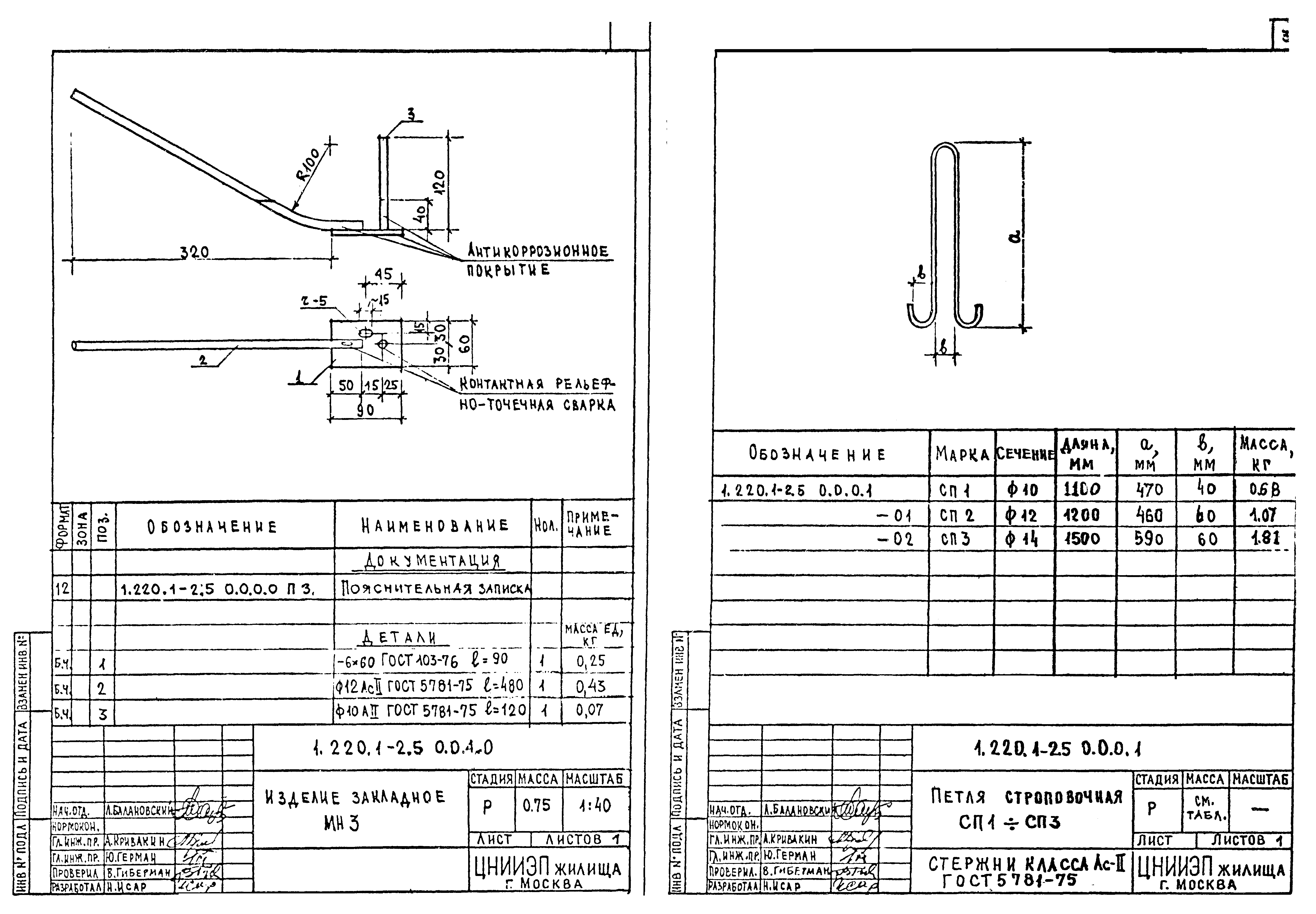
| Оглавление: | Содержание Пояснительная записка Номенклатура панелей внутренних цокольных стен Выборка стали Панель внутренняя стеновая цокольная ПСЦ Узел Каркас пространственный КП Узел Каркас КР Изделие закладное МН Петля строповочная СП Стержень гнутый СГ Панель внутренняя стеновая цокольная ПСЦ Каркас пространственный КП Узлы Каркас КР |
| Разработан: | ЦНИИЭП жилища |
| Утверждён: | 23.12.1980 Госгражданстрой (Gosgrazhdanstroy 363) |
| Чем заменён: |















































