Скачать Серия 1.220.1-2 Выпуск 10. Доборные элементы. Опалубочные чертежи. Армирование. Рабочие чертежиДата актуализации: 01.01.2021
|
| Обозначение: | Серия 1.220.1-2 |
| Обозначение англ: | Series 1.220.1-2 |
| Статус: | не действует |
| Название рус.: | Выпуск 10. Доборные элементы. Опалубочные чертежи. Армирование. Рабочие чертежи |
| Дата добавления в базу: | 01.09.2013 |
| Дата актуализации: | 01.01.2021 |
| Дата введения: | 01.01.1981 |
| Дата окончания срока действия: | 01.04.1984 |
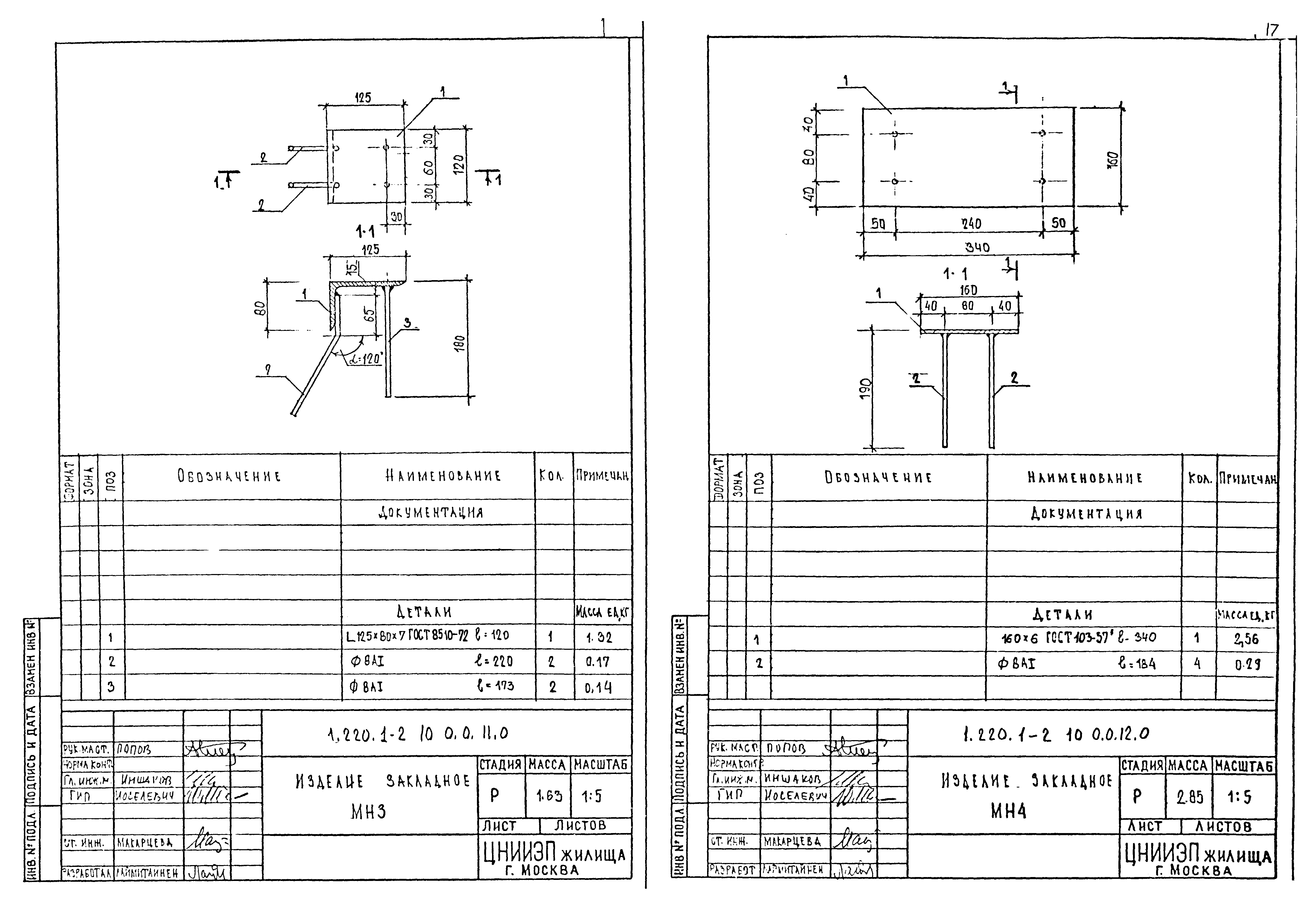
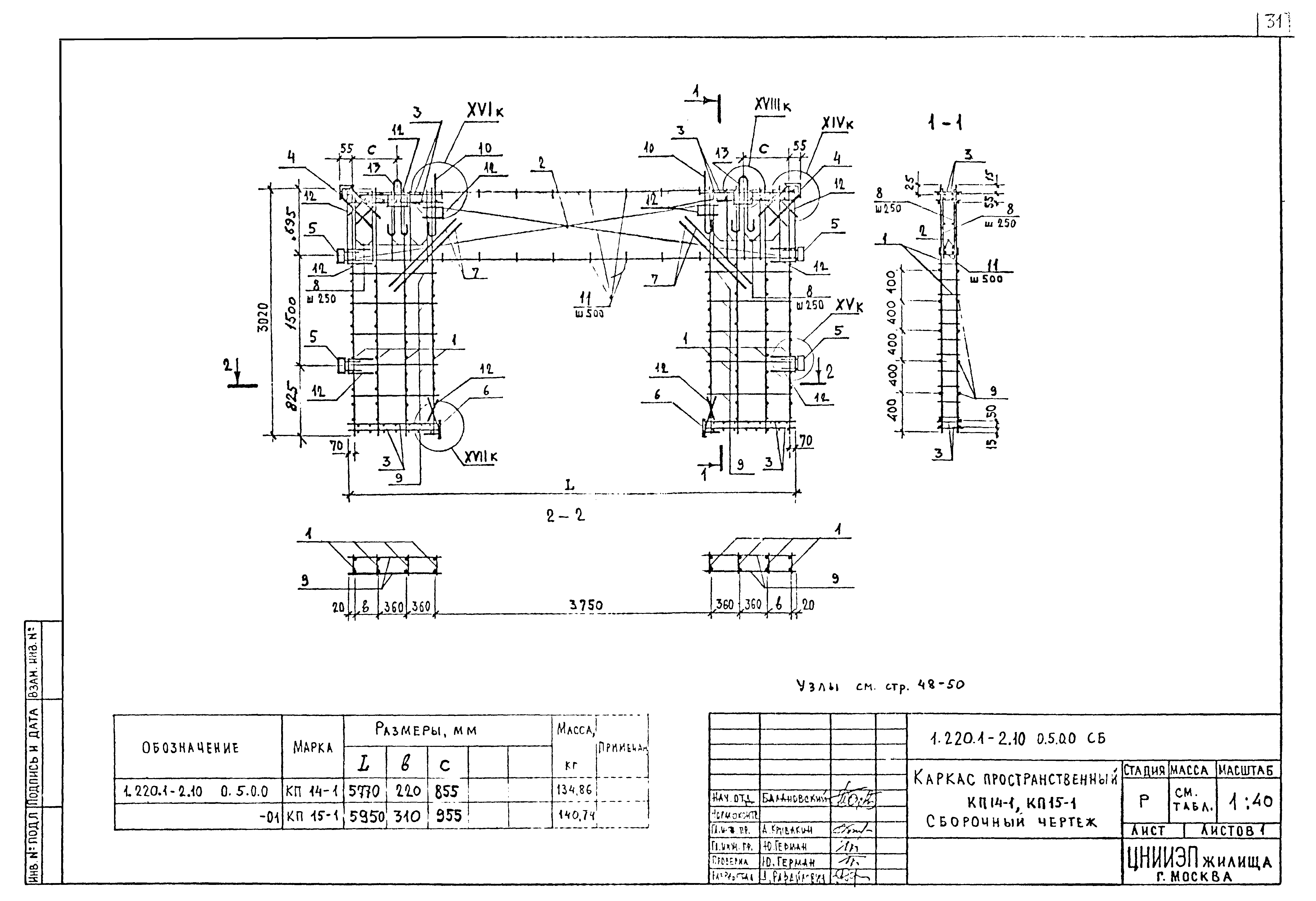
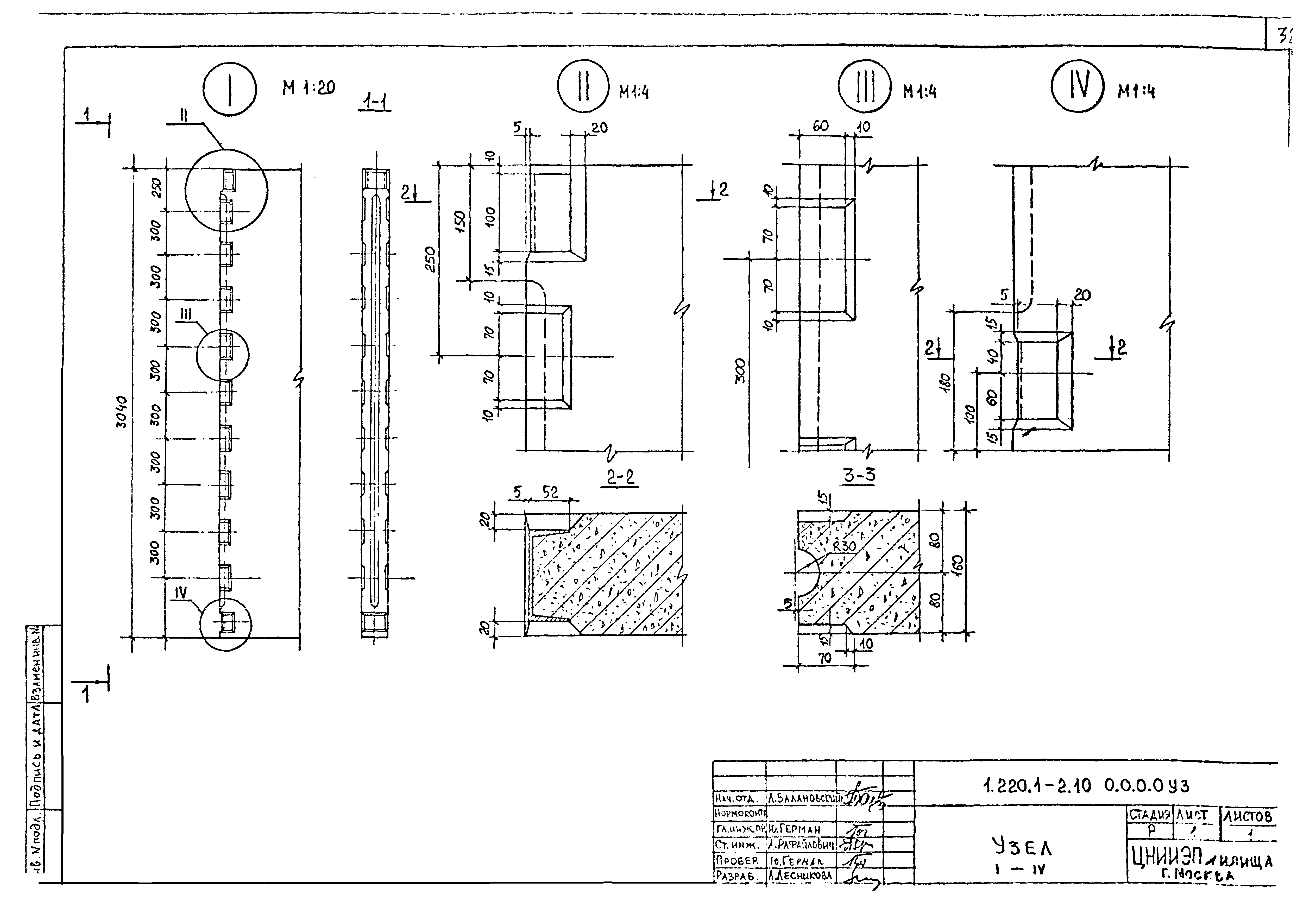
| Оглавление: | Содержание Пояснительная записка Номенклатура обвязочных балок Выборка стали Балки обвязочные Узлы Каркас пространственный КП Каркас КР Изделие закладное МН Петли строповочные П Изделие закладное МН Номенклатура рам внутренних стен Выборка стали Рама внутренняя стеновая ПСР Каркас пространственный КП Узлы Каркас КР Изделие закладное МН Петля строповочная СП Стержень гнутый СГ |
| Разработан: | ЦНИИЭП жилища |
| Утверждён: | 23.12.1980 Госгражданстрой (Gosgrazhdanstroy 363) |
| Чем заменён: |














































