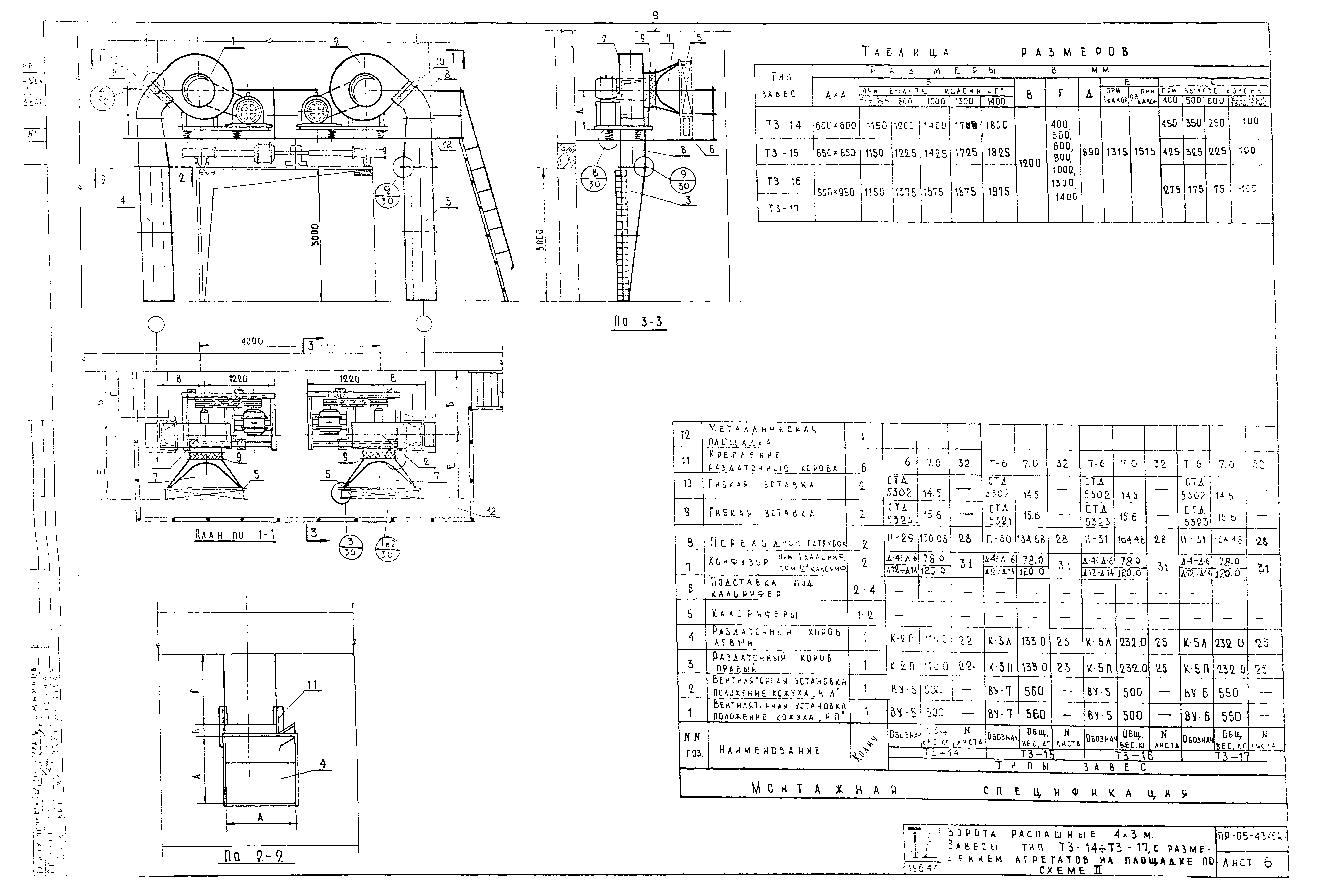
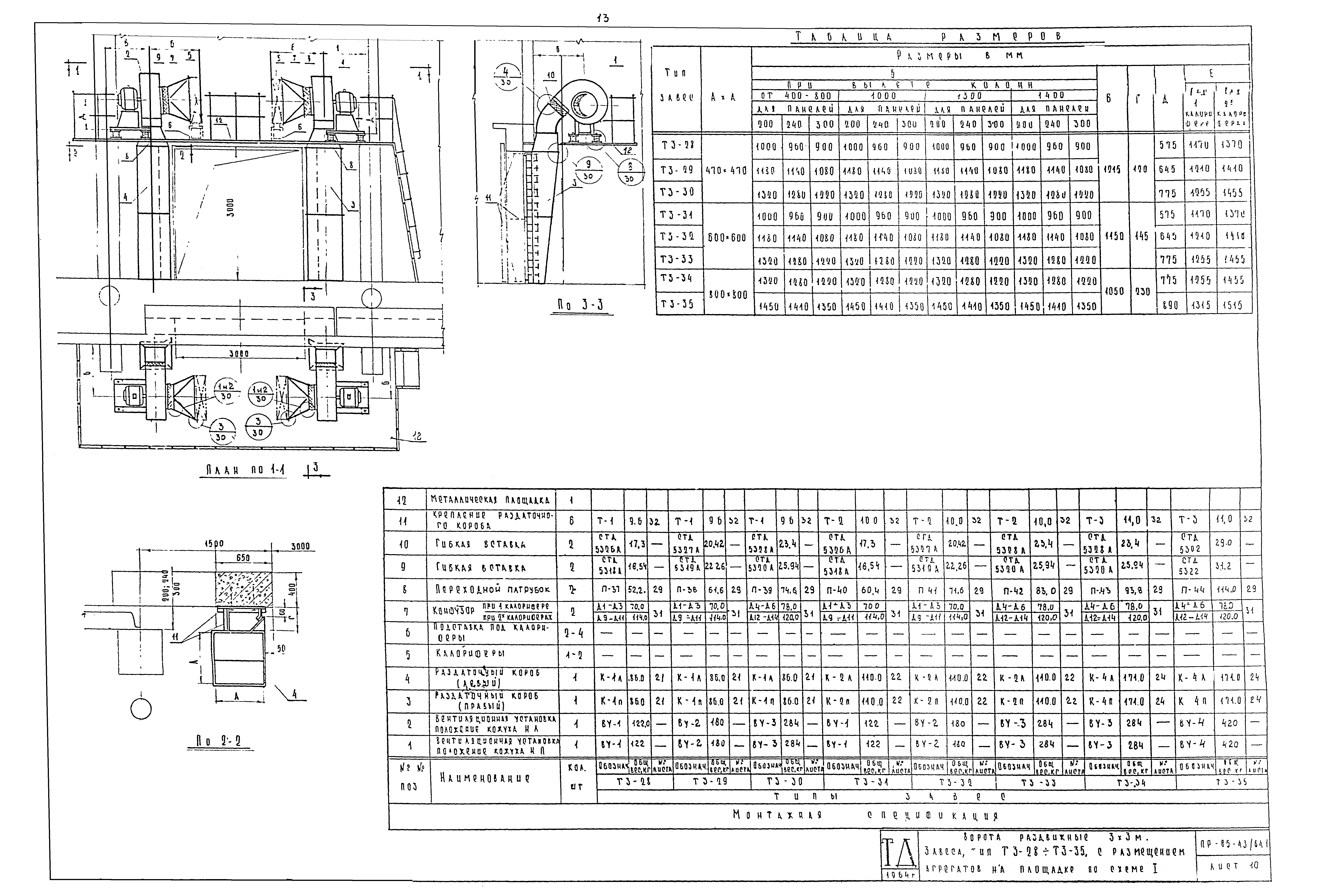
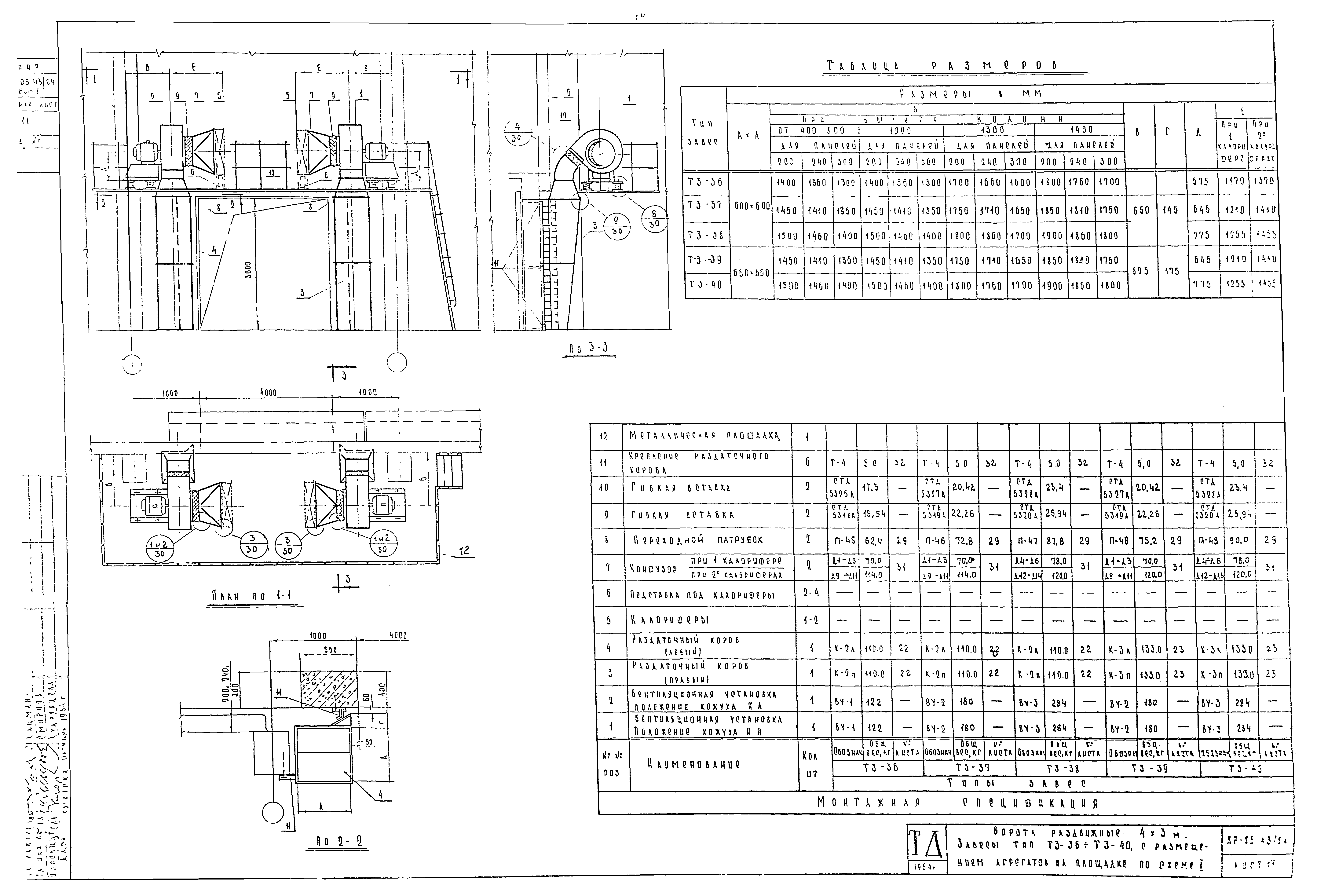
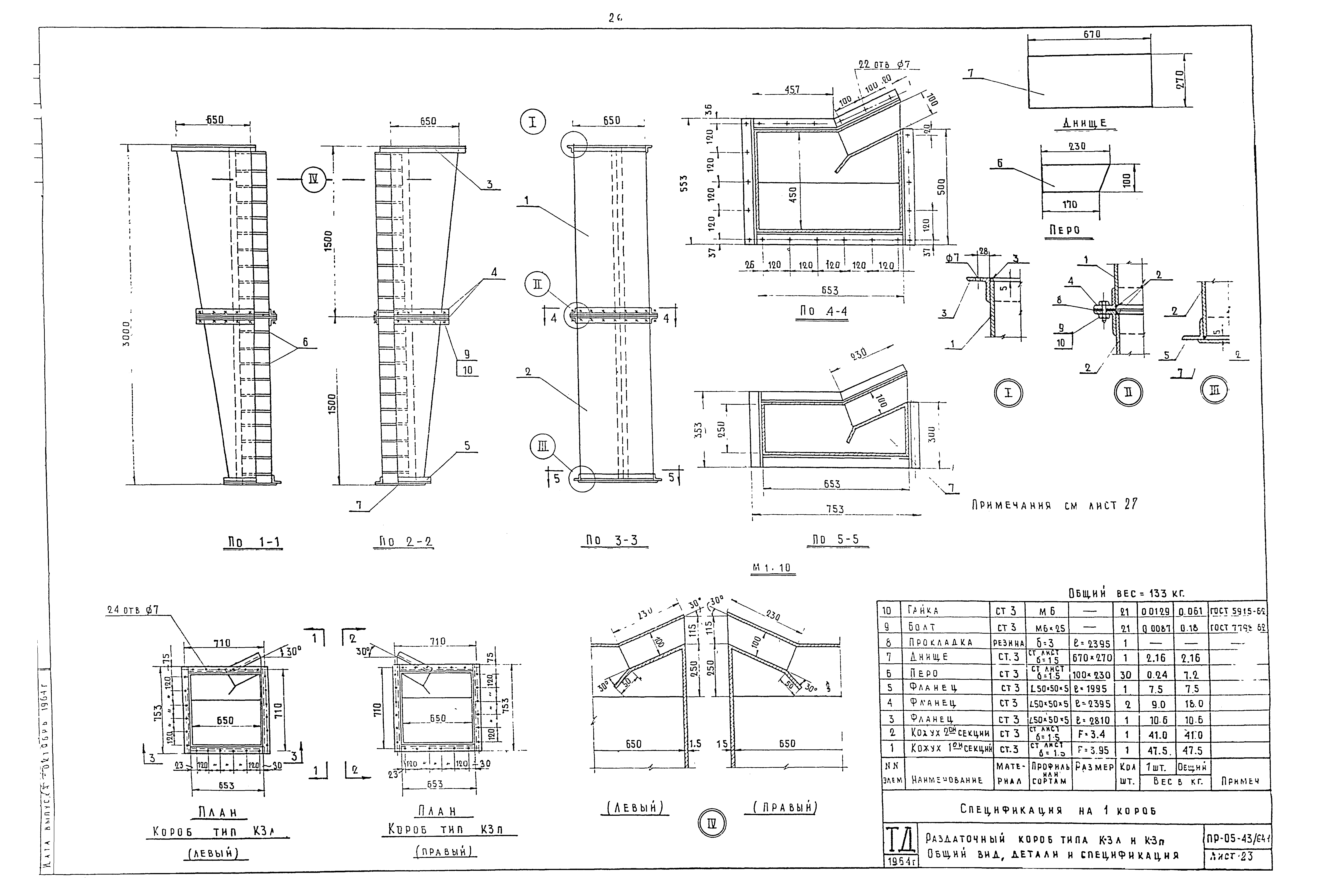
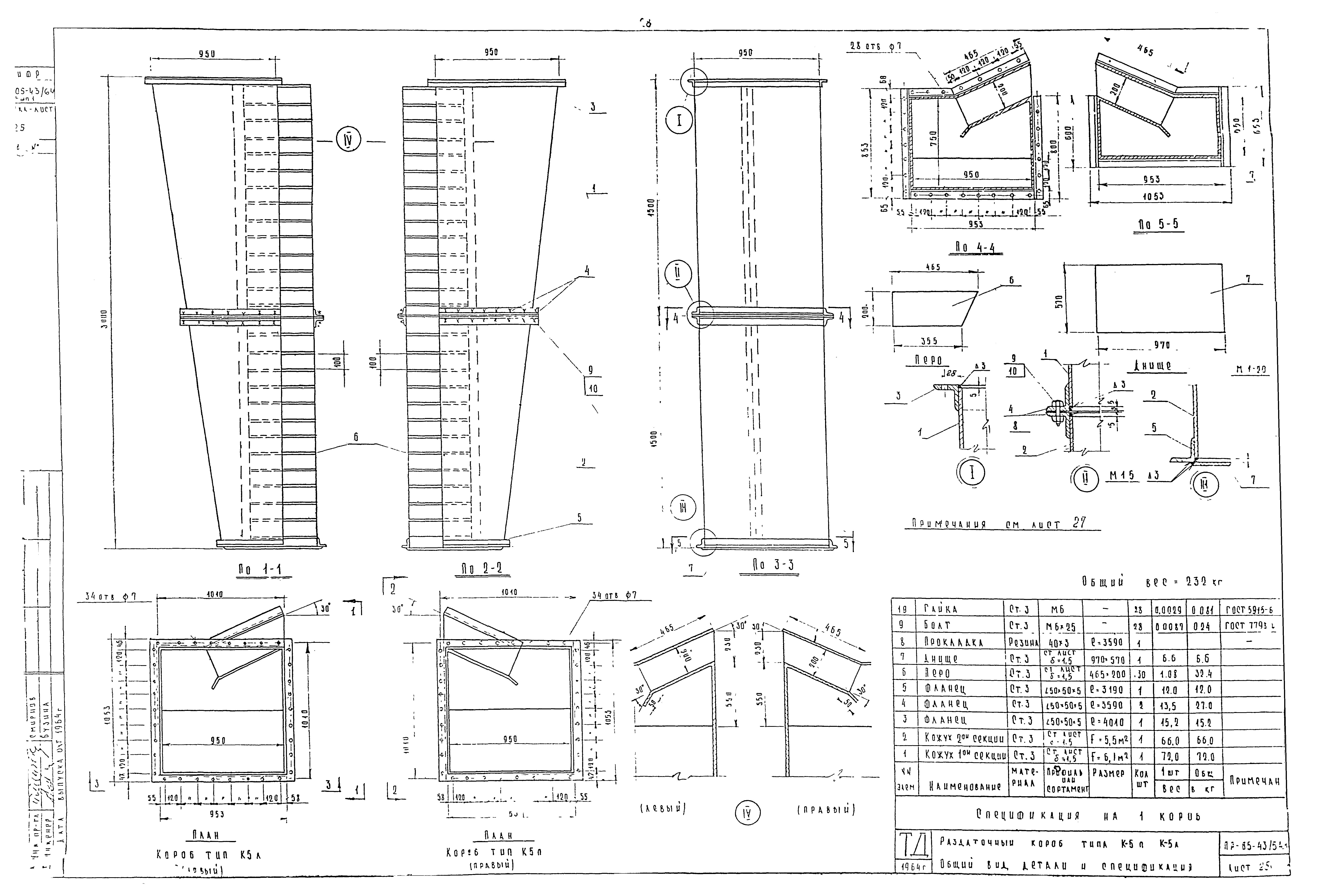
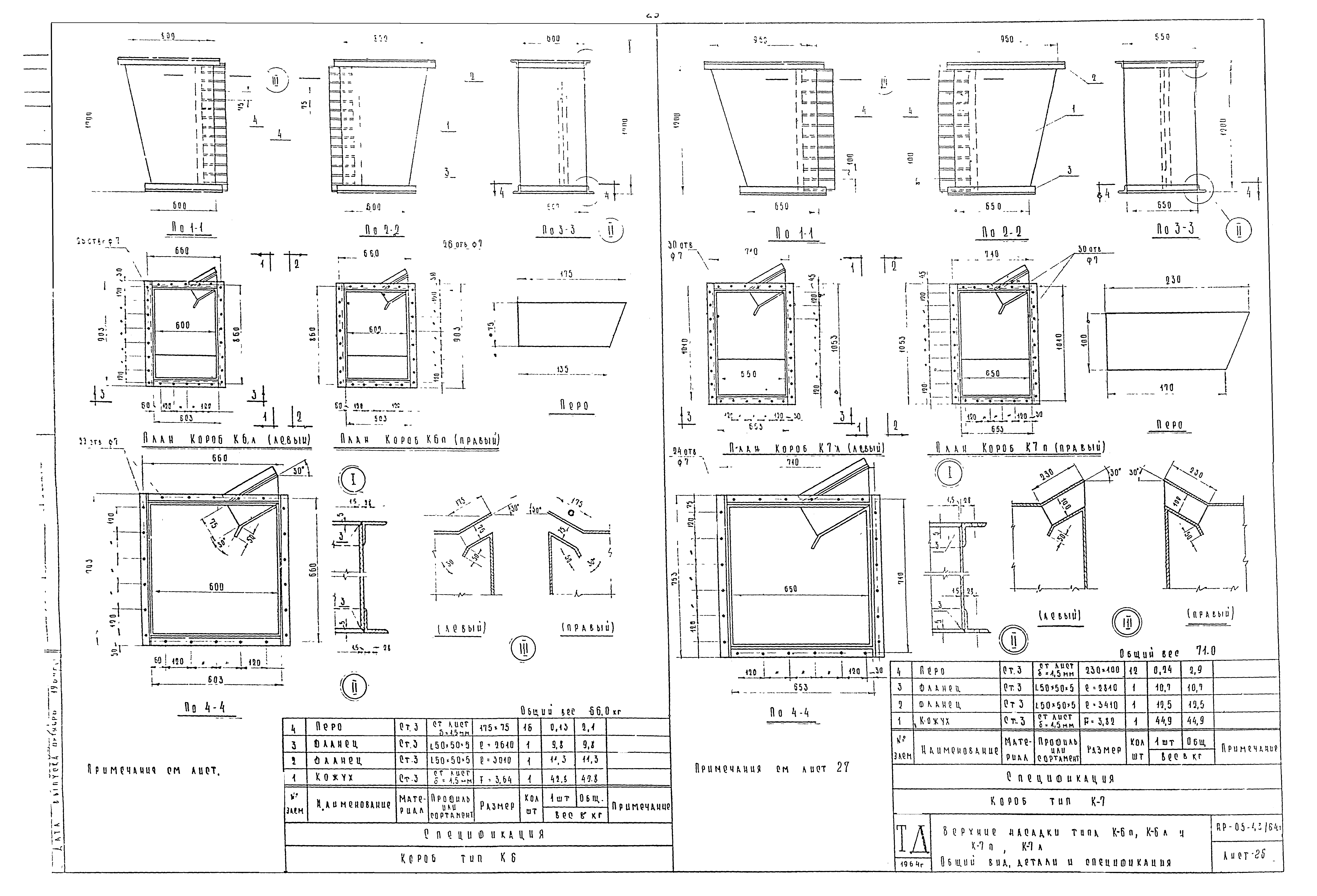
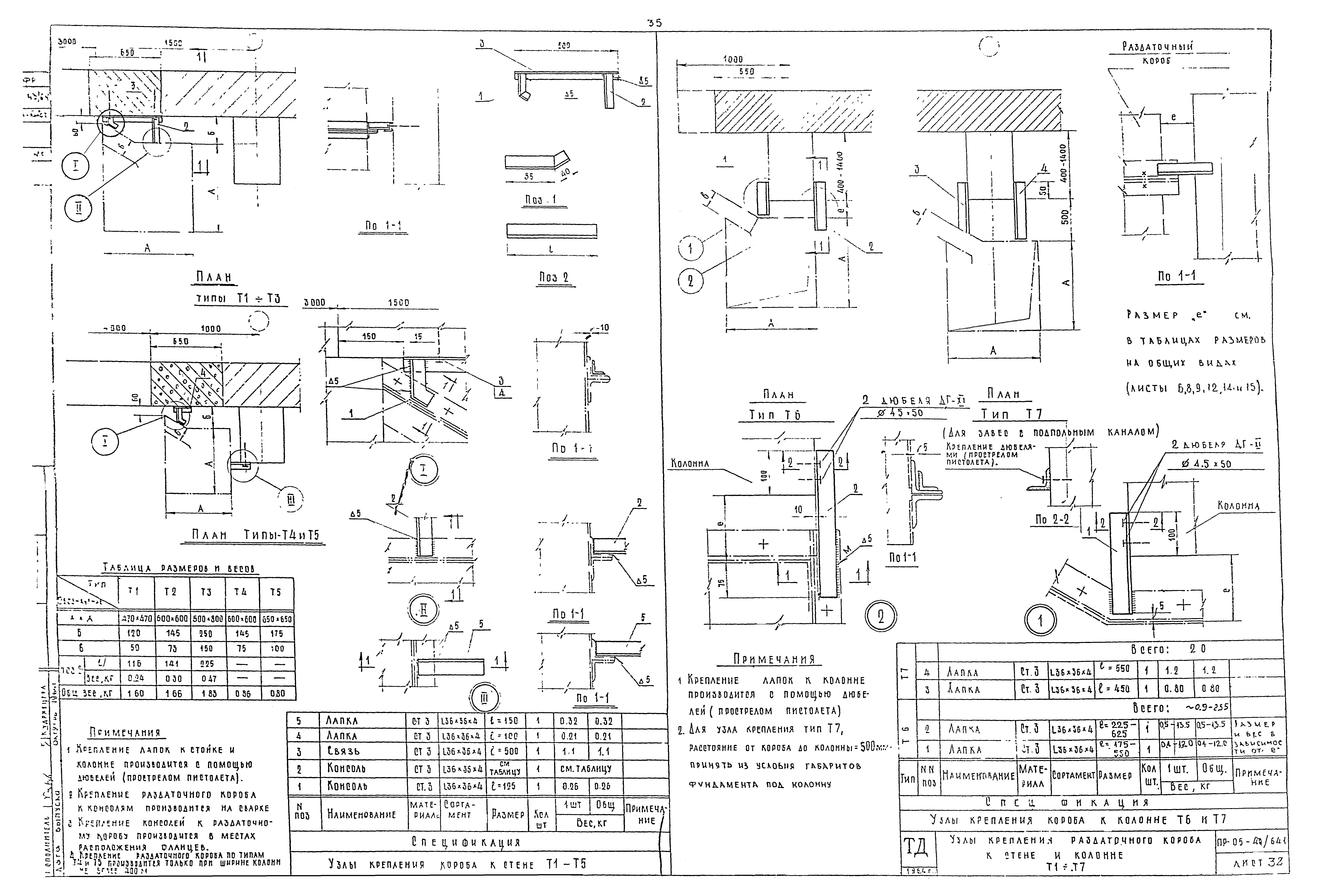
Скачать Серия ПР-05-43/64 Выпуск 1. Рабочие чертежиДата актуализации: 01.01.2021
|
| Обозначение: | Серия ПР-05-43/64 |
| Обозначение англ: | Series ПР-05-43/64 |
| Статус: | не действует |
| Название рус.: | Выпуск 1. Рабочие чертежи |
| Дата добавления в базу: | 01.09.2013 |
| Дата актуализации: | 01.01.2021 |
| Дата окончания срока действия: | 01.10.1977 |
| Разработан: | ЦНИИпромзданий |
| Утверждён: | 21.04.1964 Главпромстройпроект Госстроя СССР (3/3-489) |



































