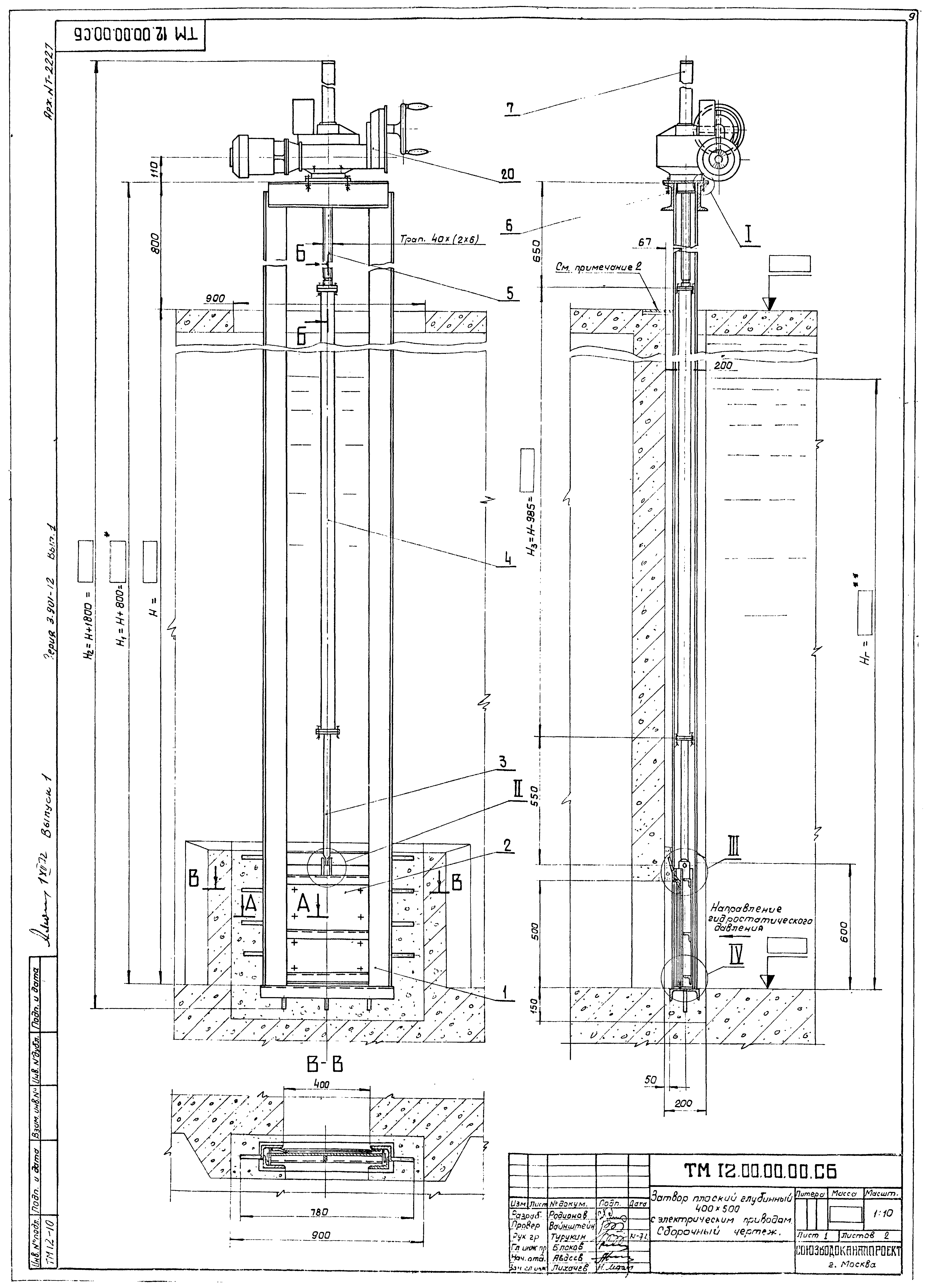
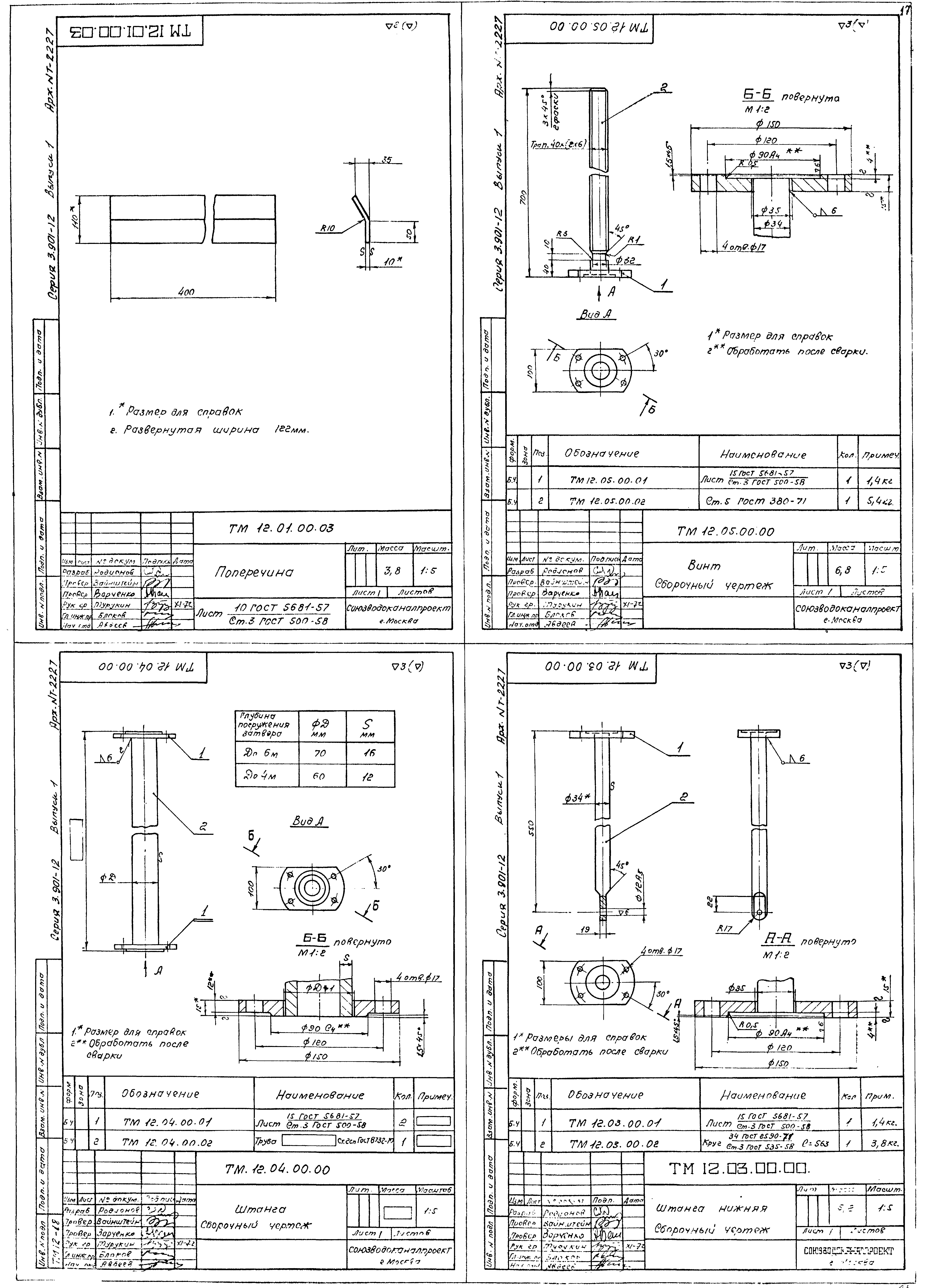
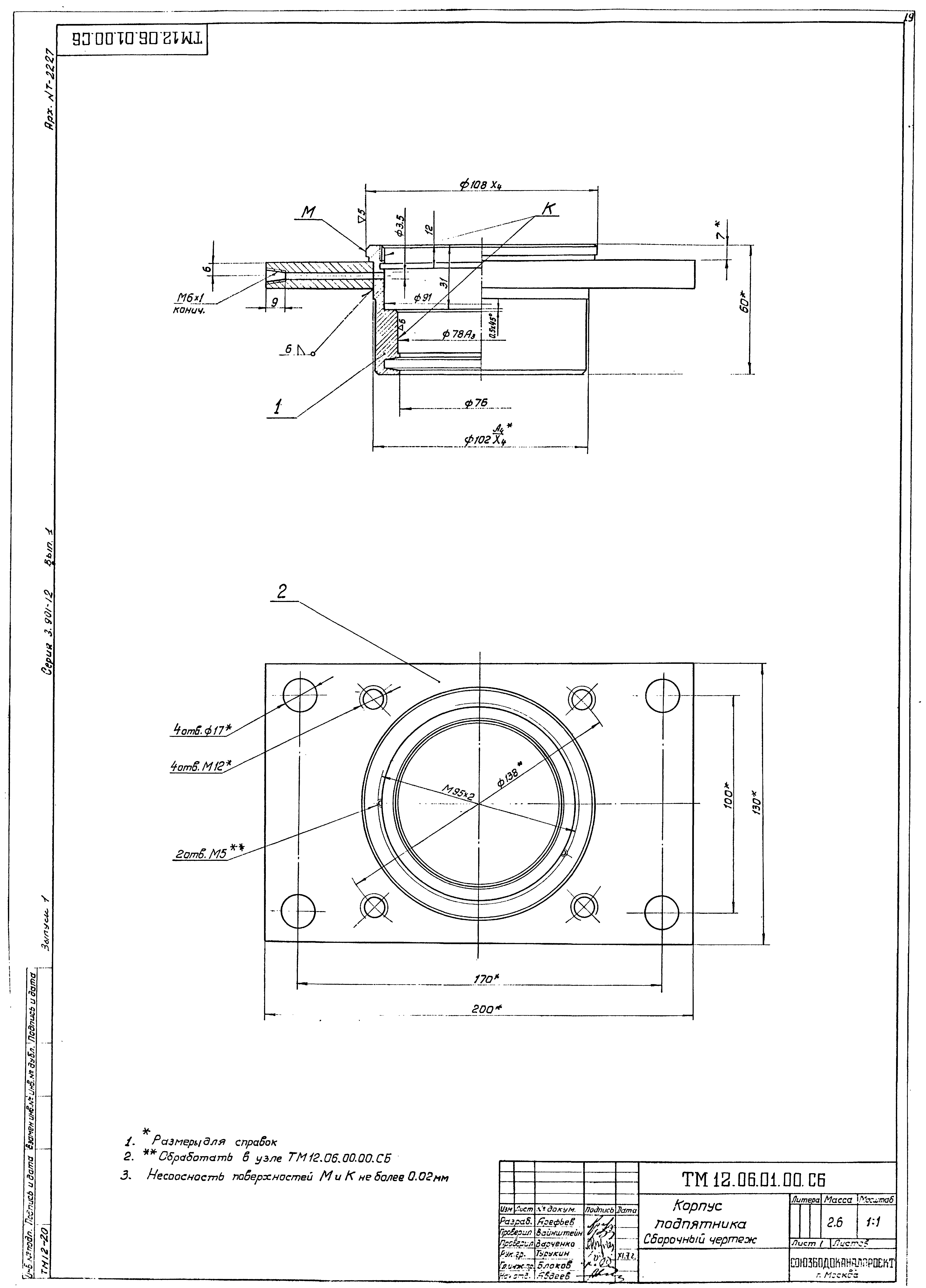
Скачать Серия 3.901-12 Выпуск 1. Затвор плоский глубинный 400х500 с электрическим или ручным приводом. Рабочие чертежиДата актуализации: 01.01.2021 Серия 3.901-12
Выпуск 1. Затвор плоский глубинный 400х500 с электрическим или ручным приводом. Рабочие чертежи| Обозначение: | Серия 3.901-12 | | Обозначение англ: | Series 3.901-12 | | Статус: | отменен | | Название рус.: | Выпуск 1. Затвор плоский глубинный 400х500 с электрическим или ручным приводом. Рабочие чертежи | | Дата добавления в базу: | 01.09.2013 | | Дата актуализации: | 01.01.2021 | | Дата введения: | 01.08.1973 | | Дата окончания срока действия: | 01.11.1991 | | Разработан: | Союзводоканалпроект
| | Утверждён: | 31.07.1973 СоюзводоканалНИИпроект (SoyuzvodokanalNIIproject 170)
|
                        
|