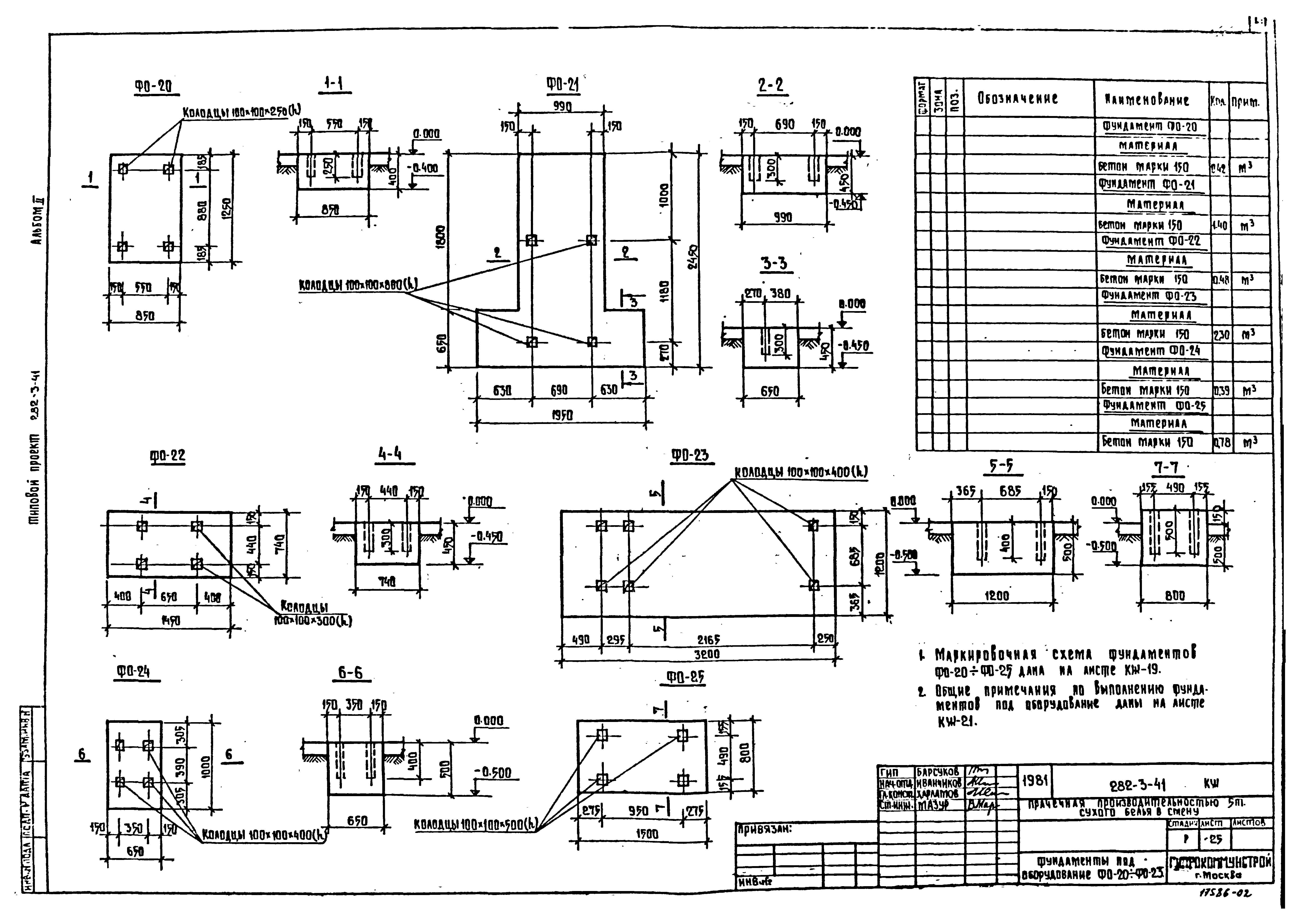
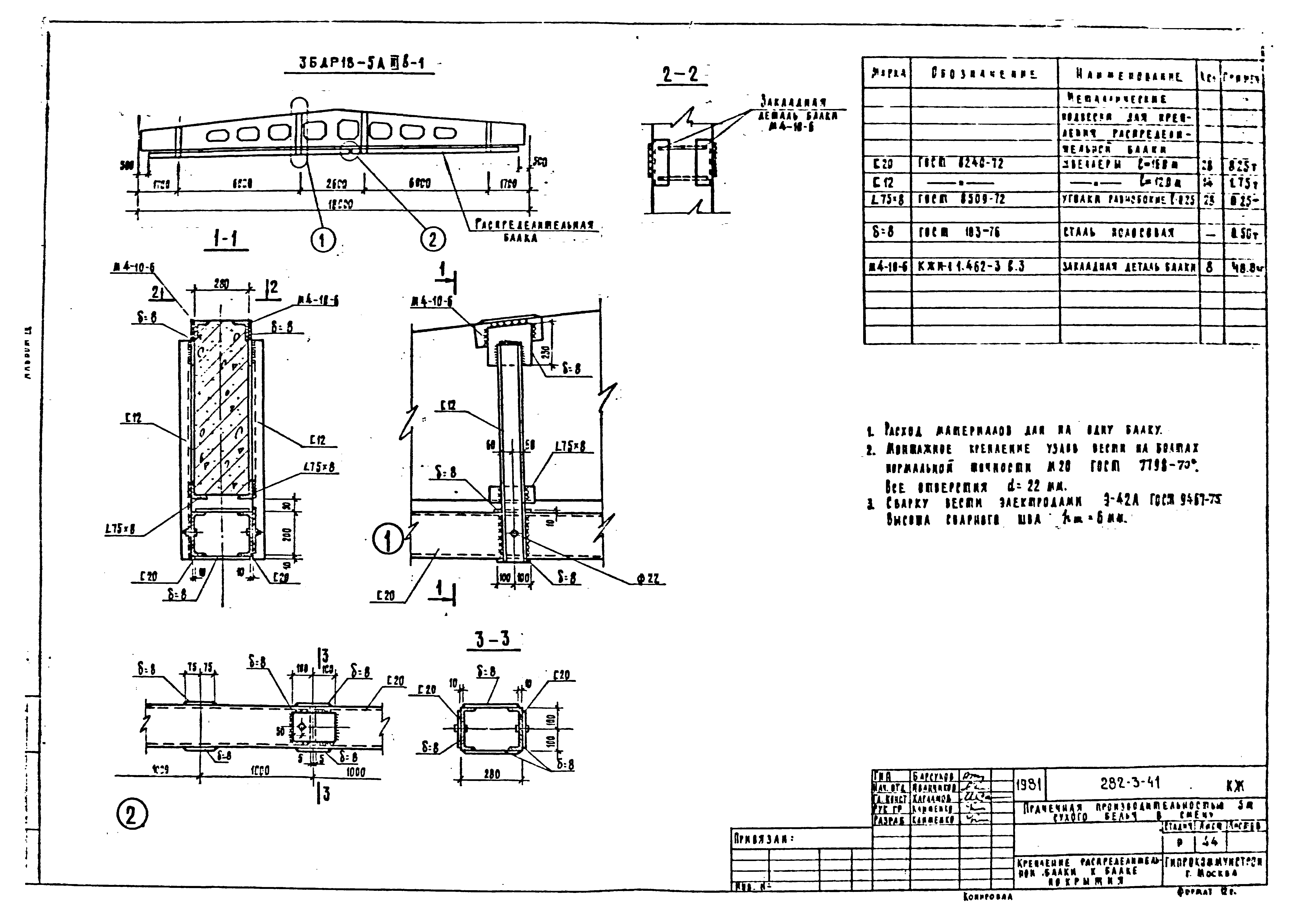
Скачать Типовой проект 282-3-41 Альбом II. Архитектурно-строительные решения. Конструкции железобетонные и металлическиеДата актуализации: 01.01.2021 Типовой проект 282-3-41
Альбом II. Архитектурно-строительные решения. Конструкции железобетонные и металлические| Обозначение: | Типовой проект 282-3-41 | | Обозначение англ: | 282-3-41 | | Статус: | действует | | Название рус.: | Альбом II. Архитектурно-строительные решения. Конструкции железобетонные и металлические | | Дата добавления в базу: | 01.09.2013 | | Дата актуализации: | 01.01.2021 | | Дата введения: | 29.03.1982 | | Разработан: | Гипрокоммунстрой
| | Утверждён: | 28.10.1980 Минжилкомхоз РСФСР (Russian Federation Minzhilkomkhoz 11-ТД)
|
                                                                         
|