Скачать Типовой проект 708-18.85 Альбом 4. Закрытая емкость. Узлы и детали. Архитектурные решения. Конструкции железобетонные. Конструкции металлическиеДата актуализации: 01.01.2021
|
| Обозначение: | Типовой проект 708-18.85 |
| Обозначение англ: | 708-18.85 |
| Статус: | действует |
| Название рус.: | Альбом 4. Закрытая емкость. Узлы и детали. Архитектурные решения. Конструкции железобетонные. Конструкции металлические |
| Дата добавления в базу: | 01.09.2013 |
| Дата актуализации: | 01.01.2021 |
| Дата введения: | 03.12.1984 |
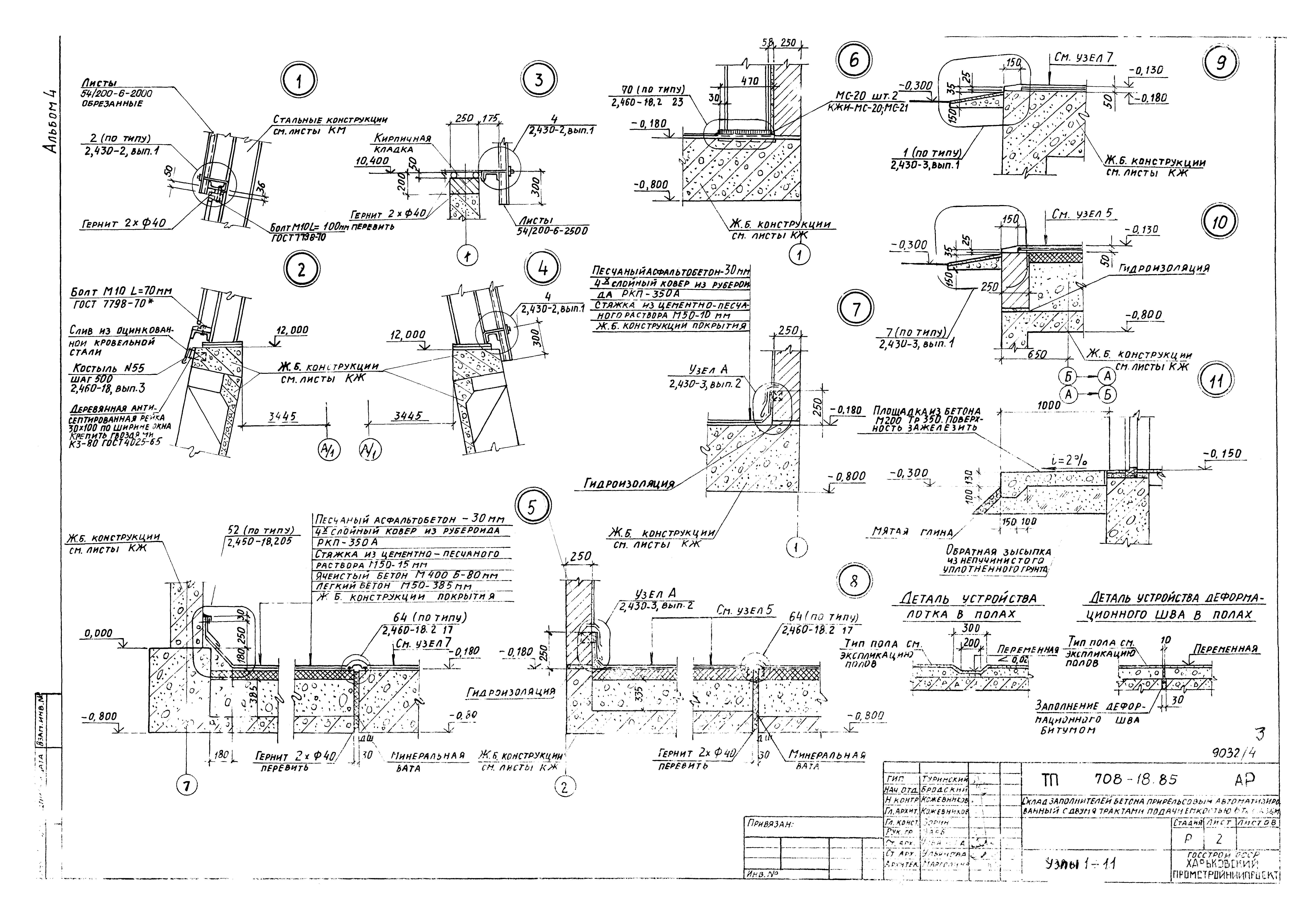
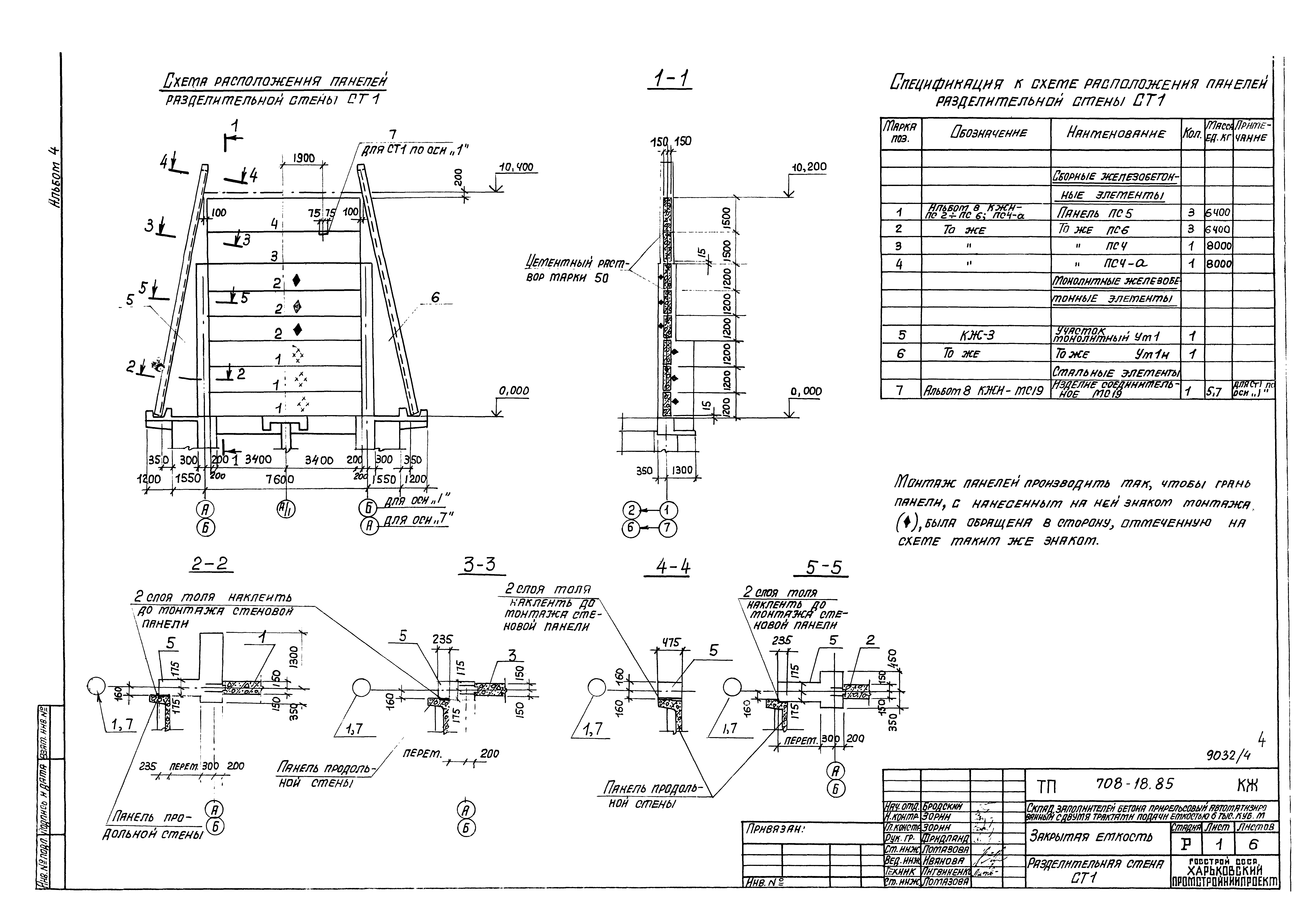
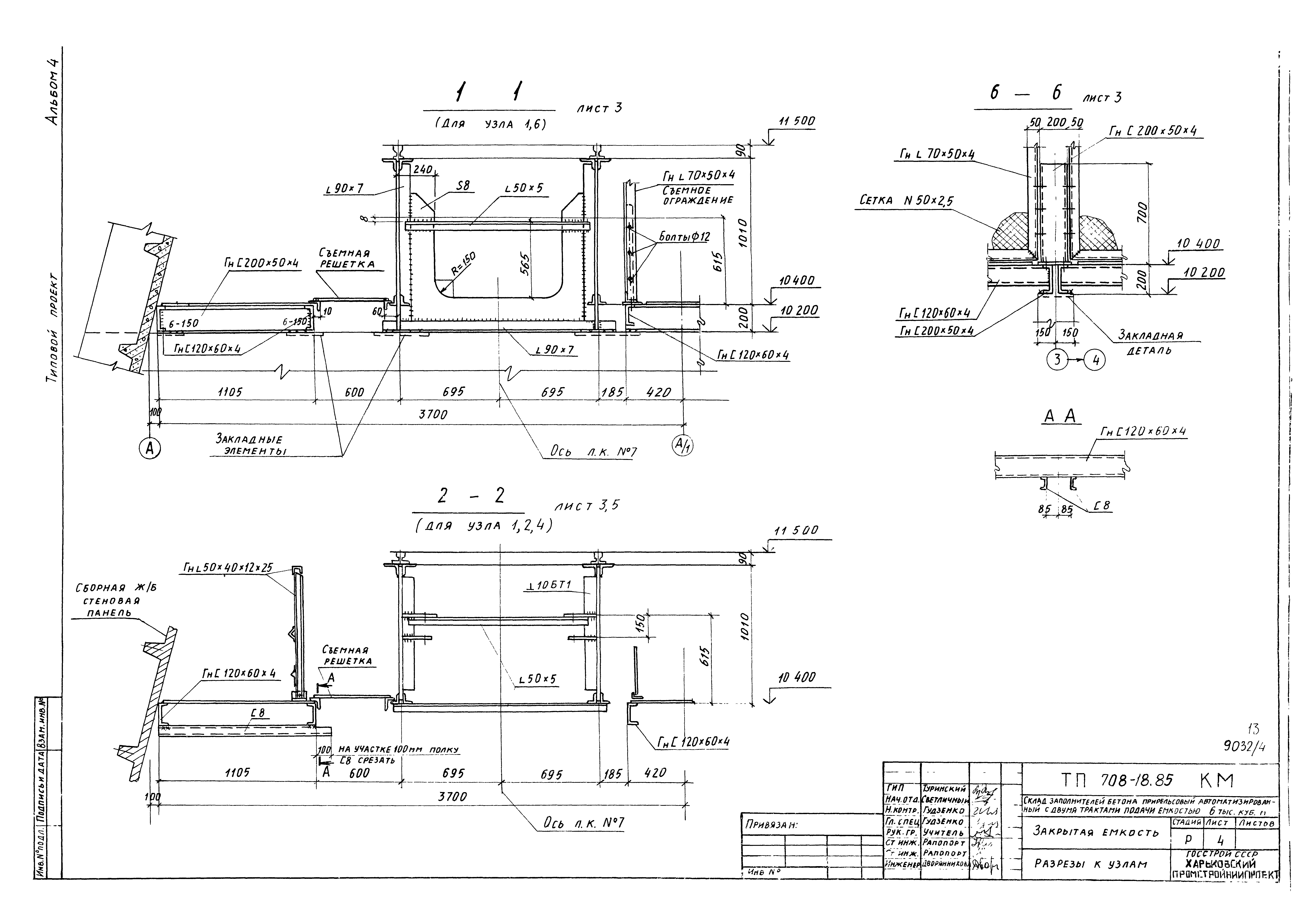
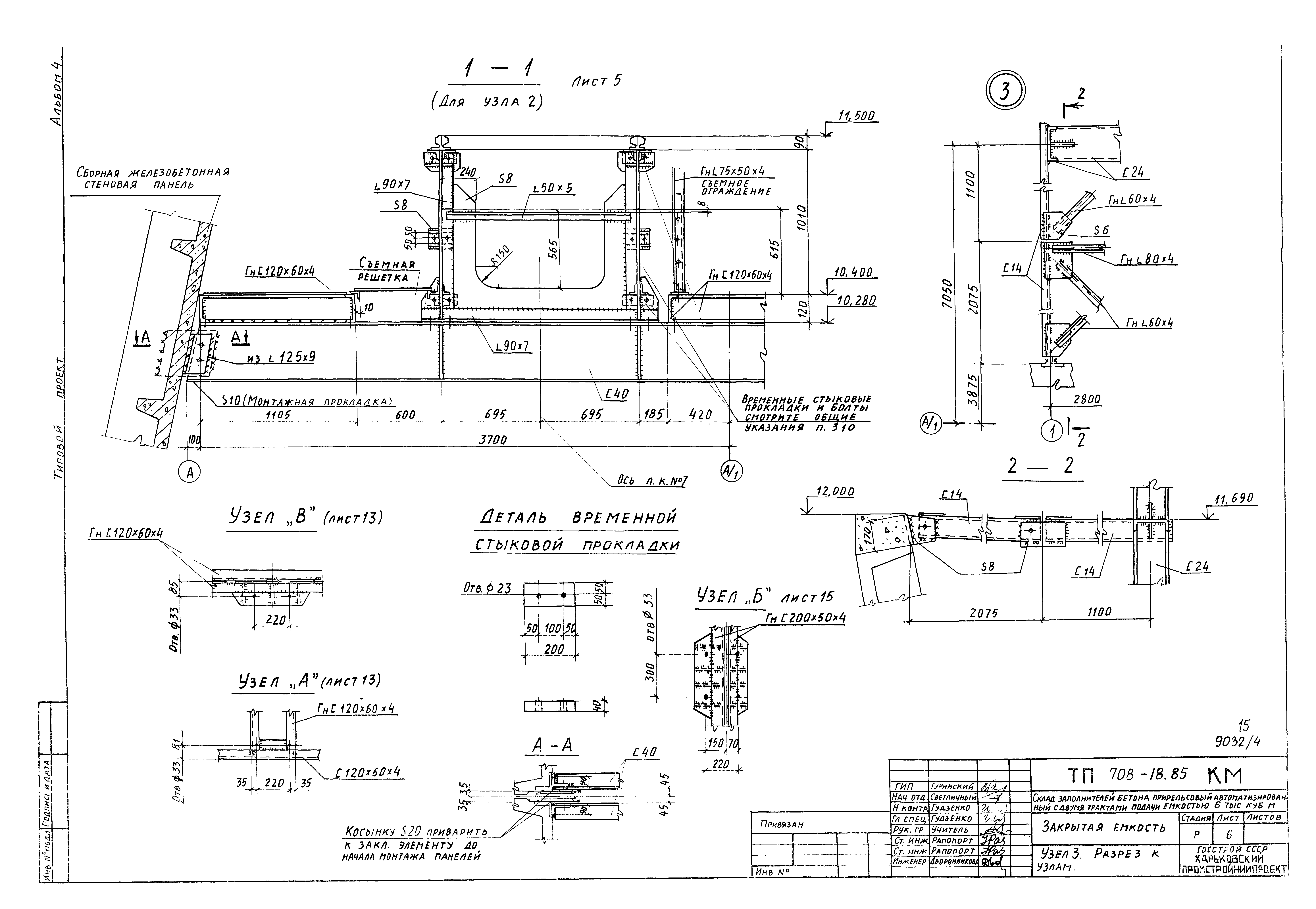
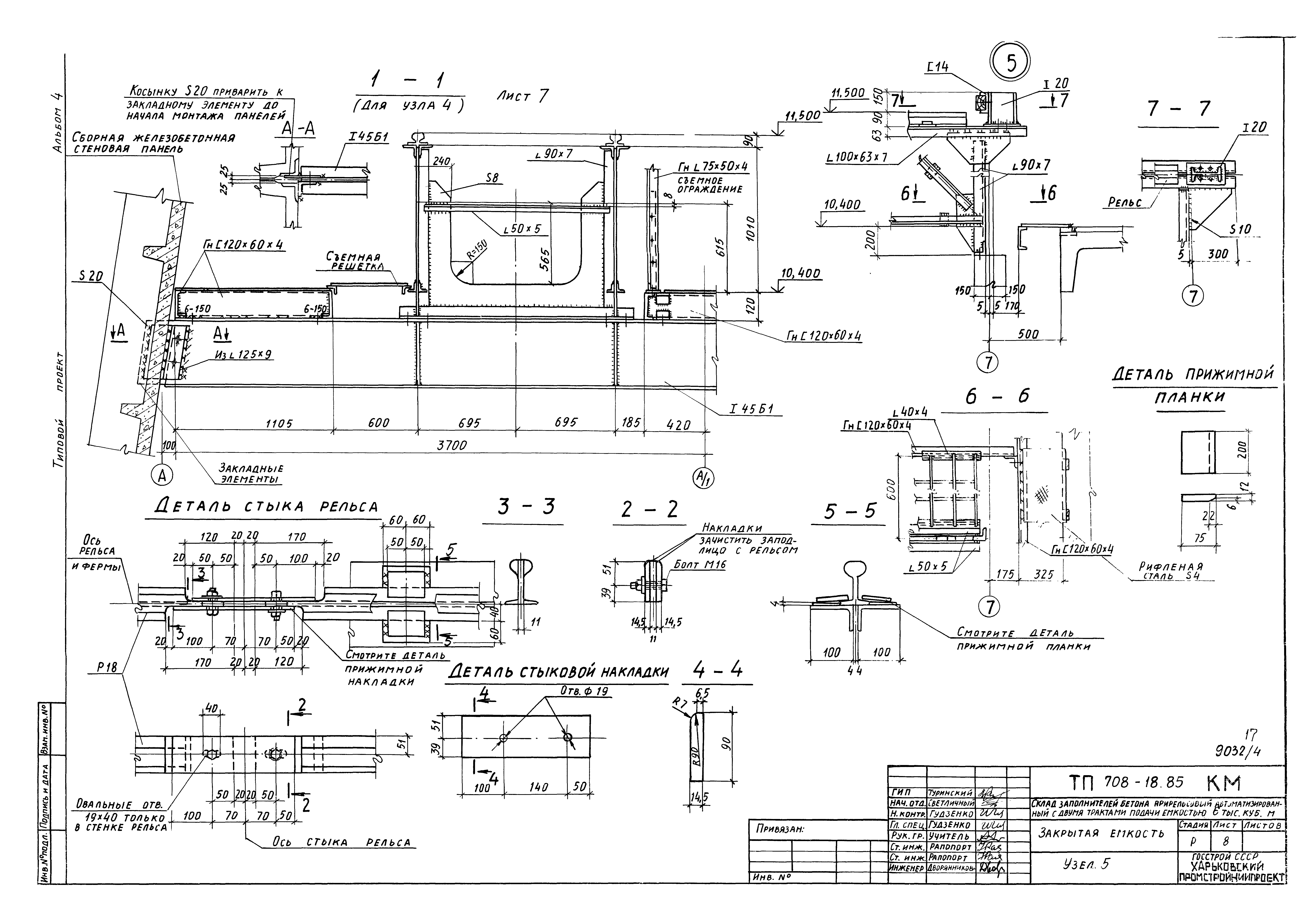
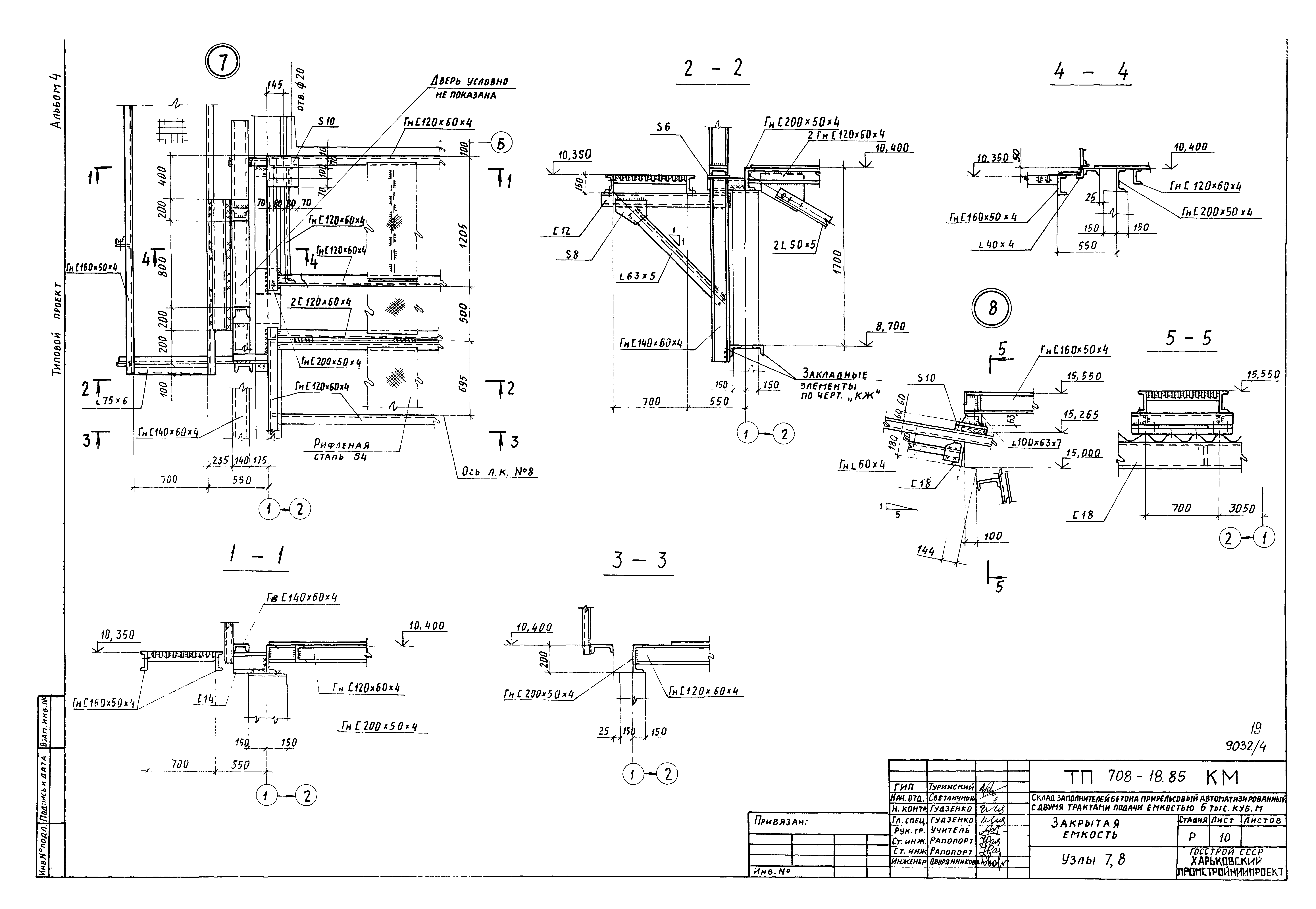
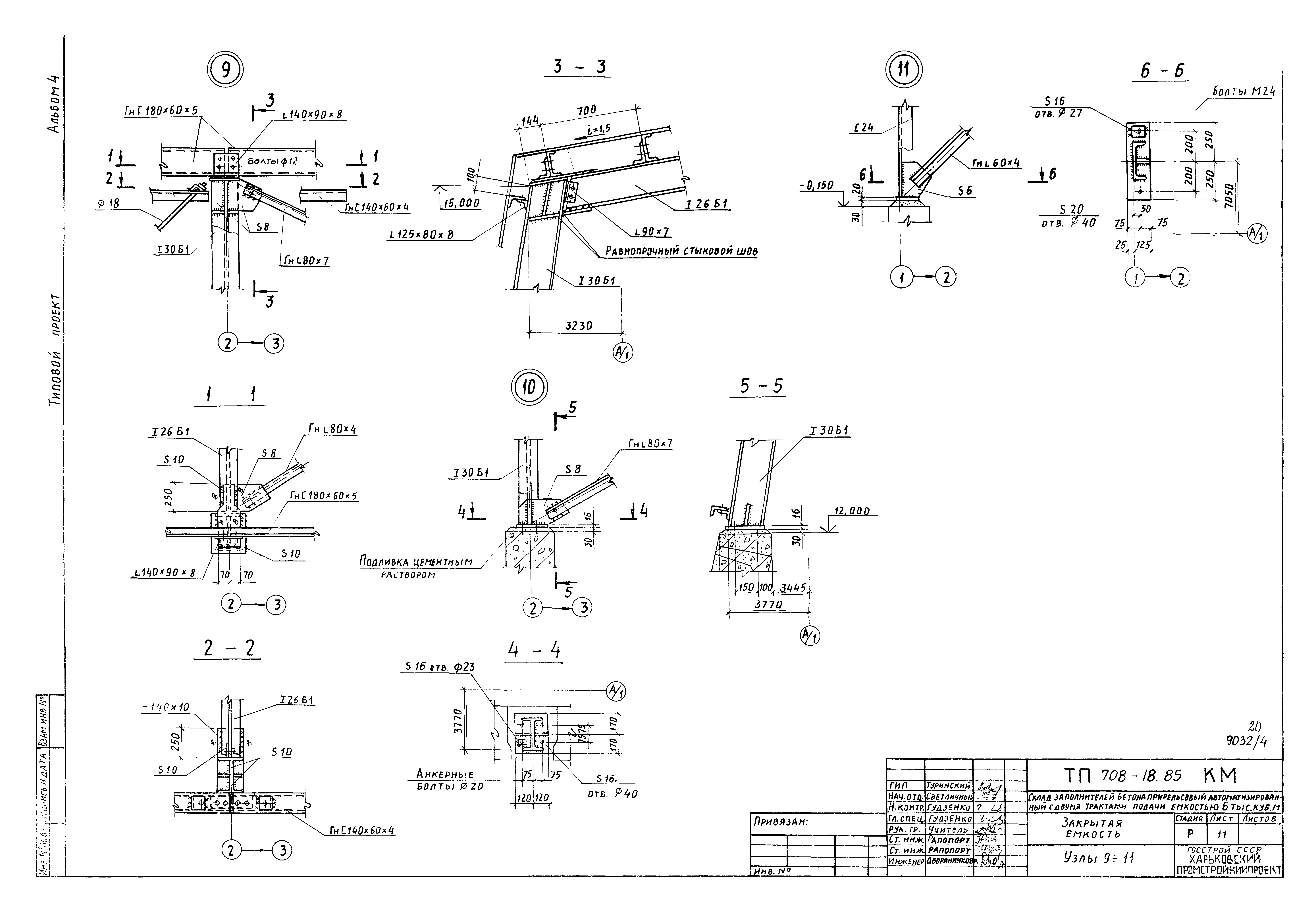
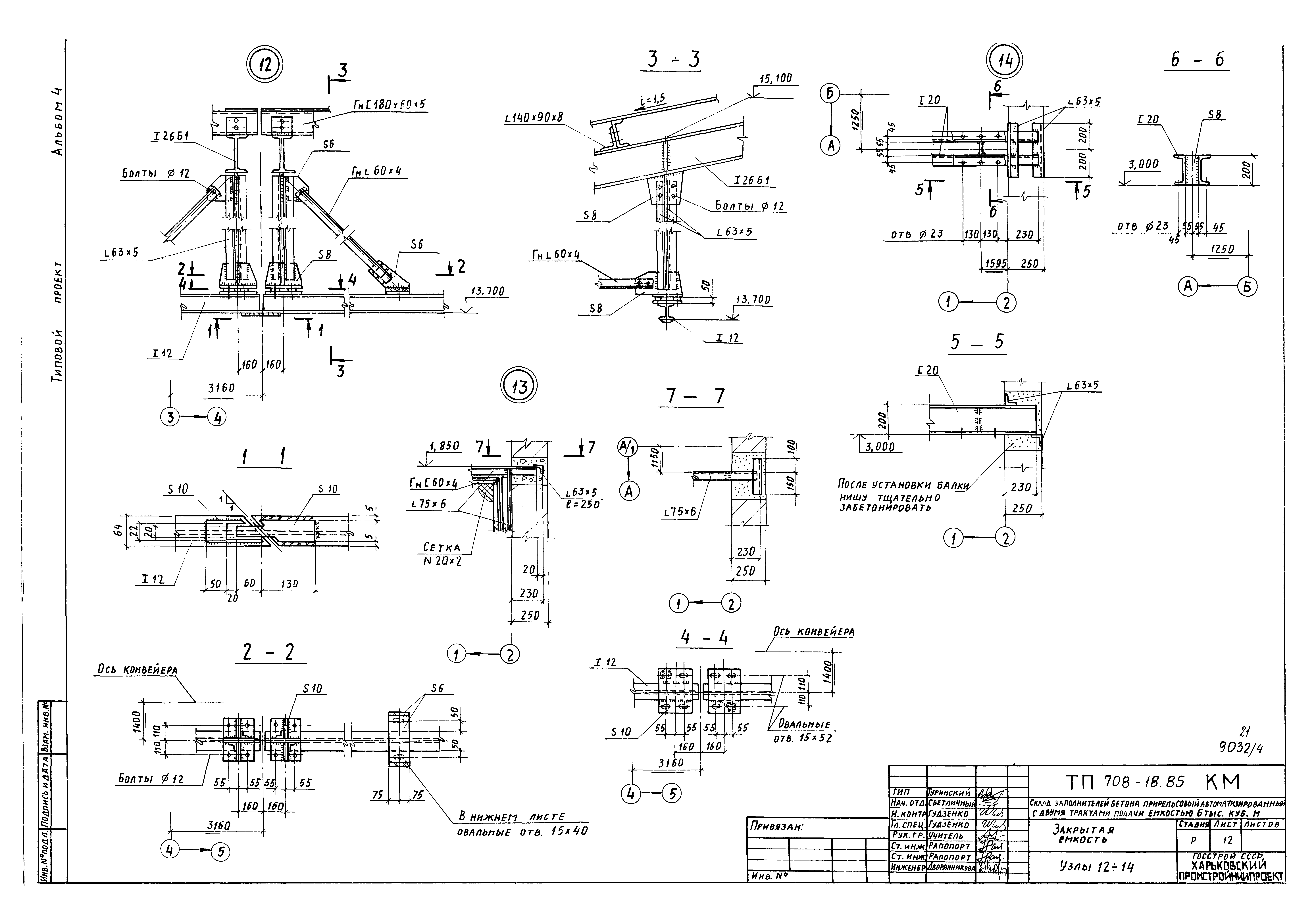
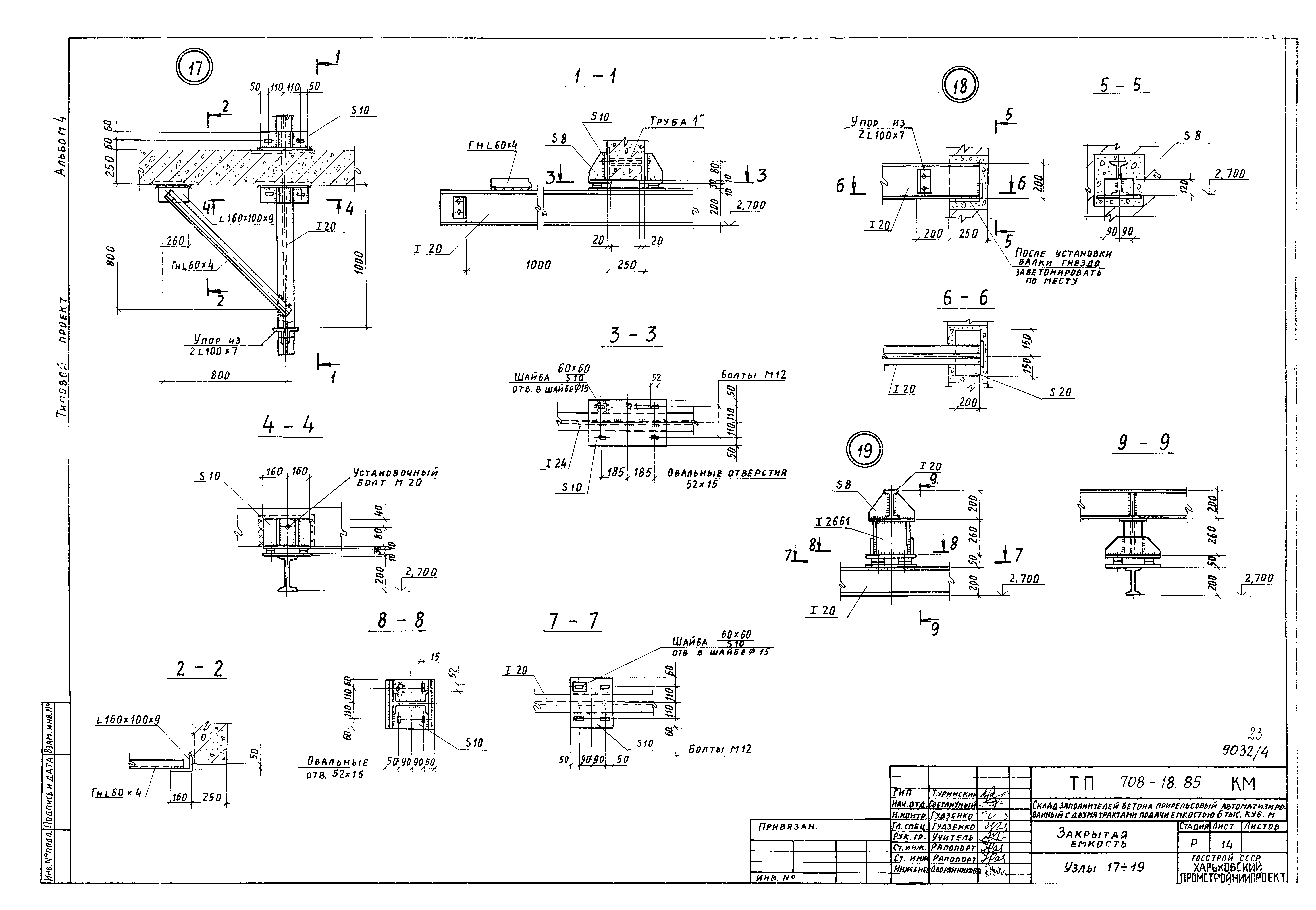
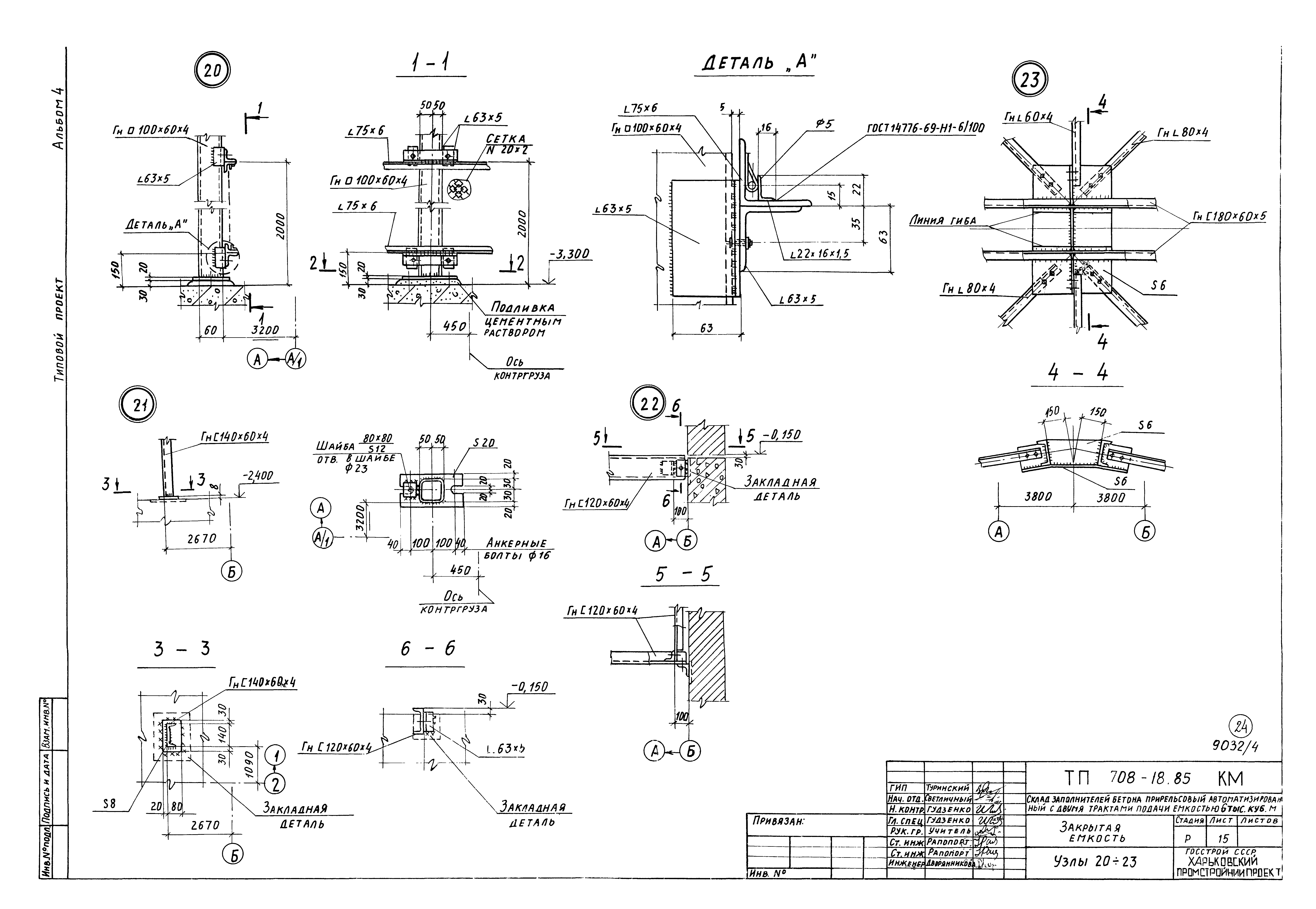
| Оглавление: | Чертежи основного комплекта марки АР Общие данные Узлы 1 - 11 Чертежи основного комплекта марки КЖ Разделительная стена Ст1 Разделительная стена Ст2 Участок монолитный Ум1, Ум1н Участок монолитный Ум2, Ум2н Продольные стены. Узлы 1 - 4; 4н Продольные стены. Узлы 5 - 9; 6н Чертежи основного комплекта марки КМ Схемы ферм ФК-2 - ФК-4 Схемы ферм ФК-1; ФК-5 Узел 1 Разрезы к узлам Узел 2 Узел 3. Разрез к узлам Узел 4 Узел 5 Узел 6 Узлы 7, 8 Узлы 9 - 11 Узлы 12 - 14 Узлы 15, 16 Узлы 17 - 19 Узлы 20 - 23 |
| Разработан: | Харьковский Промстройниипроект |
| Утверждён: | 07.01.1983 Госстрой СССР (Государственный комитет Совета Министров СССР по делам строительства) (USSR Gosstroy ВА-2) |

























