Скачать Типовой проект 708-18.85 Альбом 7. Автомобильное приемное устройство. Архитектурные решения. Конструкции железобетонные. Конструкции металлическиеДата актуализации: 01.01.2021
|
| Обозначение: | Типовой проект 708-18.85 |
| Обозначение англ: | 708-18.85 |
| Статус: | действует |
| Название рус.: | Альбом 7. Автомобильное приемное устройство. Архитектурные решения. Конструкции железобетонные. Конструкции металлические |
| Дата добавления в базу: | 01.09.2013 |
| Дата актуализации: | 01.01.2021 |
| Дата введения: | 03.12.1984 |
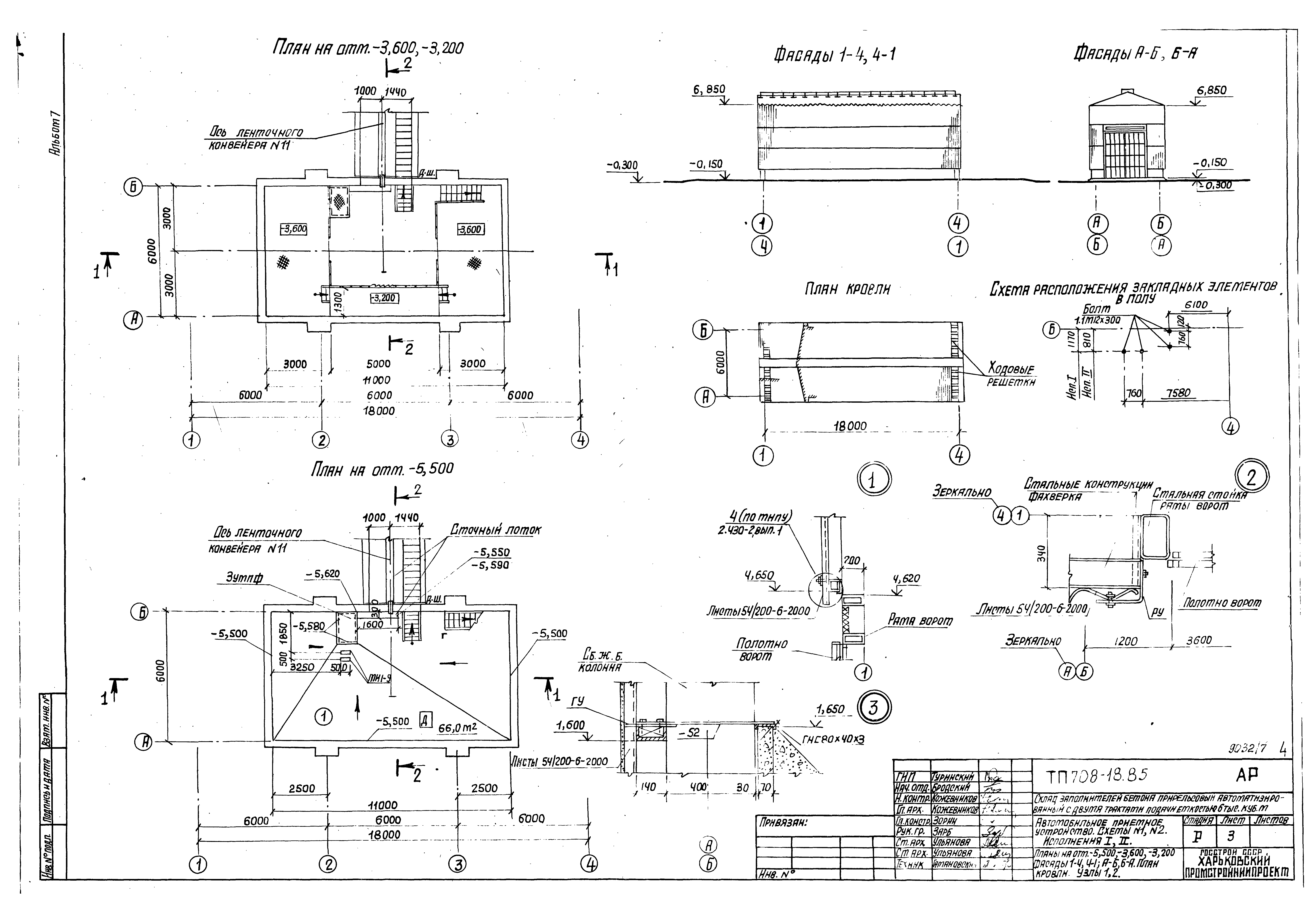
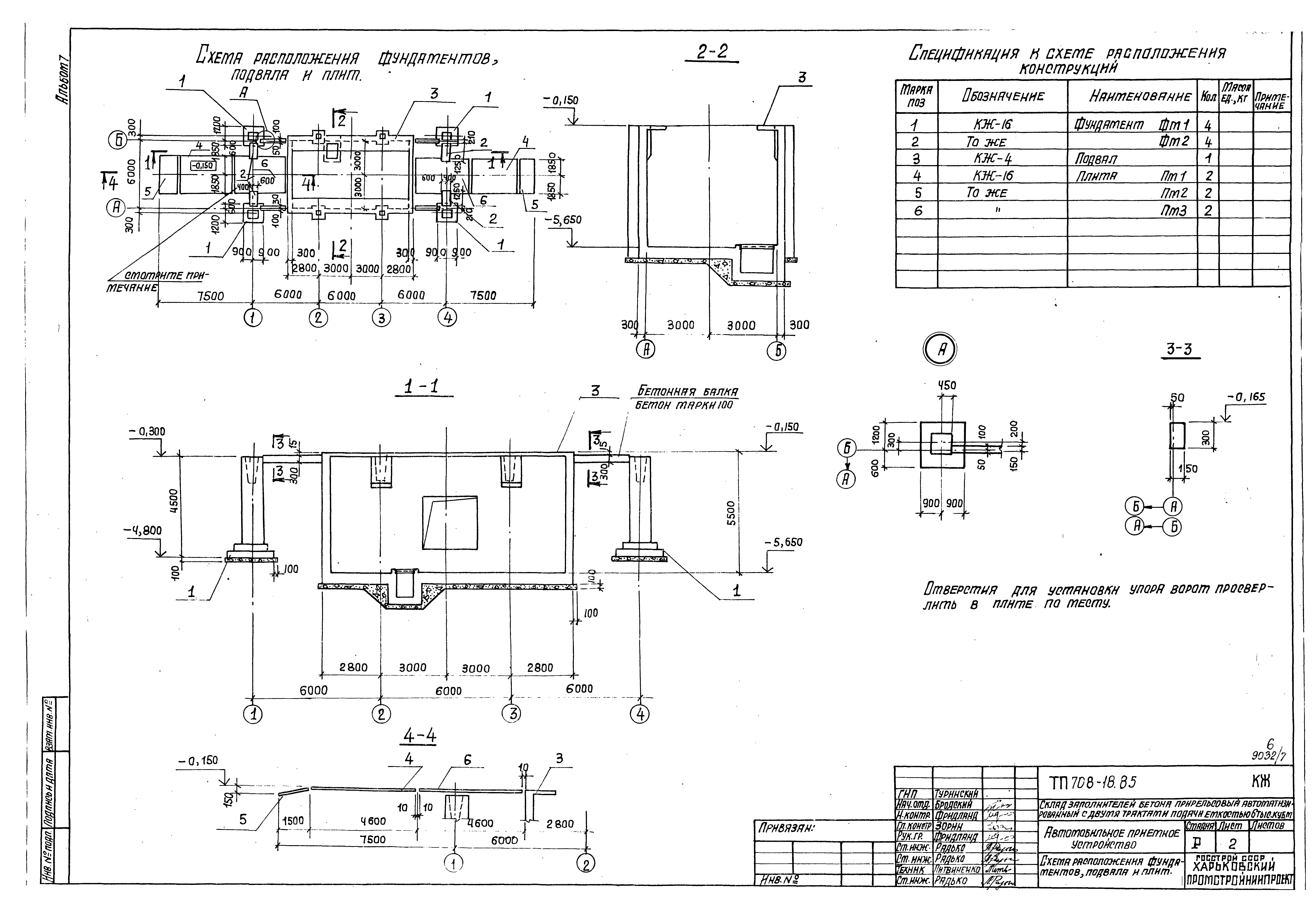
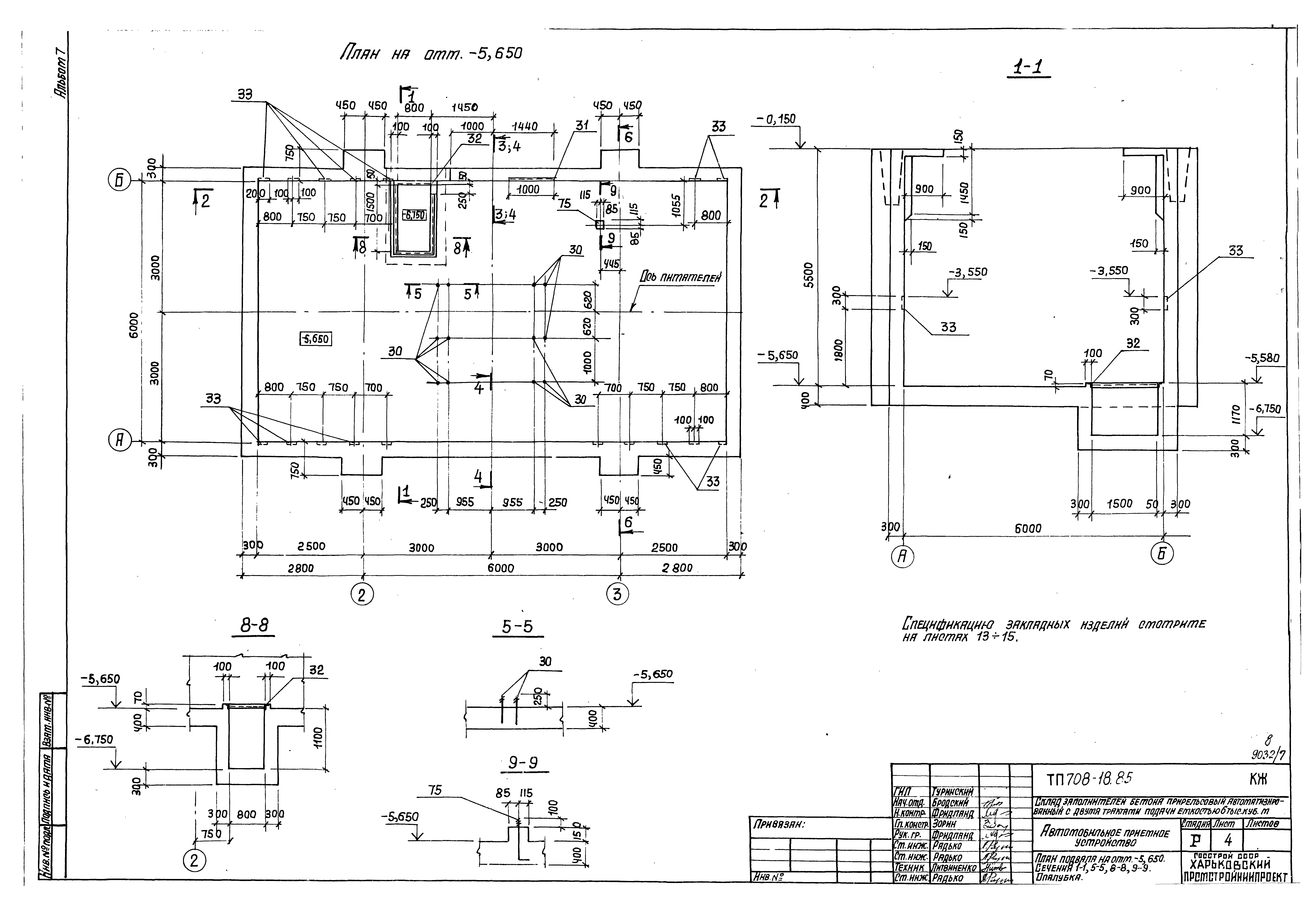
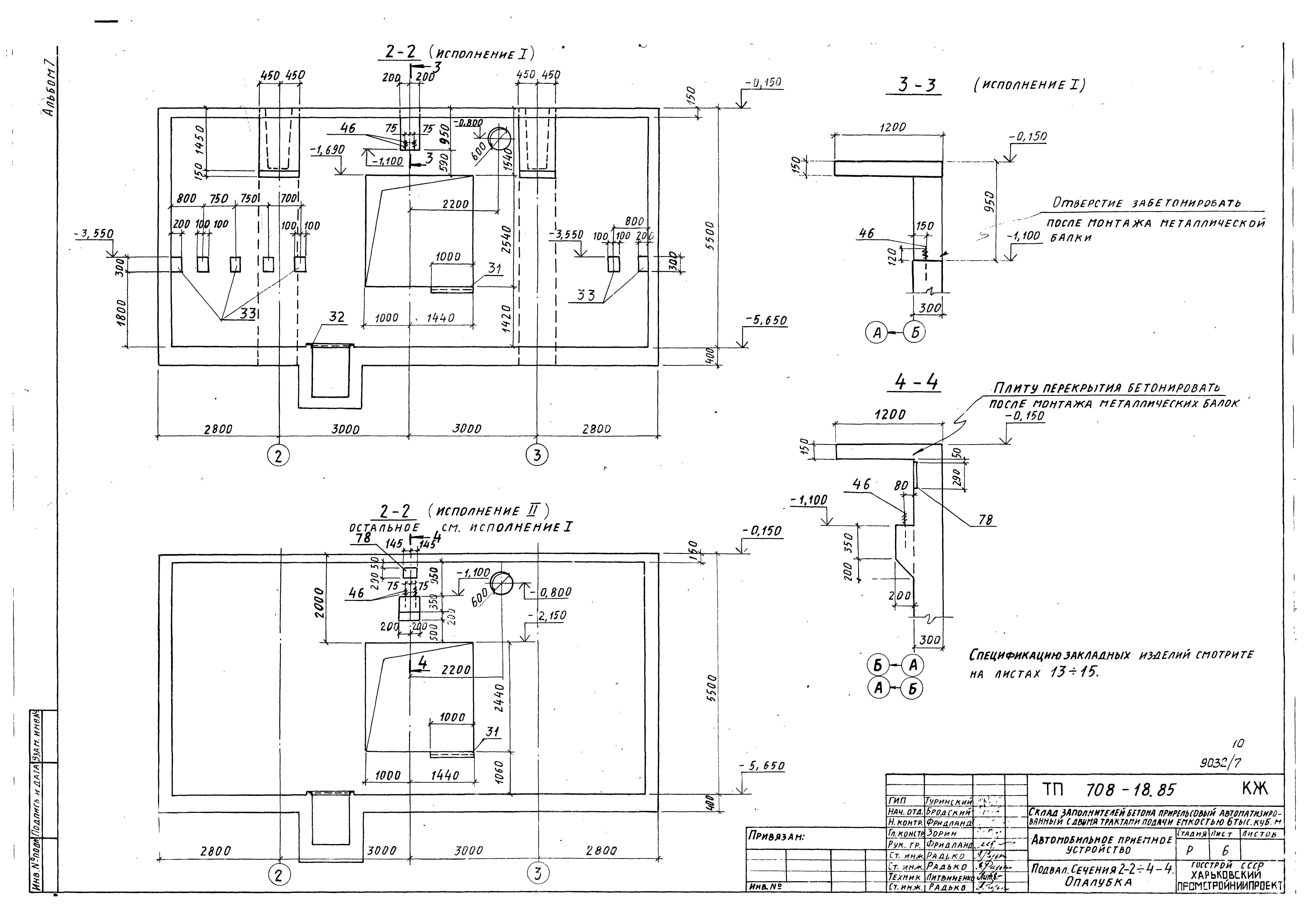
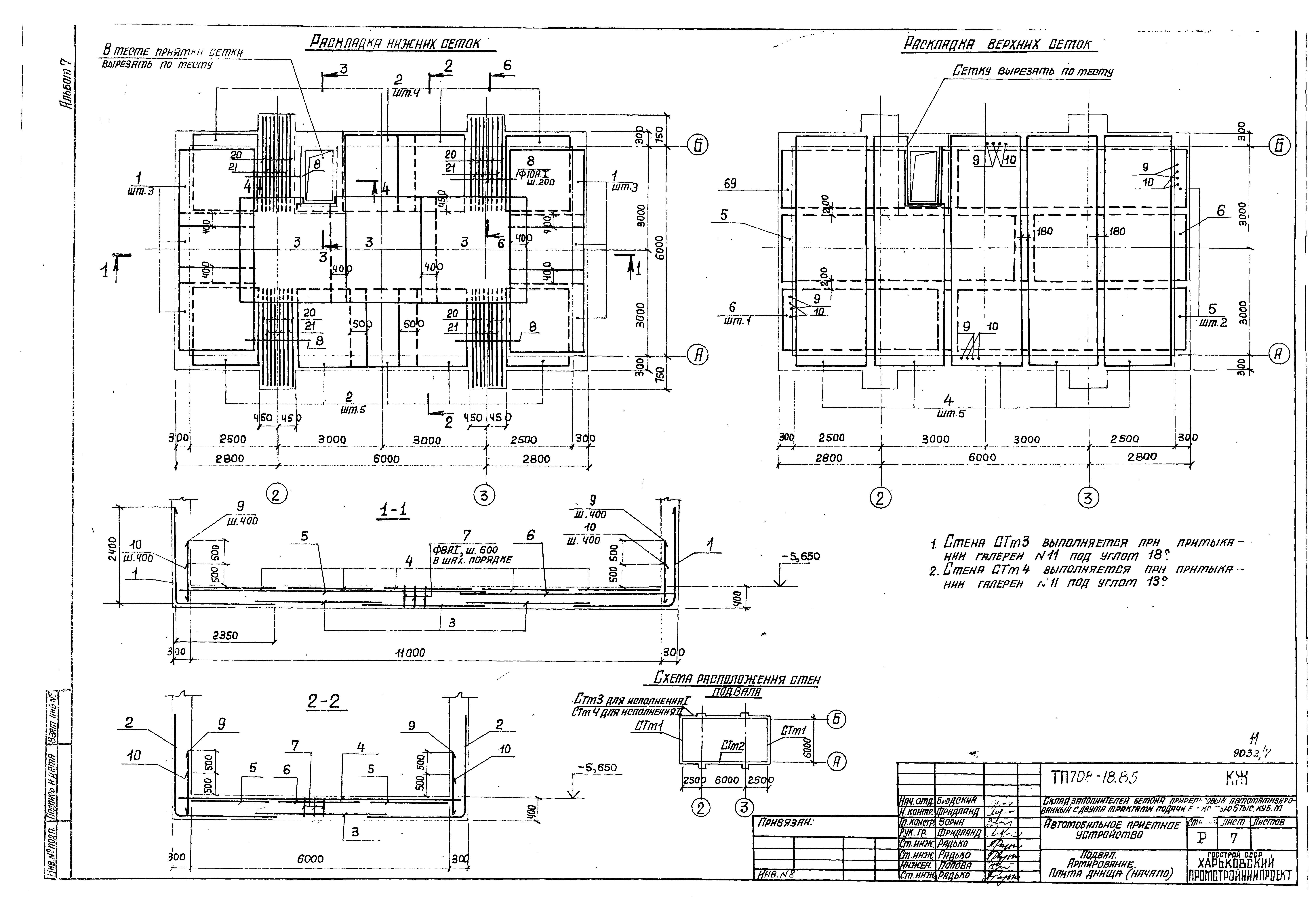
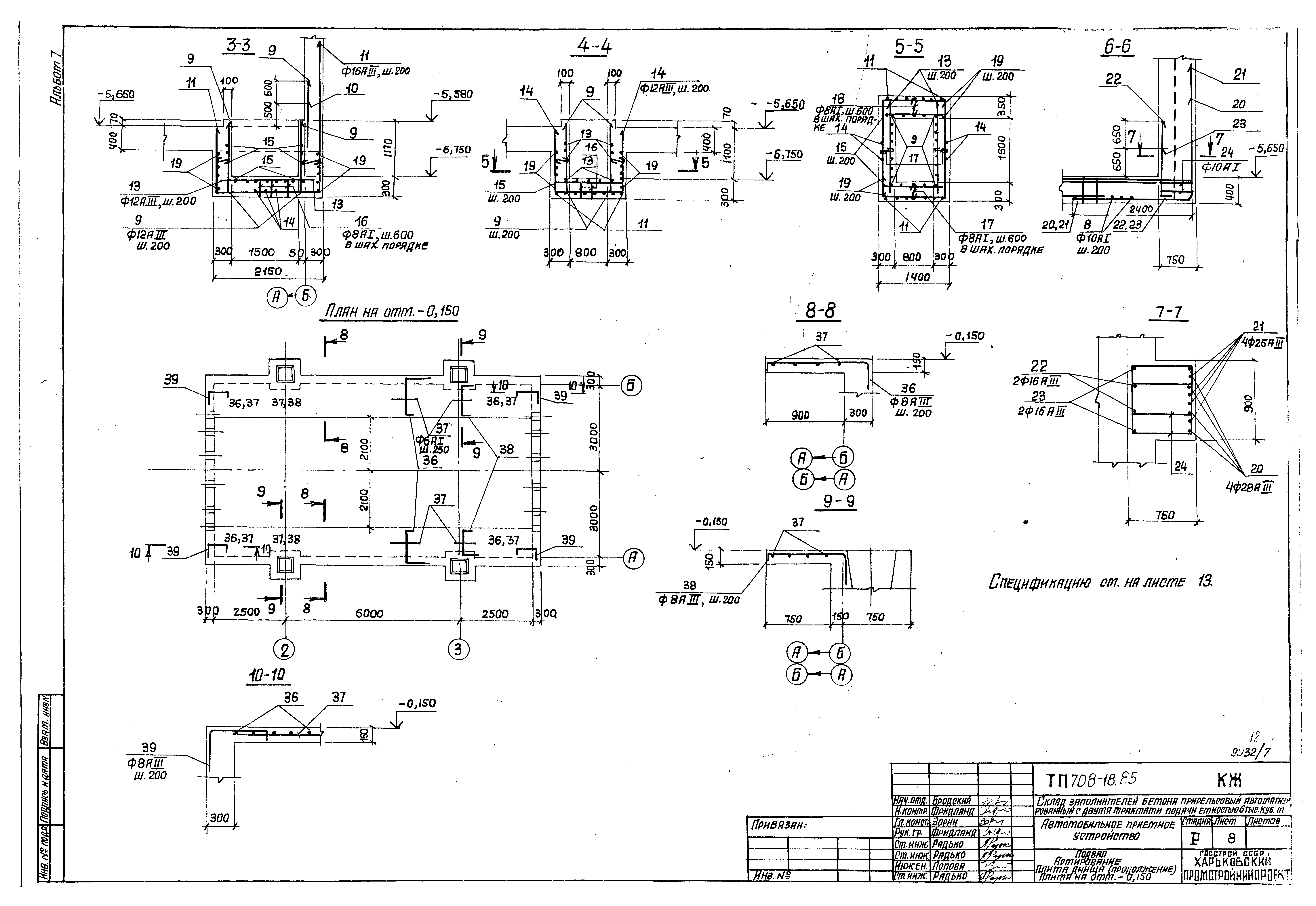
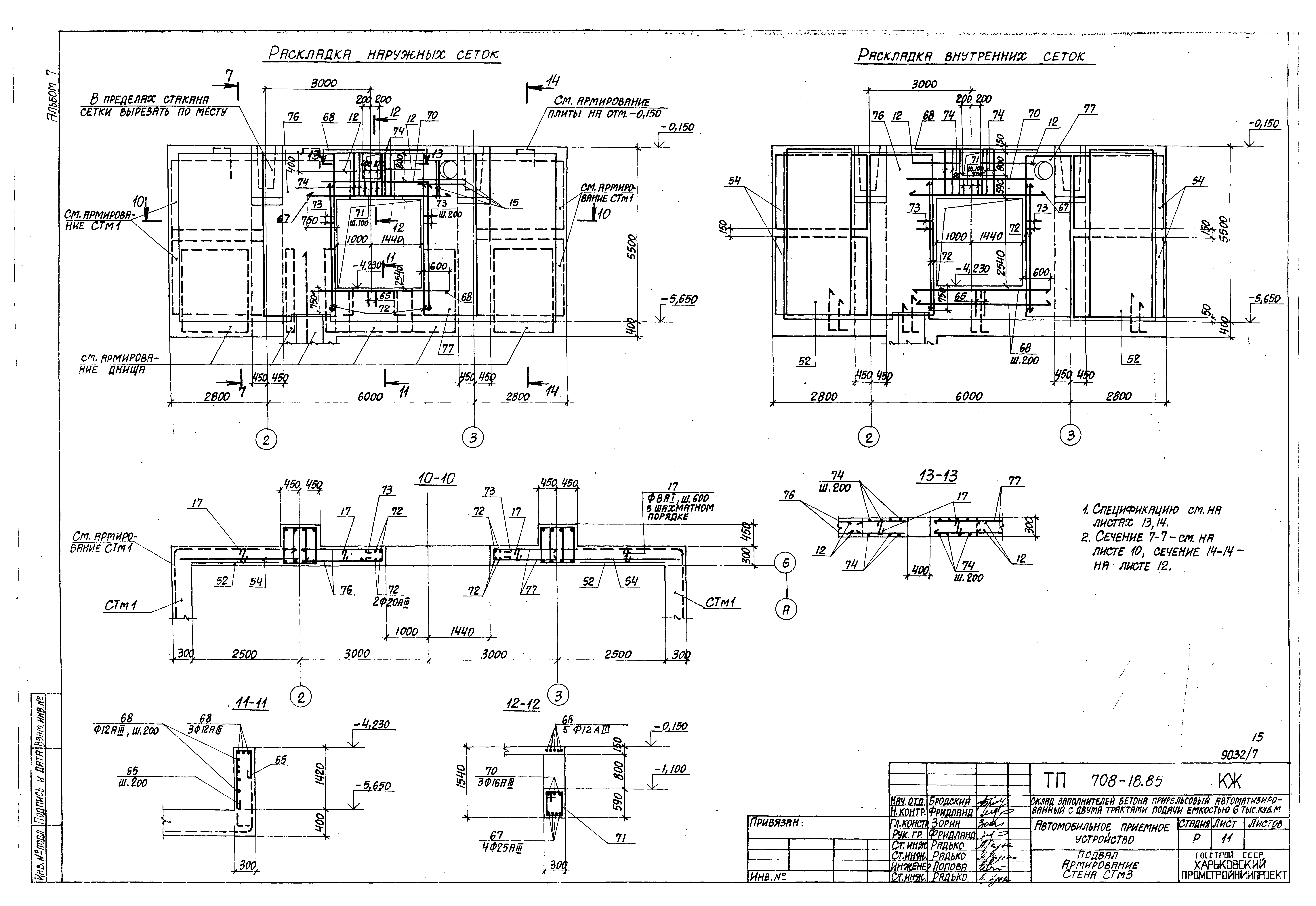
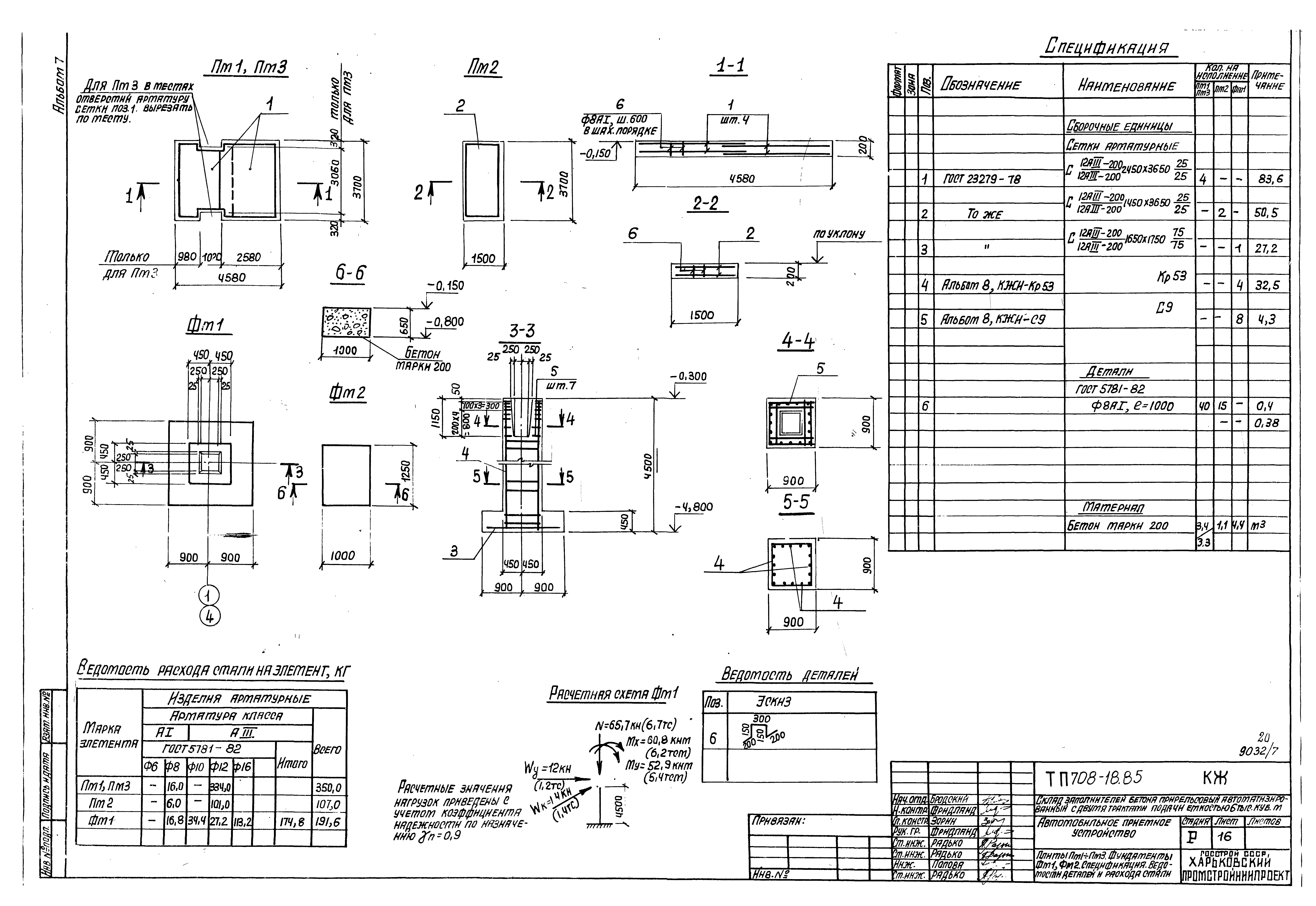
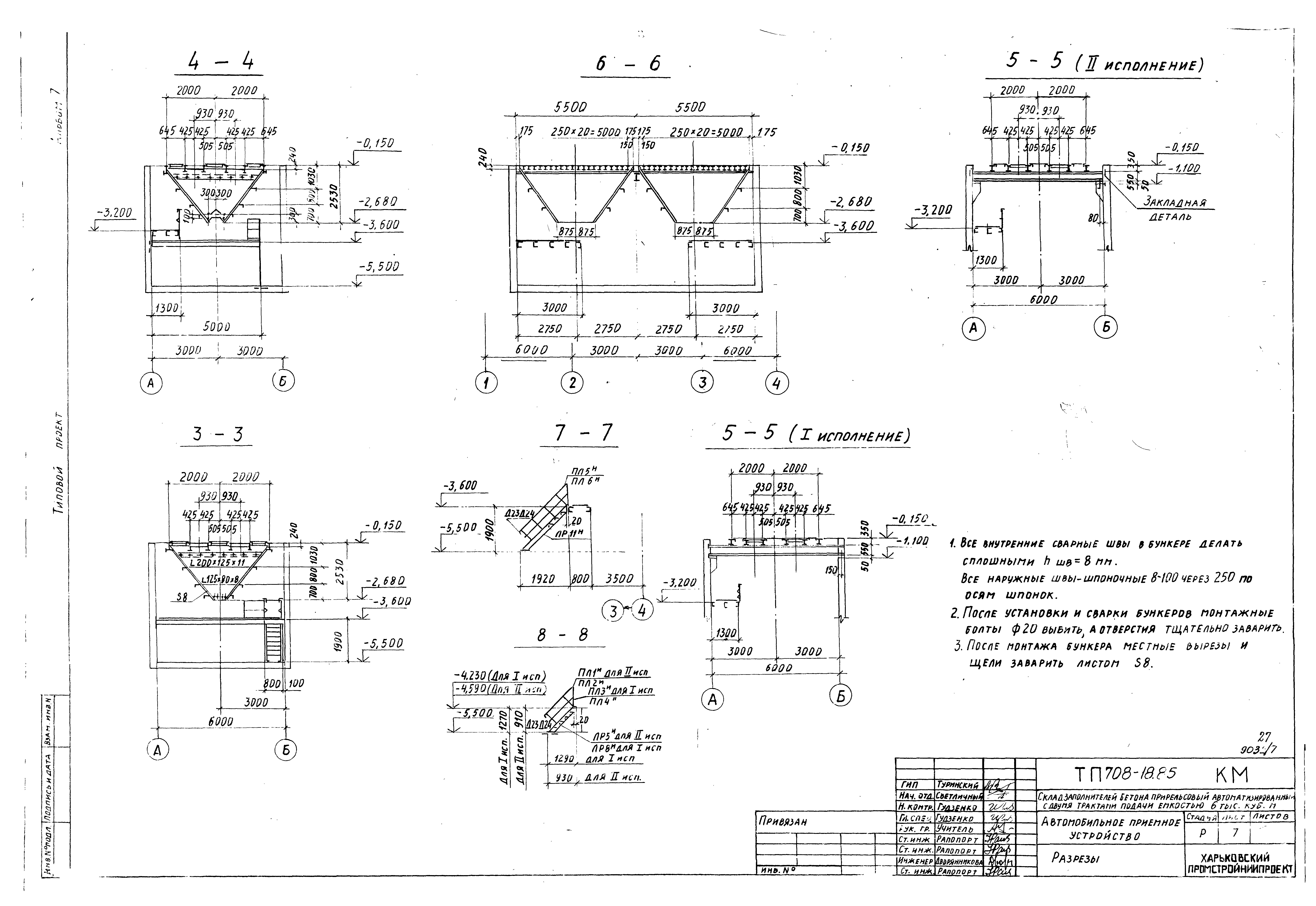
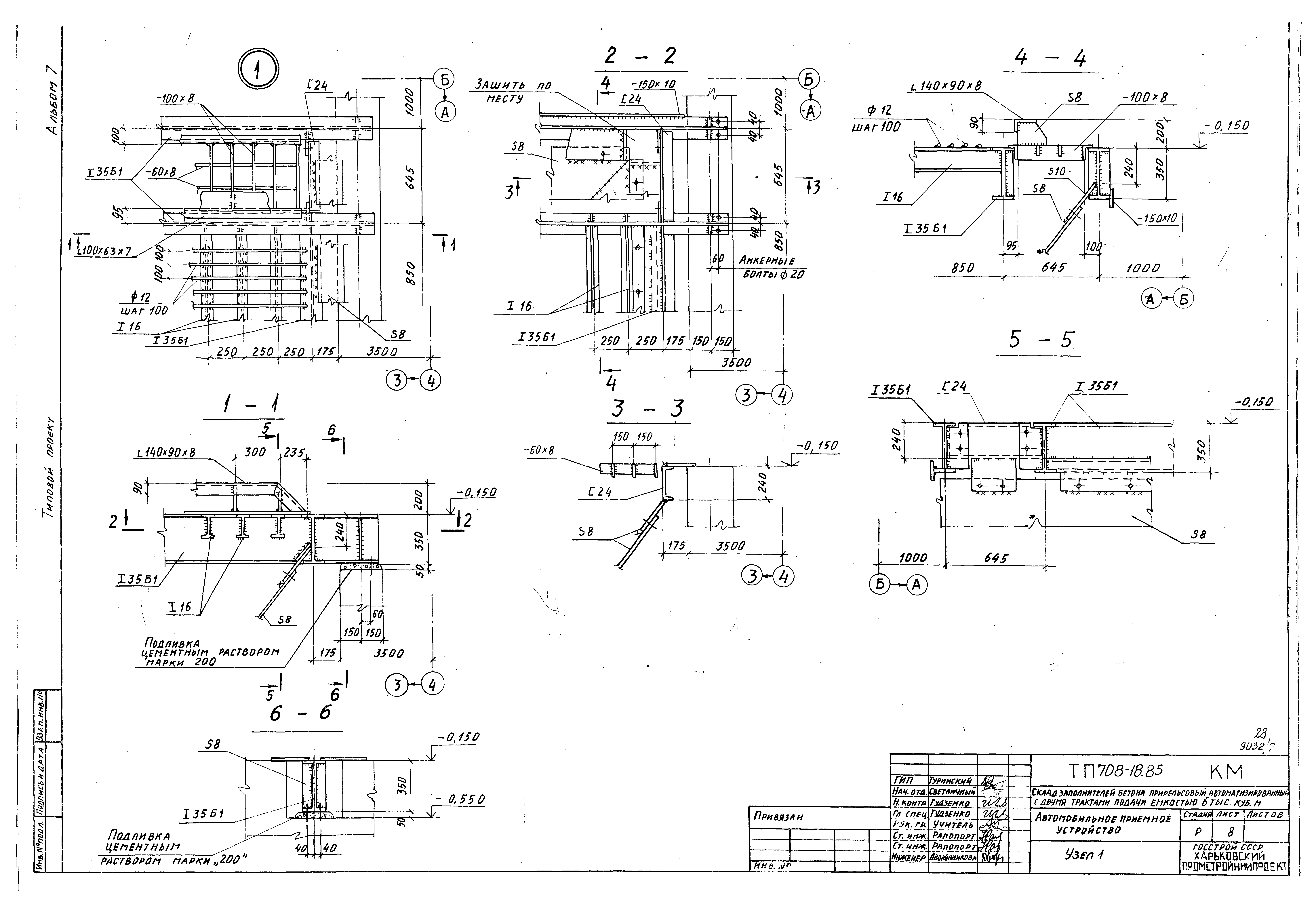
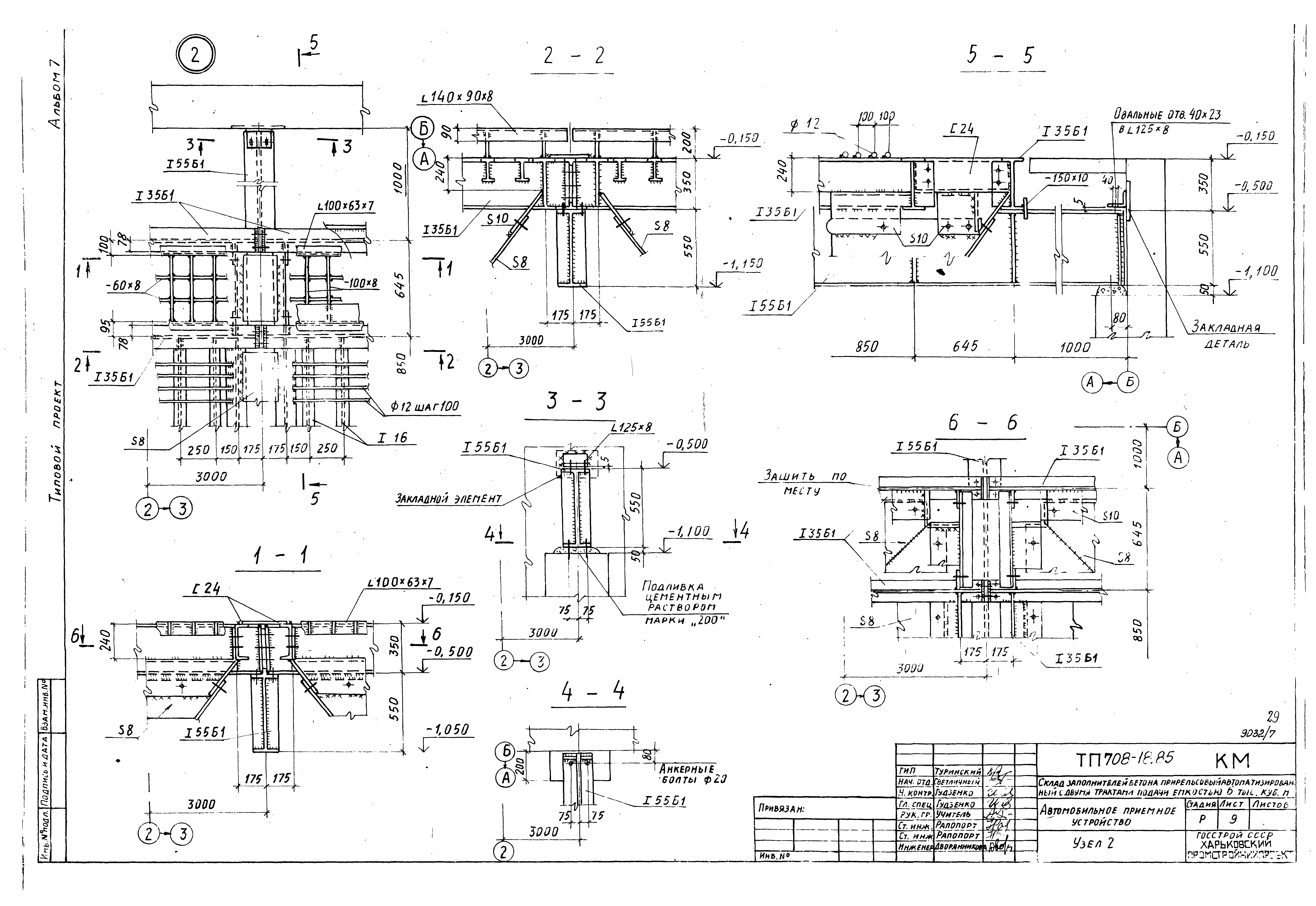
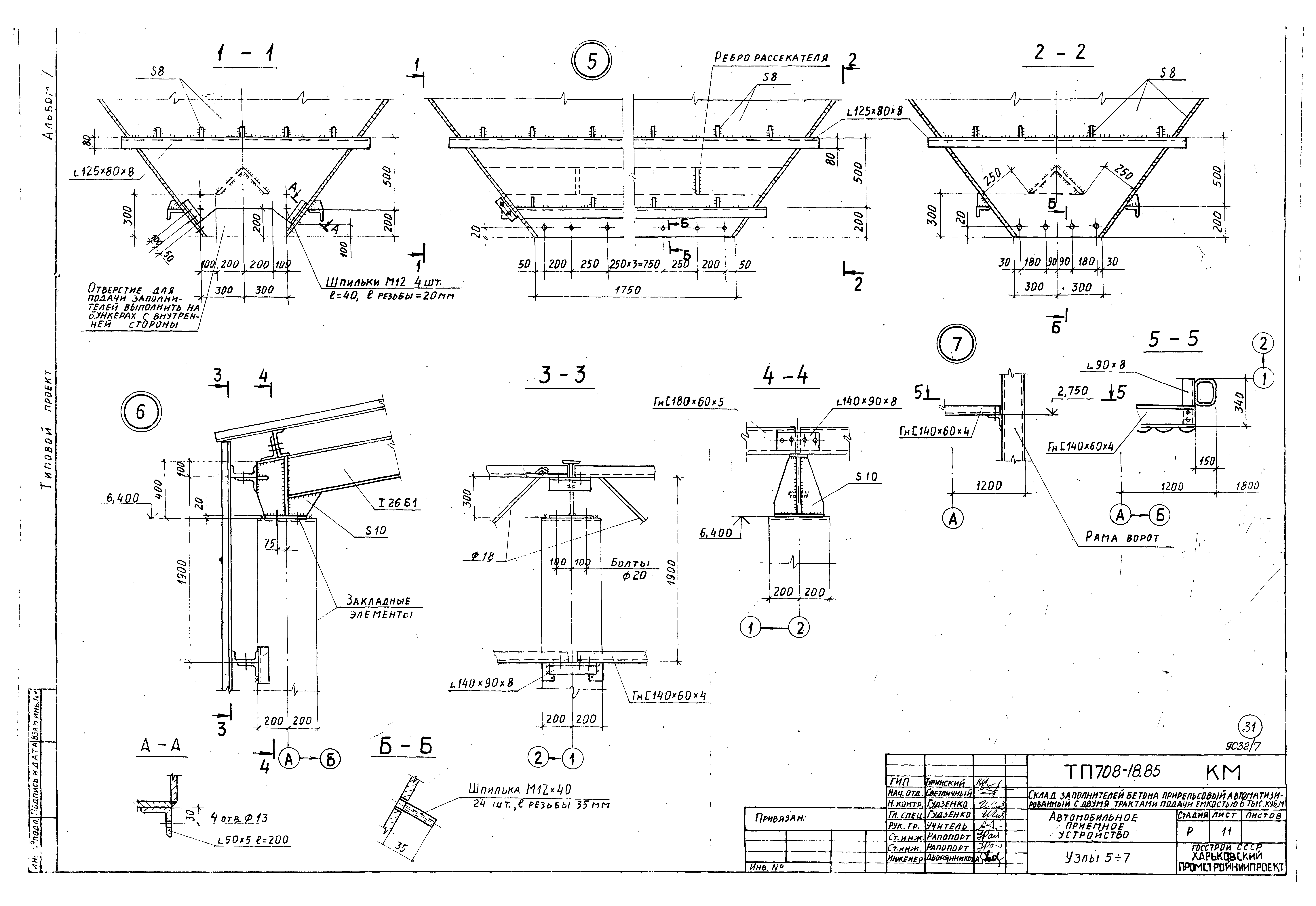
| Оглавление: | Чертежи основного комплекта марки АР Общие данные Автомобильное приемное устройство. Схемы №1, №2. Исполнения I, II. План на отм. - 0.150. Разрез 1-1, 2-2 Автомобильное приемное устройство. Схемы №1, №2. Исполнения I, II. Планы на отм. - 5.500; - 3.600; - 3.200. Фасады 1 - 4; 4 - 1; А - Б; Б - А. План кровли. Узлы 1, 2, 3 Чертежи основного комплекта марки КЖ Общие данные Схема расположения фундаментов, подвала и плит Схема расположения колонн и стеновых панелей План подвала на отм. - 5.650. Сечения 1-1, 5-5, 8-8, 9-9. Опалубка План подвала. Сечения 6-6, 7-7. Узел 1. Опалубка Подвал. Сечения 2-2 - 4-4. Опалубка Подвал. Армирование. Плита днища Подвал. Армирование. Плита днища. Плита на отм. - 0.150 Подвал. Армирование. Стена СТм1 Подвал. Армирование. Стена СТм2 Подвал. Армирование. Стена СТм3 Подвал. Армирование. Стена СТм4 Подвал. Спецификация. Исполнение I Подвал. Спецификация. Ведомости деталей, расхода стали. Исполнение I Подвал. Спецификация. Исполнение II Плиты Пм1 - Пм3. Фундаменты Фм1, Фм2. Спецификация. Ведомости деталей и расхода стали Чертежи основного комплекта марки КМ Общие данные Техническая спецификация металла Схемы покрытия и фахверка Схемы бункеров и площадок Разрезы Узел 1 Узел 2 Схемы решеток. Узлы 3, 4 Узлы 5 - 7 |
| Разработан: | Харьковский Промстройниипроект |
| Утверждён: | 07.01.1983 Госстрой СССР (Государственный комитет Совета Министров СССР по делам строительства) (USSR Gosstroy ВА-2) |
































