Скачать Типовой проект 708-18.85 Альбом 9. Отопление и вентиляция. Обогрев заполнителей. Водопровод и канализацияДата актуализации: 01.01.2021
|
| Обозначение: | Типовой проект 708-18.85 |
| Обозначение англ: | 708-18.85 |
| Статус: | действует |
| Название рус.: | Альбом 9. Отопление и вентиляция. Обогрев заполнителей. Водопровод и канализация |
| Дата добавления в базу: | 01.09.2013 |
| Дата актуализации: | 01.01.2021 |
| Дата введения: | 03.12.1984 |
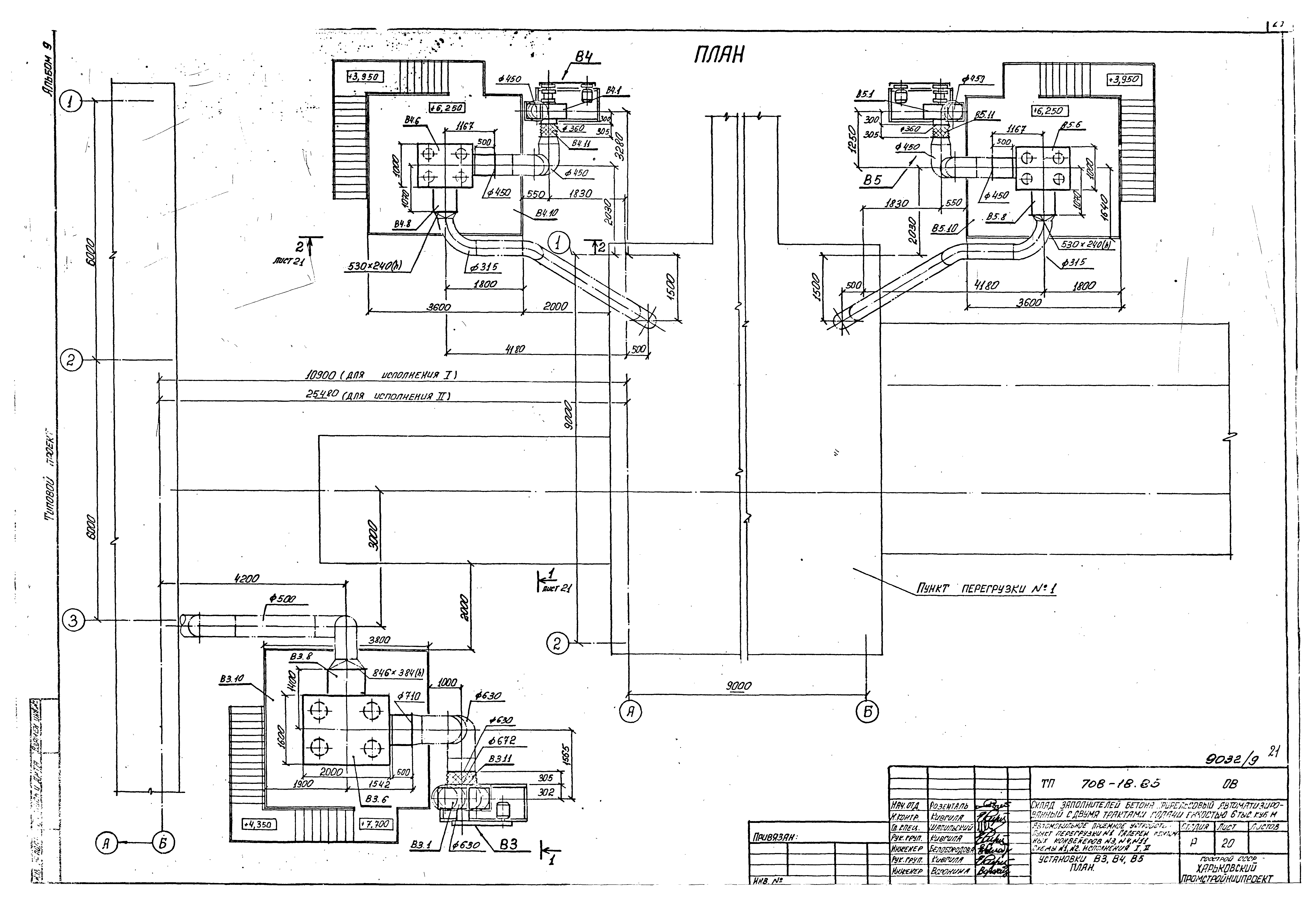
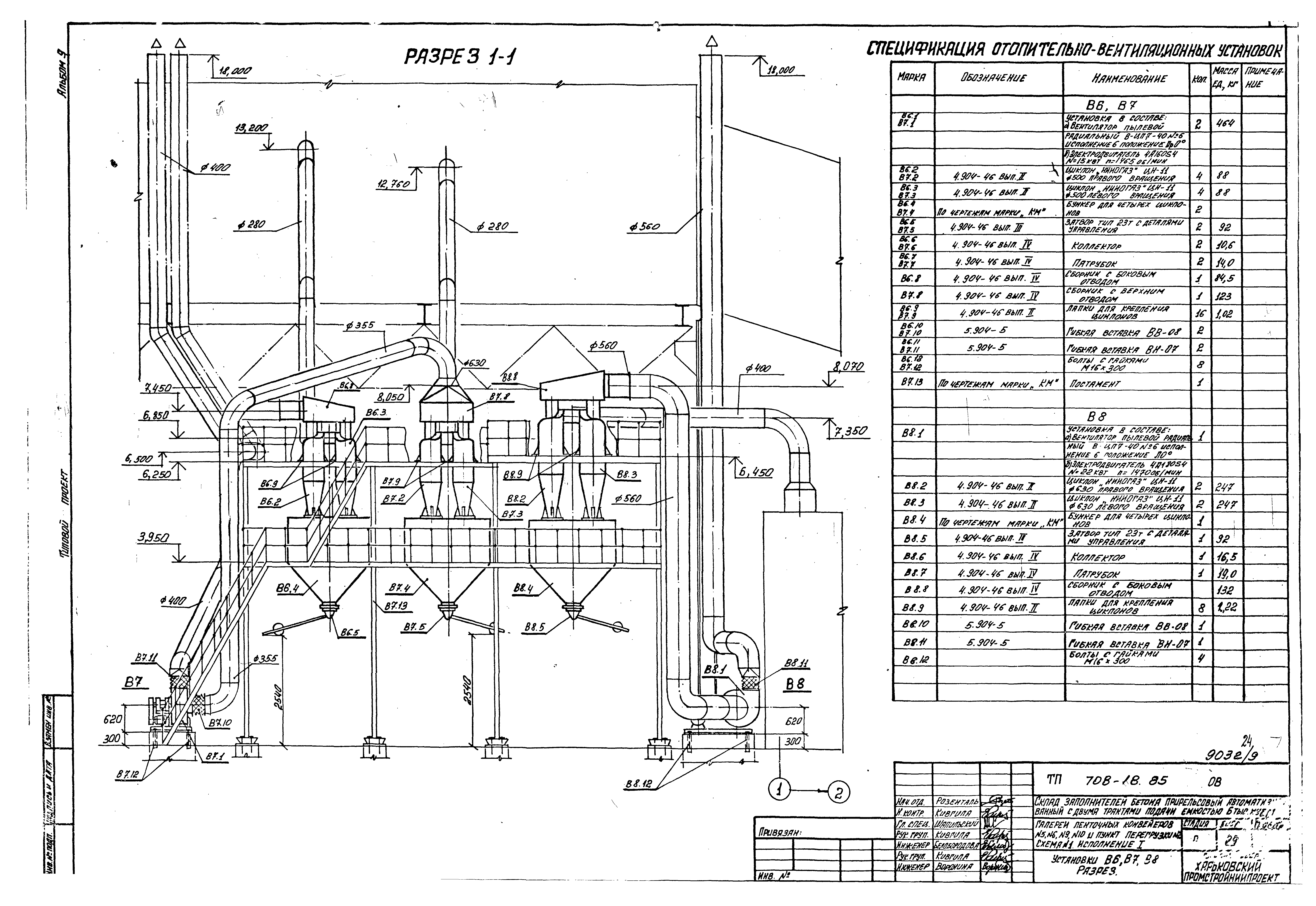
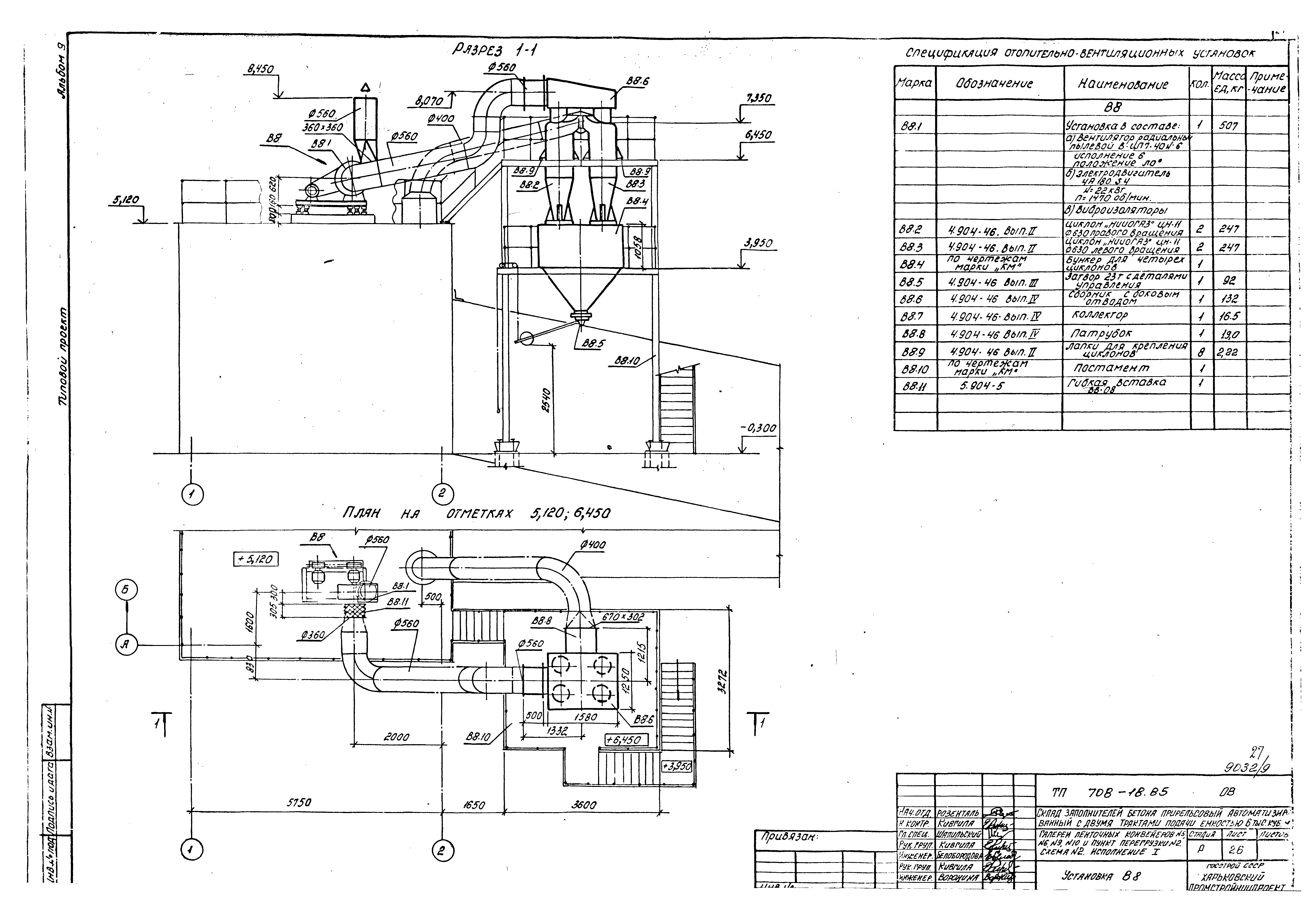
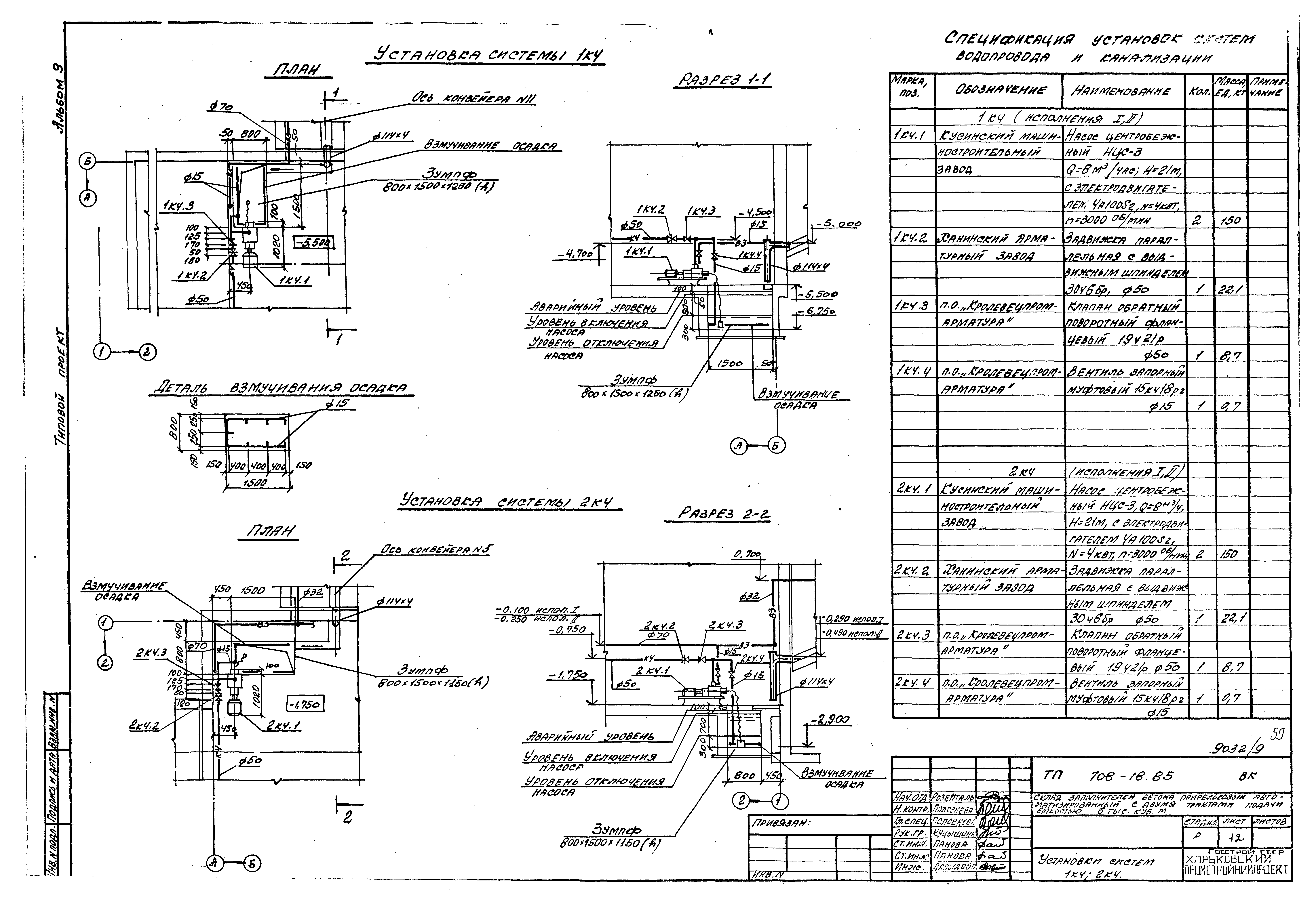
| Оглавление: | Чертежи основного комплекта марки ОВ Общие данные Планы отопления на отм. - 3.300; - 2.300; - 0.150 План на отм. - 3.300; - 2.300; - 0.150. Разрез 1-1 План на отм. - 5.500; - 3.200; - 1.750. Разрез 2-2 Разрезы 3-3, 4-4 План на отм. - 0.150; 10.400. Разрезы 5-5, 6-6 План на отм. 0.820; 10.400. Разрезы 7-7 - 9-9 План на отм. - 0.150; 10.400. Разрезы 10-10, 11-11 План на отм. 0.820; 10.400. Разрезы 12-12, 13-13 Схемы систем отопления, теплоснабжения установки П1 Узел управления. Вид по А-А. Размеры компенсаторов Схемы систем П1, П1а, В3. Чистка для круглых воздуховодов. Эскиз Схемы систем В4, В8 Схемы систем В6, В7, В8 Установки П1, П1а Установки В3, В4, В5. План Установки В3, В4, В5. Разрезы Установки В6, В7, В8. План Установки В6, В7, В8. Разрез Установки В6, В7, В8. План Установки В6, В7, В8. Разрез Установка В8 Установки В6, В7 Установка В8 Чертежи основного комплекта марки ОЗ Общие данные Закрытая емкость. Схемы №1, №2. Исполнение I. Планы на отм. 0.000; - 3.300 в осях 1 - 4, рядах А - Б Закрытая емкость. Схемы №1, №2. Исполнение I. Планы на отм. 0.000; - 3.300 в осях 4 - 7, рядах А - Б. Разрез 3-3 Закрытая емкость. Схема №1. Исполнение II. Планы на отм. 0.000; - 3.300 в осях 3 - 7, рядах А - Б. Разрез 6-6 Закрытая емкость. Схема №2. Исполнение II. Планы на отм. 0.000; - 3.300 в осях 1 - 5, рядах А - Б. Разрез 9-9 Закрытая емкость. Схемы №1, №2. Исполнение I. Разрез 1-1 Закрытая емкость. Схемы №1, №2. Исполнение I. Разрез 2-2 Закрытая емкость. Схема №1. Исполнение II. Разрезы 4-4, 5-5 Закрытая емкость. Схема №2. Исполнение II. Разрезы 7-7, 8-8 Закрытая емкость. Схемы №1, №2. Исполнение I, II. Узел установки регистров и крепление трубопроводов. Разрез 10-10 Закрытая емкость. Схемы №1, №2. Исполнение I, II. Узел установки регистров и крепление трубопроводов. Разрез 11-11 Закрытая емкость. Схемы №1, №2. Исполнение I, II. Установка термометра сопротивления и датчика температуры. Узел "А" Закрытая емкость. Схемы №1, №2. Исполнение I, II. Регистр №1. Общий вид Закрытая емкость. Схемы №1, №2. Исполнение I, II. Регистр №2. Общий вид Закрытая емкость. Схемы №1, №2. Исполнение I, II. Регистр №3. Общий вид Закрытая емкость. Схемы №1, №2. Исполнение I, II. Регистр №4. Общий вид Закрытая емкость. Схемы №1, №2. Исполнение I, II. Регистр №5. Общий вид Закрытая емкость. Схемы №1, №2. Исполнение I, II. Регистр №6. Общий вид Чертежи основного комплекта марки ВК Общие данные Автомобильное приемное устройство. Схемы №1, №2. Исполнения I, II. Планы на отм. - 0.150; - 3.600; - 5.500. Разрез 1-1 Пункт перегрузки №1 с галереями ленточных конвейеров №3, №4, №11. Схемы №1, №2. Исполнения I, II. План на отм. - 1.750. Разрез 1-1 Галерея ленточных конвейеров №5 - №8. Схемы №1, №2. Исполнения I, II. Планы на отм. 10.400; - 1.750. Разрез 1-1 Галерея ленточных конвейеров №9, №10 и пункт перегрузки №2. Схемы №1, №2. Исполнение I. Планы на отм. - 0.150; - 1.150. Разрез 1-1 Галерея ленточных конвейеров №9, №10 и пункт перегрузки №2. Схемы №1, №2. Исполнение II. Планы на отм. 0.820; 2.070. Разрез 1-1 Закрытая емкость. Схемы №1, №2. Исполнение I. Планы на отм. - 3.300. Разрез 1-1 Закрытая емкость. Схема №1. Исполнение II. План на отм. - 3.300 Закрытая емкость. Схема №2. Исполнение II. План на отм. - 3.300 Натяжной пункт. Вентпомещение. Схемы №1, №2. Исполнения I, II. Планы на отм. - 2.300; - 3.300 Установки систем 1К4, 2К4 Установки системы 3К4 Установки системы 4К4 Установки системы 5К4. Схема системы 5К4 Схемы системы К4 Схемы системы В3 (ввод В3-1) Схемы системы В3 (ввод В3-2). Схемы №1, №2 сооружений склада. Исполнение I Схемы системы В3 (ввод В3-2). Схема №1 сооружений склада. Исполнение II Схемы системы В3 (ввод В3-2). Схема №2 сооружений склада. Исполнение II Эскиз форсунки для гидрообеспыливания с соплом Ф 2,5 мм |
| Разработан: | Харьковский Промстройниипроект |
| Утверждён: | 07.01.1983 Госстрой СССР (Государственный комитет Совета Министров СССР по делам строительства) (USSR Gosstroy ВА-2) |





































































