Скачать Типовой проект 708-18.85 Альбом 11. Задание заводу-изготовителю на комплектные электротехнические устройстваДата актуализации: 01.01.2021
|
| Обозначение: | Типовой проект 708-18.85 |
| Обозначение англ: | 708-18.85 |
| Статус: | действует |
| Название рус.: | Альбом 11. Задание заводу-изготовителю на комплектные электротехнические устройства |
| Дата добавления в базу: | 01.09.2013 |
| Дата актуализации: | 01.01.2021 |
| Дата введения: | 03.12.1984 |
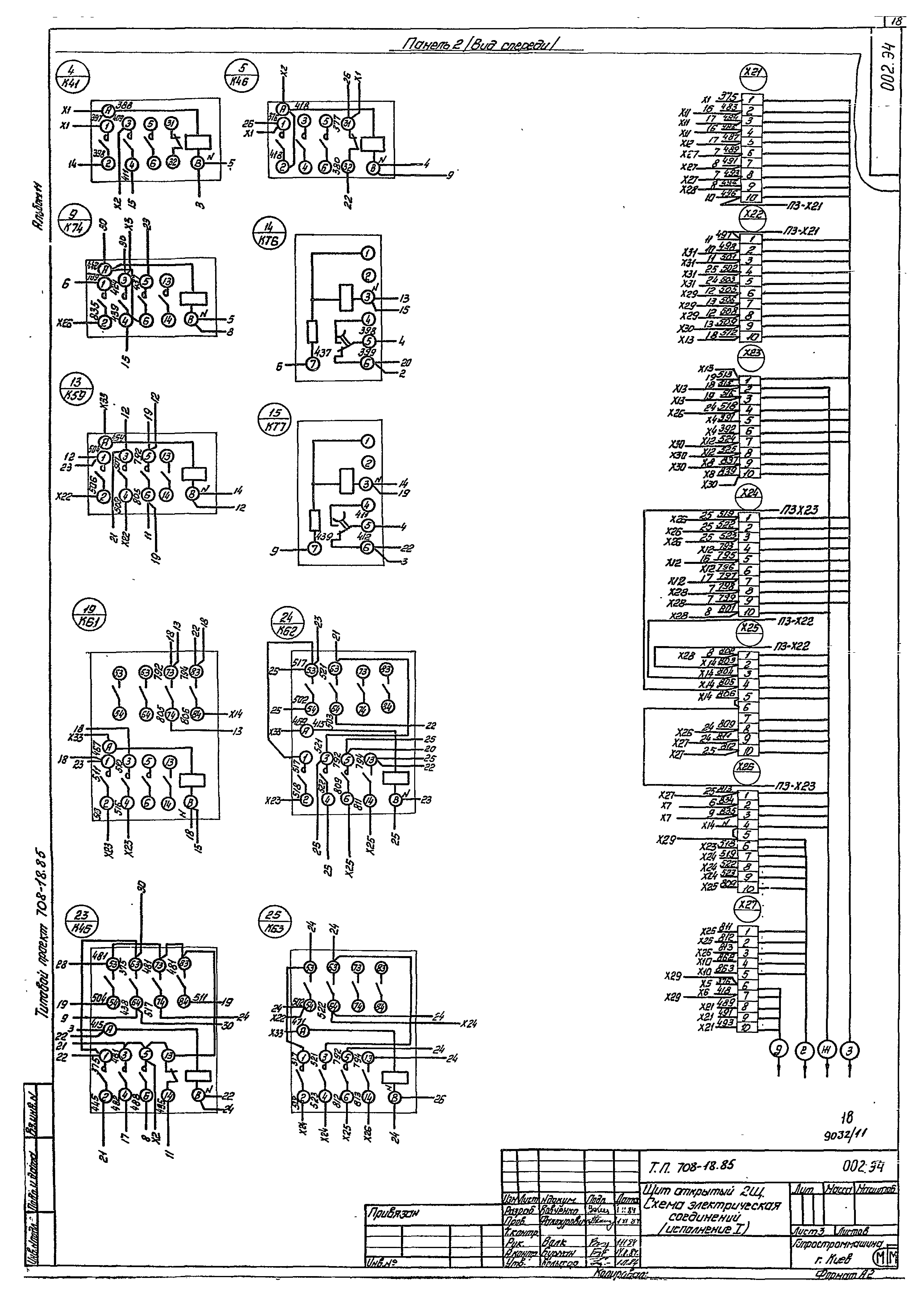
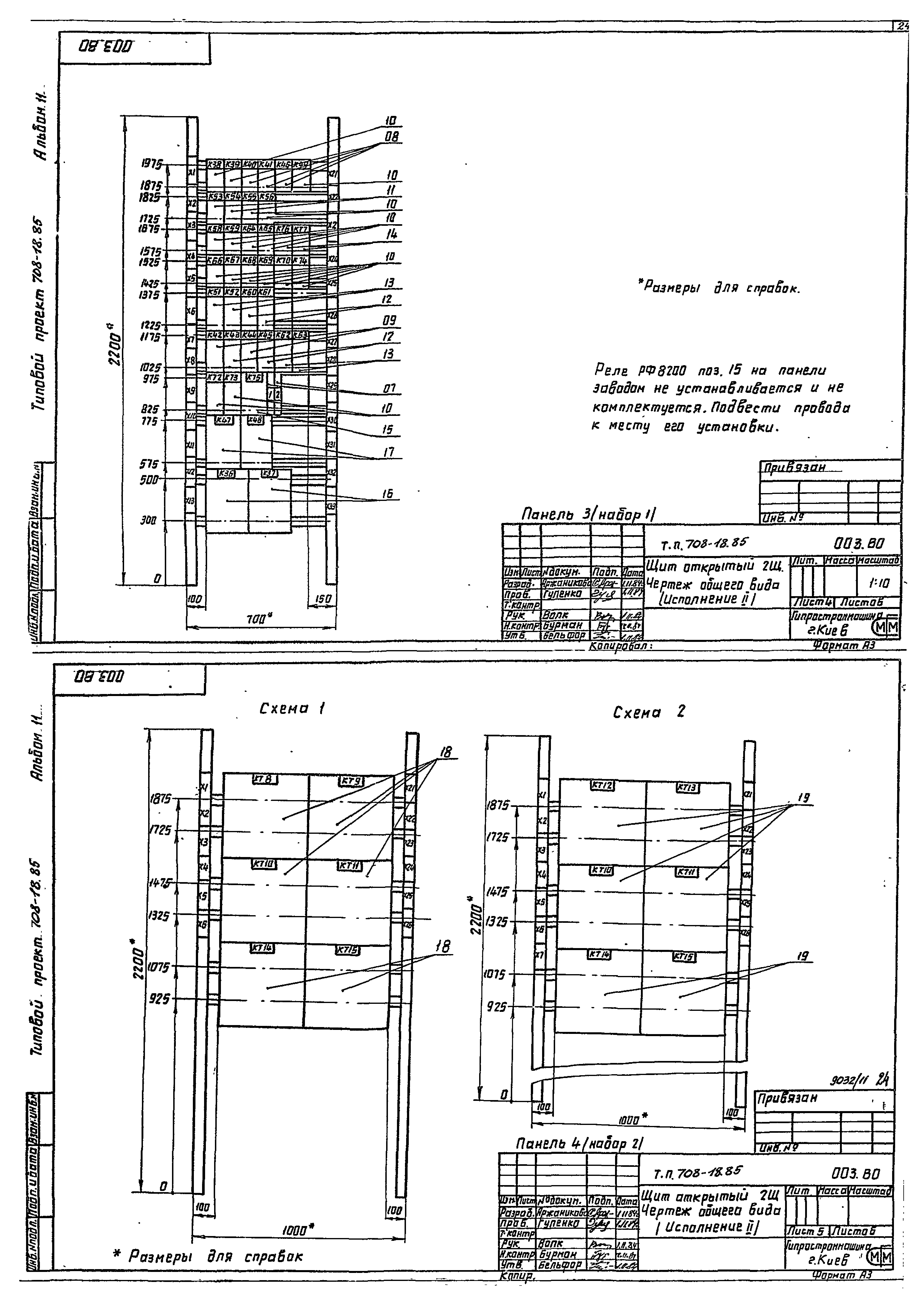
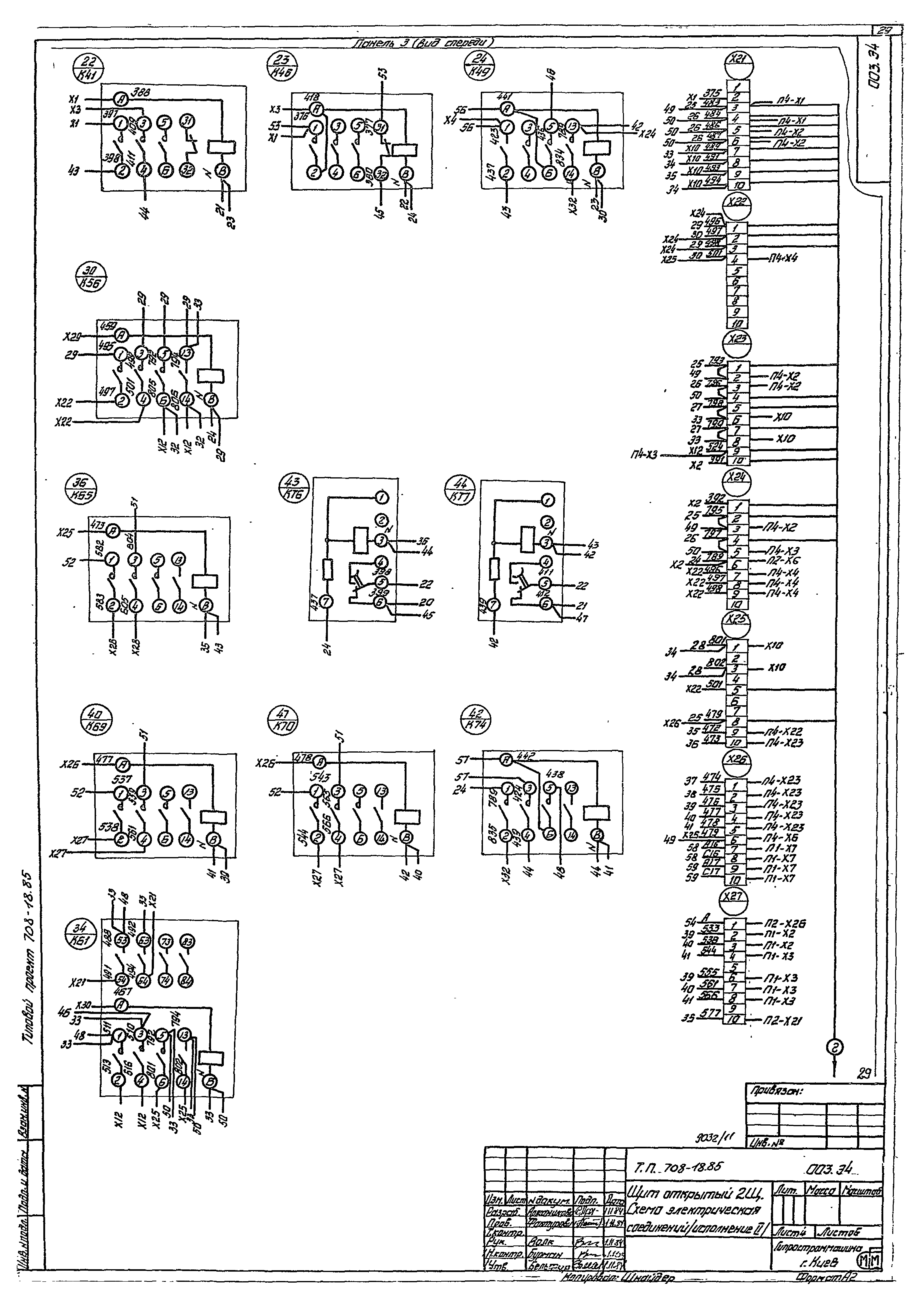
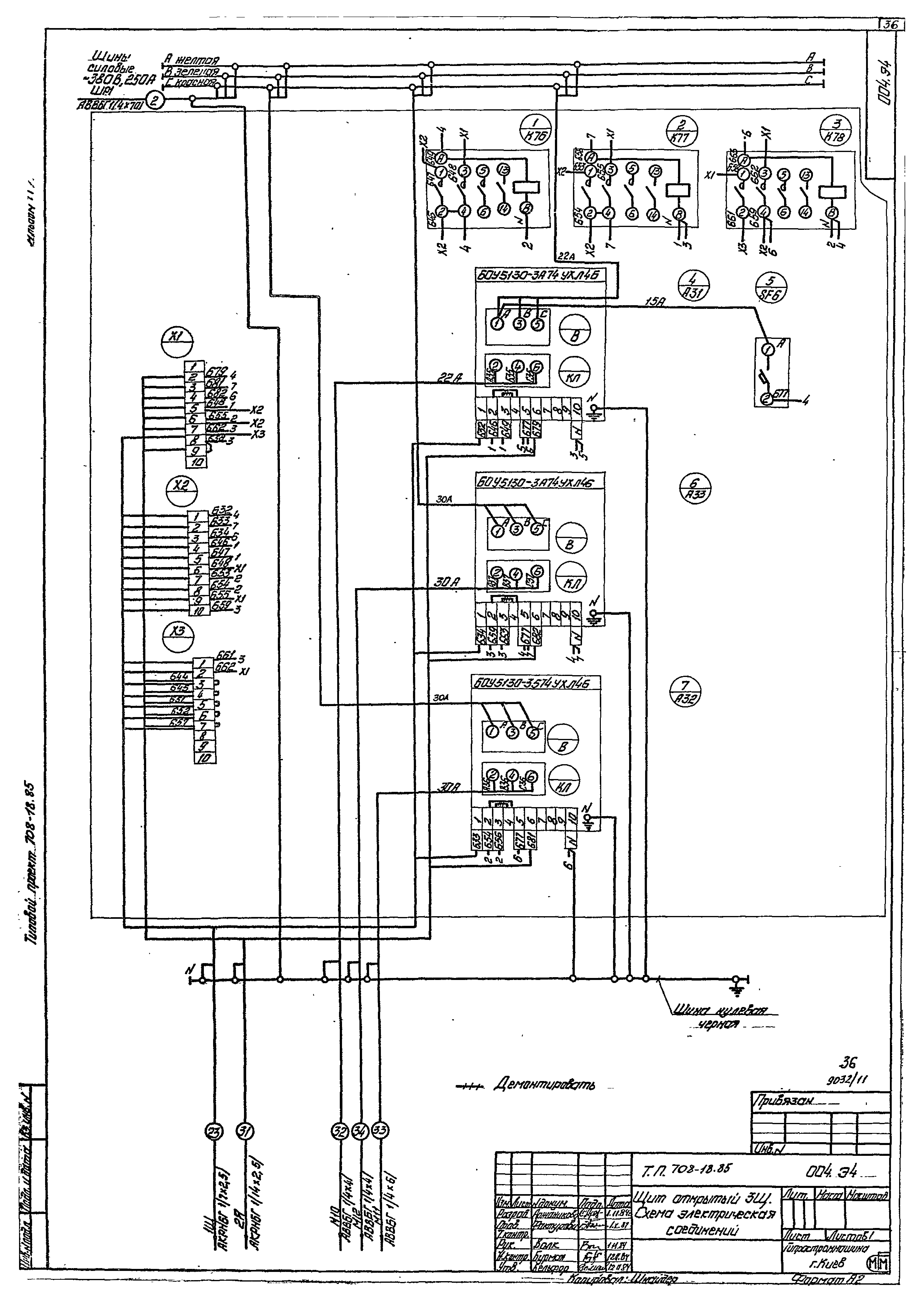
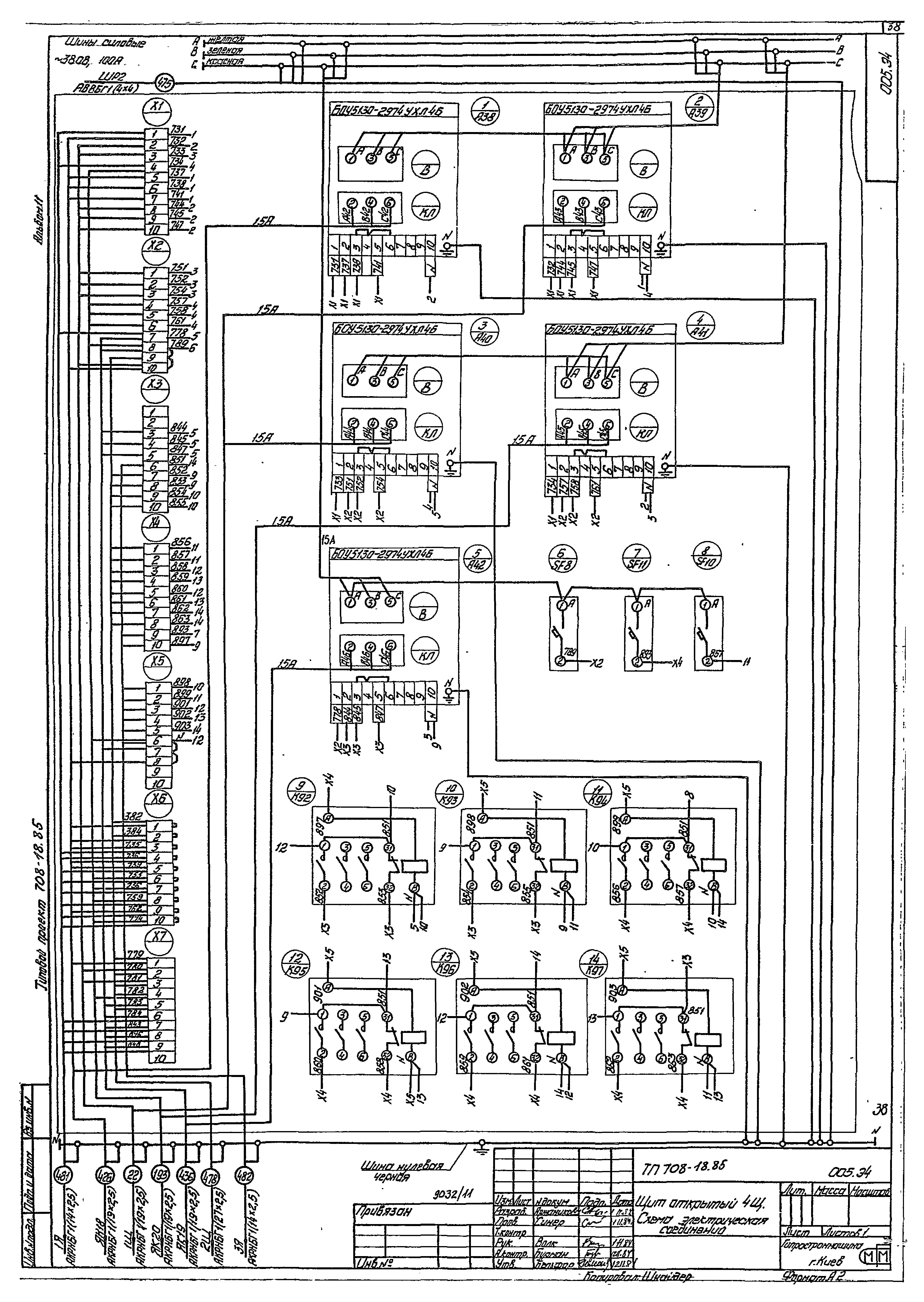
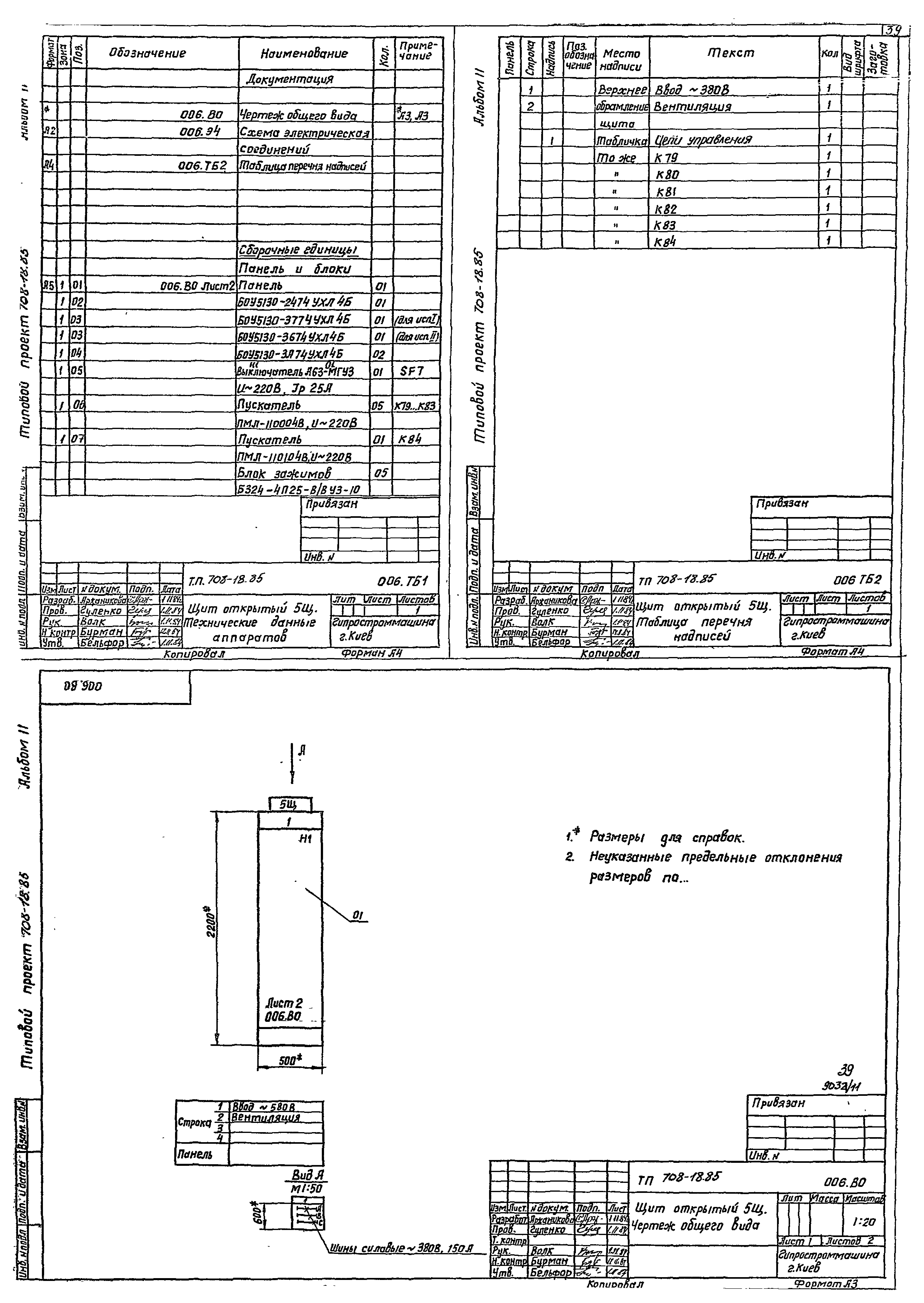
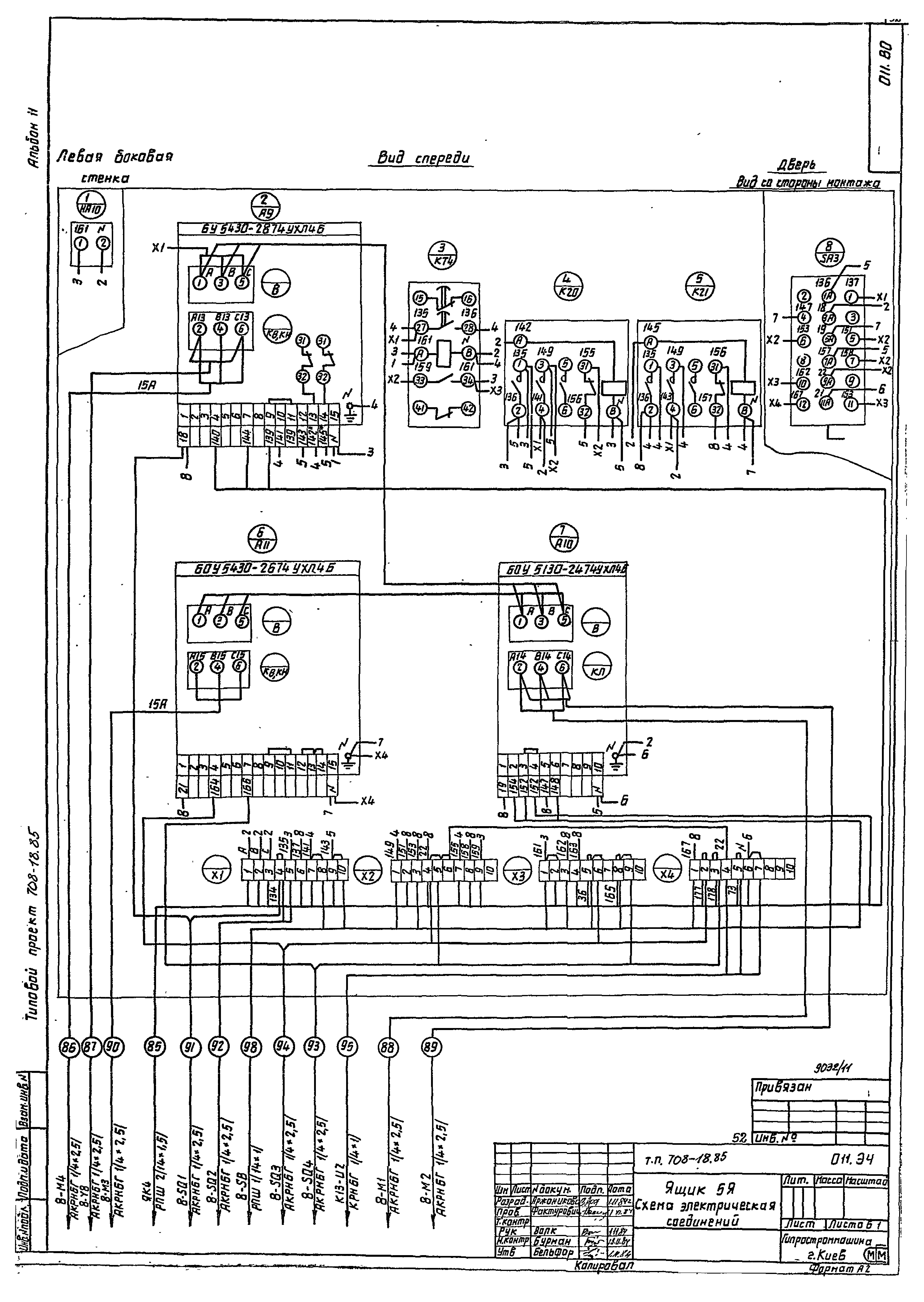
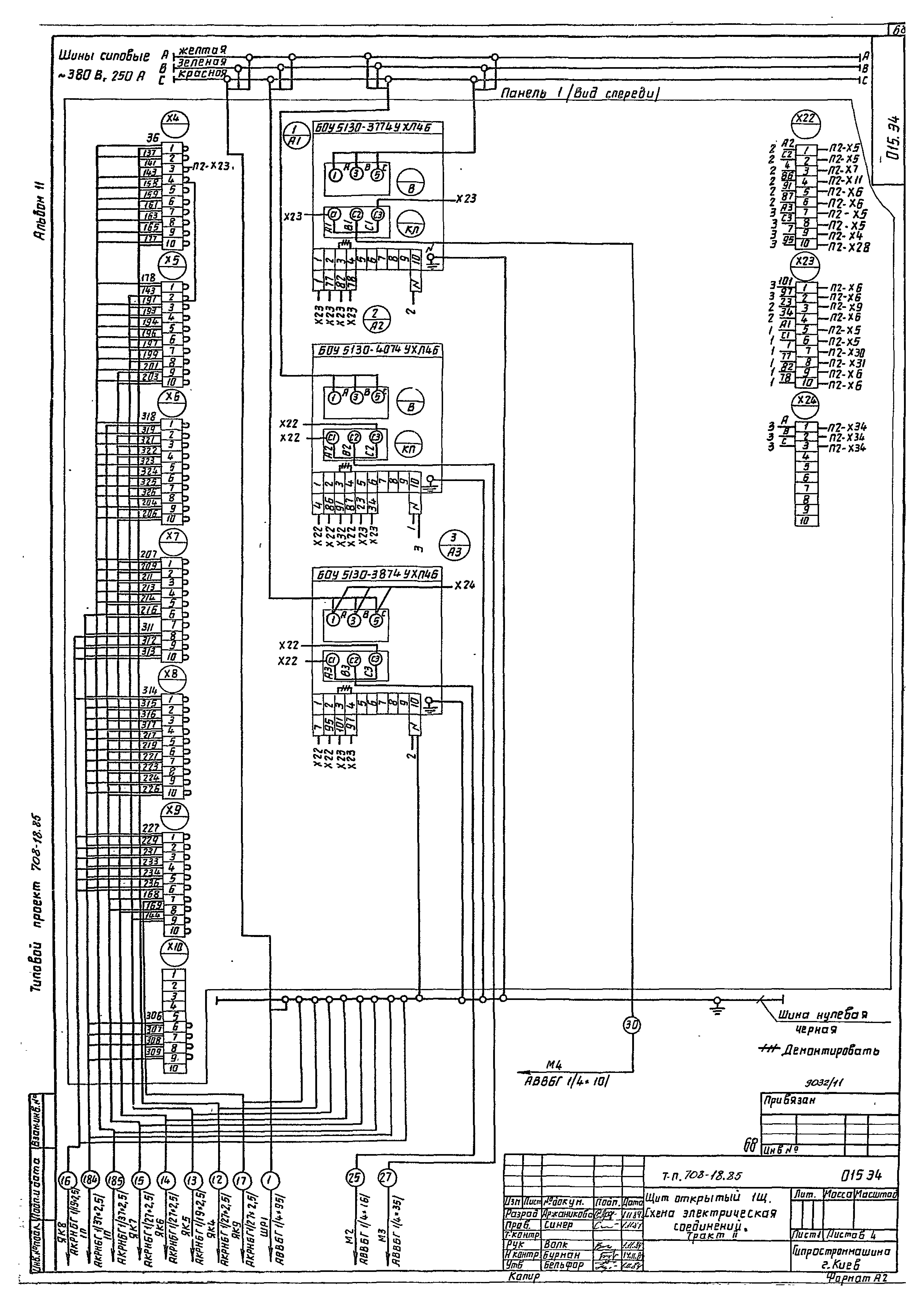
| Оглавление: | Ведомость рабочих чертежей Щит открытый 1Щ (тракт I). Технические данные аппаратов Щит открытый 1Щ (тракт I). Чертеж общего вида Щит открытый 1Щ (тракт I). Схема электрическая соединений Щит открытый 1Щ (тракт I). Таблица перечня надписей Щит открытый 1Щ (тракт I). Таблица межпанельных соединений Щит открытый 2Щ. Технические данные аппаратов (исполнение I) Щит открытый 2Щ. Чертеж общего вида (исполнение I) Щит открытый 2Щ. Схема электрическая соединений (исполнение I) Щит открытый 2Щ. Таблица перечня надписей (исполнение I) Щит открытый 2Щ. Таблица межпанельных соединений (исполнение I) Щит открытый 2Щ. Технические данные аппаратов (исполнение II) Щит открытый 2Щ. Чертеж общего вида (исполнение II) Щит открытый 2Щ. Схема электрическая соединений (исполнение II) Щит открытый 2Щ. Таблица перечня надписей (исполнение II) Щит открытый 2Щ. Таблица межпанельных соединений (исполнение II) Щит открытый 3Щ. Технические данные аппаратов Щит открытый 3Щ. Чертеж общего вида Щит открытый 3Щ. Схема электрическая соединений Щит открытый 3Щ. Таблица перечня надписей Щит открытый 4Щ. Технические данные аппаратов Щит открытый 4Щ. Чертеж общего вида Щит открытый 4Щ. Схема электрическая соединений Щит открытый 4Щ. Таблица перечня надписей Щит открытый 5Щ. Технические данные аппаратов Щит открытый 5Щ. Чертеж общего вида Щит открытый 5Щ. Схема электрическая соединений Щит открытый 5Щ. Таблица перечня надписей Ящик 1Я. Технические данные аппаратов Ящик 1Я. Чертеж общего вида Ящик 1Я. Схема электрическая соединений Ящик 1Я. Таблица перечня надписей Ящик 2Я. Технические данные аппаратов Ящик 2Я. Чертеж общего вида Ящик 2Я. Схема электрическая соединений Ящик 2Я. Таблица перечня надписей Ящик 3Я. Технические данные аппаратов Ящик 3Я. Чертеж общего вида Ящик 3Я. Схема электрическая соединений Ящик 3Я. Таблица перечня надписей Ящик 4Я. Технические данные аппаратов Ящик 4Я. Чертеж общего вида Ящик 4Я. Схема электрическая соединений Ящик 4Я. Таблица перечня надписей Ящик 5Я. Технические данные аппаратов Ящик 5Я. Чертеж общего вида Ящик 5Я. Схема электрическая соединений Ящик 5Я. Таблица перечня надписей Ящик 6Я. Технические данные аппаратов Ящик 6Я. Чертеж общего вида Ящик 6Я. Схема электрическая соединений Ящик 6Я. Таблица перечня надписей Пульт 1П (тракт I). Технические данные аппаратов Пульт 1П (тракт I). Чертеж общего вида Пульт 1П (тракт I). Схема электрическая соединений Пульт 1П (тракт I). Таблица перечня надписей Пульт 2П. Технические данные аппаратов Пульт 2П. Чертеж общего вида Пульт 2П. Схема электрическая соединений (исполнение I) Пульт 2П. Схема электрическая соединений (исполнение II) Пульт 2П. Таблица перечня надписей Щит открытый 1Щ (тракт II). Технические данные аппаратов Щит открытый 1Щ (тракт II). Чертеж общего вида Щит открытый 1Щ (тракт II). Схема электрическая соединений Щит открытый 1Щ (тракт II). Таблица перечня надписей Щит открытый 1Щ (тракт II). Таблица межпанельных соединений Пульт 1П (тракт II). Технические данные аппаратов Пульт 1П (тракт II). Чертеж общего вида Пульт 1П (тракт II). Схема электрическая соединений Пульт 1П (тракт II). Таблица перечня надписей |
| Разработан: | Харьковский Промстройниипроект |
| Утверждён: | 07.01.1983 Госстрой СССР (Государственный комитет Совета Министров СССР по делам строительства) (USSR Gosstroy ВА-2) |











































































