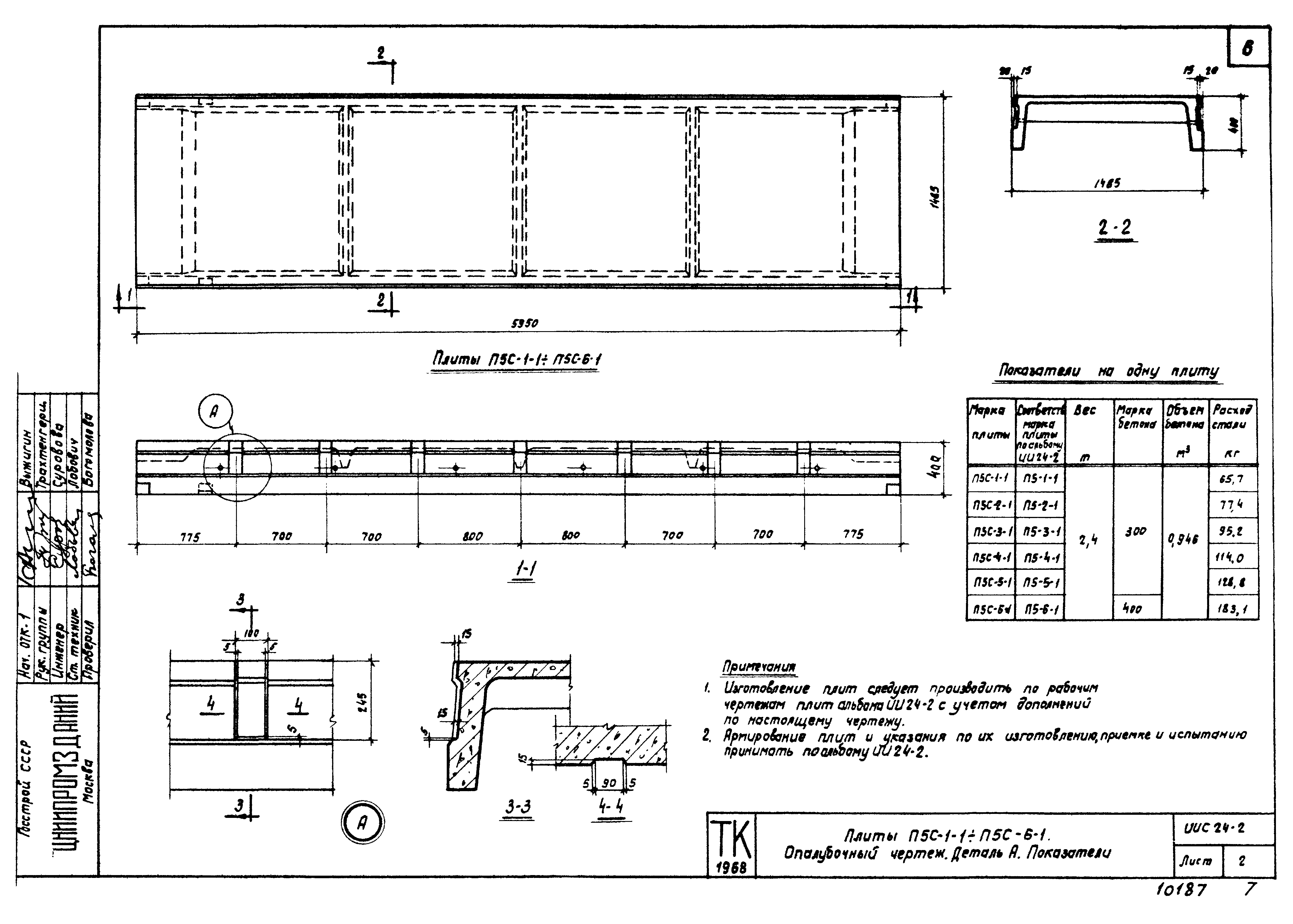
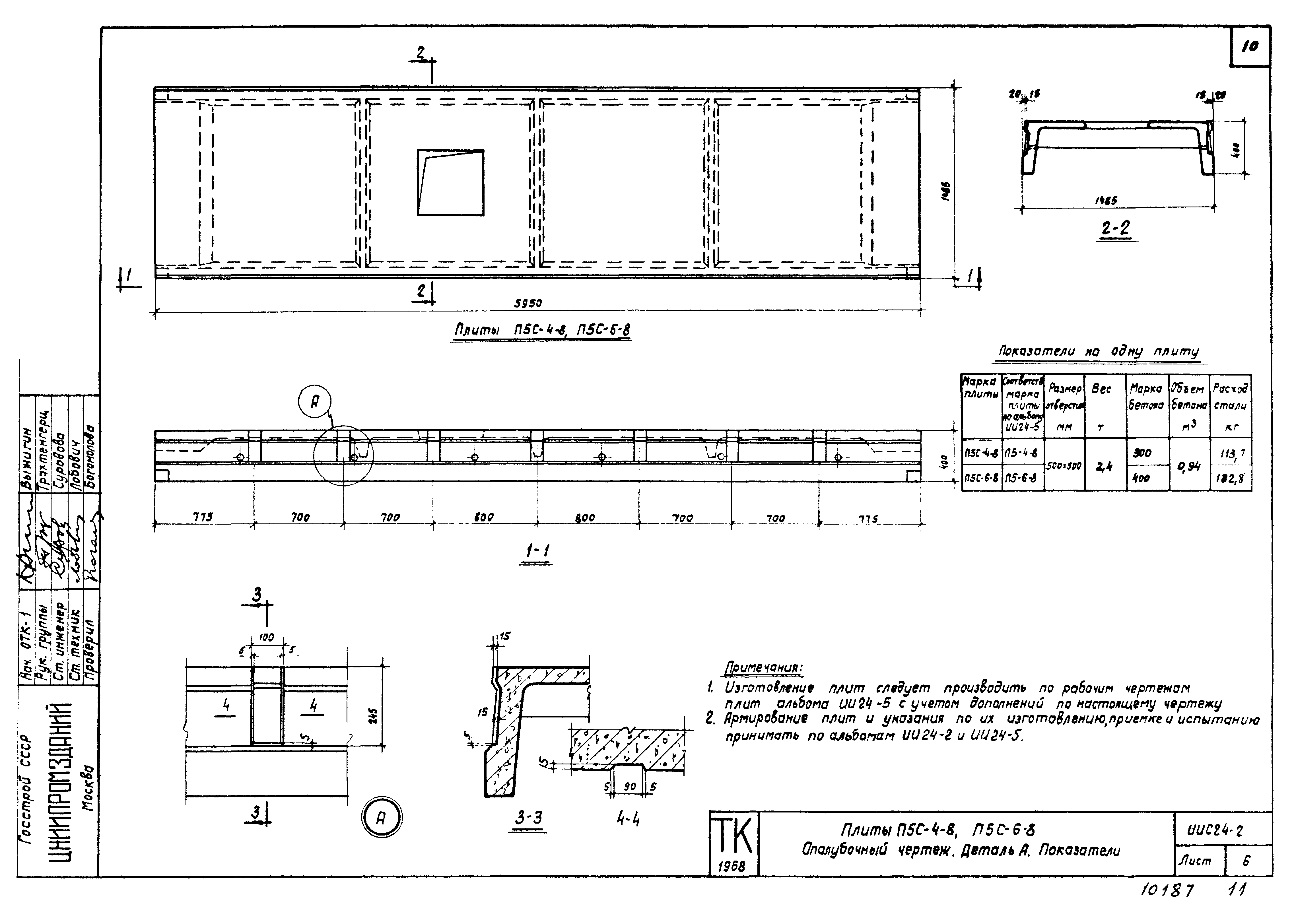
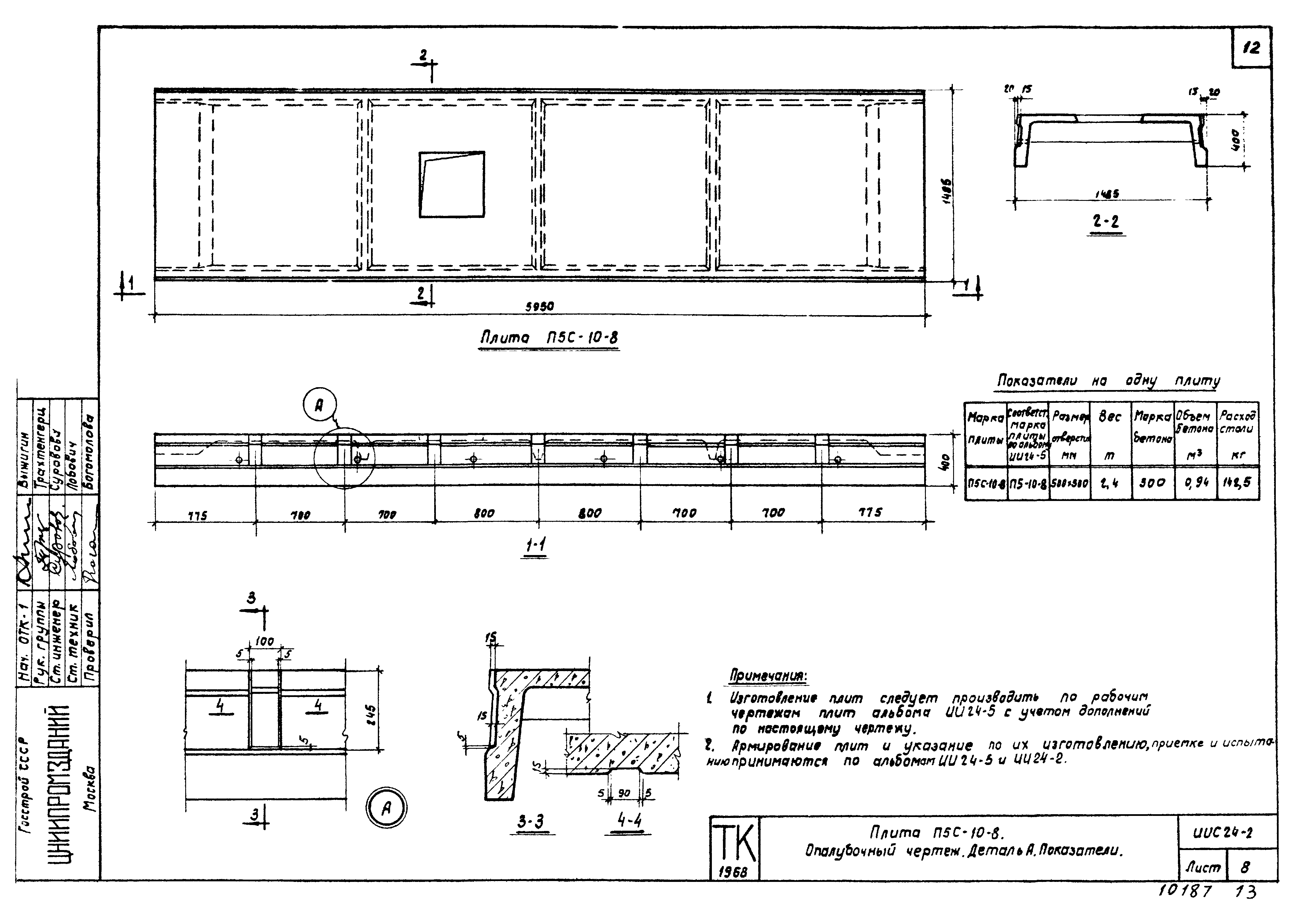
Скачать Серия ИИС24-2 Железобетонные плиты для перекрытий типа 2, с опиранием на ригели прямоугольного сечения (расчетная сейсмичность 9 баллов)Дата актуализации: 01.01.2021
|
| Обозначение: | Серия ИИС24-2 |
| Обозначение англ: | Series ИИС24-2 |
| Статус: | не действует |
| Название рус.: | Железобетонные плиты для перекрытий типа 2, с опиранием на ригели прямоугольного сечения (расчетная сейсмичность 9 баллов) |
| Дата добавления в базу: | 01.09.2013 |
| Дата актуализации: | 01.01.2021 |
| Дата введения: | 01.10.1969 |
| Дата окончания срока действия: | 01.05.1975 |
| Разработан: | ЦНИИСК им. В.А. Кучеренко ЦНИИпромзданий НИИЖБ |
| Утверждён: | 30.06.1969 Госстрой СССР (Государственный комитет Совета Министров СССР по делам строительства) (USSR Gosstroy 77) |












