Скачать Типовой проект Серия 86 Часть 10. Раздел 10.4-1. Изделия заводского изготовления. Металлические изделияДата актуализации: 01.01.2021
|
| Обозначение: | Типовой проект Серия 86 |
| Обозначение англ: | Серия 86 |
| Статус: | не действует |
| Название рус.: | Часть 10. Раздел 10.4-1. Изделия заводского изготовления. Металлические изделия |
| Дата добавления в базу: | 01.09.2013 |
| Дата актуализации: | 01.01.2021 |
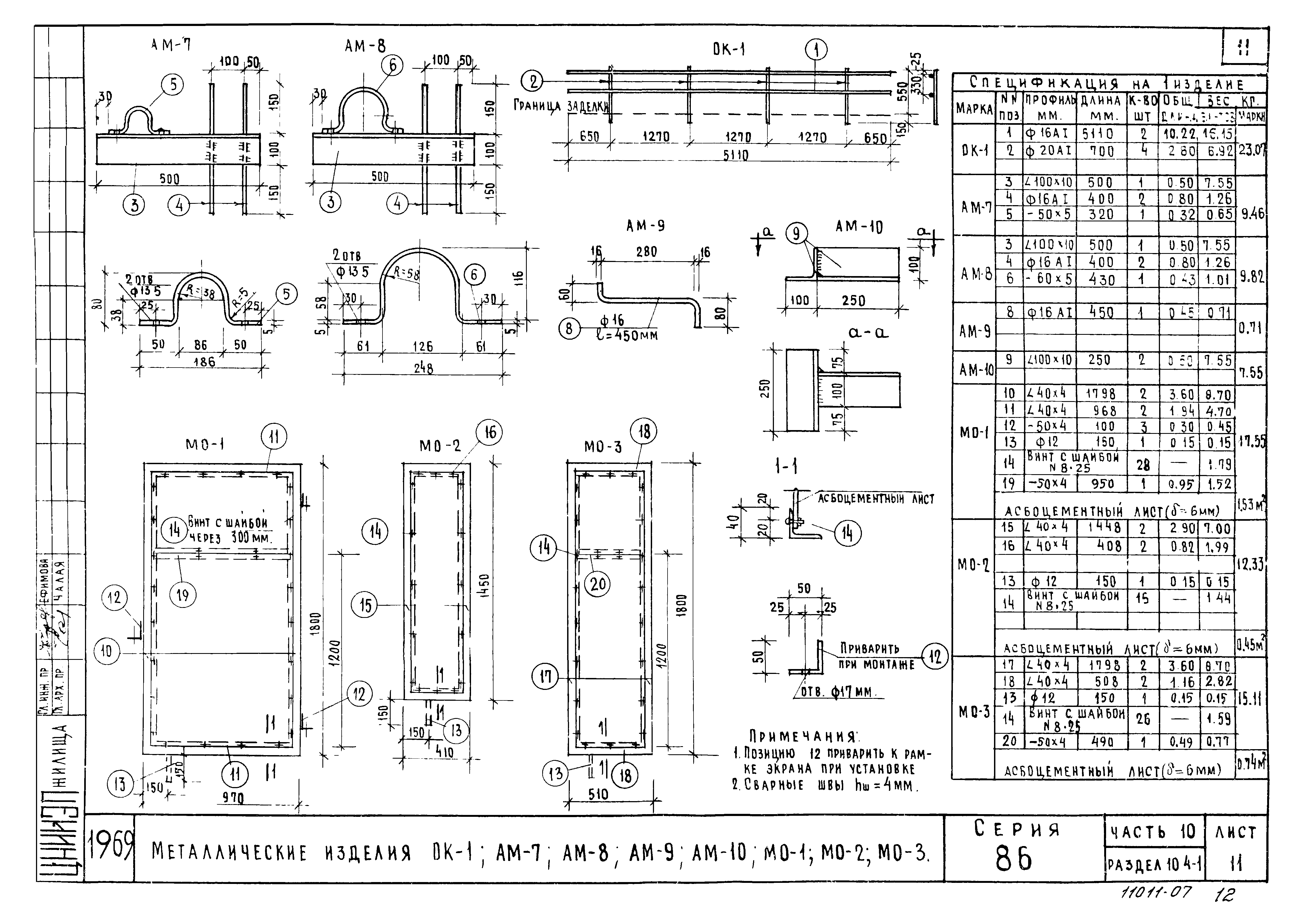
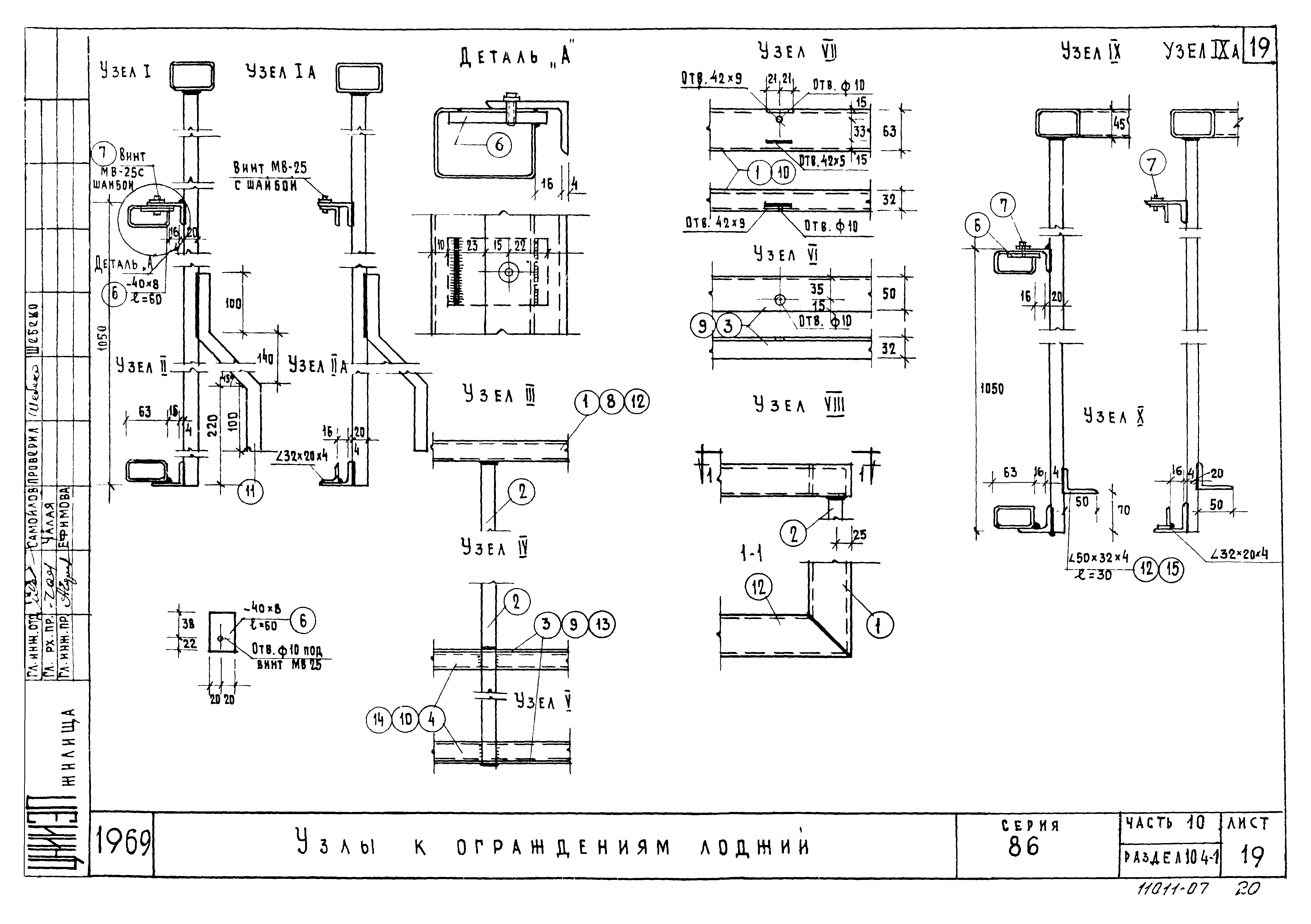
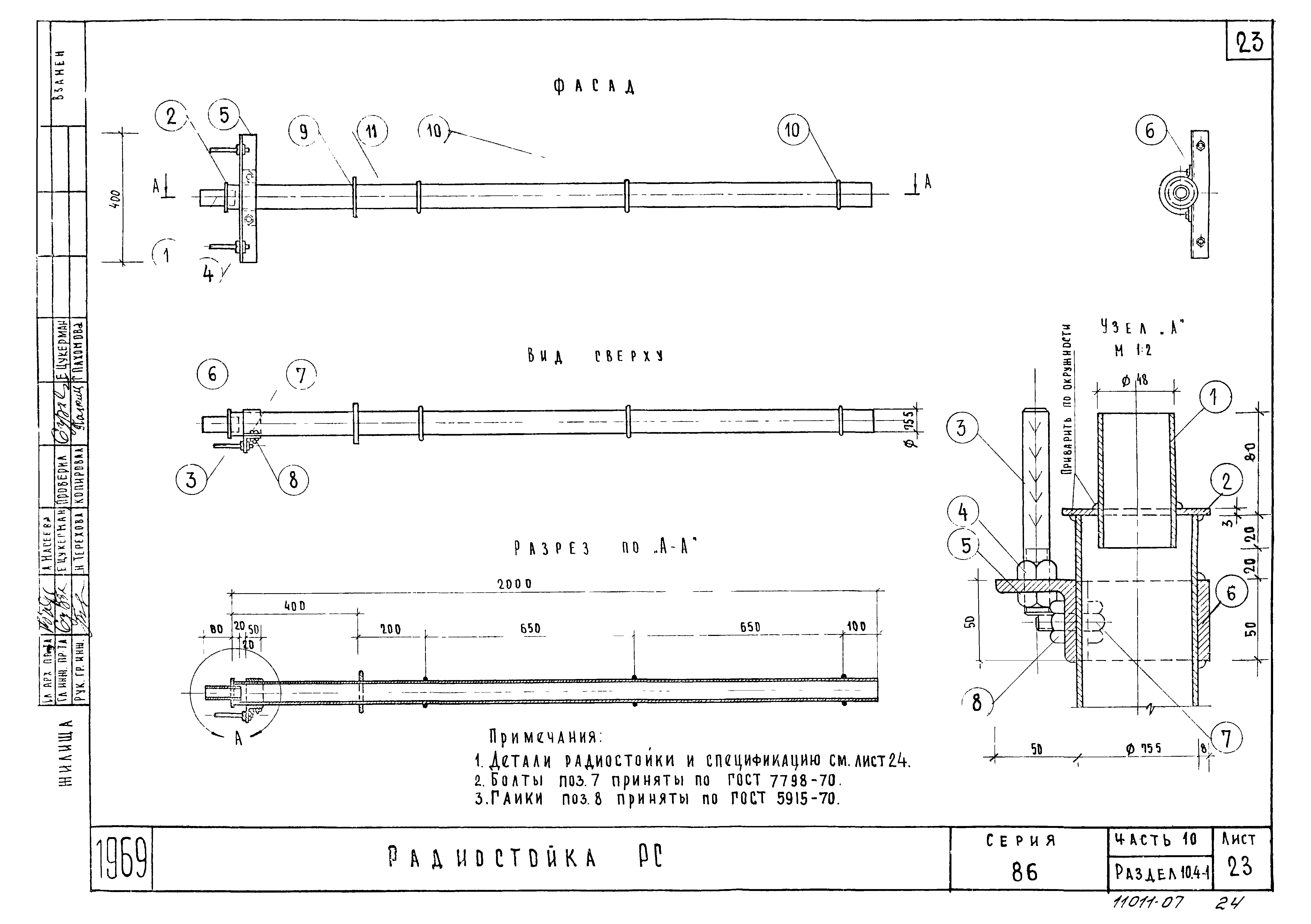
| Оглавление: | Заглавный лист Сетки Анкеры, каркас Ограждение лоджии МОЛ36, МОЛ48 Ограждение лоджии МОЛ36-1 Ограждение лоджии МОЛ36-2 Ограждение балкона МОБ36п, МОБ36л, МОБ9п, МОБ9л Ограждение балкона МОБ36-1п, МОБ36-1л, МОБ9-1п, МОБ9-1л Ограждение балкона МОБ36-2п, МОБ36-2л, МОБ9-2п, МОБ9-2л Сетки Металлические изделия ОК-1, АМ-7, АМ-8, АМ-9, АМ-10, МО-1, МО-2, МО-3 Лестница в машинное помещение лифта ЛМ-1. Ограждение лестницы ИМОЛ-2 Лестница ЛМ-2. Ограждения лестниц ИМОЛ-1, ИМОЛ-3 Ограждение лоджии МОЛ63п, МОЛ63л, МОЛ51п, МОЛ51л Ограждение лоджий МОЛ67п, МОЛ67л, МОЛ72п, МОЛ72л Ограждение лоджий МОЛ69п, МОЛ69л, МОЛ47 Ограждение лоджий МОЛ73п, МОЛ73л, МОЛ73а, МОЛ12 Ограждение лоджий МОЛ74, МОЛ75 Узлы к ограждениям лоджий Крышка люка МКЛ. Стремянка ИМС-25 Ограждение цокольного марша ИМОЛ28-1, решетка ДМР-1, ДМР-2 Опорная труба ОТ-1 для мачт телеантенн, гильза для радиостойки ГРС-1 Радиостойка РС Радиостойка РС. Детали. Спецификация Гильза для телеантенны ГТА-1. Спецификация Гильза для телеантенны ГТА-1. Детали. Сечение по А-А Цветочница ИМЦ1 Ограждения балкона МОБ33-1п, МОБ33-1л, МОБ33-2п, МОБ33-2л |
| Разработан: | ЦНИИЭП жилища |
| Утверждён: | 01.01.1969 ЦНИИЭП жилища (TsNIIEPzhilishcha ) |





























