Скачать Типовой проект 211-2-175 Альбом VI. Мероприятия, повышающие тепловую защиту зданияДата актуализации: 01.01.2021 Типовой проект 211-2-175
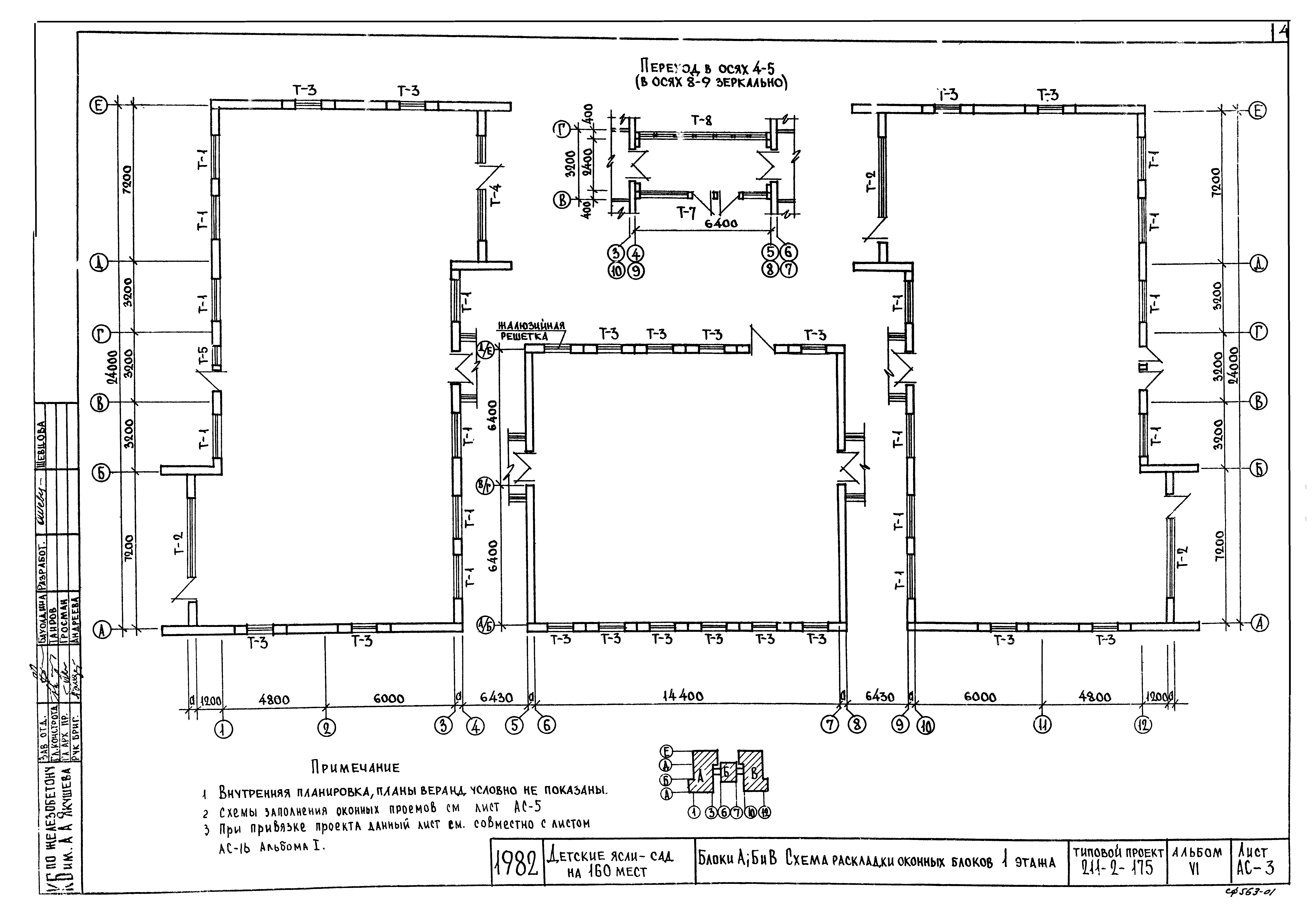
Альбом VI. Мероприятия, повышающие тепловую защиту здания| Обозначение: | Типовой проект 211-2-175 | | Обозначение англ: | 211-2-175 | | Статус: | действует | | Название рус.: | Альбом VI. Мероприятия, повышающие тепловую защиту здания | | Дата добавления в базу: | 01.09.2013 | | Дата актуализации: | 01.01.2021 | | Дата введения: | 25.10.1982 | | Разработан: | КБ по железобетону им. А.А. Якушева
| | Утверждён: | 29.09.1977 Госстрой РСФСР (Russian Federation Gosstroy 8-23-233)
|
                 
|