Скачать Типовой проект 282-1-163.84 Альбом I. Архитектурно-строительные решения. Технология и механизация. ВитражиДата актуализации: 01.01.2021
|
| Обозначение: | Типовой проект 282-1-163.84 |
| Обозначение англ: | 282-1-163.84 |
| Статус: | не определен законодательством |
| Название рус.: | Альбом I. Архитектурно-строительные решения. Технология и механизация. Витражи |
| Дата добавления в базу: | 01.09.2013 |
| Дата актуализации: | 01.01.2021 |
| Дата введения: | 11.04.1985 |
| Дата окончания срока действия: | 30.06.2003 |
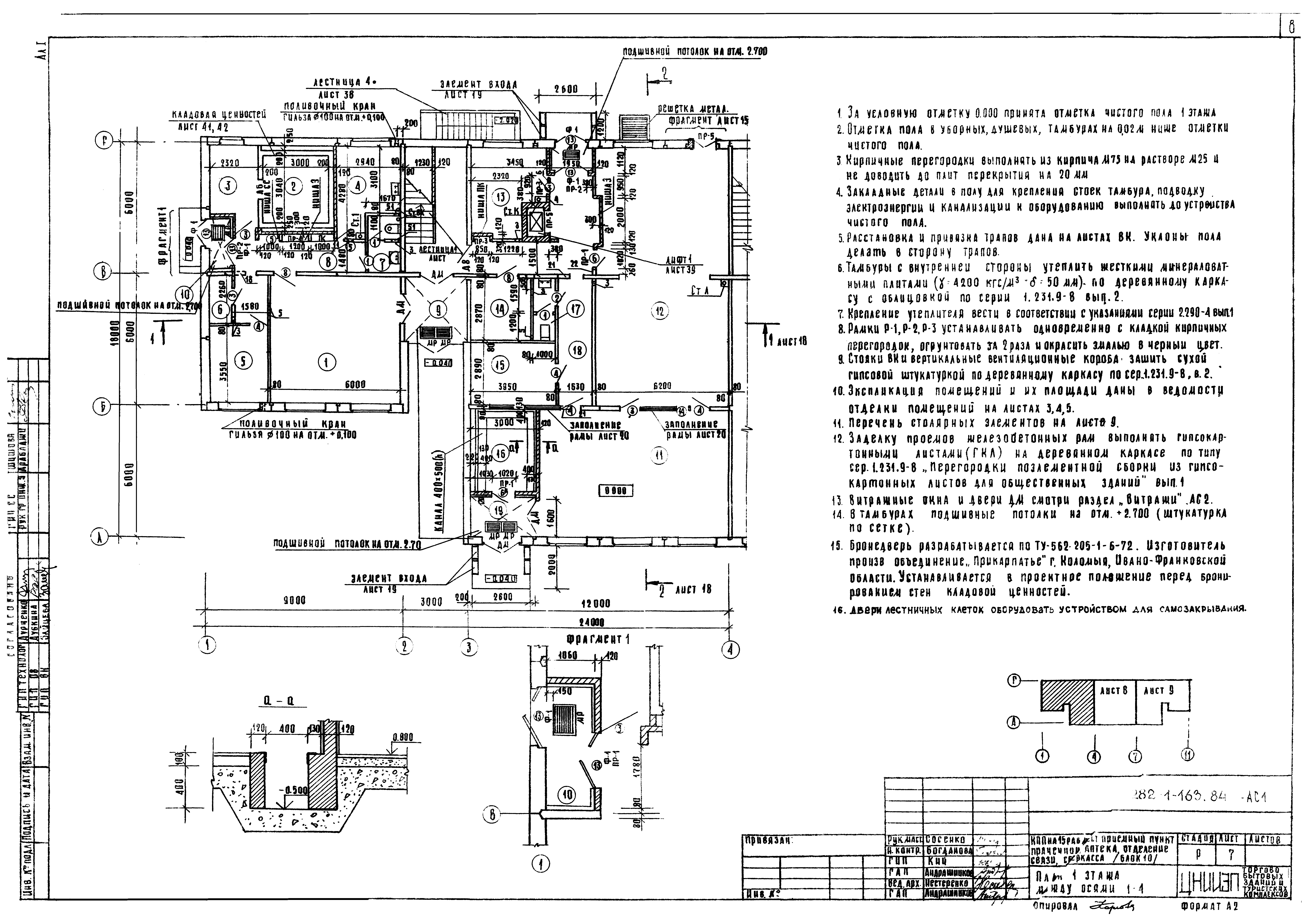
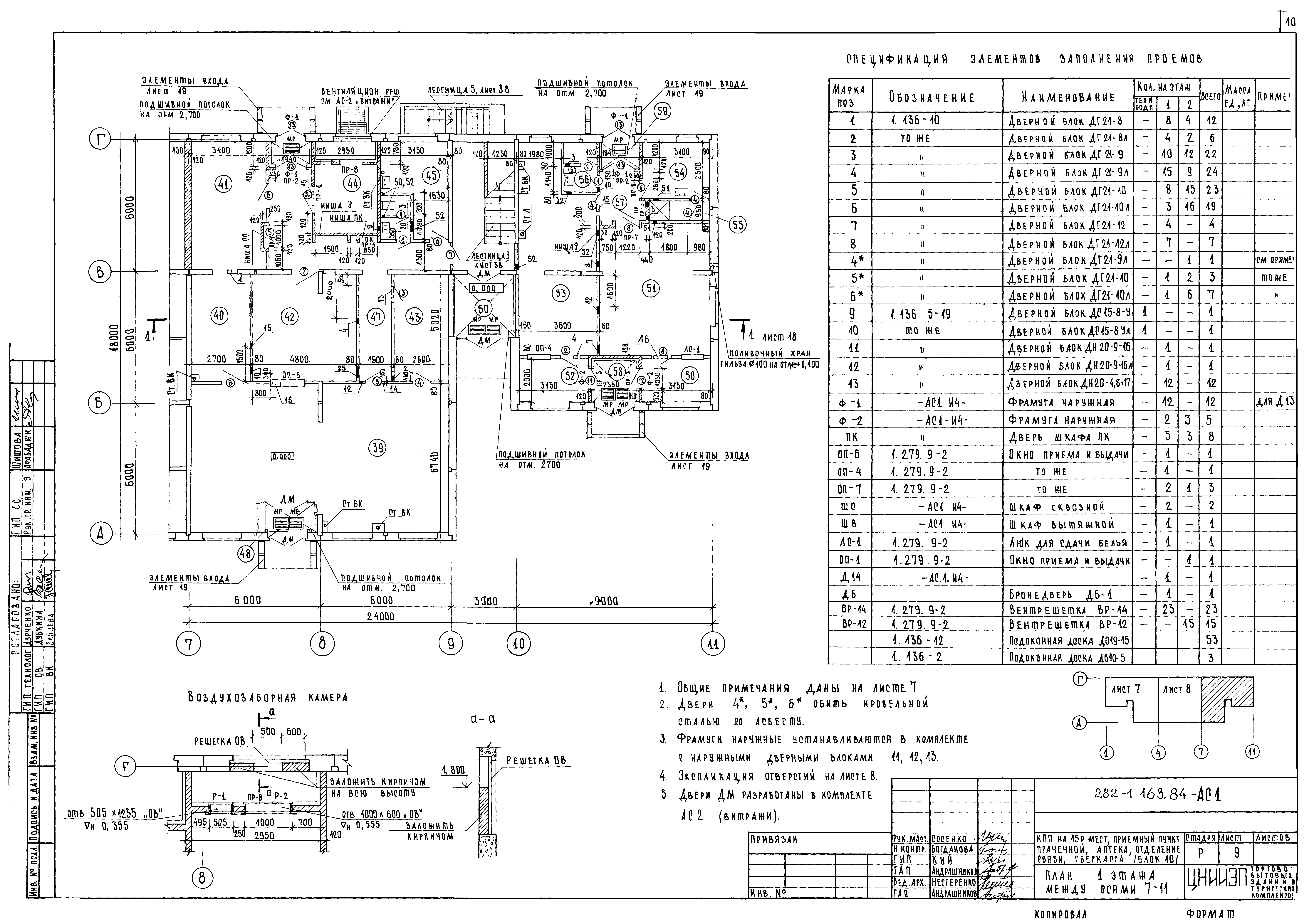
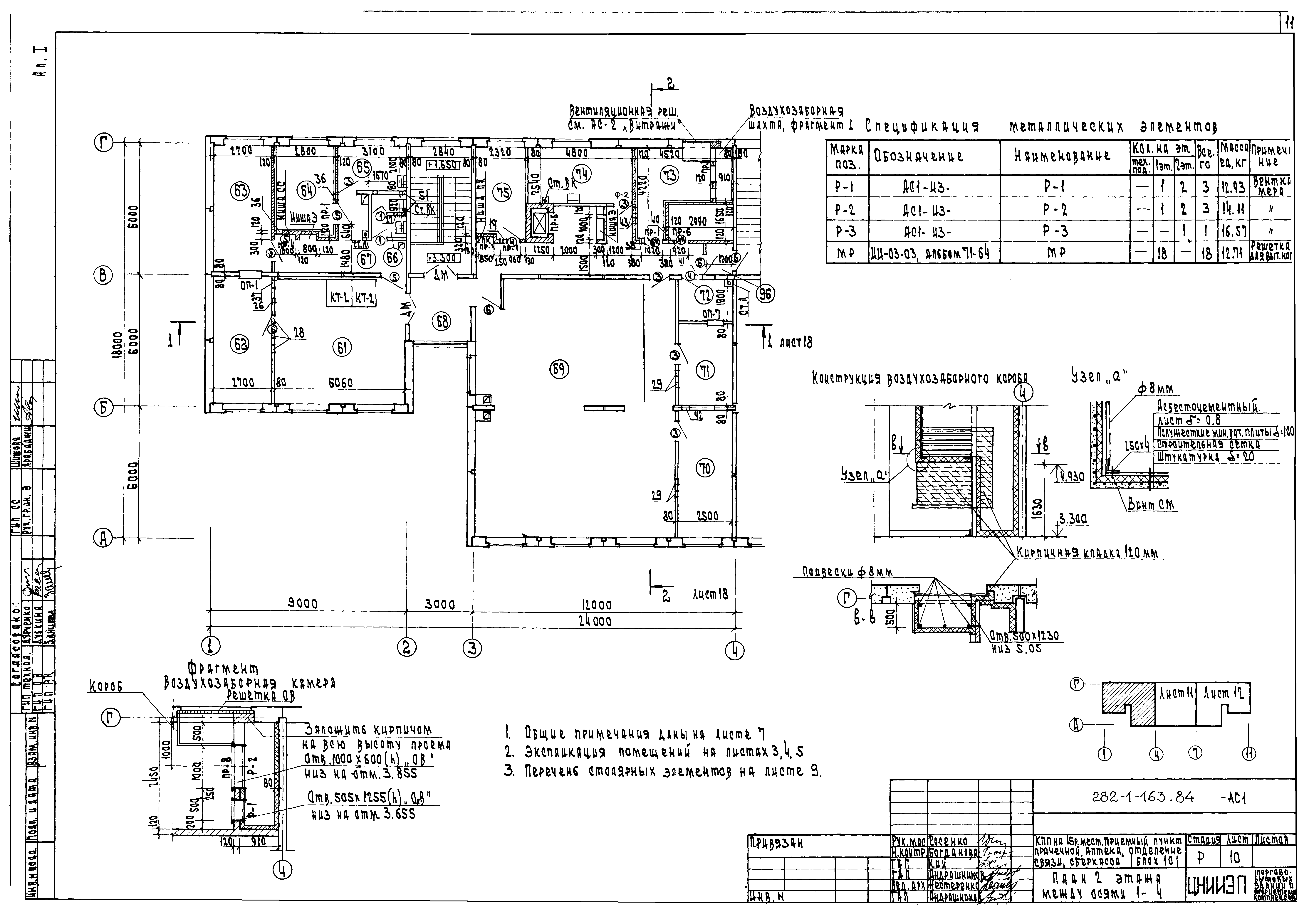
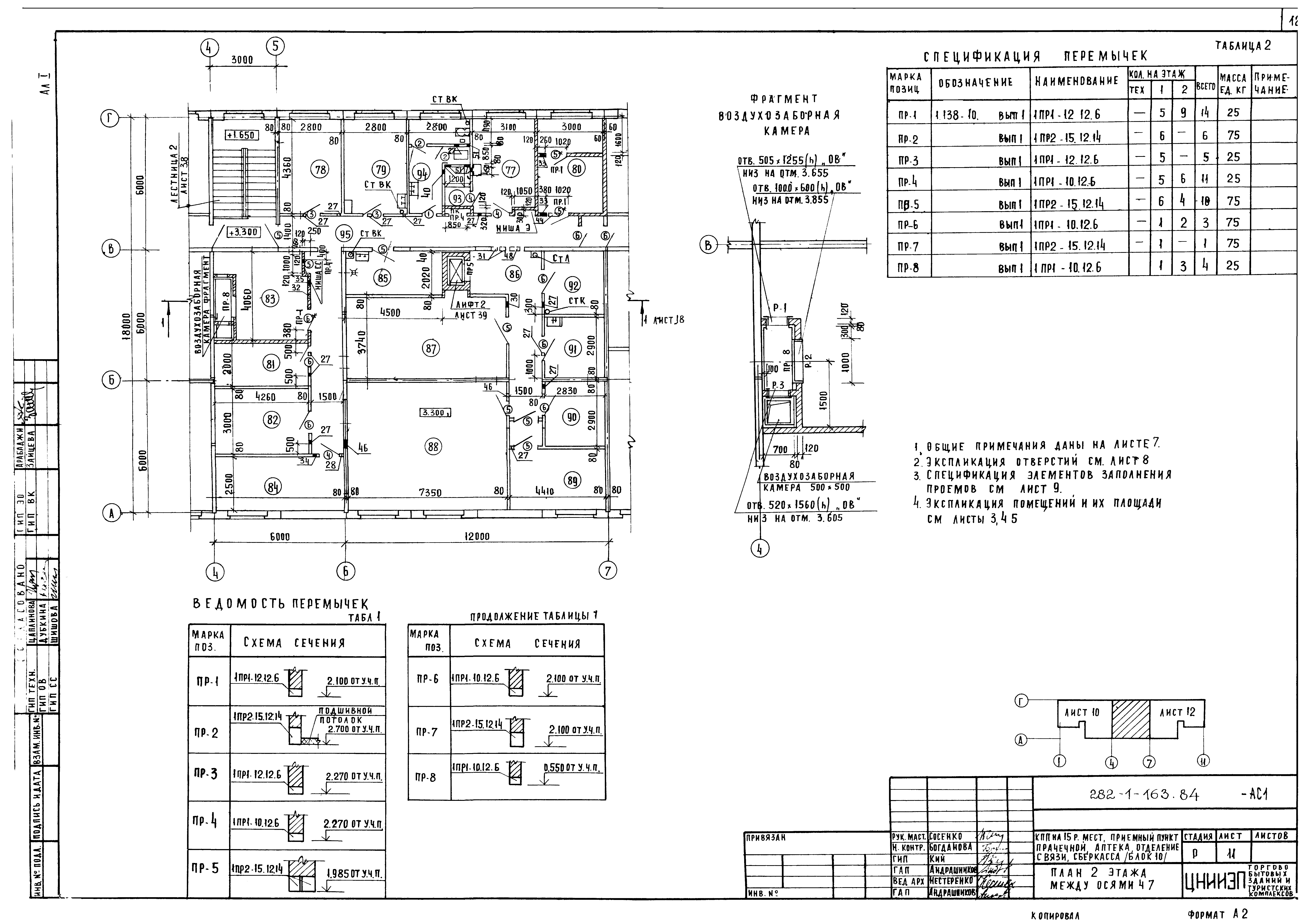
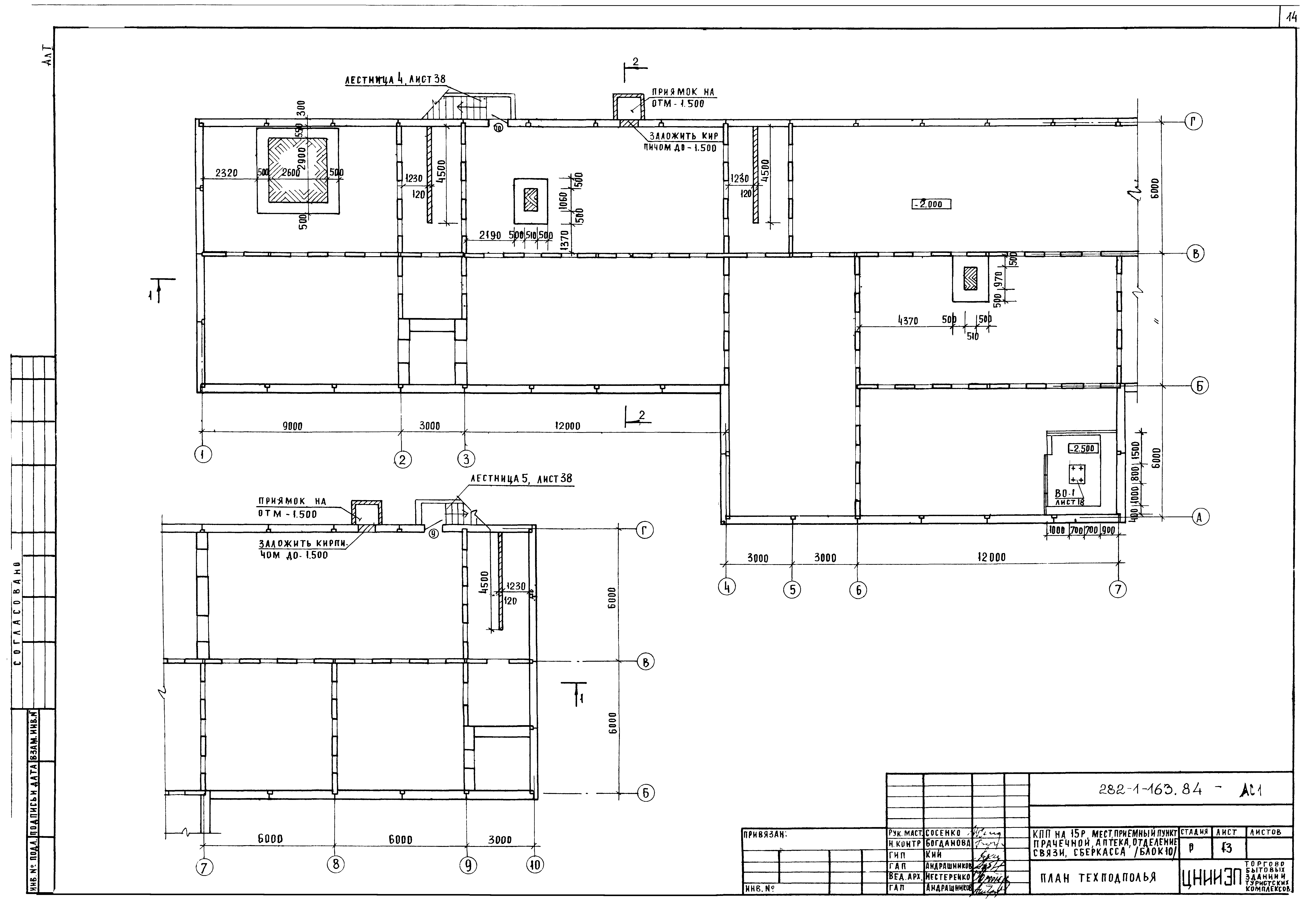
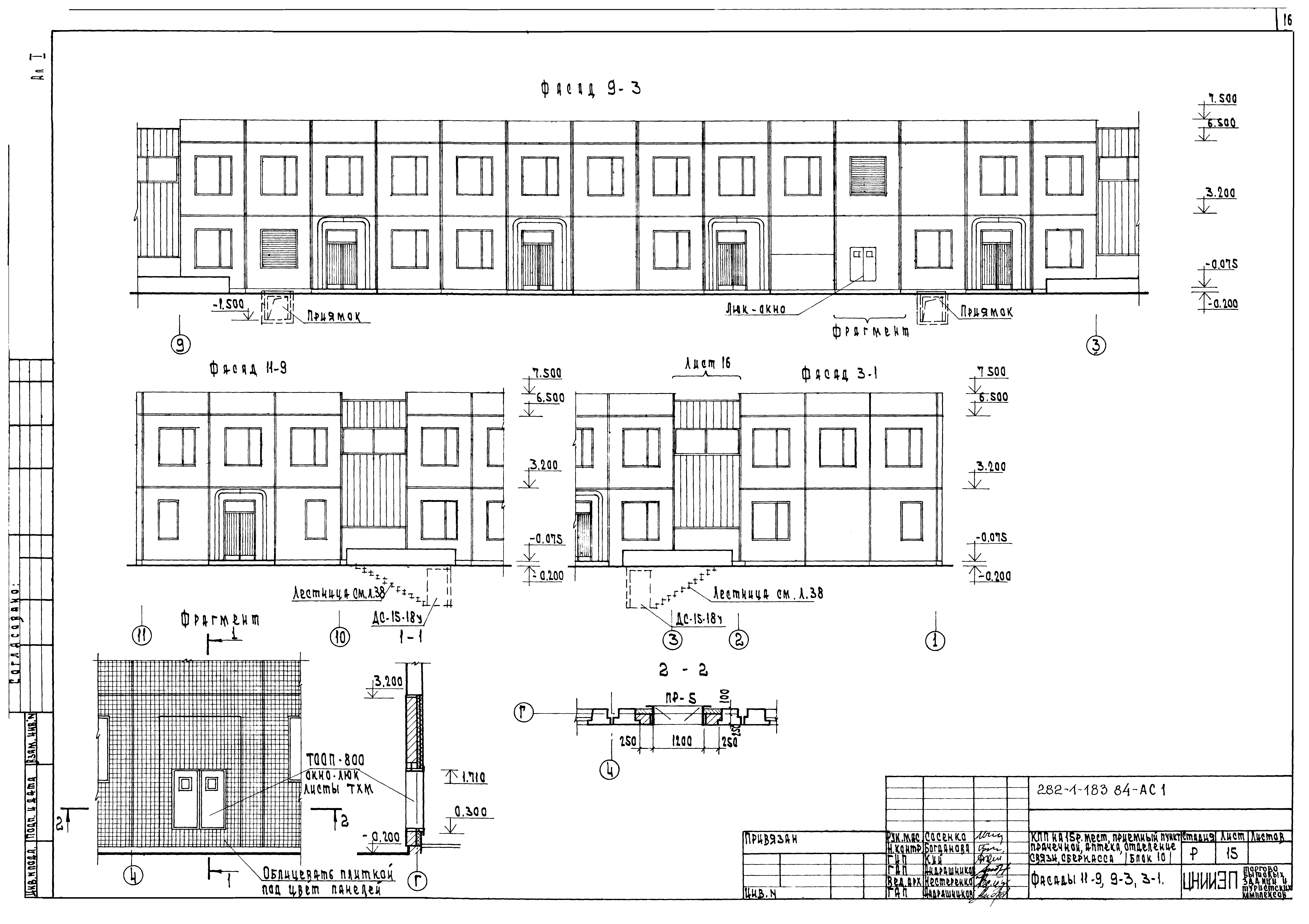
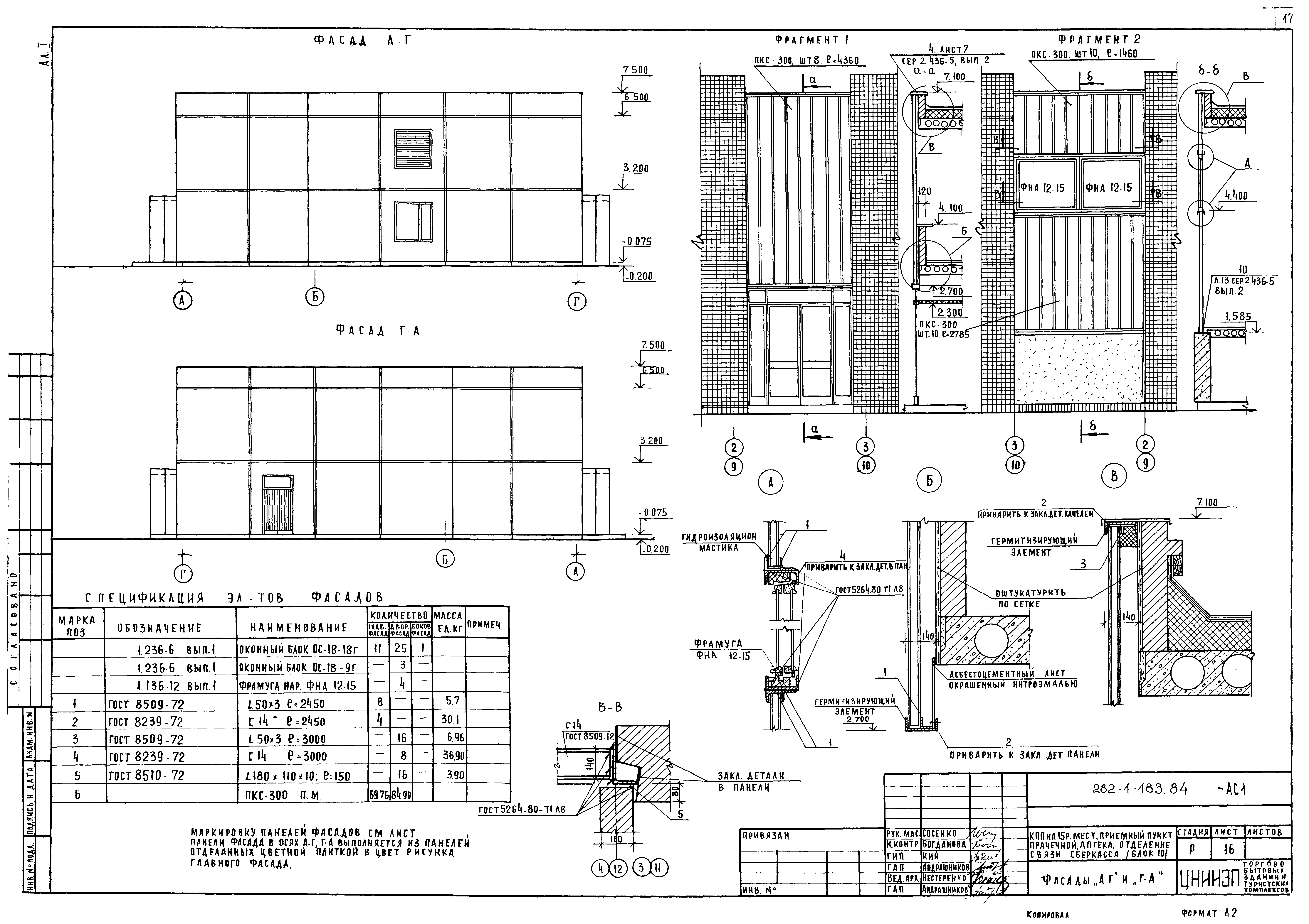
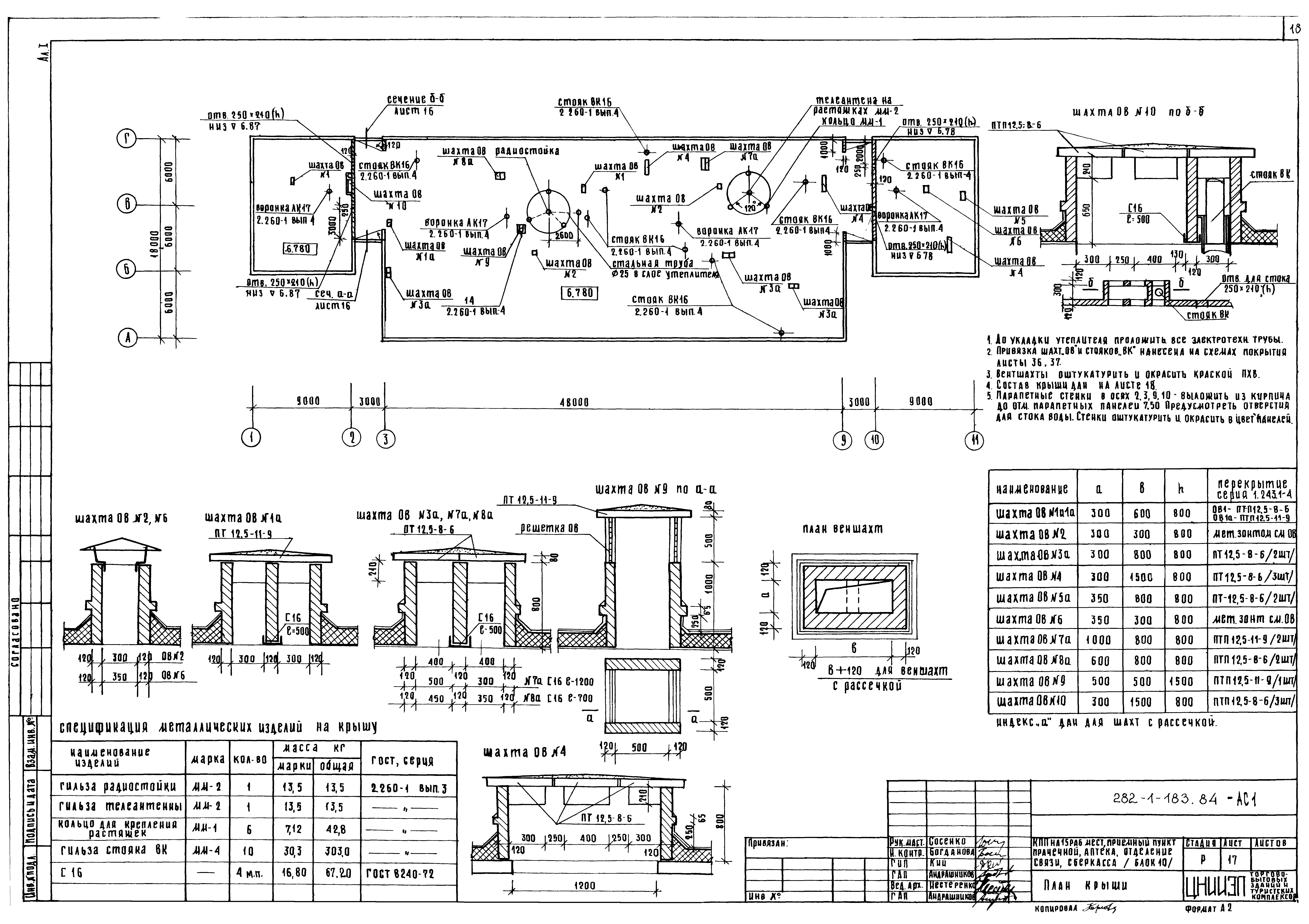
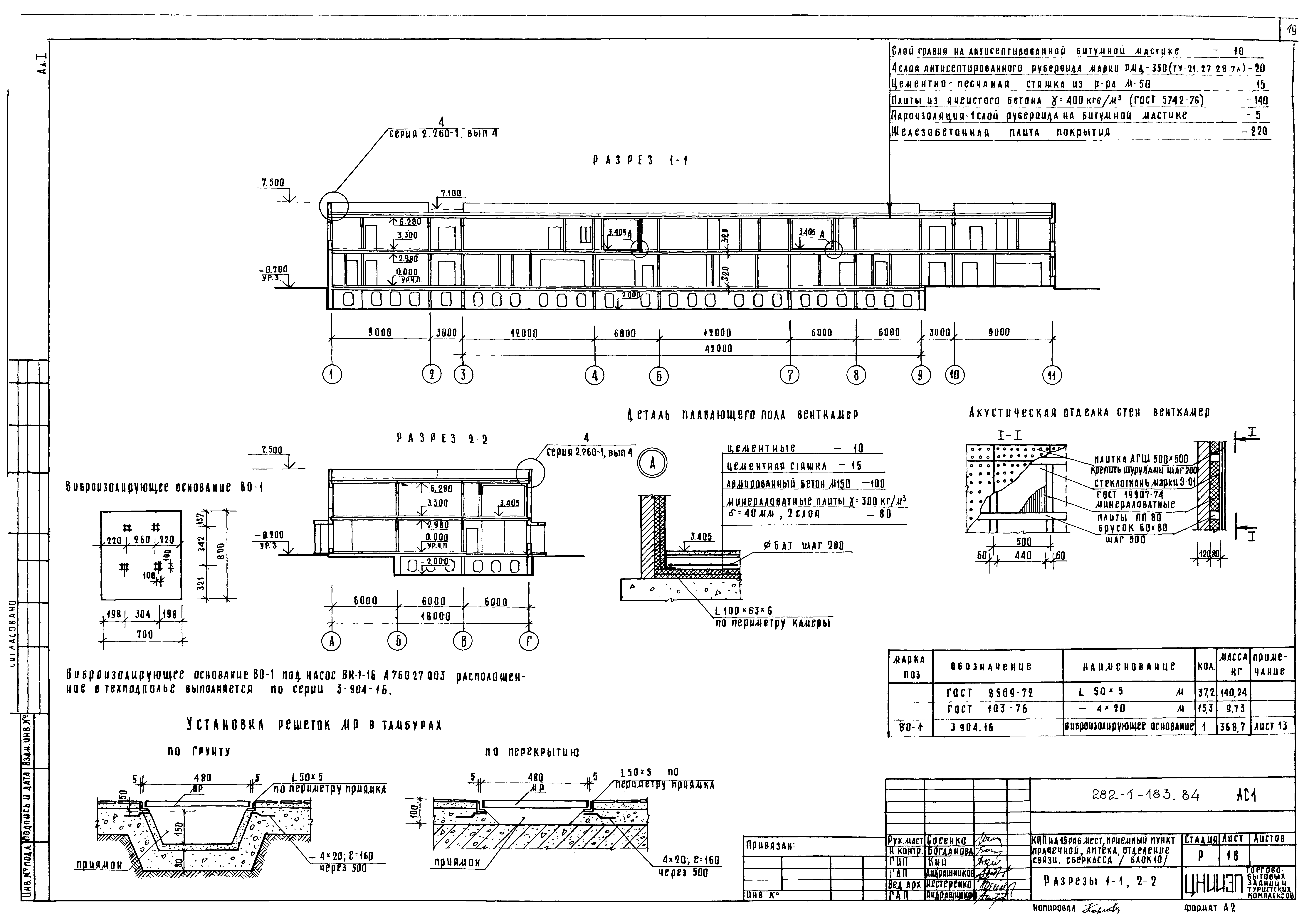
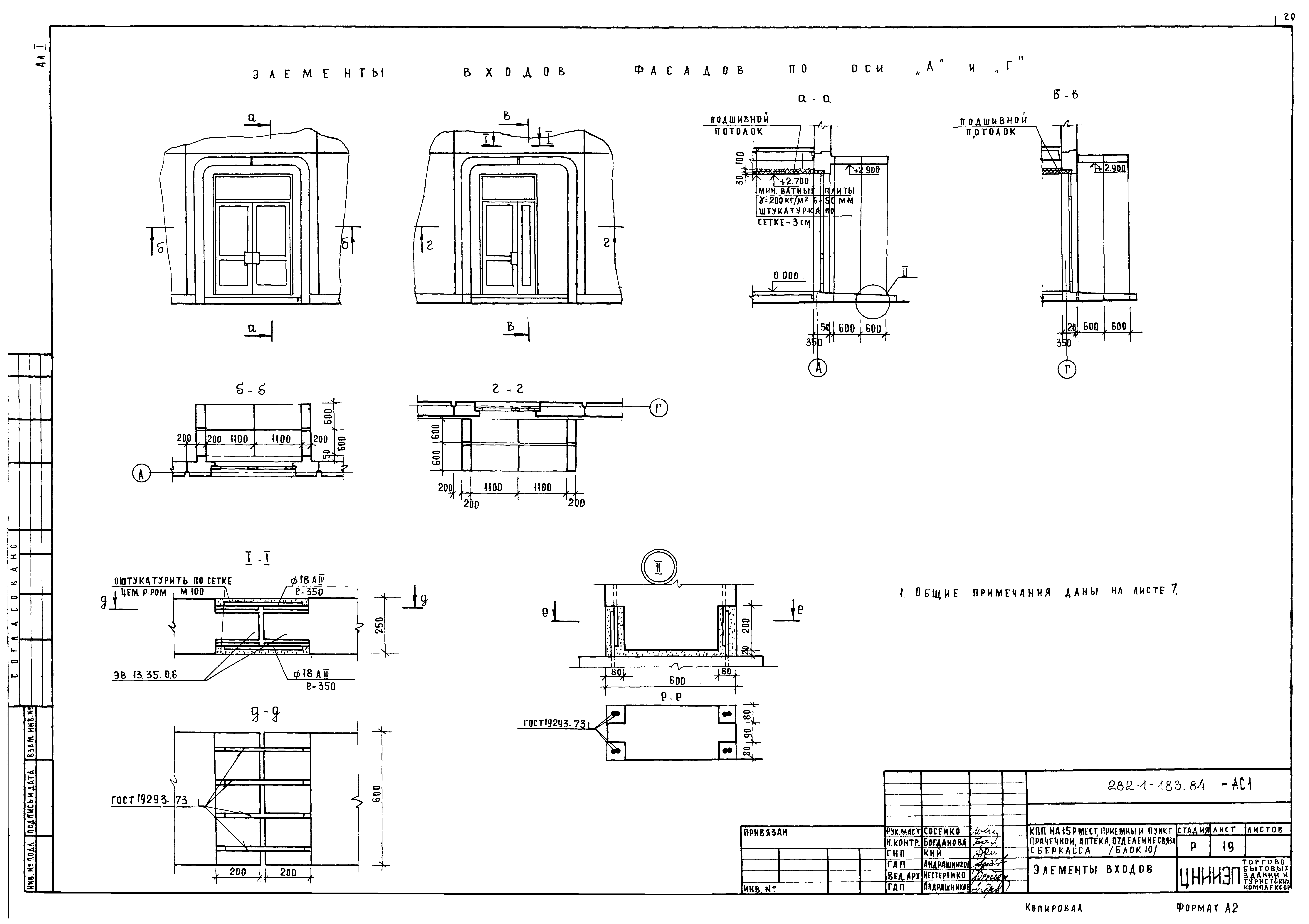
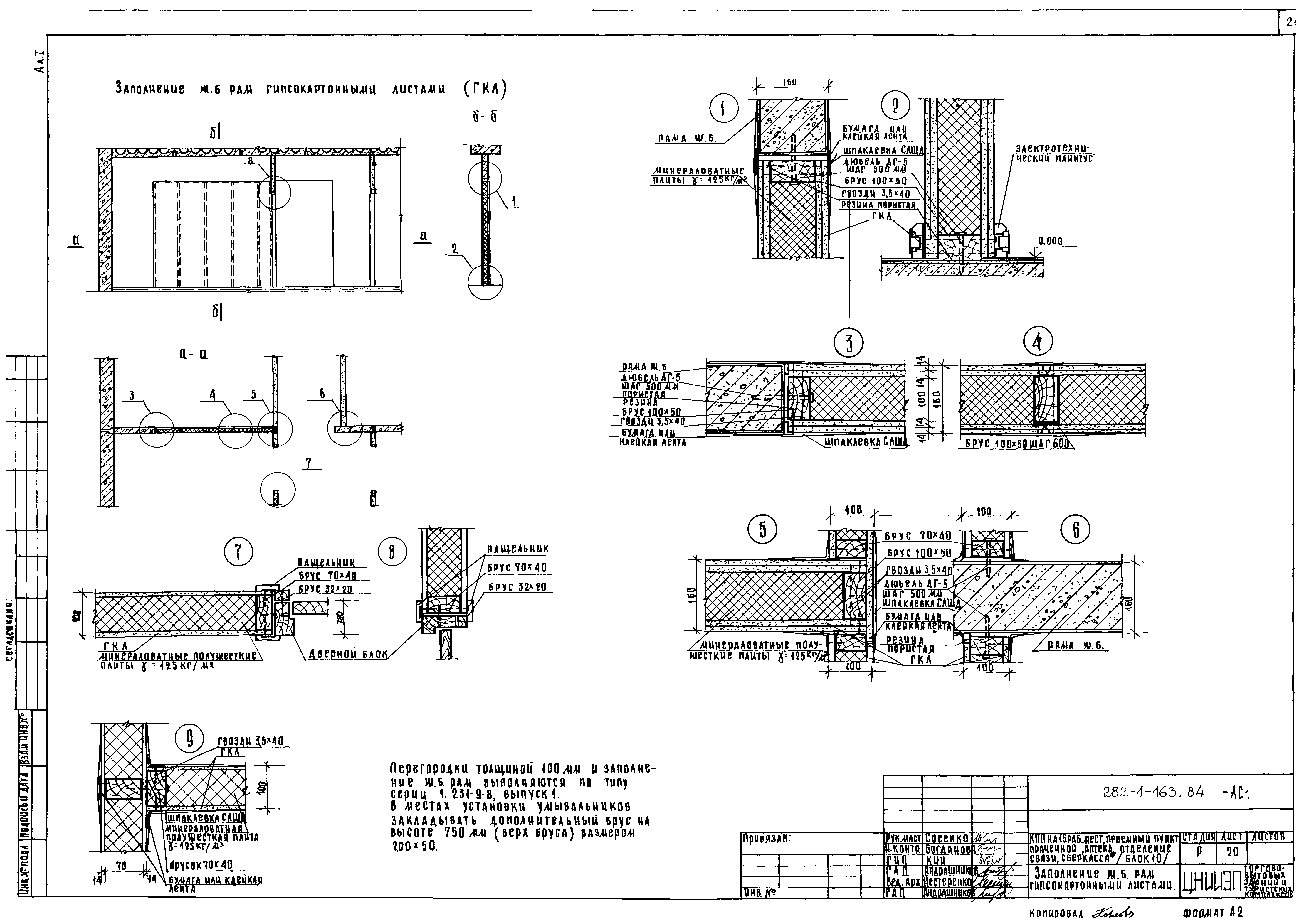
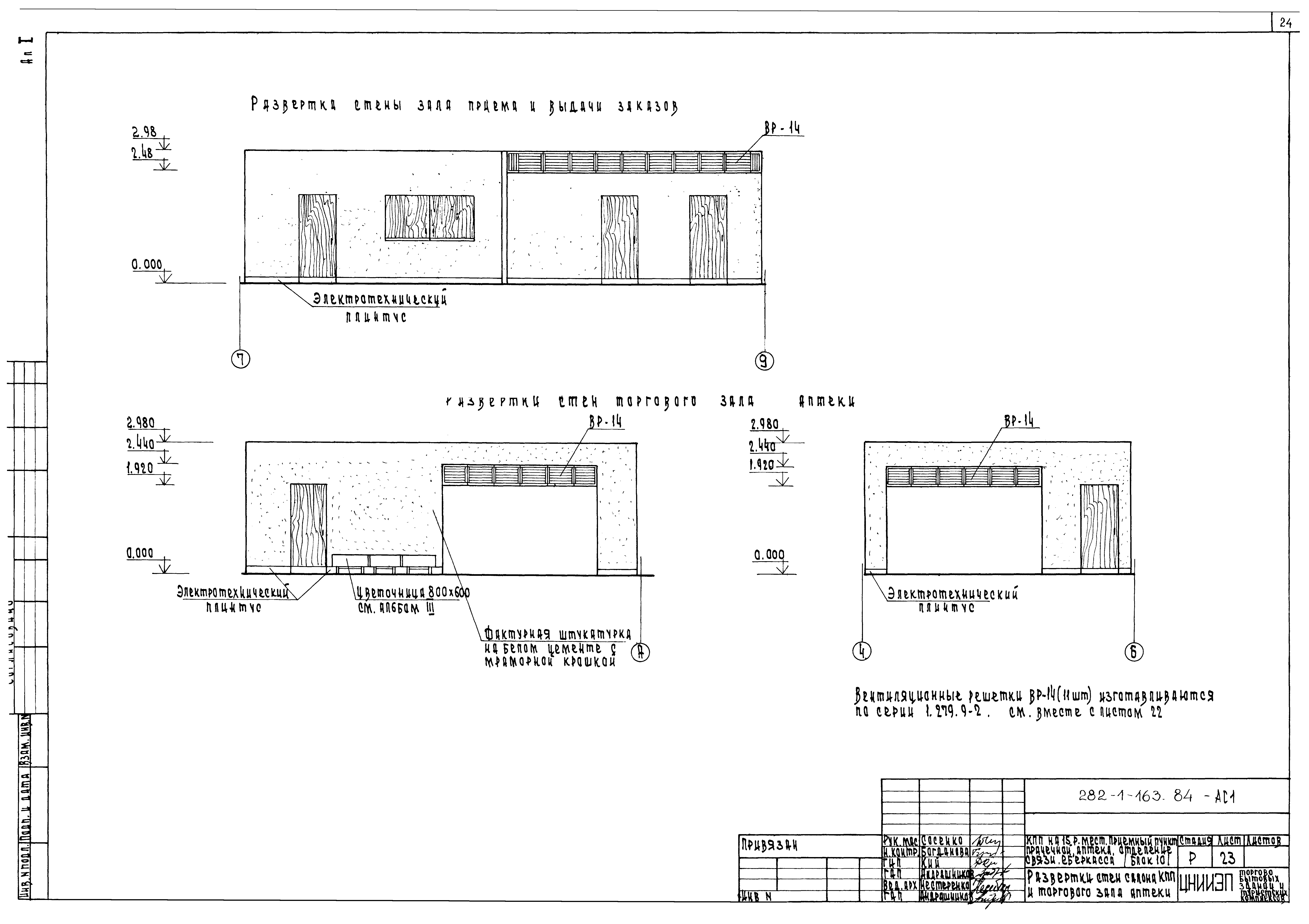
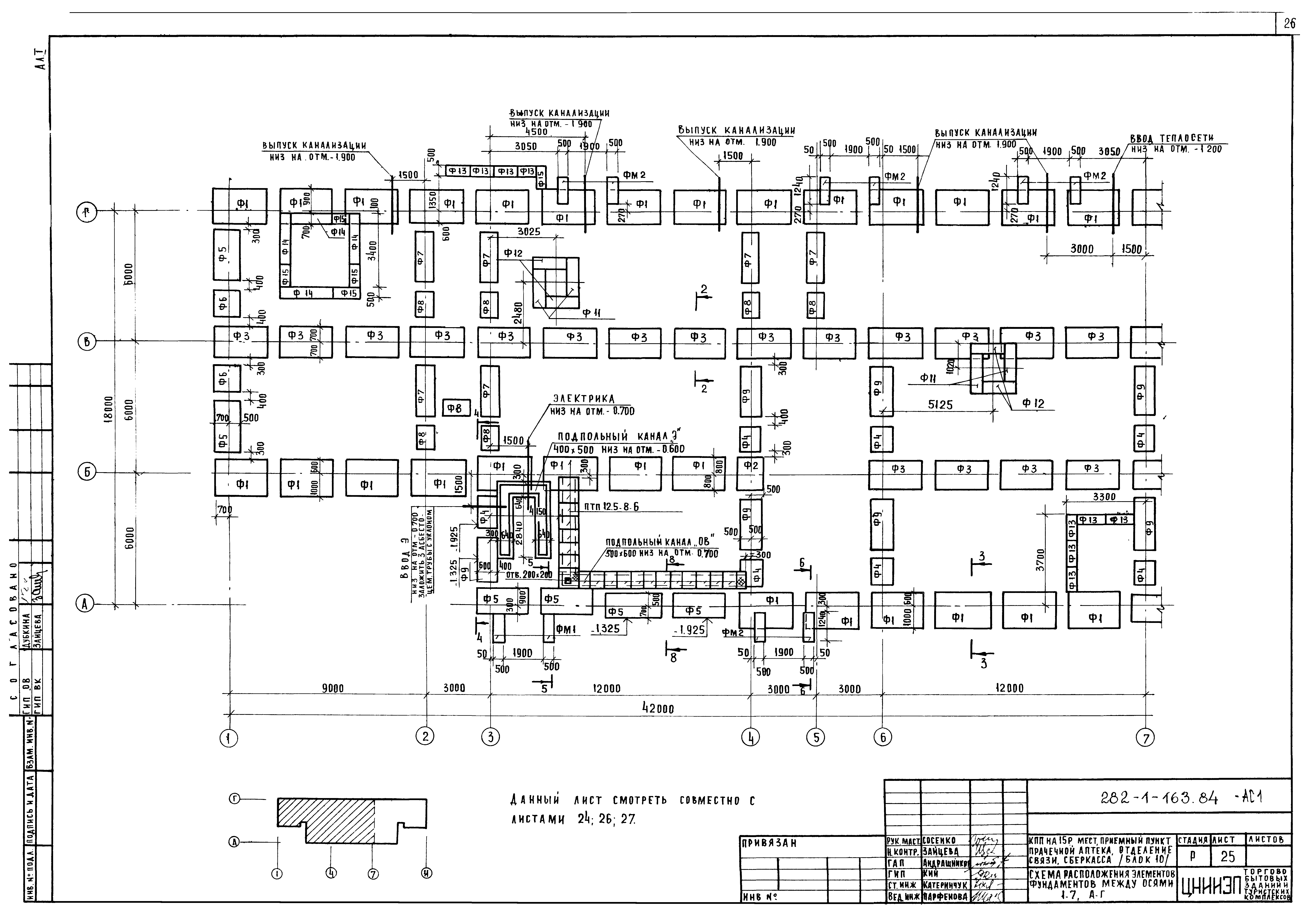
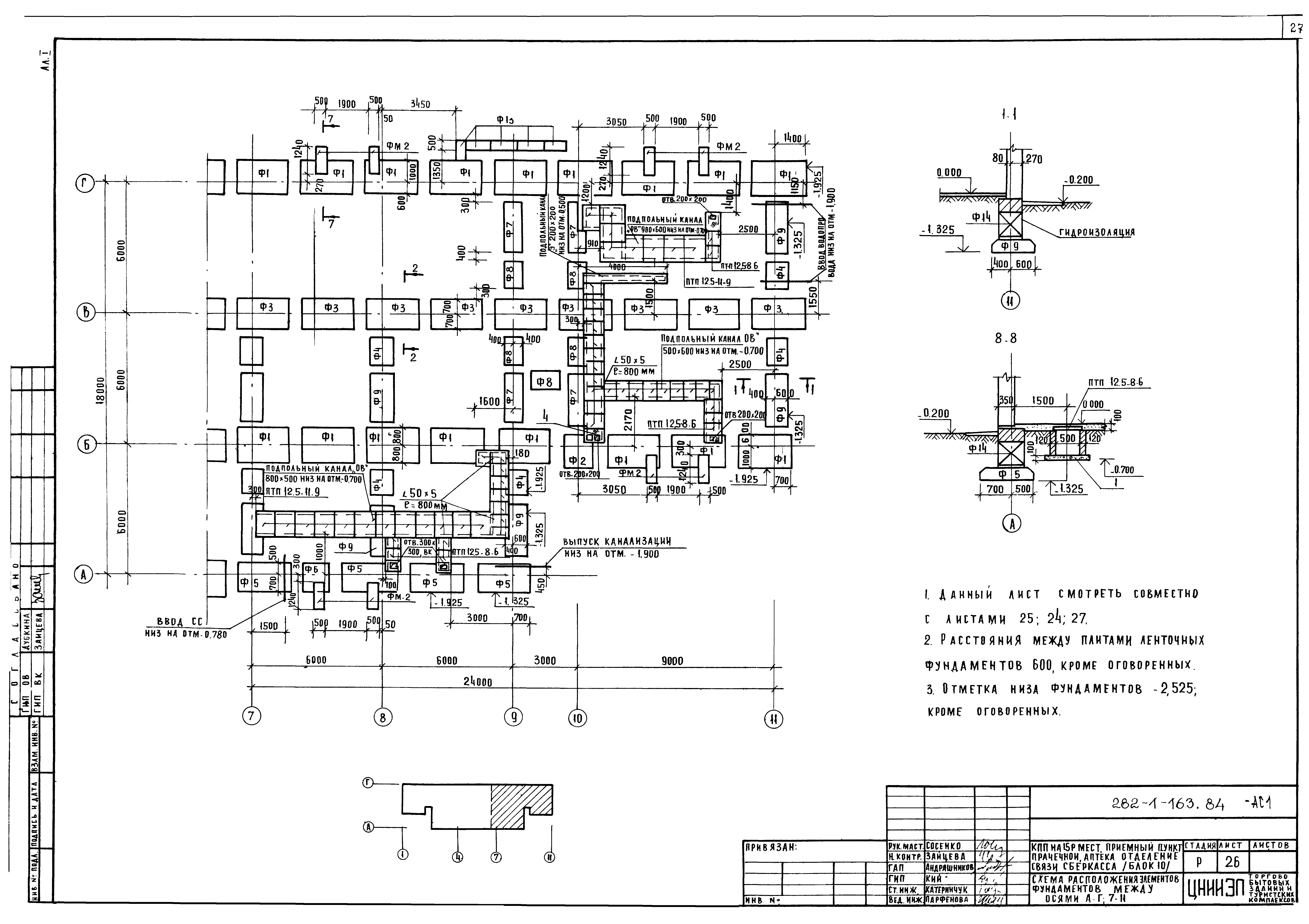
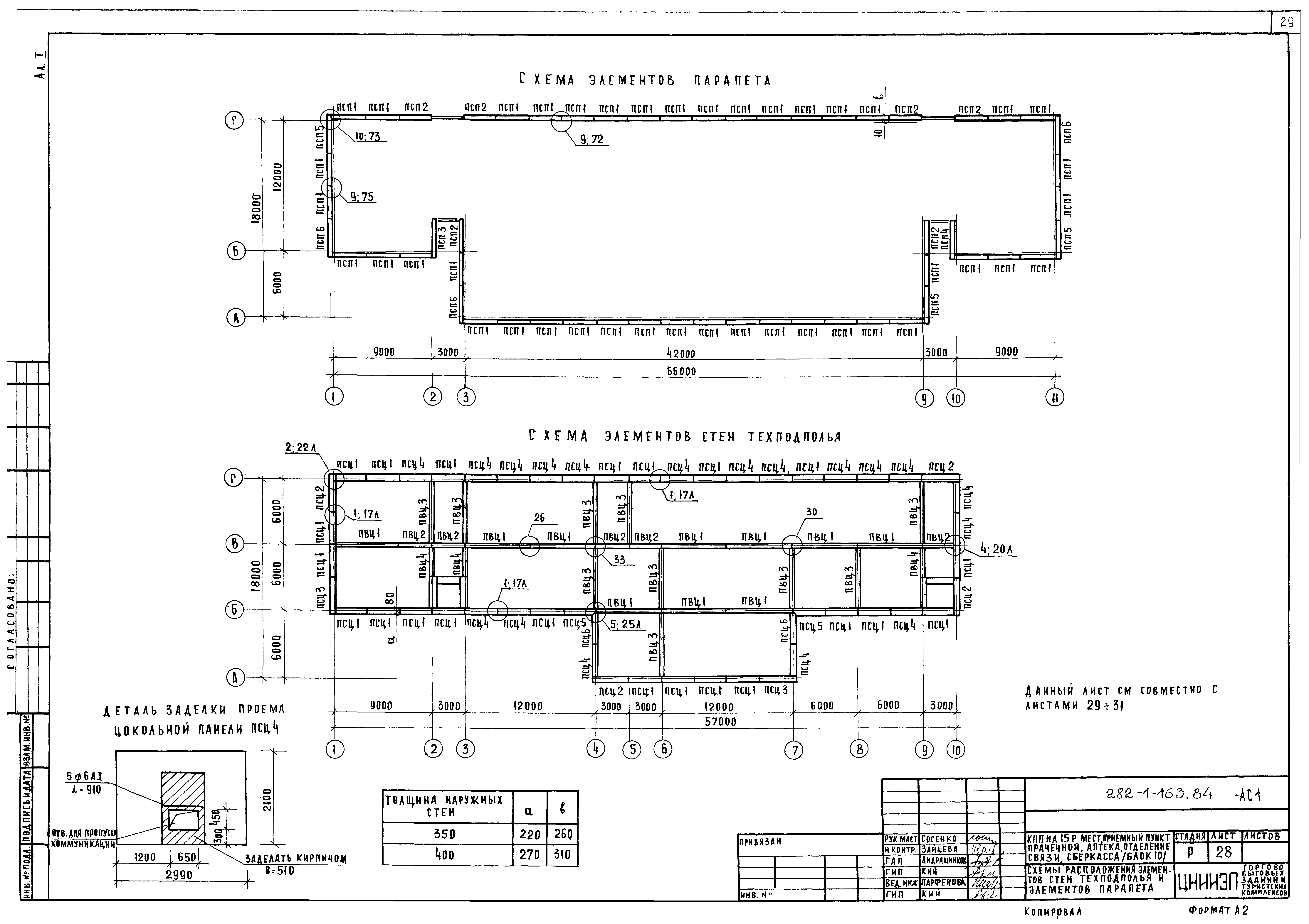
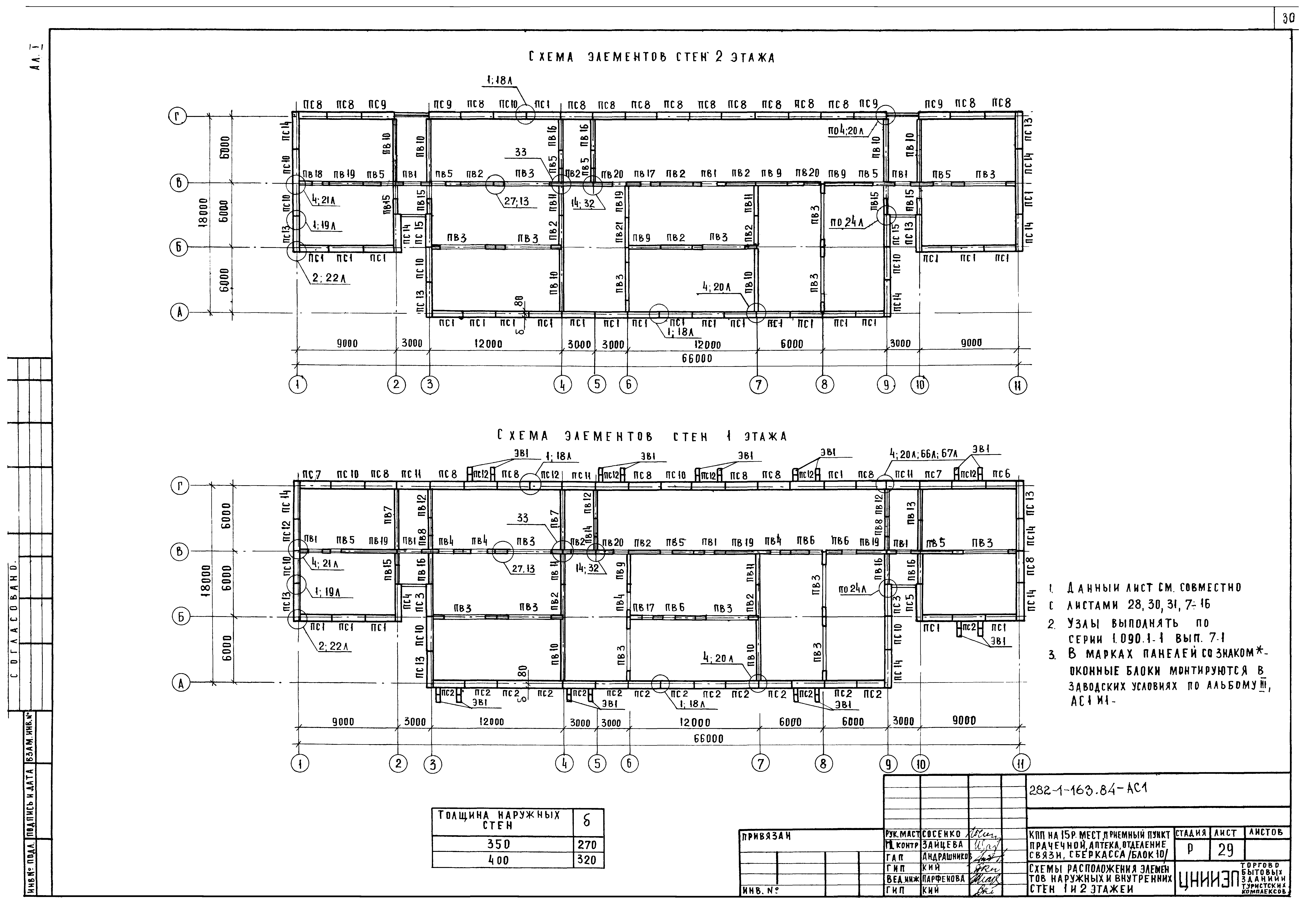
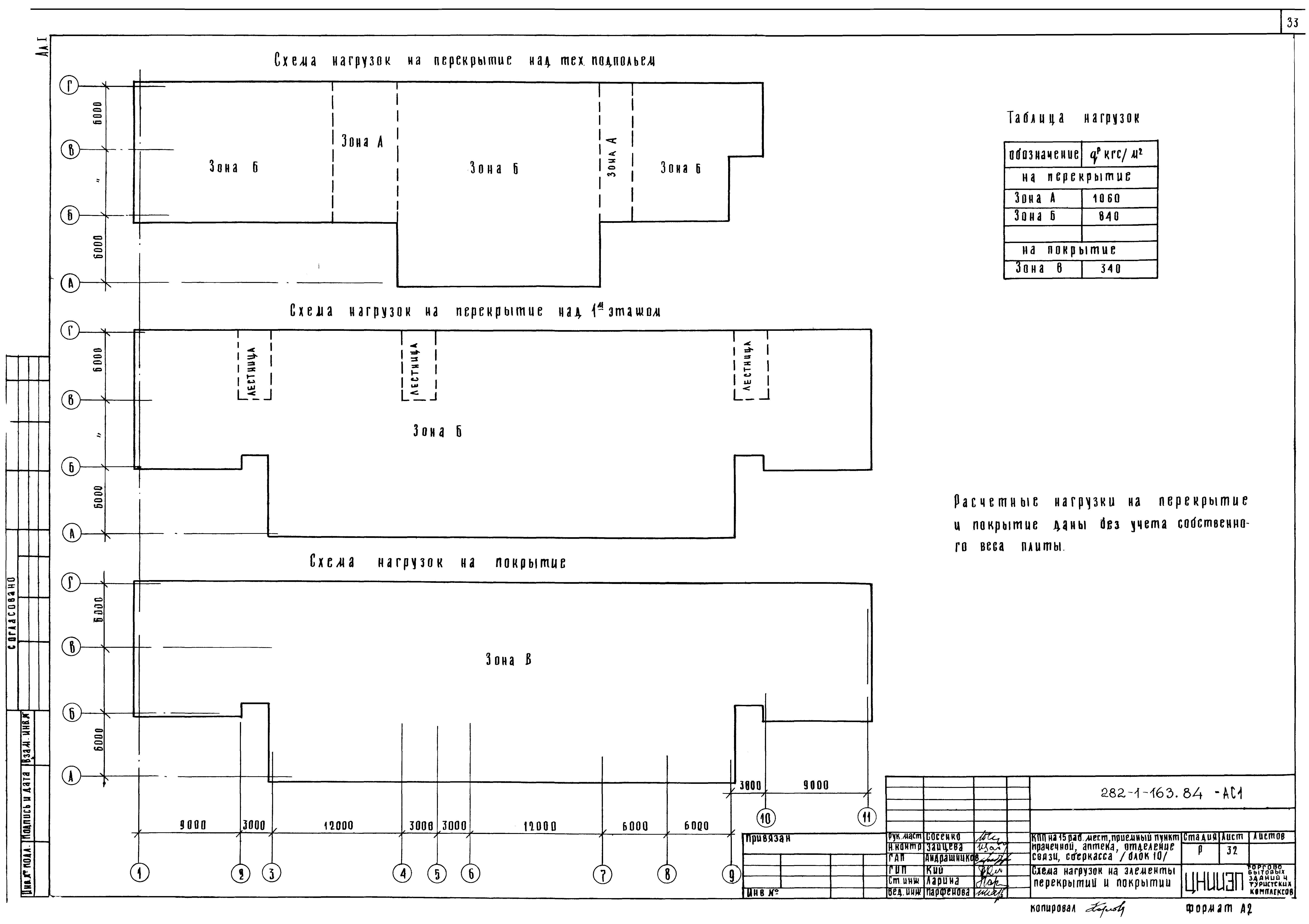
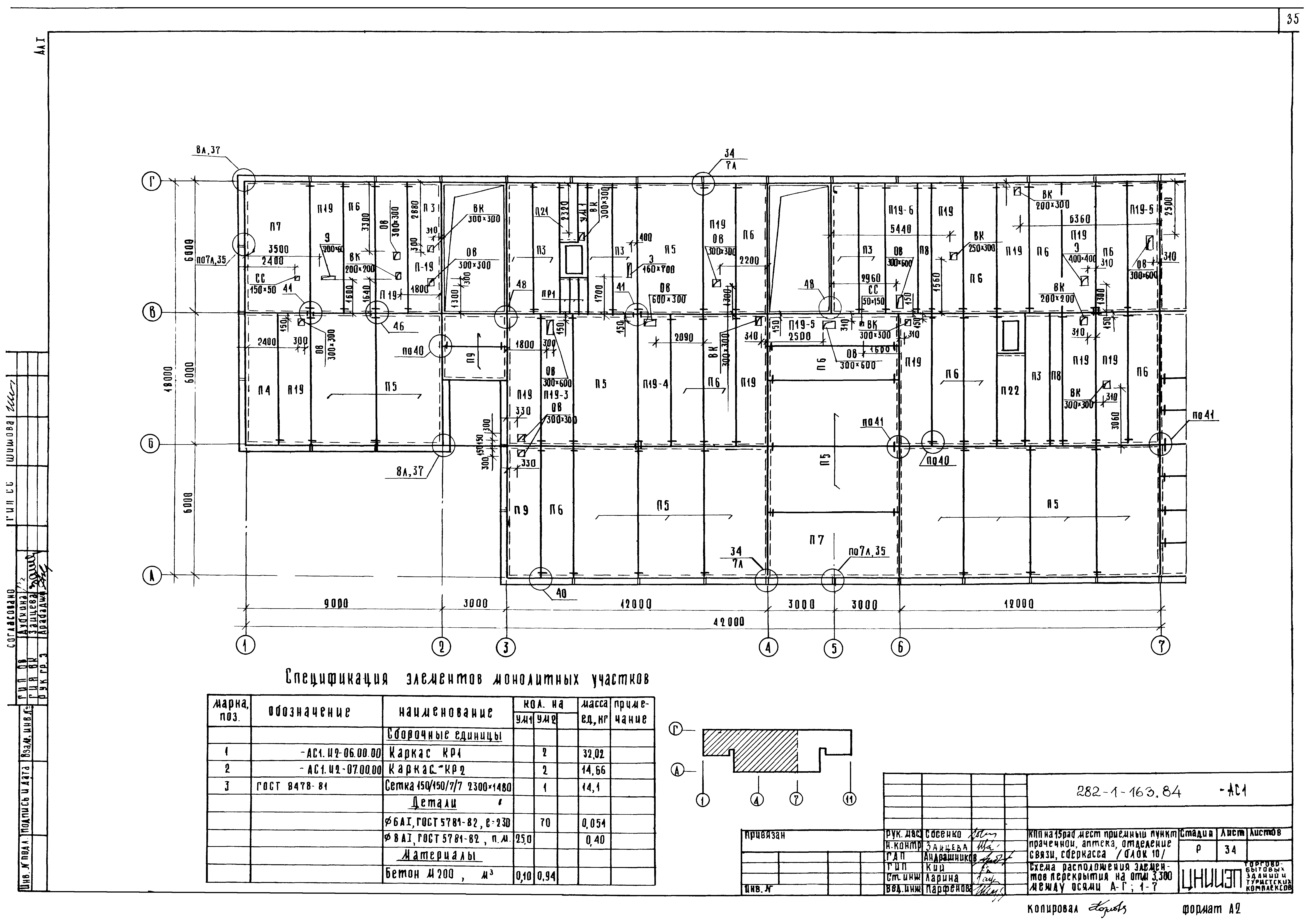
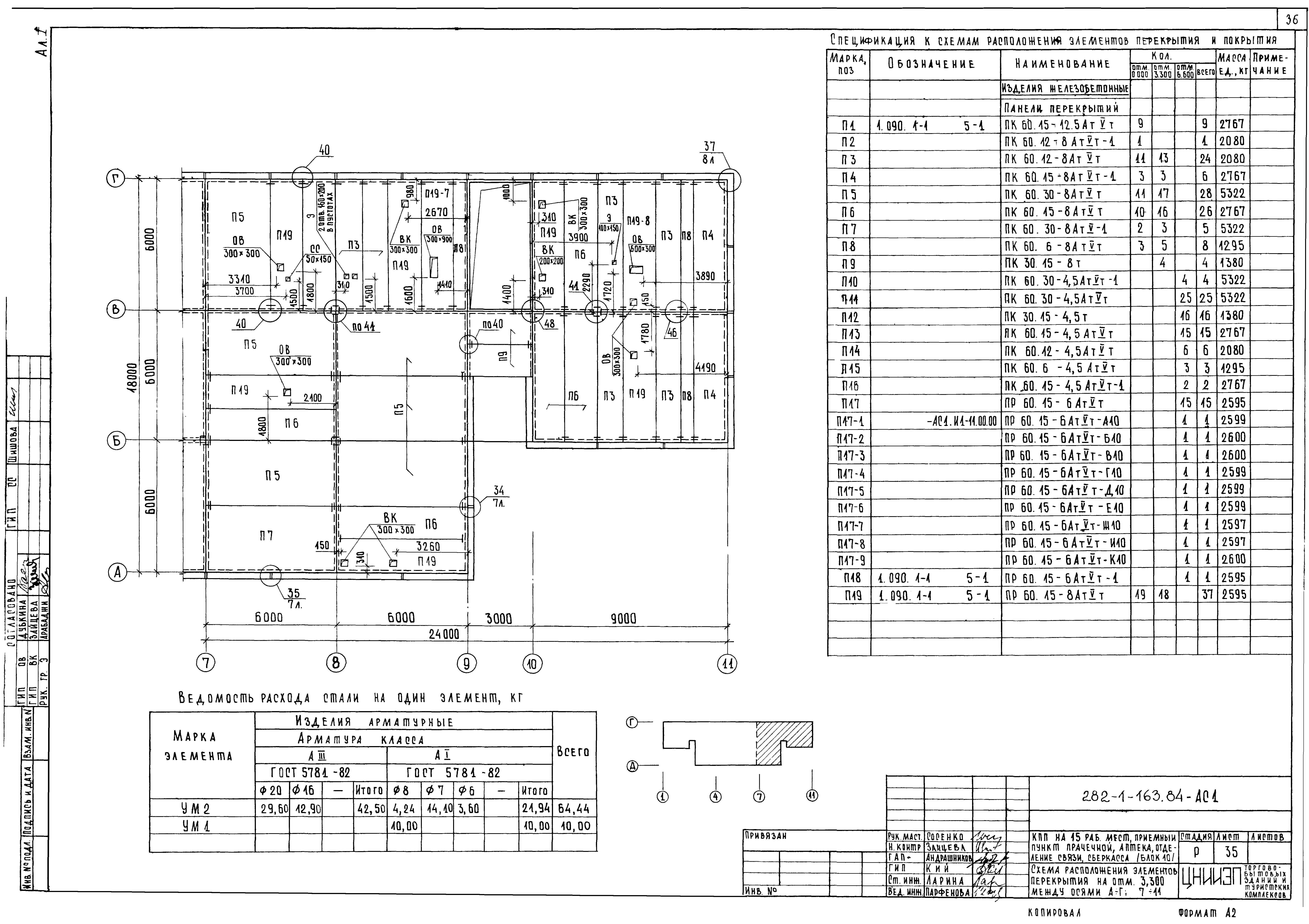
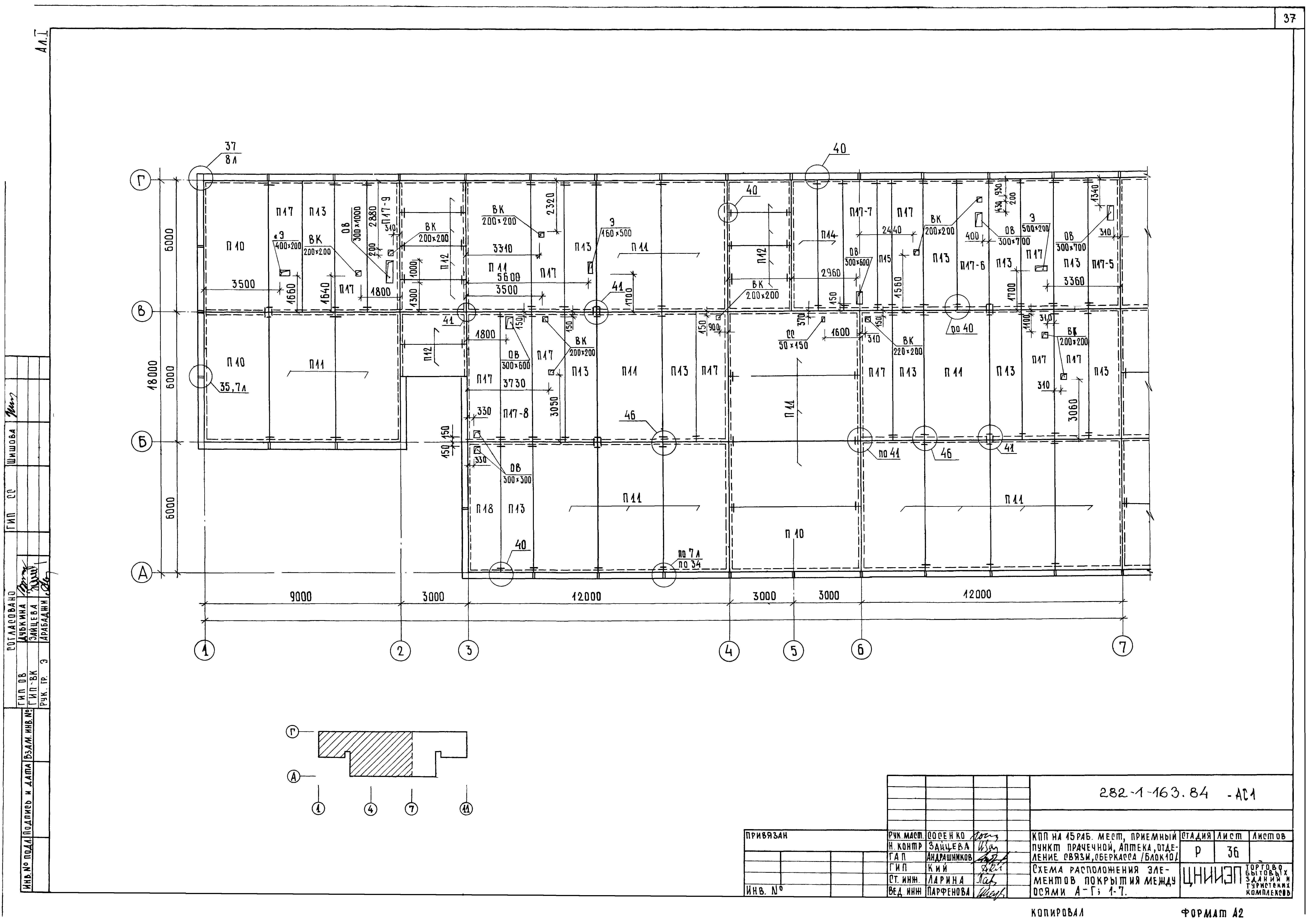
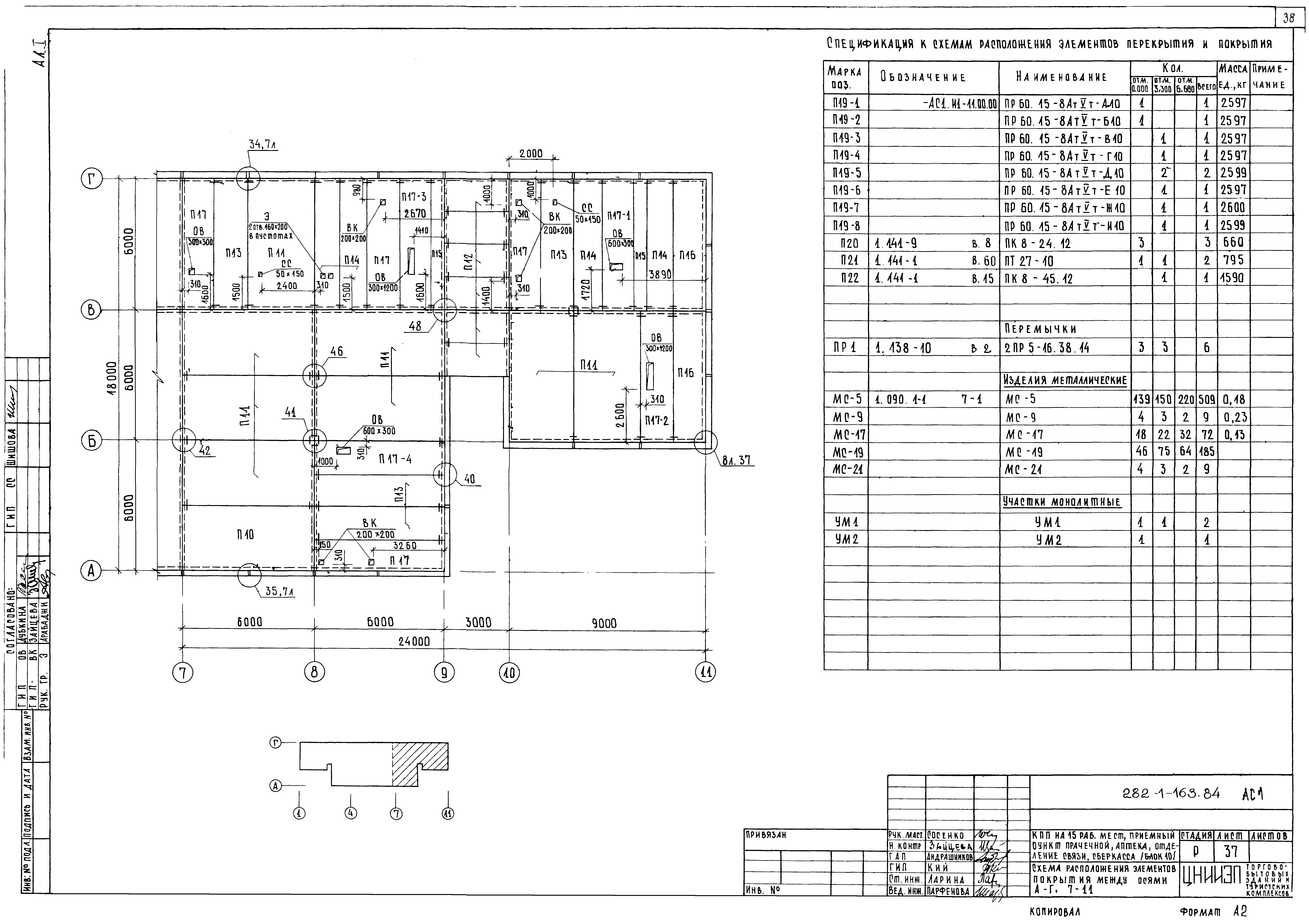
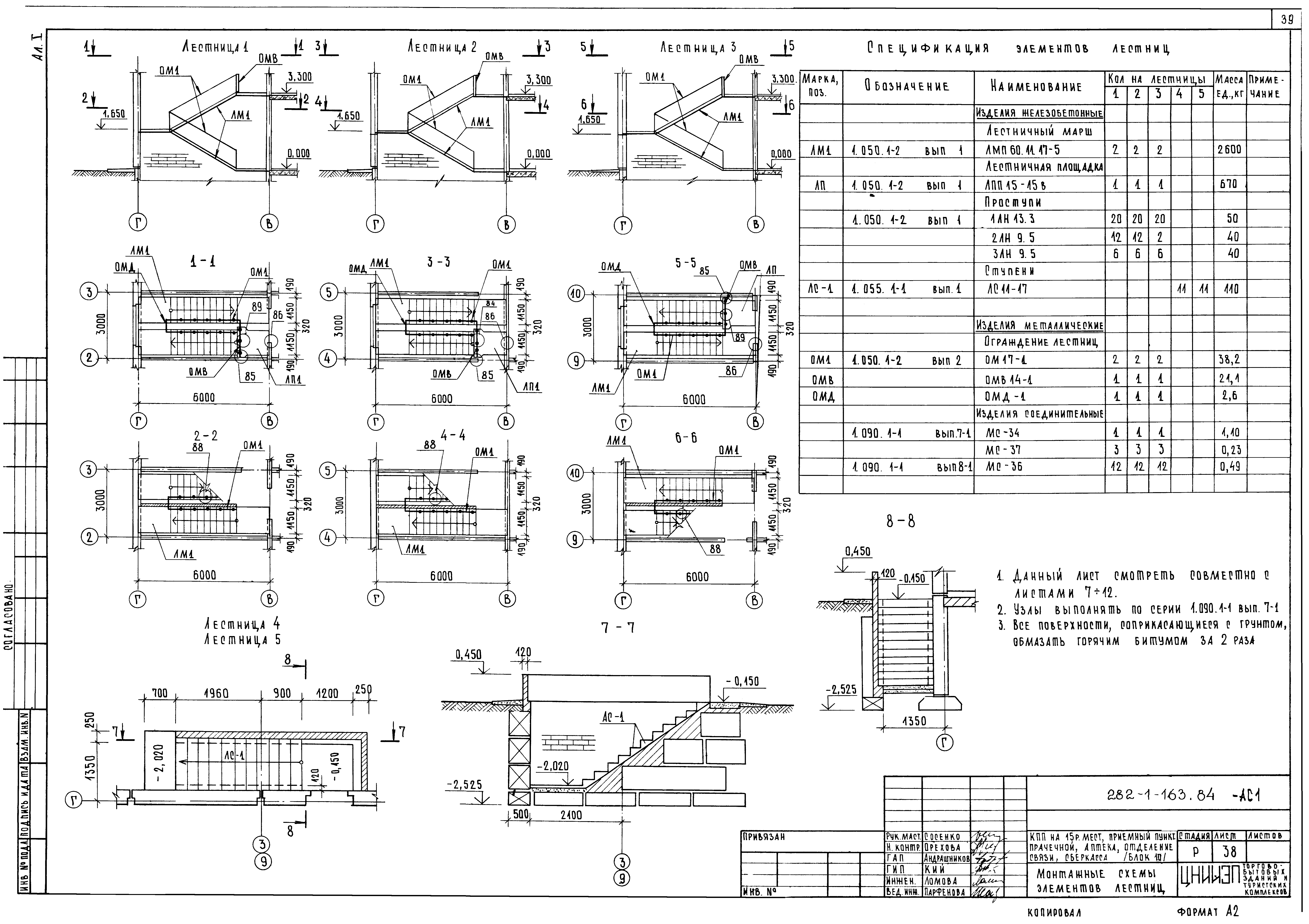
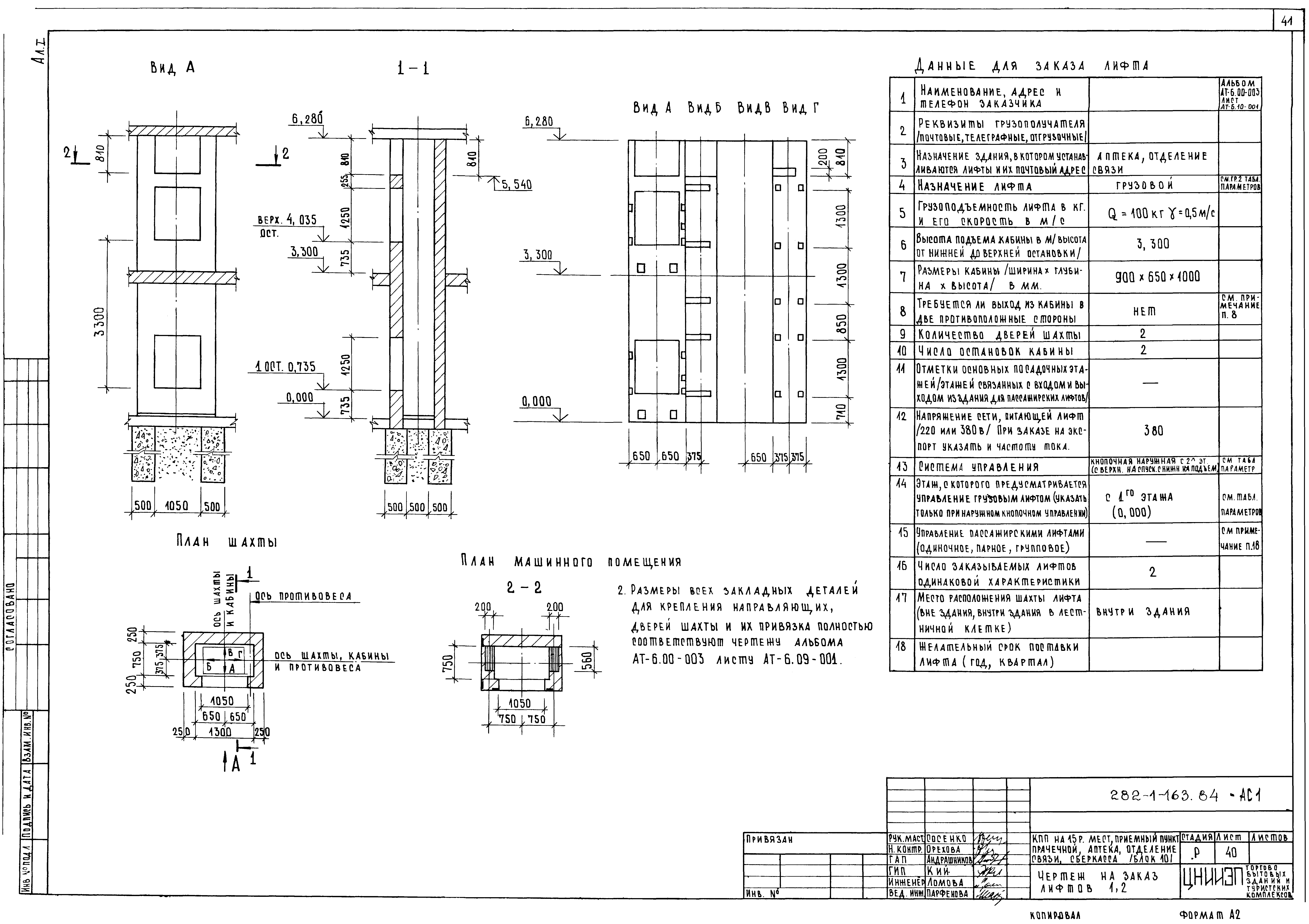
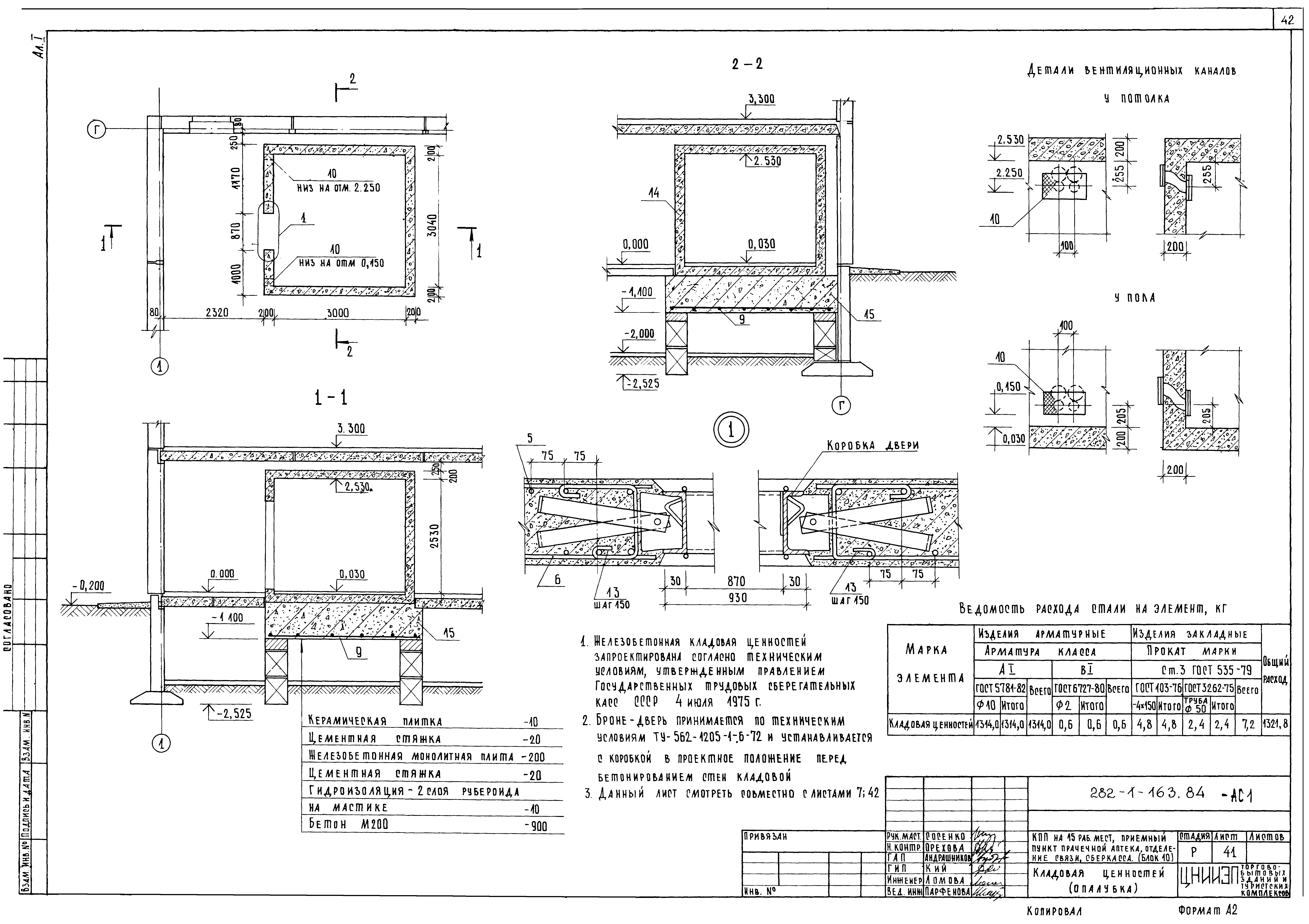
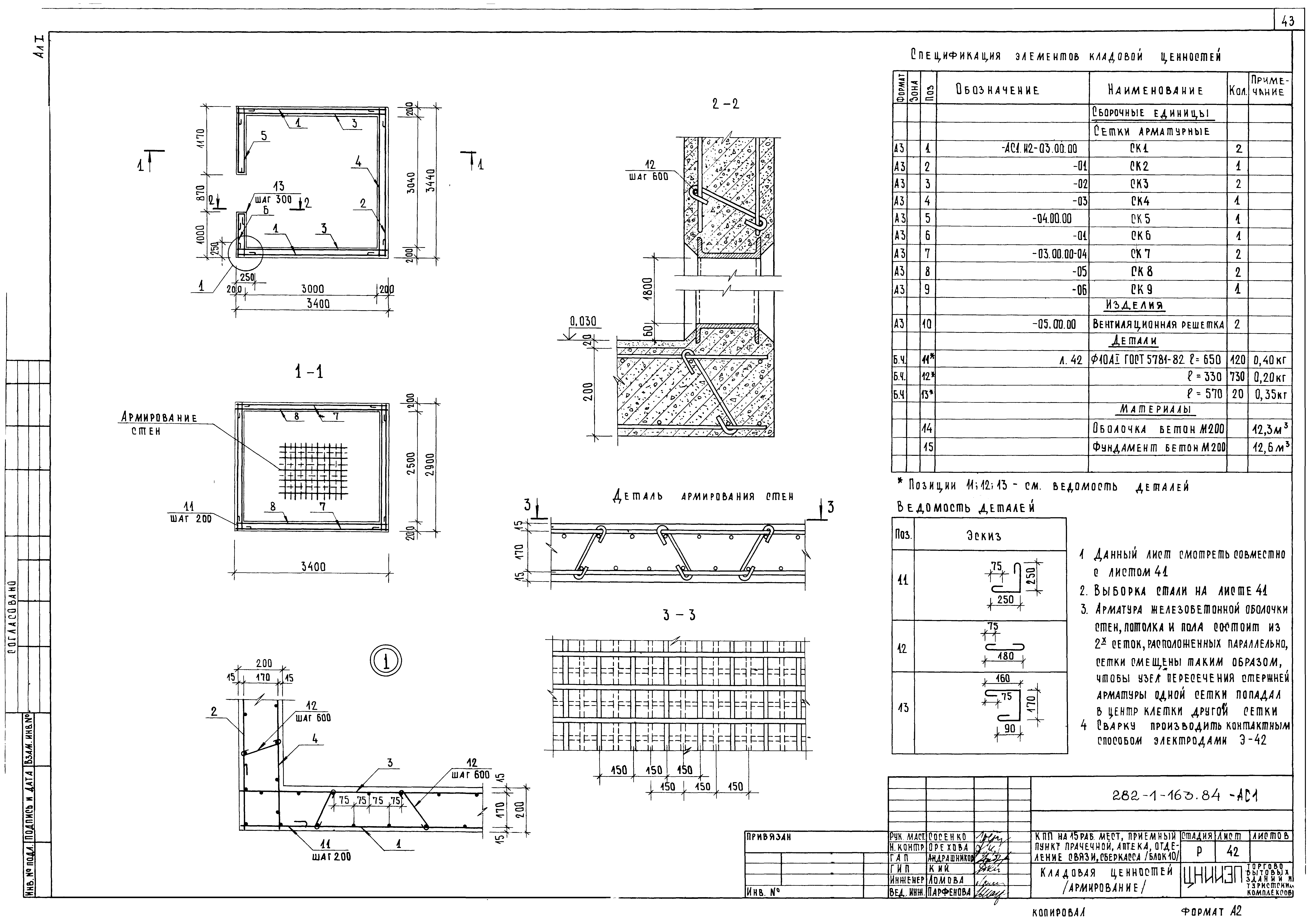
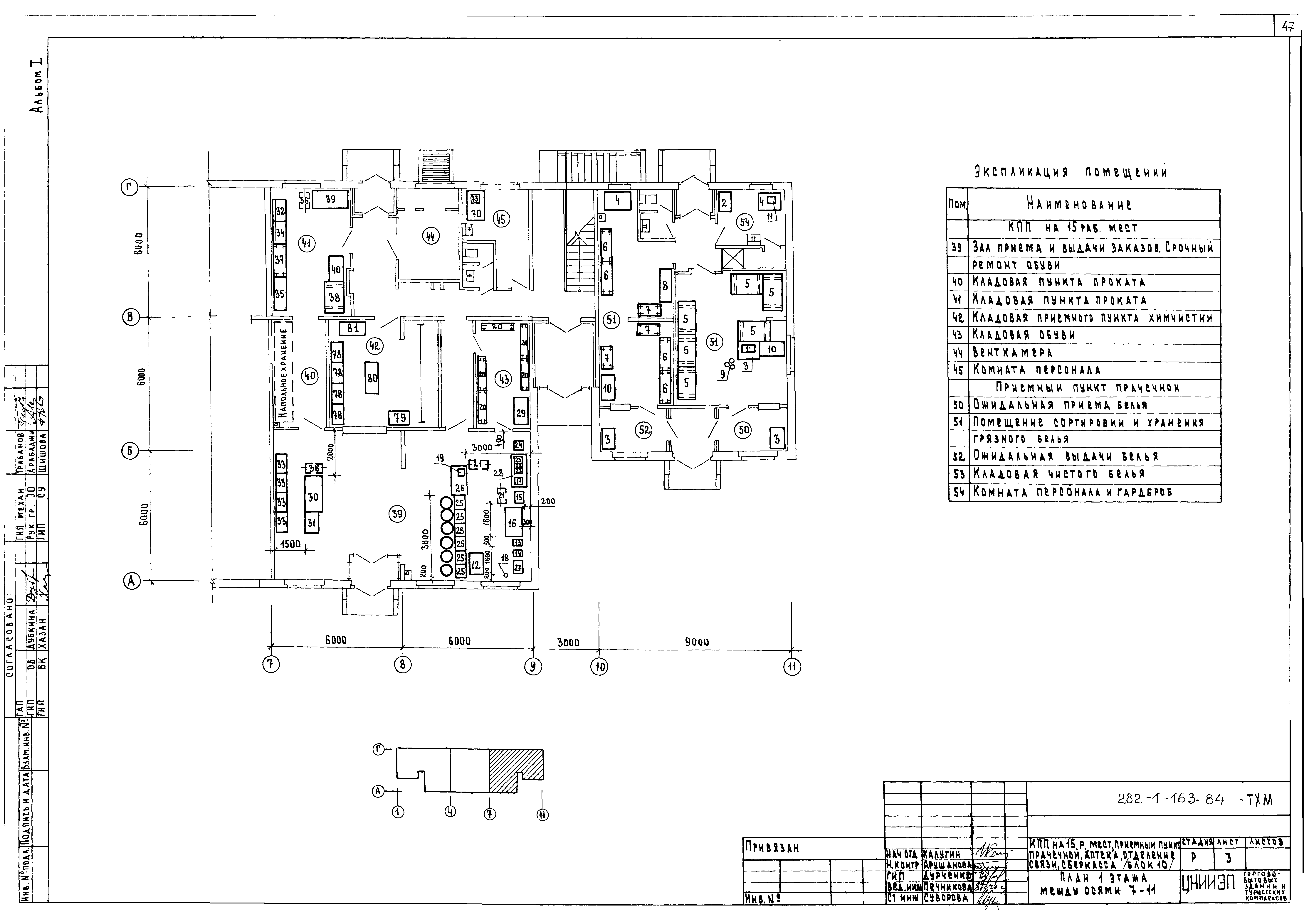
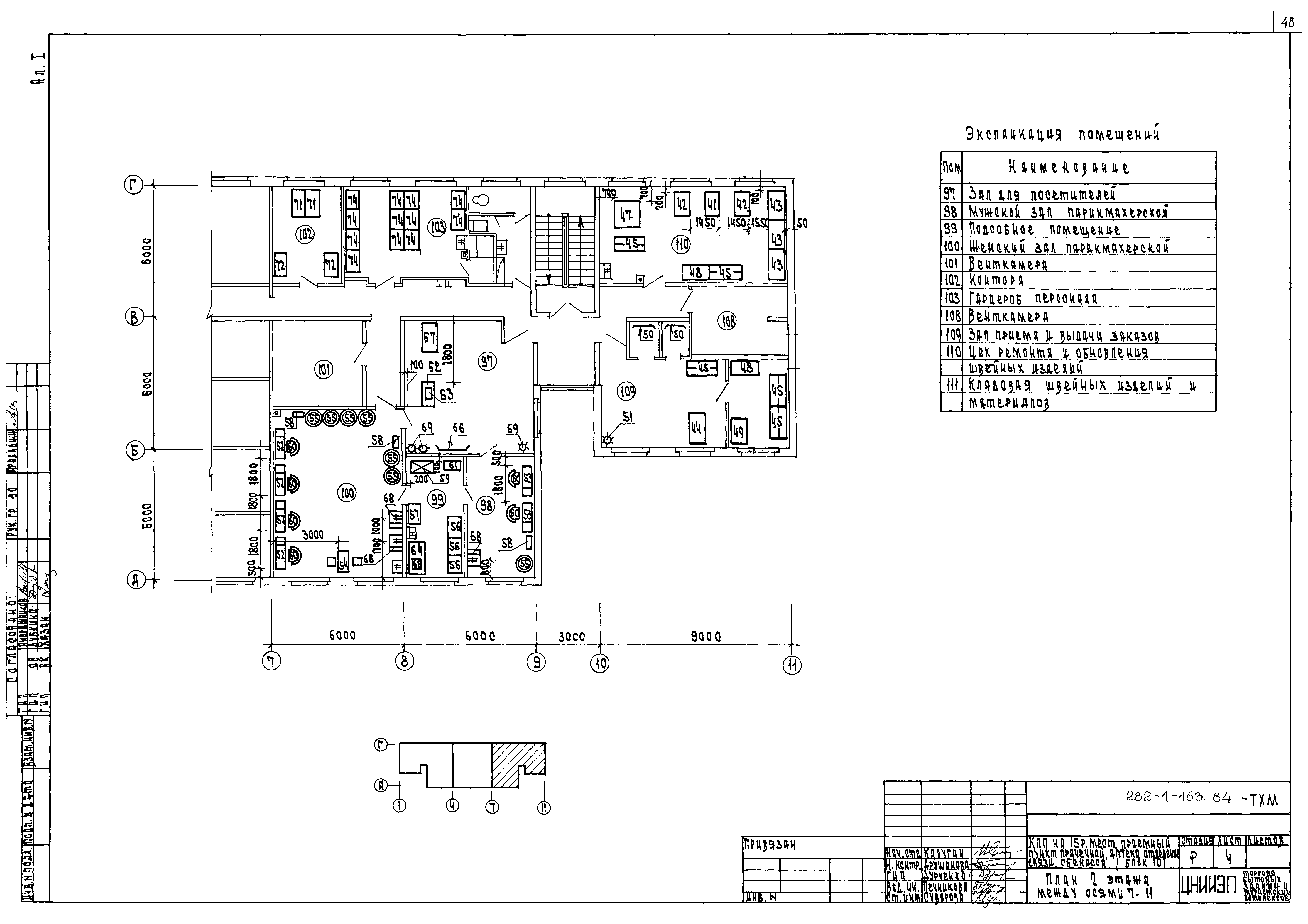
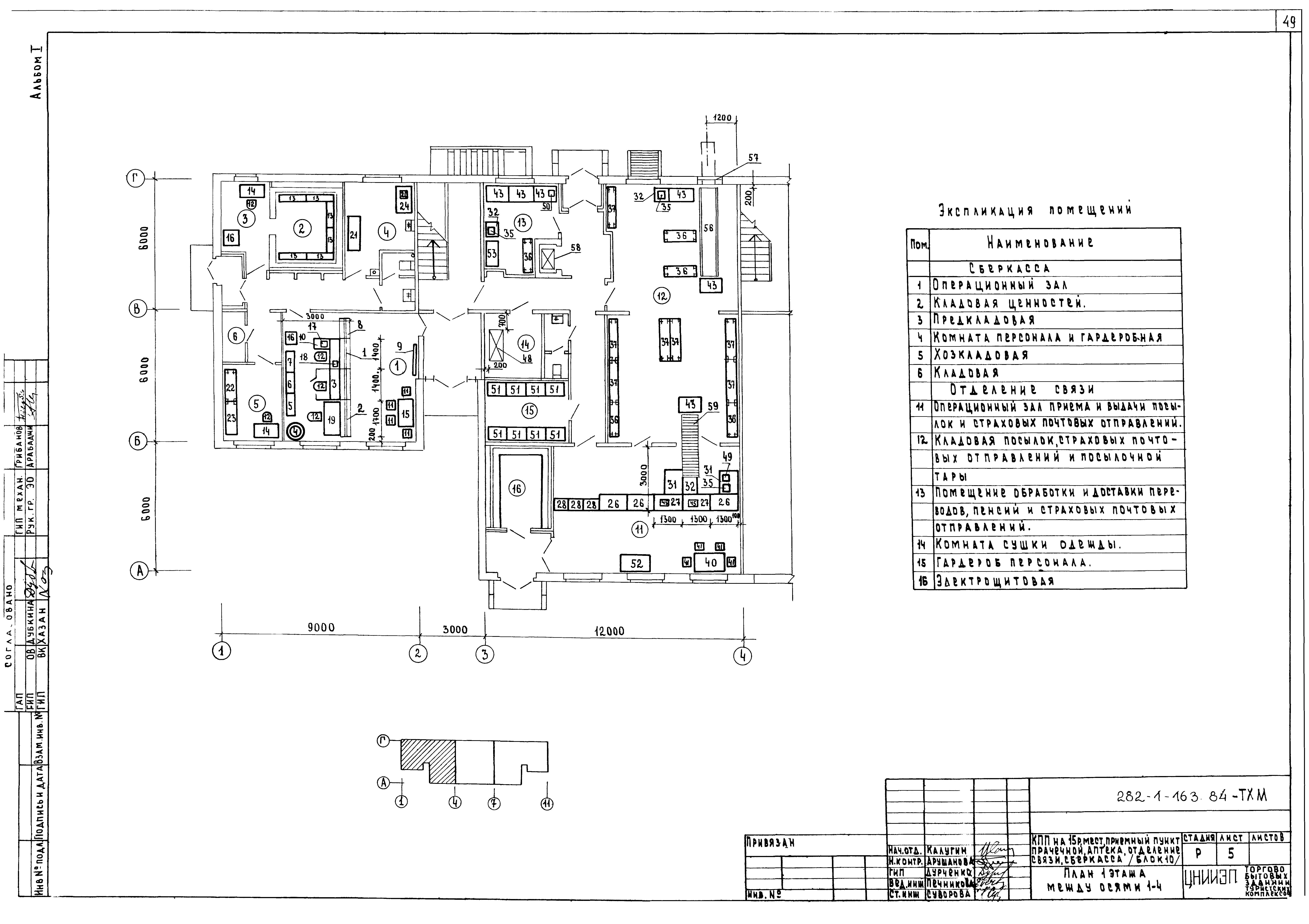
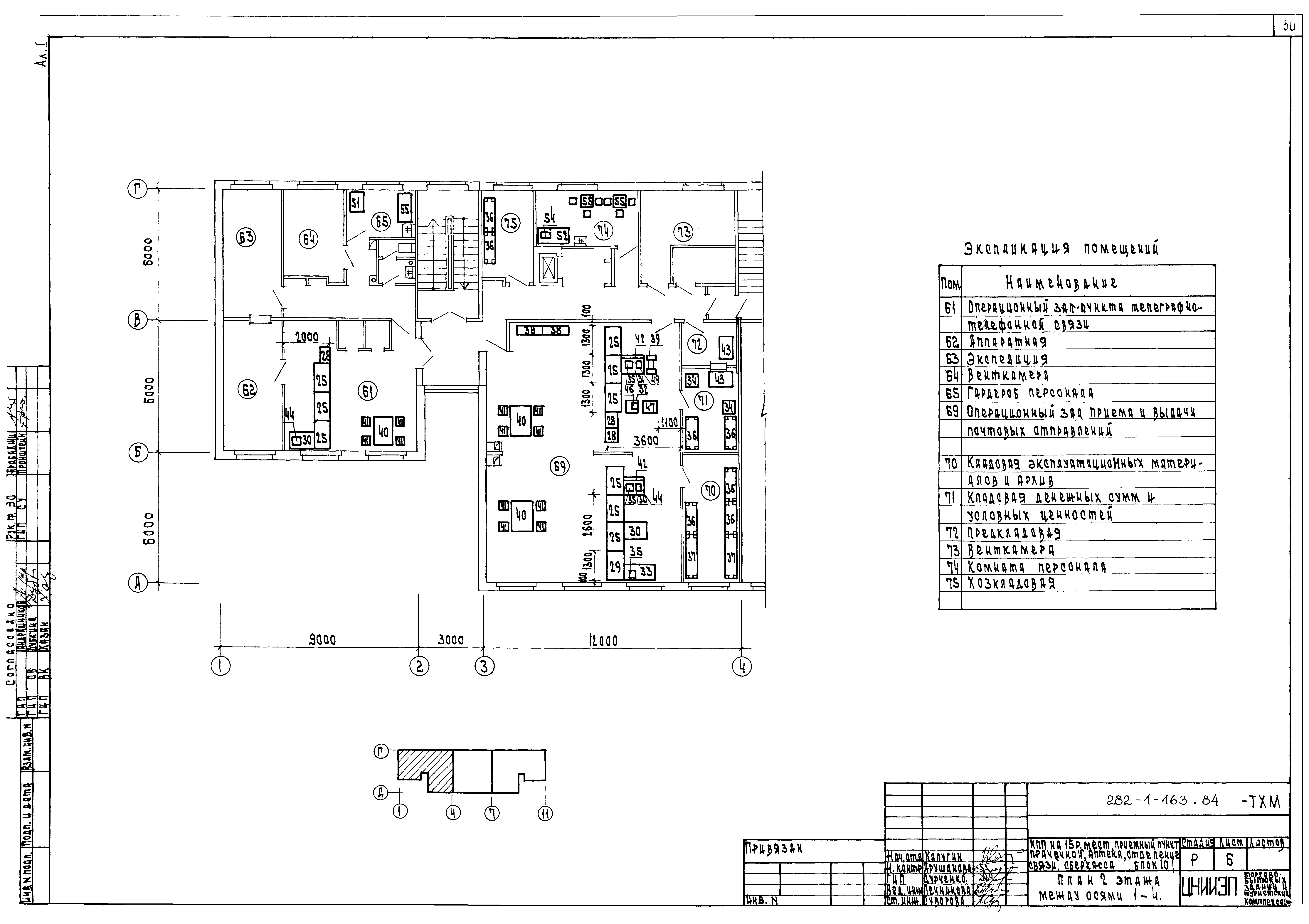
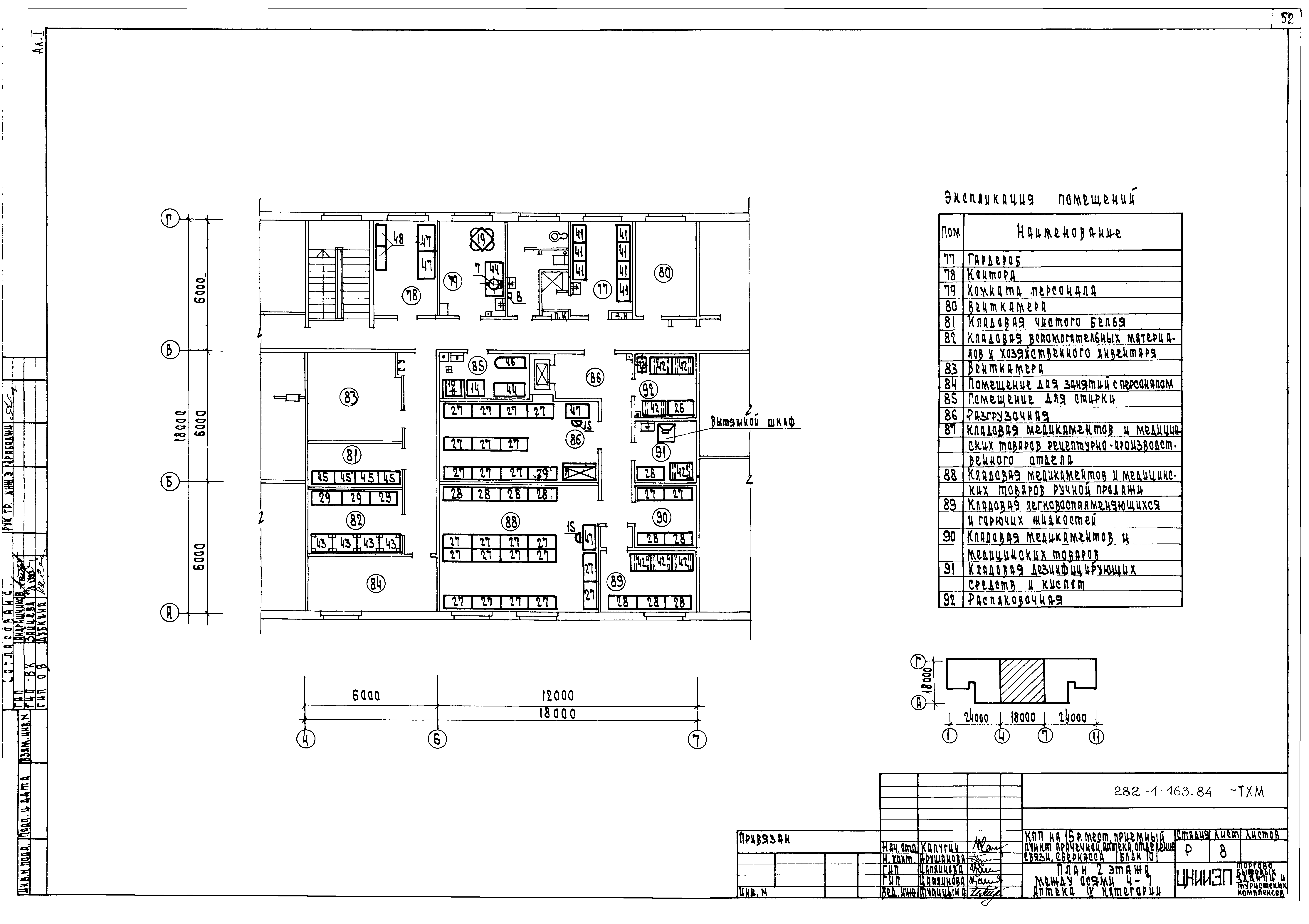
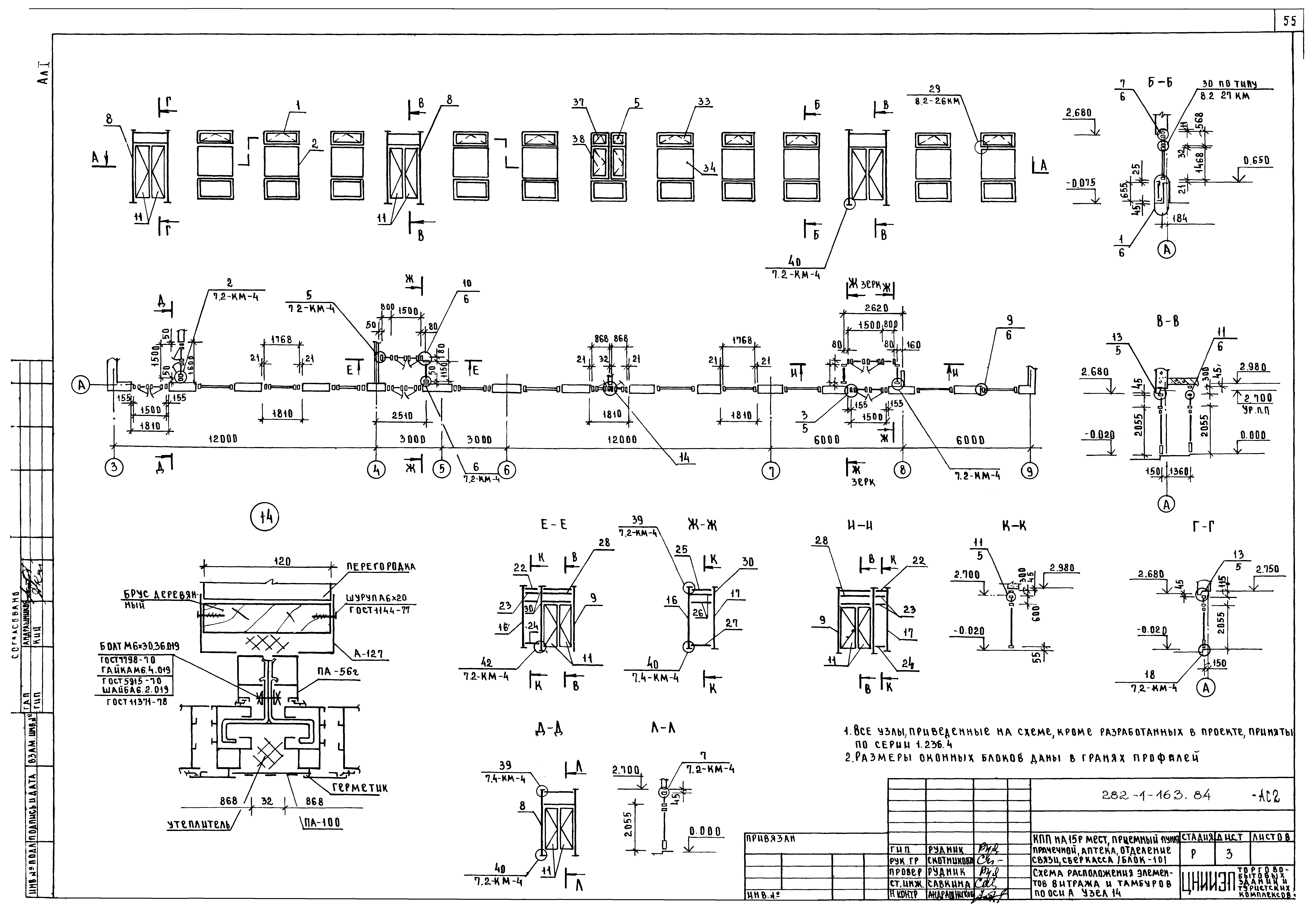
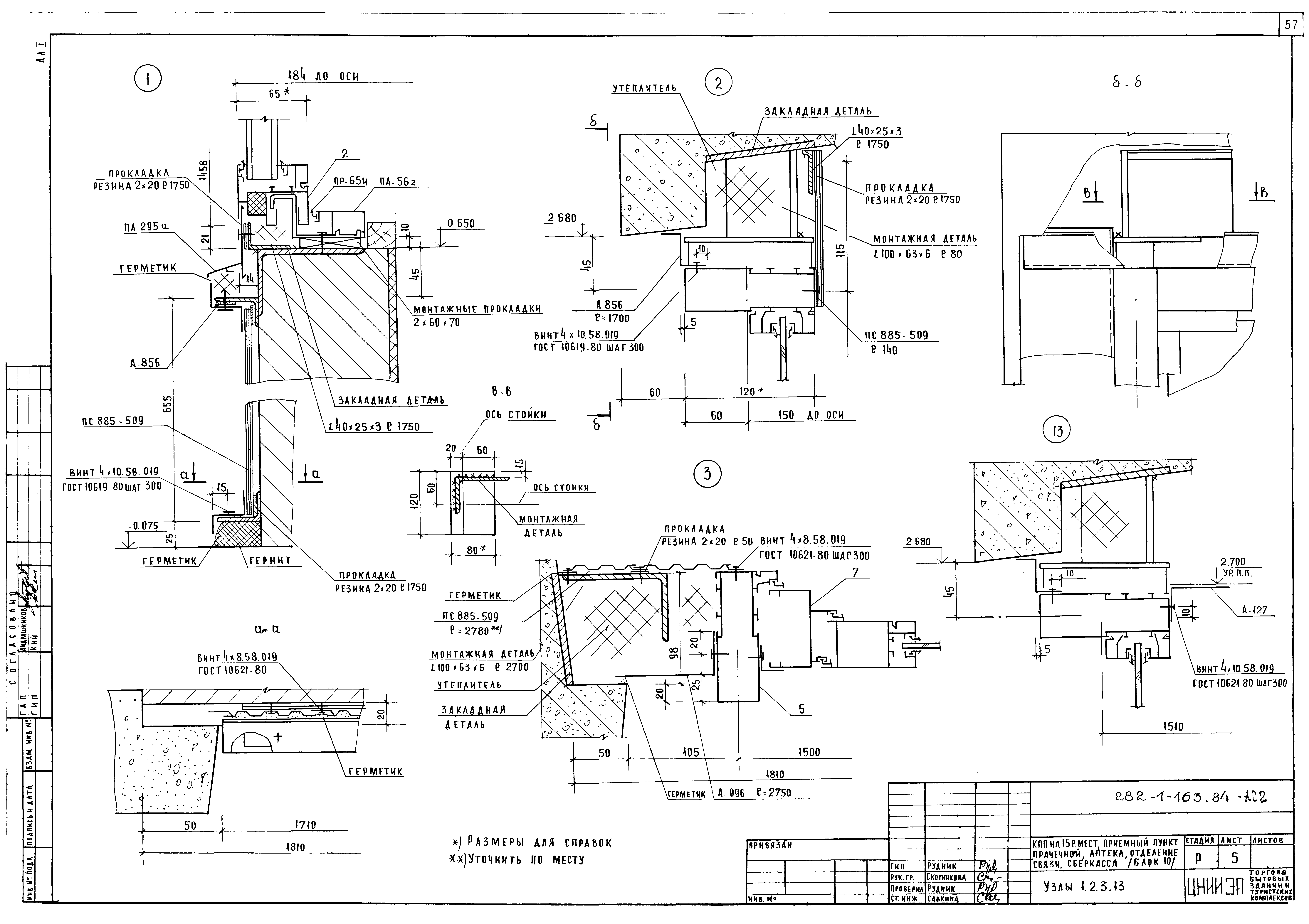
| Оглавление: | Чертежи основного комплекта марки АС1 Общий данные План 1 этажа между осями 1 - 4 План 1 этажа между осями 4 - 7 План 1 этажа между осями 7 - 11 План 2 этажа между осями 1 - 4 План 2 этажа между осями 4 - 7 План 2 этажа между осями 7 - 11 План техподполья Фасад 1 - 11 Фасад 11 - 9, 9 - 3, 3- 1 Фасад А - Г и Г - А План крыши Разрезы 1-1, 2-2 Элементы входов Заполнение ж/б рам гипсокартонными листами Звено асбестоцементного воздуховода Развертка стен отделения связи и сберкассы Развертки стен салона КПП и торгового зала аптеки Схема нагрузок на элементы фундаментов Схема расположения элементов фундаментов в осях 1 - 7, А - Г Схема расположения элементов фундаментов в осях А - Г, 7 - 11 Сечения к схемам расположения элементов фундаментов. Спецификация Схемы расположения элементов стен техподполья и элементов парапета Схемы расположения элементов наружных и внутренних стен 1 и 2 этажей Спецификация к схемам расположения стеновых панелей при толщине наружных стен 350 мм Спецификация к схемам расположения стеновых панелей при толщине наружных стен 400 мм Схема нагрузок на элементы перекрытий и покрытия Схема расположения элементов перекрытия на отм. 0.000 Схема расположения элементов перекрытия на отм. 3.300 между осями А - Г, 1 - 7 Схема расположения элементов перекрытия на отм. 3.300 между осями А - Г, 7 - 11 Схема расположения элементов покрытия между осями А - Г, 1 - 7 Схема расположения элементов покрытия между осями А - Г, 7 - 11 Монтажные схемы элементов лестниц Монтажная схема лифтов 1, 2 Чертеж на заказ лифтов 1, 2 Кладовая ценностей (опалубка) Кладовая ценностей (армирование) Монтажные схемы расположения закладных деталей для крепления витражей Чертежи основного комплекта марки ТХМ Общий данные План 1 этажа между осями 7 - 11 План 2 этажа между осями 7 - 11 План 1 этажа между осями 1 - 4 План 2 этажа между осями 1 - 4 План 1 этажа между осями 4 - 7 План 2 этажа между осями 4 - 7 Чертежи основного комплекта марки АС2 Общий данные Спецификация элементов оконных блоков и тамбуров. Вентиляционные решетки Схема расположения элементов витража и тамбуров по оси А. Узел 14 Схема расположения оконных блоков по осям А, 9 (II этаж), тамбуров по оси В и дверных блоков Узлы , 2, 3, 13 Узлы 4, 5, 6, 7, 8, 9, 10, 11, 12 |
| Разработан: | ЦНИИЭП торгово-бытовых зданий и туристских комплексов |
| Утверждён: | 30.01.1981 Госгражданстрой (Gosgrazhdanstroy 38) |


























































