Скачать Серия 1.117-13 Выпуск 1-1. Панели групп ЦР1; ЦР4; ЦР5 толщиной 300, 350, 400 мм. Рабочие чертежиДата актуализации: 01.01.2021 Серия 1.117-13
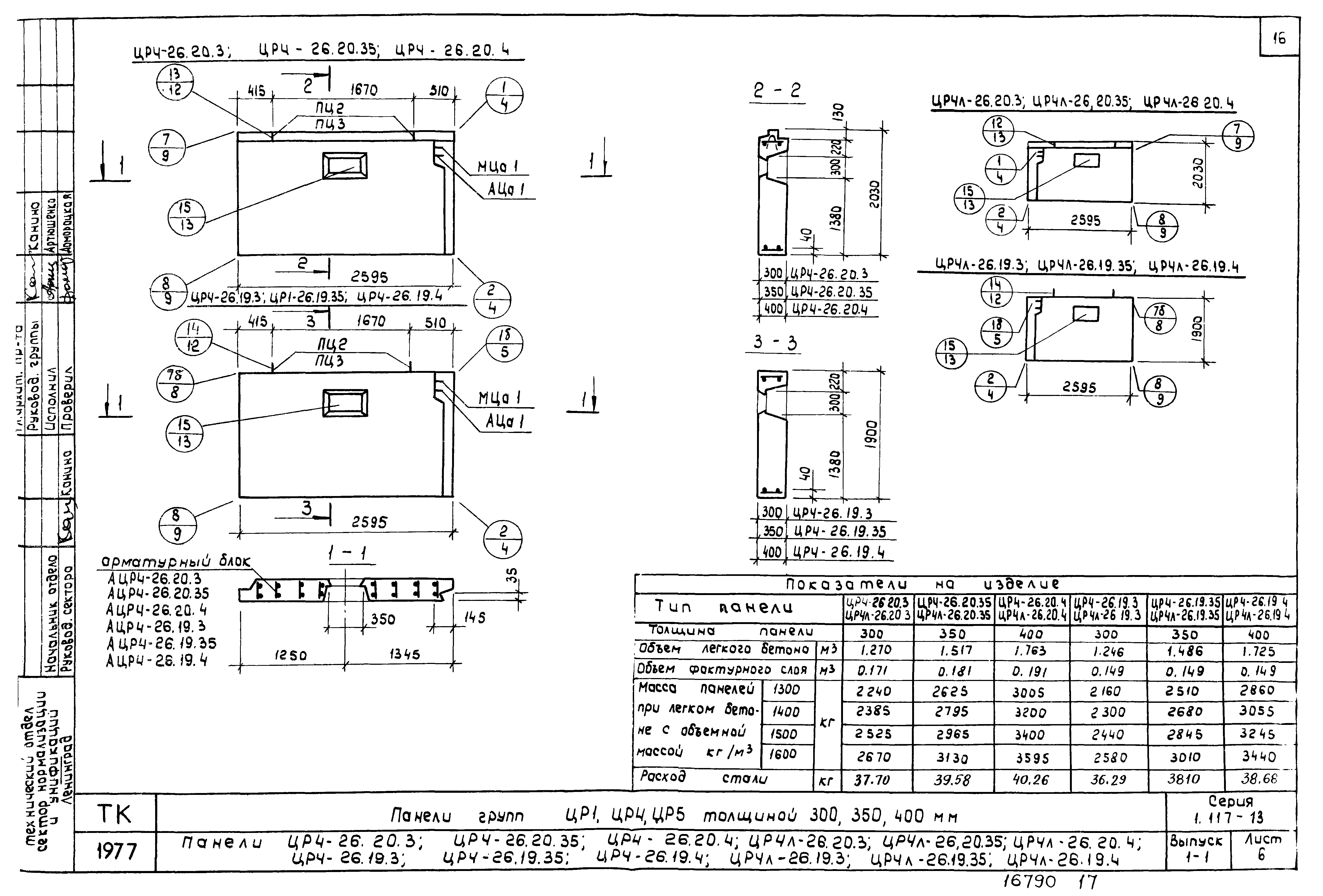
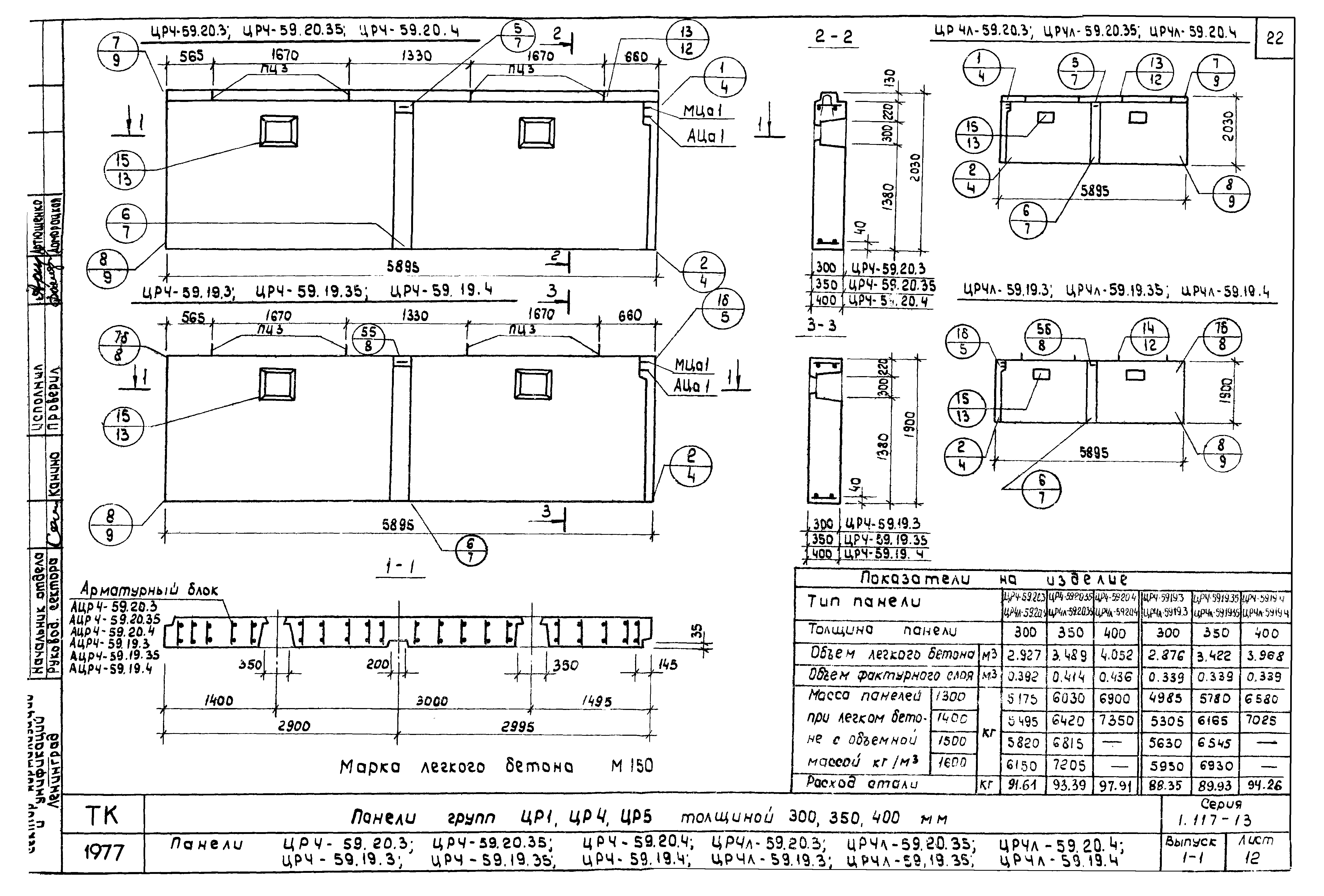
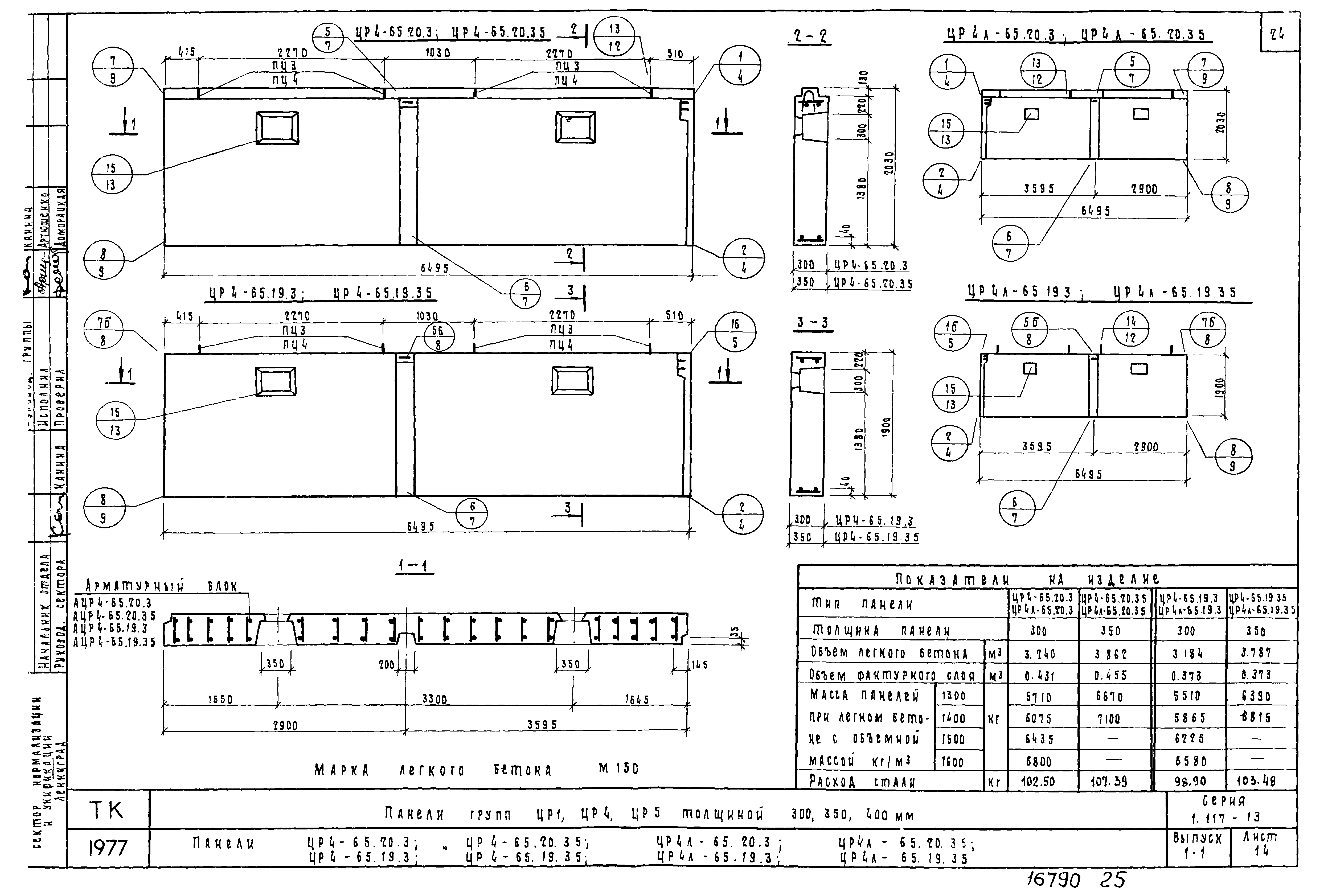
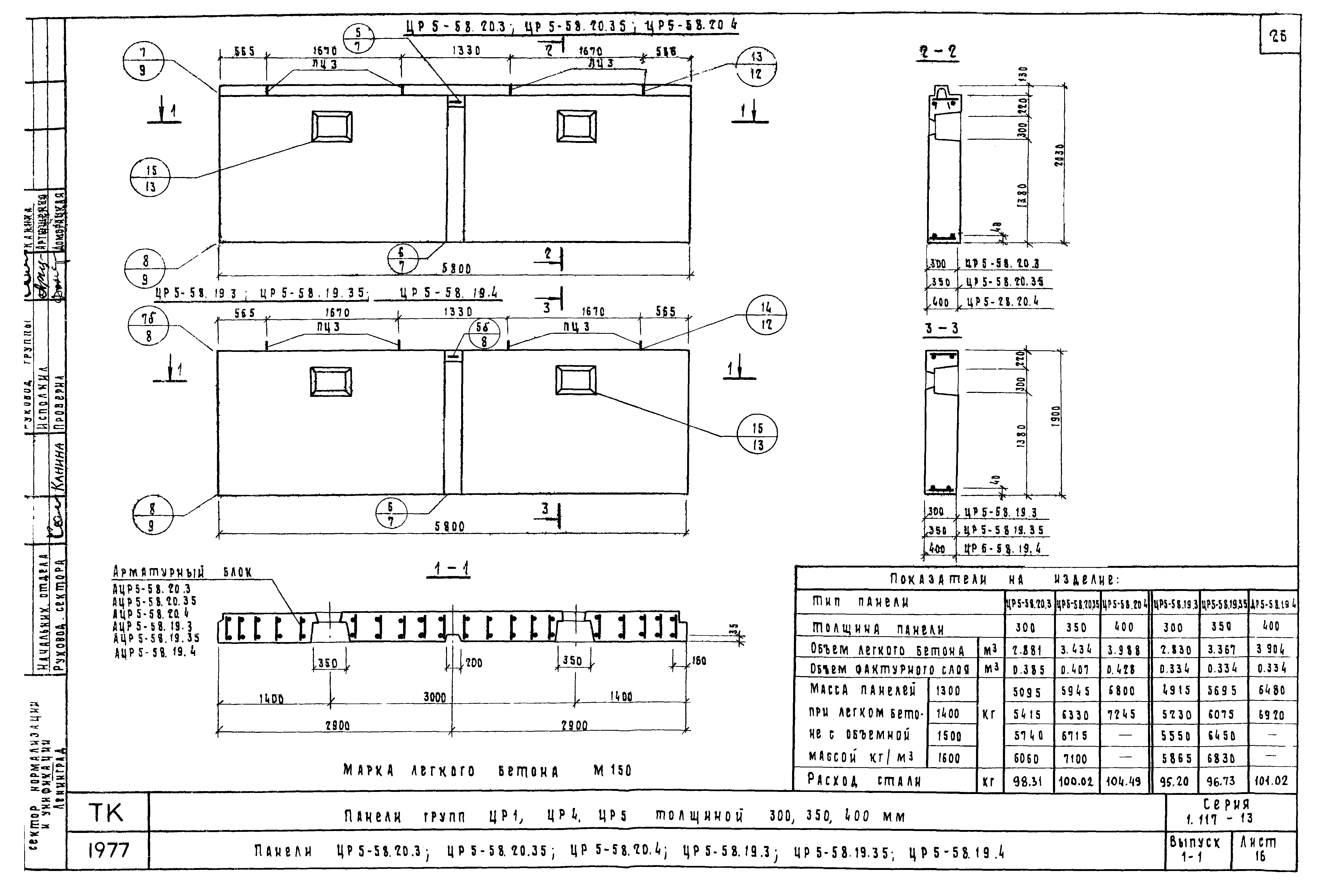
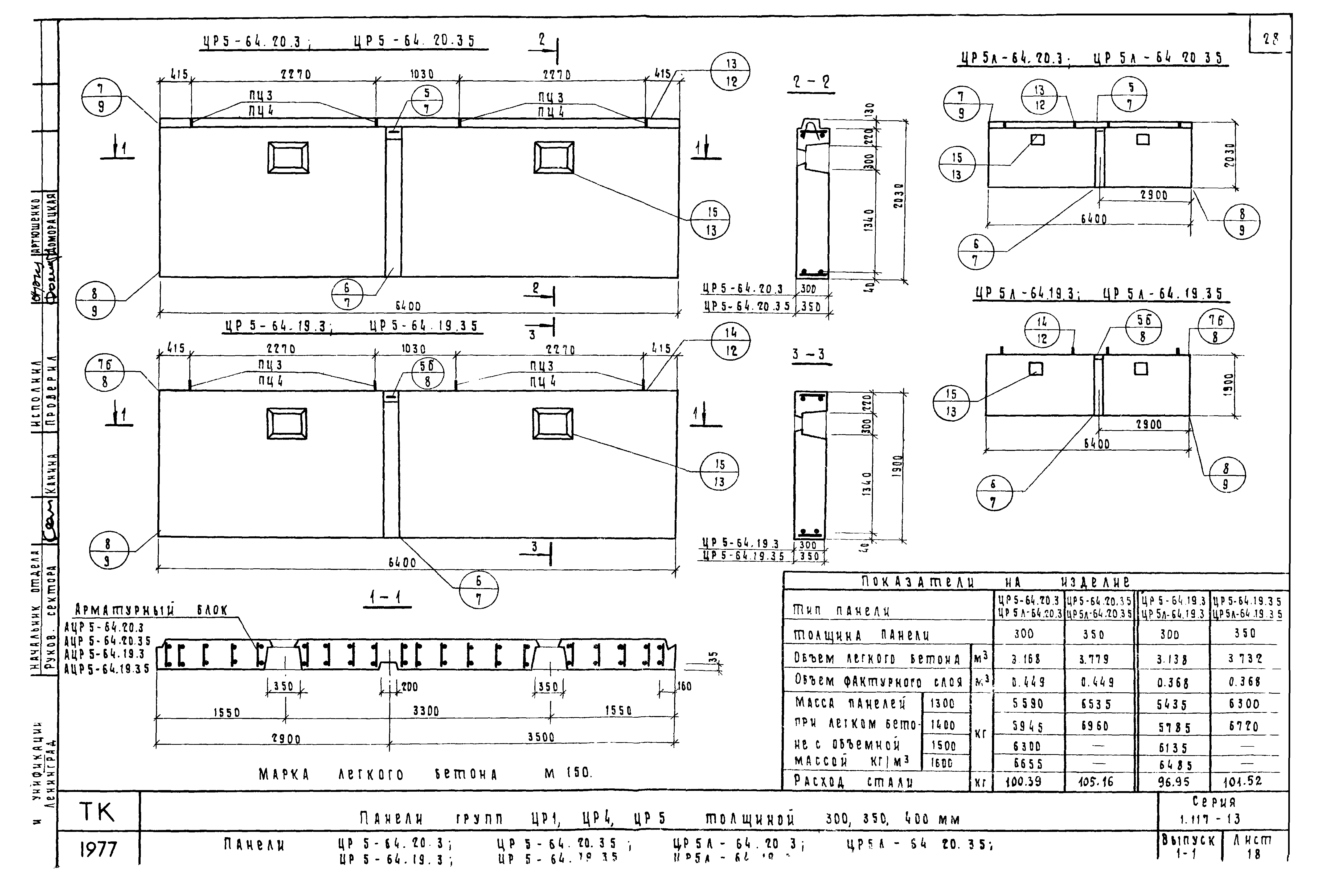
Выпуск 1-1. Панели групп ЦР1; ЦР4; ЦР5 толщиной 300, 350, 400 мм. Рабочие чертежи| Обозначение: | Серия 1.117-13 | | Обозначение англ: | Series 1.117-13 | | Статус: | заменен | | Название рус.: | Выпуск 1-1. Панели групп ЦР1; ЦР4; ЦР5 толщиной 300, 350, 400 мм. Рабочие чертежи | | Дата добавления в базу: | 01.09.2013 | | Дата актуализации: | 01.01.2021 | | Дата введения: | 01.07.1980 | | Область применения: | В выпуске 1-1 серии 1.117-13 представлены рабочие чертежи наружных цокольных стеновых панелей групп ЦР1, ЦР4, ЦР5 толщиной 300, 350, 400 мм. Выпуском следует пользоваться совместно с выпусками 0-1, 2-1, 2-2, 2-3 настоящей серии | | Разработан: | ЛенЗНИИЭП Госгражданстроя
| | Утверждён: | 06.06.1980 Госгражданстрой (Gosgrazhdanstroy 150)
| | Чем заменён: | | | Нормативные ссылки: | |
                                 
|