Скачать Серия 1.431-8 Выпуск 0. Материалы для проектирования

Дата актуализации: 01.01.2021

Серия 1.431-8

Выпуск 0. Материалы для проектирования

Обозначение: Серия 1.431-8
Обозначение англ: Series 1.431-8
Статус:не действует
Название рус.:Выпуск 0. Материалы для проектирования
Дата добавления в базу:01.09.2013
Дата актуализации:01.01.2021
Дата введения:01.03.1974
Дата окончания срока действия:01.10.1977
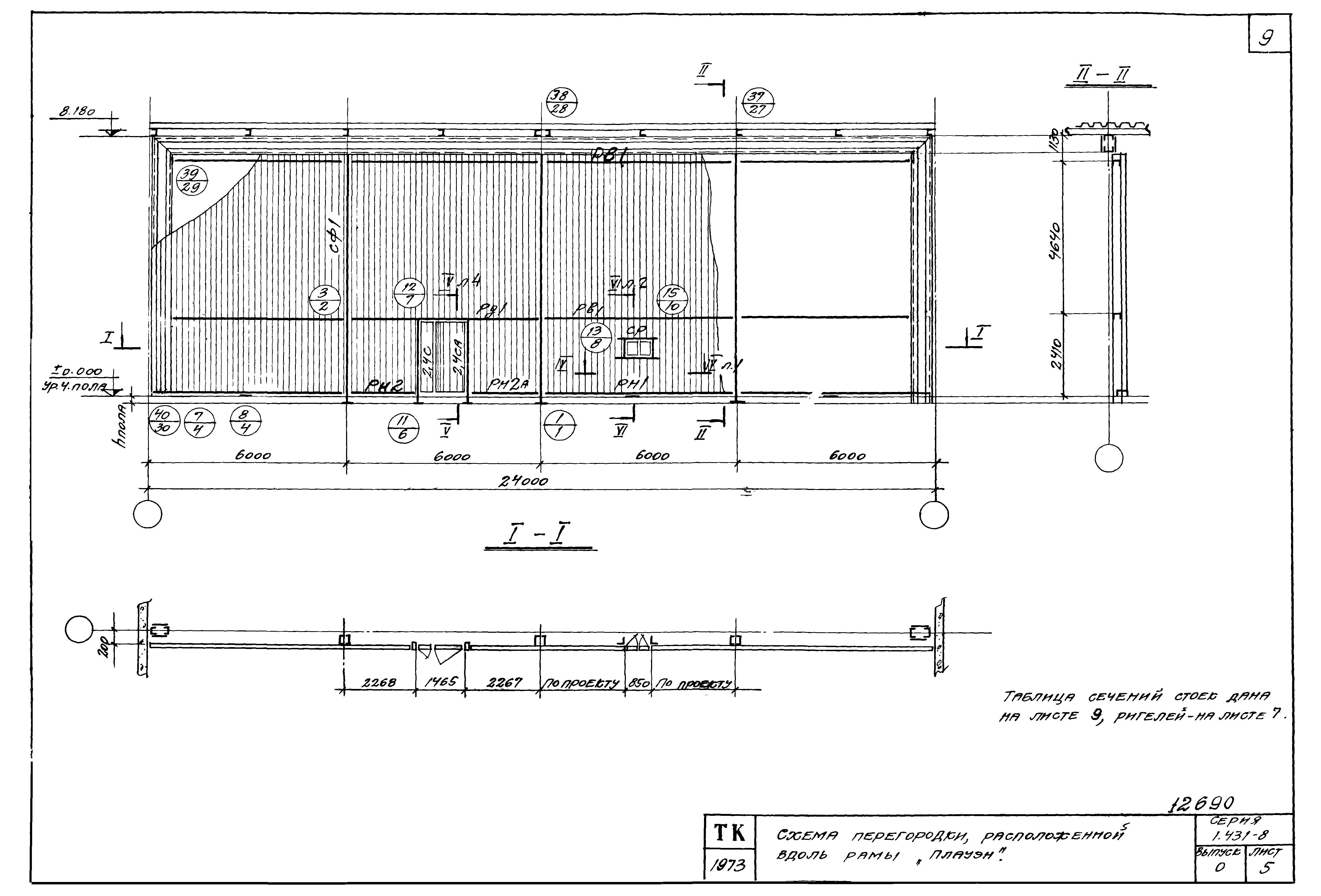
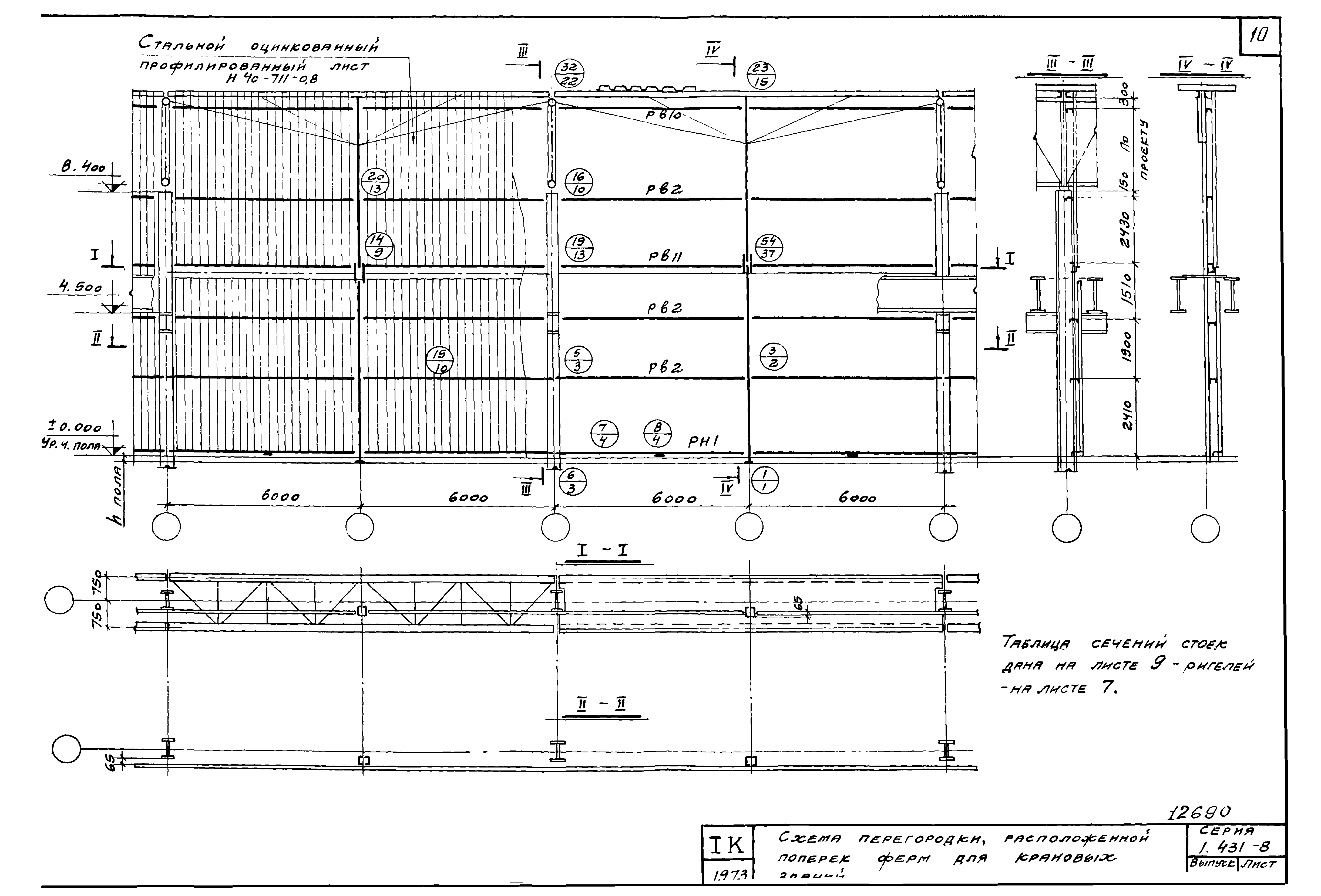
Область применения:Перегородки предназначены для одноэтажных производственных зданий с высотой до 10.8 м
Разработан: Промстройпроект
Утверждён:29.11.1973 Госстрой СССР (Государственный комитет Совета Министров СССР по делам строительства) (USSR Gosstroy 222)
Нормативные ссылки:
Серия 1.431-8Серия 1.431-8Серия 1.431-8Серия 1.431-8Серия 1.431-8Серия 1.431-8Серия 1.431-8Серия 1.431-8Серия 1.431-8Серия 1.431-8Серия 1.431-8Серия 1.431-8Серия 1.431-8Серия 1.431-8Серия 1.431-8Серия 1.431-8Серия 1.431-8Серия 1.431-8Серия 1.431-8Серия 1.431-8Серия 1.431-8