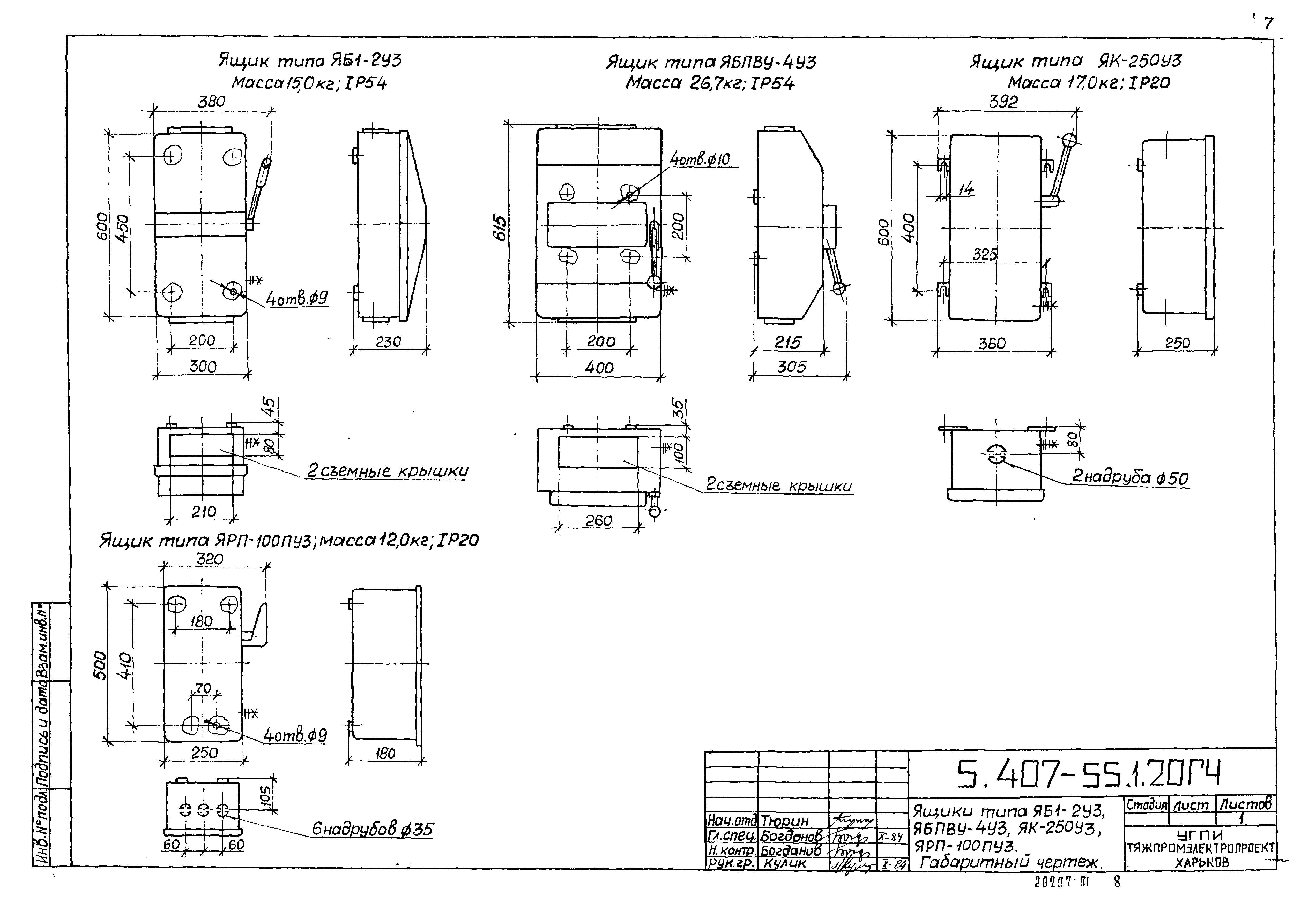
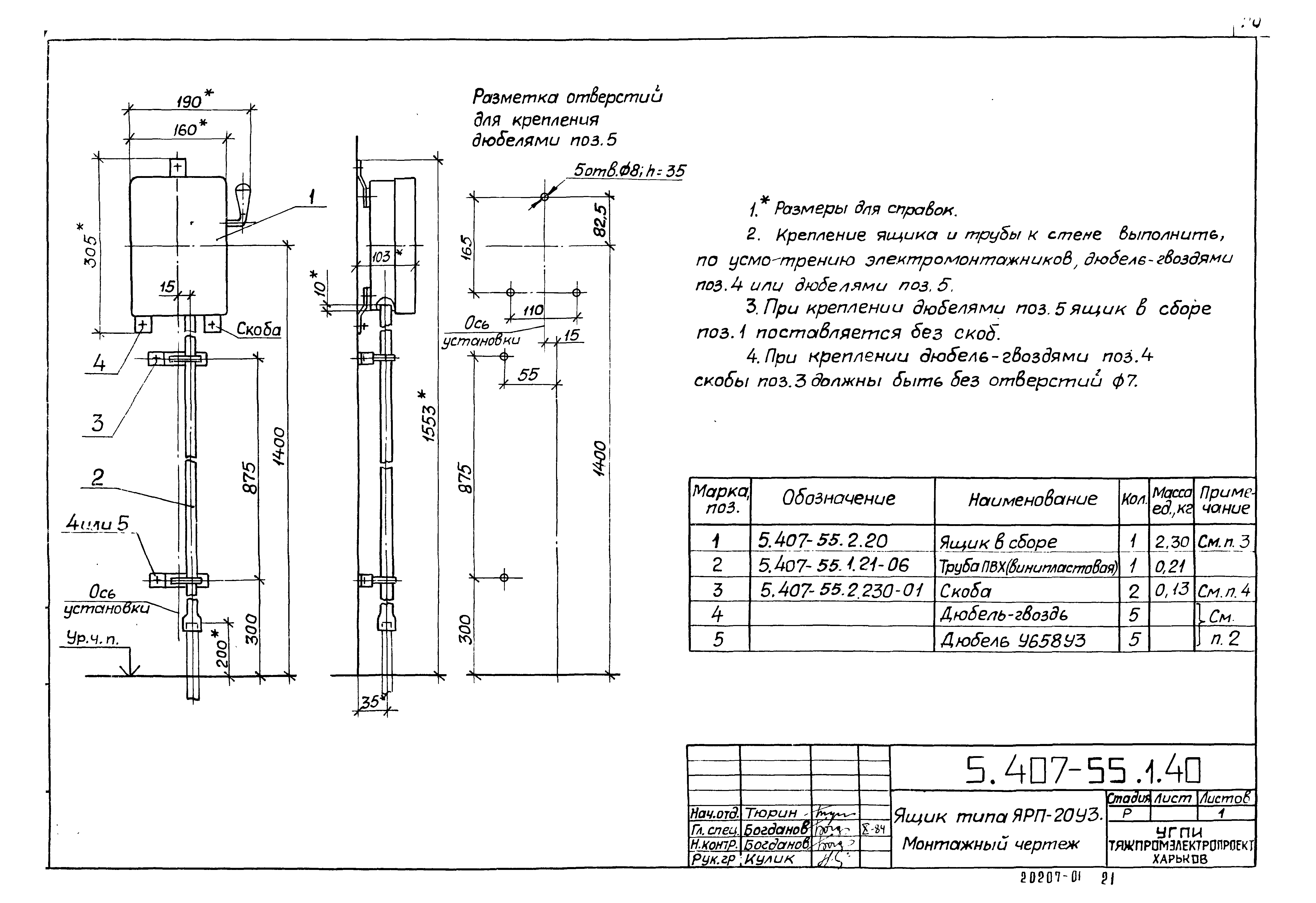
Скачать Серия 5.407-55 Выпуск 1. Монтажные чертежиДата актуализации: 01.01.2021
|
| Обозначение: | Серия 5.407-55 |
| Обозначение англ: | Series 5.407-55 |
| Статус: | не действует |
| Название рус.: | Выпуск 1. Монтажные чертежи |
| Дата добавления в базу: | 01.09.2013 |
| Дата актуализации: | 01.01.2021 |
| Дата окончания срока действия: | 01.06.1990 |
| Разработан: | Тяжпромэлектропроект Укрглавэлектромонтаж Минмонтажспецстроя УССР |
| Утверждён: | 19.11.1984 Минмонтажспецстрой СССР (USSR Minmontazhspetsstroy ) |
| Чем заменён: |












































