Скачать Типовой проект 294-3-56.90 Альбом 1. Пояснительная записка. Архитектурные решения. Технологическое оборудование. Технология пищеблокаДата актуализации: 01.01.2021
|
| Обозначение: | Типовой проект 294-3-56.90 |
| Обозначение англ: | 294-3-56.90 |
| Статус: | не определен законодательством |
| Название рус.: | Альбом 1. Пояснительная записка. Архитектурные решения. Технологическое оборудование. Технология пищеблока |
| Дата добавления в базу: | 01.09.2013 |
| Дата актуализации: | 01.01.2021 |
| Дата введения: | 30.11.1990 |
| Дата окончания срока действия: | 30.06.2003 |
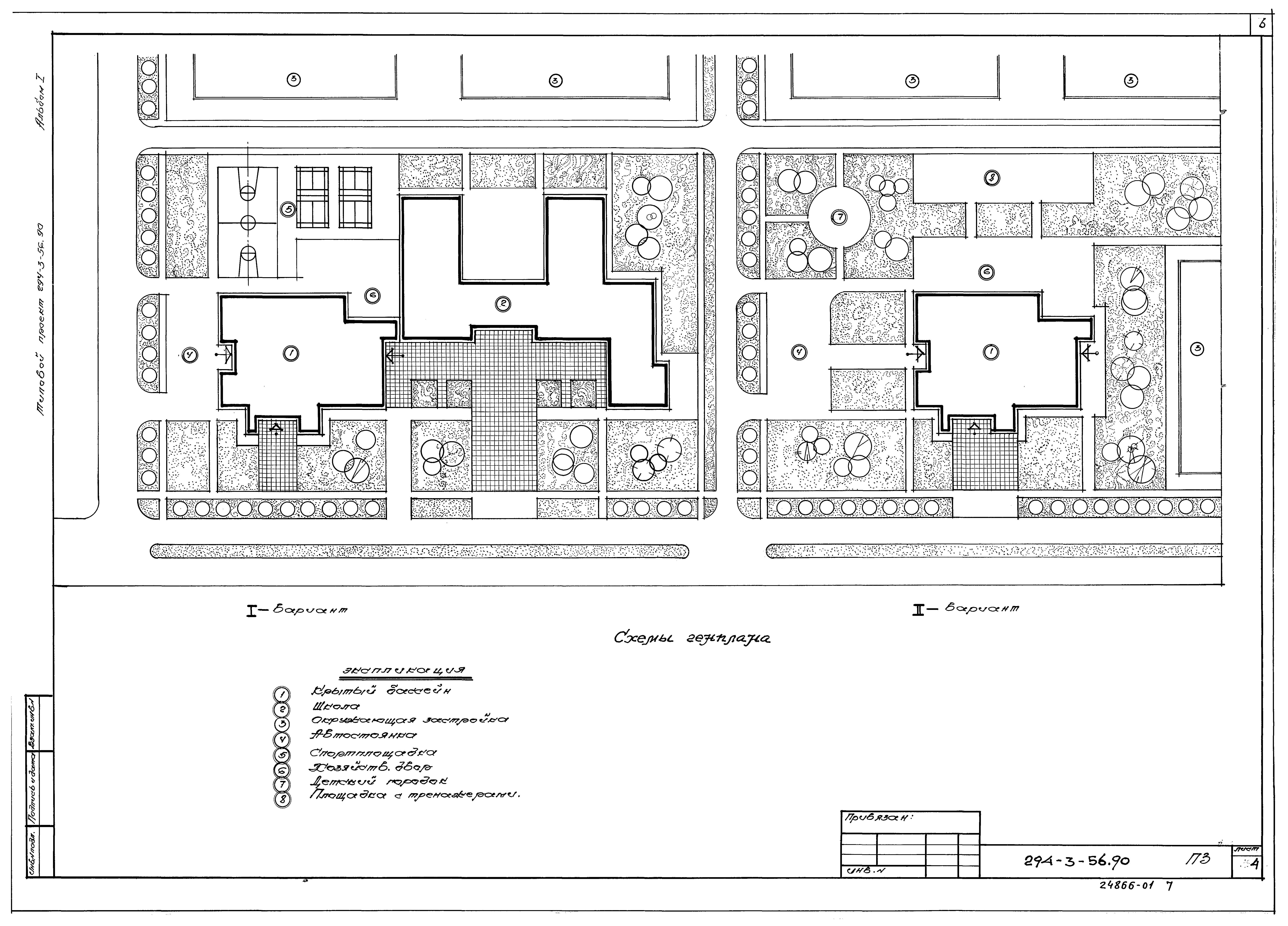
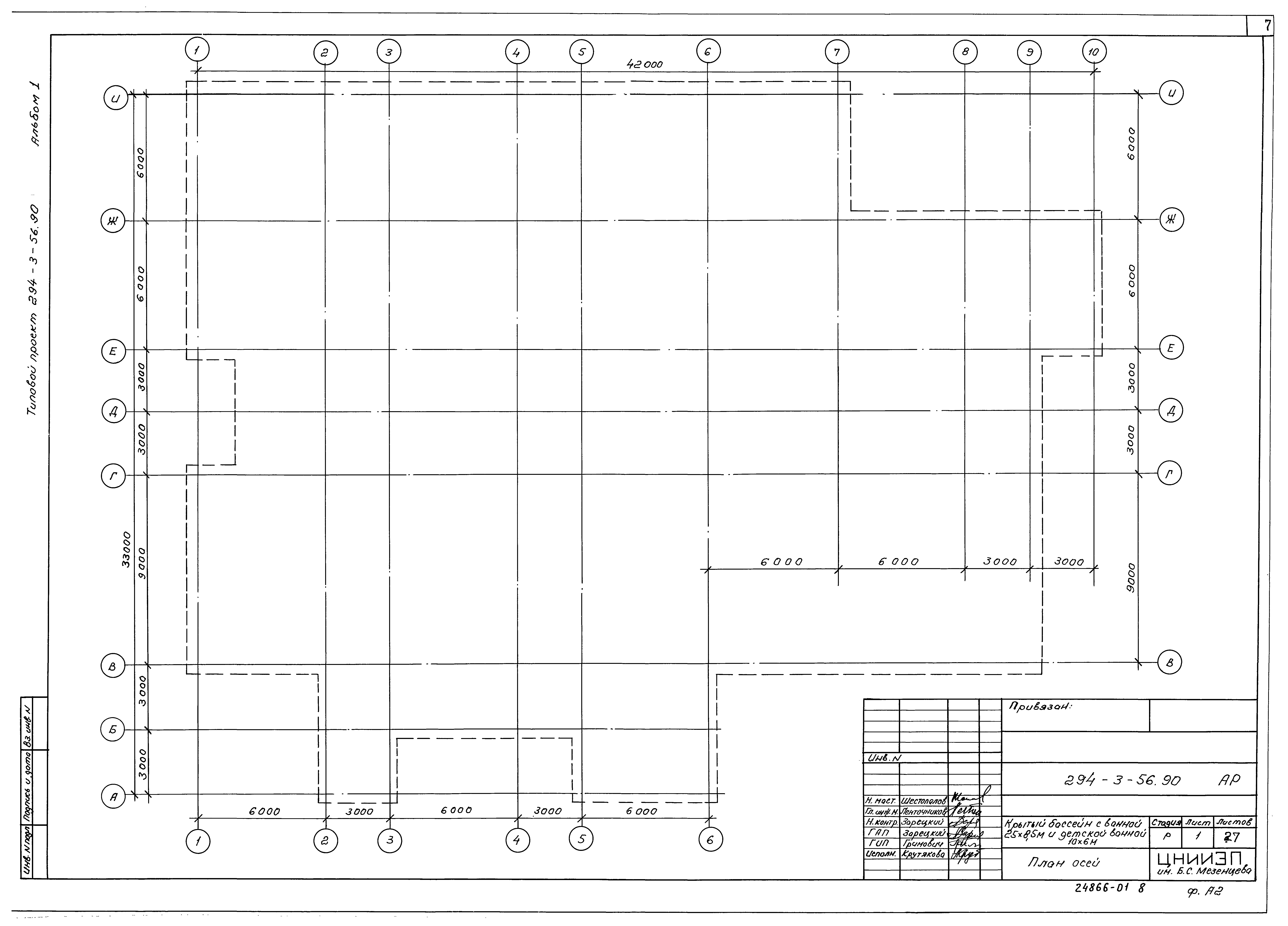
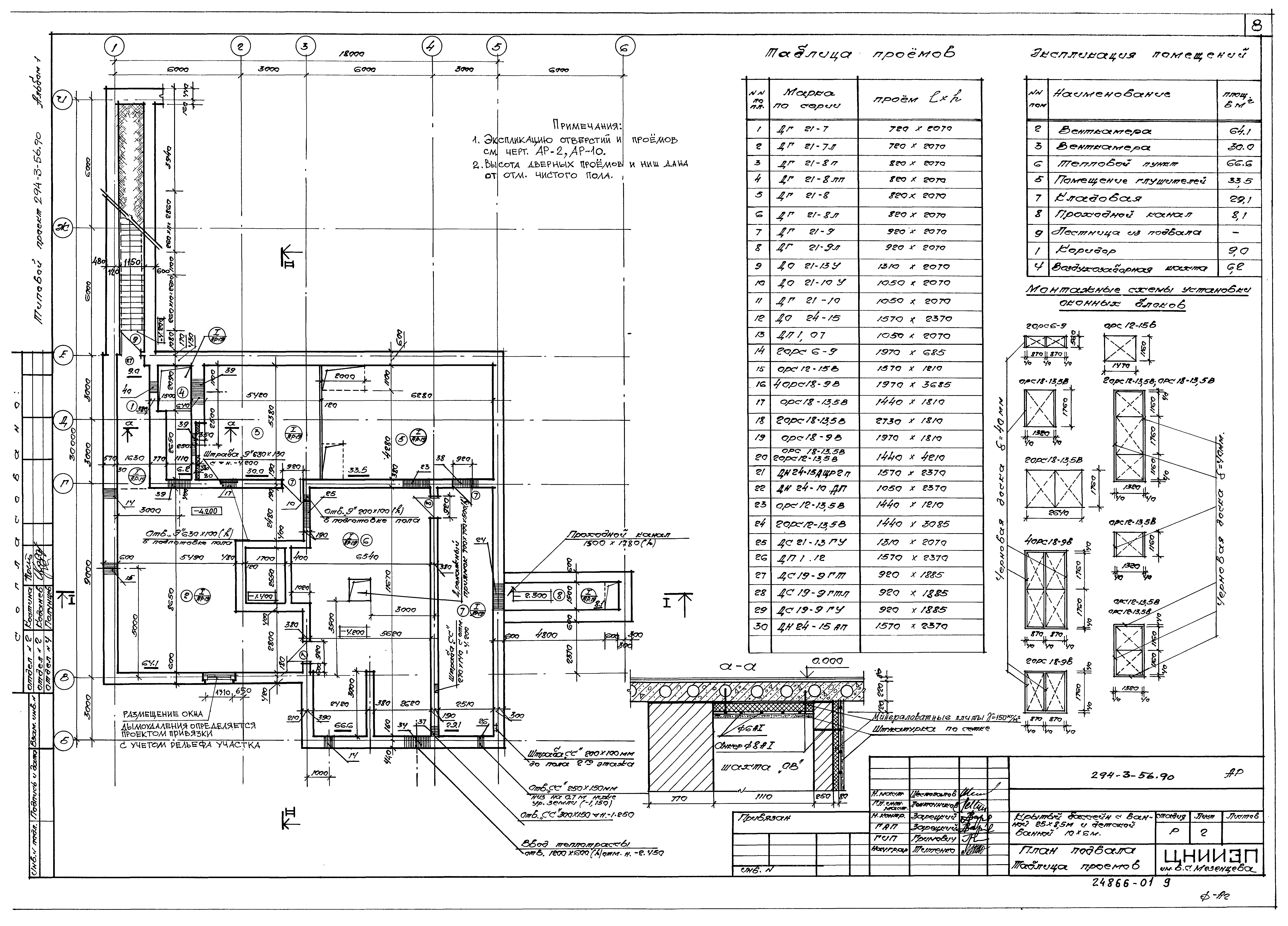
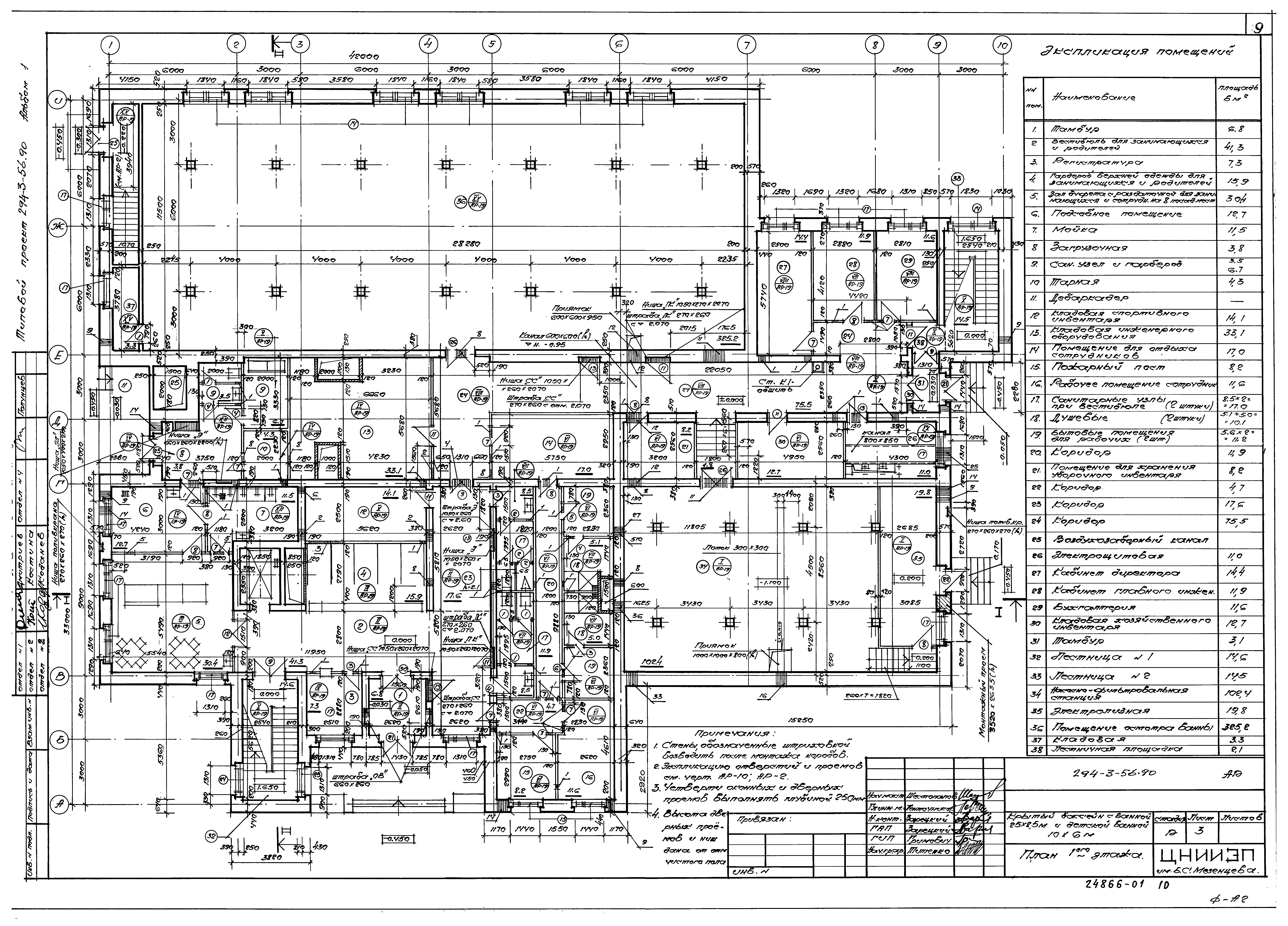
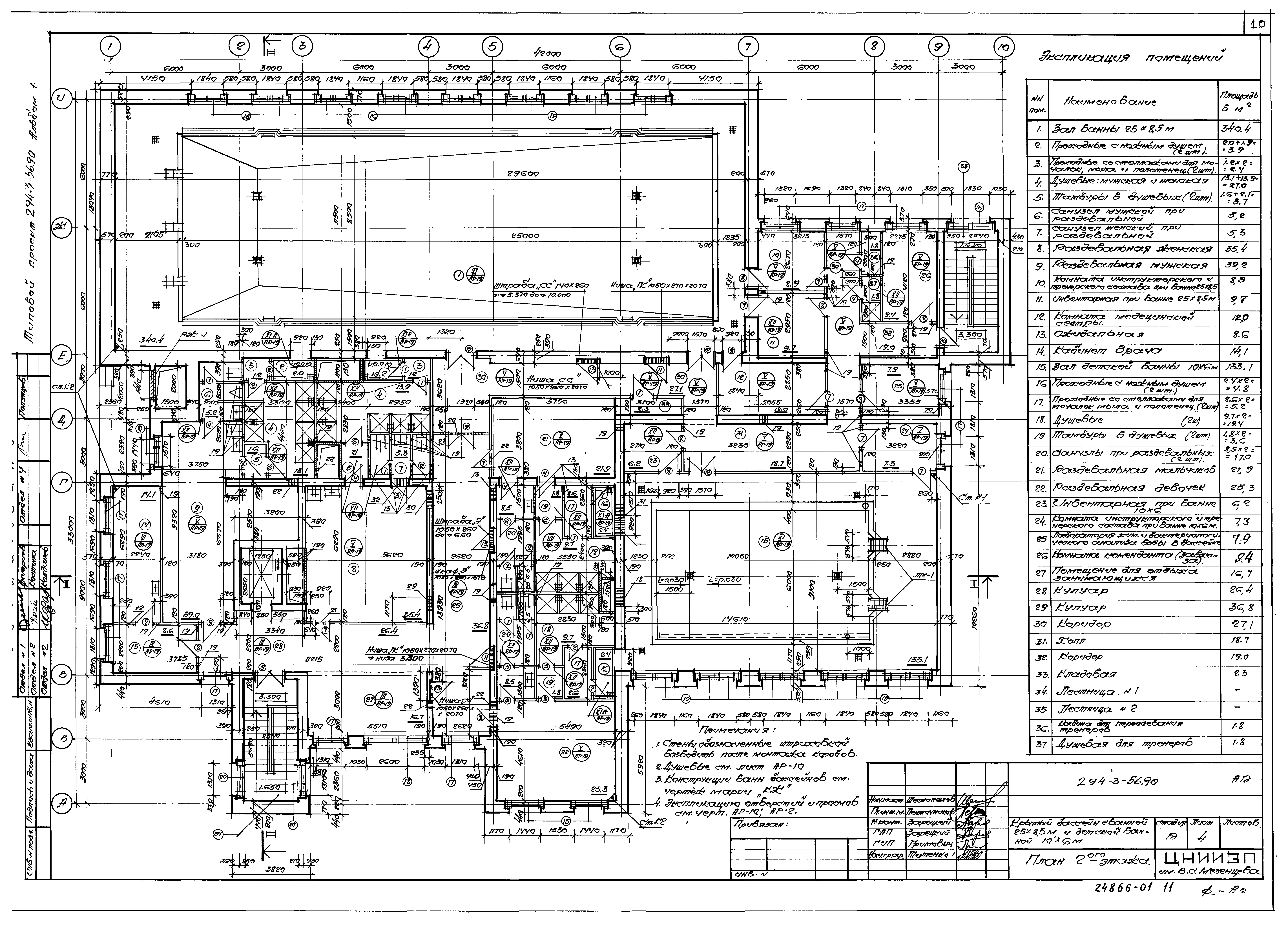
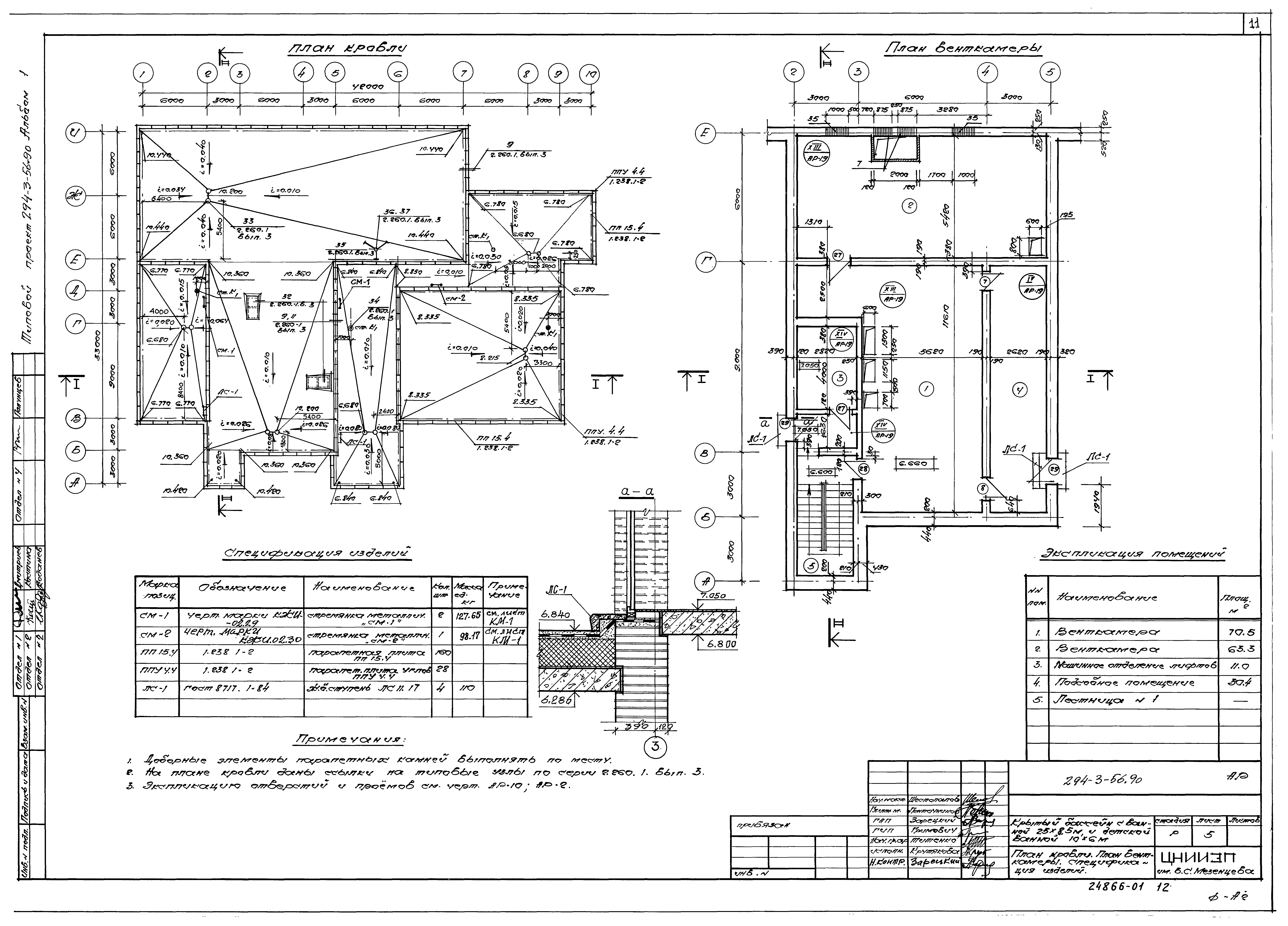
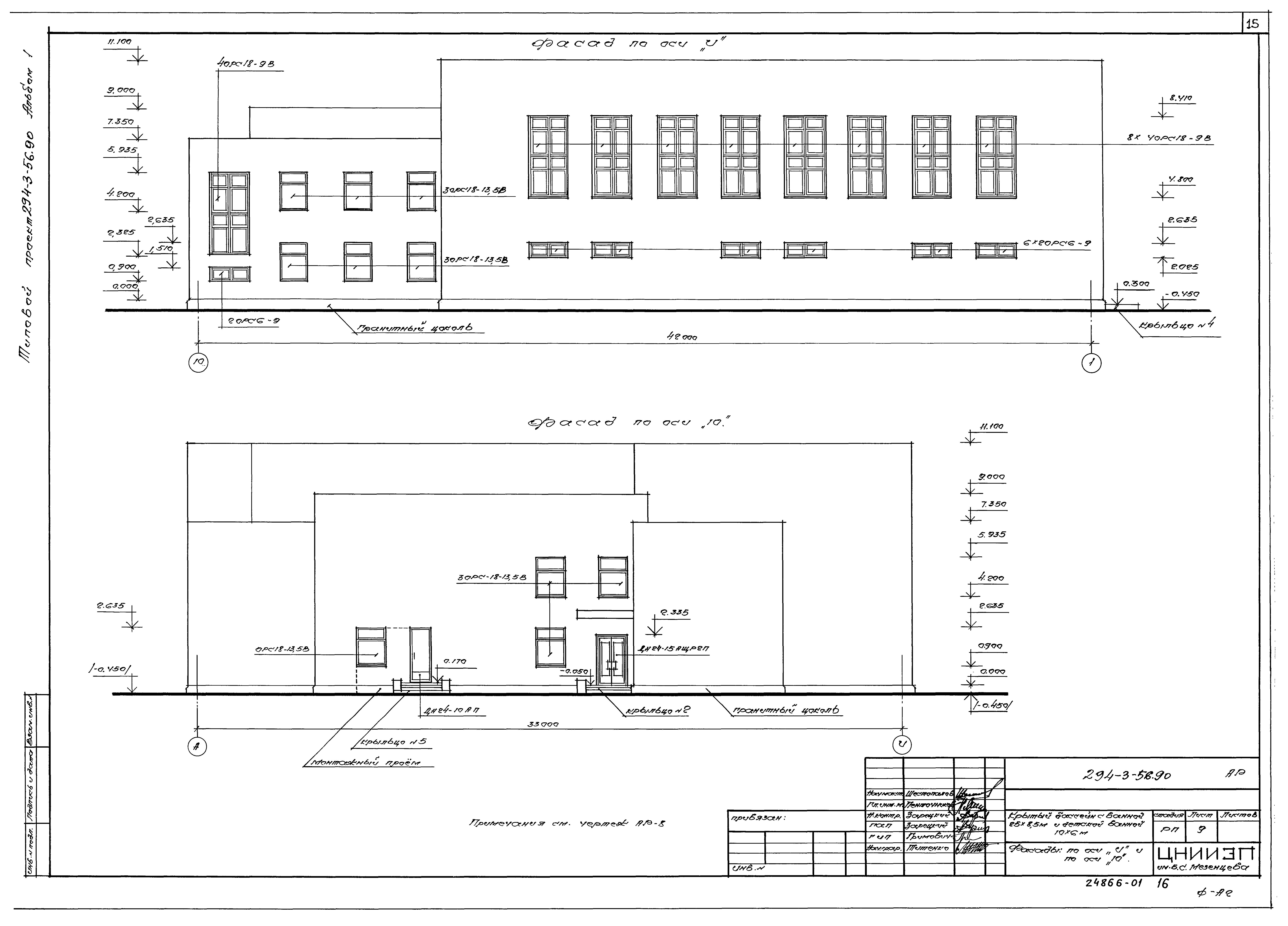
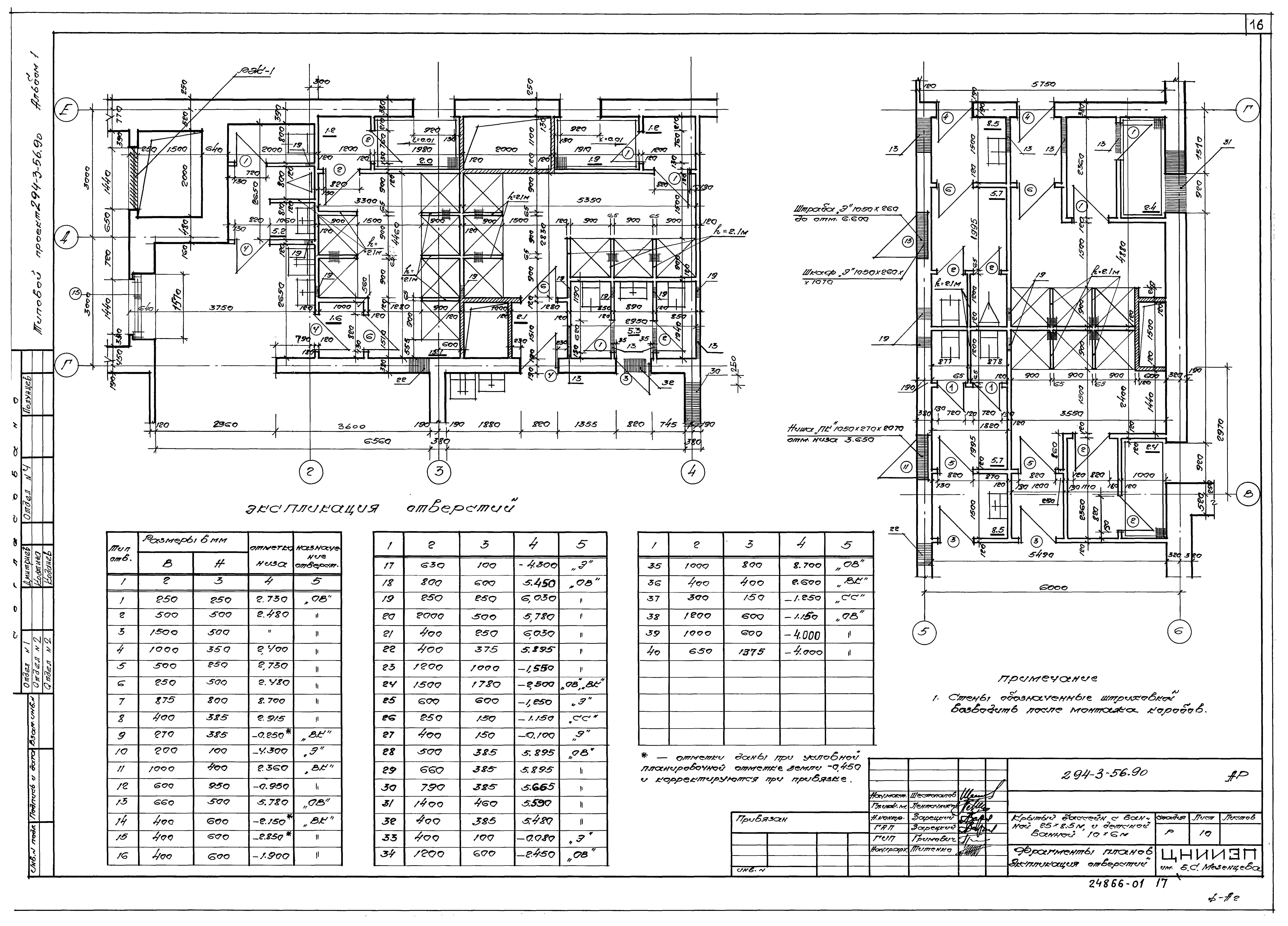
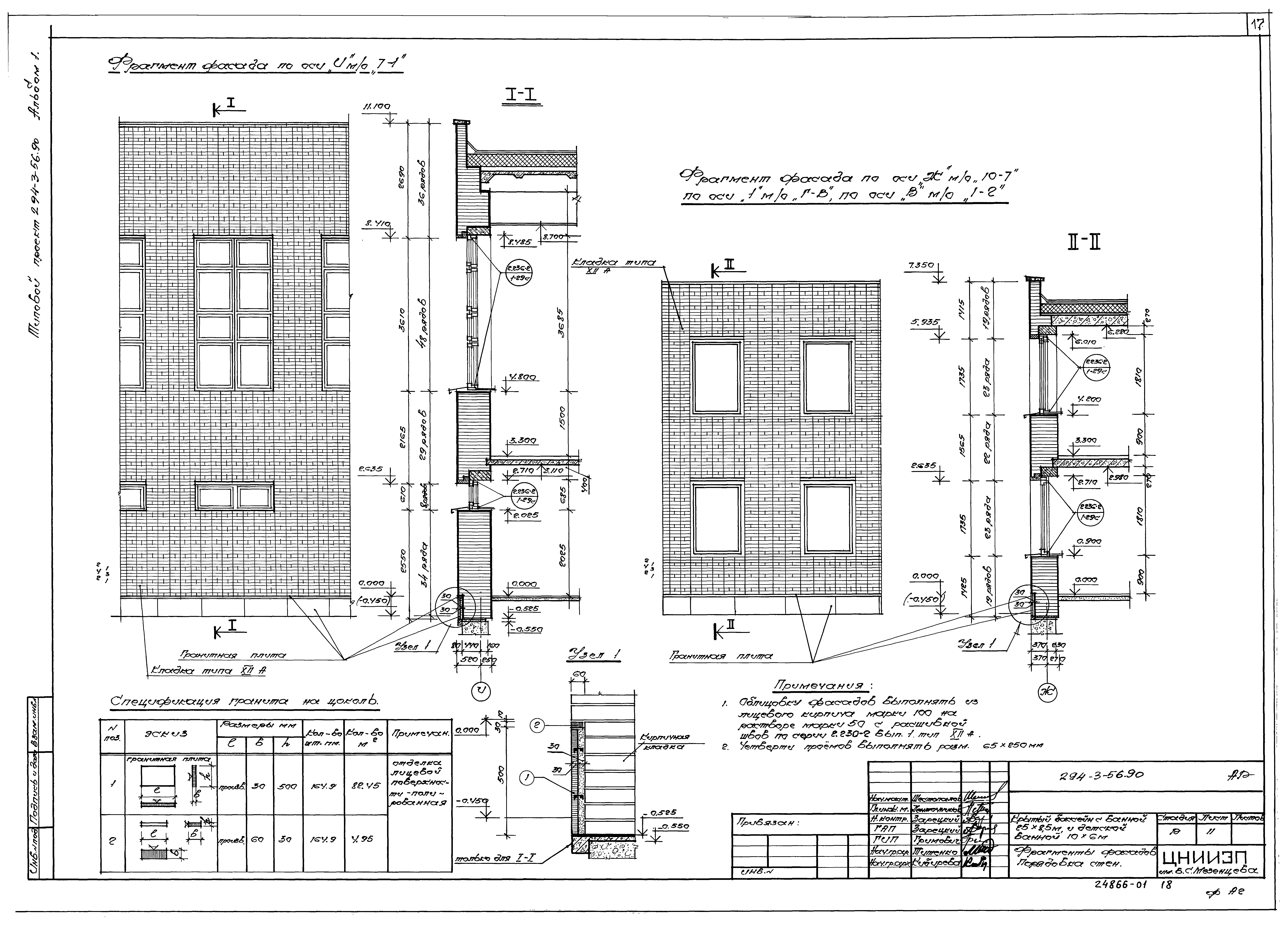
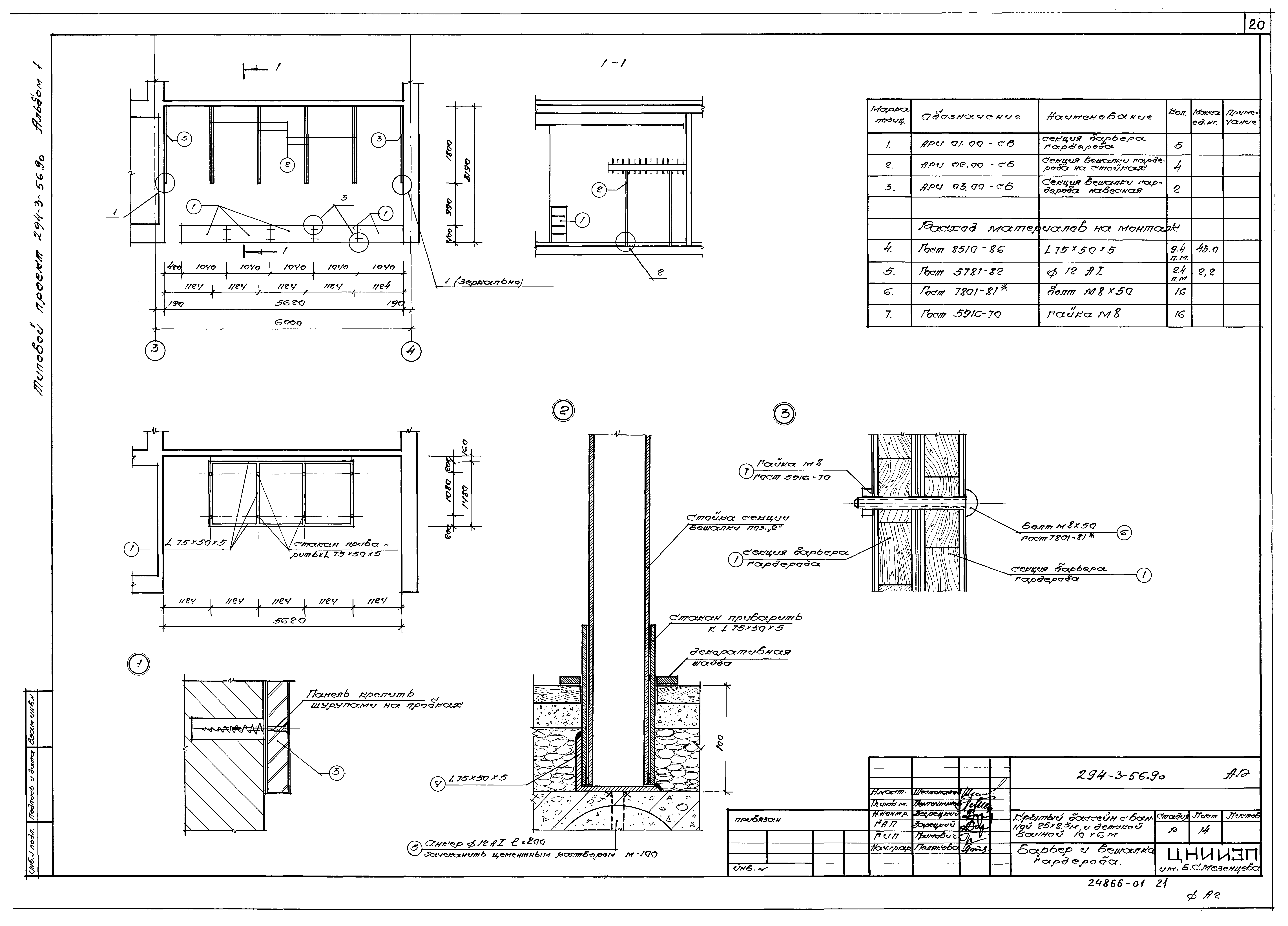
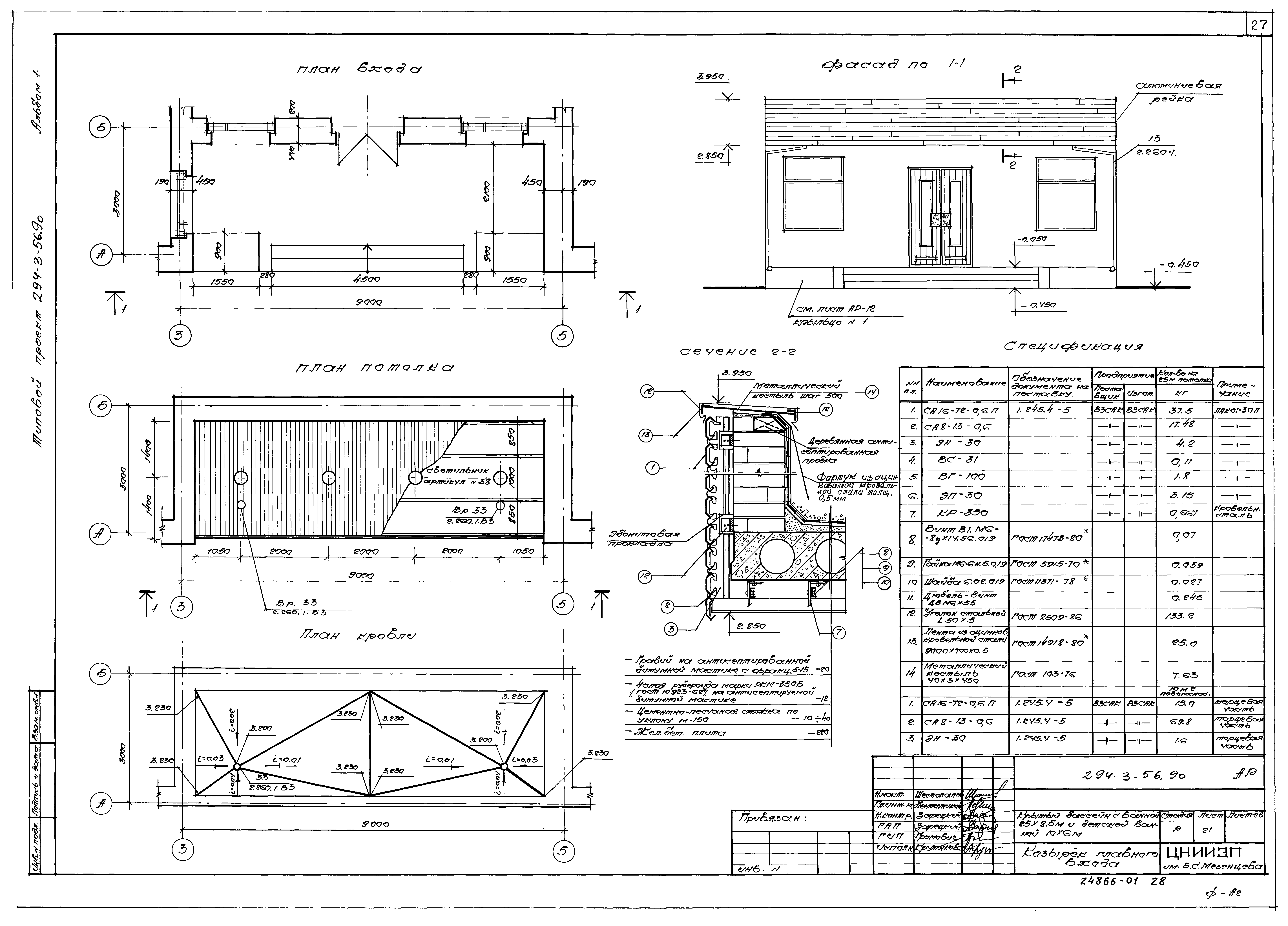
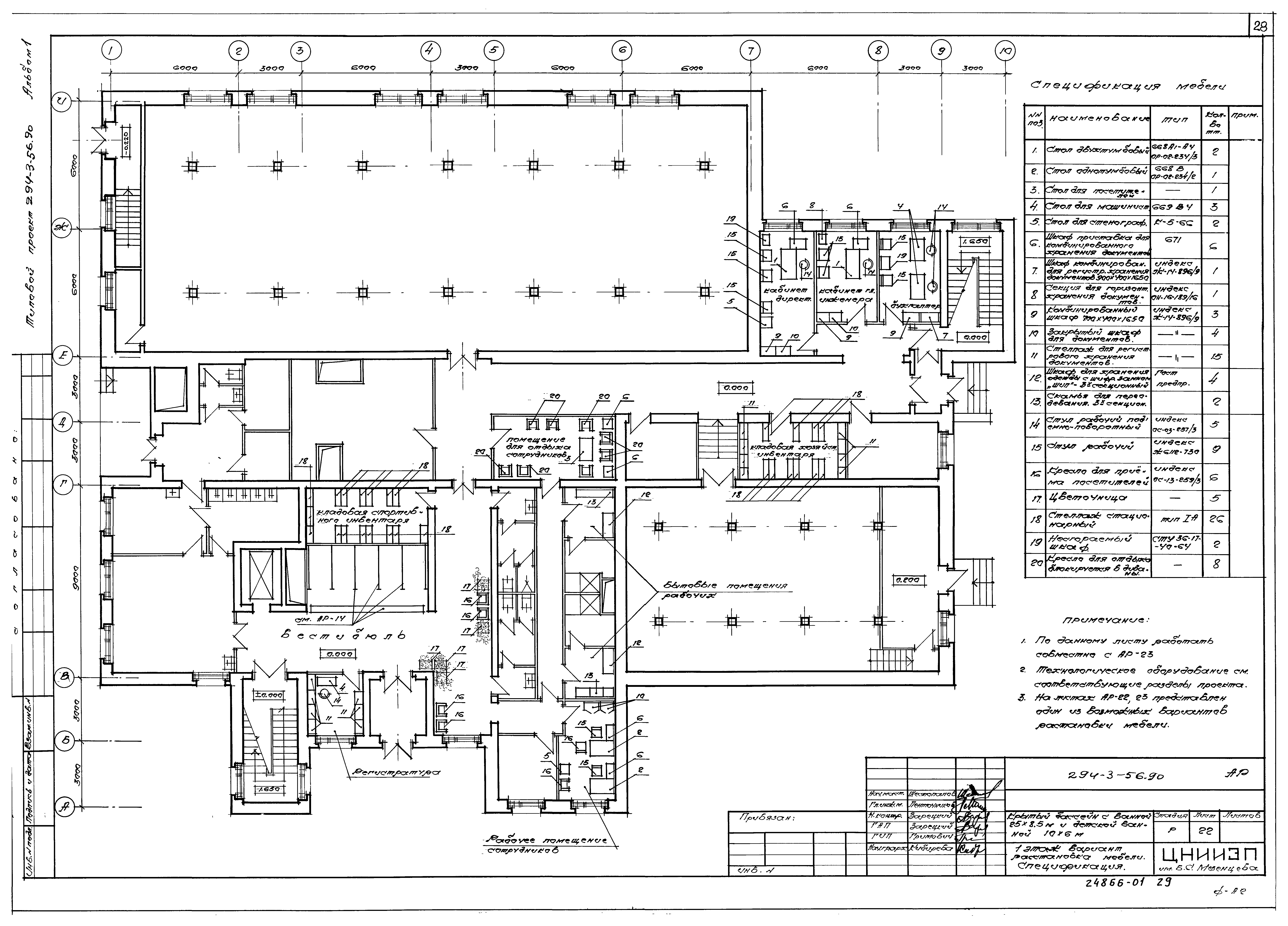
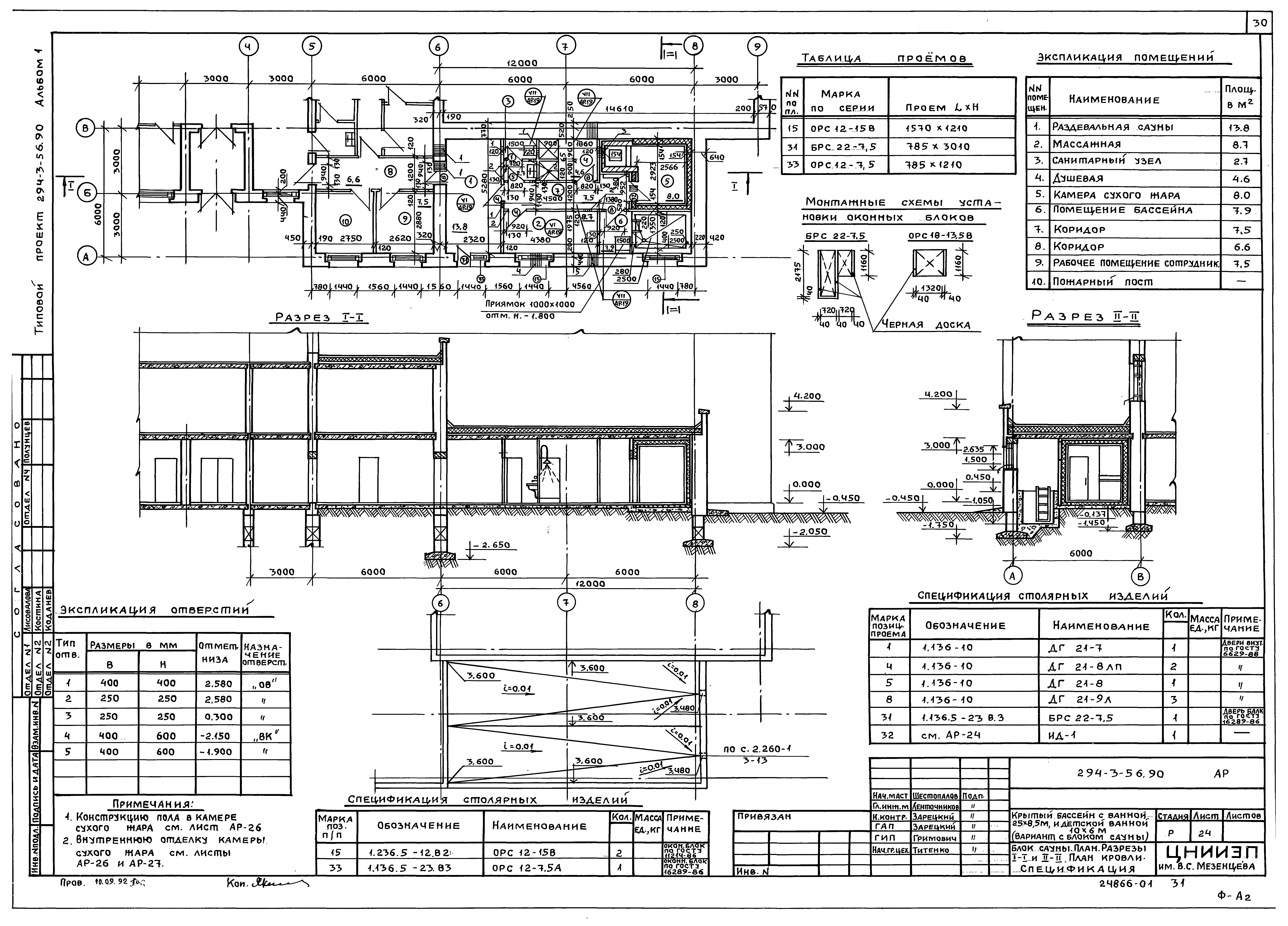
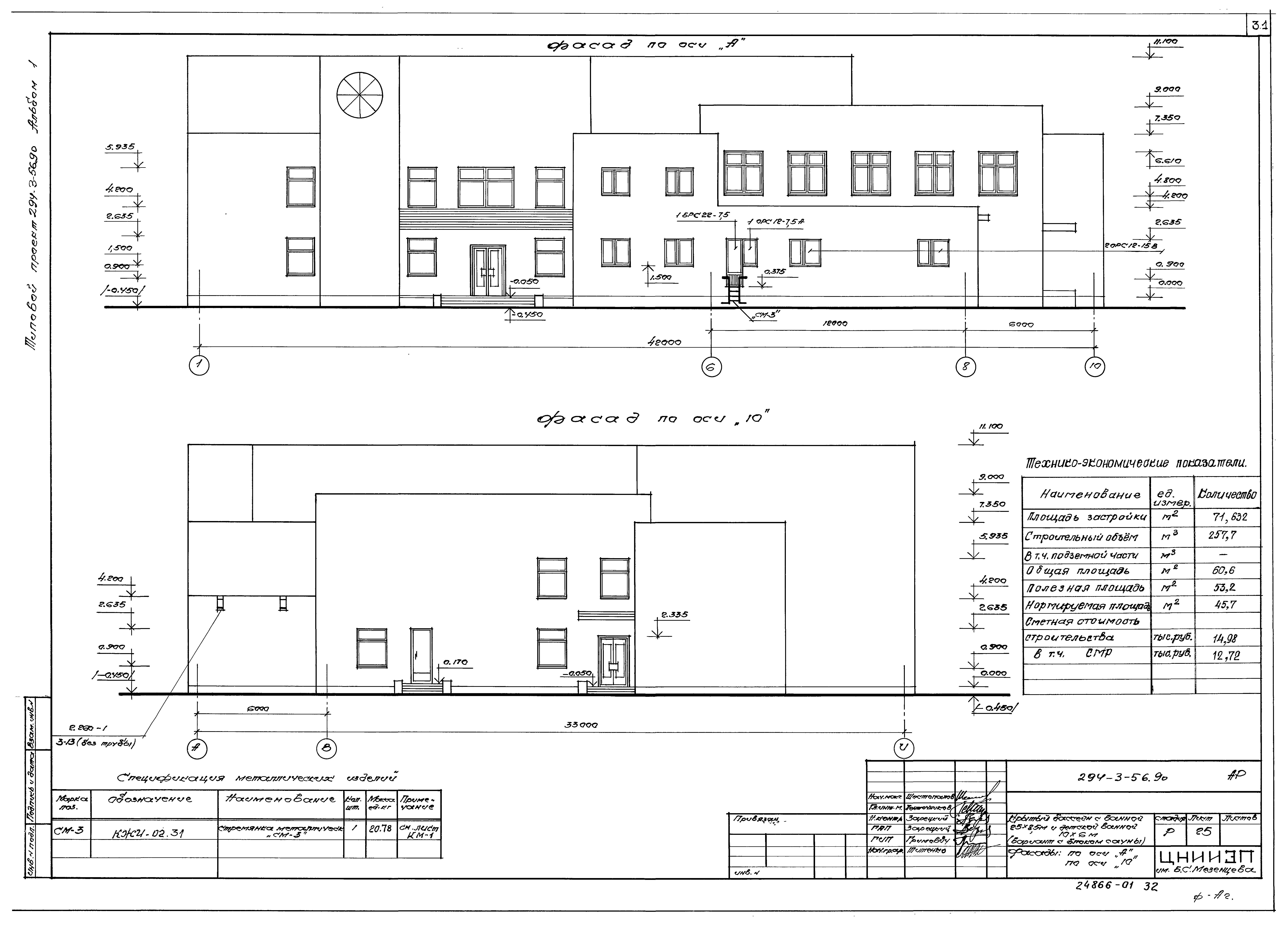
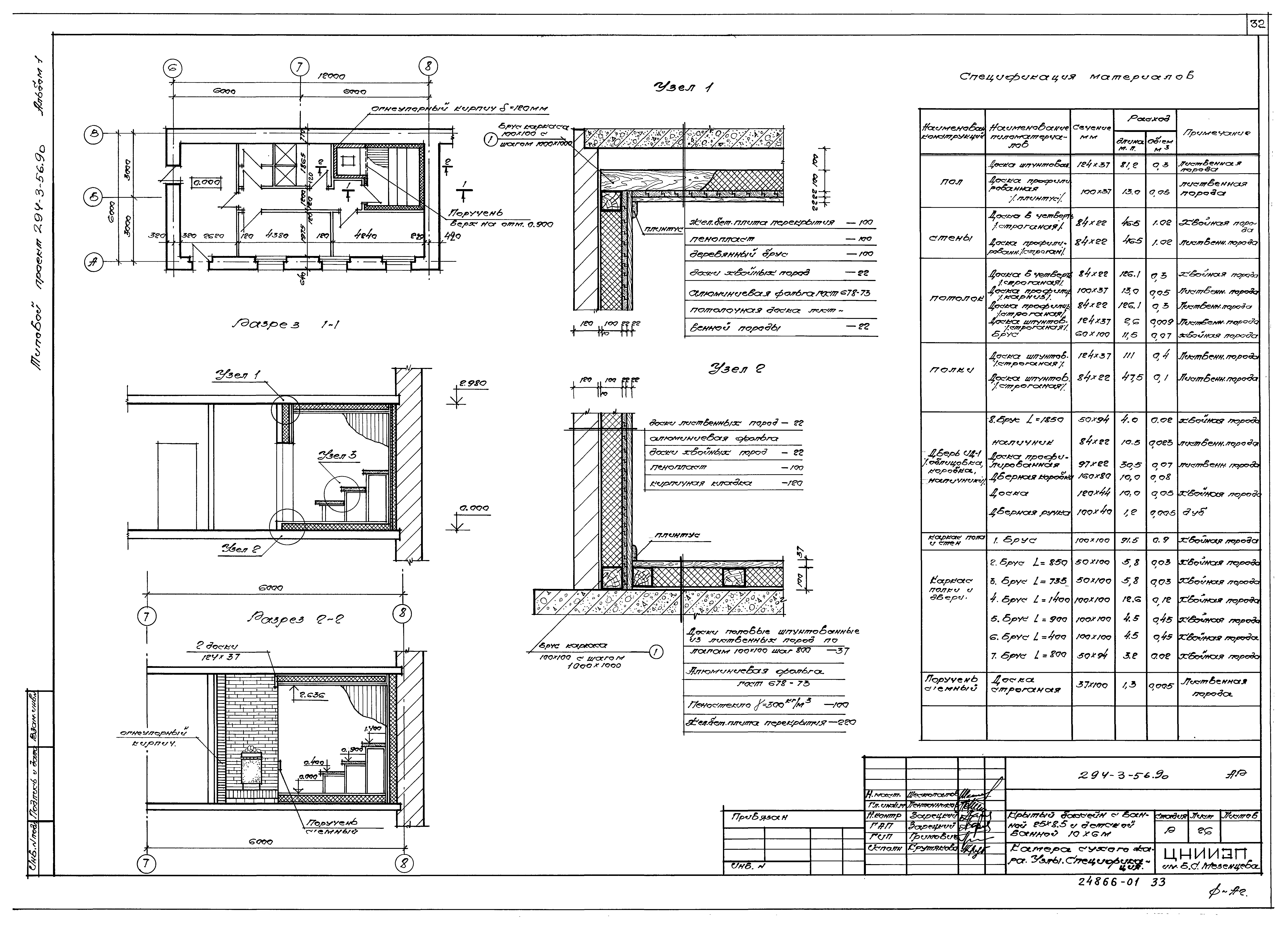
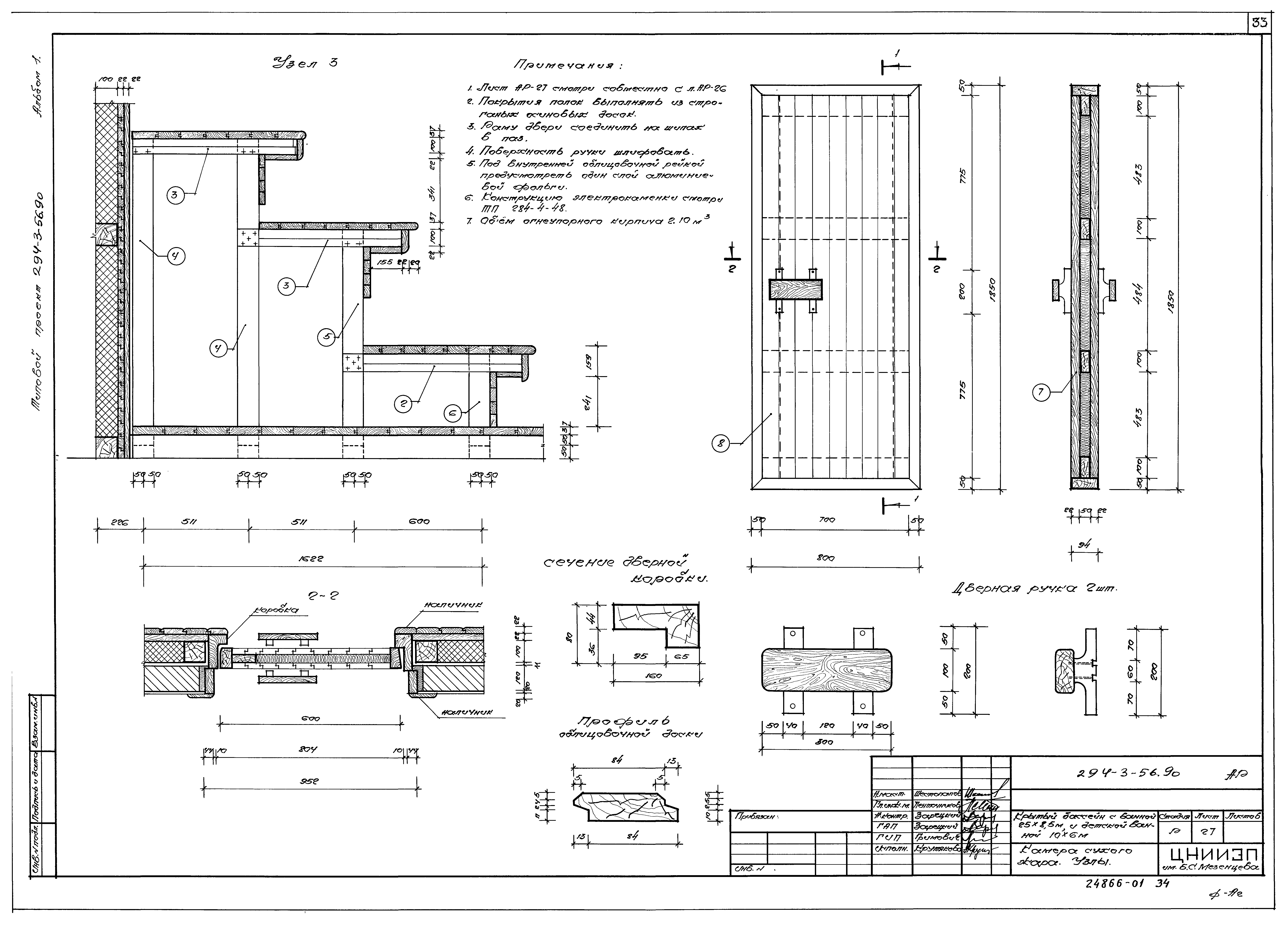
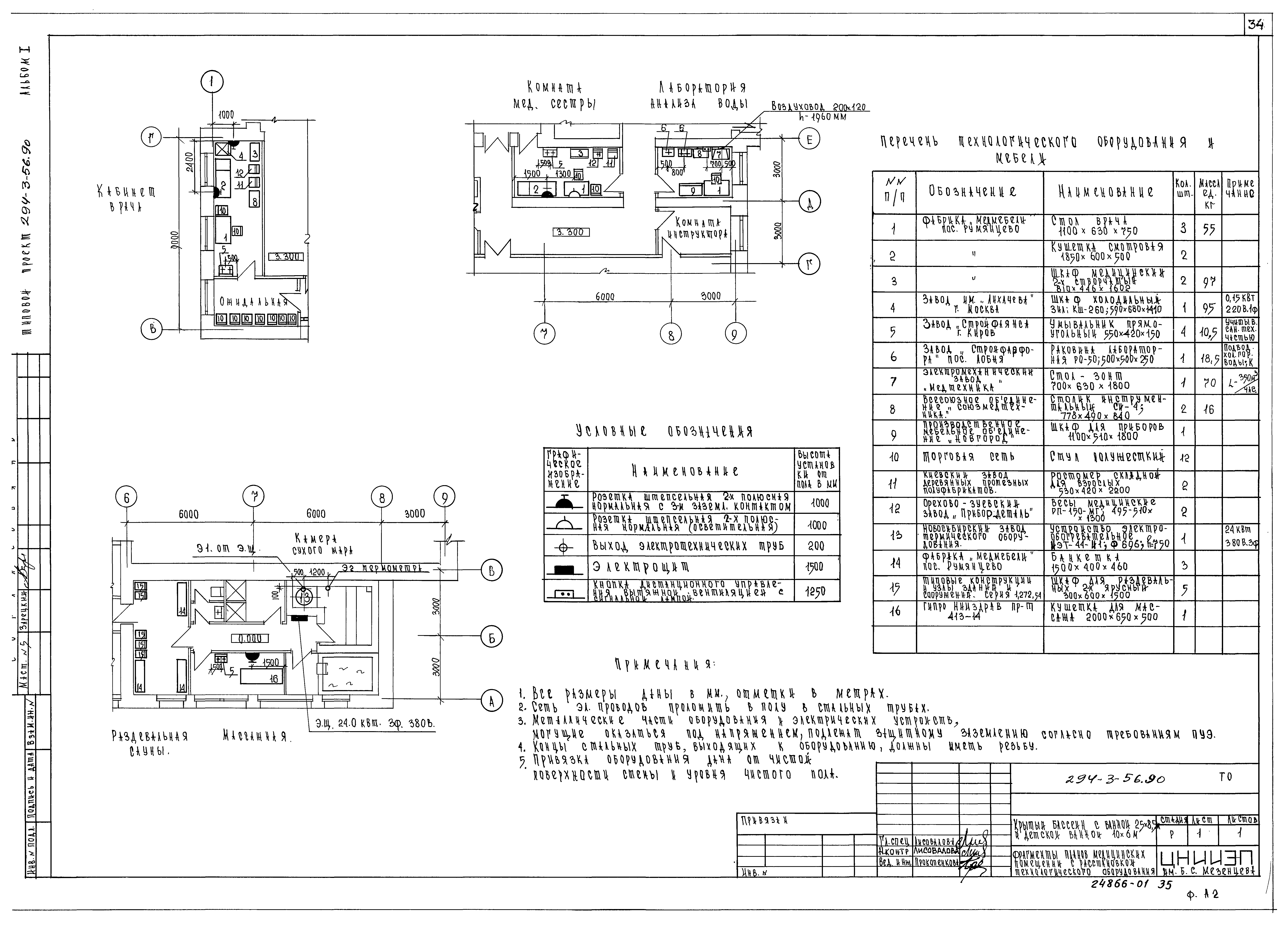
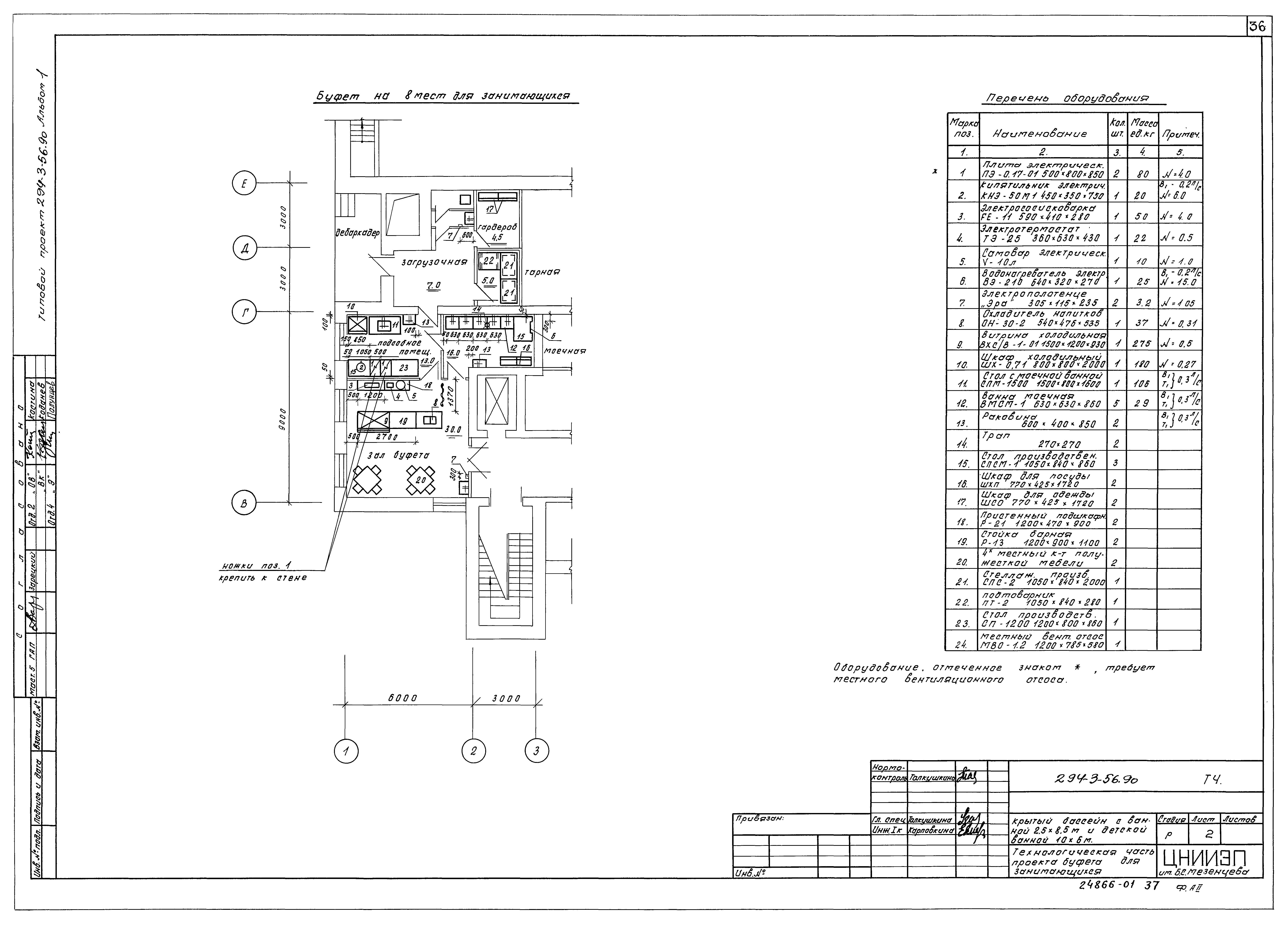
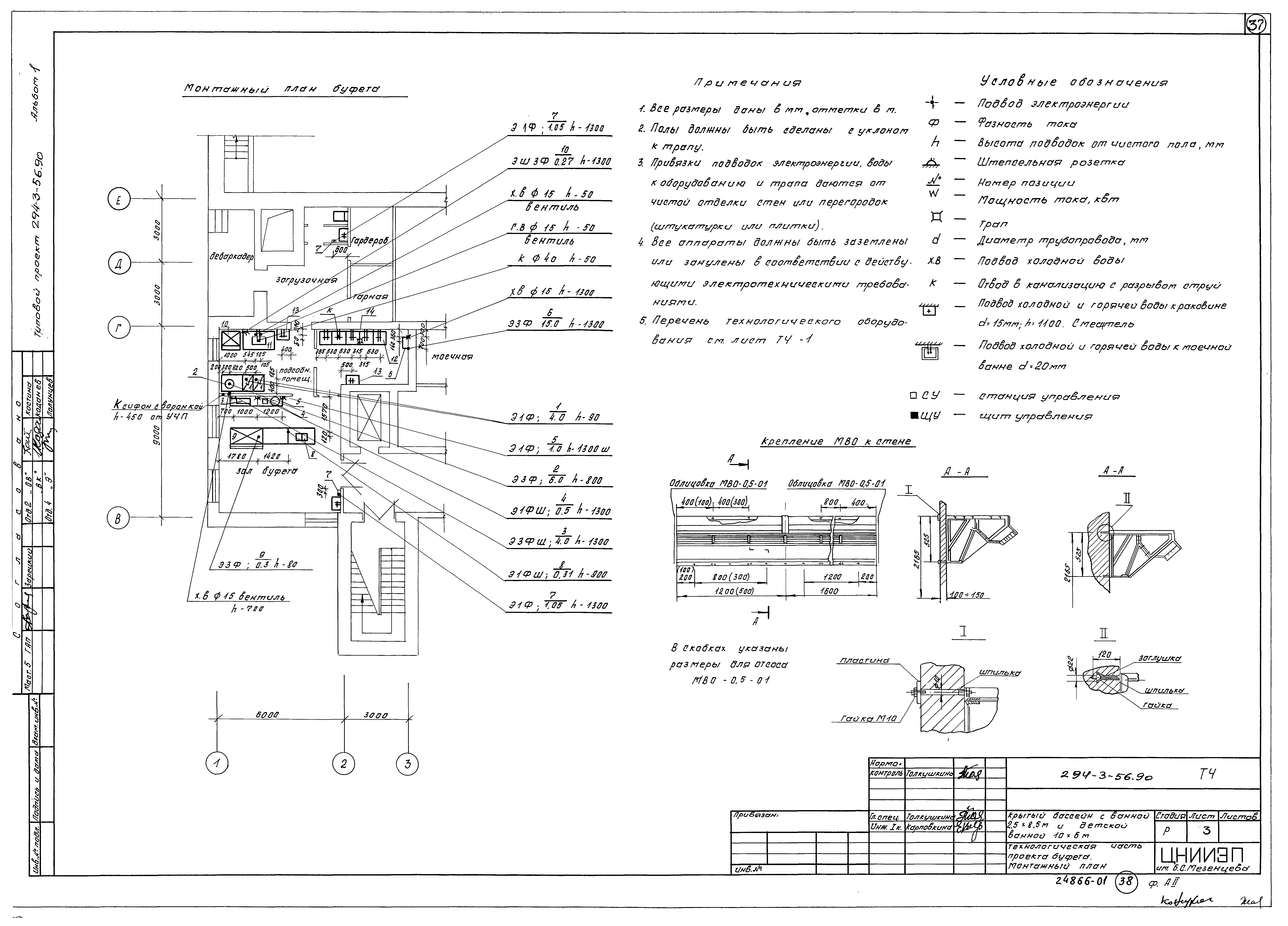
| Оглавление: | Пояснительная записка Ведомость рабочих чертежей комплекта "АР" Архитектурные решения План осей План подвала. Таблица проемов План 1 этажа План 2 этажа План кровли. План венткамеры. Спецификация изделий Разрез 1-1 Разрез 2-2 Фасады по оси "А"; по оси "1"; по оси "3" Фасады по оси "3"; по оси "10" Фрагменты планов душевых. Экспликация отверстий Фрагменты фасадов. Порядовки стен Крыльца №1, 2, 3, 4, 5. Облицовка гранитом Разметка ванны 25х8,5 м Барьер и вешалка гардероба Подвесные алюминиевые потолки. Монтажные схемы Подвесные алюминиевые потолки. Монтажные схемы. Спецификация Ведомость отделочных работ Экспликация полов Сводная спецификация столярных изделий. Ведомость заполнения оконных проемов Козырек главного входа 1 этаж. Схема расстановки мебели. Спецификация 2 этаж. Схема расстановки мебели. Спецификация Блок сауны. План. Разрезы I-I и II-II. План кровли. Спецификация Фасады по оси "А"; по оси "10" Камера сухого жара. Узлы. Спецификация Камера сухого жара. Узлы Ведомость рабочих чертежей комплекта "ТО" Технологическое оборудование Фрагменты планов медицинских помещений с расстановкой технологического оборудования Ведомость рабочих чертежей комплекта "ТЧ" Технология пищеблока Общие данные Технологическая часть проекта буфета для занимающихся Технологическая часть проекта буфета. Монтажный план |
| Разработан: | ЦНИИЭП им. Б.С. Мезенцева Госгражданстроя |
| Утверждён: | 30.11.1990 Госкомспорт СССР (USSR Goskomsport 432) |





































