Скачать Серия 7.401-2 Выпуск 2. Узлы крепления трубопроводов Ду150. Рабочие чертежиДата актуализации: 01.01.2021
|
| Обозначение: | Серия 7.401-2 |
| Обозначение англ: | Series 7.401-2 |
| Статус: | не определен законодательством |
| Название рус.: | Выпуск 2. Узлы крепления трубопроводов Ду150. Рабочие чертежи |
| Дата добавления в базу: | 01.09.2013 |
| Дата актуализации: | 01.01.2021 |
| Дата введения: | 25.10.1990 |
| Дата окончания срока действия: | 30.06.2003 |
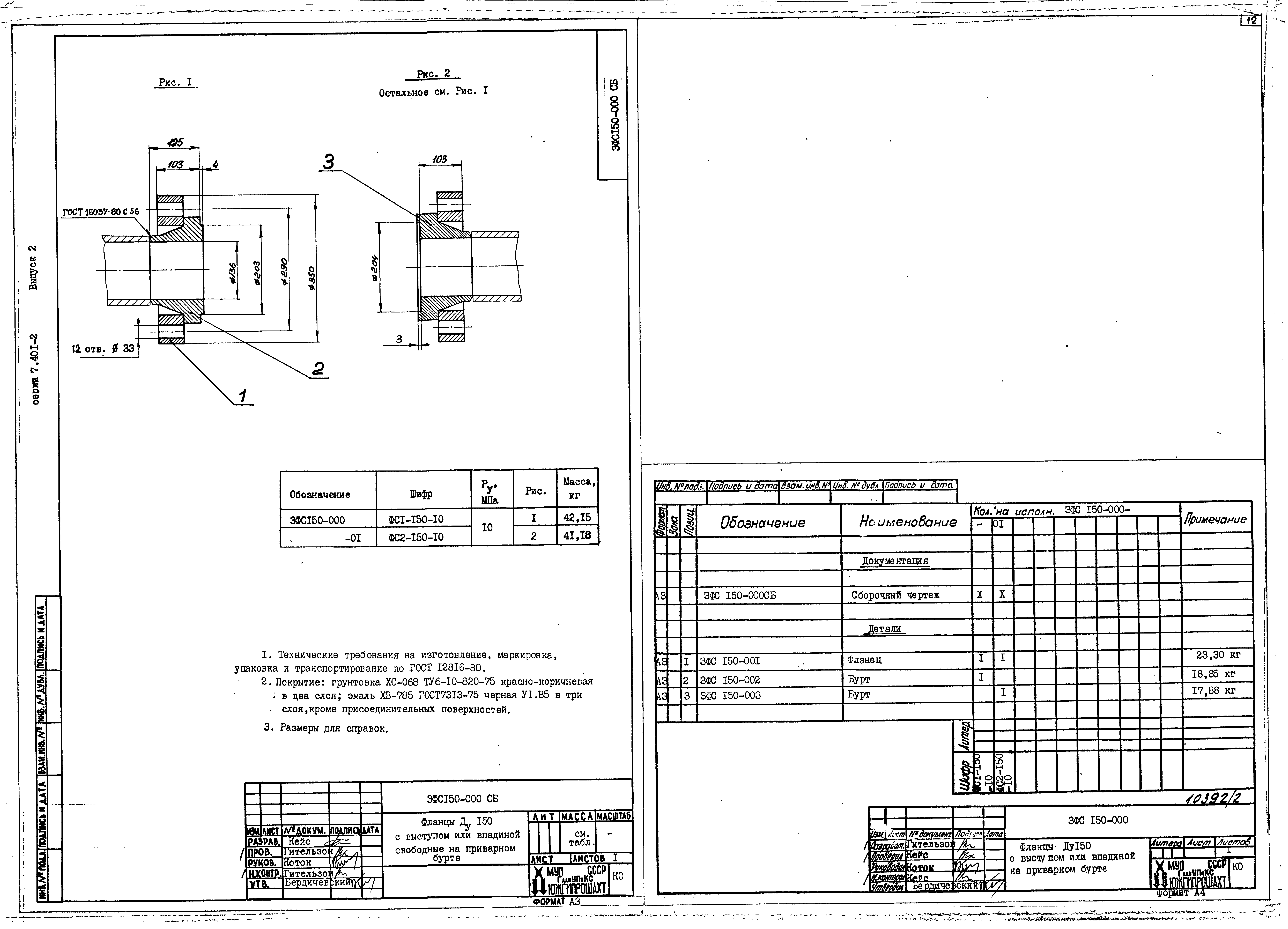
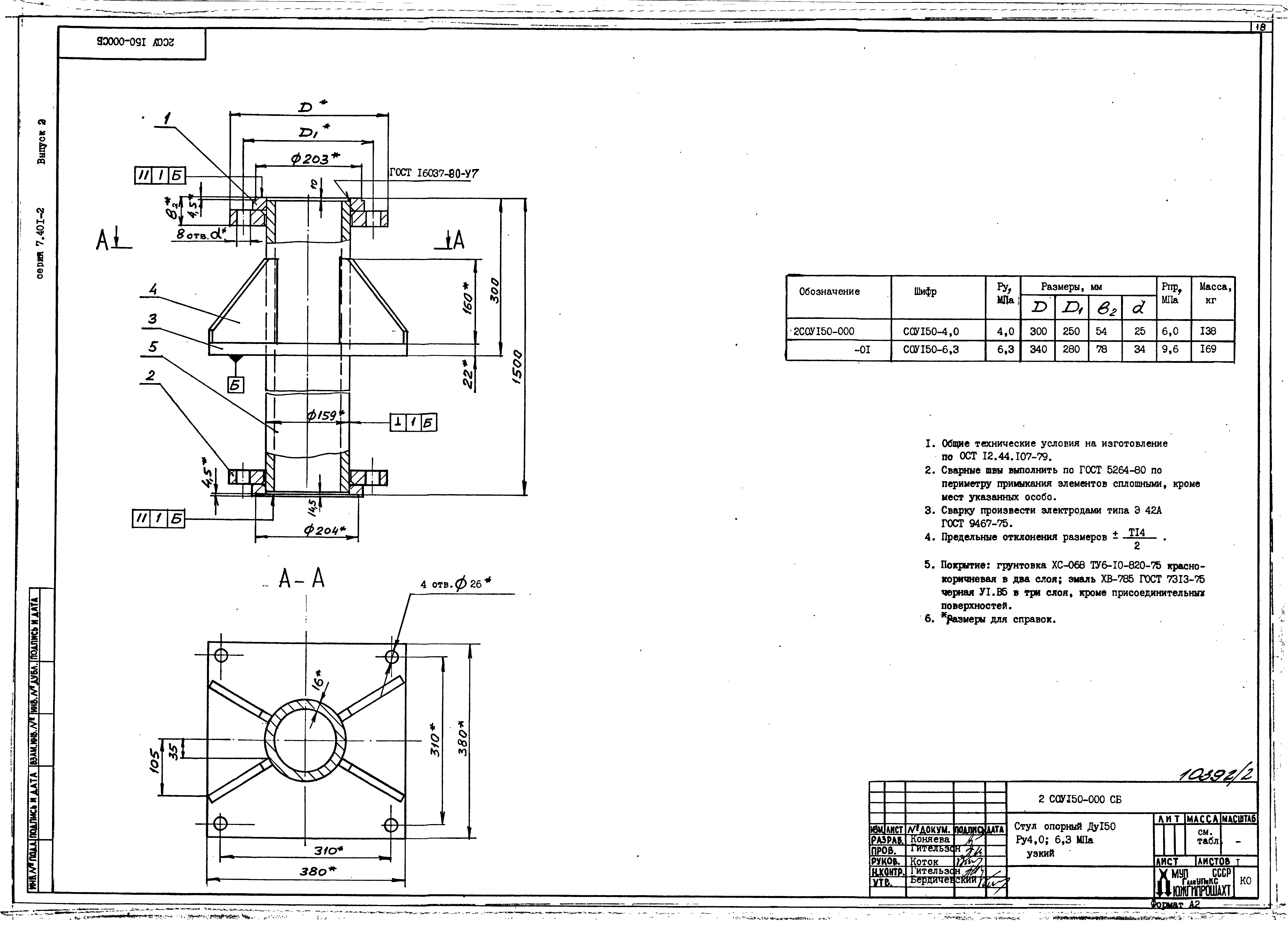
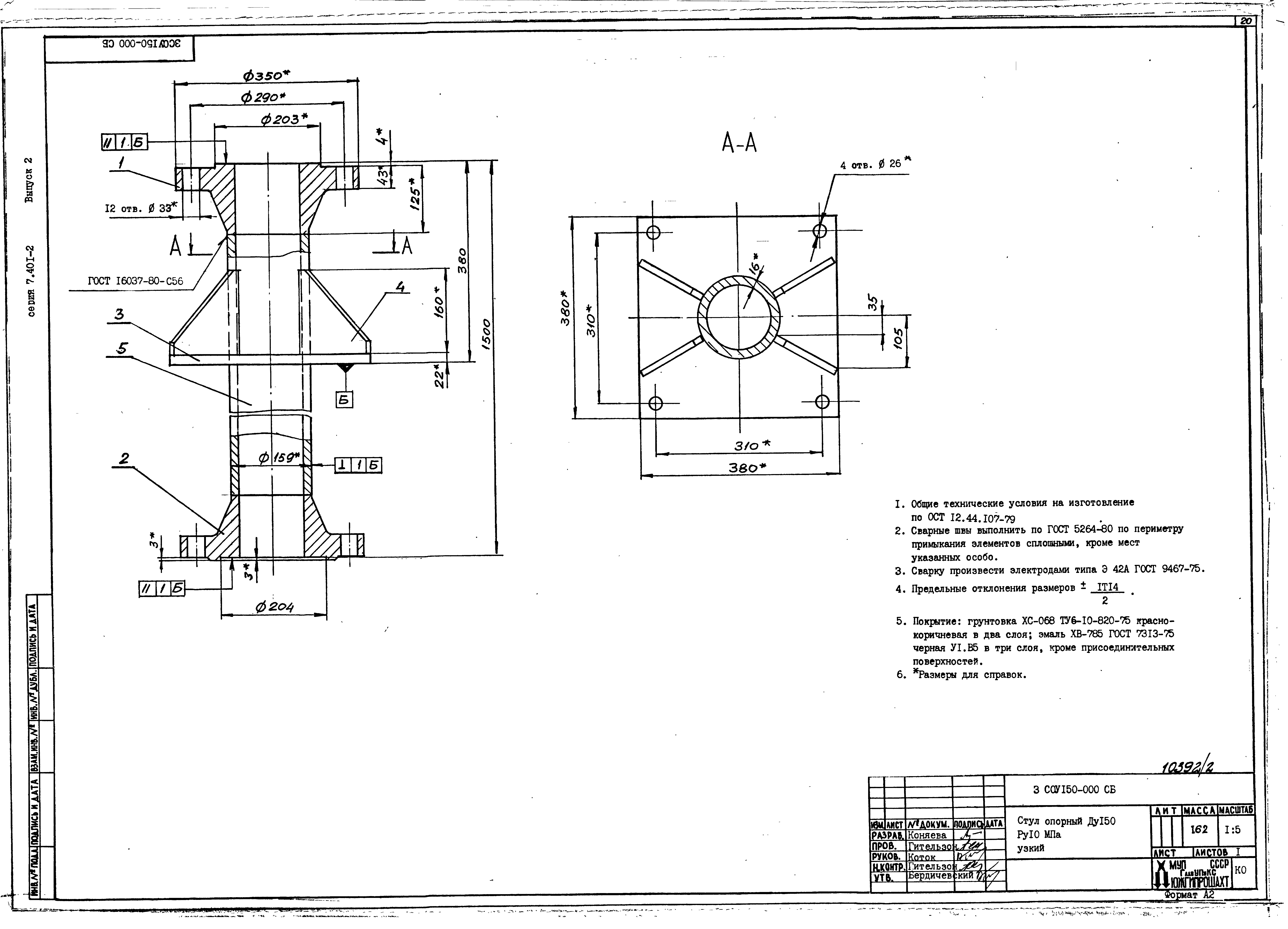
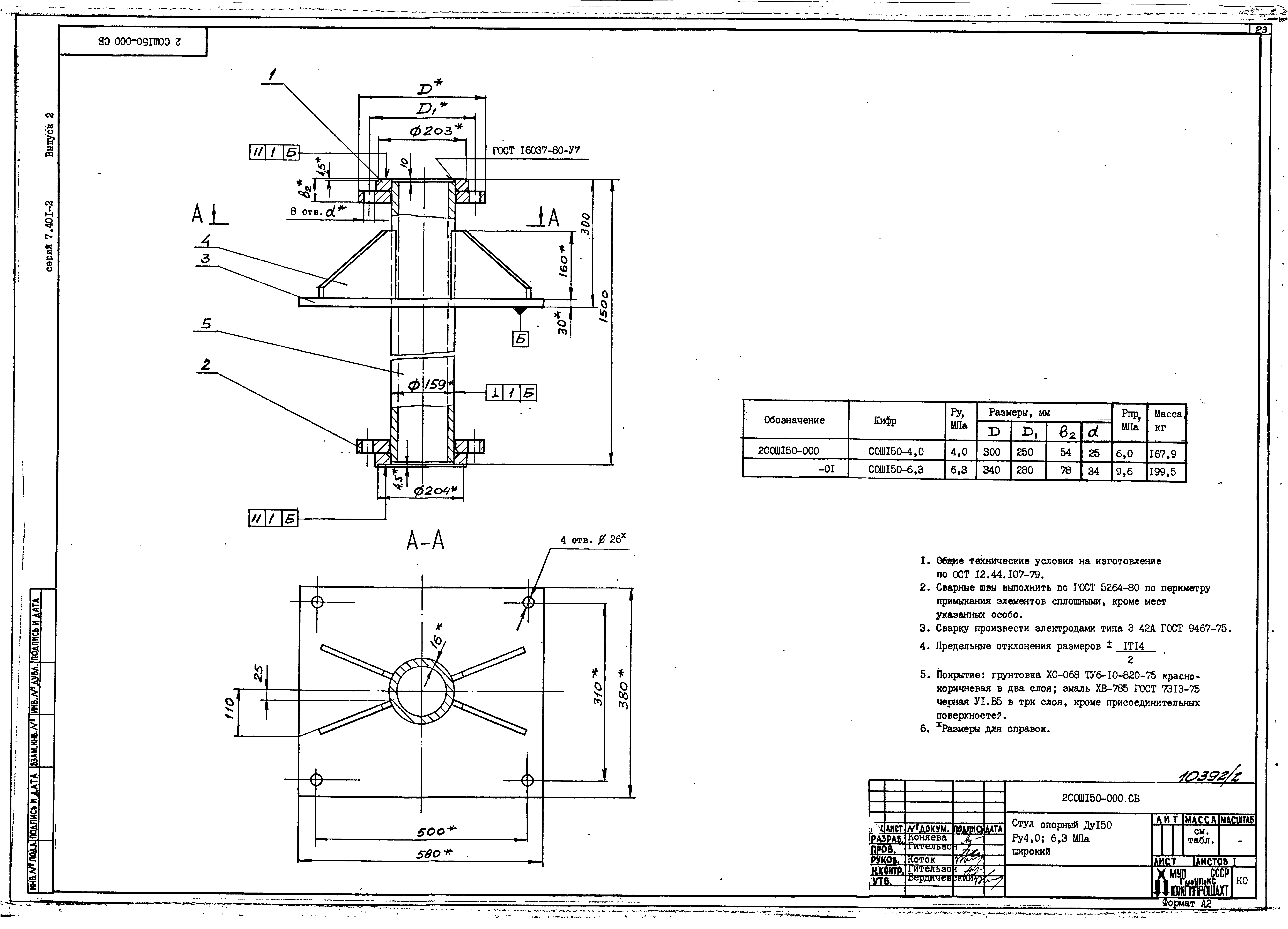
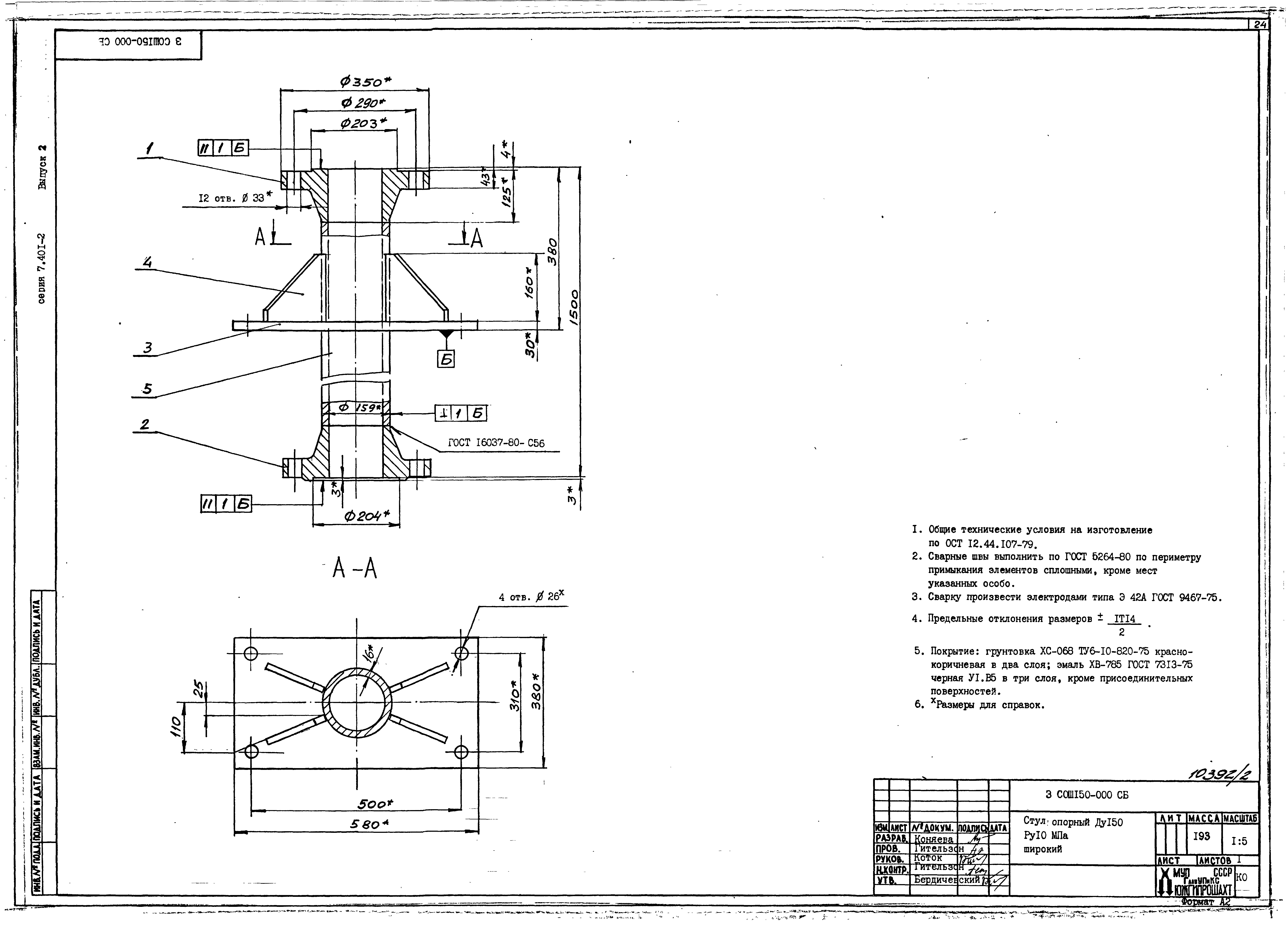
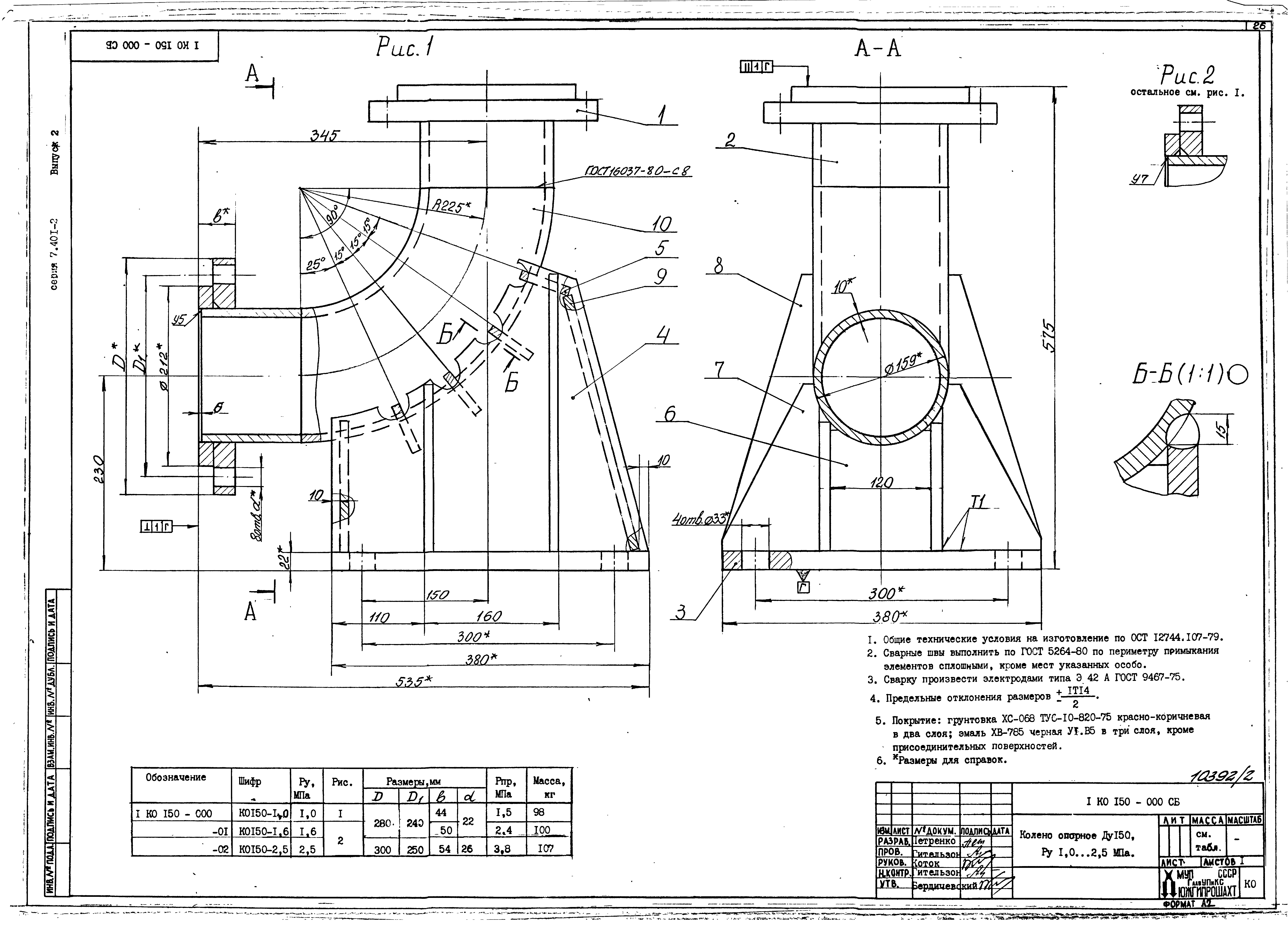
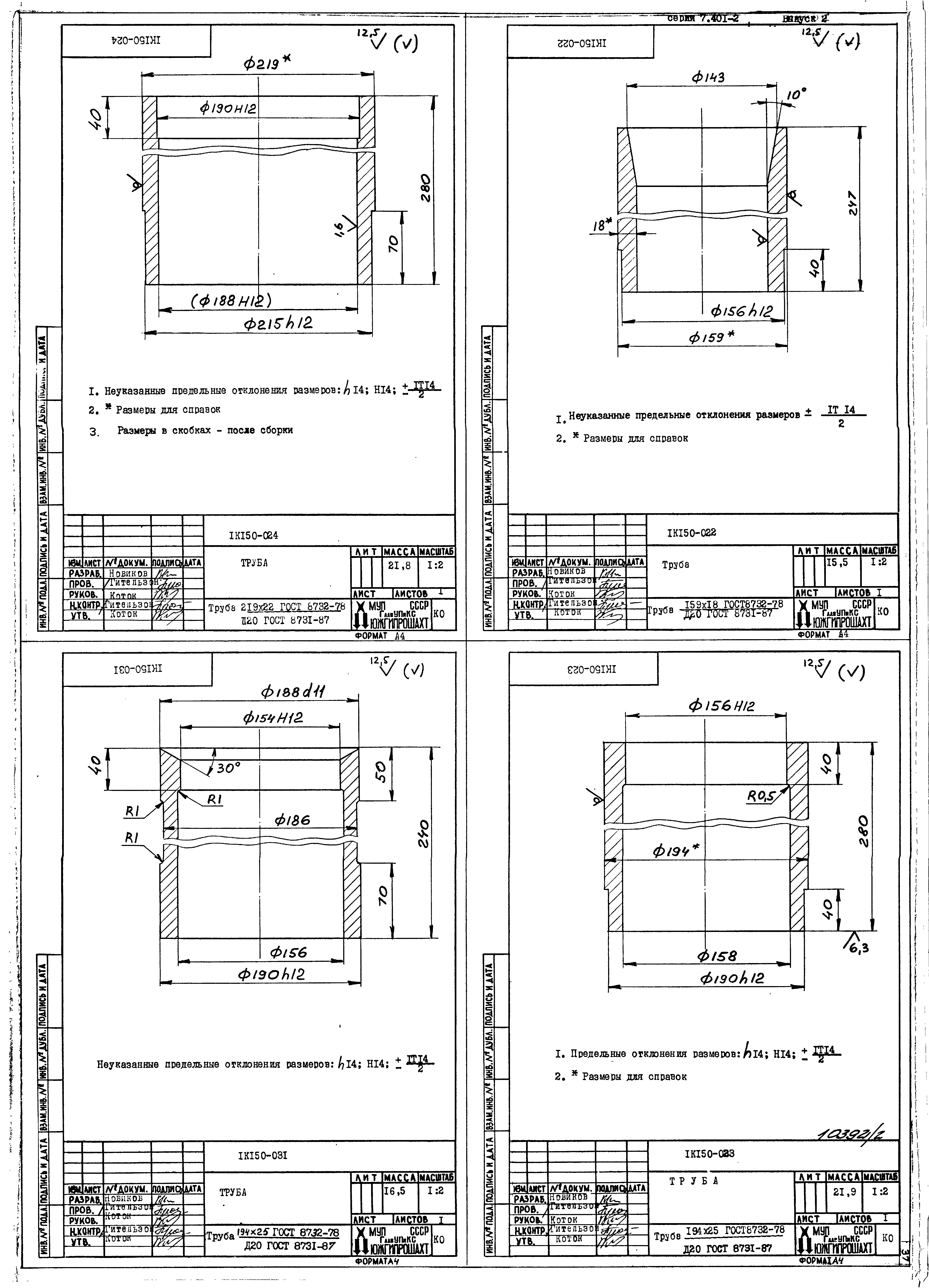
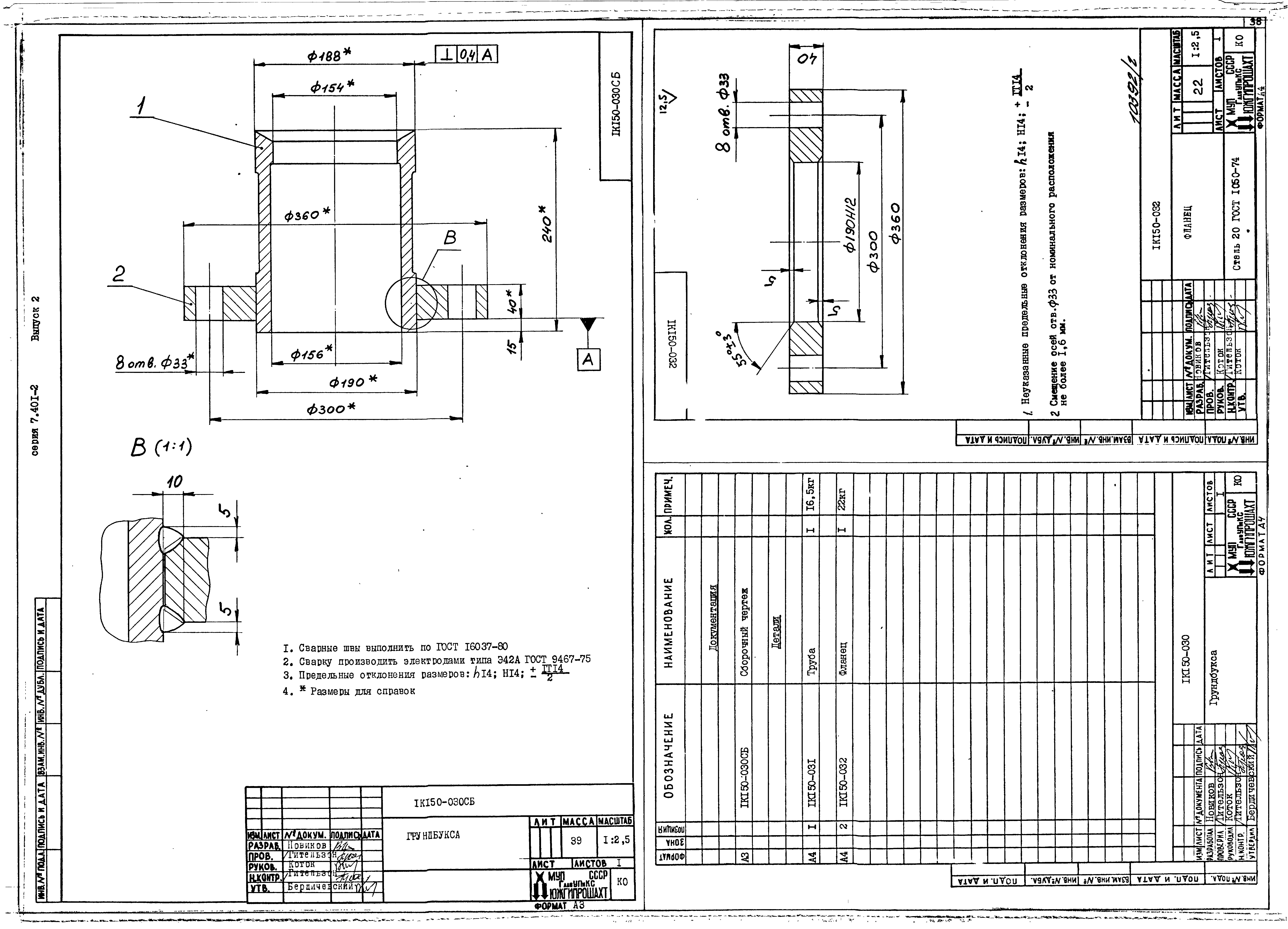
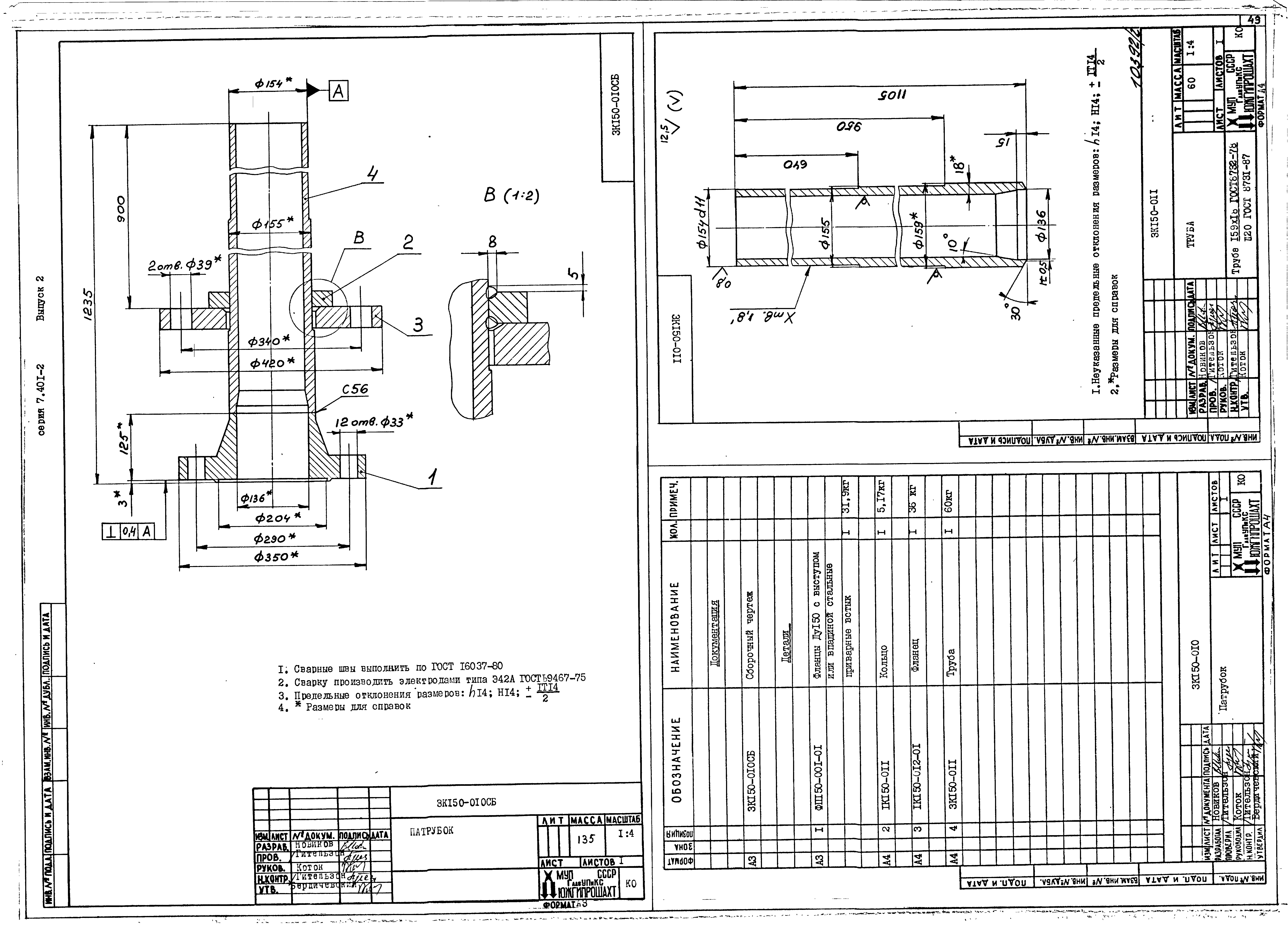
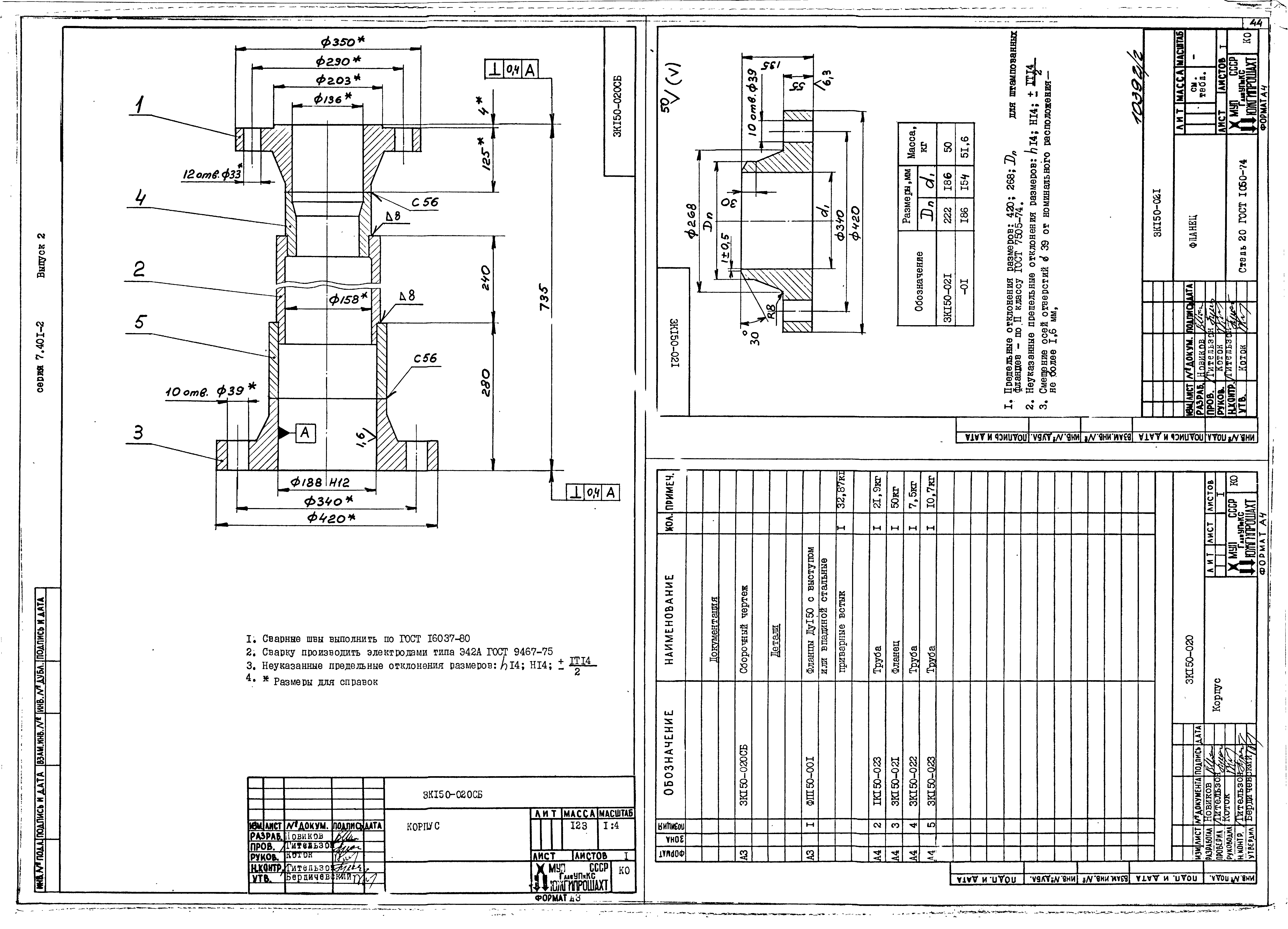
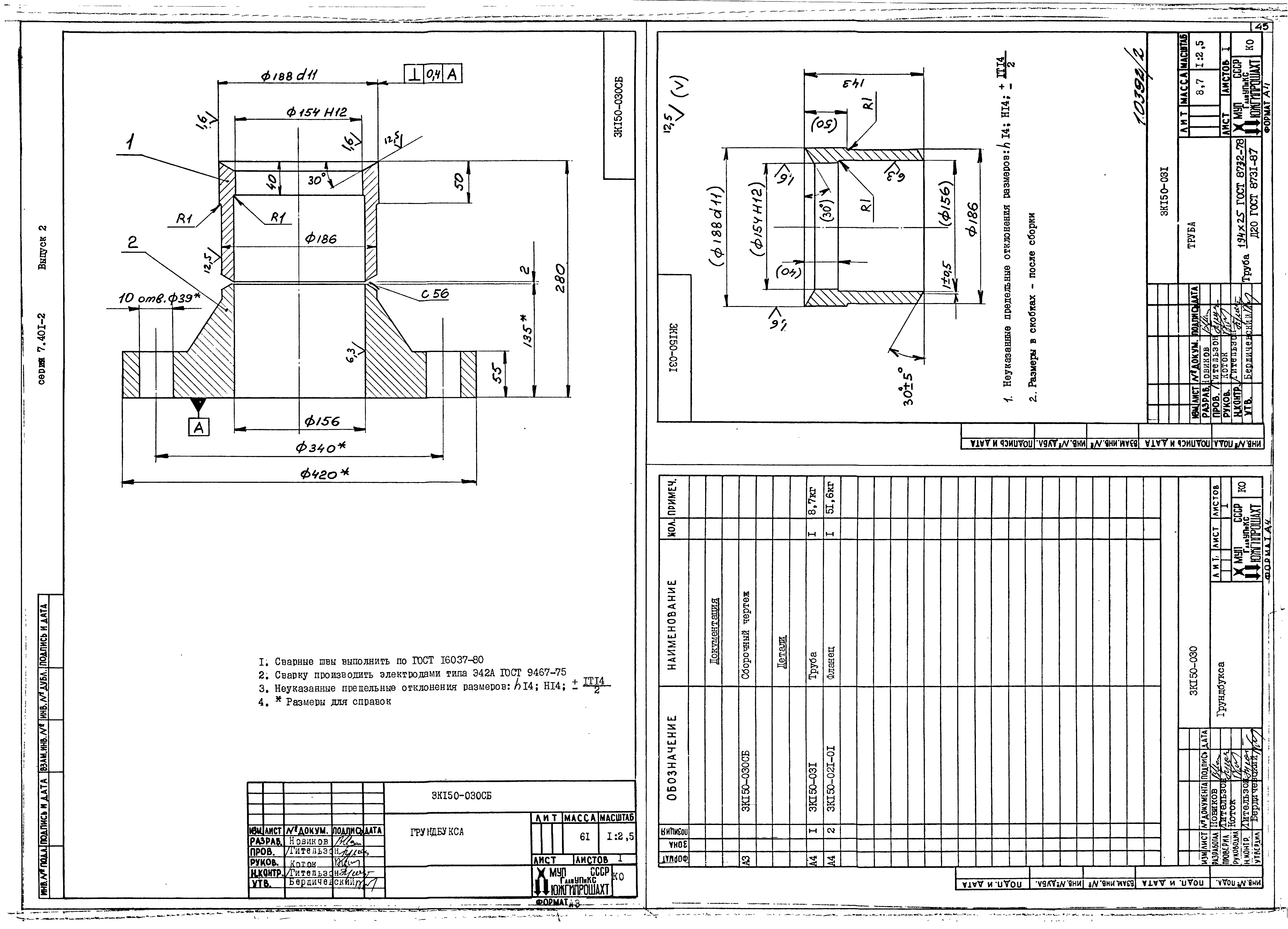
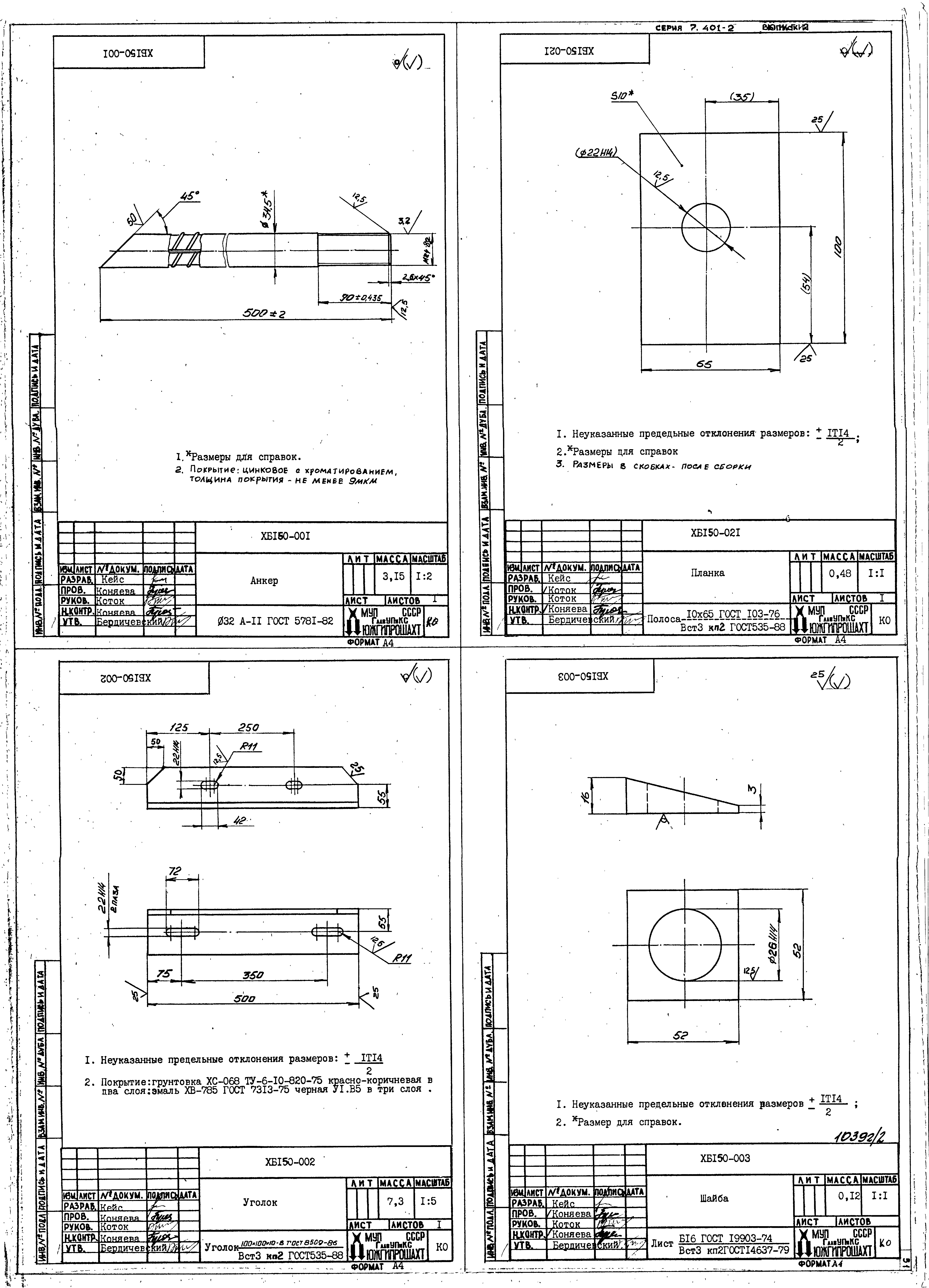
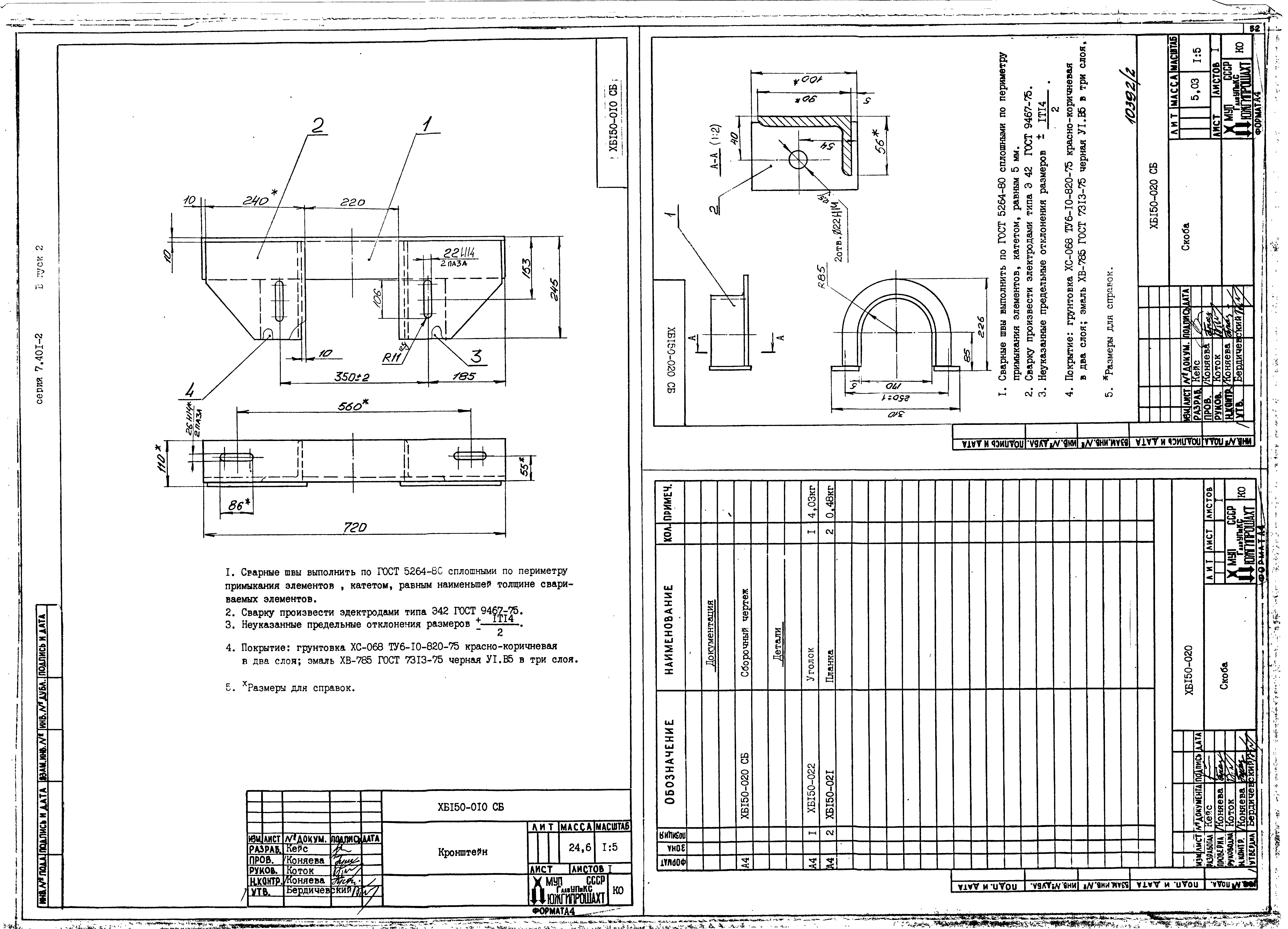
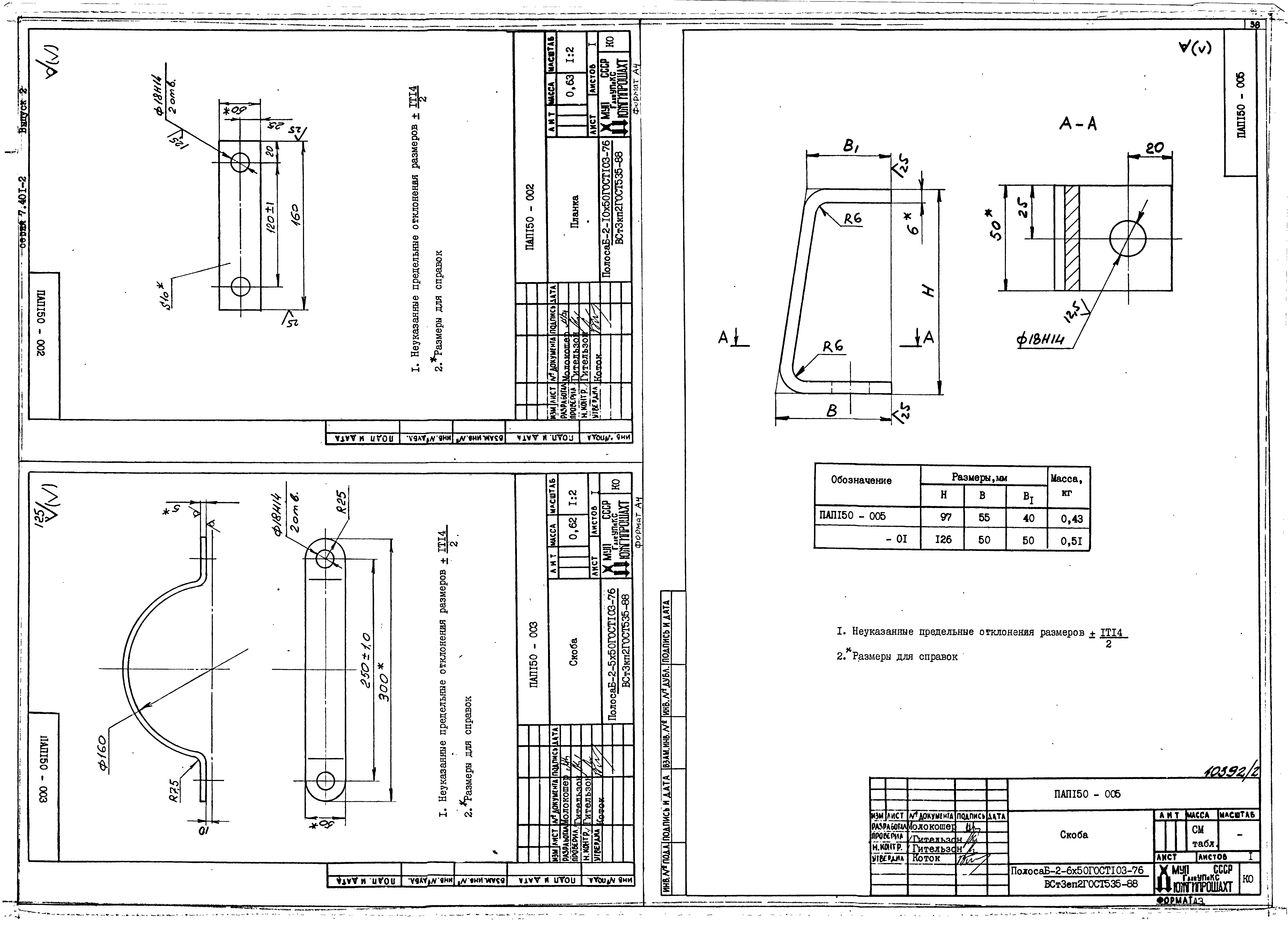
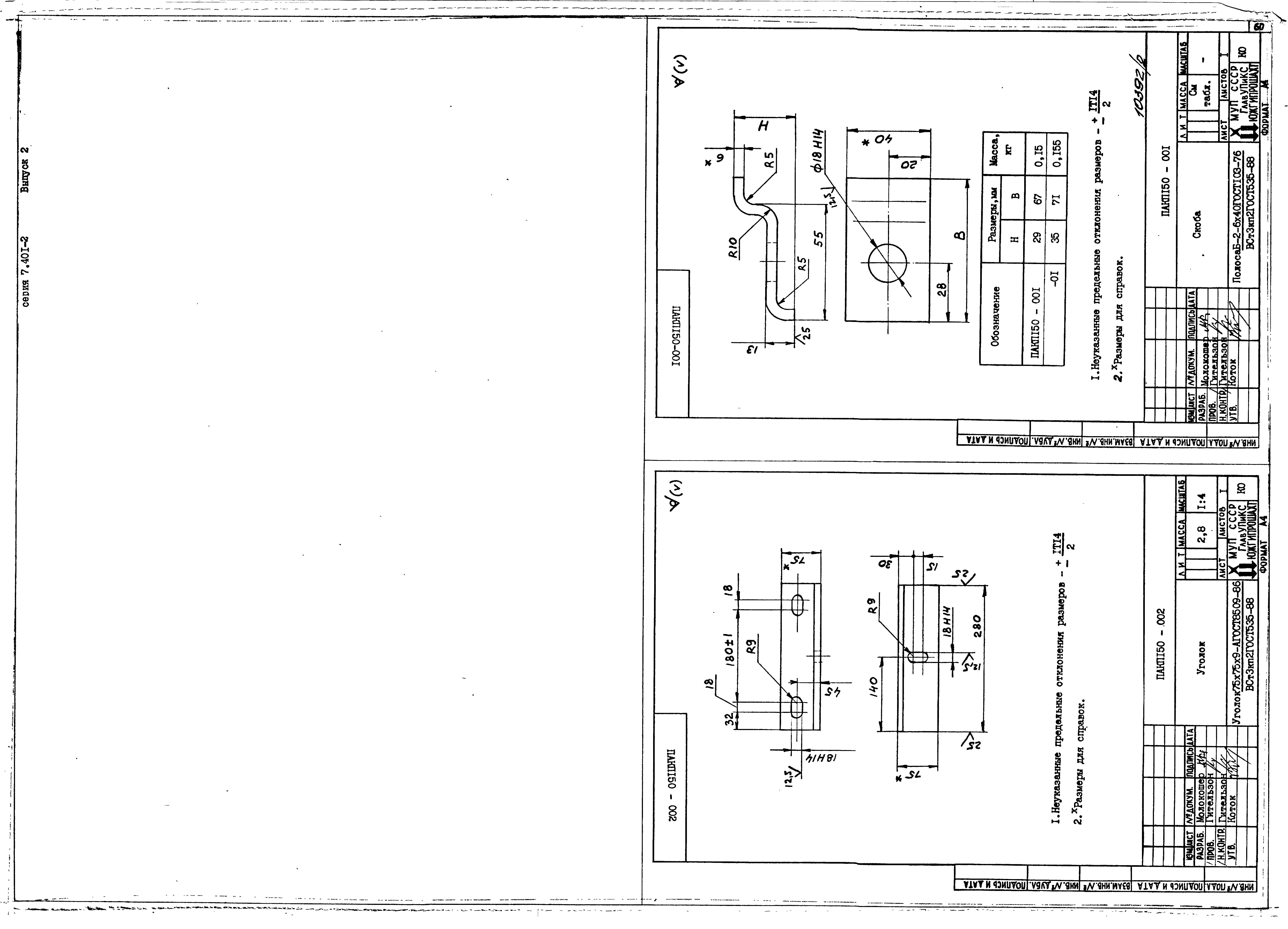
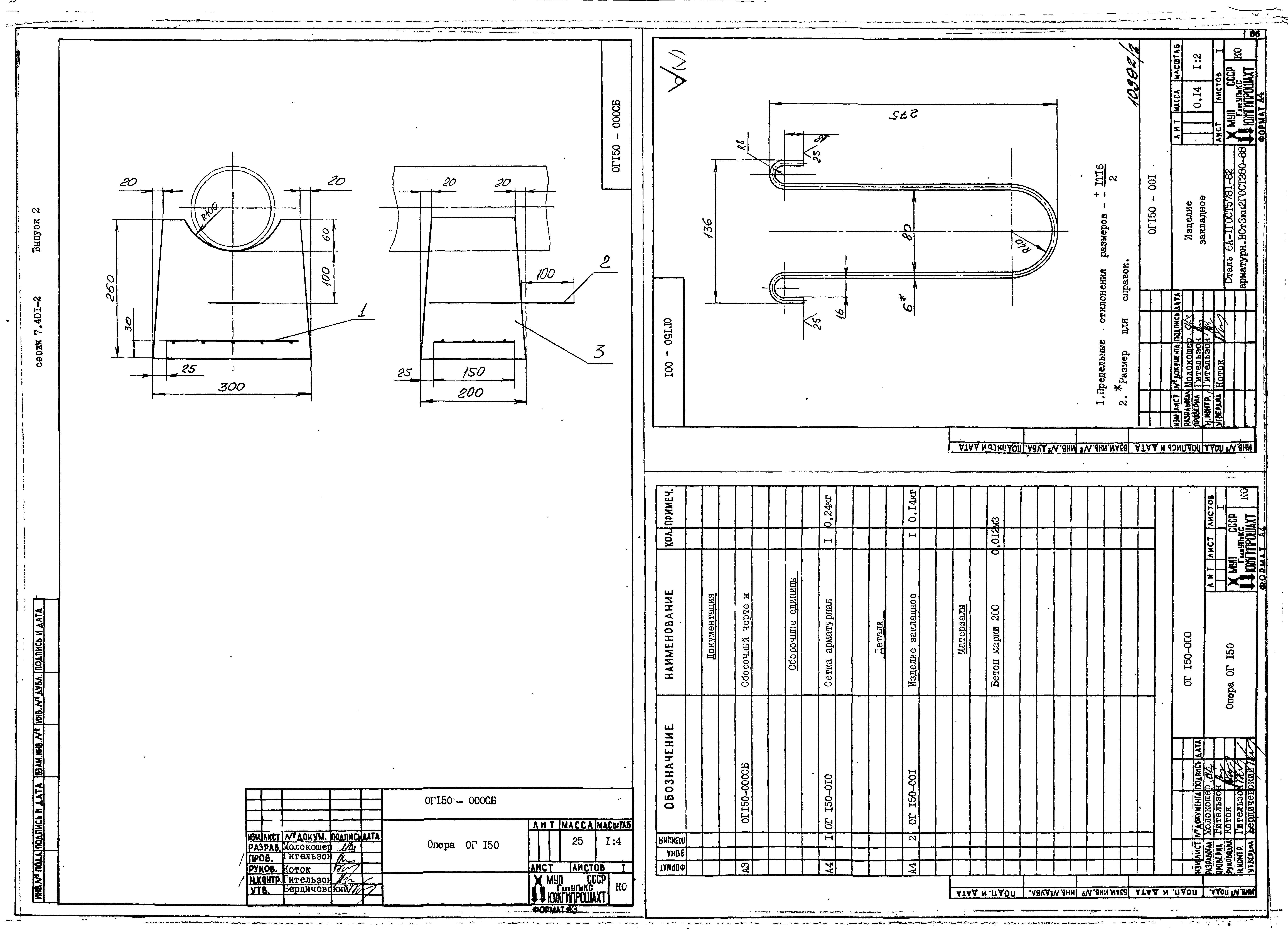
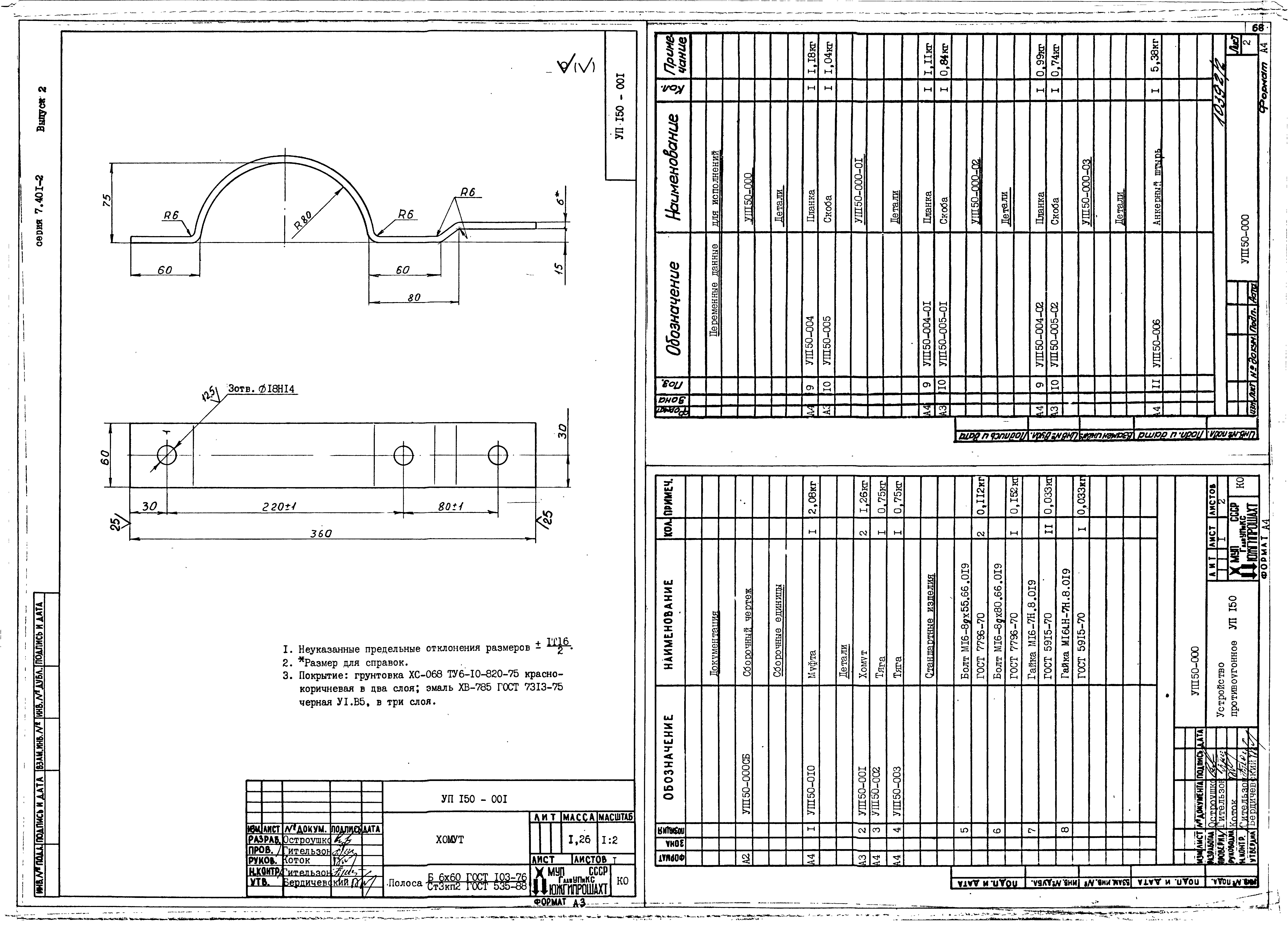
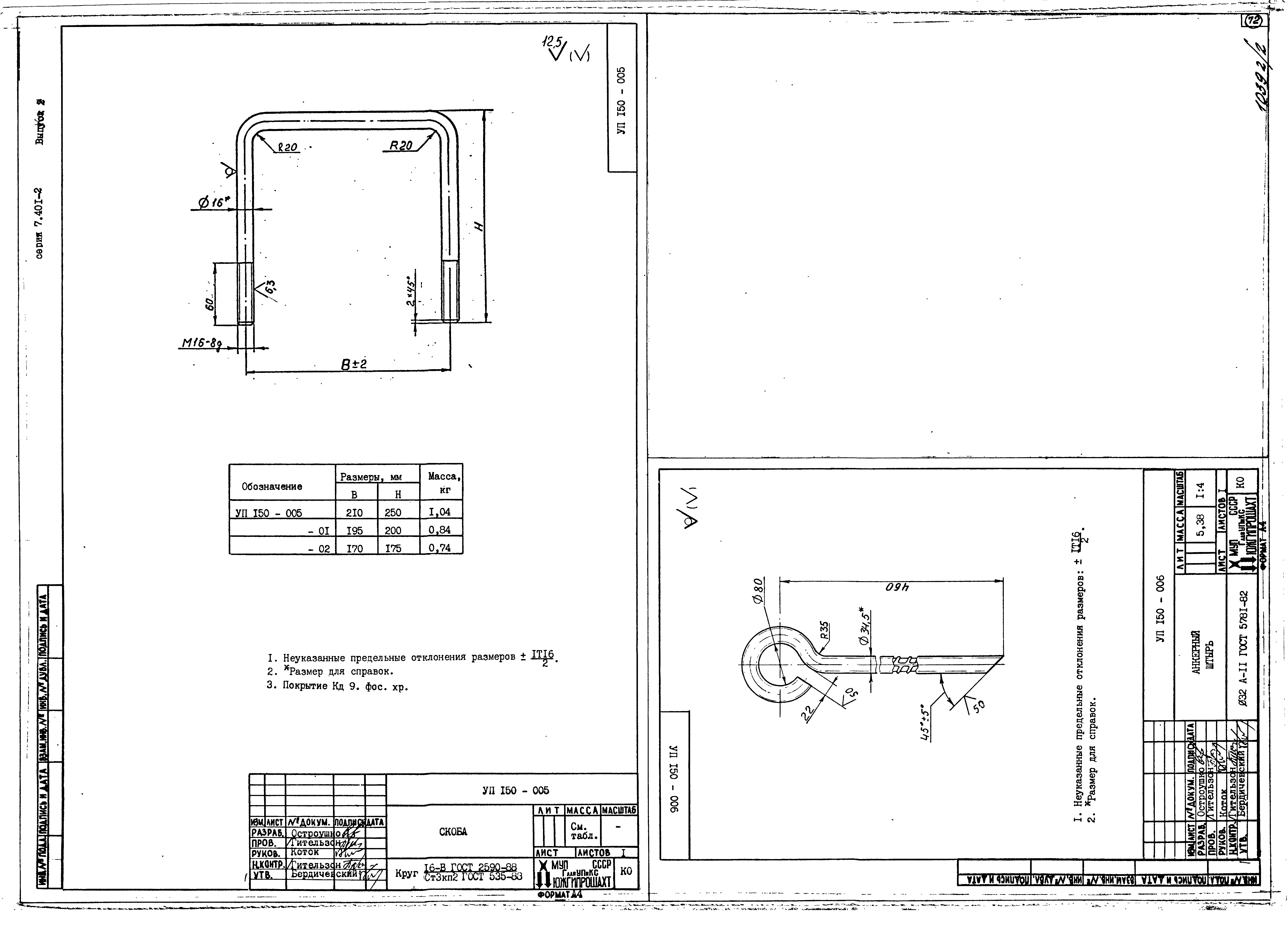
| Оглавление: | Содержание ПЗ Пояснительная записка 1ФС150-000 Фланцы Ду150 стальные свободные на приварном кольце 2ФС150-000 Фланцы Ду150 с выступом или впадиной свободные на приварном кольце 3ФС150-000 Фланцы Ду150 с выступом или впадиной свободные на приварном бурте ФП150-001 Фланцы Ду150 с выступом или впадиной стальные приварные встык 1СОУ150-000 Стул опорный Ду150 Ру 1,0; 1,6; 2,5 МПа узкий 2СОУ150-000 Стул опорный Ду150 Ру 4,0; 6,3 МПа узкий 3СОУ150-000 Стул опорный Ду150 Ру 10 МПа узкий 1СОШ150-000 Стул опорный Ду150 Ру 1,0; 1,6; 2,5 МПа широкий 2СОШ150-000 Стул опорный Ду150 Ру 4,0; 6,3 МПа широкий 3СОШ150-000 Стул опорный Ду150 Ру 10 МПа широкий 1КО150-000 Колено опорное Ду150 Ру 1,0; 1,6; 2,5 МПа 2КО150-000 Колено опорное Ду150 Ру 4,0; 6,3 МПа 3КО150-000 Колено опорное Ду150 Ру 10 МПа 1К150-000 Компенсатор Ду150 Ру 1,0; 1,6; 2,5 МПа 2К150-000 Компенсатор Ду150 Ру 4,0; 6,3 МПа 3К150-000 Компенсатор Ду150 Ру 10 МПа ХРК150-000 Хомут ХРК 150 ХРД150-000 Хомут ХРД 150 ХБ150-000 Хомут ХБ 150 ХТШ150-000 Хомут ХТШ 150 ПАП150-000 Подвеска ПАП 150 ПАКП150-000 Подвеска ПАКП 150 ПСК150-000 Подвеска ПСК 150 ПВ150-000 Подвеска ПВ 150 ПБ150-000 Подвеска ПБ 150 ПШ150-000 Подвеска ПШ 150 ОГ150-000 Опоры ОГ 150 ОН150-000 Опоры ОН 150 УП150-000 Устройство противоугонное УП 150 |
| Разработан: | Южгипрошахт Минуглепрома СССР |
| Утверждён: | 25.10.1990 Минуглепром СССР (USSR Minugleprom 3-35-18/1079) |
| Издан: | Госстрой СССР (1991 г. ) |
| Заменяет собой: |
|








































































