Скачать Серия 7.401-2 Выпуск 6. Узлы крепления трубопроводов Ду350. Рабочие чертежиДата актуализации: 01.01.2021
|
| Обозначение: | Серия 7.401-2 |
| Обозначение англ: | Series 7.401-2 |
| Статус: | не определен законодательством |
| Название рус.: | Выпуск 6. Узлы крепления трубопроводов Ду350. Рабочие чертежи |
| Дата добавления в базу: | 01.09.2013 |
| Дата актуализации: | 01.01.2021 |
| Дата введения: | 25.10.1990 |
| Дата окончания срока действия: | 30.06.2003 |
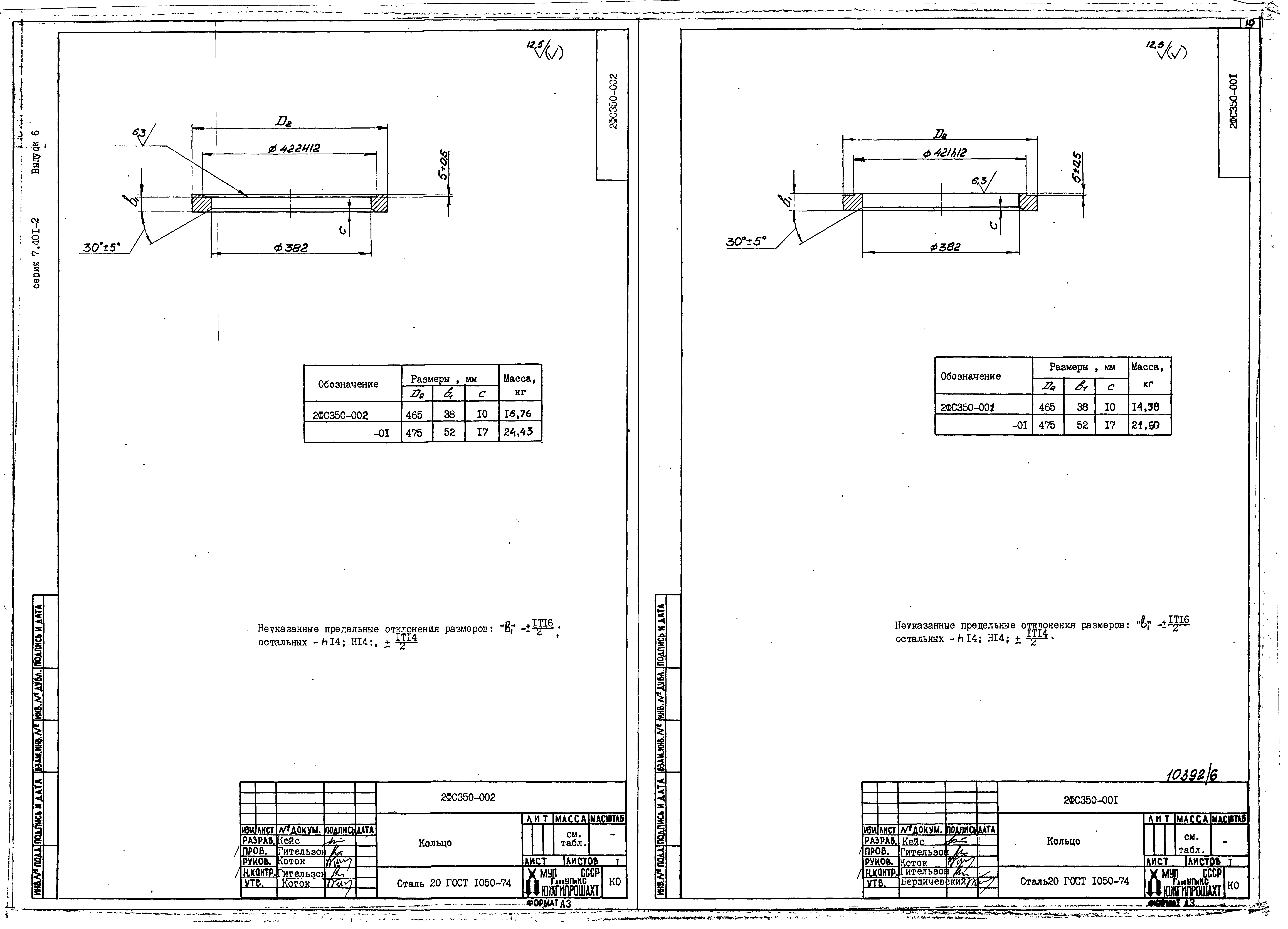
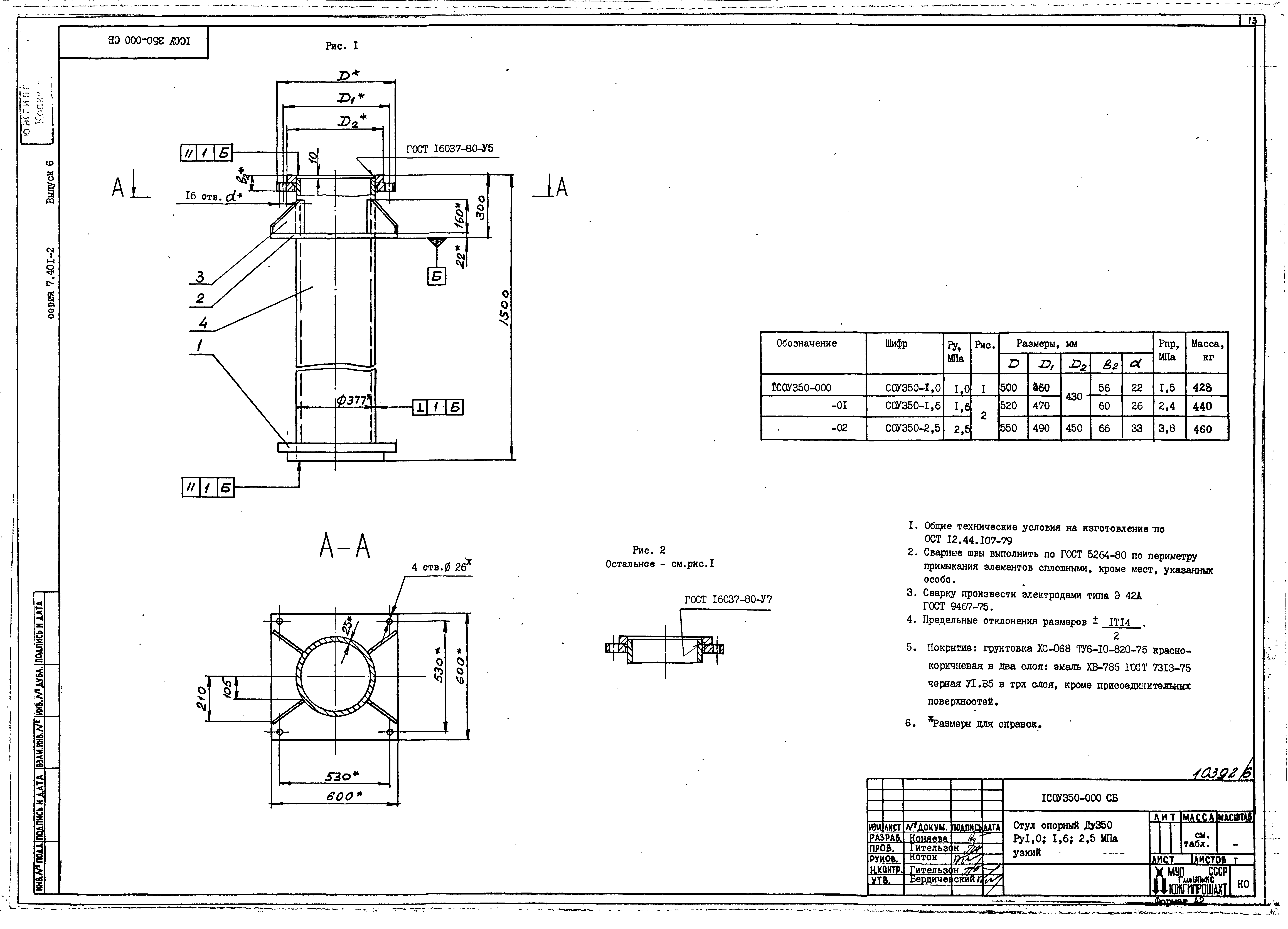
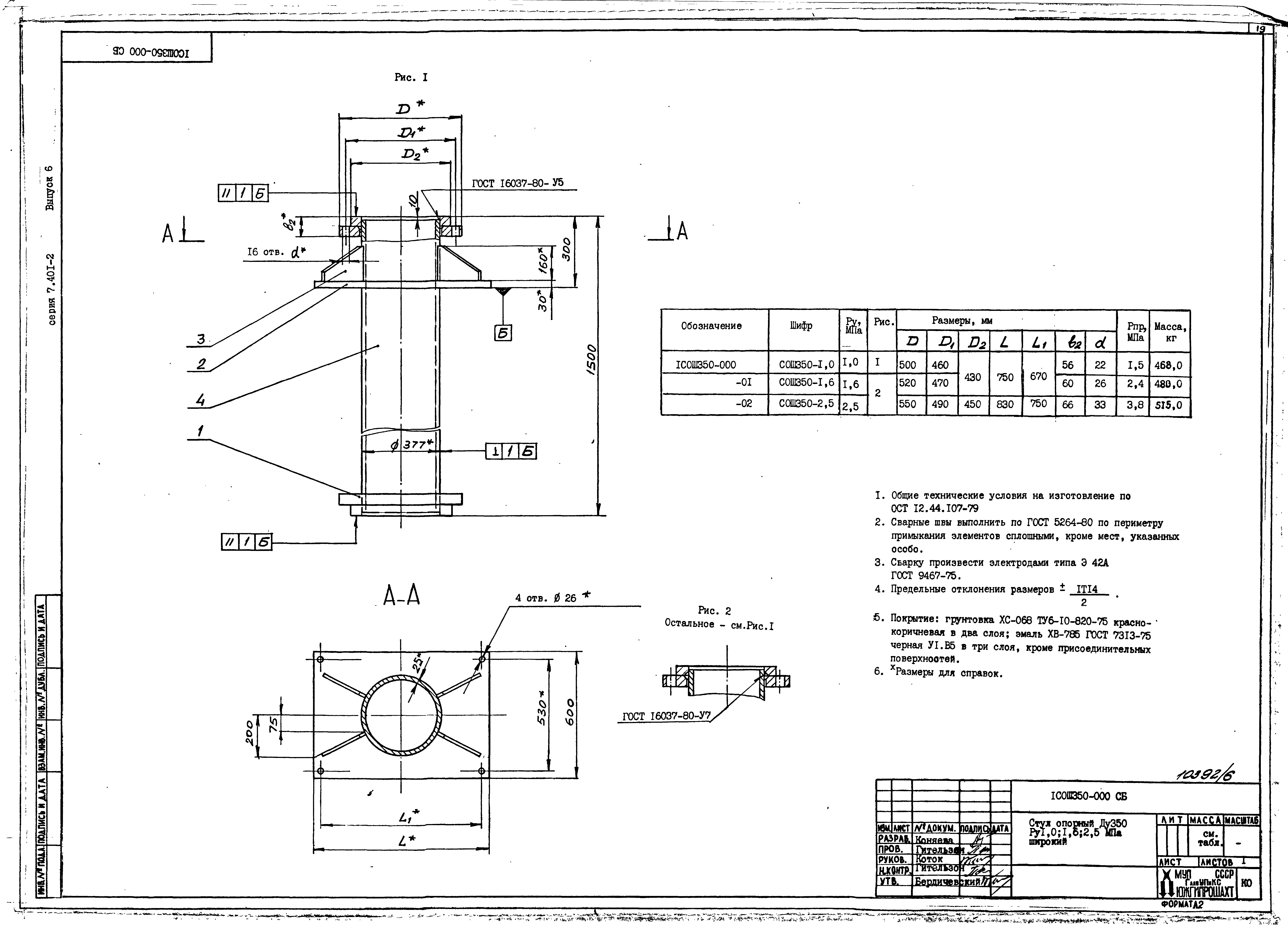
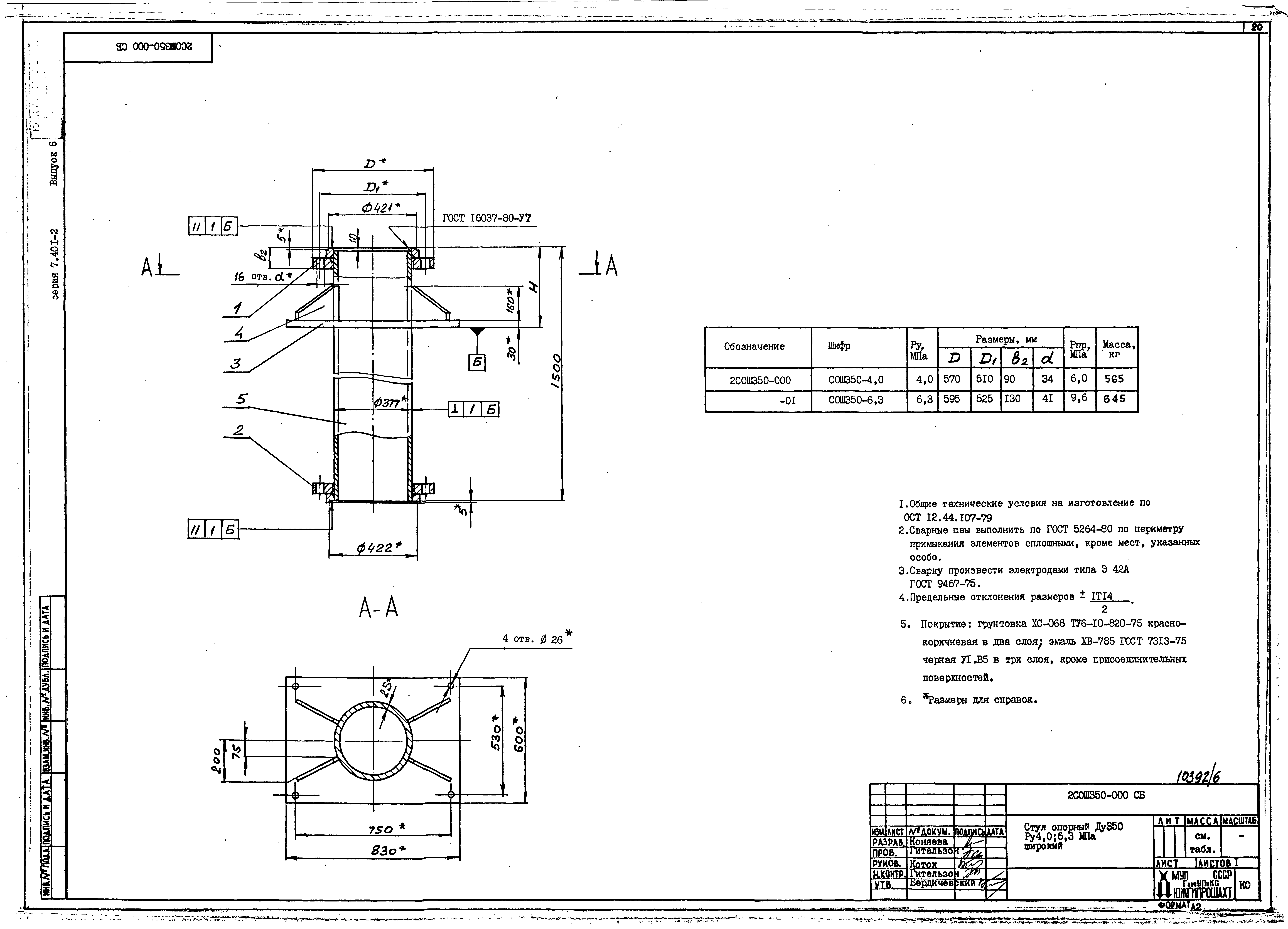
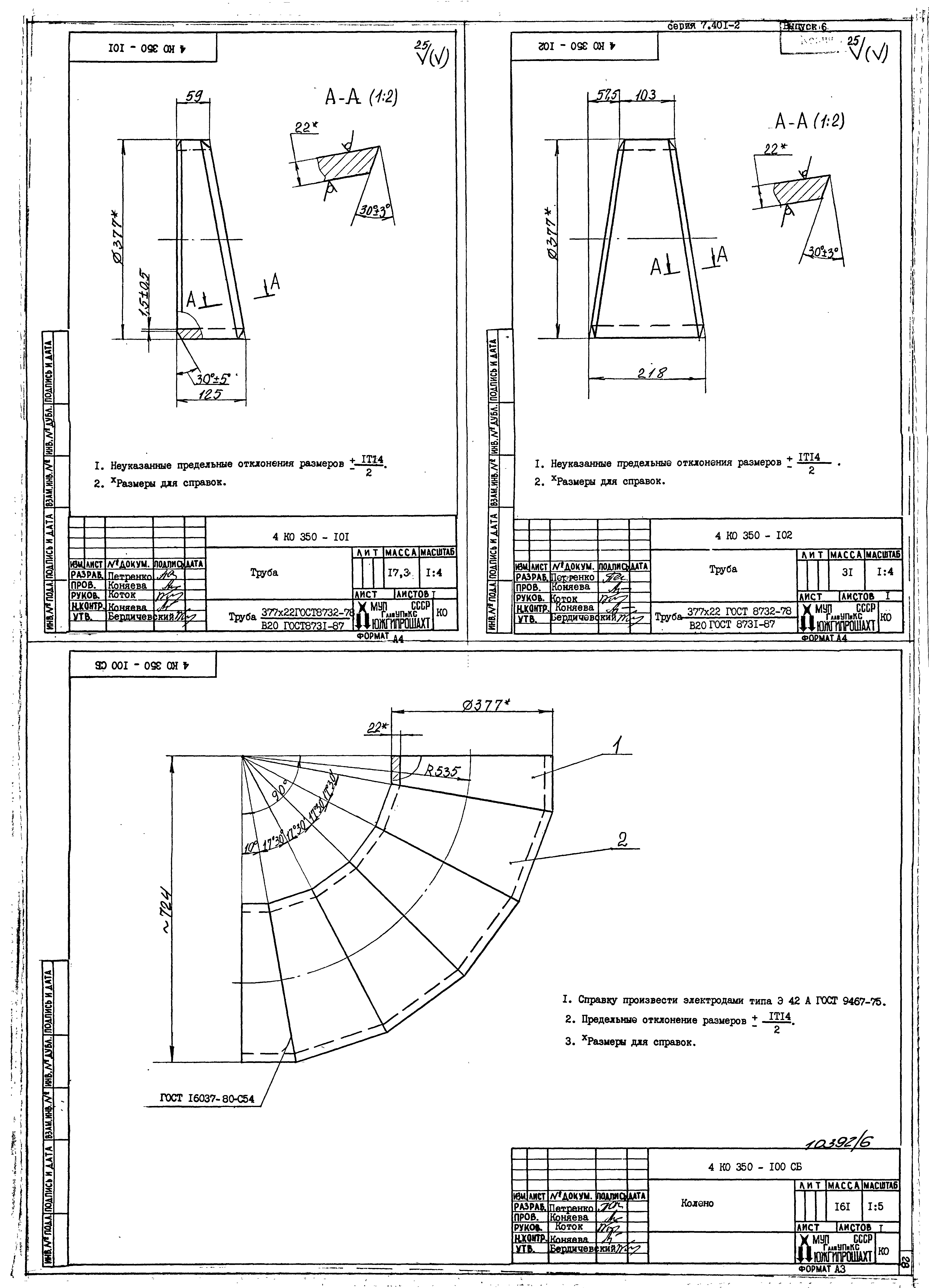
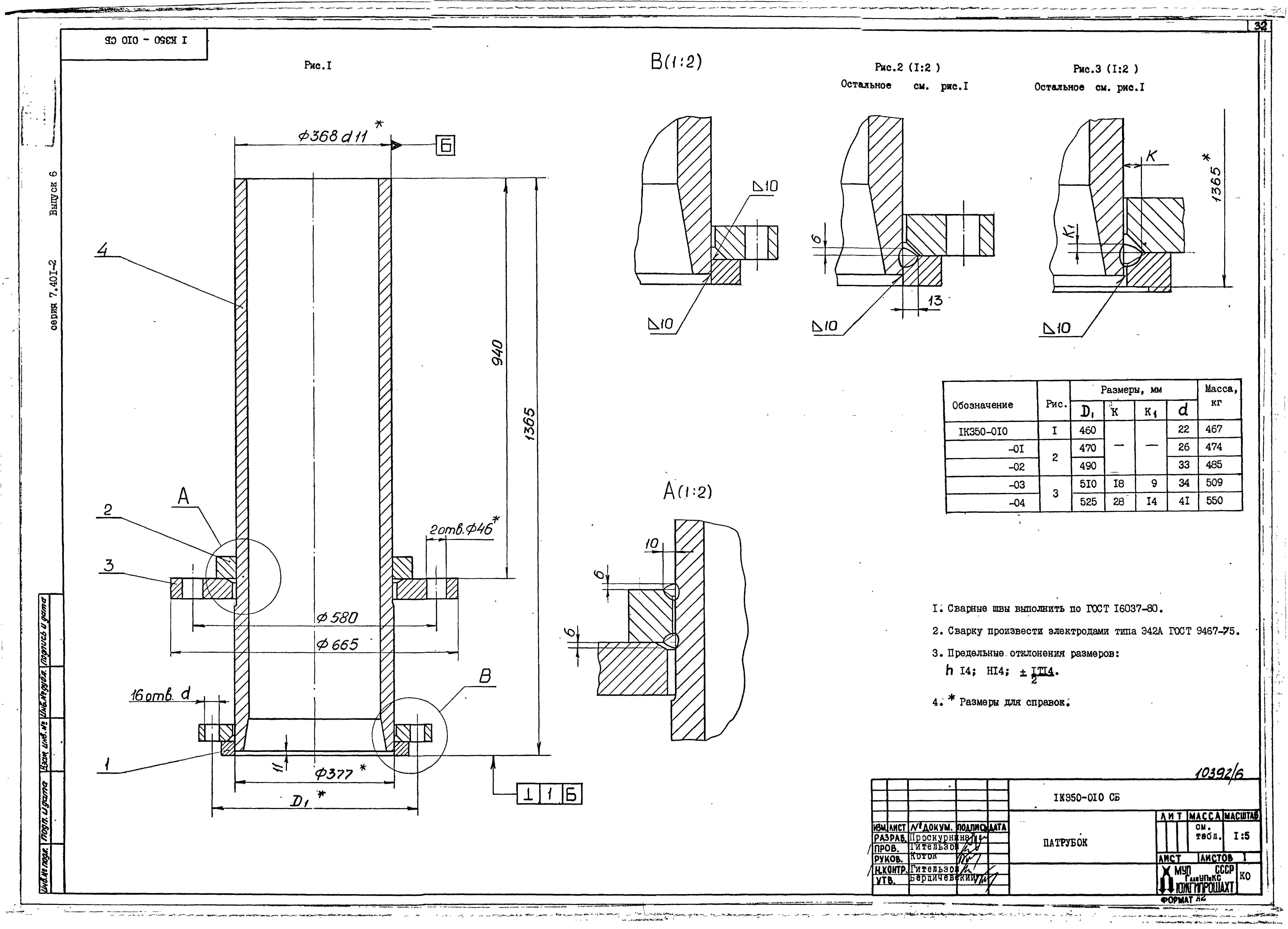
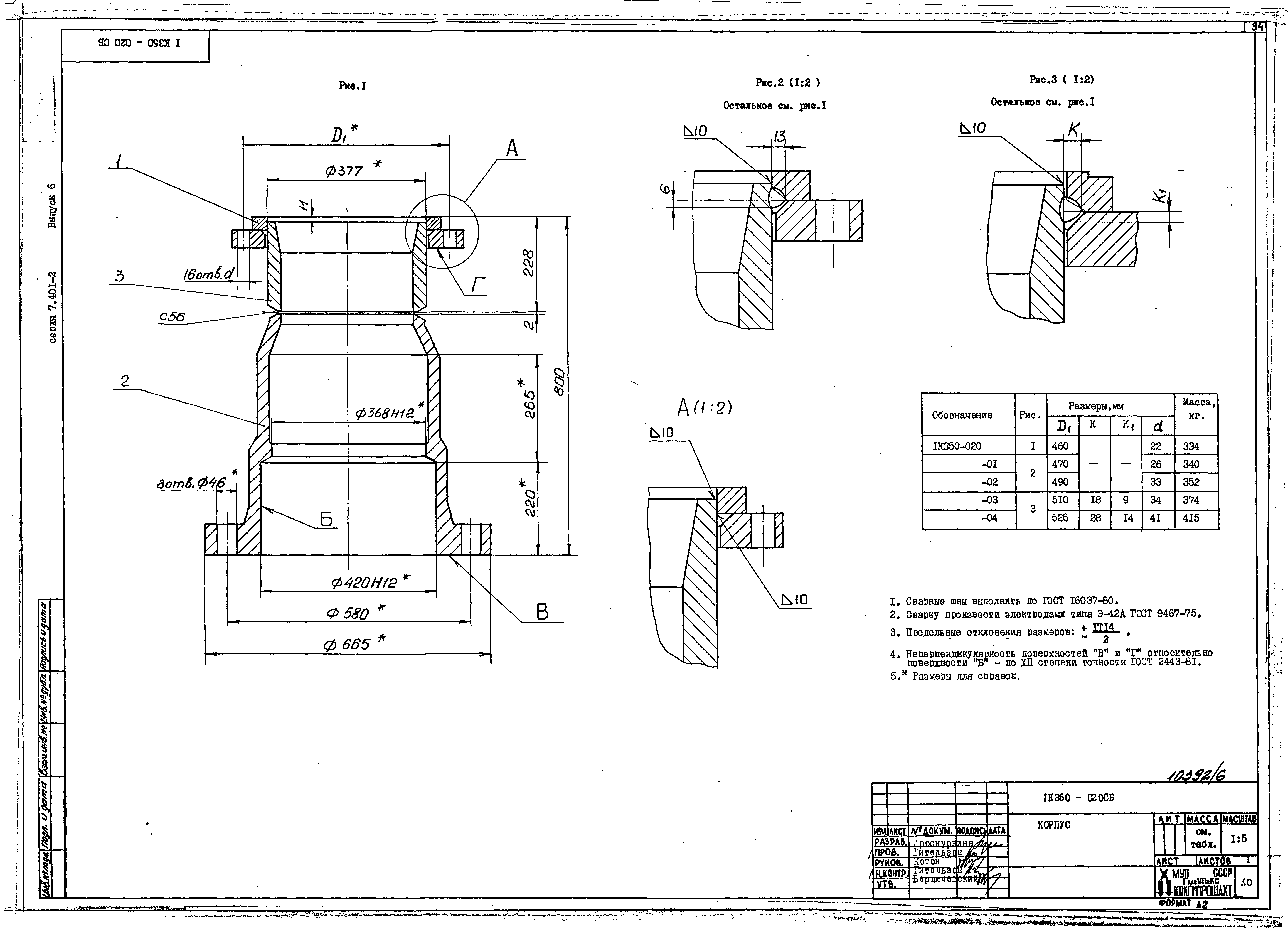
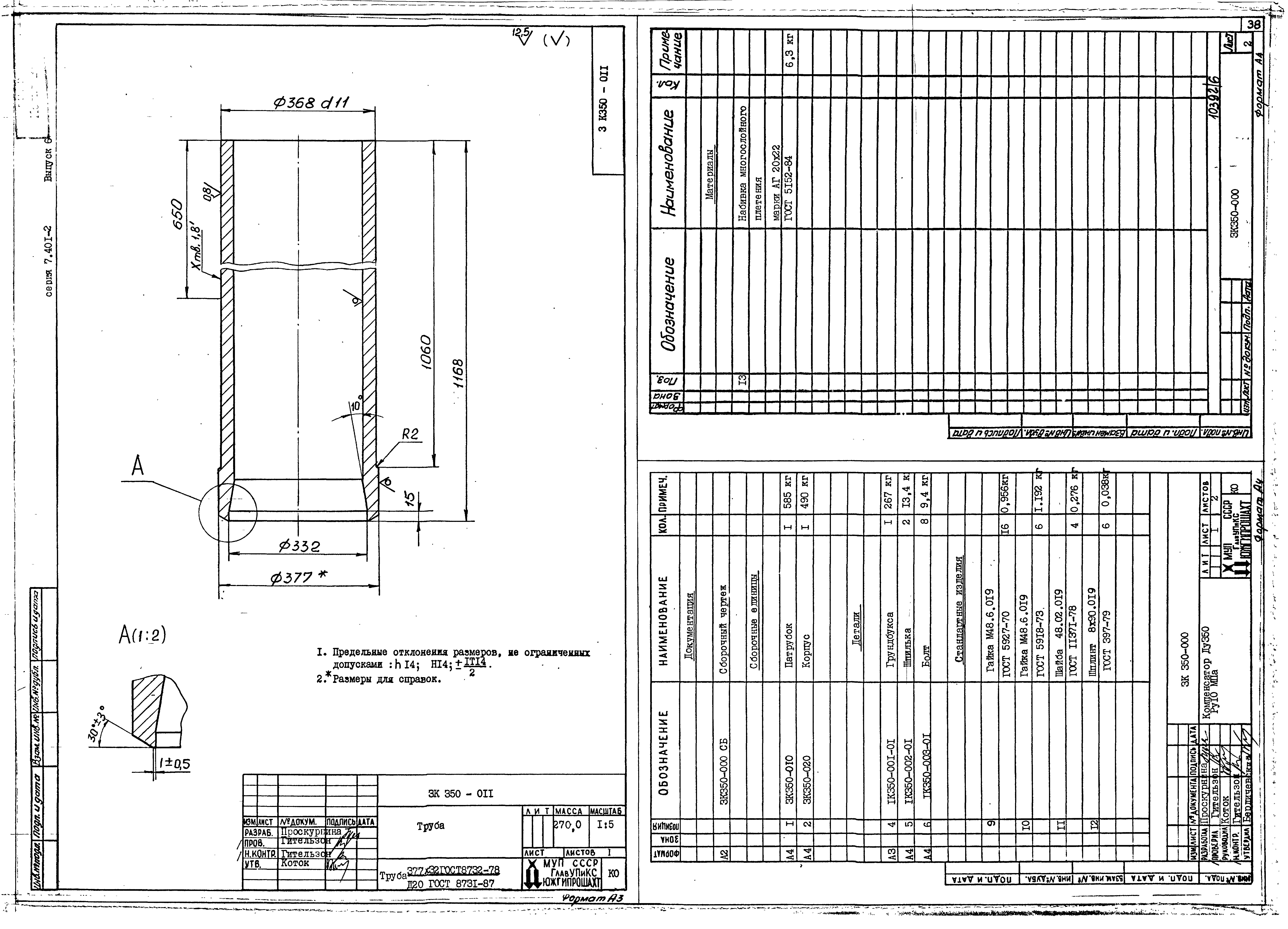
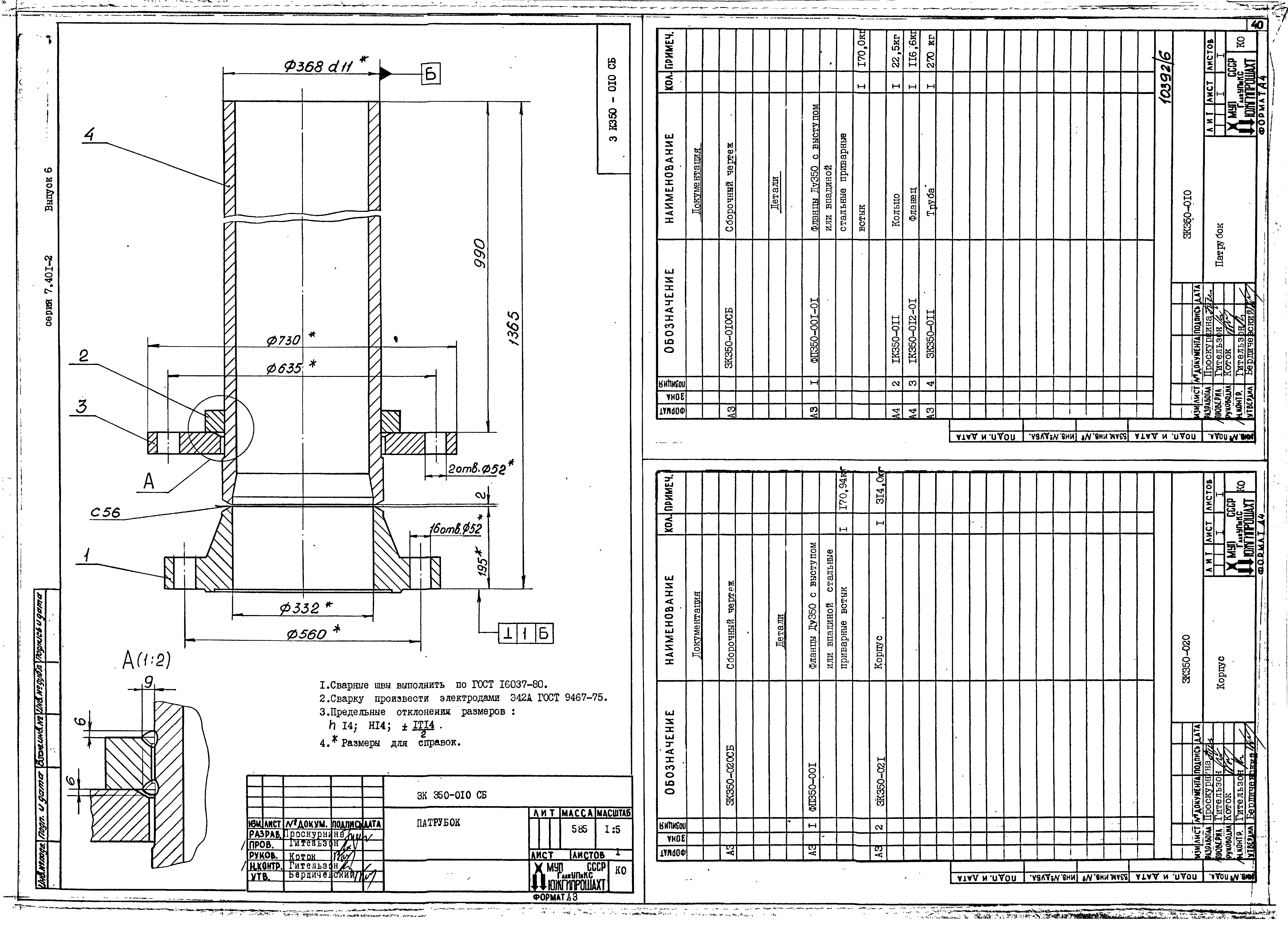
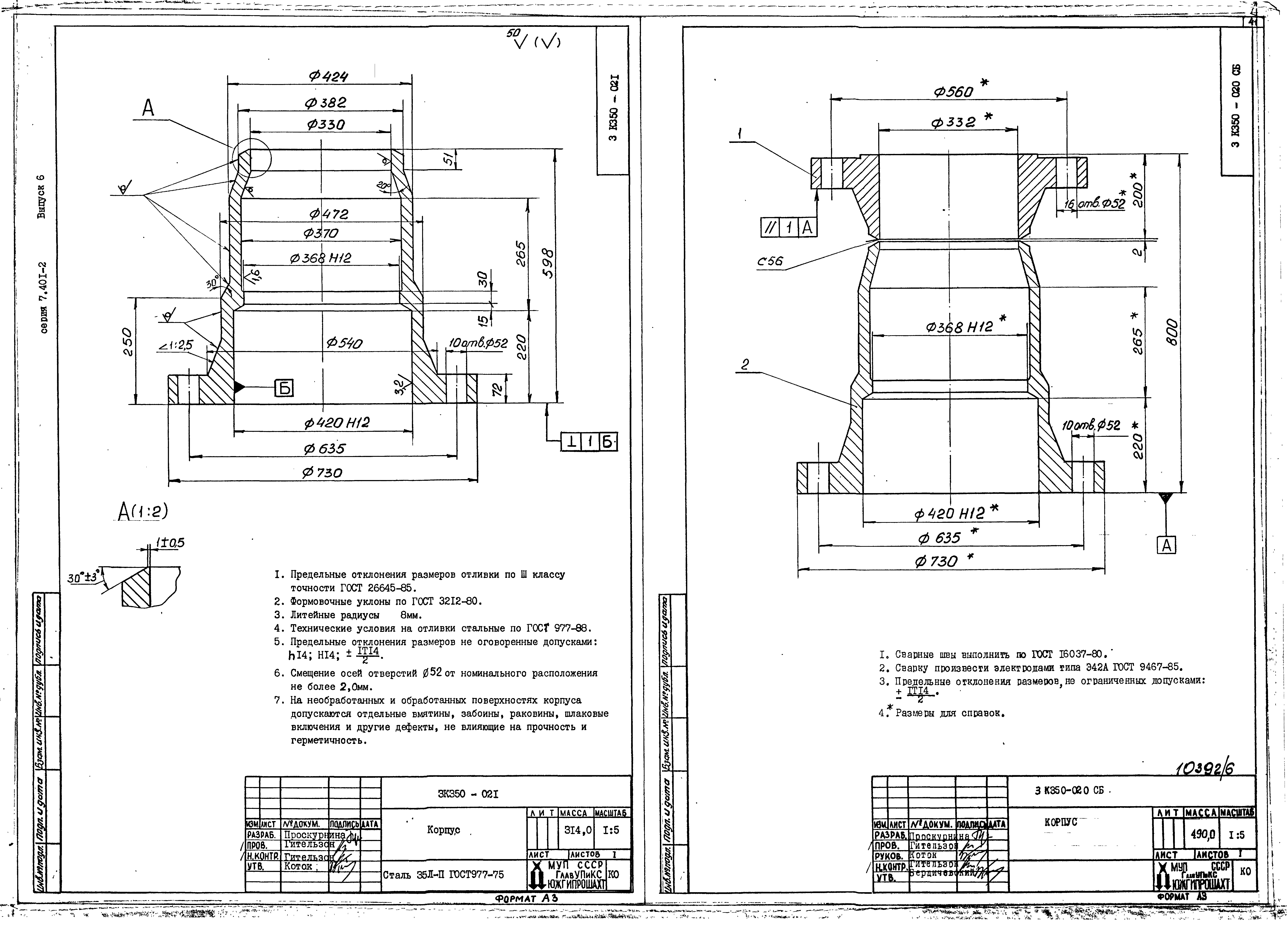
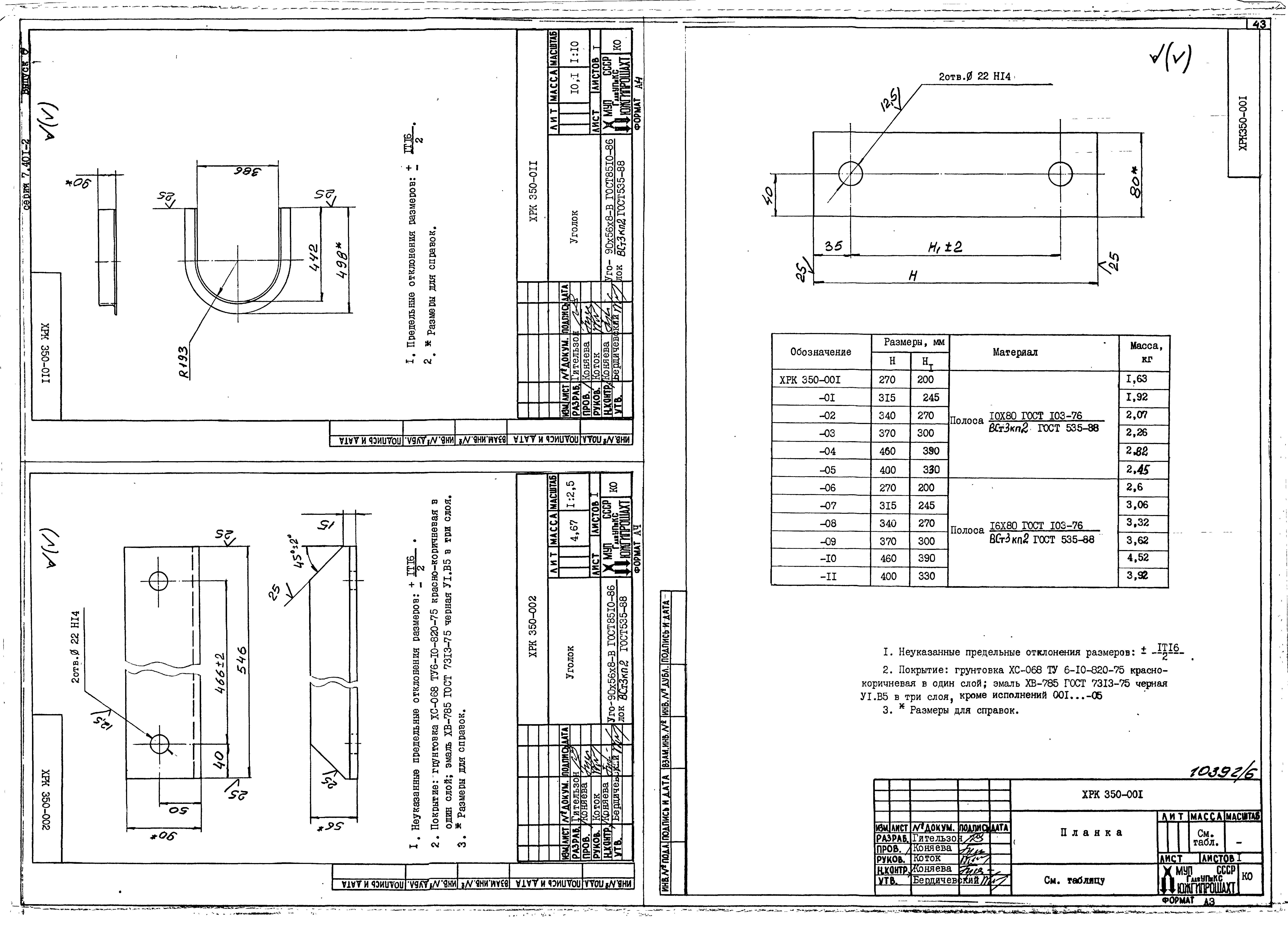
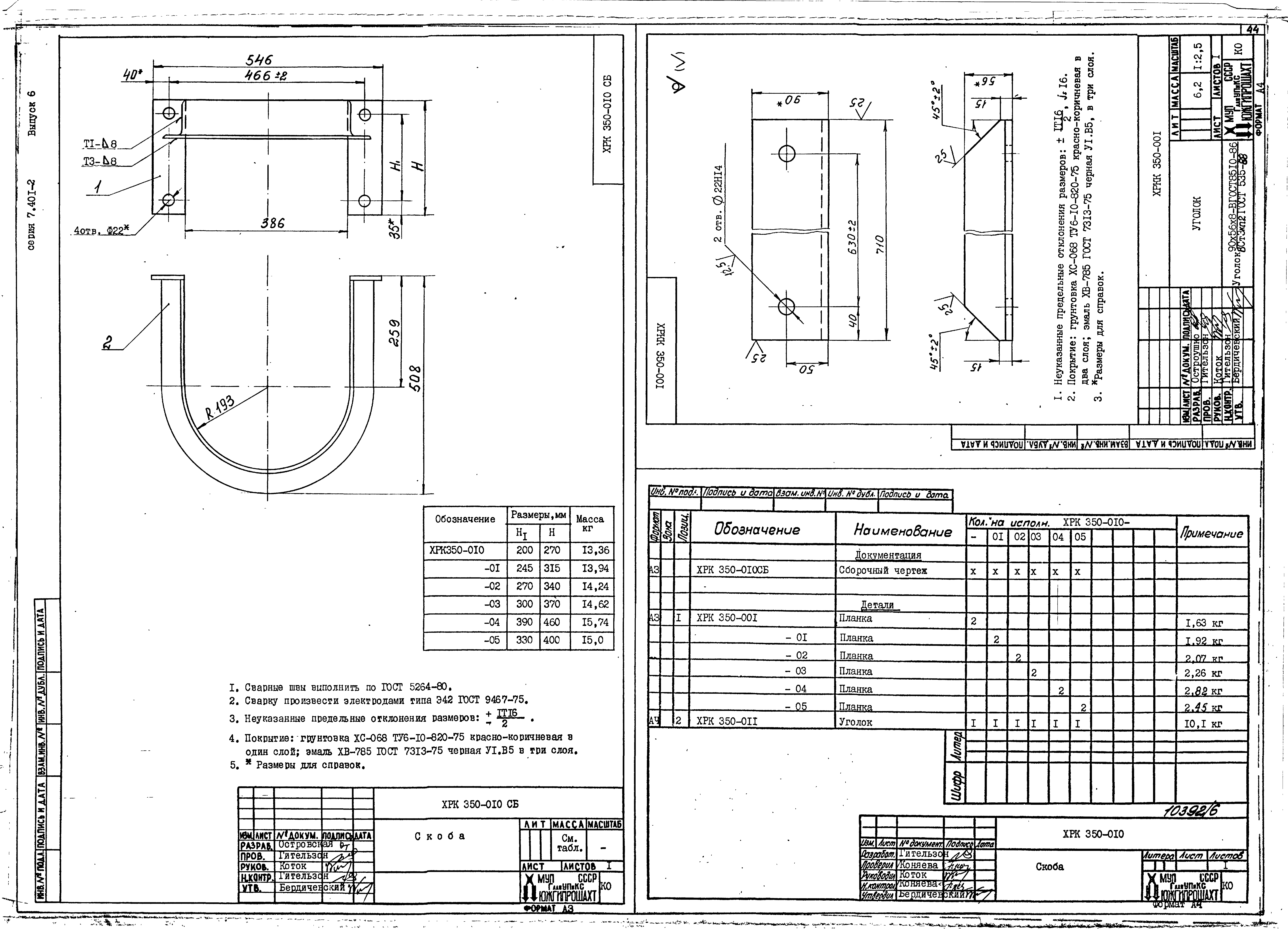
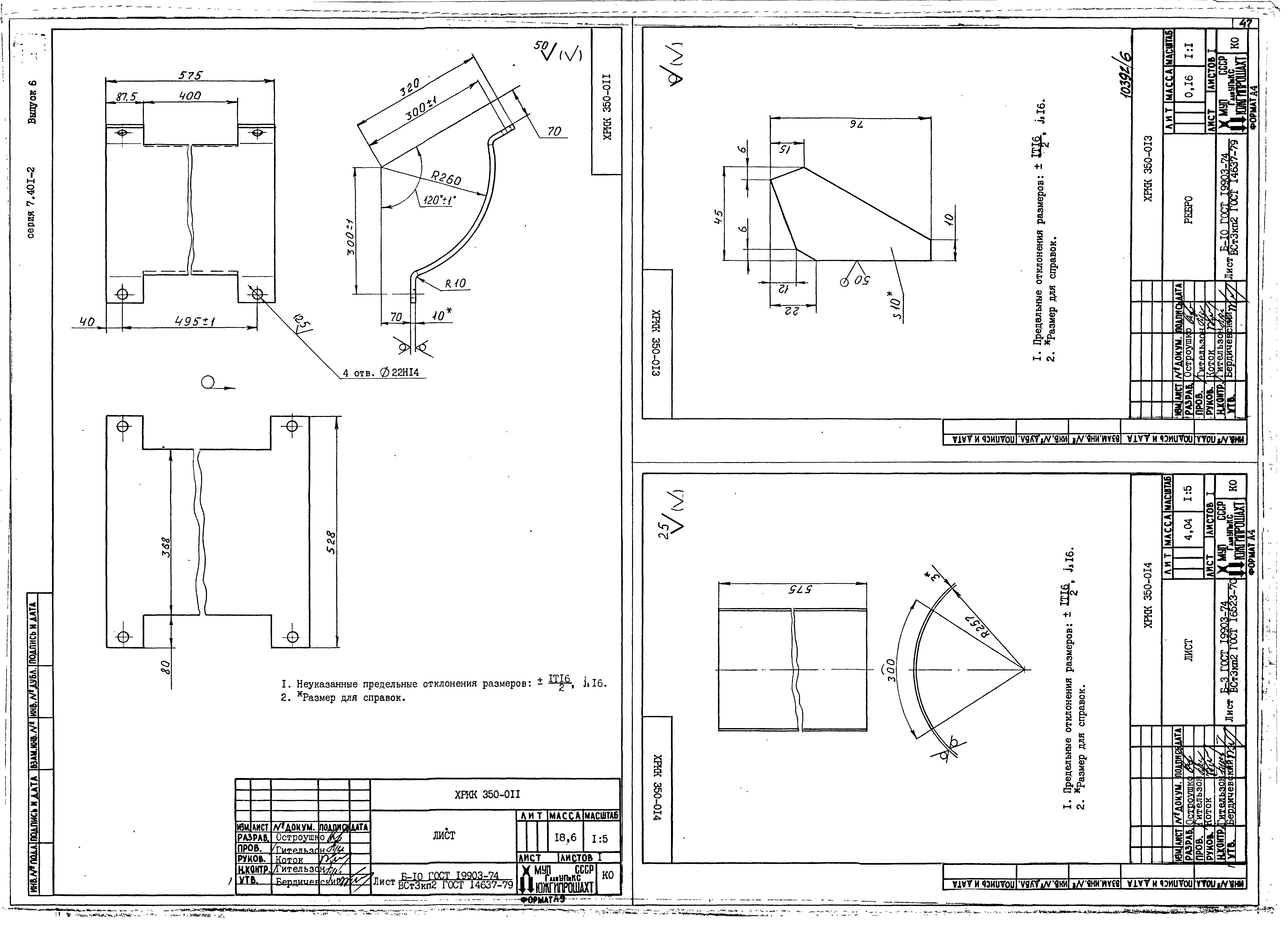
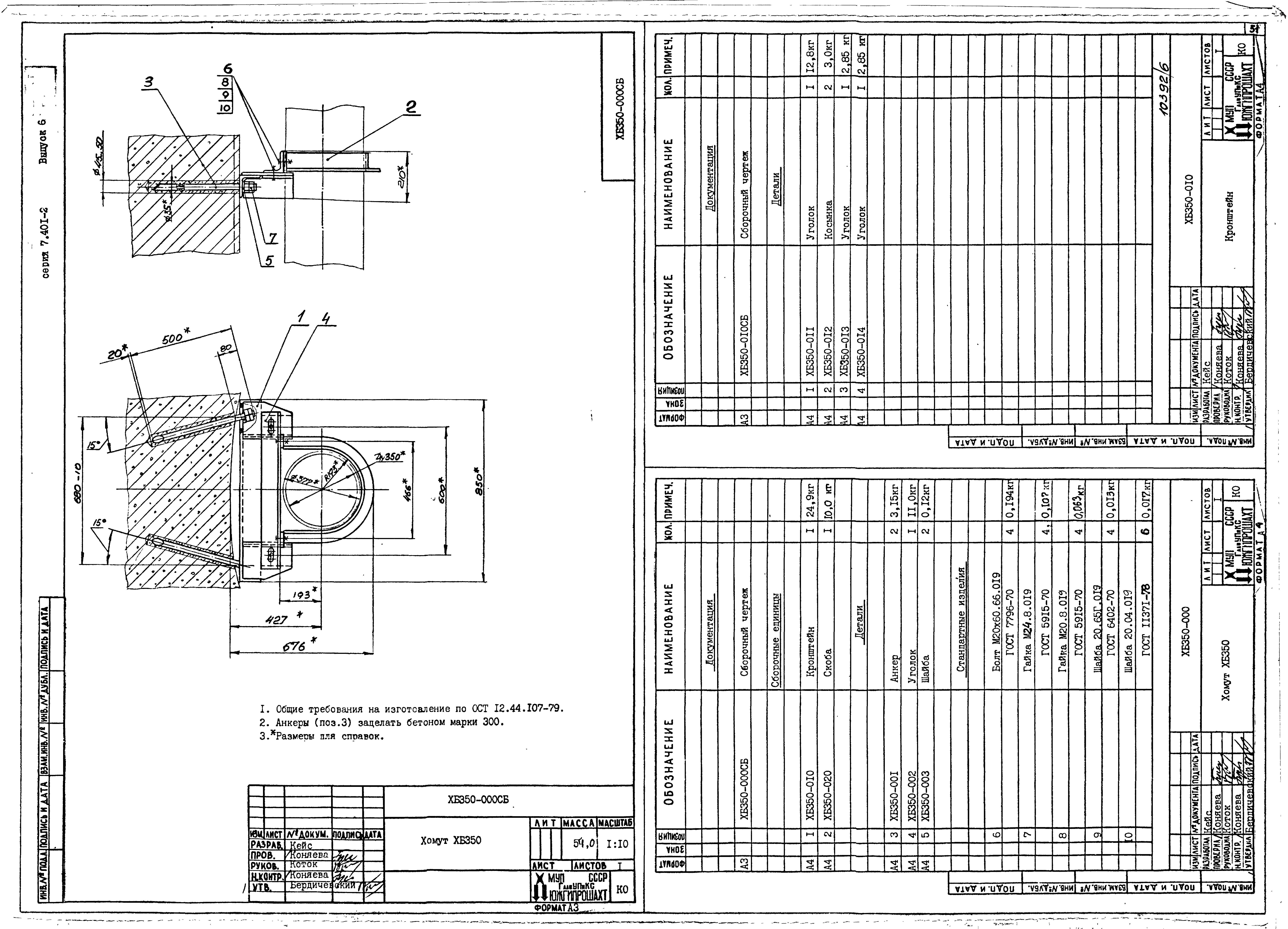
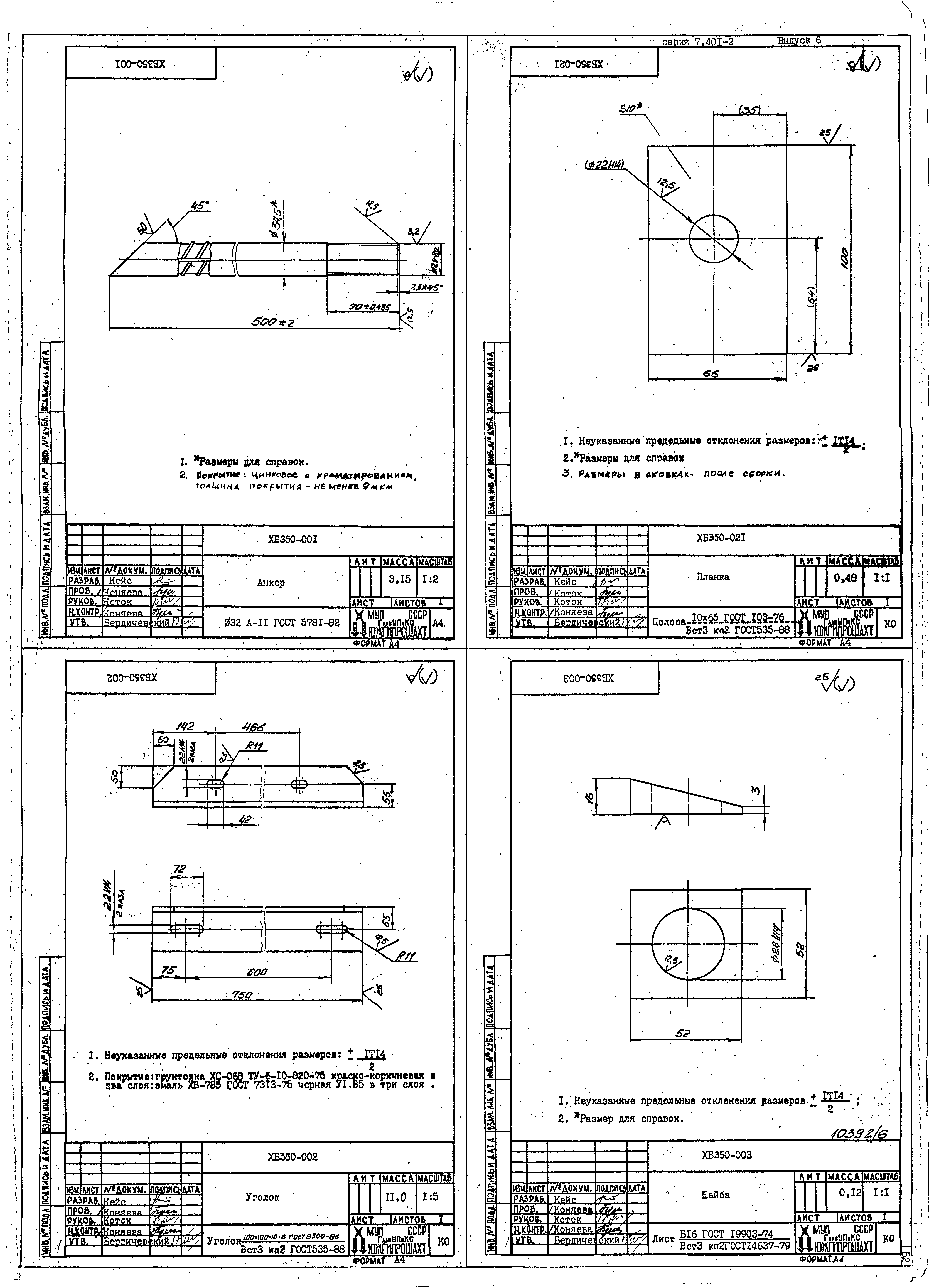
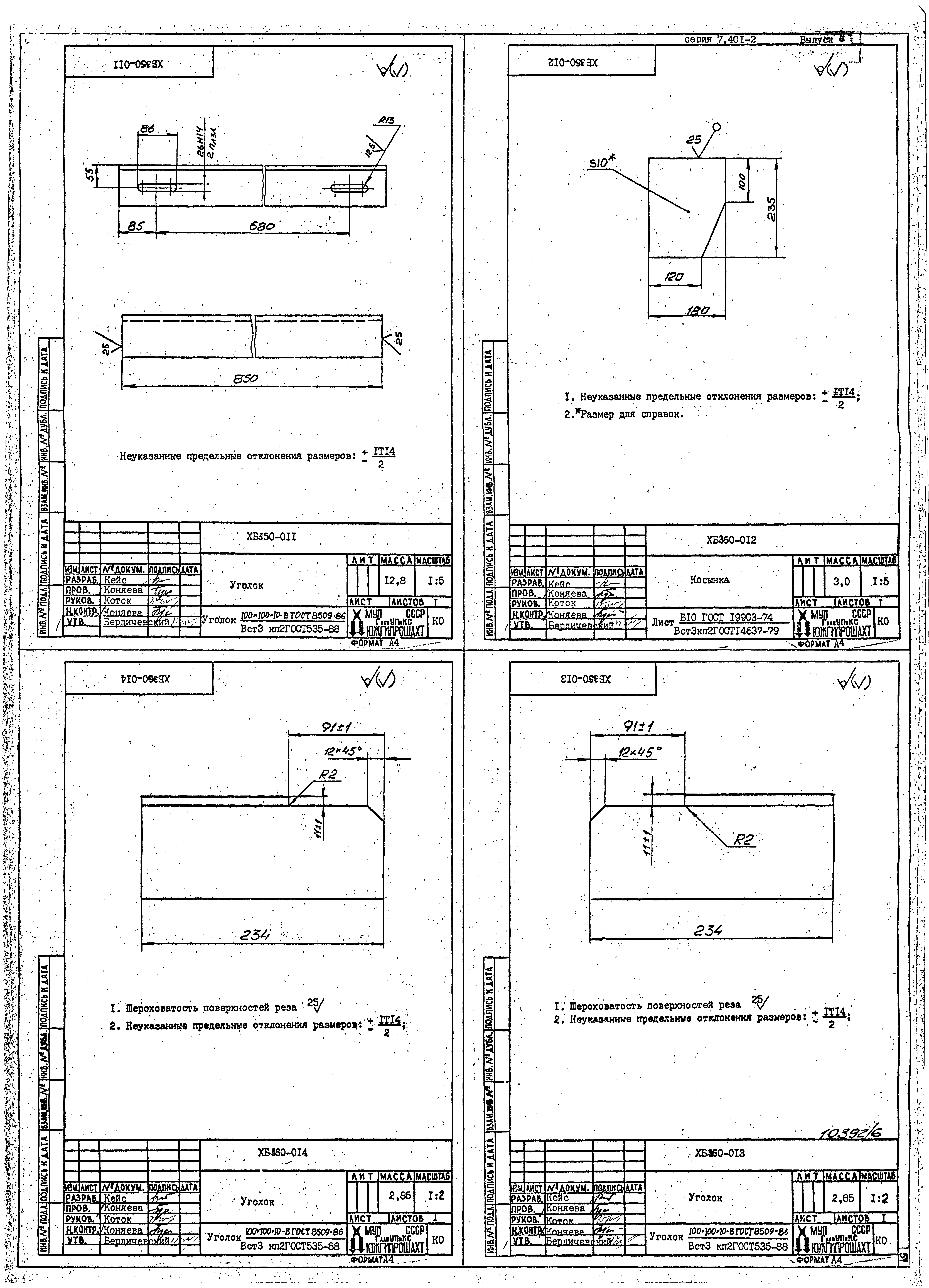
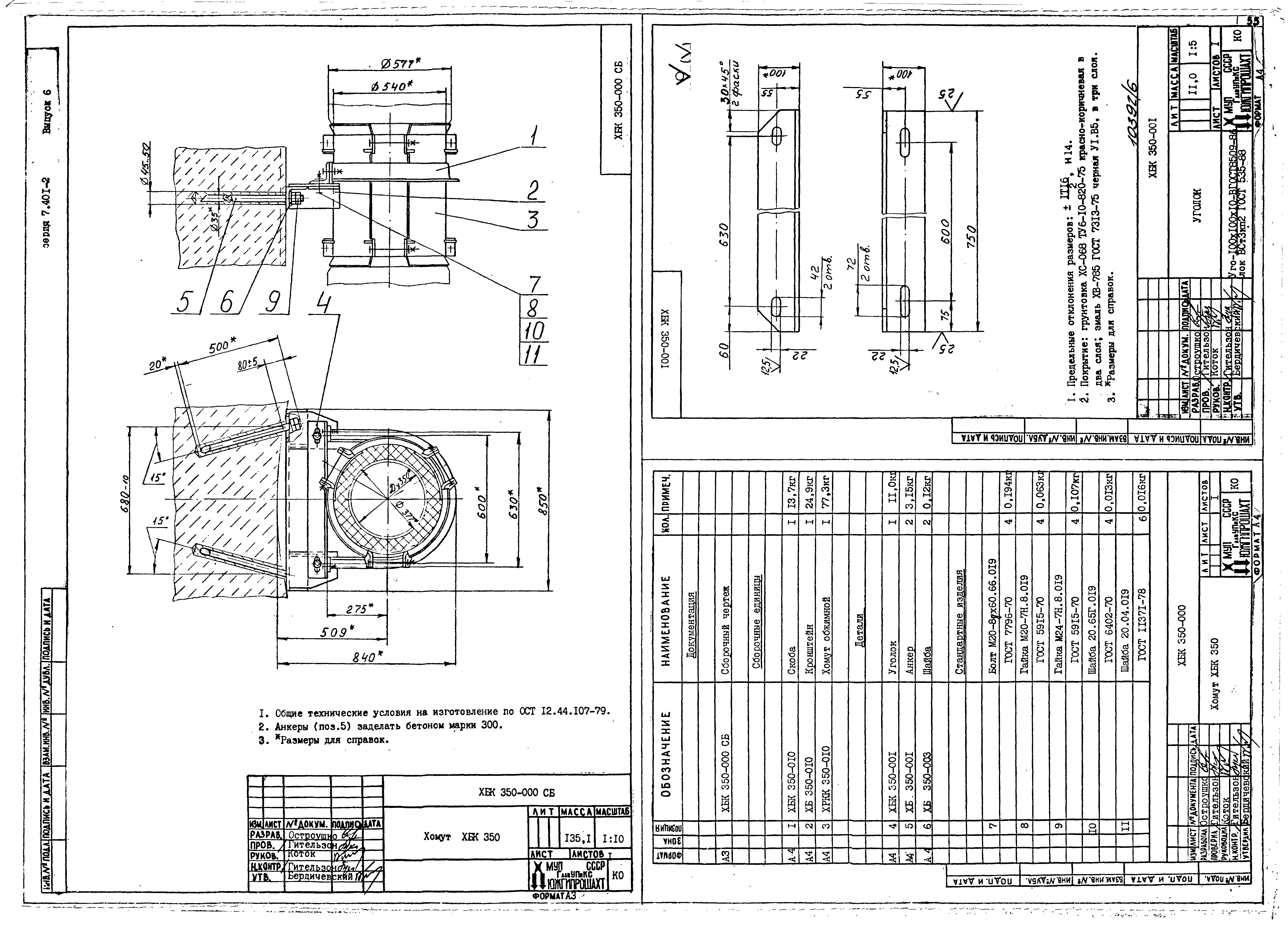
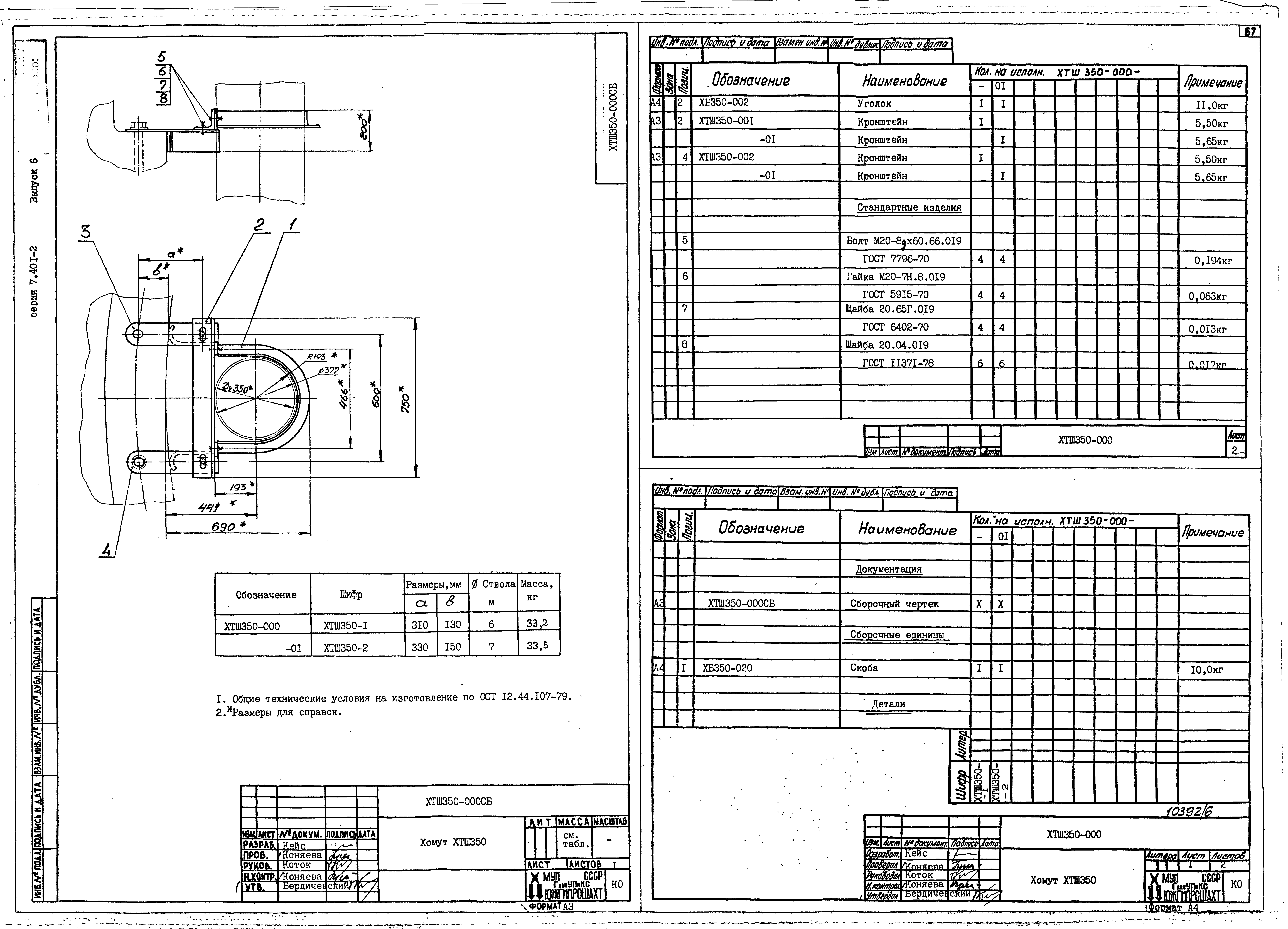
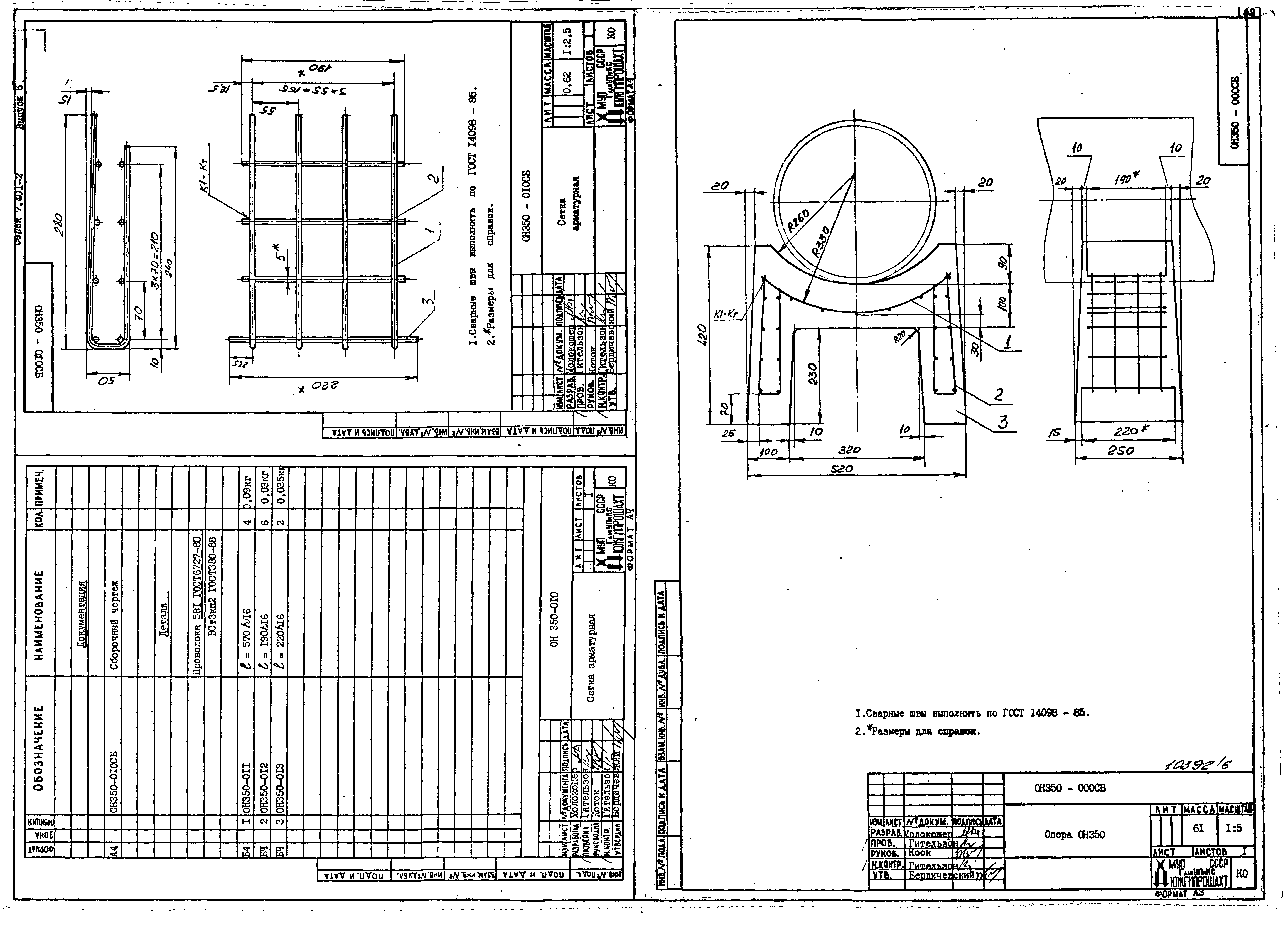
| Оглавление: | Содержание ПЗ Пояснительная записка 1ФС350-000 Фланцы ДУ350 стальные свободные на приварном кольце 2ФС350-000 Фланцы ДУ350 с выступом или впадиной свободные на приварном кольце ФП350-000 Фланцы ДУ350 с выступом или впадиной стальные приварные встык 1СОУ350-000 Стул опорный Ду350 Ру 1,0; 1,6; 2,5 МПа узкий 2СОУ350-000 Стул опорный Ду350 Ру 4,0; 6,3 МПа узкий 3СОУ350-000 Стул опорный Ду350 Ру 10 МПа узкий 1СОШ350-000 Стул опорный Ду350 Ру 1,0; 1,6; 2,5 МПа широкий 2СОШ350-000 Стул опорный Ду350 Ру 4,0; 6,3 МПа широкий 3СОШ350-000 Стул опорный Ду350 Ру 10 МПа широкий 1КО350-000 Колено опорное Ду350 Ру 1,0; 1,6; 2,5 МПа 2КО350-000 Колено опорное Ду350 Ру 4,0; 6,3 МПа 4КО350-000 Колено опорное Ду350 Ру 10 МПа 1К350-000 Компенсатор Ду350 Ру 1,0; 1,6; 2,5 МПа 2К350-000 Компенсатор Ду350 Ру 4,0; 6,3 МПа 3К350-000 Компенсатор Ду350 Ру 10 МПа ХРК350-000 Хомут ХРК 350 ХРКК350-000 Хомут ХРКК 350 ХРД350-000 Хомут ХРД 350 ХРДК350-000 Хомут ХРДК 350 ХБ350-000 Хомут ХБ 350 ХБК350-000 Хомут ХБК 350 ХТШ350-000 Хомут ХТШ 350 ХТШК350-000 Хомут ХТШК 350 ОГ350-000 Опора ОГ 350 ОН350-000 Опора ОН 350 УП350-000 Устройство противоугонное УП 350 |
| Разработан: | Южгипрошахт Минуглепрома СССР |
| Утверждён: | 25.10.1990 Минуглепром СССР (USSR Minugleprom 3-35-18/1079) |
| Издан: | Госстрой СССР (1991 г. ) |
| Заменяет собой: |
|



































































