Скачать Типовые проектные решения 416-09-22.83 Выпуск 4. Примеры планировочных решений встроенных помещений здравоохраненияДата актуализации: 01.01.2021
|
| Обозначение: | Типовые проектные решения 416-09-22.83 |
| Обозначение англ: | 416-09-22.83 |
| Статус: | справочные материалы, мп, тпр |
| Название рус.: | Выпуск 4. Примеры планировочных решений встроенных помещений здравоохранения |
| Дата добавления в базу: | 01.09.2013 |
| Дата актуализации: | 01.01.2021 |
| Дата окончания срока действия: | 24.06.1983 |
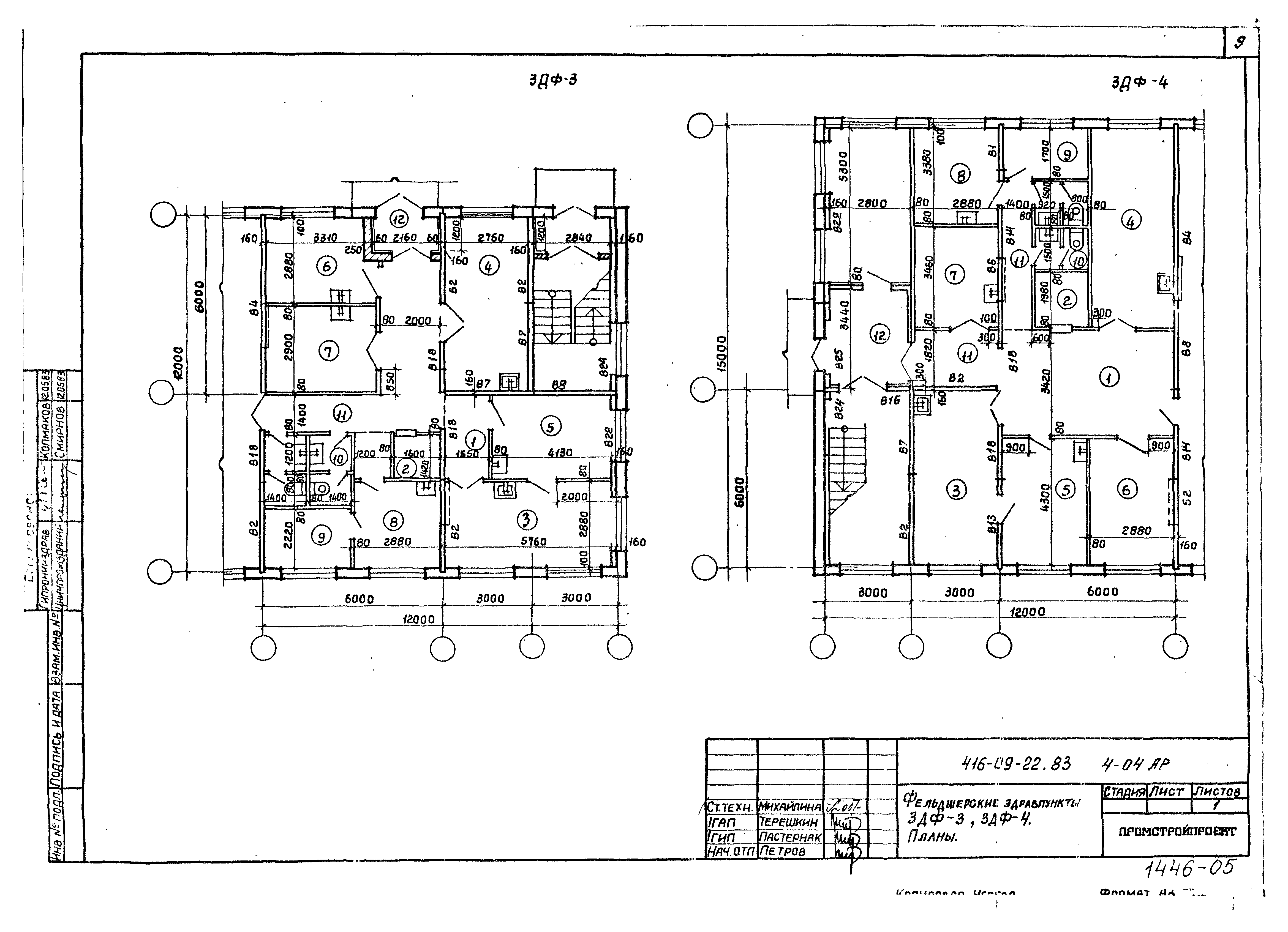
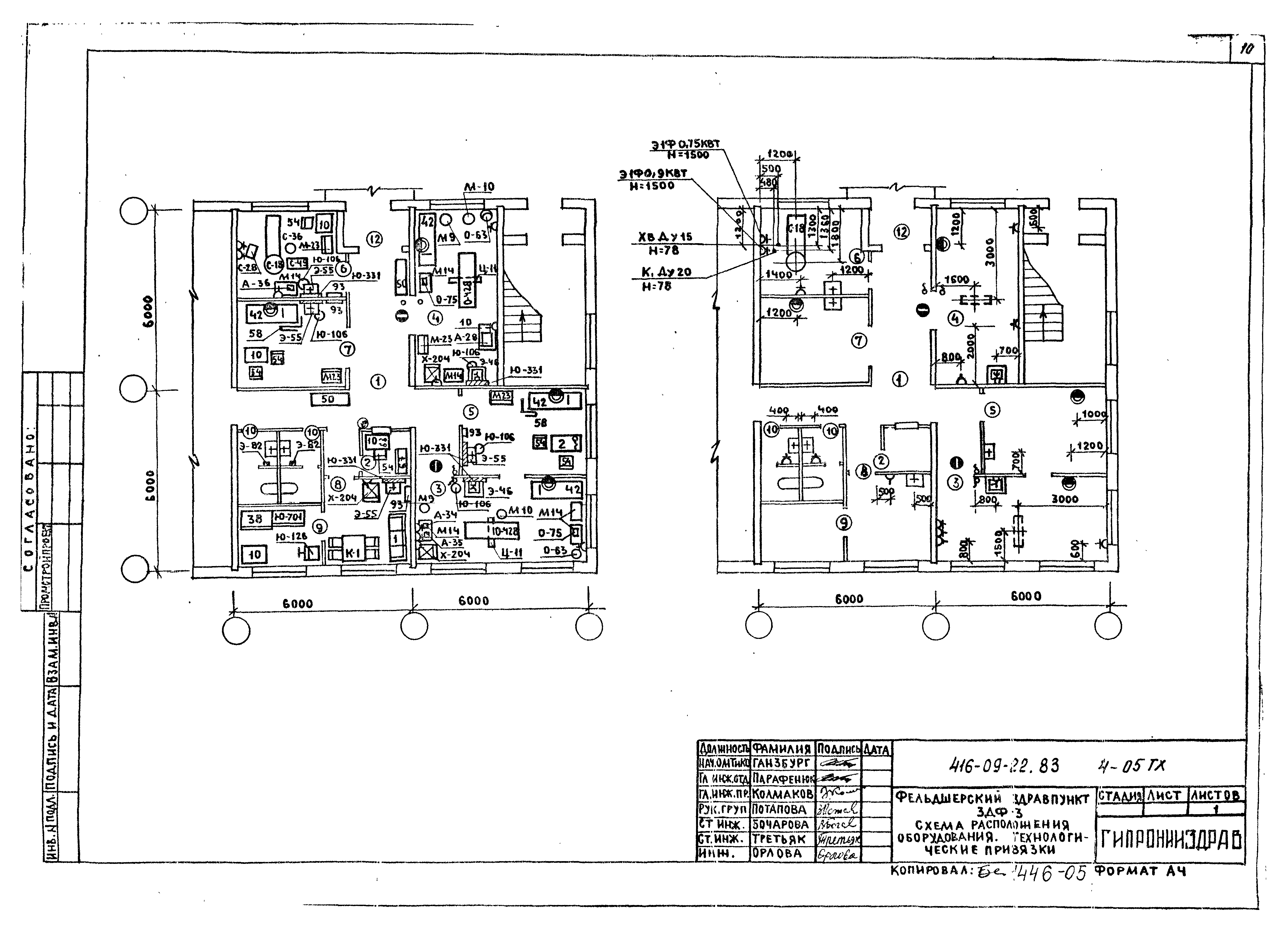
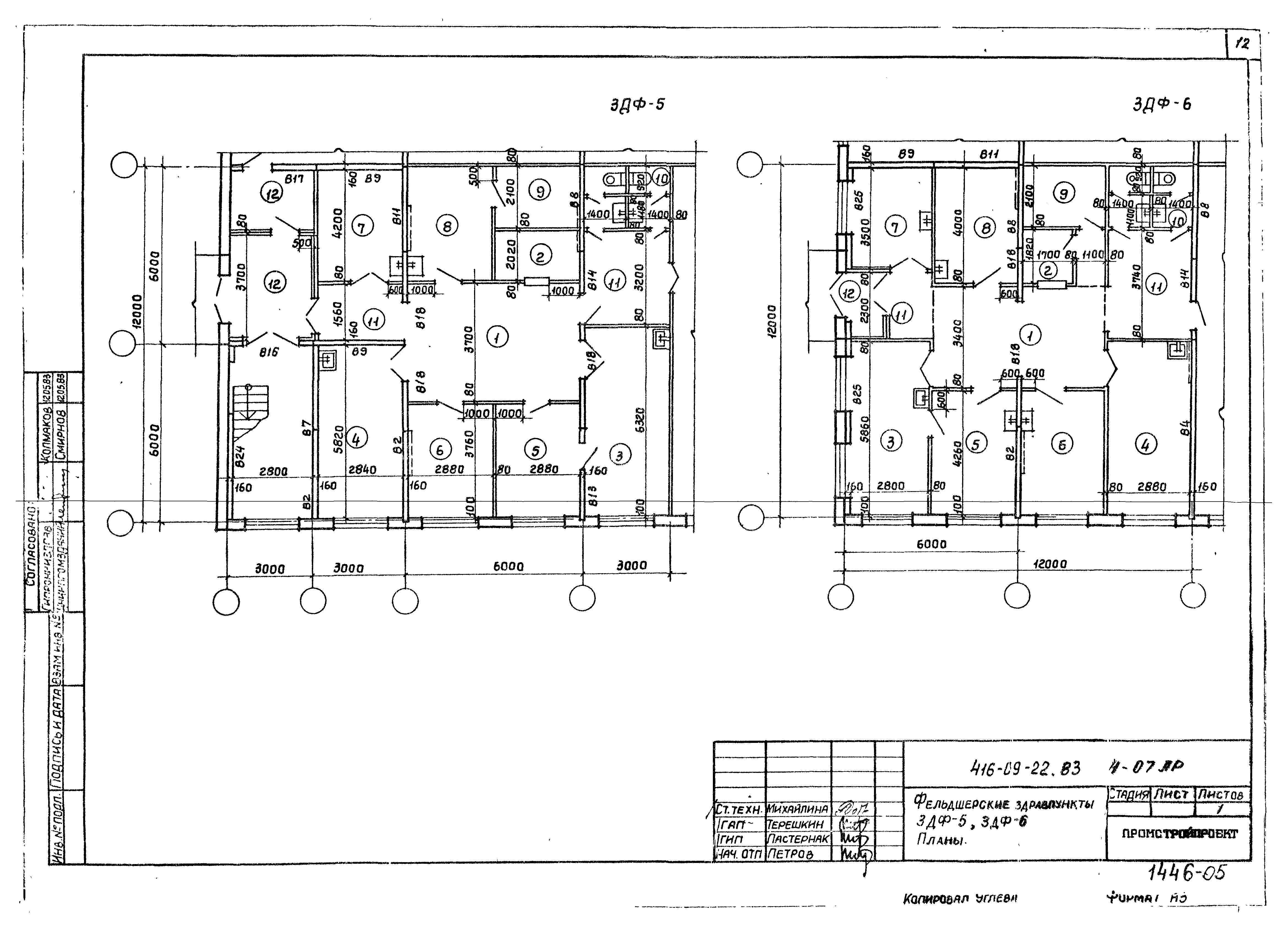
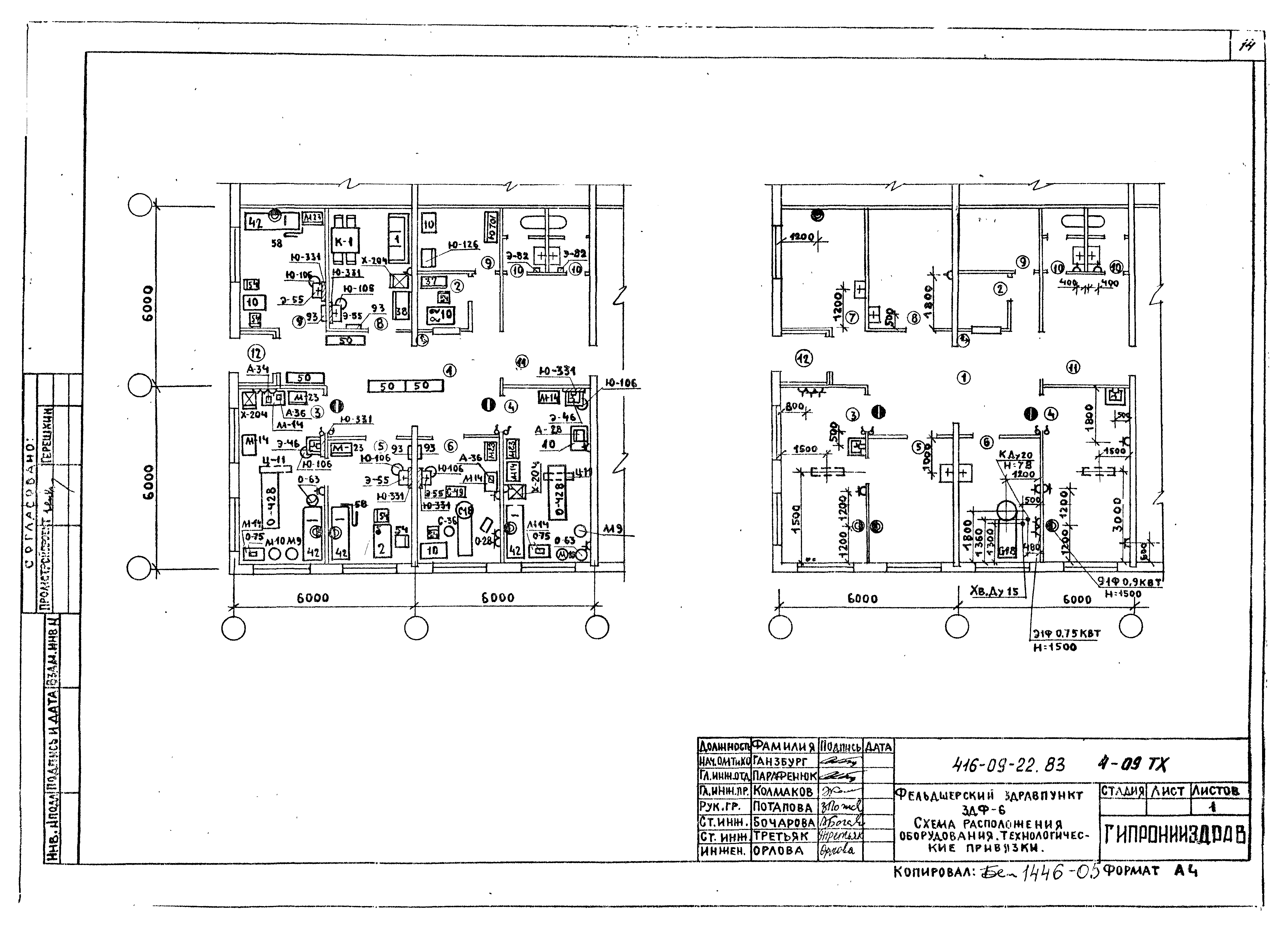
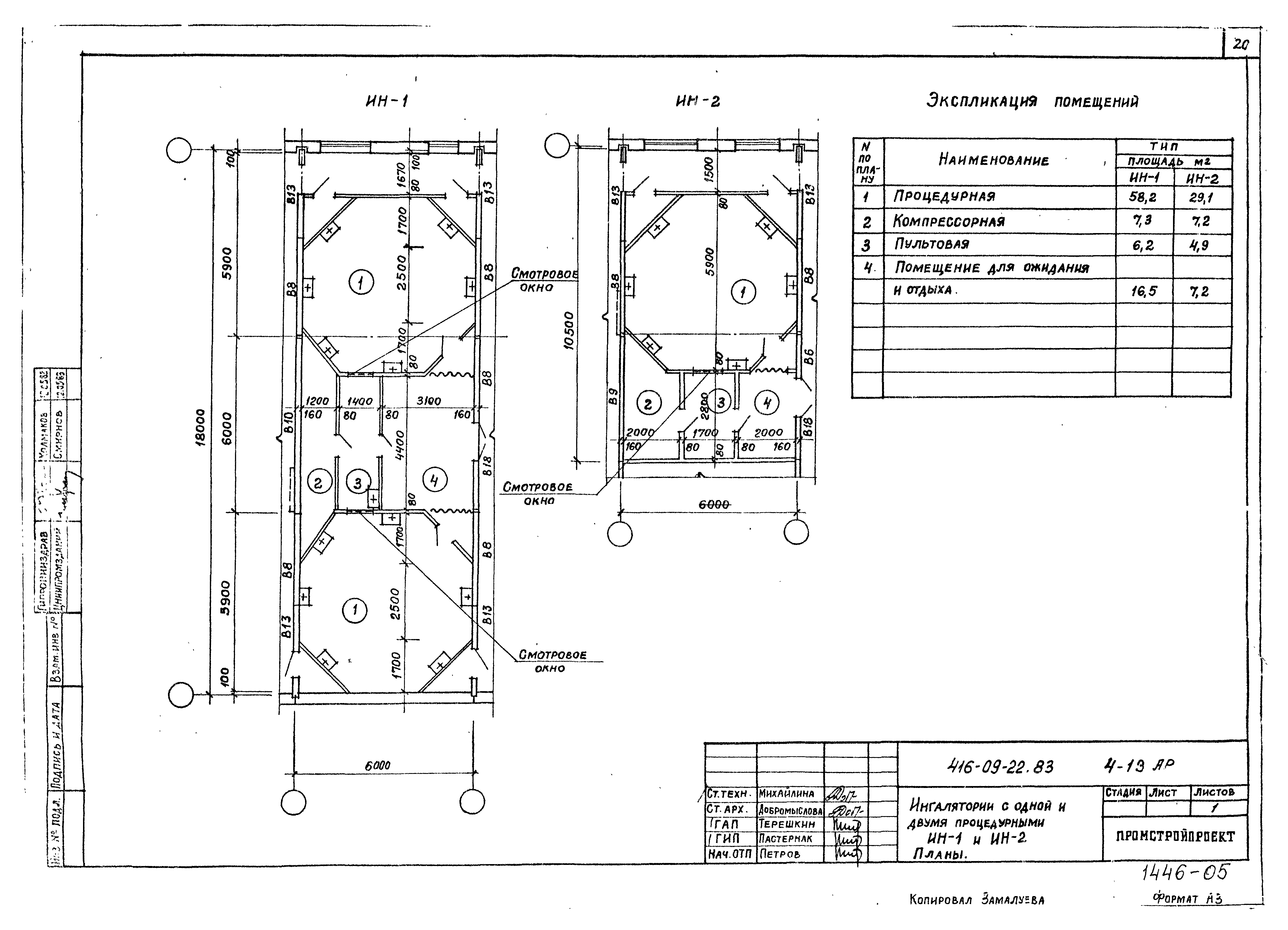
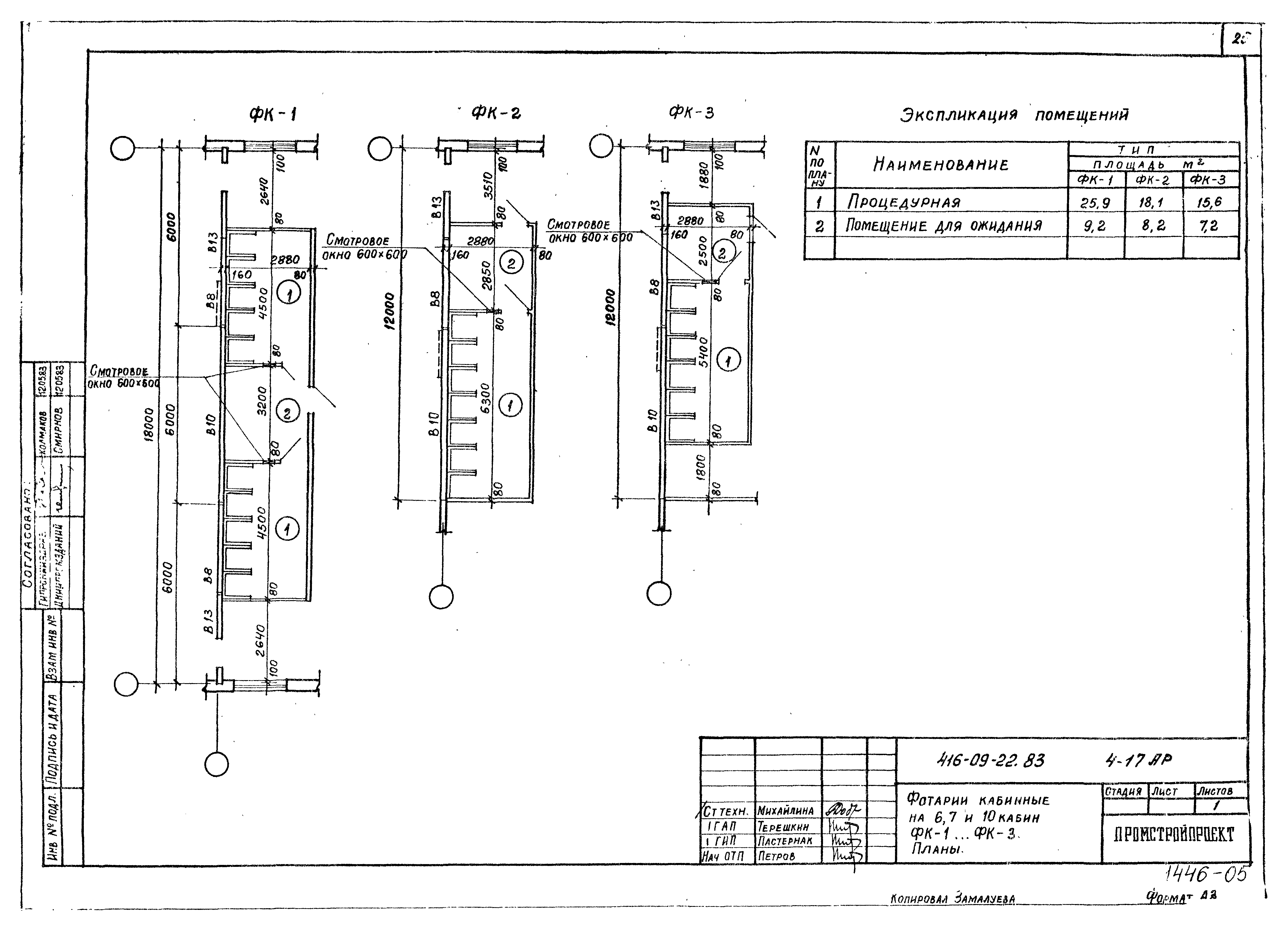
| Оглавление: | 4-00ПЗ Пояснительная записка 4-01АР Фельдшерские здравпункты ЗДф-1, ЗДф-2. Планы 4-02ТХ Фельдшерский здравпункт ЗДф-1. Схема расположения оборудования. Технологические привязки 4-03ТХ Фельдшерский здравпункт ЗДф-2. Схема расположения оборудования. Технологические привязки 4-04АР Фельдшерские здравпункты ЗДф-3, ЗДф-4. Планы 4-05ТХ Фельдшерский здравпункт ЗДф-3. Схема расположения оборудования. Технологические привязки 4-06ТХ Фельдшерский здравпункт ЗДф-4. Схема расположения оборудования. Технологические привязки 4-07АР Фельдшерские здравпункты ЗДф-5, ЗДф-6. Планы 4-08ТХ Фельдшерский здравпункт ЗДф-5. Схема расположения оборудования. Технологические привязки 4-09ТХ Фельдшерский здравпункт ЗДф-6. Схема расположения оборудования. Технологические привязки 4-10АР Медицинские комнаты МК-1, МК-2. Планы 4-11ТХ Медицинские комнаты МК-1, МК-2. Схемы расположения оборудования. Технологические привязки 4-12ТХ Фельдшерские здравпункты. Спецификация технологического оборудования 4-13АР Ингалятории с одной и двумя процедурными ИН-1, ИН-2. Планы 4-14ТХ Ингалятории ИН-1, ИН-2. Схемы расположения технологического оборудования 4-14ТХ Экспликация оборудования 4-15АР Фотарии проходные на 1 и 2 прохода ФП-1 - ФП-3. Планы 4-16ТХ Фотарии проходные ФП-1, ФП-2, ФП-3. Схемы расположения оборудования 4-17АР Фотарии кабинные на 6, 7 и 10 кабин ФК-1 - ФК-3. Планы 4-18АР Фотарии кабинные на 2, 3, 4 и 6 кабин ФК-4 - ФК-8. Планы 4-19ТХ Фотарии кабинные ФК-1, ФК-2, ФК-3. Схемы расположения оборудования 4-20ТХ Фотарии кабинные ФК-4, ФК-5, ФК-6, ФК-7, ФК-8. Схемы расположения оборудования 4-21АР Помещение для личной гигиены женщин при уборных ЛГЖу-1А, ЛГЖу-1Б, ЛГЖу-1В, ЛГЖу-2, ЛГЖу-3. Планы 4-22ТХ Помещение личной гигиены женщин при уборных ЛГЖу-1, ЛГЖу-2, ЛГЖу-3. Схемы расположения технологического оборудования 4-23АР Помещения для личной гигиены женщин при здравпунктах ЛГЖз-1 - ЛГЖз-4. Планы 4-24ТХ Помещения личной гигиены женщин при здравпунктах ЛГЖз-1, ЛГЖз-2, ЛГЖз-3, ЛГЖз-4. Расположение технологического оборудования 4-25АР Таблица отделки и кратности обмена воздуха помещений здравоохранения |
| Разработан: | ЦНИИпромзданий ГипроНИИздрав Минздрава СССР Промстройпроект |
| Утверждён: | 24.06.1983 Госстрой СССР (Государственный комитет Совета Министров СССР по делам строительства) (USSR Gosstroy ВА-25) |

































