Скачать Типовой проект 704-5-16 Альбом I. Общая часть. Технологические и сантехнические чертежиДата актуализации: 01.01.2021
|
| Обозначение: | Типовой проект 704-5-16 |
| Обозначение англ: | 704-5-16 |
| Статус: | действует |
| Название рус.: | Альбом I. Общая часть. Технологические и сантехнические чертежи |
| Дата добавления в базу: | 01.09.2013 |
| Дата актуализации: | 01.01.2021 |
| Дата введения: | 01.10.1980 |
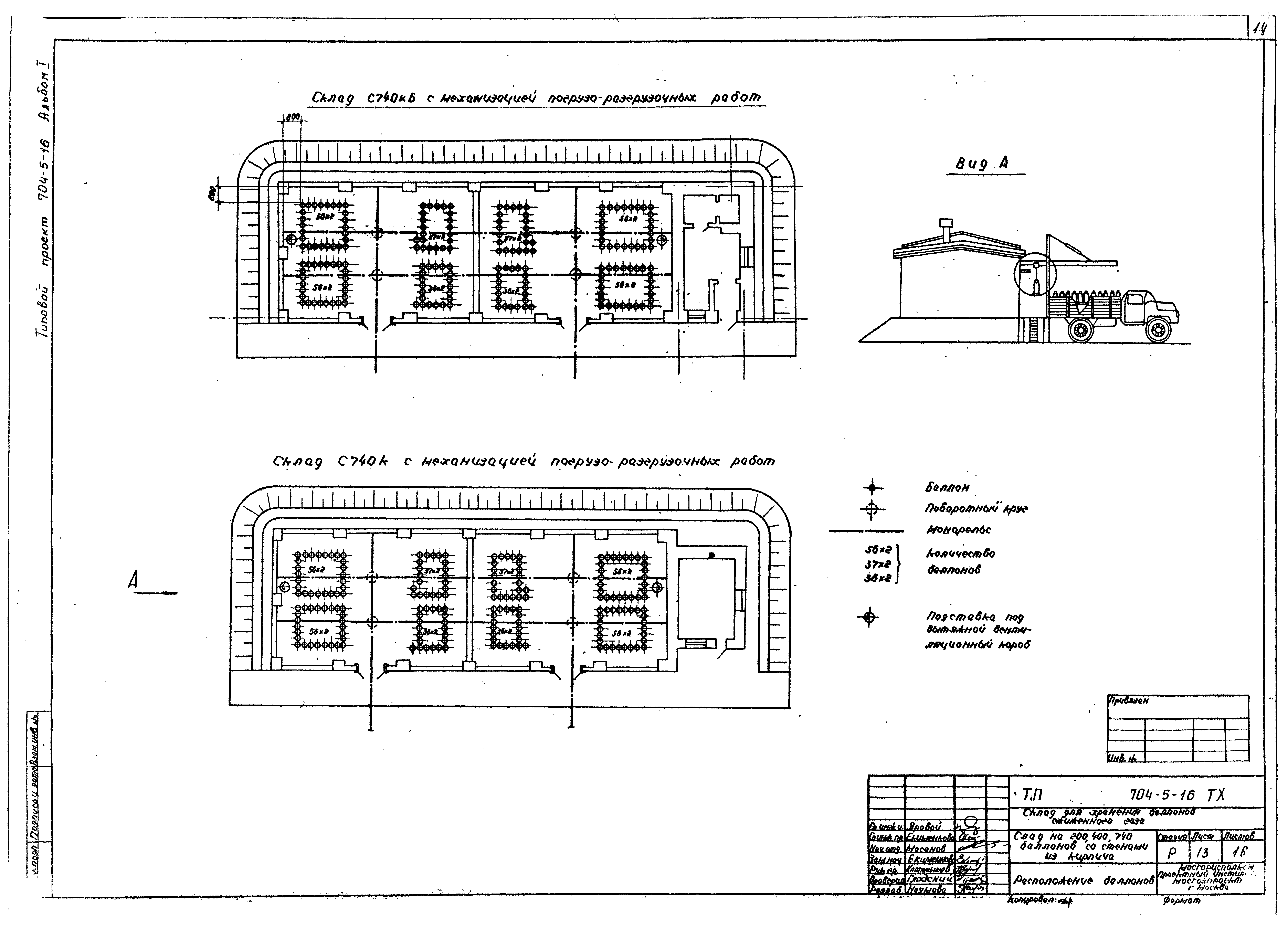
| Оглавление: | 1. Титульный лист 2. Содержание альбома 3. Общие данные 4. Пояснительная записка 5. Склад на 50; 100; 200 баллонов со стенами из металлической сетки. Схема генплана 6. Склад на 200; 400; 740 баллонов со стенами из кирпича. Схема генплана 7. Склад на 200; 400; 740 баллонов со стенами из кирпича. Номенклатура складов 8. Склад на 50; 100; 200 баллонов со стенами из металлической сетки. Номенклатура складов 9. Склад на 200; 400; 740 баллонов со стенами из кирпича. Расположение баллонов 10. Склад на 200; 400; 740 баллонов со стенами из кирпича. Расположение баллонов 11. Склад на 50; 100; 200 баллонов со стенами из металлической сетки. Расположение баллонов 12. Склад на 200; 400; 740 баллонов со стенами из кирпича. Водопровод и канализация вспомогательного помещения 13. Склад на 200; 400; 740 баллонов со стенами из кирпича. Отопление и вентиляция вспомогательного помещения |
| Разработан: | Мосгазниипроект Мосгорисполкома |
| Утверждён: | 13.12.1979 МосгазНИИпроект (181) |
| Заменяет собой: |
|















