Скачать Типовой проект 704-5-16 Альбом III. Склады на 200, 400, 740 баллонов со стенами из кирпича. Архитектурно-строительные и электрические чертежиДата актуализации: 01.01.2021
|
| Обозначение: | Типовой проект 704-5-16 |
| Обозначение англ: | 704-5-16 |
| Статус: | действует |
| Название рус.: | Альбом III. Склады на 200, 400, 740 баллонов со стенами из кирпича. Архитектурно-строительные и электрические чертежи |
| Дата добавления в базу: | 01.09.2013 |
| Дата актуализации: | 01.01.2021 |
| Дата введения: | 01.10.1980 |
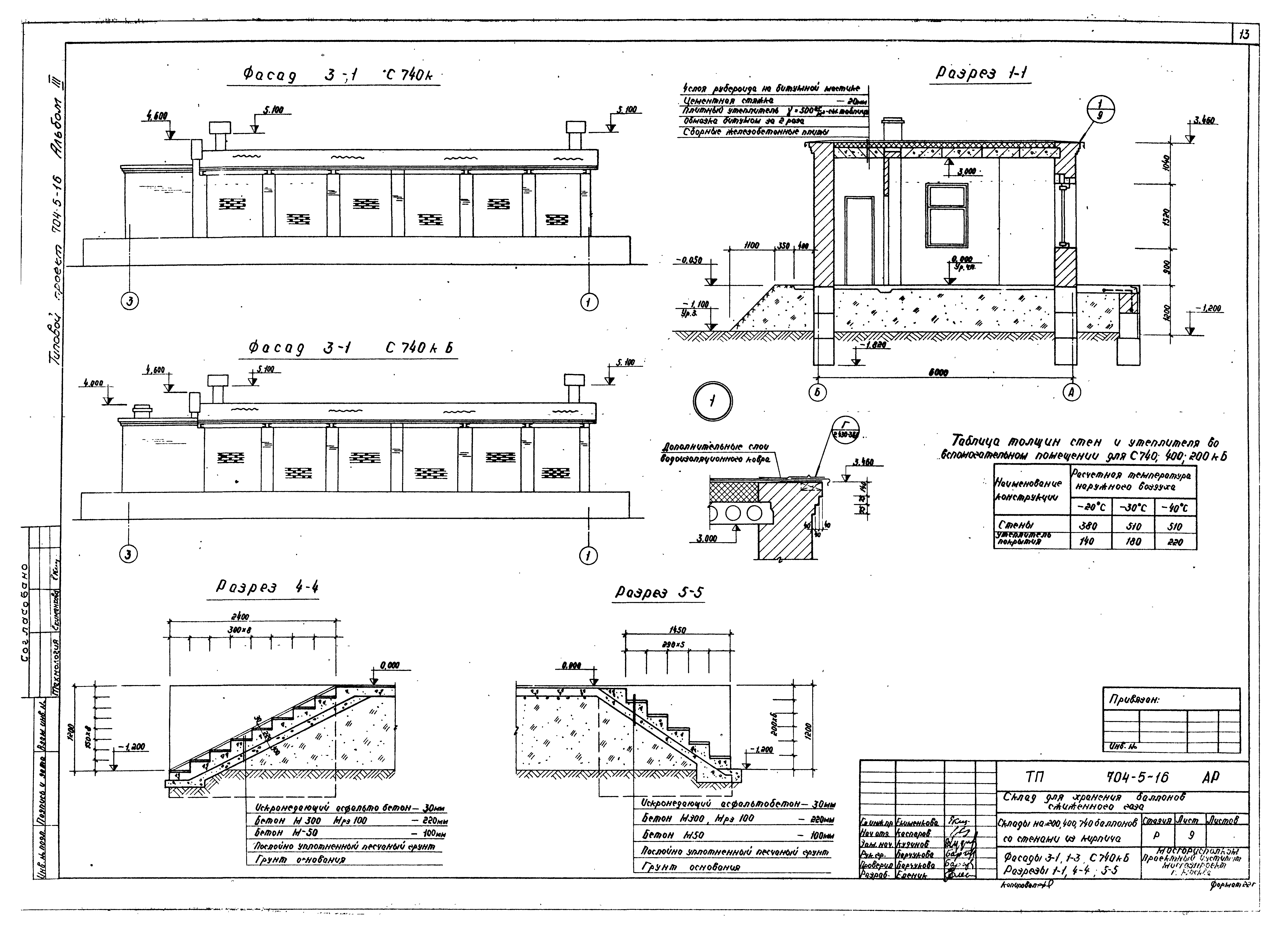
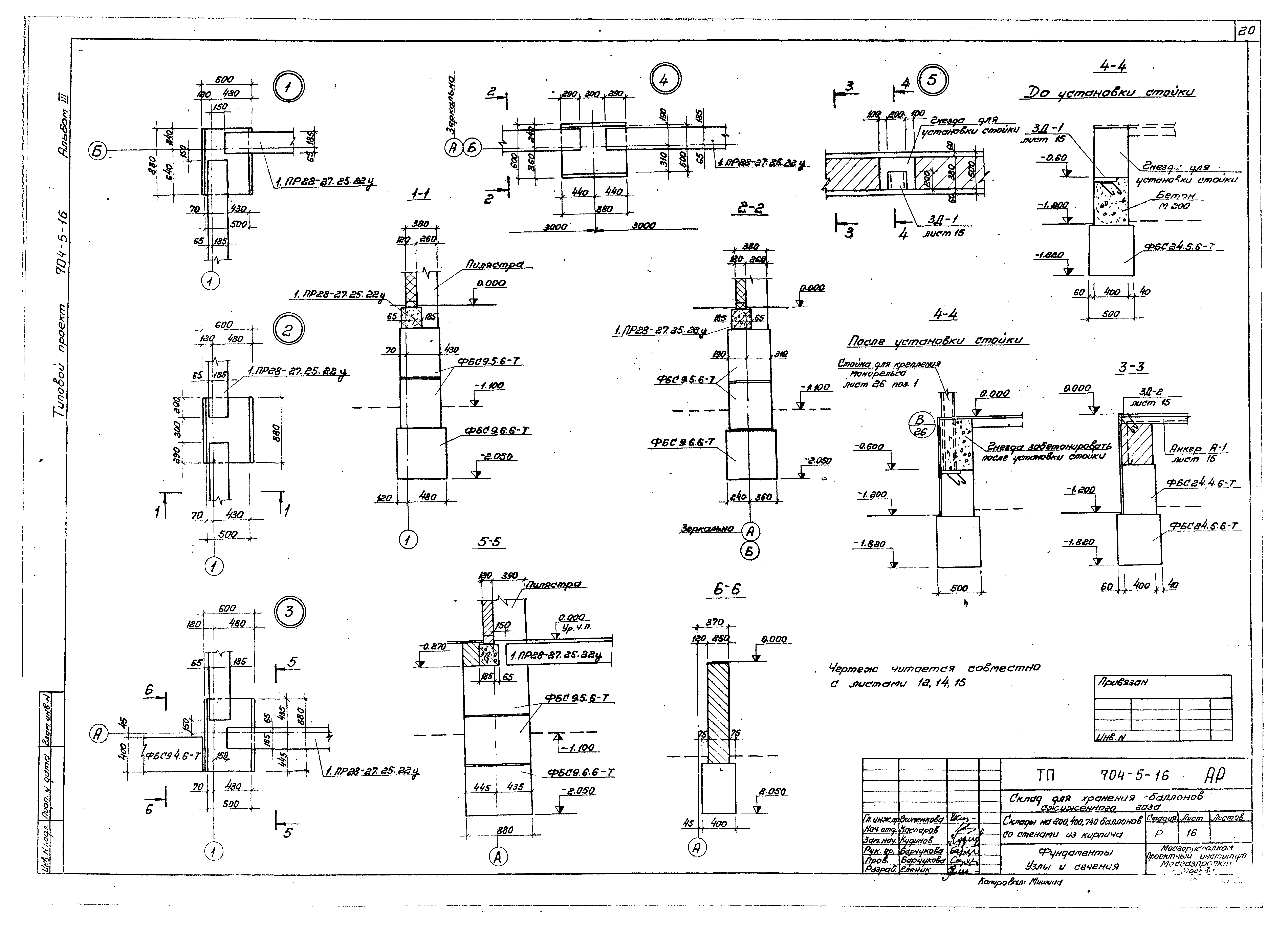
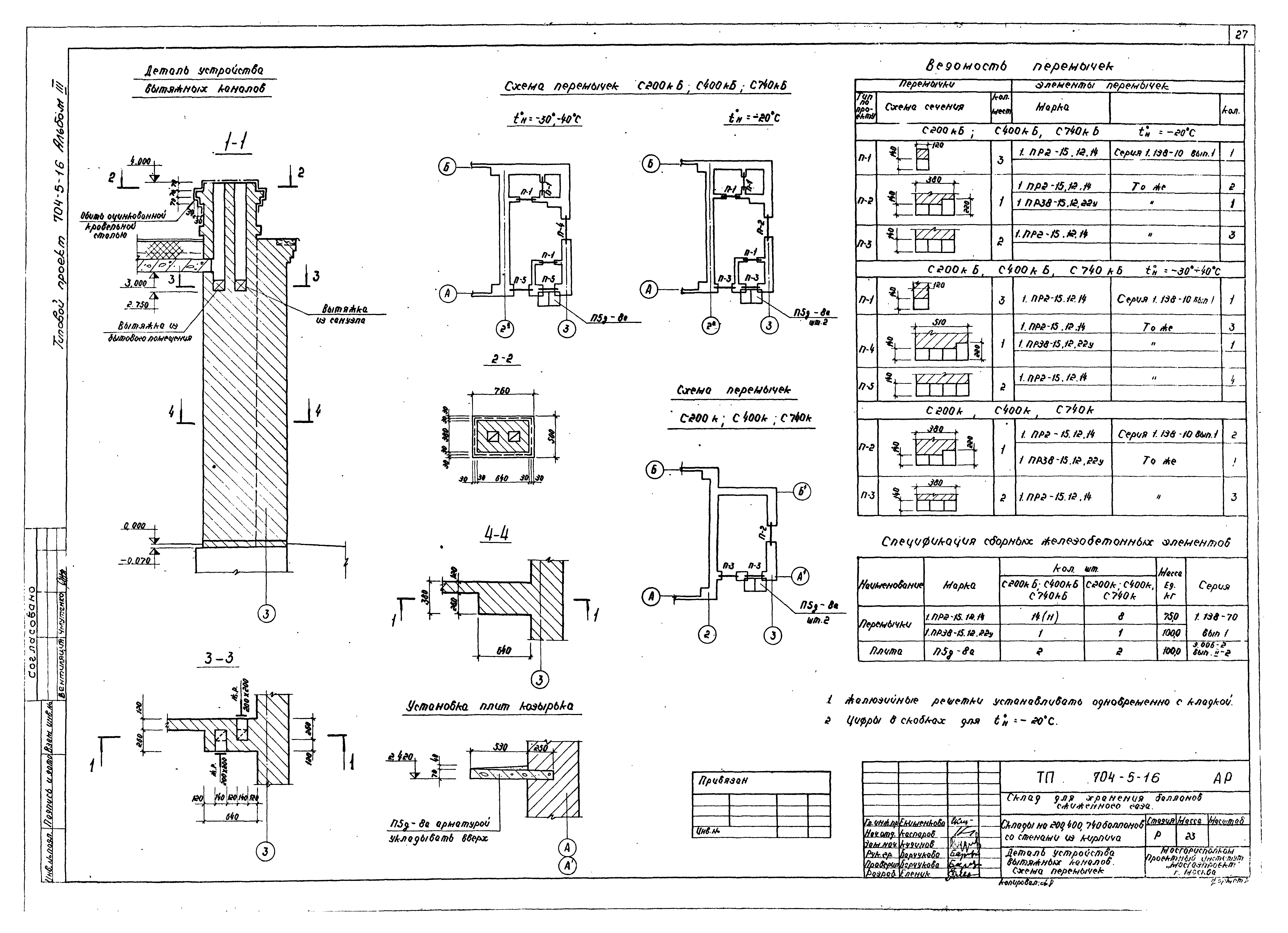
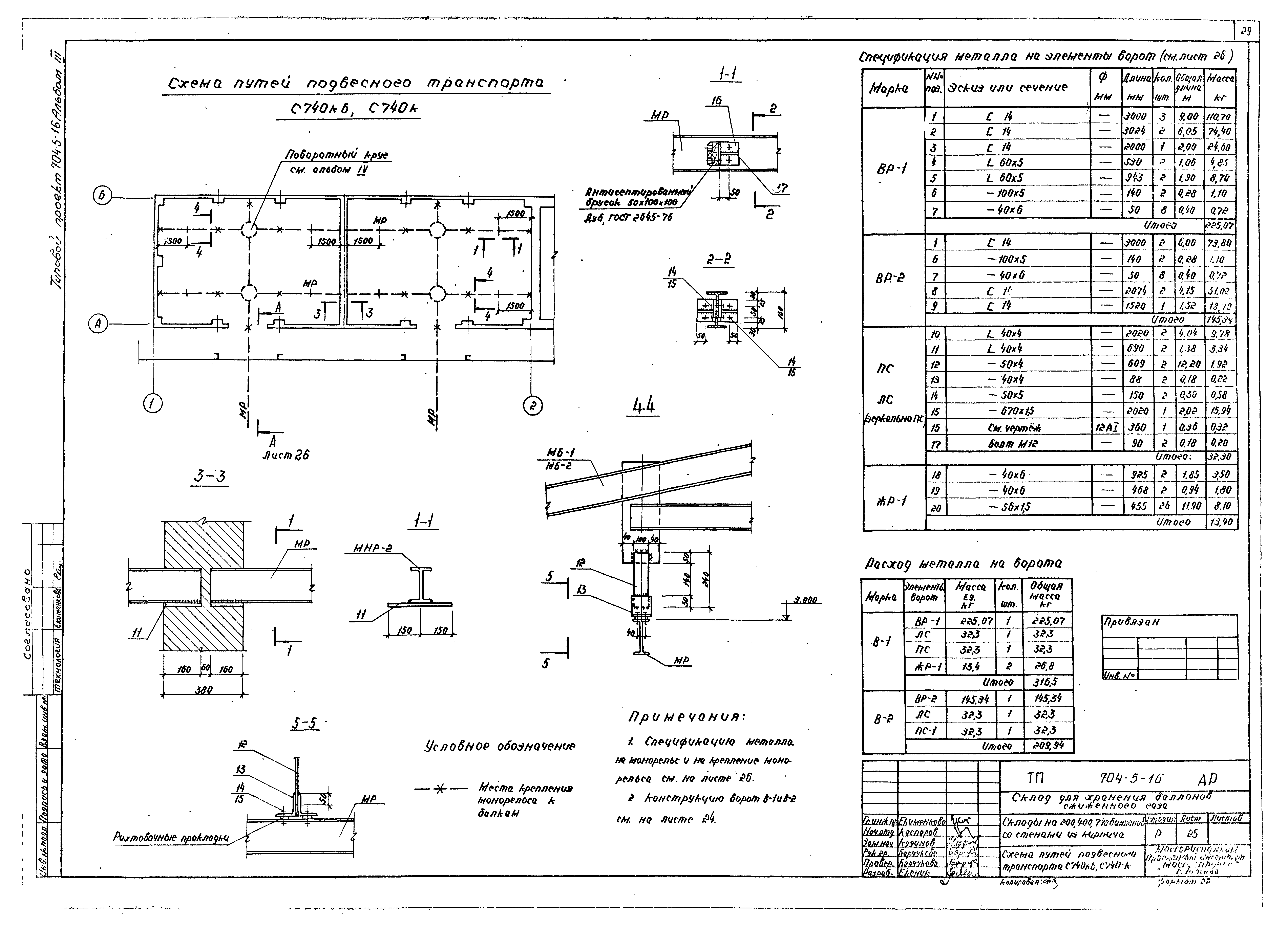
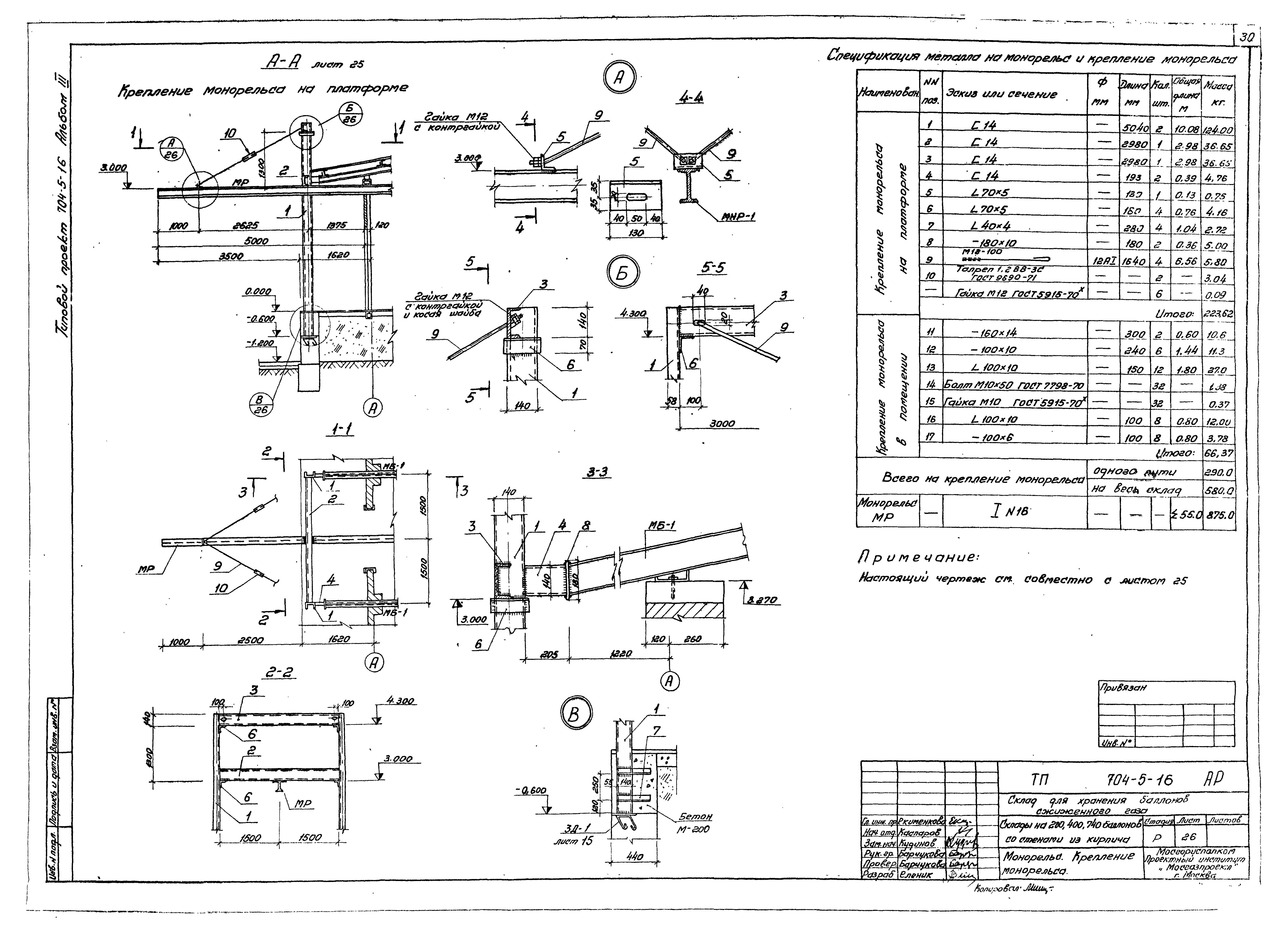
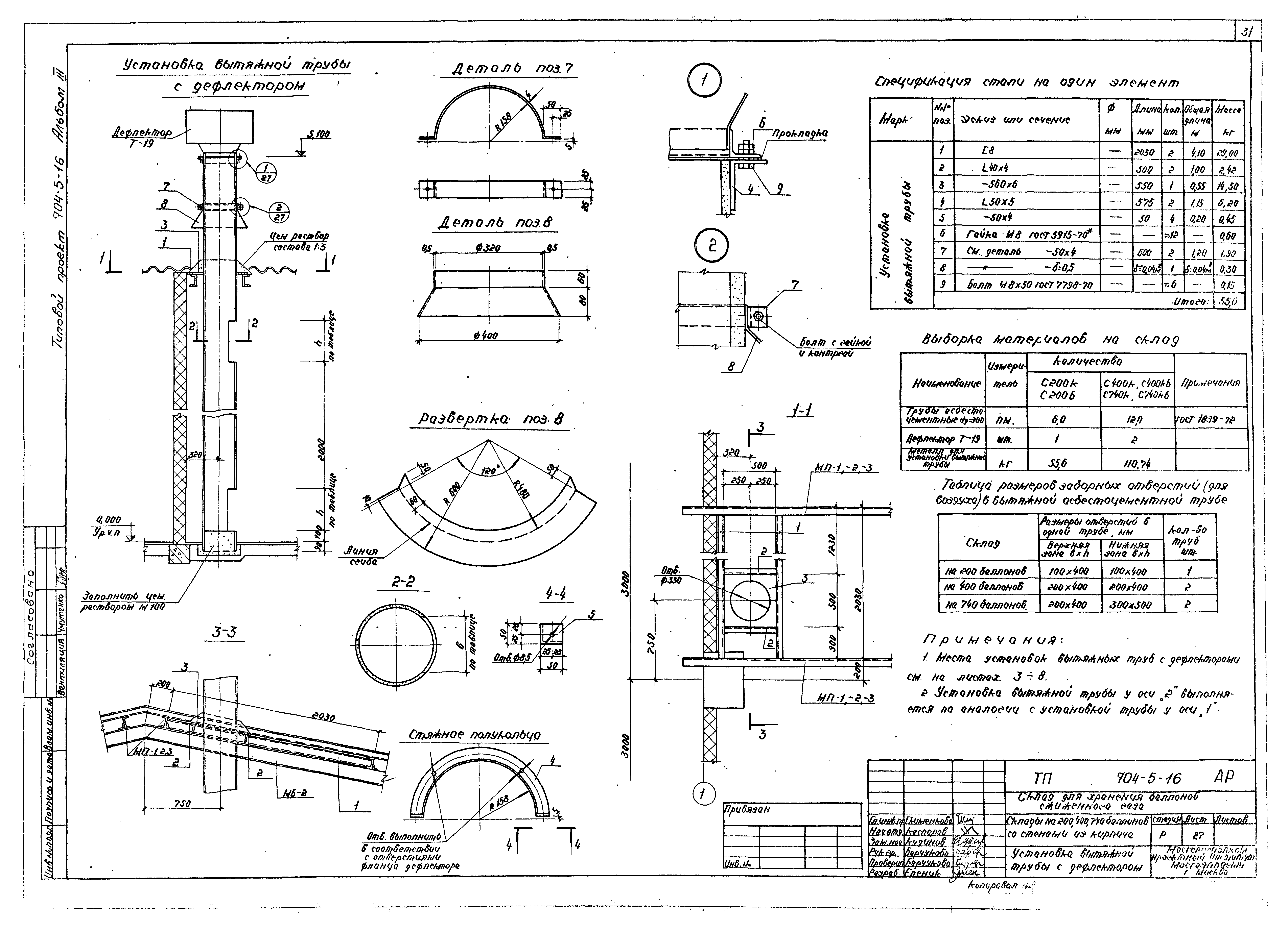
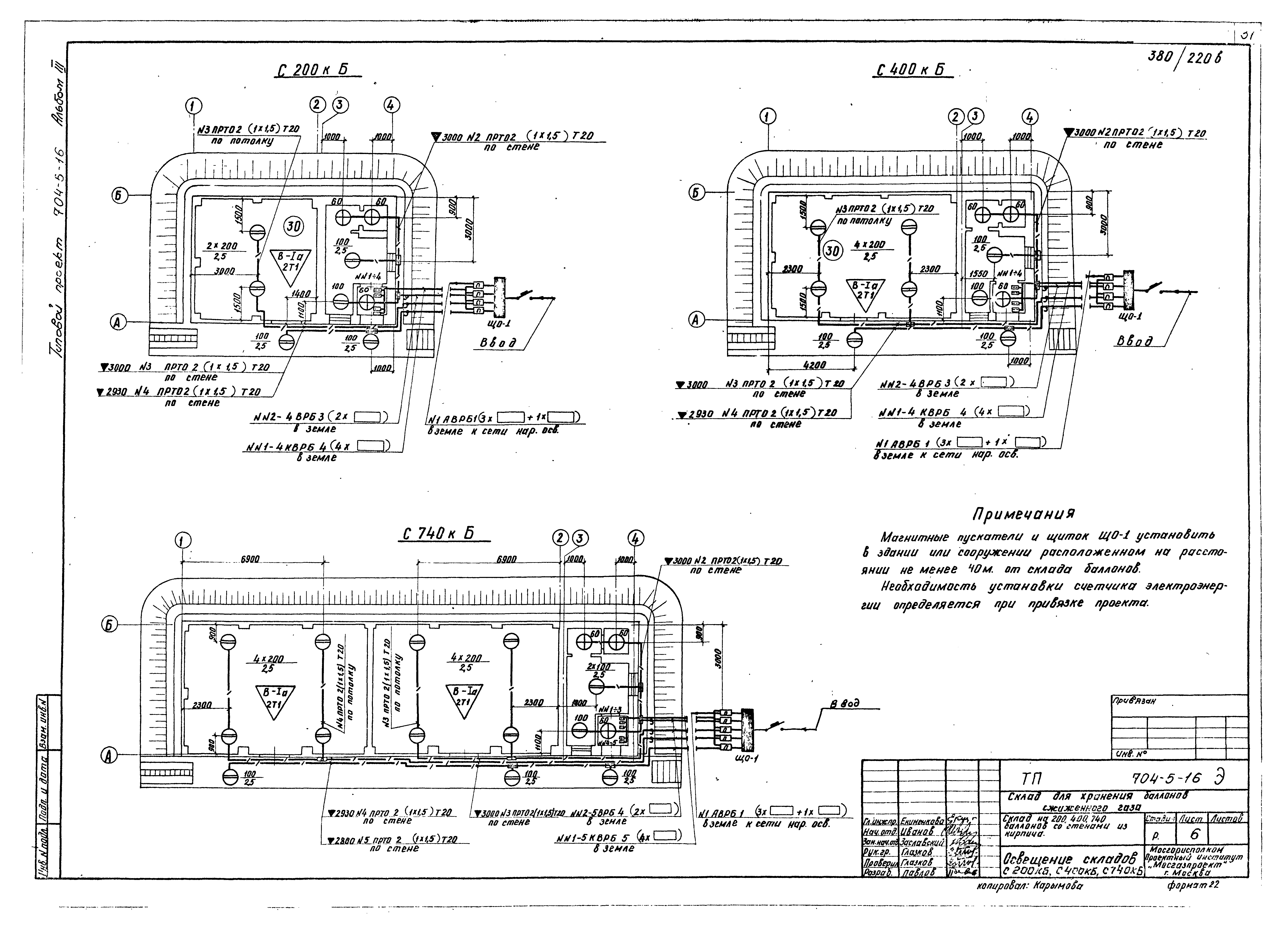
| Оглавление: | Содержание альбома ПЗ Пояснительная записка Архитектурно-строительные решения АР-1,2 Общие данные АР-3 План, фасады 1-3; 3-1 С200кБ. Фасад А-Б С200кБ; С400кБ АР-4 План, фасады 1-3; 3-1 С400кБ. Фасад Б-А С200кБ; С200к; С400кБ; С400к АР-5 План, фасады 1-3; А-Б С740кБ АР-6 План, фасады 1-3; 3-1 С200к АР-7 План, фасады 1-3; 3-1 С400к. Фасад А-Б С400к; С200к АР-8 План, фасады 1-3; А-Б С740к. Фасад Б-А С740к; С740кБ АР-9 Фасады 3-1; 1-3 С740кБ. Разрезы 1-1; 4-4; 5-5 АР-10 Разрезы 2-2; 3-3; 6-6 АР-11 План кровли, план полов АР-12 План фундаментов С200кБ, С400кБ, С740кБ АР-13 План раскладки фундаментных блоков С200КБ, С400кБ, С740кБ АР-14 План фундаментов С200к, С400к АР-15 План фундаментов С740к АР-16 Фундаменты. Узлы и сечения АР-17 План раскладки металлических балок кровли АР-18 План раскладки асбесто-цементных листов кровли С200кБ, С400кБ, С740кБ АР-19 План покрытия С200к, С400к, С740к АР-20 Деталь установки МД-1, МД-2, С740кБ, С740к АР-21 Конструкция балок МБ-1, МБ-2 АР-22 Узлы установки кровельных балок АР-23 Деталь устройства вытяжных клапанов. Схема перемычек АР-24 Ворота В-1, В-2. Детали и узлы АР-25 Схема путей подвесного транспорта АР-26 Монорельс. Крепление монорельса АР-27 Установка вытяжной трубы с дефлектором Электроснабжение 3-1 Общие данные 3-2 Молниезащита и наружное освещение складов С200кБ, С400кБ и С740кБ 3-3 Молниезащита и наружное освещение складов С200к, С400к и С740к 3-4 Расчетная схема осветительной сети для складов С200кБ; С400кБ; С740кБ 3-5 Расчетная схема осветительной сети для складов С200к; С400к; С740к 3-6 Освещение складов С200кБ, С400кБ, С740кБ 3-7 Освещение складов С200к, С400к, С740к 3-8 Спецификация на электрооборудование и электроматериалы |
| Разработан: | Мосгазниипроект Мосгорисполкома |
| Утверждён: | 13.12.1979 МосгазНИИпроект (181) |
| Заменяет собой: |
|






































