Скачать Типовой проект 701-5-2с.87 Альбом II. Конструкции металлическиеДата актуализации: 01.01.2021
|
| Обозначение: | Типовой проект 701-5-2с.87 |
| Обозначение англ: | 701-5-2с.87 |
| Статус: | не определен законодательством |
| Название рус.: | Альбом II. Конструкции металлические |
| Дата добавления в базу: | 01.09.2013 |
| Дата актуализации: | 01.01.2021 |
| Дата введения: | 31.03.1987 |
| Дата окончания срока действия: | 30.06.2003 |
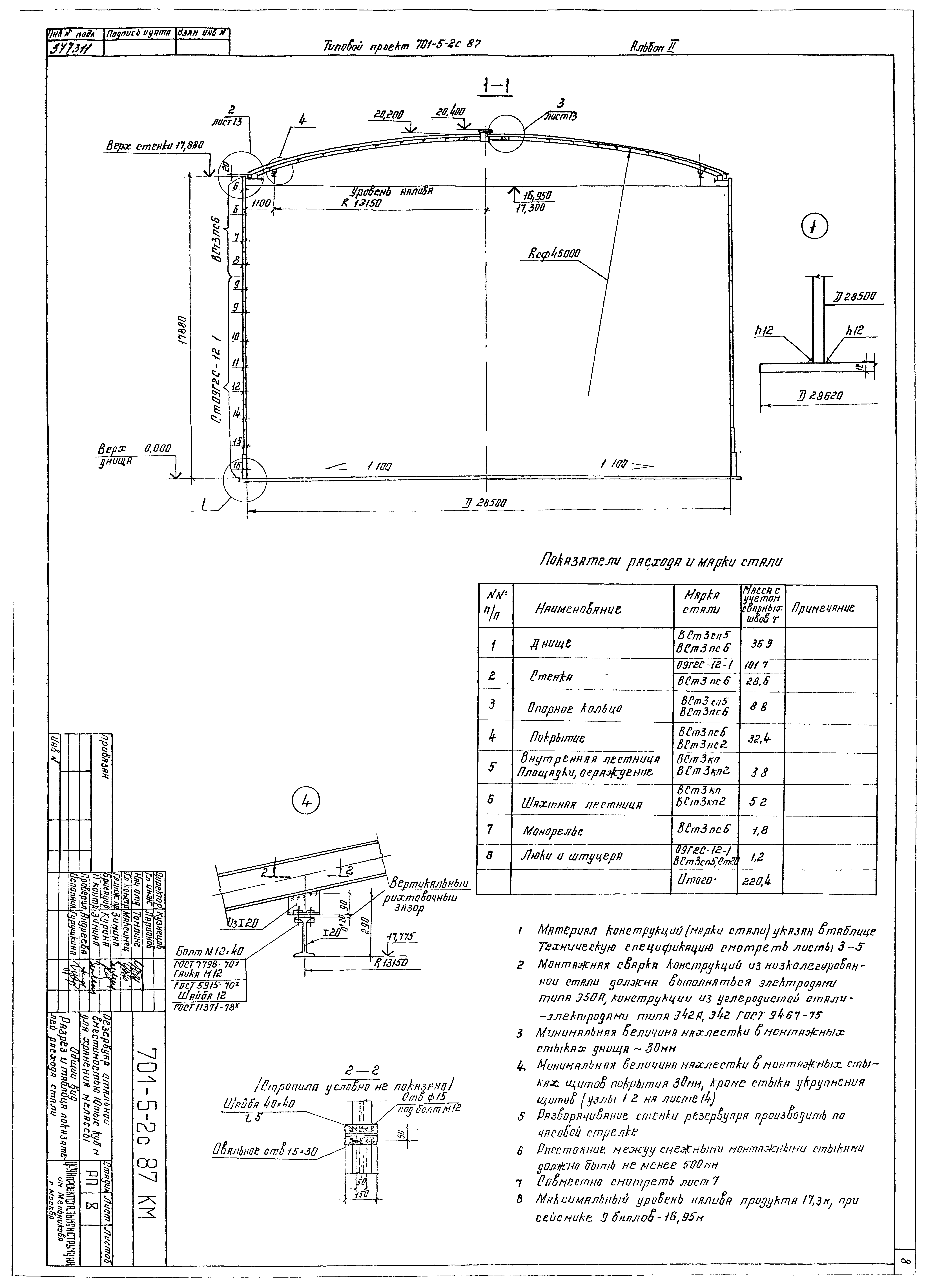
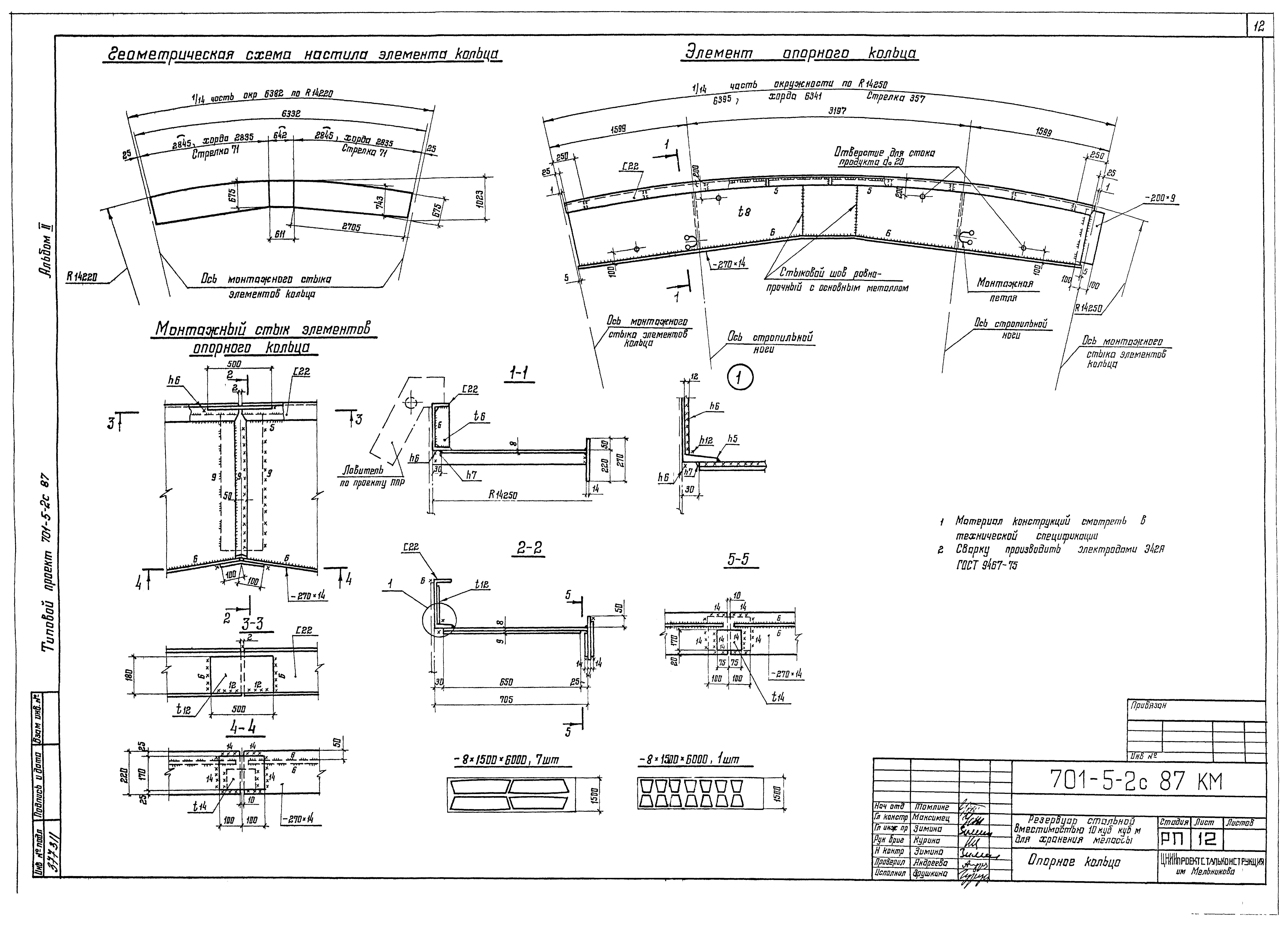
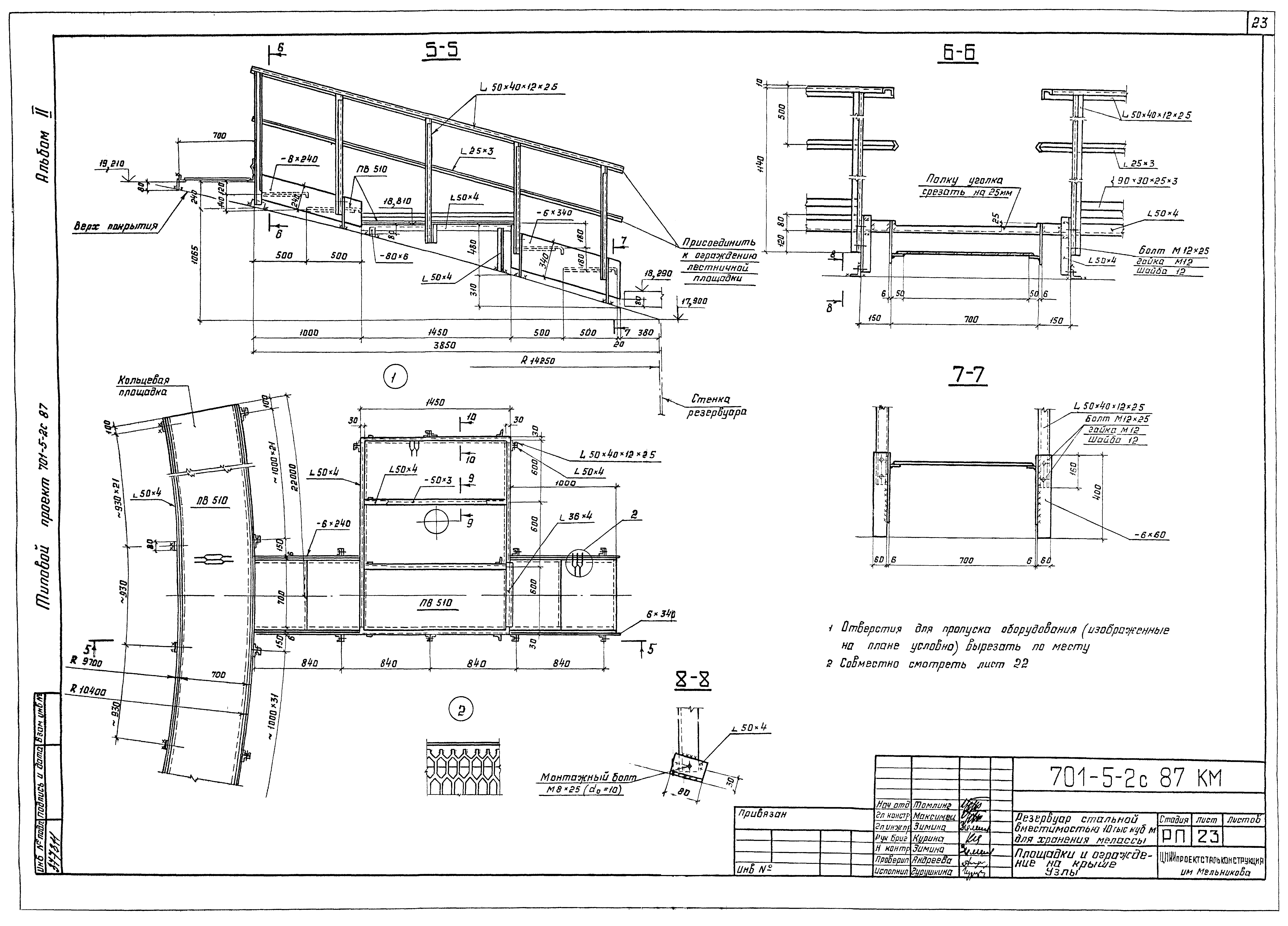
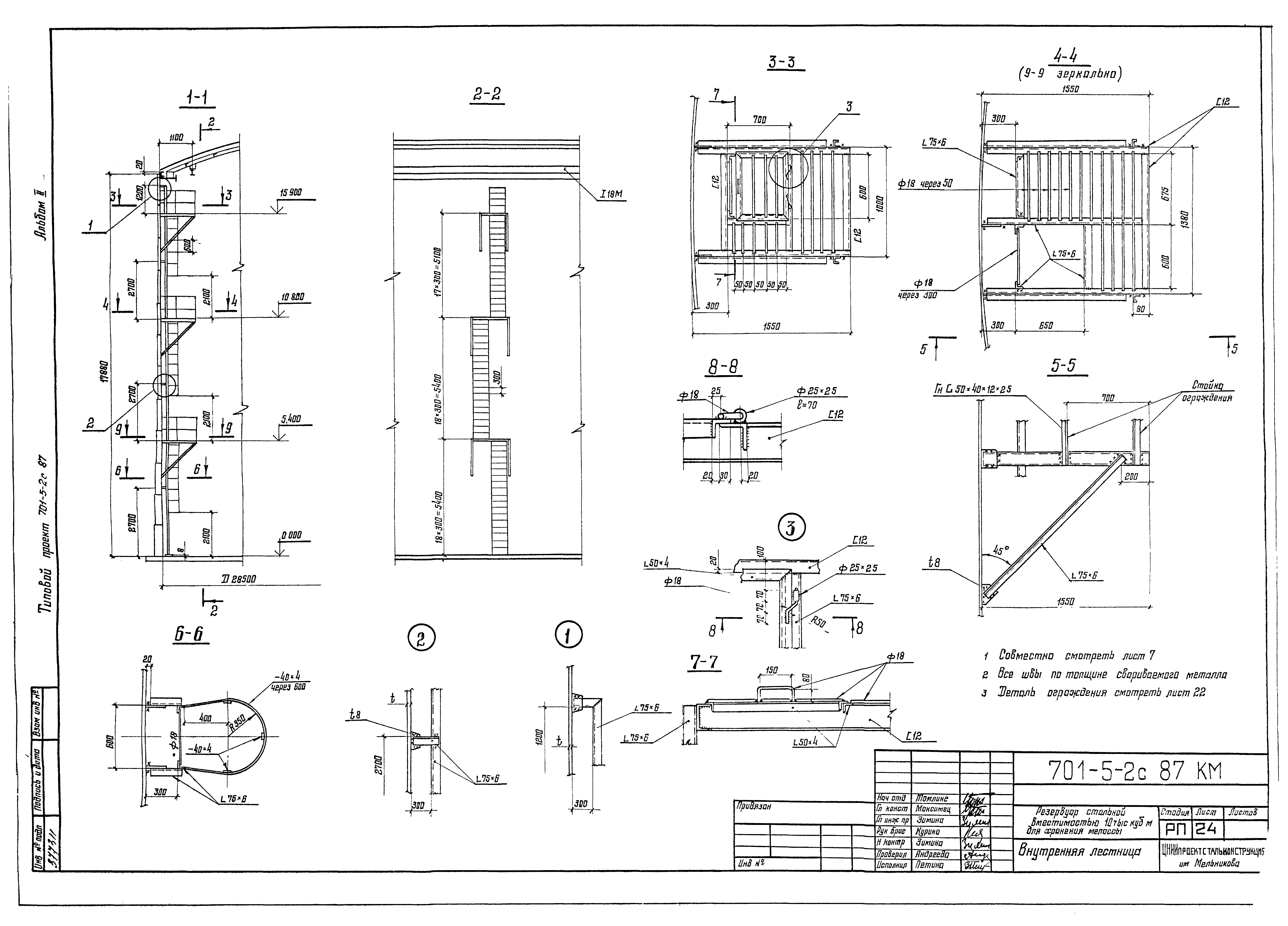
| Оглавление: | Общие данные Техническая спецификация стали Ведомость металлоконструкций по видам профилей Общий вид. Фасад и план Общий вид. Разрез и таблица показателей расхода стали Днище. Общий вид Днище. Узлы и раскрой листов Стенка Опорное кольцо Покрытие. Монтажные узлы Покрытие. Укрупненный промежуточный щит Покрытие. Геометрическая схема щитов Покрытие. Центральное кольцо Покрытие. Начальные щиты 1 и 2 Покрытие. Промежуточные щиты 3 и 4 Покрытие. Замыкающие щиты 5 и 6 Покрытие. Узлы щитов. Лист 1 Покрытие. Узлы щитов. Лист 2 Площадки и ограждение на крыше. План и разрезы Площадки и ограждения на крыше. Узлы Внутренняя лестница Люки-лазы в I поясе стенки Люк монтажный и штуцера на крыше Нагрузки на фундамент Площадки для обслуживания контрольно-измерительных приборов |
| Разработан: | ЦНИИпроектстальконструкция Госстроя |
| Утверждён: | 20.08.1985 Минпищепром СССР (USSR Minpisheprom 7728) |





























